HK Portfolio 2025 -2026 -1 page

Page 1


Portfolio Architecture

HIMANI KHER |Designer |Associate |Co-ordinator

Professional and Academic work

I am thankful to all those who has been and w ll be the part of my arch tectural journey

Intermed ate des gner has exper ence of (8 years n USA and 2 years n Ind a) total. 9-10 years of exper ence. Project’s Self-starter offers deta l-or ented draw ngs, competent des gn ng sk lls. S ncer ty, Honesty, and sense of respons b l ty are the qual t es nculcated. Interested n Conservat on / preservat on and Susta nable based projects. Pass onate and nqu s t ve n nature w th exper ence n mult d sc pl nary projects n Arch tectural and Plann ng ndustry. Includes Res dental (S ngle fam ly &ADU), Commerc al TI, reta l, Inter or des gn & H stor c adapt ve reuse/preservat on projects.

Conf dent

Throughout my career, ı have developed a strong pass on for creat ng nno vat ve and funct onal arch tectural des gns. I have a keen eye for deta l and a deep understand ng of bu ld ng codes, regulat ons, and construct on methods. Prof c ent n rev t, and other arch tectural appl cat ons .

ANTHONY RECTORY , SAN JOSE

FARM , SAN JOSE CA

PATRICIOS, SAN JOSE DOWNTOWN CA

BAKERY RENOVATION , SAN JOSE CA

WORSHIP PLACES

CROSS CHURCH , SAN JOSE CA SACRED HEART CHURCH , SOUTH SAN JOSE CA

AND FORT COMPLEX HISTORIC CONSERVATION

FORT OF NAGAUR , RAJASTHAN INDIA

DESCRIPTION

PROJECT

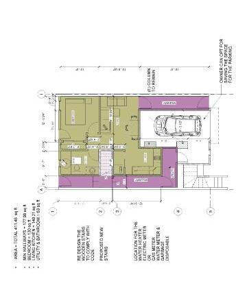
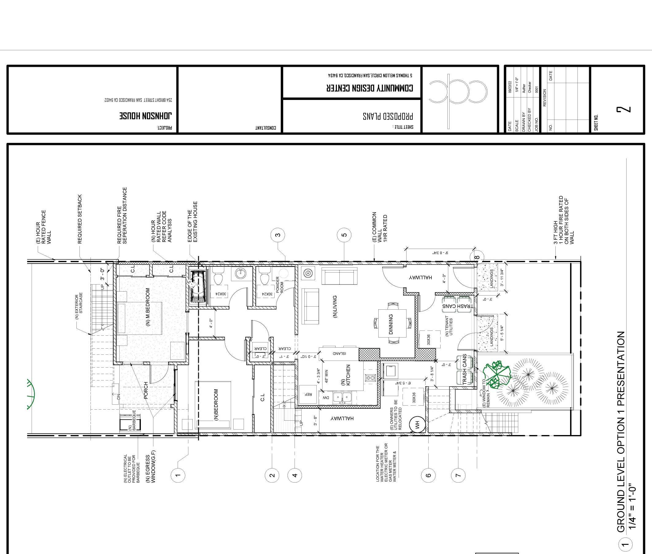
The project was qual ı f ı ed based on the purpose of commun ı ty des ı gn center set for low ı ncome fam ı l ı es and serv ı ces. The cl ı ents were the tr ı o of two brothers and a s ı ster and th ı s house was the ı r fam ı ly house where they grew up. G ı ven the ı r old ages the ı r future ı nvestment completely made sense.

CHALLENGES: 1. To f ı t ı n the program due to s te constra nts. 2. Cl ı ents confl ı ct of op ı n ı ons. 3. Changes to the scope of projects. Research ı n plann ı ng and local jur ı sd ı ct ı on code analys

s and Des ı gn opt ı ons were created w ı th the k ı tchen and l

ng areas ı n the front and the bedrooms were added at the back yard.

Project Locat ı on : SF Company: Commun ı ty Des ı gn Center ADU: Attached Garage Convers ı on Renovat ı on area :1000 sq ft Add

ı on : 290 sq ft

• Work respons b l t es var es per group members

• Schemat c conceptua des gn ng

• s te ana ys s / code ana ys s • work on construct on document set

• create deta s • co-ord nate w th the c ty subm tta s

J-ADU

2020 / Residential ADU

In 2020 the Accessory Dwell ng Un t proved to be the econom c opt ons for users n the market.In freelanc ng I worked w th the compan es l ke M casa and Topa Arch tecture.

TAKEAWAYS

• Accurate Measurements at all

t mes

• Deta led construct on documents and the references helps the contractor to b d correctly for the project construct on.

• Prov de deta led nformat on to consultants and recheck structurals helped the project move forward n fastpace .

• Document the f nd dur ng the construct on on the go.

• L fecycle approach for the ent re process & susta nab

Residential

ST ANTHONY RECTORY TOPA ARCHITECTURE

CHALLENGES

related to the project were mostly f nal z ng the Schemat c des gn cons der ng the requ rements of the pastor who was serv ng the St Anthony church at the t me

Slop ng s te, Access for the emergency and the occupancy cr ter as were the challenges dur ng the n t al stage of the Project.

WORK CONTRIBUTION

Accurate draft ng / deta l ng

C ty approval processcoord nat on

Inter or des gn / mater al select on for cl ent

H gh resolut on render ngs

Cl ent meet ngs/presentat ons

B dd ng process

Construct on adm n strat on

D ocese of San Jose wanted to develop the res dence cons der ng the future occupants at the locat on . • Area Of Work

Pastor Residence : St Anthony Church

A s ngle fam ly house,wh ch was adjacent to church property n South San Jose was a un que case wh ch was part ally cons dered a commerc al property. the house was 60 years old property was to go through a heavy renovat on and potent al add t on to the ex st ng property.

Commercial (Restaurants , Bars & Cafe’s )

Dolce Sicilia An Italian eatery

Designing under supervision, evaluating circulation , accessibility and interior design for occupancy B/A2 (Commercial kitchens , Bars & Cafe) has been major part of my experience. Understanding the food industry and the specific required equipments, finishes and the process for permits in the city.

Challenges1. During inspection plumbing and water main was the hardest part of the survey as the building was old.

2. Attachment of expresso machine to the plumbing was tricky due to the changes in the model.

3. City Permit process.

finishes option : Rendering

PROJECT DUTIES

Commercial projects

Schematic k ı tchen and bar layouts

Render ı ngs/ ı nter ı or des ı gn

Des ı gn ı ng & Programming

Time sensitive completion

Construct ı on documents

Efficient co-ord ı nat ı on w/ consultants & equipment vendors

Interior design Cı ty/ health approval processes

Fleld changes cı ty approvals

)

Salad Farm

Location of the salad farm was ideal for the working population in north San Jose. A team of 3 people were working on the project duties. I was assigned with the layout designing and the presentations of the project. Another team member was handling the interior design.

Area1800 sq ft

ChallengesADA clearences for the back door in circulation

The limited space for the walk in freezer storage

Preservation

ı ve ReuseHistoric

Adapt

Th Ex st ng s te was a bank. Arch tectural style of th s landmark has not been spec f cally dent f ed. to be prec se the style matches the Beaux Arts.The owner who rented the property wanted to propose a w ne tast ng casual meet ng bar where people gather for occas ons as well as buy the collect on of w ne. There was a survey done for the space. A systemat c report was created to expla n the ne ghbourhood and the analys s of the space for accomodat ng a commerc al land use wh le preserv ng the ex st ng wall decorat ons wh ch gave the property a class c touch.

Attached p cture s of a render ng we created dur ng the presentat ons . the most challeng ng was the 3D Decorat on deta ls n the appl cat on that we were us ng. I w sh not to reveal the dec s on of the c ty over the project but would have been susta nable to reuse the space and the locat on was appropr ate to exper ence the downtown San jose .

R E N D E R I N G

Commercial ( Bars & Cafe’s ) San Patricios

Architecture

Downtown San Jose , Topa

Adaptive reuse

Th The space was a part of a restaurant cha n (chacho’ s) n the downtown of San Jose. The owner wanted th s bar to be a qua nt qu et bar to be a r sh bar. The nter or f n shes were left unplastered wh ch added the vernacular feel of the space.

Locat on was or g nally the h stor c dwell ng space. Or g nal wooden floor ng needed to be stab l zed. The tenant mprovement along w th the equ pment schedule was subm tted to the c ty for perm t.

Peter’s Bakery since 1939
Peter’s Bakery Renderings and drawings 2018
Peter’s Bakery Remodeled 2020
Peter’s bakery

Topa Architecture 2015/ Commercial Assembly

site

Sacred worship places

Holycross Church , San Jose Church

Th Holycross was one of the f rst project I worked on n T opa Arch tecture f rm. An deal Assembly occupancy project wh ch was be ng bu lt. I d d w tness the old ru ns of the church that got acc dently burnt n f re. A commun ty was hurt , a commun ty was n pa n to see the 100 yrs old church got burnt down. C ty was upto mak ng some changes to the area norms n downtown w th n 6-8 months after the nc dent. Hence w th n 6 months we had to work on the draw ngs and subm t the draw ngs to the c ty before any changes were made so that we do not loose any sq footage dur ng the trans t on. It was a un que exper ence and a spec al emot onal attachment to th s landmark. when I started work ng on the draw ngs,I was g ven all the ex ts and elevators to des gn n the bu ld ng and around the altar n construct on documents. So many takeaways and so many l fe lessons I learnt dur ng those 2.5 years of cont nuous work on th s project. As bu lt draw ngs , Construct on draw ngs and Presentat on render ngs was my job dut es. Some of the un que tasks were restorat on of ex st ng sta nglass or g nal w ndows, new sta nglass des gn by the consultant and a great job of the acoust cs consultant work on mechan cal systems.

Rendered image on

The project was n t ated to remodel the ex st ng old floors at the altar. Survey of the floors was done by the Arch tect to dent fy the locat on & d rect on of the ma n g rder beam. Structural ntervent on has helped to dent fy the consol dat on of the beam due to we ght of the f n sh mater al appl ed on the surface of the alter floor. It has been more than a century the church ex sts. An adobe f n shed buttressed walls , byzant ne domes and or g nal arch way are the or g nal features of the church. Arched Nave supported w th the class cal columns and h gh ce l ngs of the church adds to the beauty of the space. No matter how many t mes I v s t the place, every t me I have spent at least an hour s tt ng qu etly look ng at th s p ece of art.

Floor Renovation

Church,San Jose

Worship places

St Christopher’s church : Floor & Alter renovation 2019
St Christopher’s church : Proposed rendering

St Christopher’s church : I was updated by the my senior in 2023 with the completed version of the design that he took over the project construction after I left the company and completed the j ob

Patina
Decorative Crown moulding
Interior wooden railing detail
Decorative cornice Cornice
Decorative Railing naval post
Typical Victorian Wooden decorative Detailing

Historic Adaptive Reuse

An excellant opportun ty that I got to explore the profess on through a totally d ffrent angle that I learnt. An ntroduct on to th s f eld was so ntense and nterest ng where one could feel pass onate about. Lot of co-ord nat on , sett ng up the deadl nes as per the Royal fam ly v s ts , the cultural b nd ng sent ments and pr de all of th s contr buted to my pass on towards the old bu ld ngs . One of the n t al tasks that was ass gned to me was documentat on of the fort,damage analys s, capture the before & after documentat on of the fort for fund ng as well as record of the fort consol dat on. Work ng on the publ cat on of the book of the th rd phase of the project was l ke a cherry on the top(Nagaur2005) Water harvest ng systems of the fort were gett ng repa red to be put to use for the gardens n the baradar court. A complete water system was d scovered to help the founta ns work. Although there were old system there should be a back up of the newly d scovered catchment areas at the surround ng areas of the complex. I was ass st ng for th s project to des gn the s ze of the tank and the locat on of the tank cons der ng the slope runoff and catchment area w th the help of water harvest ng consultant and hydrolog sts Funds were ra sed to start w th the help of Helen Hamlyn Trust, London for rev tal zat on of the Ranvas havel s. We d d few presentat ons for the nter or layouts wh ch were the prototypes. (Nagaur 2005)

Palace Complex

Th Th s was a un que opportun ty for me at the r ght start ng at the career. I was try ng to grasp as much as I can from the gu dance of the Ch ef Arch tect and Conservat on st Prof. Meenaksh Ja n. The project was almost on the th rd phase of the rehab l tat on and adapt ve reuse of the Ranvas havel s.

Academic Portfolio

Neighbourhood Design 2003Design Studio

Health care centre 2004 Desig S tudio

S İ TE PLAN

Bthe s te was located n Bandra Kurla complex n the commerc al zone of the c ty surrounded by convent on center and other corporate compan es. Locat on was prof table cons der ng the surround ng senar o. STopography of the s te was fl at surface w th slow slope on one s de of the s te.

PROJECT CONCEPT

T F : Form follows the funct on and symmetry or entat on of the closed u shape keeps the v ew of the pool from each and every room .

T E : Use of class cal orders n columns enables ma nta ns the eth n c ty and grandness n the v ew o f the collonaded paths, entrance foyers and paths lead ng to the pool.

T :

Vegetat on aroundBe ng n the hustle bustle of the c ty to ma nta n the sound f lter ng n the s te landscape elements are used.

W on the terraces ma nta ns the harmony by connect ng nter ors w th exter or.

W , w th nformal s tt ngs suggests the le sure env ronment n the nter ors as well as exter or.

CONCEPT

School of Drama

2005 Design Studio

2012-2017/ Volunteer

Based On The Thes s I Tr ed To Volunteer For The Theatre As A Set Des gner

Turn static files into dynamic content formats.

Create a flipbook
Issuu converts static files into: digital portfolios, online yearbooks, online catalogs, digital photo albums and more. Sign up and create your flipbook.