ARCHITECTURAL PORTFOLIO(2017-2022)

Page 1

HETVILUNAGARIYA
ARCHITECTURAL PORTFOLIO SELECTEDWORKS 2017-2022

HETVILUNAGARIYA

ARCHITECT CONTACT

BHARUCH,GUJARAT

Hetvilunagariya908@gmail.com

7043347330

https://www.linkedin.com/in/ hetvi-lunagariya-8505151b3/

V.E.D.A (VernacularEcoDesignArchitects)

JUNE2022-present

•Developmentofworkingdrawingsandpreparing3dinteriorandexterior renderedviews.Partofprocessinlanddividion,preparingpresentation drawings,landscapedevelopment,Entrancedesigningandresidence elevationdesign.Socialmediacompilationandmoodboards.

IGNITUSARCHITECTURALSTUDIO

INTERNARCHITECT

JUNE2021-DECEMBER2021

BACHLOREOFARCHITECTURE

AnantNationalUniversity

2017-2022

HIGHERSECONDARYSCHOOL

ADVAITVIDHYABIKETAN

2016-2017

SECONDARYSCHOOL

B.V.B’sBhavan’sVidhyalaya 2016

WORKSHOPS

Parabolicstructure

Metalperametricstructure

Agritecture

Vernecularconstructiontechniques

EDUCATION LANGUAGES

ENGLISH HINDI GUJARATI

•Developingworkingdrawingssetsofinterior.Accomplishingtaskof LandscapedesigningfromscratchtoexecutionprocessalongwithIToffice interiordesignprocess.

•Abovetaskincludesfurnituredesignanddetailprocessfurtheraddingthe expirenceofelevationdesigningpartanddevelopingconceptin3d. Compilationandpresentationpartforawardentry.

ANANTNATIONALUNIVERSITY

Jr.WEBDESIGNER

FEBURARY2020-MAY2020

•Worktaskincludesinteractionwithteaminshortlisting content,designingwebsiteandwebpages.Code designedwebsiteandwebpagesusingCSS,HTMLand Jquery.

AFFINITYPUBLISHER

MICROSOFTOFFICE

WORKEXPIRENCE SKILLSET INTERESTS

Designedwebsite CSS HTML JQUERY ADDITIONALSKILLSET (Beginner) (Beginner) (Beginner) (Advance) (Advance)
FIGMA CANVA
UI/UX
Web|socialmediadesigning AUTOCAD SKETCHUP PHOTOSHOP ENSCAPE

INTERNSHIP-AHMEDABAD

Theoutlookofthefirmisoriented towardsthecustomercentricdesign practiceenhancebythesensitivityand effectualityofthereconduct.Amongst itsmanyattributes,thekeyfocusof theirdesignevolveasefficientproject management,skillresourcesandthe clarityofideas.Theredesignphilosophy emanatessimplicity,modernityand imbibesholisticattitudetowards aestheticvalue.6monthstenureof workwhichincludesresponsibilitieslike preparationofpresentationdrawings, executiondrawings,interactionand coordinationwithsiteandvarious agencieswhichareinvolvedinwork.

01
IGNITUSARCHITECTURALSTUIDO

PROJECT

Dhartishaketradiance

Task-developworkingdrawingof prefabricatedstaircasestating multipltdetails.Staircasewasbuilt using20x20msboxsectionand 75x75msboxsectionwhichplays majoreroleofsupportingin landing.

STAIRCASEDETAIL 2
FOLDEDELEVATIONDETAIL

PROJECT THECENTRALPARK

Task-Designinganddevelopingworkingdrawings.Typologyofthesebedroomwasbold andcombinationofvariousmaterialsdepectingpersonalityofclient.Wherestudytablewas foldedwichadjustaccordingtothepatternofwall.

4
ELECTRICALLAYOUT

PROJECT THECENTRALPARK

Task-Developingelectricaldrawingaccordingtofutniturelayoutwithalldimensionsof4 bhkapartment.Alongwithceilingwhichhasconceptofminimalismachivedby combiningveneerandplaincolourstogetsimoleandsoothinglook.

6

NOIDA

Thefirmusessustainableapproachfor ourplanttomakeelixirsoflifethatgives afeelingoftruebelonging,calmness andpeacetoliveamorehealthy, mindfulandnaturegivenlovinglife. Mainfocusisonminimalismand sustainable.

02
V.E.D.A (VernecularEco-DesignArchitects)

PROJECT HOUSEINMERRUT

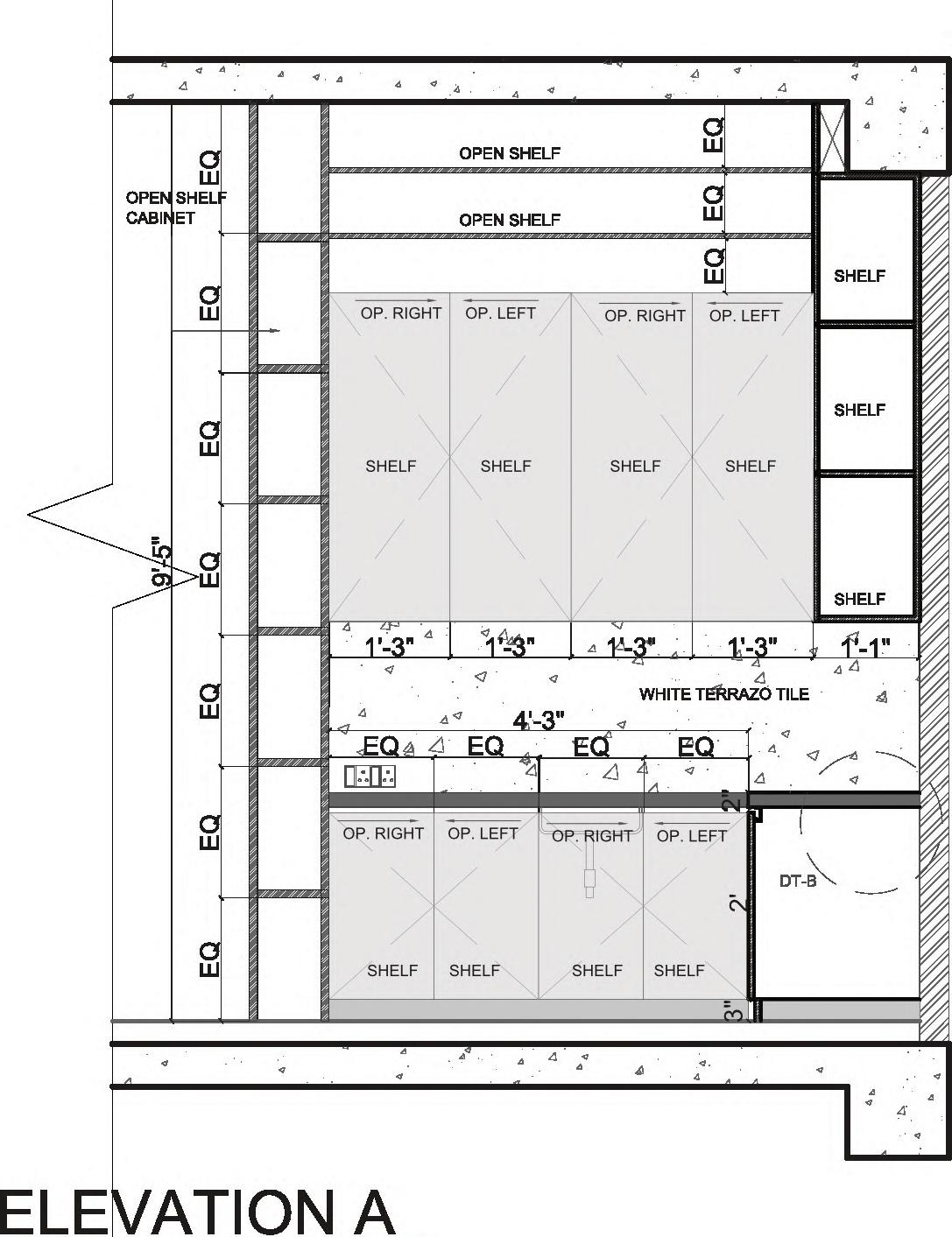
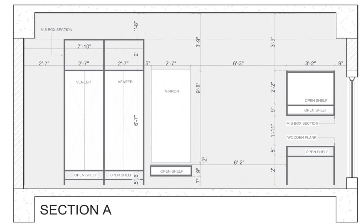
Task-developworkingdrawingof kitchenandpoojaroom,alsoto develop3Dandrenderviewsfor betterunderstandingofclient.

POOJAAREA KITCHENAREA
KITCHENINTERIORDRAWING PLAN 8
HOSTELROOMINTERIOR

PROJECT HOSTELINNOIDA

Task-develop/organisefurniturelayoutplananddevelopingitsworkingdrawingsalong withelectricalplan.Asthefurniturewascoustomiseditsdimensiondrawingwithdetails wereproduced.Inalltherewere6differenttypolgies.

10

BEAMBOTTOMLVL+59'4"ft

THIRDFLOORF.F.L+49'9"ft

THIRDFLOORSSL+49'ft

BEAMBOTTOMLVL+27'4"ft

THIRDFLOORF.F.L+39'9"ft

THIRDFLOORSSL+37'ft

BEAMBOTTOMLVL+35'4"ft

SECONDFLOORF.F.L+25'9"ft

SECONDFLOORSSL+25'ft

BEAMBOTTOMLVL+23'4"ft

FIRSTFLOORF.F.L+13'9"ft

FIRSTFLOORSSL+13'ft

BEAMBOTTOMLVL+11'4"ft

PLINTHLVL+1'9"ft

GROUNDLVL±00

Alldimensionsaretobereadandnottobescaled. �Alldimensionstobecheckedonsitebefore commencementofanywork. Alldrawingstobereadinconjunctionwithallrelevant Architectural,Structural,MEPServicesandInterior Drawings �Anydiscrepanciesbetweendrawingstobeimmediately broughttoConsultant'sattention.

9"thkwall 0.7"thkplaster 150mmthkslab
THIS DRAWING IS THE PROPERTY OF AFFIRM DESIGN STUDIO AND NOT TO BE COPIED OR USED WITHOUT THEIR WRITTEN PERMISSION NOTES REVISION LOG REV NO DATE DESCRIPTION/REVISION ARCHITECTURE&INTERIORDESIGN: KEYMAP: PLUMBING/SANITARY: ELECTRICAL: HVAC: LANDSCAPING: CONSULTANTS CLIENT PROJECT DRAWINGTITLE SCALE: VERIFIEDBY: APPROVEDBY: DATE: DRAWINGNO: REVNO: N ORIENTATION DRAWINGSTATUS PROPOSED PLAN WALLSECTION 25.08.22 WD_01.1 HETVILUNAGARIYA RAHULCHAUHAN V.E.D.A (Verneculareco-design architects) 1'tread 6"riser 100mmP.C.C 3ftwideporchfins 3'slaboverhang GL GL 27"wideverticalfins 9"thkparapet 150mmthkslab 2'3"slaboverhang 1'9"widebalcony
TERRACESSL+61'ft TERRACEF.F.L+61'9"ft 12' 2Ørailing 12' 12' 2Ørailing 150mmthkslab 2'-6" 2'-6" 12' 1'5"slaboverhang 7' 12' 1'-8" 1'-9" 7' 3'-10" 10" 2'-6" 9'-6" 1'-8" 1'-8" 1'-8" 6" 6" 7' 10" 1'-8" 9' WALLSECTION

PROJECT HOSTELINNOIDA

Task-Designingelevationattheexistingbuildingwhichfollowssimplicity.Landscape wasdesignedaccordinglywhichhavegreenpatcheswithwoodendeckforsitting purposeandpavedareaforfireexitonperipheryofthebuilding.

12

LANDSCAPEANDCOMMERCIALBLOCKARRANGMENTPLANPLAN

A B C 4 3 2 1 1 2 3 4 3 2 1 A B C D A B C 1 2 3 A B C D E 3 2 1 A B C D 1 2 3 A B D E H I J C F G 30'-9" 7'-10" 26' 26' 16'-4" 26' 7'-10" 26' 31'-7" 26'-2" 85'-1" 54'-2" 8'-7" 3'-2"14'-9" 17'-9" 7'-9" 1 2 3 A B D E H J C F G 30'-9" 7'-10" 26' 26' 16'-4" 26' 7'-10" 26' 31'-7" 26'-2" 8'-7" 14'-9"3'-2" 17'-9" 7'-9" 25'-6" 37'-2" 37' 25'-7" 25'-5" 20'-10" 21'-8" 21' 51' 21'-7" 20'-11" 21' 63'-7" 39'-4" 38'-11" 25'-5" 26' 27'-9" 28'-7" 27'-10" 20' 10'-1" 86'-3" ENTRANCE PEDESTRIAN 34'4"WIDEROAD PEDESTRIAN 25'7"WIDE PEDESTRIAN 21'WIDE 41'WIDE PEDESTRIAN BLOCKI 10212sqft CIRCULATION 292sqft BLOCKA BLOCKD 2846sqft 2917sqft 4554sqft BLOCKB BLOCKC BLOCKF BLOCKG BLOCKE 4600sqft BLOCKH 4600sqft 5350sqft 2846sqft 4554sqft CIRCULATION 1652sqft CIRCULATION 543sqft 1652sqft CIRCULATION 568sqft CIRCULATION 568sqft CIRCULATION 543sqft CIRCULATION 26'-6" 53'-5" 37'-1" 36'-6" 34'-10" 30'-3"

PROJECT COMMERCIALINNOIDA

Task-Thecommercialwasdesignedaccordingtotheplotswhichweredividedinto7 partsandeachoftheblockhas1st twofloorsofshopandrest2forresidntialuse.Exposed brickwasisusedforallblocksexceptblockAnadB.

14
PROJECT HOSTELDINNINGAREA 16

PRIMARYSCHOOL SITE-IITGANDHINAGAR,AHMEDABAD

Primaryschoolwasdesignedby followingprincipleofAr.Achkyut Kanvinde.Aimofthesedesignwasto createcuriosityfortheusersbypartially openingthebuilding,whichwillattract childrentoschool.Asitisverysensitive placebuildingisclimateorientedand dividedintovariouslevelstocreate divisionsandhavecontroloverpremise .

03

Siteisingandhinagar,climateishotanddrywithminimalrainfallandprogram proposedwasschool.Torespondtheeducationalcontextandneedofsuch primaryschoolforbettermentofvillagesinsurroundingarea.Theseprogram wouldbenefitstaffchildrenandalsopeopleslivinginimmediatecontextas theretravelingtimeandcostwillbededucted.Locationwouldalsoprovide properatmosphereforlearningandtheycanalsointeractwithcollegestudents formoreexposure.

Viewstothesiteandfromthesite Contour/level 12M 8.5M Winddirectionanddisturbance patch 18

SKYLIGHT

JUNIORKGCLASSROOM

SENIORKGCLASSROOM

TERRACE GARDEN

WASHROOM

TERRACE GARDEN

SKYLIGHT

7th -8th STANDARD CLASSROOM

SCIENCELAB

AMPHITHEATER CONNECTINGALLLEVELS

ADMINISTRATIONOFFICE

CARETAKERROOM PRINCIPALOFFICE

4th -6th STANDARD CLASSROOM

WASHROOM

COURTYARD

TERRACE GARDEN COURTYARD

TERRACEGARDEN

LIBRARY

WASHROOM

COURTYARD

9th -10th STANDARD CLASSROOM

Inthesedesignmainelementissloppingroofandamphitheaterwhereslopping roofcreatescuriositytendencyandamphitheaterconnectsallthreelevels. Buildingisdividedinto3levelsaccordingtoprivacyandsafetyissues.These levelsalsohelpsincontrollingnoisewhichisideologyofschool.Alongwith compactplanningtherearemultiplebreathingspacesintheformofcourtyards forventilationandcreationinteractionspace.

BLACKMANGLORETILE
1st -3rd STANDARD CLASSROOM

SECONDARYCLASSROOMS

LVL+8M LVL+8M LVL+10M LVL+13M LVL+19M
CLASSROOMS
PRIMARYCLASSROOMS LVL+16M LVL+10M LVL+13M LVL+16M LVL+18M LVL+19M PARKINGAREA AMPHITHEATER AMPHITHEATER STAGE SECTIONS 20
PRIMARY
ADMINISTRATIONANDPRE

TRANSITHOUSING VASANA,AHMEDABAD

Geographiesofhomeahousingstudio wasbasedonlowcosthousingwhere peoplewhoareevacuatedfromthere housesweregivenshelter.Whichare givenbygovernment.Intendofthe planningwastoprovideallthefacilities whichareavailableforrichpeoplein senseofspace,opennessofhouse enoughrecreationalspacesand qualityoflightandventilationin house.Thoughareaofwasminimum was32sqmandmaximumof42sqmall needsshouldgetfulfilled.Asthese buildingwouldbeadaptedbyvarious communities.

04

Siteisinvasanaahmedabadwherecontextissimilartothepourposeogthe building.Tobuiltforthepeoplewhowereevacuatedfordevelopment reasonorduetonaturalcalamities,thusitisimportanttochoosethesite nearthesamecommunityofpeoplesothattheirhomlyfeelingisretainedin newplaceandbecauseofthatpeoplecaneasilyadaptnewplaceastheie home.Thesepatchhasbeendevelopedwithroadsandvariousother eminitiesalongwithproposinglowcosthousingschemes.

APMCCJP Market
Malav Talav DrJivrajMehta Marg
Vasna Road
Jawaharlal NehruRoad Sarkhej Road
22

MATARIATALAV

FOOTPATHWITHBECHESTOTAKEBREAK

COMMERCIALPLOT

PARKLETS

GREENSPACE/SHADEDAREA

PEDESTRIANSPACE

INSTITUTIONALPLOT

2WAYROAD

WALKWAYWITHCANOPY

2WAYROADCONNECTING POLICESTATIONS

INTERCONNECTINGROADS

RESIDENTIALPLOT

PARKETS

FOOTOVERBRIDGE

5MWIDEROAD

GARDENAREA

RESIDENTIALPLOT

Pedestarianbridgeastherewas intersectionof2roads,sothat peoplewalkingthroughroads doesnotgetsdisturbandcan havepausepointandcanhave viewtothegarden.

RECREATIONALAREA SECTION

RESIDENCY RECREATIONALAREA INSTITUTIONALAREA COMMERCIAL
SITE AREA-1HECTARE SITEPLOTDEVELOPMENT

CONCEPTMASSINGANDUNITPLAN

Conceptofmassingwastoconnecteveryblockthroughbridgesandorientblockaccordingclimate tocapturenaturallightinallhouse.Similaryheightisalsodecreasedtotheendpointtogettheview oflakenearbyandalltheterracesstayedconnetedvisually.Betweeneachfloorthereisspacewhich actsasbreathingspaceandalsigatheringspacebetween2houses.Aspeoplewithparticular communityaremorecomfortablewithsuchopenpockets/spaces.

2 3 7 1 4 5 6 3 2 1 1 2 3 4 5 6 DRAWINGROOM BALCONY BEDROOM KITCHEN WASHINGAREA TOILET 2 3 7 1 4 5 6 4 5 6 AREA-46sqm 1 2 3 4 5 6 DRAWINGROOM BALCONY BEDROOM KITCHEN WASHINGAREA TOILET 7 STUDIOROOM AREA-56sqm 1 2 3 4 5 6 DRAWINGROOM BALCONY BEDROOM KITCHEN WASHINGAREA TOILET 7 MASTERBEDROOM AREA-64sqm
24
ENTRANCE EXIT 12 13 8 9 10 11 1 2 SITEPLAN

1.BLOCKA

2.BLOCKB

3.BLOCKC

4.BLOCKD

5.GATHERINGSPACE

6.AREA-CELEBRATINGFESTIVALS

7.BLOCKE

8.BLOCKF

9.BLOCKG

10.BLOCKH

11.PARKING

12.RECREATIONALSPACE

13.PAVEDAREA

7 3 4 5 6 26
RECREATIONALAREA INTERACTIONSINBUILDING SECTIONAA'
SECTIONS
28
STAIRCASE PARKING

CO-WORKINGITHUB

Co-workingIThubisannewconceptof evolvingworkspacewherepeopleof differentfieldsandareasarecatersat oneplaceforwork.Theplacewhere peoplecollaborateandcombinefor workiscalledCO-WORKINGspace. Mainpurposeofthesespaceistoserve youthwhoareinvolvedinstartupsand freelancework. Informalinteractions happeninginworkingenvironmentcan reducestress,aspeoplegivepasstheir knowledgeandhelpsinsolving problemswhichincreasesnetworking andacceptanceforfailure.Dueto whichnewatmosphereofhealthy workingisintroduced.

05
MUHAMMADWADI,PUNE

Punefallsinto1tirecityandittheonlycitywherecoworkingisstill developinganddemandofITindustryisveryhigh.AfterITrevolutionin 2012peopleareshiftingtopuneforjobsandbecauseofthatfootfallis rapidlyincreasing,majoroccupationofpeopleinisrelatedtoTech.

Selectioncriteria

•Residentialisdeveloping

•Nocoworkinginneararea

•Awayfromitparkstomakeeasy

•Accesstothespaceforpeople.

•Havingviewsofnatureorcitytoconnectpeoplewithcontext

30

BUILT-UPOPENMAP

Lessbulitupspaceincontext.

EXISTINGTREES

Mergingofbuildingswithgreenery.

COMMERCIAL-RESIDENTIALMAP

Lesscommercialsandnegligiblemixeduse buildings.

RESERVEDFOREST

Reservedforestonwestofsite(respondto forest)

SITEANALYSIS
Nodesneartosite.Easyaccesstousers. NODESNEARCOMMERCIALBUILDINGS
Importancegiventogreenspace GREENSPACE

Soundinsite

Massinginsiteaffectedbycontext

Entrancetositethrough mainroadandmajor nodesarenear commercialbuilding whichmakeseasyaccess forpublictothere necessarythings. Scatteredbuildingwith differentheightstobreak viewscreatebreathing spaceincenterand variousviewsalongwith climaticpurpose

PartialViewsfromroadgets interruptedbybuilding,maintaining workcultureprivacy

Viewstoandfromsite

Jaliwall,blockingview fromroad.Givingpartial viewandgood ventillation Deckwherepeoplecan sitandenjoynaturewith soundofsoftwater. Plantsrreducing temperatureandactas soundabsober maintainingsuitable environmentforwork culture.

Buildingfacingforesttoavoidnoiseand captureprevailingwindsfromwest. Courtyard/focalpoint/ attractionpoint
31

Wadasareintrovert plannedalongwith climateresponsive arrangmentsof spaces.Inthese currentproject majorfocusisonits private,semiprivate andopenspace withpuzzled circulation obstructionviews. Addingwaterbody tothebuildingasan centralfocusedand mainelementof designwithanaim toconservewater. Assiteislocatedin developingarea thereisproblemof watersupplyalong withthehelp topography.

Skylight/courtyard CONCEPTMASSING

Thesemassfulfillneedsofcirculationandviewsbutvery unorganisedintermsoffunction.Whenfuctionoractivityare addedtheseformsevelove.Massinghavingslopingroof becauseofhrainfallinpunetomakeitclimateresponsive alongwithitopeningoportunityforpeopletoaccessterrace andsobuldingcanmergewithtopographyanddonotover powerusers.

34
SITEPLAN

Co-workingspaceis combinedspaceforall usersinthatdivisionsare madeformeeting purposeofany confidentialmeeting. Thesepartionsare madeofacrelyic materiallasitissound abdoberandalso transparent.People canhavevisual connectivityalongwith soundinsulationsothat disturbanceisavoided .Firstfloorhaving mezeninefloorwhichis reservedforprivate officesandwithmore rentasithaveviewsto cityandsite.These blockiformscanopy overwaterbodyasitis cantiliversothat peoplecanusethe spacenearwaterbody asitremainsinshadefor mostofthetime.

36

Forestarea

Co-workingspace

Doubleheightspacewithloversonthesouthernsidetoprotectwork spacefromharshsunlight

Co-workingspace

Undergroundworkspacewith propernaturallighttoincrease privacyandcreatedifferentlevels tomakespaceinterestingand joyfull.

Privateworkspace

Monthlybasedworkspacetohave allaminitiesalongwithopen workingarea.

SECTIONS

Transitionspace

Spacewithvariouslevelstocreatepausepoints andattractuserstohaveinformalinteractions

Parkingspace

Parkingatthelowerlevelandaccessthrough rampwithmultiplesmallpocketstositbeside waterbody

Informal workspace

Thespacewherepeople canhavebrrakandwork atsametime/breakout zone.

Informalworkspace

Spacehavingbothopenandclosedworkspaceatsame time.Whichactsas1bigspacewithmultiplelevels whereworksareexhibit.Goalistocreateawarness/ advertiingabouttheproducts.

38
06.3DRENDERS
EXPOSEDBRICK

Subtlecolorsareusedtoachieve simplicityandminimumelements.

INTERIOR(KITCHEN)

LANSCAPE
40

Hetvilunagariya908@gmail.com

7043347330

https://www.linkedin.com/in/hetvi-lunagariya-8505151b3/

Turn static files into dynamic content formats.

Create a flipbook
Issuu converts static files into: digital portfolios, online yearbooks, online catalogs, digital photo albums and more. Sign up and create your flipbook.
ARCHITECTURAL PORTFOLIO(2017-2022) by Hetvi Lunagariya - Issuu