Skip to main content

Henita Patel - Architectural Design Portfolio

Page 1

HENITA PATEL

ARCHITECTURAL TECHNOLOGY GRADUATE GEORGE

BROWN COLLEGE ACADEMIC PORTFOLIO
TABLE OF CONTENTS

ACADEMIC / 2023

ACADEMIC

ACADEMIC /

ACADEMIC

ACADEMIC /

1 THE SANCTUARY / HOME RETROFIT
PAGE
2 THE NAUTILUS / RESIDENTIAL BUILDING
1
2022 PAGE 7 3 2D & 3D ROOF DETAIL
/ 2023 PAGE 12 4 DIGITAL TECHNOLOGY 1
2023 PAGE 13
DIGITAL TECHNOLOGY 2
5
PAGE 14
PERSONAL WORKS PAGE 15
/ 2022
6

THE SANCTUARY / HOME RETROFIT

Type: Collaboration

Architectural Technology & Studio 6

Program(s) Used: Revit / Enscape / Procreate (presentation)

Contributers: Henita Patel

Kishika Mittal

Michael Yuen

Erica Yiu

Project Description:

The goal of this term project was to generate universal design solutions and build an attractive, adaptable and affordable home of the future that speaks to and showcases livability, by promoting both aesthetically- and functionally-appealing designs for better living. Students were given one site and one client to develop a project based on the scenario provided for that site and client. Multi-generational housing and aging in place are the key design criteria.

Client:

The Cowlings are seniors in their mid-60’s and have lived in their home for 35 years. The husband has been disagnosed with early stages of dementia. They are looking to prepare their home for the inevitable decline of the husband’s health but wish to be able to keep him in their home for as long as possible. This may require a secondary unit for in-house care.

Concept:

Sanctuary – When designing a home for a dementia patient, it is easy to dismiss the caretakers and their needs. This can potentially lead to an exhausted relationship between the patient and the caretaker. With both parties in mind, this design solution proposes places of repose, where both can retreat to their own spaces of comfort and relaxation. The challenge is finding a way to give both individuals their own sanctuaries without the use of harsh divides.

1
1
1
HOME
N.T.S 2
THE SANCTUARY /
RETROFIT
1
N.T.S 3
THE SANCTUARY / HOME RETROFIT N.T.S
1
4
THE SANCTUARY / HOME RETROFIT
1
5
THE SANCTUARY / HOME RETROFIT
1
N.T.S N.T.S N.T.S 6
THE SANCTUARY / HOME RETROFIT

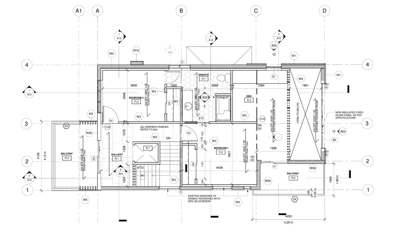
THE NAUTILUS / RESIDENTIAL BUILDING

Type: Collaboration

Architectural Technology & Studio 5

Program(s) Used: Revit / Lumion

Contributers: Henita Patel

Kishika Mittal

Angelo Barletta

Samira Jumshudova

Project Description:

This project was an intensive collaborative effort in the fifth semester of the Architectural Technology Studio 5 program, where we applied OBC applications to design a residential building. A parcel of property located in the west end of Toronto in the former Municipality of Etobicoke was presented to us. The Client was considering building a multi-storey, midrise residential building (max. 8 stories) to help with the muchneeded demand for the inter-generational / multi-generational housing.

Concept:

The Nautilus is an eight-storey, mid-rise residential building which will accommodate condominium units, townhouses on the ground floor, and various amenities. The consideration of the proposed development is to provide sufficient yet comfortable living spaces for the residents. The apertures function as inhabitable spaces or thresholds between interior and exterior that respond to environmental forces such as sun and wind and exploit potential energetic exchanges between the natural and built environment. This design utilizes historic materials and innovative design techniques to spark a revitalization of the surrounding communities. The Nautilus offers a wide range of spaces and activities that will attract people from outside the community, while also providing a sense of community within the development.

2
7

THE NAUTILUS / RESIDENTIAL BUILDING

8
2

THE NAUTILUS / RESIDENTIAL BUILDING

9
2

THE NAUTILUS / RESIDENTIAL BUILDING 2

10

THE NAUTILUS / RESIDENTIAL BUILDING

11
2

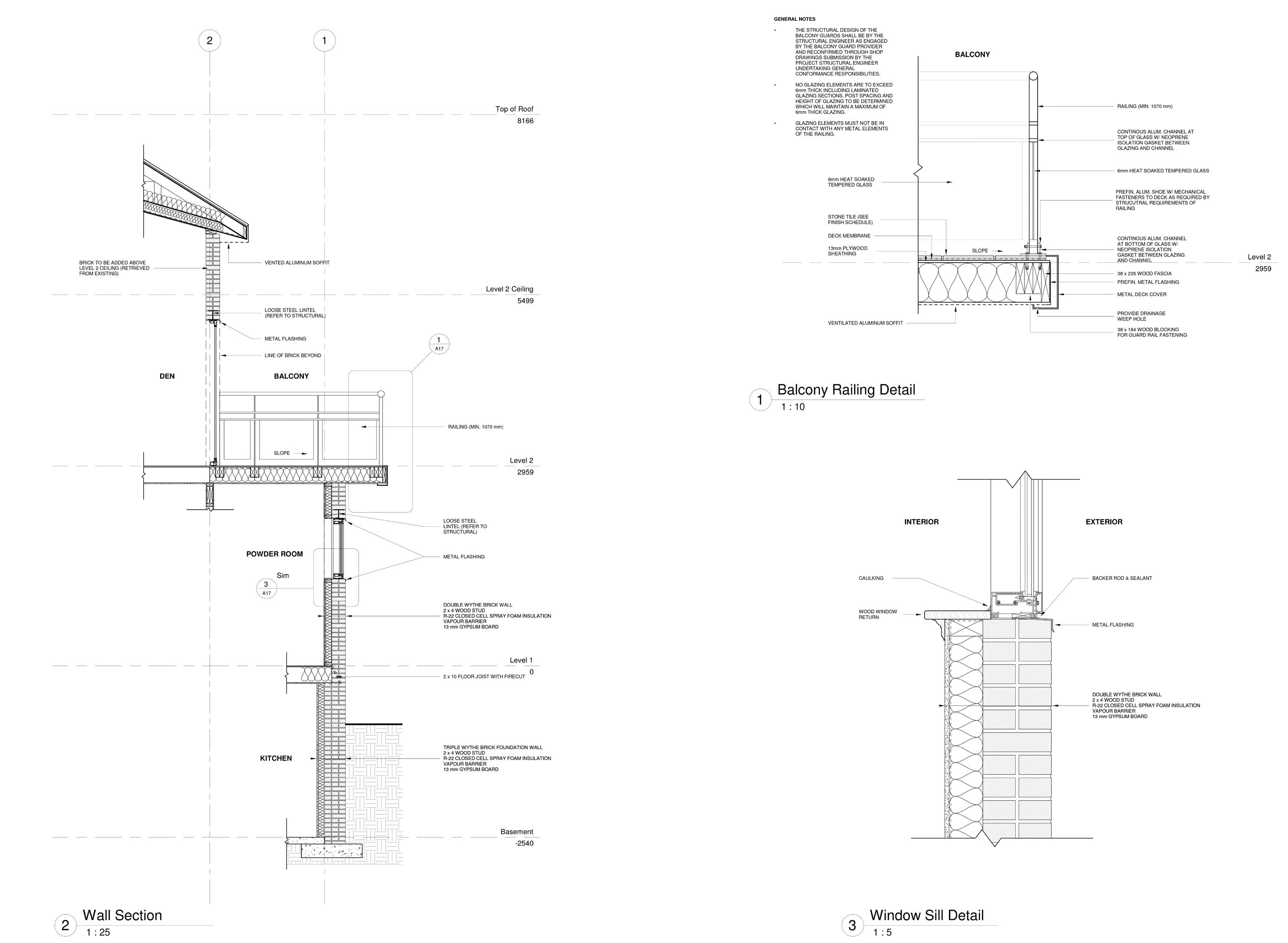
2D & 3D ROOF DETAIL 3

Type: Individual Sustainable Materials & Methods 4

Program(s) Used: AutoCAD / SketchUp

Project Description:

This was an individual assignment consisting of creating a 2D and 3D detail of a given constuction condition: Wall section through parapet: ACM cladding and curtain wall window on steel structure, modified 2ply bitumen roof with green roof.

3D Detail:

2D Detail:

12
N.T.S

Type: Individual Concentrations in Digital Technologies 1

Program(s) Used: Revit (Dynamo) / Twinmotion

Type: Individual Visual Communications 2

Program(s) Used: AutoCAD / Adobe Illustrator

Type: Individual

Concentrations in Digital Technologies 1

Program(s) Used: Revit (Dynamo) / Enscape

5
DIGITAL TECHNOLOGY 2
Enscape Rendering
14
Dynamo Script
6 15
PERSONAL WORKS
Untitled Oil on Canvas 16” x 20” Untitled Acrylic on Canvas Untitled Acrylic on Canvas 35” x 35” Blue Shallows Acrylic on Canvas 16” x 20” Untitled Acrylic on Canvas 16” x 20”
16
Technique: Pointillism Fine Tip Pen on Paper Technique: Cross Hatch Fine Tip Pen on Paper Untitled Pencil on Light Bond Paper 18” x 24” Untitled Coloured Pencil on Paper

henita16@gmail.com

HENITA PATEL

Turn static files into dynamic content formats.

Create a flipbook