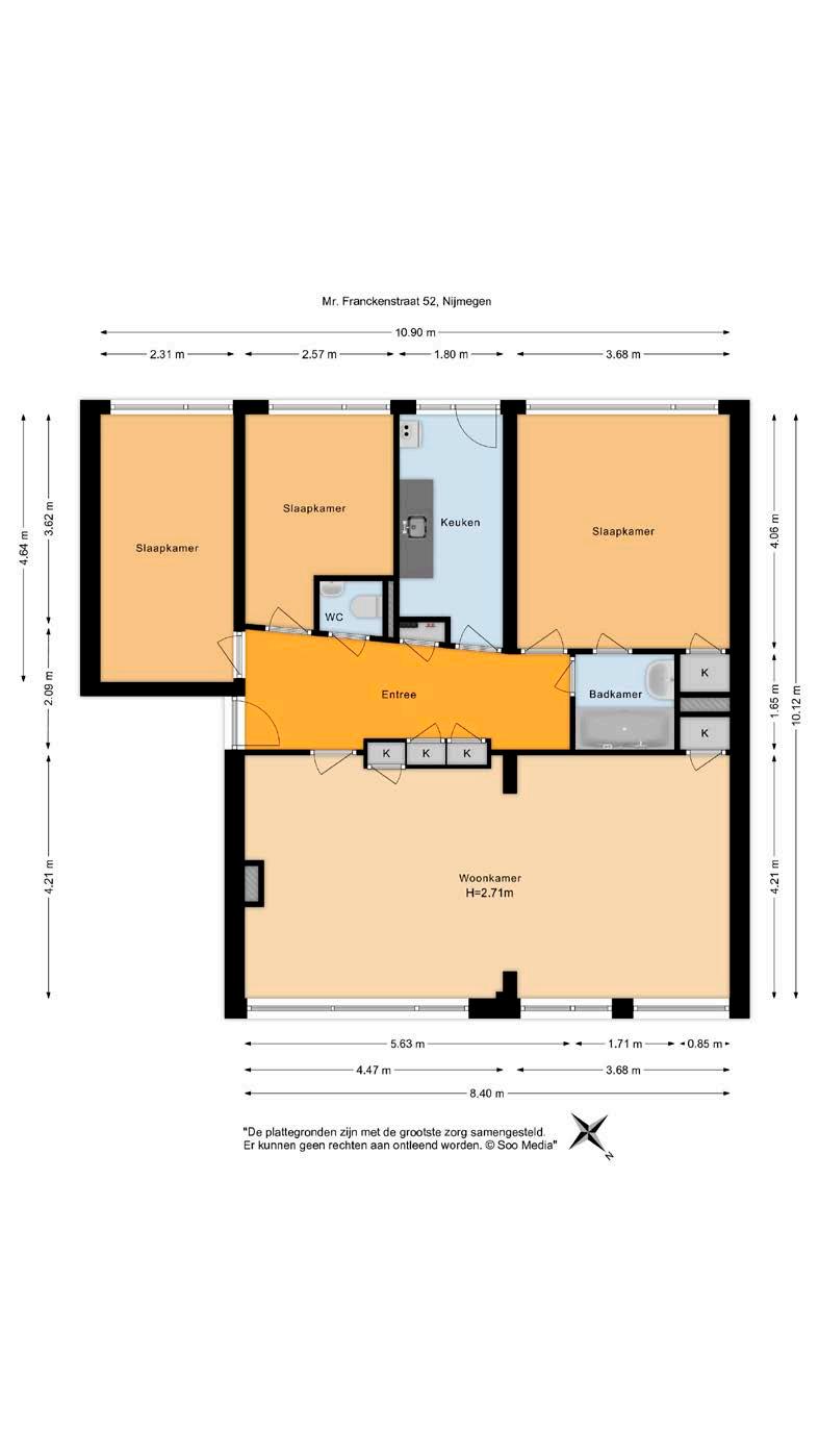
Mr. Franckenstraat 52, Nijmegen

Page 1

Nabij uitvalswegen Nabij het centrum Ruime woonkamer 3 slaapkamers H53
van
Mr. Franckenstraat 52 , 6522 AE Nijmegen
HuizenHendriks

Soort Kamers Woonoppervlakte Inhoud Bouwjaar Tuin Garage Verwarming Isolatie Energielabel

Kenmerken

portiekflat 3 97 m² 320 m³ 1956 geen tuin geen garage c.v.-ketel dubbel glas D

De in deze brochure getoonde informatie wordt door Hendriks makelaardij met zorg samengesteld, doch voor de juistheid en volledigheid daarvan kan niet worden ingestaan en kunnen hieraan geen rechten worden ontleend. Spel- en typefouten voorbehouden. De plattegronden zijn geproduceerd voor promotionele doeleinden en ter indicatie. Er kunnen geen rechten aan worden ontleend. Maten zijn niet eigenhandig opgemeten. Indien er twijfel bestaat over de accuratie van de gegevens aangaande deze brochure, is de geïnteresseerde zelf verantwoordelijk voor het nameten van deze gegevens. Voor meer informatie wordt u doorverwezen naar www.hendriks.nl

Verkoper vertelt

Makelaar vertelt:

Zou jij graag riant nabij het centrum van Nijmegen willen wonen? Dan hebben wij jouw nieuwe thuis gevonden aan Mr. Franckenstraat 52!

Dit keurige vierkamer appartement biedt een ruime woonkamer, lichte keuken, drie slaapkamers, een badkamer met ligbad en separaat toilet. Het appartement is voorzien van aluminium kozijnen met dubbel glas. Bovendien beschik je over een ruime, inpandige berging.

Nijmegen: Burchtstraat 124, T 024 - 381 82 50
Te koop bij

De woonkamer is verrassend ruim en licht. Door de grote ramen heb je zicht op het Trajanusplein. Fantaseer er vast op los hoe jij hier vanaf jouw comfortabele bank ontspannen weg zult kijken naar buiten of gezellig aan tafel kunt borrelen met familie en vrienden.

ruime woonkamer
huizen van hendriks
Uitzicht op het Trajanusplein verrassend licht

De keuken is een lichte ruimte en biedt middels een deur toegang naar buiten. Je hebt hier alle mogelijkheid om de keuken van jouw dromen te realiseren voor optimaal kookcomfort.

Daarnaast bevinden zich in de keuken de CV-ketel en de aansluiting voor de wasapparatuur.

huizen van hendriks
Mogelijkheden!
lichte keuken deur naar buiten

drie slaapkamers

realiseer jouw woonwensen

Er zijn drie slaapkamers aanwezig waar jij rustig in slaap kunt vallen of juist lekker thuis aan het werk kunt. Deel de kamers geheel naar jouw woonwensen in.

huizen van hendriks
Zzz...

badkamer en suite

met een ligbad

De grootste slaapkamer heeft een badkamer en suite. De badkamer is ingericht met een ligbad en wastafel. Plaats hier jouw droombadkamer waar jij je fijn kunt opfrissen.

Verder is het toilet met een fonteintje separaat gesitueerd.

huizen van hendriks
Kansen!

nijmegen-oost nabij het centrum

Het appartement ligt in Nijmegen-Oost, op loopafstand van het centrum van Nijmegen. Verschillende winkels, horeca en terrassen zijn binnen handbereik en op zaterdag loop je gemakkelijk even naar de markt op Kelfkensbos. Tevens ben je zo de stad uit, want met de auto bereik je snel de N325 richting Arnhem, Utrecht en Rotterdam.

Centrale ligging

huizen van hendriks
Mr. Franckenstraat 52 6522 AE Nijmegen
Mr. Franckenstraat 52 6522 AE Nijmegen

Nijmegen

De vestingstad Nijmegen, schitterend gelegen aan de rivier de Waal, ligt tussen heuvels en bossen. In de stad zijn nog veel kenmerken van de Romeinse tijd terug te vinden, zoals Romeinse thermen en tempels. Aan het eind van de 19e eeuw ontwikkelde Nijmegen zich als een prachtige woonstad. De brede singels en statige huizen van de St.-Annastraat, de Van Schaeck Mathonsingel en de Oranjesingel stralen nog steeds de schoonheid en de grandeur uit van de 19e eeuw.

Het centrum van Nijmegen heeft recentelijk een nieuw, aantrekkelijker gezicht gekregen. Met een uitnodigende openbare ruimte, gezellige winkelstraten, veel groen en een gevarieerd cultureel aanbod.

heerlijk wonen in Nijmegen

Lokaal makelaarschap

Wij geloven sterk in lokaal makelaarschap. Kennis van de buurt, de omgeving en de daarbij behorende ontwikkeling van de huizenprijzen zijn onmisbaar om voor jou het maximale resultaat te boeken.

Met Hendriks Makelaardij kies je voor: • makelaars die al jarenlang verbonden zijn met de regio • kennis van de lokale woningmarkt • een verkoopplan afgestemd op jouw woning • maximale exposure van je huis • bezichtigingen ook in het weekend • netwerk met honderden woningzoekers

Verkoop je je huis met Hendriks dan ben je met de eigen app 24/7 op de hoogte van het verkoopproces. Bezichtigingsverzoeken bereiken je direct en beantwoord je snel en discreet op het moment dat het jou uitkomt.

Ook je huis verkopen? Onze makelaars komen graag en vrijblijvend bij je langs. We maken dan direct een gratis waardebepaling. Hendriks Makelaardij werkt op basis van no cure no pay. En betalen doe je pas bij verkoop. Burchtstraat 124 024 - 381 82 50 nijmegen@hendriks.nl www.hendriks.nl

onze makelaarskantoren huizen van hendriks
WHATSAPP FOTO’S WONING ADRES WAARDE + + = Burchtstraat 124 024 - 381 82 50 nijmegen@hendriks.nl www.hendriks.nl Ook je huis verkopen? WhatsApp de foto’s en het adres van je woning naar 06 44 33 78 72 en ontvang een gratis waardebepaling!

Turn static files into dynamic content formats.

Create a flipbook
Issuu converts static files into: digital portfolios, online yearbooks, online catalogs, digital photo albums and more. Sign up and create your flipbook.