Soldeniersveld 204, Apeldoorn

Page 1

HuizenHendriks van

Semi- Bungalow

Autoluwe straat

Zonnige tuin

Lichte woning

Energielabel C

Soldeniersveld 204 , 7327 GK Apeldoorn
H48

De in deze brochure getoonde informatie wordt door Hendriks makelaardij met zorg samengesteld, doch voor de juistheid en volledigheid daarvan kan niet worden ingestaan en kunnen hieraan geen rechten worden ontleend. Spel- en typefouten voorbehouden. De plattegronden zijn geproduceerd voor promotionele doeleinden en ter indicatie. Er kunnen geen rechten aan worden ontleend. Maten zijn niet eigenhandig opgemeten. Indien er twijfel bestaat over de accuratie van de gegevens aangaande deze brochure, is de geïnteresseerde zelf verantwoordelijk voor het nameten van deze gegevens. Voor meer informatie wordt u doorverwezen naar www.hendriks.nl

Verkoper vertelt

Zeer net en licht huis, waar onze ouders 20 jaar met veel plezier gewoond hebben.

Makkelijk te onderhouden tuin met veel zon waar je nog heerlijk lang buiten kunt genieten. Het huis is gunstig gelegen in leuke, rustige woonwijk aan een doodlopende straat met aan de overkant een klein stukje bos en leuk laantje waar je lekker kunt wandelen.

Op 10 minuten lopen bevindt zich supermarkt Plus. Boven zijn 2 ruime slaapkamers en op de grote overloop, over de gehele breedte, bevindt zich een moderne en zeer ruime inbouwkast met schuifdeuren. Kortom…. een leuk huis met vrij uitzicht en veel mogelijkheden!

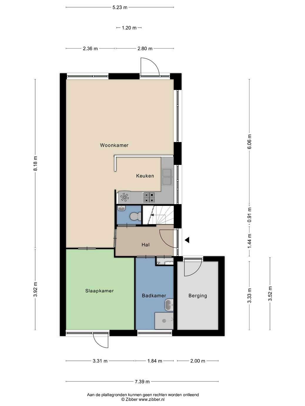
Kenmerken bungalow geschakelde woning 4 110 m² 218 m² 424 m³ 1978 achtertuin, voortuin, zijtuin, zonneterras geen garage c.v.-ketel muurisolatie, dubbel glas C Soort Type Kamers Woonoppervlakte Perceeloppervlakte Inhoud Bouwjaar Tuin Garage Verwarming Isolatie Energielabel
Apeldoorn: Zwolseweg 208, T 055 - 521 92 77
Te koop bij

Tuingerichte woonkamer

welkom thuis

heerlijk licht

Vanuit de hal kom je binnen in de ruime en tuingerichte woonkamer. Dankzij de grote ramen én de achterdeur naar de tuin komt er lekker veel daglicht naar binnen. Voer jouw eigen woonwensen en stijl door in de afwerking en binnen een mum van tijd ontstaat er een fijne ruimte waar jij je snel thuis zult voelen. Via de woonkamer kun je tevens de zij/voortuin inlopen.

huizen van hendriks

Nette open keuken

voldoende kastruimte

diverse apparatuur

Aansluitend op het woongedeelte vind je de open keuken. Het geheel is geplaatst in een L-opstelling, uitgevoerd in crème-fronten en voorzien van voldoende werk- en opbergruimte. Ook is er gedacht aan het nodige kookcomfort waarmee je straks de lekkerste gerechten klaarmaakt.

Dankzij het goede formaat van de woonkamer is er naast een knusse zithoek, nog voldoende ruimte voor een gezellige eethoek waaraan je bijvoorbeeld lekker lang kunt tafelen. Zie jij het al voor je?

huizen van hendriks

slapen of studeren?

spoel de dag van je af!

De woning telt maar liefst 3 slaapkamers, één op de begane grond en twee op de eerste verdieping. De slaapkamer op de begane grond is van goed formaat, lekker licht en biedt ook nog eens toegang tot de badkamer.

De badkamer is in 2014 deels opgeknapt door het tegelwerk gedeeltelijk te vervangen en een nieuwe douchewand te plaatsen. Verder bestaat de indeling uit een douche, wastafel en de witgoedaansluiting.

Op de eerste verdieping kom je op de ruime overloop met over de gehele breedte een zeer ruime en nette inbouw kastenwand met schuifdeuren, een cv-ruimte en nog eens twee slaapkamers. Ook deze vertrekken zijn van goed formaat en hebben een prettige lichtinval. Richt je alle kamers in als slaapkamer of kies je voor een comfortabele werk-/ hobbyruimte? Daarnaast is er door de hoogte van de slaapkamers en de badkamer enorm veel optische ruimte.

Verzorgde badkamer

huizen van hendriks

Tuin op het zuiden

fijne buitenruimte

voldoende privacy

De tuin met zijn ligging op het zuiden, is de ideale plek om te genieten van de zon. De tuin is netjes aangelegd met bestrating en heeft een heerlijk groene en rustige voortuin dankzij de ligging aan het einde van een hofje. Het onderhoud is dus minimaal, maar het zorgt wel voor een gezellige en verzorgde uitstraling.

Wil je je fiets of andere spullen kwijt, dan kan dat in de praktische aangebouwde stenen berging aan de voorkant van de woning.

huizen van hendriks

Groene woonomgeving

ideale locatie

voorzieningen nabij

De Maten is een enorme prettige wijk in Apeldoorn en daar is een goede reden voor. Het is namelijk een groene, kindvriendelijke wijk met diverse praktische voorzieningen op korte afstand. Of je nu toe bent aan een dagje uit in het Matenpark of een boodschapje wilt doen in het winkelcentrum De Eglantier, alles is hier binnen handbereik. De Maten is een wijk waar jij je direct thuis zult voelen. Het is een rustige, veilige omgeving waar jij de kinderen met een gerust hart kunt laten buiten spelen. De groene omgeving is perfect voor wandelen, hardlopen of fietsen en de diverse speelplaatsen maken het een wijk waar kinderen zich uitstekend kunnen vermaken.

huizen van hendriks
Soldeniersveld 204 7327 GK Apeldoorn
Soldeniersveld 204 7327 GK Apeldoorn

heerlijk wonen in Apeldoorn

Apeldoorn

Apeldoorn heeft de laatste jaren een gezonde groei doorgemaakt en is het levendige centrum van de Veluwe. De gemeente telt inmiddels ca. 165.000 inwoners en is de grootste stad op de Veluwe en de twaalfde stad van Nederland. Het stedelijke gebied van Apeldoorn is onderverdeeld in ruim 40 wijken. En dan is er nog het landelijk gebied waar bijna 20.000 mensen wonen, verdeeld over de bij Apeldoorn behorende dorpen Beekbergen, Ugchelen, Beemte Broekland, Hoenderloo, Hoog Soeren, Lieren, Loenen, Nieuw Milligen, Uddel, Wenum Wiesel, deels Radio Kootwijk en Klarenbeek.

Door de vele parken, heemtuinen, maar vooral ook door de uitgestrekte natuurgebieden die rondom de stad zijn gelegen, is Apeldoorn met recht het ‘Groene hart van de Veluwe’. De Koninklijke Houtvesterij Het Loo vormt één van Nederlands grotere aaneengesloten natuurgebieden met een oppervlakte van 10.500 hectare. In deze natuurlijke omgeving leven onder andere edelherten, reeën en wilde zwijnen. Apeldoorn is ook een ‘Koninklijke Stad’, bekend om Paleis Het Loo met zijn prachtige tuinen en Koninklijke Stallen en Het Aardhuis, voormalig jachtchalet van koning Willem II. Het woonklimaat in Apeldoorn is zéér aantrekkelijk.

noorden kadastrale kaart

Lokaal makelaarschap

Wij geloven sterk in lokaal makelaarschap. Kennis van de buurt, de omgeving en de daarbij behorende ontwikkeling van de huizenprijzen zijn onmisbaar om voor jou het maximale resultaat te boeken.

Met Hendriks Makelaardij kies je voor:

• makelaars die al jarenlang verbonden zijn met de regio

• kennis van de lokale woningmarkt

• een verkoopplan afgestemd op jouw woning

• maximale exposure van je huis

• bezichtigingen ook in het weekend

• netwerk met honderden woningzoekers

Verkoop je je huis met Hendriks dan ben je met de eigen app 24/7 op de hoogte van het verkoopproces. Bezichtigingsverzoeken bereiken je direct en beantwoord je snel en discreet op het moment dat het jou uitkomt.

Ook je huis verkopen? Onze makelaars komen graag en vrijblijvend bij je langs. We maken dan direct een gratis waardebepaling. Hendriks Makelaardij werkt op basis van no cure no pay. En betalen doe je pas bij verkoop.

Zwolseweg 208 055 - 521 92 77 apeldoorn@hendriks.nl www.hendriks.nl

TILBURG REESHOF BREDA ‘S-HERTOGENBOSCH TILBURG WEERT ROERMOND NIJMEGEN ARNHEM APELDOORN BUSSUM MEPPEL ALMERE AMSTELVEEN AMSTERDAM A’DAM NOORD MONNICKENDAM PURMEREND ZAANDAM ALKMAAR LANDSMEER HOORN HEERHUGOWAARD A’DAM WEST HOOFDDORP HAARLEM (2x) (2x) AMERSFOORT LEIDEN HILVERSUM EINDHOVEN (2x) (2x) ZWOLLE NIEUWEGEIN WIJK BIJ DUURSTEDE VLEUTEN DE MEERN UTRECHT MAARSSEN onze makelaarskantoren huizen van hendriks
WHATSAPP FOTO’S WONING ADRES WAARDE + + = Zwolseweg 208 055 - 521 92 77 apeldoorn@hendriks.nl www.hendriks.nl Ook je huis verkopen? WhatsApp de foto’s en het adres van je woning naar 06 44 33 78 72 en ontvang een gratis waardebepaling!

Turn static files into dynamic content formats.

Create a flipbook
Issuu converts static files into: digital portfolios, online yearbooks, online catalogs, digital photo albums and more. Sign up and create your flipbook.