HuizenHendriks van
Prachtig wijds uitzicht
Luxe, instapklaar appartement
Toplocatie nabij winkels en OV
Eigen parkeerplaats
Heerlijke woonruimtes en veel lichtinval
Ketelhavenplein 104 , 5045 NE Tilburg
H55
portiekflat
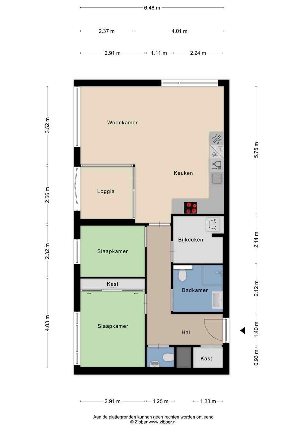
74 m² 245 m³ 2015 geen tuin parkeerkelder, parkeerplaats stadsverwarming, vloerverwarming geheel volledig geïsoleerd, hr-glas
De in deze brochure getoonde informatie wordt door Hendriks makelaardij met zorg samengesteld, doch voor de juistheid en volledigheid daarvan kan niet worden ingestaan en kunnen hieraan geen rechten worden ontleend. Spel- en typefouten voorbehouden. De plattegronden zijn geproduceerd voor promotionele doeleinden en ter indicatie. Er kunnen geen rechten aan worden ontleend. Maten zijn niet eigenhandig opgemeten. Indien er twijfel bestaat over de accuratie van de gegevens aangaande deze brochure, is de geïnteresseerde zelf verantwoordelijk voor het nameten van deze gegevens. Voor meer informatie wordt u doorverwezen naar www.hendriks.nl
Verkoper vertelt
Met toch een beetje pijn in het hart ga ik mijn appartement verlaten. Het is echt een superfijne woning! Vanaf het eerste moment voelde het meteen als thuis.
Ik was dan ook meteen verliefd op dit heerlijke appartement met veel lichtinval. Met zijn ruime kamers, mooie badkamer, 2e toilet, luxe keuken met alles “er op en er aan” en de grote woonkamer met een werkelijk schitterend uitzicht! Ook heerlijk is het overdekte balkon wat je in de koudere maanden helemaal af kunt sluiten, ideaal!
Je zit hier dichtbij de Heyhoef, direct naast het station (en veel winkeltjes) en je bent snel op uitvalswegen.
Heb hier 6 jaar met heel veel plezier gewoond.
A
Inhoud
Isolatie
Kenmerken
3
Soort Kamers Woonoppervlakte
Bouwjaar Tuin Garage Verwarming
Energielabel
Tilburg: Besterdring 223, T 013 - 549 91 90
Te koop bij
modern complex
lift aanwezig
U komt het moderne appartementencomplex binnen in de centrale hal, voorzien van een trappenhuis en lift. Daarnaast beschikt u over uw eigen parkeerplaats in de parkeerkelder en is er een gezamenlijke fietsenstalling aanwezig. Met de lift bereikt u de vijfde etage, waar het appartement gelegen is. Hier stapt u binnen in de hal met een vaste kast met de WTW-installatie, een modern toilet met fonteintje en toegang tot de verschillende vertrekken.
Welkom!
huizen van hendriks
Strak afgewerkt
ruime woonkamer weids uitzicht
De ruime, L-vormige woonkamer is een ware eyecatcher, met een groot raam dat een prachtig weids uitzicht biedt. De strak afgewerkte woonkamer is voorzien van een PVC vloer, stucwerk wanden en spuitwerk plafonds, wat zorgt voor een eigentijdse uitstraling en een aangename woonsfeer.
huizen van hendriks
Van alle gemakken voorzien
luxe keuken
moderne badkamer
De luxe en moderne open keuken is een droom voor elke kookliefhebber. U vindt hier een composiet werkblad en een scala aan inbouwapparatuur, waaronder een inductiekookplaat, afzuigkap, vaatwasmachine, combi-oven, koelkast en vriezer.
De moderne badkamer biedt u alle faciliteiten die u nodig heeft. U vindt hier een inloopdouche, een stijlvol badmeubel en een tweede toilet.
huizen van hendriks
Veel lichtinval
2 slaapkamers
volop ruimte
Het appartement beschikt over twee ruime slaapkamers, waarvan de grootste slaapkamer is uitgerust met een vaste schuifkastenwand. Net als de woonkamer zijn de slaapkamers strak afgewerkt, met een PVC-vloer en gestucte wanden. Hier kunt u genieten van een rustige en comfortabele nachtrust.
huizen van hendriks
Fantastisch uitzicht
gezellige loggia genieten!
Tot slot is er de gezellige loggia, die geheel afsluitbaar is. Zelfs in de koudere maanden kunt u hier heerlijk vertoeven en genieten van het prachtige uitzicht. Met een PVC-vloer en een ligging op het oosten, is dit een plek waar u kunt ontspannen en tot rust kunt komen.
huizen van hendriks
Nabij voorzieningen
centrale ligging groene omgeving
Dit appartement in wijk Campenhoef is gelegen op een superlocatie. Zo liggen tal van winkels en voorzieningen op loopafstand. Het appartementencomplex is gelegen in een rustige en groene omgeving. Ideaal om even te ontsnappen aan de drukte van de stad. Daarnaast ligt het station Reeshof op een steenworp afstand, waardoor de bereikbaarheid optimaal is.
huizen van hendriks
Ketelhavenplein 104 5045 NE Tilburg
Tilburg
Het bruisende hart van Midden-Brabant was vroeger de wolstad van Nederland, nu staat het bekend om de grote variëteit aan middelgrote en kleinere bedrijven in vele industriële sectoren.
Tilburg heeft drie stations: Tilburg CS, Station Tilburg Universiteit en Tilburg Reeshof. Ook heeft Tilburg een uitstekend netwerk van fietspaden: de zogenaamde Sternet-routes. In tegenstelling tot veel andere steden van vergelijkbare grootte ligt Tilburg slechts aan één belangrijke snelweg. Dat is de A58.
Het stadscentrum biedt vele uitgaansmogelijkheden, waaronder stadsschouwburg, popcentrum 013 en gezellige kroegen. En niet te vergeten de jaarlijks terugkerende gezelligheid van Tilburg Trakteert met o.a. de Tilburgse Kermis, Festival Mundial, Ten Miles en Hap & Stap.
Ook blijven de gebiedsontwikkelingen rondom het centrum en de bruisende Piushaven & Spoorzone niet onopgemerkt!
Tilburg is zeker een studentenstad te noemen; De Universiteit van Tilburg (UVT), Fontys Hogescholen, en ROC MiddenBrabant is een greep uit het onderwijsaanbod in Tilburg.
Tilburg kent talloze sportverenigingen met als bekendste uiteraard voetbalclub Willem II. Maar ook zijn we goed vertegenwoordigd in het hockey met drie hockeyclubs. Sinds 2010 beschikt Tilburg over een eigen (400m) ijsbaan genoemd de Ireen Wüst IJsbaan.
heerlijk wonen in Tilburg
noorden kadastrale kaart
Lokaal makelaarschap
Wij geloven sterk in lokaal makelaarschap. Kennis van de buurt, de omgeving en de daarbij behorende ontwikkeling van de huizenprijzen zijn onmisbaar om voor jou het maximale resultaat te boeken.
Met Hendriks Makelaardij kies je voor:
• makelaars die al jarenlang verbonden zijn met de regio
• kennis van de lokale woningmarkt
• een verkoopplan afgestemd op jouw woning
• maximale exposure van je huis
• bezichtigingen ook in het weekend
• netwerk met honderden woningzoekers
Verkoop je je huis met Hendriks dan ben je met de eigen app 24/7 op de hoogte van het verkoopproces. Bezichtigingsverzoeken bereiken je direct en beantwoord je snel en discreet op het moment dat het jou uitkomt.
Ook je huis verkopen? Onze makelaars komen graag en vrijblijvend bij je langs. We maken dan direct een gratis waardebepaling. Hendriks Makelaardij werkt op basis van no cure no pay. En betalen doe je pas bij verkoop.
Besterdring 223 013 - 549 91 90 tilburg@hendriks.nl www.hendriks.nl
TILBURG REESHOF BREDA ‘S-HERTOGENBOSCH TILBURG WEERT ROERMOND NIJMEGEN ARNHEM APELDOORN BUSSUM MEPPEL ALMERE AMSTELVEEN AMSTERDAM A’DAM NOORD MONNICKENDAM PURMEREND ZAANDAM ALKMAAR LANDSMEER HOORN HEERHUGOWAARD A’DAM WEST HOOFDDORP HAARLEM (2x) (2x) AMERSFOORT LEIDEN HILVERSUM EINDHOVEN (2x) (2x) ZWOLLE NIEUWEGEIN WIJK BIJ DUURSTEDE VLEUTEN DE MEERN UTRECHT MAARSSEN onze makelaarskantoren huizen van hendriks
WHATSAPP FOTO’S WONING ADRES WAARDE + + = Besterdring 223 013 - 549 91 90 tilburg@hendriks.nl www.hendriks.nl Ook je huis verkopen? WhatsApp de foto’s en het adres van je woning naar 06 44 33 78 72 en ontvang een gratis waardebepaling!