Skip to main content

Prashant's Architecture Portfolio

Page 1

PRASHANT DHITAL ARCHITECT

I am a hardworking and ambitious individual with a great passion for the architecture and urban planning. I’ve recently completed my bachelors degree in architecture from Tribhuwan University, IOE, Thapathali Campus. I have excellent communication skills, enabling me to effectively communicate with a wide range of people. I am seeing a full time position in your firm in which I can put into practice my knowledge and experience, ultimately benefiting the operations of the organization that I work for.

CONTACT

Gokarna, Jorpati, Kathmandu +977-9860279163

PROFESSIONAL SKILLS

Autocad

https://www.facebook.com/pro.shantdht90 https://www.instagram.com/prashant_dhital/ https://www.linkedin.com/in/prashant-dhital-764663204/

dhitalprashant9@gmail.com facebook.com/pro.shantdht90 instagram.com/prashant_dhital linkedin.com/in/prashant-dhital-764663204/

EDUCATION

(2074- 2079)

TU,IOE Thapathali campus Bachelor’s in Architecture

(2070-2072)

SAIPAL ACADEMY +2 Science

(2069-2070)

SAIPAL ACADEMY SLC

EXPERIENCES

10 days AUTOCAD and Sketchup Trainer at Phaktanglung

municipality, Taplejung - 10 Days

Lead architect at Nipun Group of Company- 4 Months

Junior architect at Archsolar designs - 4 Months

Intern architect at Alamode architects - 6 Months

Freelance architect at Spatial Engineering Consultancy - 3 Months

Graphics designer and article writing volunteer at SPACES magazine - 2 Months

Project lead at Architectural Expo, Thapathali Campus

Jigyasa Technical Exihibition at Thapathali, Nepal (2019)

PERSONAL SKILLS

Communication Leadership

Multitasking

Problem solving

Organized

Time management

DESIGN COMPETITIONS

Apartment complex at Ichangu. Asian Paints Design competition (Intra college) - TOP 5

Habitat for Humanity Nepal Low cost housing design competition in terai region - SECOND RUNNER UP

Gold trezzini awards for best public space - NOMINATION

Community 2050 design competition in Shenzen.

Future Classroom design competition - FIRST RUNNER UP

ARC ASIA Students Architectural Design competition - Revival of waterfront at Tankeshwor

SONA Design Competition- Climate resilient residence design at hot terai region

ACADEMIC PROJECTS

The School of Hope- Thesis design project

Conservation of Ranamukteshwor Temple Complex

Redesigning Block D - Landscape design project

Rural housing for earthquake affected people in Dolakha

Handloom Industry Design

Commercial Complex Design

Pavillion Design

Hotel Management College Design

Primary School Design

HOBBIES AND INTRESTS

Music

Painting and sketching:

-Second position in intra college art competition.

-Second position in ASIS intracollege art competition

-Wall painting project for school

Graphic designing

Photoshop Illustrator Indesign MS Word MS Excel MS Powerpoint
Sketchup Vray Lumion Enscape
CONTENTS The School of Hope-School Design Project Multifamily residence at Ichangu Low Cost Housing Design Competition Rural housing for earthquake affected people in Dolakha Landscape design- Redesigning Block D Showroom design at Naxal Miscellaneous 04 14 22 28 38 42 46

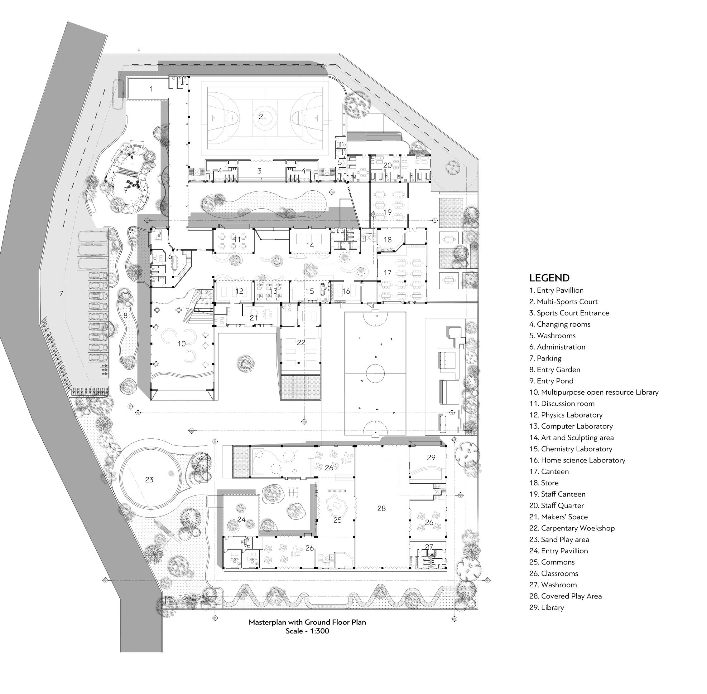
Typology: School Building

Location: Gokarneshwor, Kathmandu

Client: Hypothetical

Type: Academic Project - Thesis

The School of Hope

School Design Project-Thesis

At the center of the design philosophy, the creation of a vibrant learning community is focused upon, catering to a diverse array of learning styles and preferences. Analogous to the way a community thrives on interconnected relationships, where passions are immersed in by individuals and meaningful exchanges are engaged in, a parallel concept is unfolded within the architectural composition of educational spaces. The ultimate aim is to surpass the conventional schooling experience, thereby transforming it into a source of genuine joy and connection,

allowing the very act of navigating the school environment to be effortlessly associated with a profound sense of happiness. This leads to the core of the architectural vision – the crafting of a learning environment where extensive, open expanses inviting exploration are seamlessly blended, carefully designed narrow pathways that ignite unexpected encounters, tranquil pockets suffused with the healing embrace of nature, welcoming courtyards intended to encourage exploration, and adaptable layouts that not only accommodate but also ignite innovation.

AR.PRASHANT DHITAL- THAPATHALI CAMPUS | 2023 4
ARCHITECTURE PORTFOLIO | 2023 5

Spaces Typologies

Ground floor plan

The collaborative space or a a “Campfire” .In this space a teacher or a student delivers something and other sit around, listen and get inspired.

The restorative spaces includes natural spaces and playground where student can learn through exploration.

AR.PRASHANT DHITAL- THAPATHALI CAMPUS | 2023 6

The reflective spaces - Break Out spaces are for the quite learners and thinkers, It is the space provided for self-reflection and improved focus.

Realization is the project-based learning module where student actually experiment and research to gain knowledge.

ARCHITECTURE PORTFOLIO | 2023 7
First Floor Plan

Axonometric 3D visualization

Section at X-X AR.PRASHANT DHITAL- THAPATHALI CAMPUS | 2023 8
ARCHITECTURE PORTFOLIO | 2023 9

Interactive courtyard spaces

Entry Courtyard and Pond

AR.PRASHANT DHITAL- THAPATHALI CAMPUS | 2023 10

Classroom Typologies

Classroom Typology 3d Visualization

ARCHITECTURE PORTFOLIO | 2023 11

Interactive Elevated Learning Area

Pre Primary Learning Area

AR.PRASHANT DHITAL- THAPATHALI CAMPUS | 2023 12
ARCHITECTURE PORTFOLIO | 2023 13
Pre-Primary playing and farming area

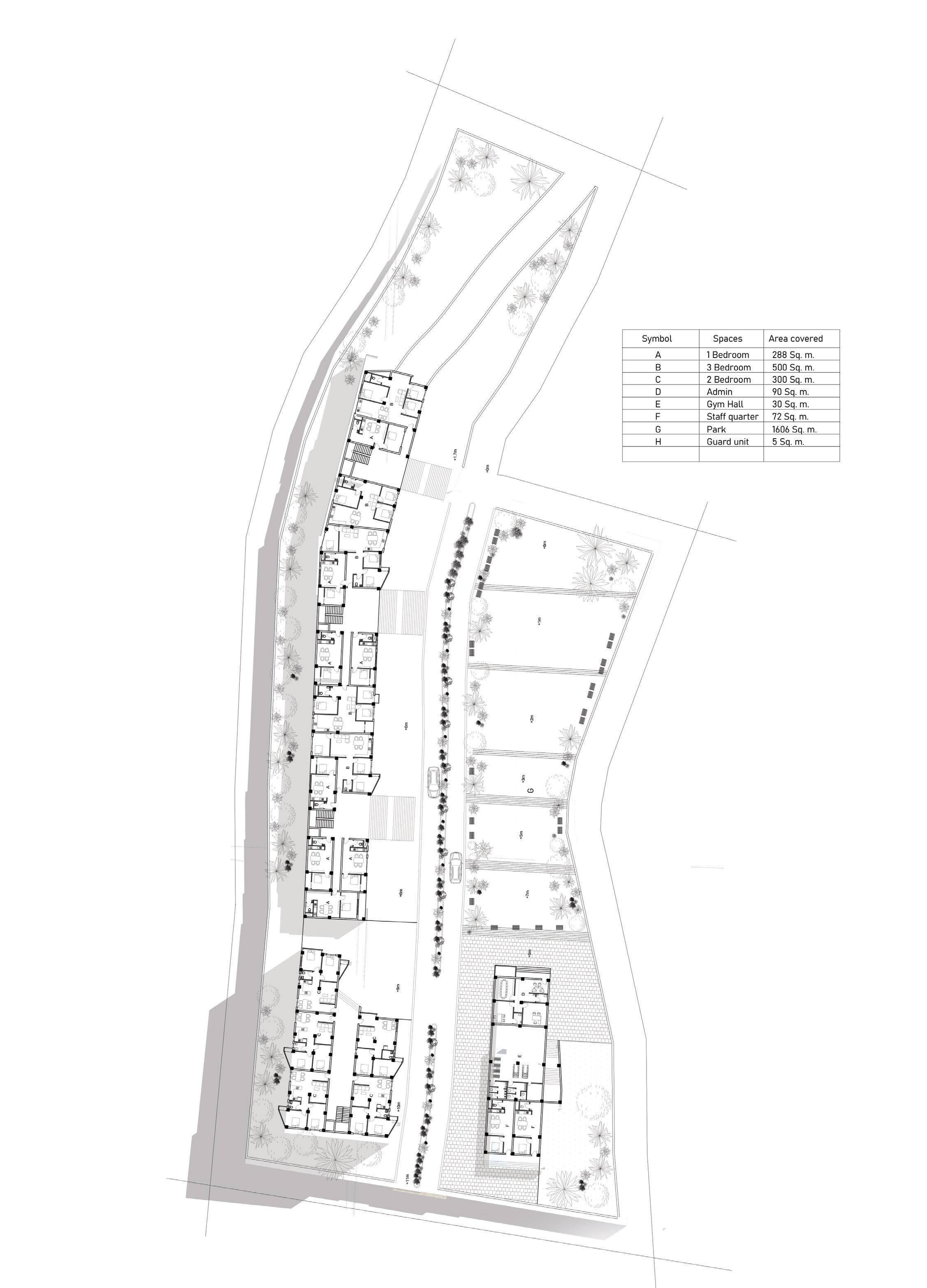
MODULAR LIVING IN ICHANGU

Typology: Apartment Building

Location: Ichangu Narayan, Nagarjuna Municipality

Client: DUDBC

Type: Design Competition(Top 5)

A situation has begun to be witnessed in Nepal. where land shortage, if not addressed now, is threatening to produce major problems in the future. For the same,Ichangu housing project has been suggested, in which land owners in Nagarjuna Municipality would be furnished with apartments at a very low rate.The housing project is aimed at people with fewer than 2 aanas of land on which is not suitable for settlement. As a solution, government of Nepal offered a program where small piece of land is replaced with equivalent apartment space

based on the price and requirements. The design concept is centered on the idea of making maximum use of vertical circulation. Along with the vertical circulation, the residents are provided with a sense of community and friendliness between them-selves. The modular facade allows renters to customize various aspects of their building, giving them a sense of ownership. The low-cost approach, paired with the tenants’ choice, results in a building with a rhythmic facade, as well as cost effectiveness and comfort.

AR.PRASHANT DHITAL- THAPATHALI CAMPUS | 2023 14
Asian Paints Design Competition- College round selction
ARCHITECTURE PORTFOLIO | 2023 15
Masterplanning (Not to Scale) AR.PRASHANT DHITAL- THAPATHALI CAMPUS | 2023 16
Visualization from Play area and garden
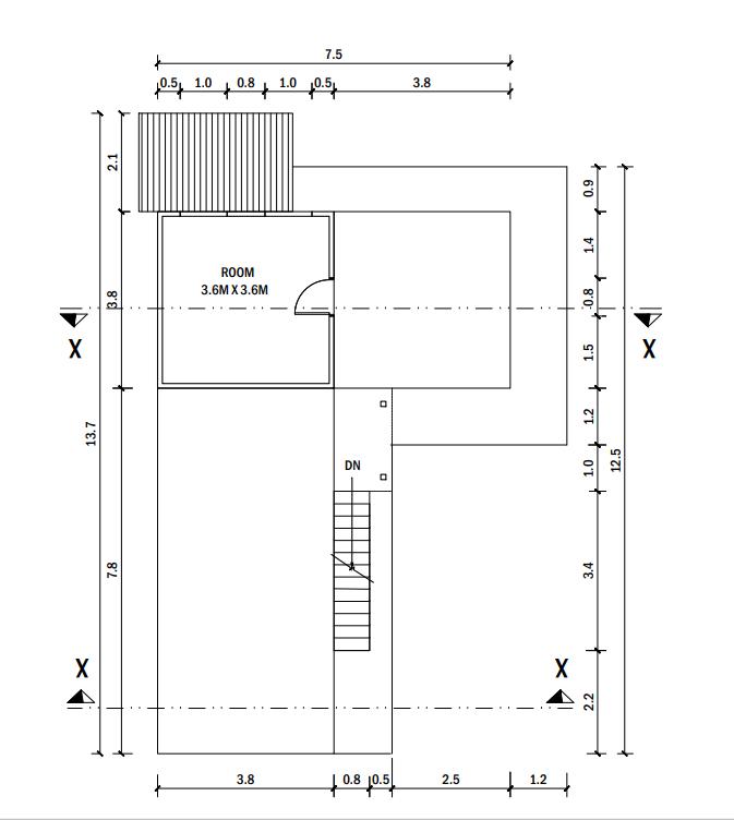
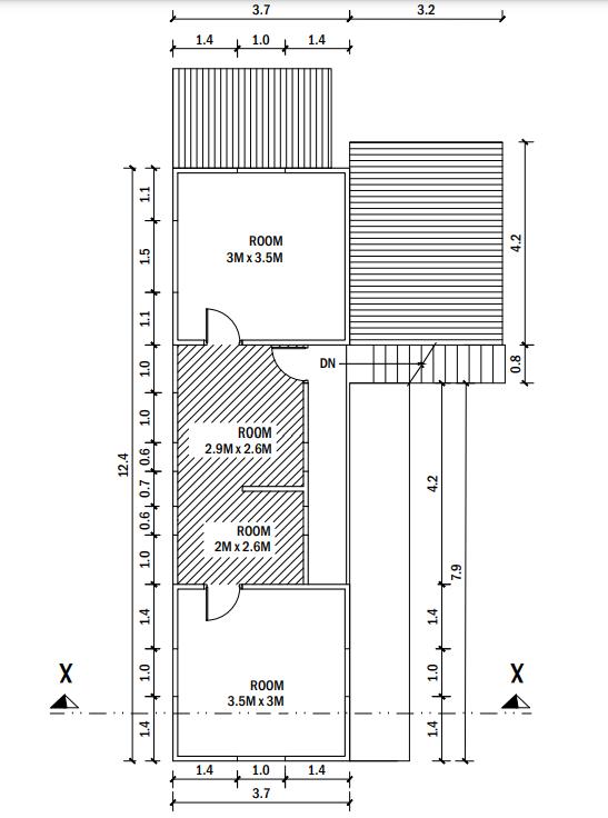
Typology 1 plan and spaces (One Bedroom) Typology 2 plan and spaces (Three Bedroom)
ARCHITECTURE PORTFOLIO | 2023 17
Typology 3 plan and spaces (Two Bedroom)
Axonometric 3D visualization AR.PRASHANT DHITAL- THAPATHALI CAMPUS | 2023 18
ARCHITECTURE PORTFOLIO | 2023 19

The modular design approach with the use of prefabricated components allows users to decide some part of the design by themselves as per their liking and cost resulting a participatory design approach

Sectional elevation through Y axis
Wall design options Window design options Door design options AR.PRASHANT DHITAL- THAPATHALI CAMPUS | 2023 20
Balcony design options
Playing area and building facade option
ARCHITECTURE PORTFOLIO | 2023 21
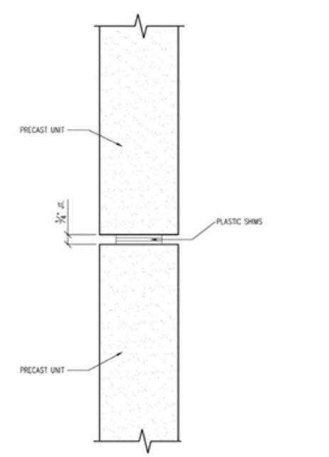
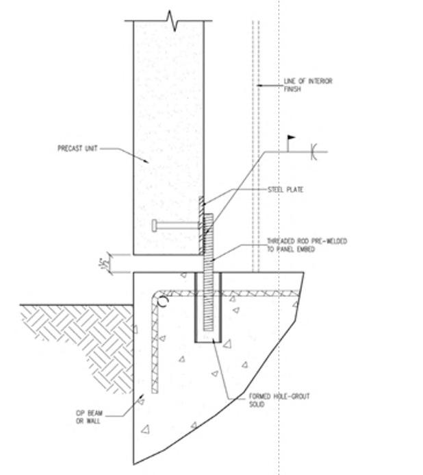
Pre fabricated components connection details

AFFORDABLE LIVING IN TERAI

Typology: Low cost Residential

Location: Terai

Client: Habitat for Humanity Nepal

Type: Design Competition(Second runner up)

Land Shortage and the skyrocketing price of housing are one of the most pressing issues in Nepal. Especially in some parts of the Terai region where people are economically backward, the need to address the housing problem is a must. Furthermore, the slow decline of the vernacular essence in housing is also one of the major problems. To address the same an affordable housing proposal has been proposed that uses sustainable techniques, a vernacular approach, and incremental housing principles to provide residence for the marginalized community of the inner Terai region. The design attempts to create housing for people with prices below 6 lakhs.

To tackle the same, local construction technique wattle and daub, and earthbag is used so as to reduce the price of housing while preserving the vernacular essence and adopting sustainability feature. The spaces and planning are done as per the layout in which the centrally placed Kitchen and living area are constructed up of solid earthbag house. The core and the most used portion of the house are secured thermally by placing rigid walls and bedrooms around it. The core of the house (Kitchen and living room) connects all the bedrooms and porch making the most important of all space.

Low cost housing design competition-Habitat for Humanity Nepal
AR.PRASHANT DHITAL- THAPATHALI CAMPUS | 2023 22
ARCHITECTURE PORTFOLIO | 2023 23
Isometric 3D visualization AR.PRASHANT DHITAL- THAPATHALI CAMPUS | 2023 24
ARCHITECTURE PORTFOLIO | 2023 25
AR.PRASHANT DHITAL- THAPATHALI CAMPUS | 2023 26
ARCHITECTURE PORTFOLIO | 2023 27

INTEGRATED RURAL HOUSING DESIGN FOR EARTHQUAKE AFFECTED PEOPLE IN DOLAKHA

Incremental housing design

Typology: Rural Housing

Location: Boshimpa, Dolakha

Client: Local resident

Type: Design Studio VII

The integrated settlement of Panipokhari is built for the earthquake affected Thami community of Bosimpa village. The settlement is located 45 minutes from Bosimpa. Panipokhari is a government-owned land with a total area of 75 ropanies. When the plan to resettle people to Panipokhari was brought by Nepal Reconstruction Authority (NRA), there were 74 families ready to move to Panipokhari. In the first stage of the program, infrastructure like roads, retaining walls, etc. were constructed. But the budget was insufficient and only half of the work was completed with the initially allocated budget.

The land plot was too small for many families so they decided to settle elsewhere. The same problem was to be address to revise and redesign the proposed housing in the Pani pokhari. The existing space was not sufficient and for the larger space people are not economically capable. So, The incremental housing model is proposed in which some part of the house is designed and constructed by the government whereas the rest of the portion of house should be constructed by the houseowners themselves. Keeping the same thing in mind the typologies were developed. Local materials and technologies like bamboo , mud and load beading constructionwere used to make the residence a low cost one.

AR.PRASHANT DHITAL- THAPATHALI CAMPUS | 2023 28
ARCHITECTURE PORTFOLIO | 2023 29
Masterplan (Not in Scale) AR.PRASHANT DHITAL- THAPATHALI CAMPUS | 2023 30
Typology 1 final phase Typology 2 final phase Typology 3 final phase Typology
1 planning phase I (Not in scale)
Typology 2 planning phase I (Not in scale)
1
II
in scale)
II
in
ARCHITECTURE PORTFOLIO | 2023 31
Typology 3 planning phase I (Not in scale) Typology
planning phase
(Not
Typology 2 planning phase II (Not in scale) Typology 3 planning phase
(Not
scale)

Typology 1

3d visualization

Typology 3

3d visualization

AR.PRASHANT DHITAL- THAPATHALI CAMPUS | 2023 32

Typology 1 section (Not in Scale)

Typology 3 section (Not in Scale)

ARCHITECTURE PORTFOLIO | 2023 33

Typology 2

3d visualization

Typology 2 section (Not in Scale)

AR.PRASHANT DHITAL- THAPATHALI CAMPUS | 2023 34
ARCHITECTURE PORTFOLIO | 2023 35
Typology 2 section (Not in Scale)
3D visualzation of the site AR.PRASHANT DHITAL- THAPATHALI CAMPUS | 2023 36
ARCHITECTURE PORTFOLIO | 2023 37

REDESIGNING BLOCK D

Typology: Landscape design - College block

Location: IOE, Thapathali Campus, Thapathali

Client: Thapathali Campus

Type: Landscape design and site planning studio

Hindu religion from Indus valley civilization is considered to be the most scientific religion across the world. The project “The Gurukul – Back to woods” is a redesign project where a block in university campus is design by integrating landscape within it. In a ‘Gurukul’ (Sanskrit guru «teacher» or «master»; kul-”extended family”); shishyas reside together in the dense forest nearby a water source, learn from the guru and help the guru in his dayto-day life. The idea of learning by surrounding oneself with serenity, within the premise of nature was prevalent from ancient times. Inspired from the same, an attempt to create a forest with wild plants, large trees with organic placement and interesting roof to play with the light and shadow within the classroom was done to stimulate the environment same as the Gurukul. The trees and the roof garden reduce the heat island

barrier and stimulates visual senses and provides a safe outdoor space for students. A simple form is selected in which two blocks facing one another is placed with the stretch of urban forset in the middle. The ends of forest space is provided with an amphitheatre inspired staircase which acts as a seating space as well as the staircase. The gravel in central corridor provides more natural feeling to the space and also acts as a tactile sensory element while walking. Warm natural color pallette is used where as variety of planters as per the climate is used. The interesting roof design also allows to create an artificial green house for some plants which ensures that different type of plants can grow in the area. Other design feature includes green wall and roof plantation to reduce heat island effect and noise barrier as mentioned.

Landscape design project with the integration of landscape into building
AR.PRASHANT DHITAL- THAPATHALI CAMPUS | 2023 38
ARCHITECTURE PORTFOLIO | 2023 39
AR.PRASHANT DHITAL- THAPATHALI CAMPUS | 2023 40
ARCHITECTURE PORTFOLIO | 2023 41

BYD SHOWROOM DESIGN

A car showroom interior and exterior design at Naxal

Typology: Car Showroom

Location: Naxal, Narayanchaur, Kathmandu

Client: BYD

Type: Live project-Internship work

A interor and exterior design project which aims to design a welcoming and spacious space for car display and dealearship. The design concept revolves around functionality and provision of adequate areas for the display of vehicles. The front portion of the showroom is solely provided to the car display and showcasing whereas the functional area is provided in the rear side of the showroom. The pathway leads to the maintainance and garage area where the vehicles are led for servicing and modification. The spaces other than the showroom includes, meeting area, pantry, administration area and show on. The space is provided with led screens and lights to provide a vibe of a showroom. The cobe light makes the ambience more soothing and welcoming to the visitors.

As the BYD is an international franchise the design had certain restrictions for the colors and style. Despite the constraints , some personal touch is added to the space for uniqueness. About the materials, steel frame and truss is used for the upper floor and mezzanine whereas regular frame structure is used for the rest of the structure. As the showroom had design constraints the structure seemed typical but was functional from every aspects. Since, the showroom faces the road from one side only, it is facilitated with toughned glass windows with circular metal columns. The columns support truss and glasses and creates a robust and modern feel as well. Overall, the project attempts to be added as a new landmark in the Naxal area.

AR.PRASHANT DHITAL- THAPATHALI CAMPUS | 2023 42

D:\Alamode Internship\byd

Interior 3D
Sales Office 2 Sales Office 1 Cashier/ Accounts Male Female Manager UP URINAL 9'-2" 11'-1 1 A B C D 1 2 A B C D 1 2 3'-31 2 3'-0 1 RecptionArea Pantry Coffee Area 2'-11" 4'-1" 4'-8" 4'-52 3'-7" 4'-6" 2'-1 3'-10 1 5'-81 2 8'-7 1 9'-8" 3' 8'-11 1 9'-2" 5'-12 9'-2" 2'-3" 3' 8'-7" 9'-9" 9'-42 9'-9" 8' ENTRANCE Lvl +1'0" 1'1'-3" 54'-4 1 2 60'-1" 19'-1" 19'-6" 19'-51 2 62'-51 2 " 45'-9 1 2 " 20'-01 2 5'-2" 10'-21 2 3' 1' 18'-41 2 19'-01 2 " 19'-5" 19'-5" 1' 10'-9 1 2 " 4" 5'-1 1 2 " 4" 8'-11 1 2 " 4" 2'-11" 4" 7'-9 1 2 " 4" 6'-6" 1' 6" 44'-9 1 2 1' 18'-1" 1' 18'-5" 1' 18'-5" 1' 4' 5'-2" 53'-4" 1'-1 1 2 " 53'-4"
ROAD
showroom\BYD nov 2 2021\BYD naxal 2 nov.dwg, 8/7/2023 10:02:40 Staff room Meetingroom DOWN lounge 11'-5" 9'-02 18'-0 18'-11" Managerroom 18'-3" A B C D 1 2 A B C D 1 2 11'-1" 4'-31 2 3' 2'-6" 2'-6 1 5'-2" 3'-1" 3'-111 2 111 2 6'-11" 7'-5" 10'-42 54'-4 1 2 58'-8" 19'-1" 19'-6" 19'-51 2 62'-51 2 45'-9 1 2 " 20'-01 2 5'-2" 10'-21 2 3' 1' 18'-41 2 " 19'-01 2 19'-5" 19'-5" 1' 10'-4" 4" 5'-1 1 2 4" 8'-11 1 2 4" 2'-11" 4" 7'-9 1 2 4" 6'-6" 1' 44'-9 1 2 1' 17'-6" 1' 18'-5" 1' 18'-5" 1' 4' 5'-2" 53'-4" 1'-1 1 2 53'-4" D:\Alamode Internship\byd showroom\BYD nov 2 2021\BYD naxal 2 nov.dwg, 8/7/2023 10:04:05 Ground floor plan First floor plan ARCHITECTURE PORTFOLIO | 2023 43
3d Visualization AR.PRASHANT DHITAL- THAPATHALI CAMPUS | 2023 44
ARCHITECTURE PORTFOLIO | 2023 45

MISCELLANEOUS WORKS

Works related to graphic design, art and paintings

As a part of miscellaneous works, Logo designing along with other form of graphic designing such as posters, banners and ads etc was done. The two tyres nepal is a motorcycle repair company of which I was assigned to design a logo. The two tyre concept along with the bolt symbolizing the motorcycle workshop is seen in the logo with the contrasting color used to grab the attention of viewer.

A corporate logo for the company Kothat is also designed which is derived from the initials of the Kothar Group. The young entrepreneurs from are teamed up to do business in various field of education, abroad studies etc of which a logo was to be designed. The logo is kept simple and minimal and since the company is established by youths, the orange color signifies excitement and youthfullness.

AR.PRASHANT DHITAL- THAPATHALI CAMPUS | 2023 46
ARCHITECTURE PORTFOLIO | 2023 47
AR.PRASHANT DHITAL- THAPATHALI CAMPUS | 2023 48
ARCHITECTURE PORTFOLIO | 2023 49
CONTACT dhitalprashant9@gmail.com +977-9860279163 AR.PRASHANT DHITAL- THAPATHALI CAMPUS | 2023 50

Turn static files into dynamic content formats.

Create a flipbook
Prashant's Architecture Portfolio by Prashant Dhital - Issuu