DESIGN VISION & POSITIONING

a p pealing lifestyle of Sydney’s North West with convenient connection to public transport
Quality of design and inclusions with low maintenance living, large dining and entertaining space in a afe community
yo ung Families, Couples & Singles
Convenience and lifestyle.
Employment opportunities amongst new infrastructure investment and existing local business hubs
High quality apartment living with luxury finishes and quality layouts
Excellent resident amenity, connectivity where residents can live work and play
Castle Hill residents are affluent, with a high proportion of well-educated white collar workers and households incomes
18% above the Sydney average
Long-term investor appealing to the growth story of the North West growth corridor
Expected rental returns for high quality apartment living in a connected location with potential for longer term capital growth and reduced risk profile
LUMINOUS
Concealed colour Copper tapware
LUMINOUS low level wall lights timber
TRANQUIL
thoughtful storag and shelving practical gadgets ceramic sink and hanging system two tone joinery detailing
LUMINOUS
Copper tapware
Concealed colour
TRANQUIL
LUMINOUS Copper coloured tapware and details
TRANQUIL
1. Carpet - Bedroom
2. Engineered timber flooring - Living Area
3. 2 Pac poly - Kitchen Joinery
4. Feature Laminate - Joinery
7. Engineered Stone Counter - kitchen, bathroom & laundry
8. Brushed Nickle hardware
9. Brushed Nickle Bathroom tapware
1. Carpet - Bedroom
2. Engineered timber flooring - Living Area
3. 2 Pac poly - Kitchen Joinery
4. Feature Laminate - Joinery
5. Floor Tile - Bathroom
6. Wall tile - Bathroom
7. Engineered Stone Counter - kitchen, bathroom & laundry
8. Brushed copper hardware
9. Brushed copper Bathroom tapware
two-tone joinery curved timber shelving nooks
Concealed colour w/ accent lighting
splashback shelving with accent tiles
accent hardware / bi fold doors
Concealed lighting
thoughtful storage and shelving
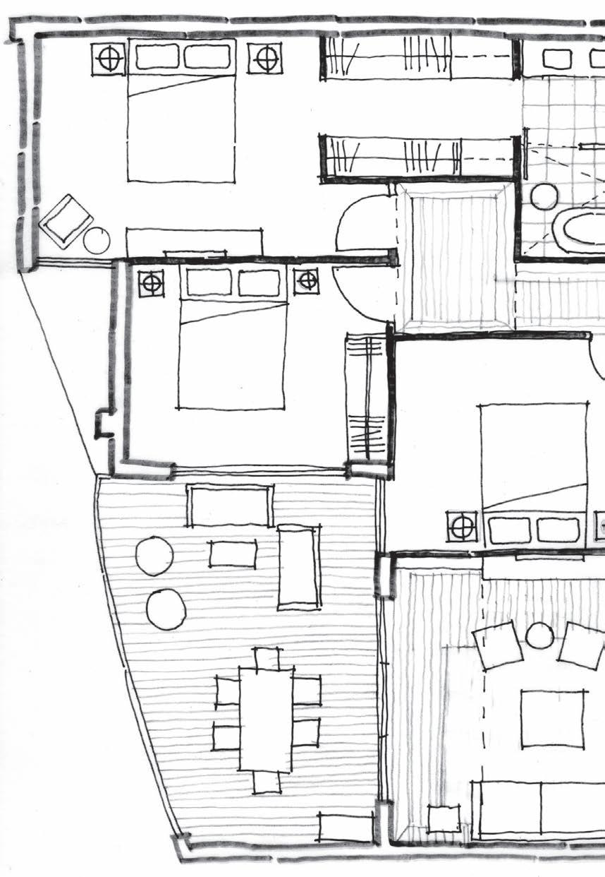
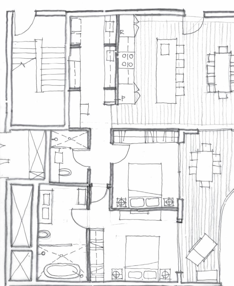
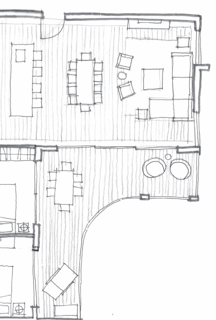
MASTER BEDROOM
WALK IN WARDROBE
ENSUITE
BATHROOM
LAUNDRY
FAMILY CENTRE
PANTRY
BEDROOM
BALCONY