NAVY YARD INTERPRETIVE CENTER

Page 1


HARDSHIPS

interpretive center studio project

brief

UMD COURSEWORK / ARCH 401 / 7 WEEK, FALL 2024

SITE LOCATION: TINGEY PLAZA, DC

rhino grasshopper inside revit, lumion , photoshop , illustrrator

This project tasked us with design an interpretive center but showing the adaptive reuse with creating an addition and reuse of the existing building. The architectural concept is rooted in the image of a crashing boat symbolizing the Navy’s journey through adversity. The fragmented, deconstructed form of the vessel represents the hardships and trials faced over time. As the structure unfolds, it begins to incorporate and open up into usable spaces, physically manifesting the transformation of struggle into strength, purpose, and perseverance. Each spatial element reflects a chapter in the Navy’s endurance, turning destruction into architectural expression and resilience into form.

CONNECTIVITY TO SITE

THE HARDSHIPS NAVY YARD CENTER ADDITION COMPLEMENTS AND SHOWS THE DECONSTRUCTED FORM IN A PEACEFUL CALMING WAY ALLOWING FOR PEDESTRIAN MAJOR ACCESS THROUGH 3 SPACES WHILE CREATING A CALMING EFFECT TO COMPLEMENT THE SEA.

MAJOR VEHICULAR ACCESS

PLAZA SITE

PEDESTRIAN ACCESS

AERIAL AXONOMETRIC

WATER
TINGEY

PERSPECTIVE OF PRIMARY GALLERY

REARRANGEMENT OF PLANES

A INTERPRETIVE CENTER FOR ALL

The Hardships Interpretive Center is designed with inclusivity at its core, accounting for people of all abilities. Its corten, deconstructed architectural form disrupts traditional spatial expectations, creating a surreal navigational experience that engages both body and mind. This approach challenges conventional accessibility by transforming movement through space into a shared, immersive narrative of resilience and adaptation.

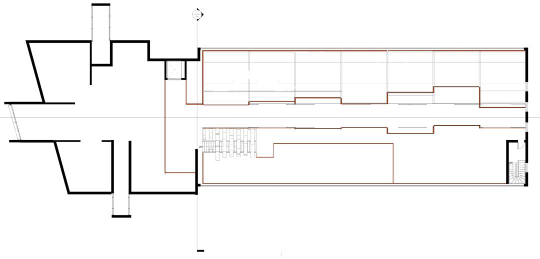
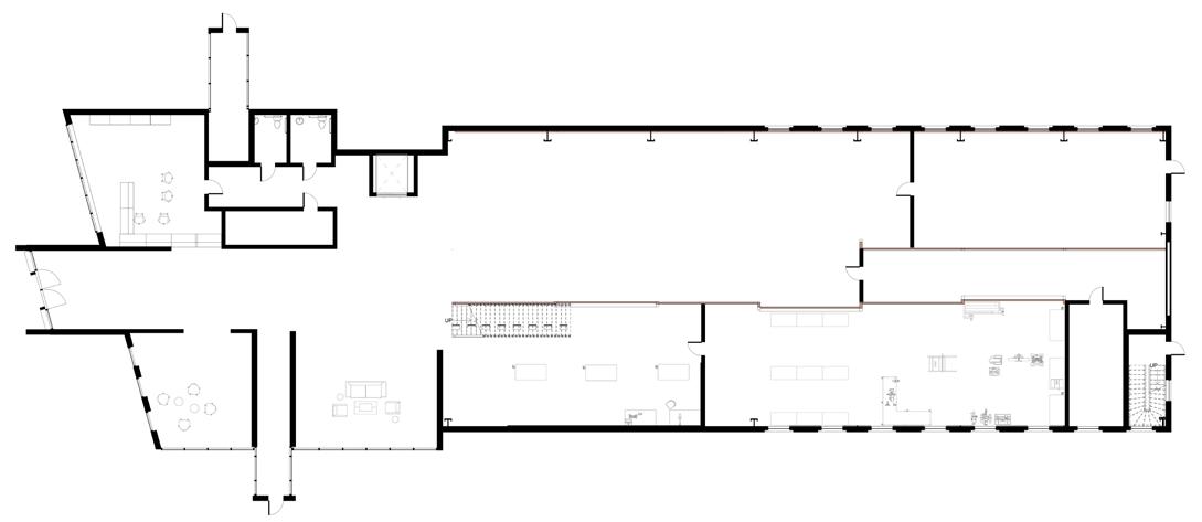
FLOOR
VESTIBULE

2ND FLOOR

3RD FLOOR

SECTIONAL DEVELOPMENT

PERSPECTIVE OF ORIENTATION THEATRE

Turn static files into dynamic content formats.

Create a flipbook
Issuu converts static files into: digital portfolios, online yearbooks, online catalogs, digital photo albums and more. Sign up and create your flipbook.