[
Perceiver ]

A Portfolio of
| Pratt Institute | Undergraduate Architecture | Spring 25
Education
Experience
![]()

A Portfolio of
| Pratt Institute | Undergraduate Architecture | Spring 25
Education
Experience
Pratt Institute B.arch/ Fifth year architecture, Morphology concentration
2019 Fall- 2025/ Spring
Beijing Institute of Architectural Design WuChen Studio/ Intern architect
2020 Jan-Mar Beijing China
Participated Project:
Beijing Fun: Sketch up Modeling
ShanTou Greenland Center: Designing and modeling
Chiamus Partner/ Intern architect
2024 June-Aug Beijing China
Kean University Wenzhou Sports Stadium: Designing and modeling
Student Research Assistant with Professor Haresh Lalvani
Computer Skills Modeling
Rhinoceros 8.0 | Grasshopper | AutoCad | Sketchup | Revit
Rendering Vray | Enscape
Adobe CC Photoshop | Illustrator | Indesign
MS Office Word | Powerpoint | Excel
Manual Work Physical model making | Woodworks | 3D Printing
Languages Mandarin Native
English Advance
Ronan (Hongsheng) Chen
Email: hchen381@pratt.edu
Mobile Phone Number: +1 (541) 579 4562
Wechat: echoofsplendor
Digital Portfolio Website: https://issuu.com/hchen381/docs/ronan_chen_2025
Designing an Acoustic Building that Seamlessly Integrates Music and Multisensory Experiences
This project envisions an innovative acoustic building where music harmonizes with diverse activities, creating a dynamic and immersive environment. Located in Manhattan, New York City, the design weaves together spaces for music performances, yoga, and social gatherings, fostering a community-centered atmosphere.
At the core of the building are multiple music booths, serving as the origin of rich, vibrant soundscapes. Through a network of carefully designed acoustic channels, sound flows into adjacent spaces—yoga rooms, corridors, courtyards, and market areas—enhancing each activity with tailored auditory experiences. The system of directional pipes and sound-leak
INFO Place: Manhatten, New York City
Year: 2023, Design Studio 302
Partner: John Wang
Professor: Leonard Leung


















Visitors can visually observe musicians performing inside a booth, yet hear music transmitted from a different booth, creating a unique and unexpected interplay between sight and sound.

Sound is transmitted through pipes
Section 1/8’’=1’-0’’

Scale: 1/8”=1’-0’


Elevation 1/8’’=1’-0’’

Scale: 1/8”=1’-0’
Elevation 1/8’’=1’-0’’








This project focuses on the renovation of Gotham Park, located in the Lower East Side of Manhattan, New York City. Situated beneath the Brooklyn Bridge, Gotham Park is surrounded by a diverse and complex urban landscape, including civic buildings, commercial areas, schools, and residential neighborhoods. Spanning approximately nine acres, the park’s renovation aims to create a dynamic and inclusive public space that serves the Lower East Side community and welcomes people from all walks of life.
The design is driven by the community’s daily activities and needs, incorporating features such as a skate park, children’s playground, community garden, sports courts, an indoor market, and open plazas for temporary events or gatherings. These elements are carefully arranged along landscape pathways that serve as boundaries, organizing the space while promoting seamless integration. Inspired by a puzzle-like approach, the design allows each program to fit together cohesively, enabling multiple activities to take place simultaneously without disruption.
INFO Site: Gotham Park, Manhattan, NYC
Partner: John Wang
Year: 2024, Design Studio 403
Professor: Eunjeong Seong

















































a: Indoor market
b: Hot food bar
c: Gym
d: Library
e: Theater
Cut multiple sections through the site to reveal various activities occurring simultaneously, without disrupting one another.












This building is located along the Tiber River in Rome, Italy. The design explores the verticalization of Rome’s urban fabric by reimagining the traditional piazza. Different prototypes of piazzas are stacked vertically, creating a unique spatial arrangement that accommodates a variety of uses, including performance spaces, theaters, performing Institute and Pilgrim Caravanserai.
This architectural project is located adjacent to the historic San Michele building, which has previously served as an orphanage, women’s prison, and hospice for the infirm. Drawing inspiration from the plan of San Michele, we analyzed its solid and void relationships and applied these principles to the elevation of our design.
In reimagining the site’s historical functions, we transformed the old programs of San Michele into new ones.This adaptive reuse breathes new life into San Michele, reactivating the space while respecting its historical essence.
INFO Site: Tiber River, Rome, Itatly
Partner: Julia Liu
Year: 2024, Design Studio 402
Professor: Federica Vannuchi


Typology Piazza





Modular Student Apartment Aventino Hill

We envision the piazza as a stage—a space where people gather, encounter one another, perform rituals, and celebrate. Inspired by Antonio Joli’s View of the Flooded Piazza Navona, we draw parallels between the theatricality of the painting and the design of our own space. Like the painting, the piazza we create becomes a dynamic platform for public life, inviting occupation, transformation, and reinterpretation.

Model Render& Collage Collage the drawing of Aventine Hill with the model render, experience the hill become the backdrop for the piazza stage.


The design of this museum is dedicated to exhibiting the photography works of Rinko Kawauchi. Inspired by the delicate, poetic nature of her images, the architectural concept seeks to reflect the quiet intimacy and fleeting beauty captured in her photographs.
The building, situated at the center of the East River as an extension of Transmitter Park, uses light, reflection, and spatial irregularity to evoke a sense of infinity and immersion. Aggregated bisymmetric hendecahedrons shape the structure, creating irregular walls and a dynamic roofline. These geometric forms, known for their asymmetrical yet balanced qualities, generate shifting perspectives and fragmented reflections, mirroring the soft, ethereal atmosphere present in Kawauchi’s work. Mirrors and glass surfaces amplify the spatial experience, allowing visitors to engage with photography from multiple angles, as if enveloped by infinite layers of imagery. The interplay between light and reflection reimagines the boundaries between art and viewer, making the act of observation part of the artistic encounter.
INFO Place: Transmitter Park, Brooklyn, New York City
Year: 2023, Design Studio 401
Professor: Adam Elstein

bisymmetric hendecahedron




New Sight Range Originla Sight Range
Reflection Area






Section 1/16’’=1’-0’’





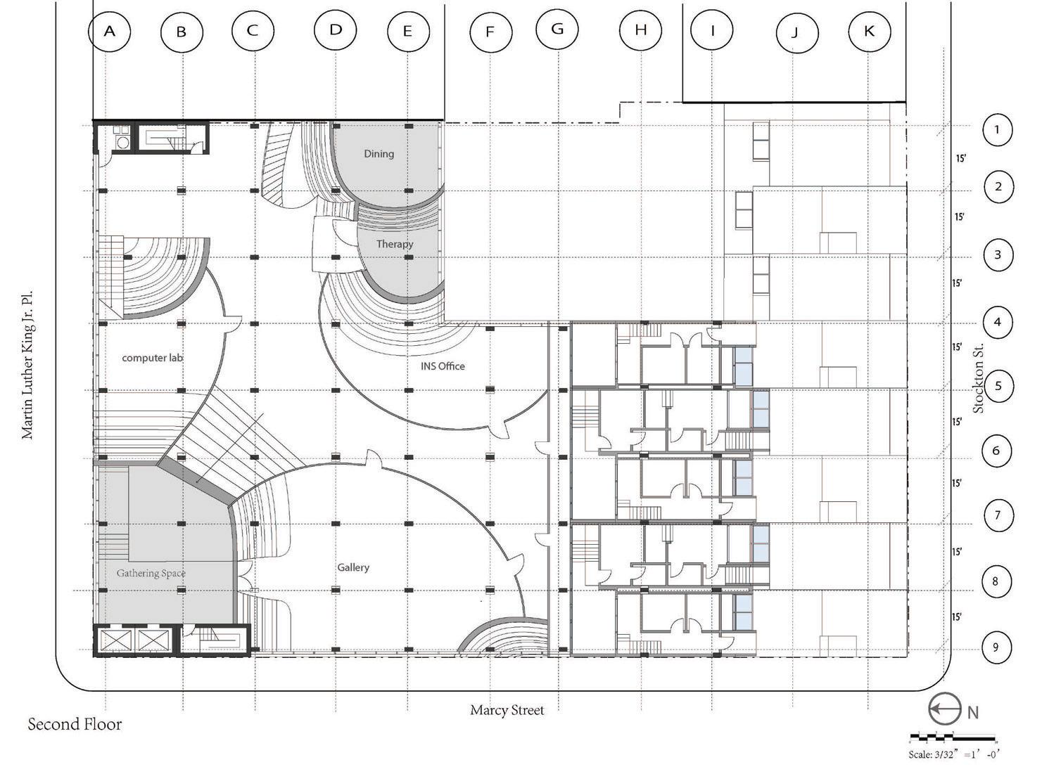
Designing a Community Apartment for New Refugees in New York City
The project envisions a community apartment complex aimed at providing private, adaptable, and inclusive housing for new refugees in New York City. The design focuses on fostering a sense of belonging and support by integrating diverse living spaces, shared communal areas, and opportunities for social interaction. Apartments vary in size and layout to accommodate individuals and families, with features like private gardens and flexible interiors to suit different needs. The building’s lower levels serve as layered public landscapes, offering spaces for gathering, recreation, and quiet reflection—creating a seamless blend of privacy and community. This design not only addresses the immediate need for shelter but also cultivates a supportive environment for new beginnings.
INFO Place: Marcy Ave, Brooklyn, New York City
Year: 2022, Design Studio 302
Partner: Sharon Wang
Professor: Salvatore Tranchina





ES-1 Spring Tite Coping, Chicago Metal Supply and fabrication inc.
Weeped Starter Track, Clark
4” Rigid Insulation, Kooltherm K8 Cavity Board, Kingspan Insulation LLC
ARCANA Pavers, Unlock Pavers and Walls
6” Precast concrete, Sakrete
ASTM Reinforcing Bar, Concrete Reinforcing Steel Institute
1/2” Gympsum Board, United States Gypsum Company
1/2” Fiber Cement Siding, Urban Concrete
KSC Premium Window Sills, Koffler Sales Company
Aluminum Windows-Single Hung Tilt, Thermal Windows inc.
KSC Premium Window Sills, Koffler Sales Company
3/4” Hardwood Flooring, Elmwood Reclaimed Timber
3/4” Plywood, Plytanium
3/4” Plywood, Plytanium
1/2” Wood Joists, Georgia-Pacific Wood Products
8” Precast Concrete Slab, Sakrete
1/2” Gypsum Board, United States Gypsum Company
4” Naturcycle Extensive Media, Naturcycle
Non Woven Geotextile, Naturcycle
Naturcycle Drainage Aggregate, Naturcycle
Root Barrier, Naturcycle
Revit Drawing: Bathroom Plans & Elevations




A parametric wall designed in Grasshopper, inspired by the brushstrokes in Van Gogh’s The Starry Night.
By extracting the brush strokes from the Painting Starry Night by Van Gogh and imitating them in Grasshopper to create a Parametric wall. The Parametric wall is composed by the different brush stroke modules from left to right and the module is changing based on three different changing variables to create a tiling look.
INFO Place: Lobby of ‘Henri Dutilleux’ Conser vatoire of Music, Dance and Dramatic Arts, Belfort, France
Year: 2022, Representation 3
Professor: Sebastian Misiurek






Geometry Diamond Lattice
This studio focuses on exploring the representation of form and space through minimal surface geometries, with this semester’s emphasis on the Diamond Lattice structure. Our goal is to replicate the smooth, continuous surfaces designed in Grasshopper and Rhino using uniformly sized, tiled wooden panels. To achieve precise alignment, we incorporated three holes in each panel that match the dimensions of the pins used for positioning. We 3D-printed molds with corresponding holes for the pins, ensuring accurate placement of every tile. Additionally, laser-cut holes in the wooden tiles further guide the assembly process, minimizing errors and enhancing precision. A layer of wax paper is placed between the molds and the wooden panels. This layer allows pins to easily pass through while ensuring the panels can be easily removed from the mold after gluing. The molds are reusable, making the process efficient and sustainable.
This initial testing with small-scale panels provides valuable insights and allows us to envision larger, more ambitious structures. The prospect of constructing these forms at a human scale is particularly exciting and opens up new possibilities for spatial and architectural exploration.


INFO Year: 2024-Present,
Morphology Concentration
Partner: Weihang Wang
Professor: Haresh Lalvini







Company: Chiasmus Partners
Duration: June 2024-Aug 2024
Location: Beijing, China
Position: Intern Arhitect
This project is located in Wenzhou and is designed for Kean College as a multi-functional gymnasium to accommodate students’ sports activities and school events. The gymnasium is situated in the southeastern corner of the campus, adjacent to the school’s sports field.
In our design, we aim to emphasize both indoor and outdoor spaces, transforming the exterior of the gymnasium into a circulatory viewing platform for students. This extended platform allows students to pause, gather, and enjoy views of the sports field and surrounding mountains.
设计手稿

1. 体块生成后,其大体块首 先被细分为三个层面。
2. 这些体块逐渐变薄,形成 了空间的结构。

视线分析

3. 房顶进一步被分层设计, 以增强其复杂度和功能性。
4.设计加入了观景平台和绿 色建筑元素,以提升建筑的 可持续性和使用价值。

For this project, I was primarily involved in the early design phase, contributing through hand-drawn massing studies, SketchUp modeling, and Enscape rendering.
Chiasmus Partners, Inc 体块生成分析


室外草坪视野
3. 房顶进一步被分层设计, 以增强其复杂度和功能性。







连接平台视野
Chiasmus Partners, Inc



室外平台视野










Company: Chiasmus Partners
Duration: June 2024-Aug 2024
Location: Beijing, China
Position: Intern Arhitect
Main Responsibilities: Enscape rendering, diagram creation.




Company: Chiasmus Partners
Duration: June 2024-Aug 2024
Location: Beijing, China
Position: Intern Arhitect

Main Responsibilities: Main Responsibilities: Proposing design concepts, Enscape rendering, and producing presentation drawings











