Mies Van Der Rohe - Crown Hall Building Analysis By Haya Arafa

Page 1

PROFESSOR MATTEO MOSCATELLI TUTOR: ELENA SARTINI

ARCHITECETURE OF INTERIORS DESIGN STUDIO POLITECNICO DI MILANO 2020-2022

HAYA ARAFA 963493

LUDWIG MIES DER ROHE CROWN HALL - IIT CAMPUS - CHICAGO

VAN

CROWN HALL BUILDING ANALYSIS

It is characterized by an industrial aesthetic of simplicity, clearly stated in their steel frames.

WHAT ARE THE LAYERS OF THE BUILDING?

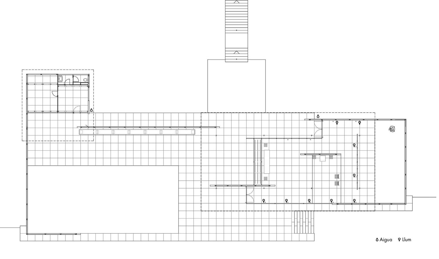
The main floor, which occupies 50% of the building, comprising a single glass-enclosed space devoted to the study of architecture. Mies called it a “universal space” to be totally flexible in its use. The divisions that has very few moving parts, made with lightweight panels that allow you to place the space as required.

1- The suspended roof, without interior col umns, created universal space that could be endlessly adapted to new uses

3- Semi-buried where they are located the offices, meeting rooms and services. Support System: Columns on Grid of points discrete in the lowere level.

2- Open Exhibition Space

Crown Hall Building

All the other buildings are are entered directly from the flat plane of the site but the Crown Hall’s building is dra matically raised above

Oak Partition Walls

2- Uninterrupted Space

3- Sunken Lower Level MainGlazingEntranceSkin

AcousticalFlatSystemRoofCeiling

Flat SupportedRoof by an external Steel Structure for an open flexible space to see work of others

The building is configured as a self-contained in a rectangular shape on two levels. Is a free volume with its four walls of glass, surrounded by a large green area, with large trees, mainly in the south facade. The glazing on all sides that allows the faculty do not give back the rest of the buildings, while respecting the context.

The building is divided into two levels: the main floor, shaped like a large space and a semi-buried where they are located the offices, meeting rooms and services.

1- Steel Structure

form &

Symmetry: Correspondence in size, arrangement of elements on both sides. Both Buildings are derived from Classical Architectural Geometry. Strict Rigid similiar, and equal Proportions. The heigh, roof slab, columns. The Frameworks of Greek Temples.

SPECULAR SYMMETRY AND MODULAR GEOMETRY

Altes Museum, Karl Schinkel, Neoclassical Architecture, Germany, 1825- 1830 Modular Geometry in Neoclassical Architecture SIMILARITIES Modular Geometry in Modernism Column Column 27.7 m 84.2 m 67.4m 16.0 m 16.0 m Crown Hall Building, Mies Van Der Rohe, IIT Chicago, 1950-1956 1.30 m 11.70 m 2.92 m 1.76 8.36mm 1.55 m 24,07 m18,0 m24,07 m

PRESENCE AND ABSENCE OF SYMMETRY

DIFFERENCES

CorrespondenceSymmetry: in size, form & arrangement of elements on both sides. Symmetrical Structural plan & Entrance Symmetric TheAsymmetry:Partitionstwosidesofthe building are not the same Barcelona Pavilion is very asymmetrical in its structural plan The walls, when viewed in plan, appear to be placed at random and are not symmetri cal

Crown Hall Building, Mies Van Der Rohe, IIT Chicago, 1950-1956 24,07 m18,0 m24,07 m

Specular Symmetry

Barcelona Pavillion,Spain, 1928 Absence of Symmetry 42.79 m 14.24 m

Mies in Europe & U.S.

Crown Hall, Chicago

Different Support: 4 Repetitive Tangent Pillars

DIFFERENCESSIMILARITIES

Different Support 8 Repetitive Exterior Columns

-Repition is the repeated use of elements that is not due to symmetry

Common: Facade Composition: The Regular Rhythym in Glass.

-Repitition of Single Elements whose composition creates Architectural system.

REGULAR RHYTHYM

Geometry: Rectangle

Composition of the Facade:

Common: Composition of the Facade: The Regular Rhythym in Glass.

What is Common in Mies works?

Neue Nationalgalerie – Berlin

-Carefully proportioned repetitive elements that conveys uniformity and Precision of Construction

Same Linear Structural System - Different Support Technique

Neue Nationalgalerie – Berlin

Crown Hall, Chicago

Geometry: Square

Same Linear Structural System - Different Support Technique

Crown Hall Building, Mies Van Der Rohe, IIT Chicago, 1950-1956

Different approaches in Mies and Charles Eames work in the same period

Charles & Ray Eames House, Los Angeles, California, 1949

Color & Variation in Eames

Contrasting the cool tone of the blue are the neighboring warm orange and gold-foiled panels. The Eameses referenced a “warm grey web” of the structure countless times, describing the color of the steel beams and steel window fittings that encased the painted and bare Cemesto rectangles Eameses took this method of collaging further in formulating the placement of various colors and materials on the house’s facade.

I did not know how colorful nature really was. But you have to be careful in the inside to use neutral colors, because you have the colors outside. These absolutely change and I would say it is beautiful. [White] was the right color [for buildings] in the country, against the green. I like black too, particularly for cities. Even in our tall glass buildings, you see the sky, and even the city, changing every hour.

Muted Color & Regularity in Mies

Mies 1950

DIFFERENCES

COLOR

Eames 1949

“Looking For Mies” Book by Ricardo Daza

“Crown Hall” Book by Werner Blaser - Birkhauser https://www.architecture.org/learn/resources/buildings-of-chicago/building/crown-hall/ https://en.wikiarquitectura.com/building/crown-hall/

SOURCES

Turn static files into dynamic content formats.

Create a flipbook
Issuu converts static files into: digital portfolios, online yearbooks, online catalogs, digital photo albums and more. Sign up and create your flipbook.