Syed Haseeb Amjad Design Portfolio

Page 1


SYED HASEEB AMJAD

design portfolio I Selected works

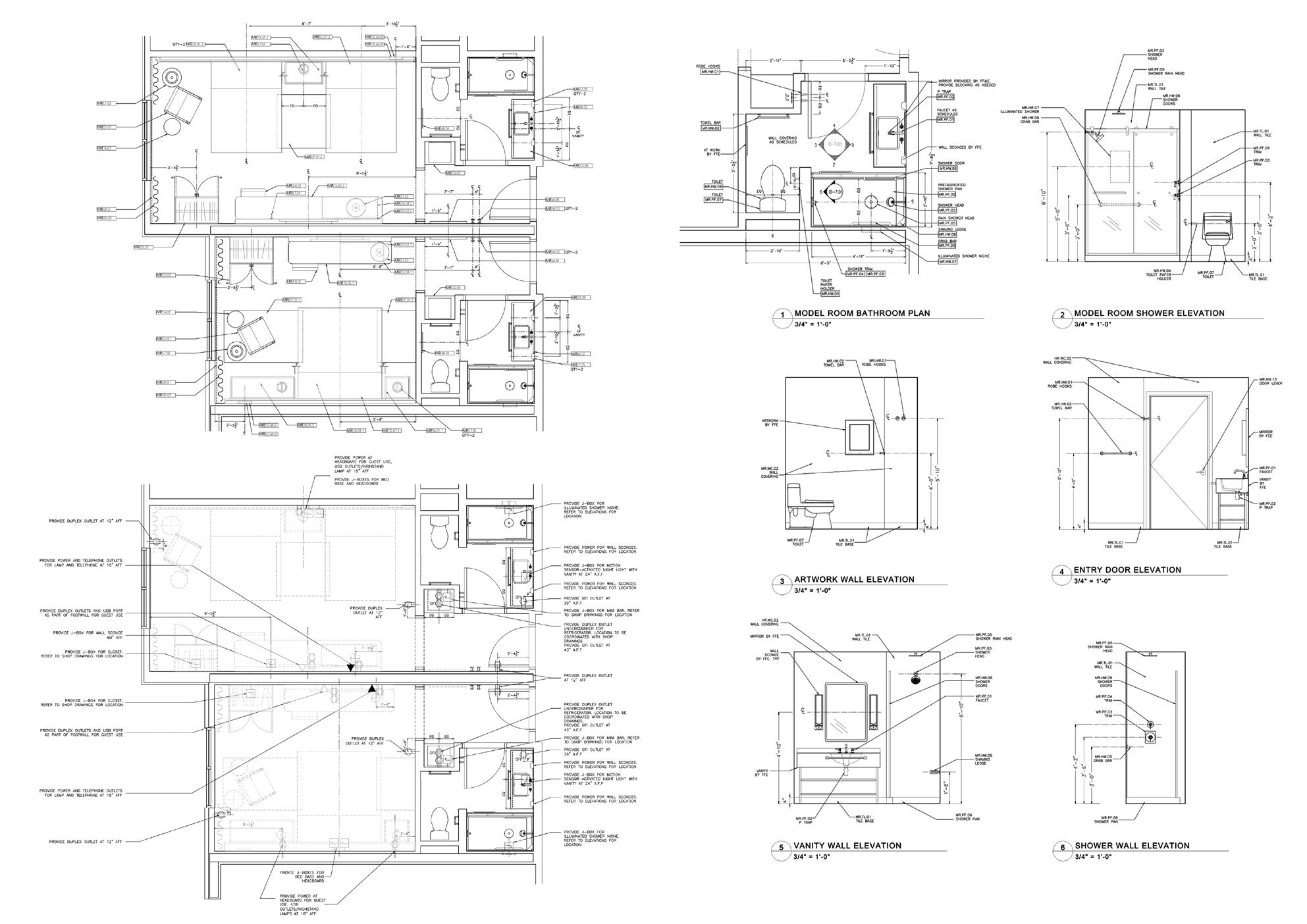
PARK HYATT

Completed 2024

Firm: Sawyer and Company

Role: Interior design, Managing DD & CD sets and developing 3D sketches

I played a role in the interior design of the 3,500-square-foot suite at the Park Hyatt New York, showcasing exclusive views of New York. This project exemplifies highly luxurious residential living in, featuring bespoke details and an eclectic palette of materials. My role involved managing the Design Development (DD) and Construction Documentation (CD) sets in collaboration with the CEO and design team to ensure smooth communication with the client, project managers, and general contractor. Additionally, I created 3D sketches to help visualize the interior space development, allowing for a more refined design process and effective decision-making. Through meticulous planning and coordination, we transformed the suite into a refined and captivating space that blends modern opulence with the dynamic character of New York City.

This project has been featured on Architectural digest, Hospitality design magazine, Forbes , Travel + Leisure and Haute Living.

https://www.architecturaldigest.com/story/take-an-exclusive-look-first-look-inside-manhattans-new-dollar50000-per-night-suite

https://www.forbes.com/sites/forbestravelguide/2024/12/06/park-hyatt-new-york-unveils-10-million-mega-suite/

https://www.travelandleisure.com/park-hyatt-new-york-manhattan-suite-see-inside-11678553

https://www.architecturaldigest.com/story/take-an-exclusive-look-first-look-inside-manhattans-new-dollar50000-per-night-suite

DREAM CATCHER TRIBUTE HOTEL

Dreamcatcher Tribute Hotel Nodding to the natural surroundings and history of Asheville, NC, this oneoff tribute is designed to immerse guests into a narrative of southern hospitality, transitional portals, local craft and moments derived by natural experiences. I contributed to concept and narrative development at the early phase of the design process, followed by production of detailed model room drawing sets, ffe drawings and guest room rollout for the 120 key property. I participated in designing key moments of the public space such as corridors, fireplace, feature walls and bar.

Firm: Sawyer and Company
Role: Concept, Narrative & Design development, Model room drawings and Rollout drawing set Softwares: Sketchup, Vray and Autocad
dream catcher
visulisation by: nyger studio
visulisation by: nyger studio
visulisation by: nyger studio

OCULUS

Role: Architectural, interior & landscape design and 3D visualisation

This residence is imagined as an adaptable design that can exist across various climates and locations. It will harness advanced 3D printing technologies by Iconbuild to allow for efficient and rapid construction in a variety of conditions. This version of the home is set in a tropical environment with rich landscapes, water features and interconnected interiors that generate an elevated user experience.

Firm: Sawyer & Company

MISCELLANEOUS DRAWINGS

Projects: Pulse MVC & Westin by Marriott

Firm: Sawyer & Company

Role: Drawings for DD, CD & CA

This spread showcases additional drawings such as model room roll out for FF&E ( Pulse MVC) and milwork drawings (Westin by Marriott) that I created for DD, CD & CA purposes.

`

296-N RESIDENCE

Completed: 2018

Firm: Conclave studio (Pvt.) Ltd

Role: Architectural planning, Design, Construction administration, Client presentations & Project management & Consultant coordination

The concept of the traditional courtyard was used as the driving idea of this family home. A source of fresh daylight and interlinking views, the courtyard was created as a central square in plan, with an additional square making a covered patio adjacent to it. The exterior was designed as a bare volume layered behind an enveloping wall, hiding the private courtyard within.

8-A RESIDENCE

This private residential project based on 9,000 square feet site plan was designed for three families living on basement, ground and first floor. The design emphasised on double height central spaces and courtyards to allow visual and spatial inter connectivity along with access to natural light and pockets of open spaces.The interior and exterior was connected through a palette of local brick work that tied in with a contemporary vocabulary.

Under Construction
Firm: Halffull studio (Pvt.) Ltd
Role: Concept development, Architectural planning and design, Client presentation & meetings,, Consultant coordination Softwares: Autocad, Sketchup & VRay
visualisation by halffull studio

1558-T RESIDENCE

A minimal interior and exterior approach was used to execute the design for this single family home. The client required a house which was simple to execute and mantain while displaying a tasteful ambiance consisting of a neutral palette of colours and materials. Volumetrically the space is dynamic and continuous through the wholw building, owing to double and tripple height spaces that are located strategically in the planning.

Completed: 2022
Firm: Halffull studio (Pvt.) Ltd
Role: Concept development, Architectural planning and design, Client presentation & meetings,, Consultant coordination
Softwares: Autocad, Sketchup & VRay
visualisation by halffull studio

RESONANCE

Interior planning and alteration was performed on the existing shell of the multi-storey residential building to create practical living spaces. The building’s layout was optimized for functionality while maintaining a comfortable and inviting atmosphere. The elevations of the building, visible from multiple viewpoints from the main road, were designed to maintain a continuity of windows and terraces to generate variation and sophistication. The overall design is both stylish and functional, creating an aesthetically sound and functional living space that meets the needs of its residents and is appealing to visitors.

Under Construction
Firm: Halffull studio (Pvt.) Ltd
Role: Interior planning and design, Elevation design, Client presentations & Consultant coordination
Visualization credits: Halffull studio (Pvt.) Ltd
visualisation
halffull studio

QUBE

The collaborative project required the exterior, landscape and interior design of an existing building designed by archi-tex in Lahore. Consultancy was provided for the design of offices and high end apartments in the building which included reviewing apartment layouts and adding an additional steel structure for offices at the roof level. The 3d renderings were closely coordinated on an outsourced contract with arhcine studio in Lahore with specifications regarding materials, lighting conditions and views. Meetings and site visits were carried out with client representatives on a regular basis.

Under Construction
Firm: Halffull studio (Pvt.) Ltd
Role: Interior planning and design, Consultant coordination, Team management & Client presentations
Visualisation credits: Arcine Studio

LAWRENCE ROAD TOWER

The design for this office building was provided as a consultancy to Half Full Studios, Lahore. Efficient floor plans were created for maximum commercial value. Terraces were extended at the south facade to provide shade from the harsh summer sun while allowing uninterrupted views of the Lawrence garden. Strip windows were dispersed over the west facade to allow entry of light while reducing heat gain following noon time. The exterior of the building was wrapped with fair-faced concrete tiles to achieve an understated outward appearance.

Under Construction
Firm: Halffull studio (Pvt.) Ltd
Role: Architectural planning , Elevation Design, Consultant coordination, Client presentations & Technical documentation review Softwares: Autocad, Sketchup, Lumion & Adobe Photoshop

RASHID RANA OFFICE

Completed: 2018

Firm: Conclave studio (Pvt.) Ltd

Role: Concept Develpoment, Interior Planning & design, Project & team management, Furniture, Fixtures & Equipment (FF&E) selection & procurement & Consultant coordination

The personal office of international visual artist Rashid Rana (Dean of the School of Visual Arts and Design, Beaconhouse National University, Lahore), this interior project combined various interior elements into a minimal, continuous space articulated with chosen artworks by excelling students. Black, white and brass were the dominant surfaces, providing Mr. Rana a modest and simplified space to think, work and meet.

WORKHUB HEAD OFFICE

Completed: 2022

Firm: Conclave studio (Pvt.) Ltd

Role: Concept Develpoment, Interior Planning & design, Project & team management, Furniture, Fixtures & Equipment (FF&E) selection & procurement & Consultant coordination

The software development company required efficient space planning and an engaging interior experience to house its large team of software developers and executives. The project was an experimentation of a dense office layout tied with an engaging visual experience and transparency to allow for continuity within the space.

SUPERIOR UNIVERSITY

Competition entry,2021, Runner up

Firm: Halffull Studio (Pvt) Ltd

Role: Architecture Planning and design, Client management & Visualisation

Softwares: Autocad, Sketchup, Lumion & Adobe photoshop

The three dimensional volume for the university campus was informed from the oddly angled site boundaries. Distinct departmental volumes were juxtaposed against themselves to achieve individual integrity and changing internal experiences. Masses and voids were carved from each volume to respond to the constant movement of the sun and the play of shadows.

HUF SCHOOL

The HUF school was designed pro-bono in collaboration with fellow faculty at Beaconhouse National University for an NGO (Hope Uplift foundation) in need of a building for teaching around 1000 school-children from an underprivileged part of Lahore city. Emphasis was laid on efficient planning, a sound contextual volumetric response and a sunken central courtyard for natural light, ventilaiton and play.

Completed: 2017
Role: Architectural design, Visualisation & Project management
Team Members: Gulzar Haider, Maham Zohair, Zeeshan Sarwar, Ahsan Majid Softwares: Sketchup, Vray, Autocad and Adobe Photoshop

TATTLE TEAHOUSE

Vernacular cane and locally sourced pine wood were key materials used in embodying the spirit of this teahouse that experimented with organic coffee brews and housed an assortment of international teas. The combination of modern retail experience and locally used materials was a direct reflection of the vision of the cafe, that wished to introduce its collection of new teas in a city (Lahore, Punjab) where the beverage is a deeply rooted part of culture.

Completed: 2020 & 2021
Firm: Conclave studio (Pvt.) Ltd
Role: Concept Develpoment, Interior Planning & design, Project & team management, Furniture, Fixtures & Equipment (FF&E) selection & procurement & Consultant coordination Softwares: Autocad, Sketchup, VRay & Adobe Photoshop

NUMRA WAQAS SALON

Completed: 2017

Firm: Conclave studio (Pvt.) Ltd

Role: Concept Develpoment, Interior Planning & design, Project & team management, Furniture, Fixtures & Equipment (FF&E)

selection & procurement & Consultant coordination

Softwares: Autocad, Sketchup, VRay & Adobe Photoshop

Commissioned by leading Pakistani make-up artist Numra Waqas, the studio is an exercise in expressing notions of aesthetics by assembling surfaces of diverse qualities (matte, textured, reflective, patterned, relief). Screens were used to partition and seperate functional spaces to maintain spatial continuity without creating harsh sub-divisions, while neutral tones with nuances of brass and copper were applied to create highlighted moments in the interior. .

SADAF FAWAD KHAN STUDIO

Completed: 2022

Firm: Conclave studio (Pvt.) Ltd

Role: Concept Develpoment, Interior Planning & design, Project & team management, Furniture, Fixtures & Equipment (FF&E) selection & procurement & Consultant coordination

The high end boutique was designed with emphasis on an eclectic material palette. The interior experience of the new bridal studio was based on monochromatic colors that served as a neutral background for bespoke furniture and material finishes. Local materials such as cane screens, ceramic floor tiles and black marble slabs were paired with brass and gold leaf to create a holistic environment for clients.

LASER VISION CENTRE

Completed: 2018

Firm: Conclave studio (Pvt.) Ltd

Role:Concept Develpoment, Interior Planning & design, Project & team management, Furniture, Fixtures & Equipment (FF&E) selection & procurement & Consultant coordination

Softwares: Autocad, Sketchup, VRay & Adobe Photoshop

Laser Vision Center, a high end eye clinic aspiring to establish a chain of new branches was given a renewed interpretation. A calm environment is designed through indirect lighting for eye patients visiting the clinic. Neutral tones of grey and white dominate the space with tactile wood textures spread across walls and reception counter. Customized artworks were also produced using the clinics ‘eye’ insignia and 2 dimensional graphic references derived from eye operation machinery used in the clinic. `

CHILD’S SPACE

The final B.Arch thesis project explored the design of an educational environment based on a child’s physical and experiential relation with space. Notions such as scale, curiosity, discovery, continuity and nature were employed as major contributors to the design process. Oppurtunities of learning associated with a didactic environment were the basis of investigations in this work. Alternate spaces of education including a library, music room, art/sculpture space, auditorium and landscape constituted the program.

B.Arch Thesis, Beaconhouse National University
Prof: Omar Hassan Softwares: Rhino, Adobe Illustrator, Sketchup, Enscape & Adobe Photoshop

SARGASSUM FUTURES

The studio project explores a new urban community deeply tied to Sargassum, a natural, carbon sequestering macro-algae that has grown uncontrollably in the Atlantic Ocean over the past decade. It is sourced before it reaches the Caribbean shores, after which it is processed to create raw material for construction blocks. The blocks offer low embodied carbon along with opportunities to experiment with load bearing masonry construction. After agreeing upon a localized building and ethical framework, members are given the freedom to build on their own, resulting in a ground up, iterative approach that can explore new ways of living in an eco-based urbanism.

Fall 2022, Columbia University GSAPP Master of Science in Advanced Architectural Design (MS AAD)
Role: Research, Concept Development, Illustration & Model Making
Prof: David Benjamin
Group Member: Daniel Vanderhorst Softwares: Rhino, Adobe Illustrator & Adobe Photoshop

INFECTIOUS BORDERS

The project aims to address the complex relationship between the ecosystem, humans, and non-humans, and to develop strategies to protect and restore the biodiversity of forests threatened by the extractive methods of the biomass industry in North Carolina. Through a series of drawings and diagrams, a guerilla landscape strategy is devised to spread the Red Heart Fungus across monoculture forests to initiate a network of human-nonhuman collaboration for invisible activism required to recover forests. The proposal includes a fungus spreading device programmed to follow wind patterns from federal to private land for effective action.

Spring 2023, Columbia University GSAPP Master of Science in Advanced Architectural Design (MS AAD) Role: Research, Presentations, Communicaiton, Mapping and Strategy
Professors: TAKK, Mireia + Alejandro
Group Members: Fransisca Alliende, Alejandro Marin Softwares: Rhino, Google Workspace, Adobe Illustrator & Adobe Photoshop

CLOUD

Completed: Spring 2024

‘Outside in’ seminar at GSAPP, Columbia University in the city of Newyork Role: Associate Faculty

This on-campus installation for the ‘Outside in’ seminar at Columbia GSAPP was the result of student-led design and construction over two semesters (Spring + Fall 2024). I assisted Professors Laurie Hawkinson and Galia Solomonoff in teaching this course in the Spring phase where I executed duties such as course research, timeline creation, preparation and teaching of classes and student group assignments. Furthermore, I facilitated communication between various stakeholders; fabricators, engineers, campus facilities and school administration. In the following semester, the pavilion was set up on the Fayerweather courtyard and received widespread press for bringing the Columbia community together during a difficult time in the university’s recent history. This project has been published on Archinet, Dezeen, The Architect’s Newspaper and Columbia Spectator `

https://www.dezeen.com/2024/11/07/columbia-gsapp-cloud-pavilion-inflatable-installation/

https://archinect.com/news/article/150451692/columbia-gsapp-s-floating-cloud-installation-seeks-to-unite-a-fractious-campus

Turn static files into dynamic content formats.

Create a flipbook
Issuu converts static files into: digital portfolios, online yearbooks, online catalogs, digital photo albums and more. Sign up and create your flipbook.
Syed Haseeb Amjad Design Portfolio by Haseebamjad1 - Issuu