Skip to main content

Portfolio_Harper Dong

Page 1


HARPER DONG |PORTFOLIO

01

Roof Library

The Disintegration of Collectivism in Cities

Site: Dalian, China|Individual work

02

Harbor Line

The Future of Transportation in Bay Area

Site: Redwood City, CA|Group work

03

Collective Comfort

Nesting & Natural Ventilation

Site: Phoenix AZ |Group work

04

Second Housing

A Test of Non-anthropocentrism

Site: Tokyo, Japan|Individual work

05

City Cinema

The Architectural solution to the B-side of Tokyo

Site: Tokyo, Japan|Group work

06

Sail On The Land

The Rethinking of Contemporary Gymnasium in The City

Site: Suzhou, China|Individual work

Other works

Roof Library

The Disintegration of Collectivism in Cities

Course Name: Regeneration design of Harbor Courtyard

Site: Dalian, China

Instructor: Professor Jian Suo Individual work

Date: 2022.3-2022.6

Historical buildings from the Manchu Railway period are still preserved in Dalian, including the Harbor Courtyard. With architectural renewal growing faster, a large amount of the old buildings in Dalian are facing the situation of large area demolition.

The Harbor Courtyard embodies the unique type of collective housing in China in the last century -- Unit Compound. This form of housing produces obvious boundary in the cities, and gradually becomes an obstacle to urbanization. Therefore, the disintegration of the Unit Compound has become an irreversible historical trend.

The project tries to explore new urban functions under the conservation of the historic building, and transform it from a single low-rent house into an urban complex. By adding a library, studio, lecture hall and other public functions on the top roof where the public and private circulation are interwoven. to balance the conservation and innovation of the project.

As a social management space, the Unit Compound began in the early days of the founding of China and expanded in the period of planned economy. Until the 1990s, with the reform of the housing system, a complete service system could no longer be established in the closed condition of the unit compound, so the unit compound quickly went into liquidation.

Commercial District
Children’s park
Historical Building
Zhongshan Hospital, Dalian
Chinese typical residence
History of collectivism

Design Process Massing Study

Two vertical transportation are placed as the main entrance of the roof, public and private circulation are diverted.
New and original
Main flow
Courtyard
Beyond groups
Create Spaces for indoor and outdoor communication. The functional distribution and flows echo the roof shape.

Reading Area

Conference Room

Library

Multi-function Hall

Gallery

Media

Activities Room

City View Platform

Storage

Roof Terrace

Across the bookshelves

In the Compound

Harbor Line

The Future of Transportation in Bay area

Arch 203: Mass Timber Effect

Site: Redwood City, CA

Instructor: David Jaehning

Small Group Project

2024 Fall

The project explores folding as a structural strategy to enhance stiffness. Starting with a CLT panel sheet, the roof structure utilizes standardized panel sizes to minimize material use. This dynamic roofscape breaks down the building’s mass while creating open, flexible, and support-free workspaces.

The design serves multiple purposes: it establishes both a point of departure and arrival, fosters a strong local identity while remaining deeply connected to the region, and facilitates seamless transitions between different modes of transit. It bridges the sea and the land, providing a space for a community that is both in motion and at rest.

A ferry terminal can be more than just infrastructure; it can be a monument, a public amenity, a place of respite, a destination, or simply a familiar part of daily life. Whether as a gateway to a new city or a passageway for routine commutes, it embodies movement, connection, and belonging.

Redwood City’s strategic location places it just 50 minutes by ferry from San Francisco, with potential future connections to Oakland, making it a vital hub for Bay Area transit. Historical images from 1993 to 2024 reveal the site’s evolution—from a nature park to an industrial port.

Now, it functions as an industrial port with additional docks for material delivery and, more recently, benefits from its proximity to a Google campus entrance. This dynamic transformation underscores the site’s increasing significance as a hub for industry, technology, and transportation.

The Folding Roof

The way the roof folds defines and organises the spaces, inhabited by the different functional uses. The spaces and the struture of the building are informed by each other.

Performance Space

The way the roof folds defines and organises the spaces, inhabited by the different functional uses.

Collective Comfort

Berkeley Design Excellence Award

Graduate Option Studio: Collective Comfort Site: Phoenix, AZ

Instructor: Liz Gálvez, Assistant Professor of Architecture Group Project Spring 2024

The project is a cooling center at the Wesley Church site in Phoenix, designed to address extreme heat using innovative thermal nesting and natural ventilation strategies. Drawing inspiration from Phoenix’s historical cooling techniques, we developed a clay tube-based artifact as the foundation of our design. This artifact utilizes porous materials for evaporative cooling and a funnel shape to accelerate airflow, optimizing cooling efficiency. These principles are integrated into the building as thermal mass systems within insulated walls, effectively stabilizing indoor temperatures.

The two-layer thermal mass system creates distinct temperature zones, with cooler core and basement areas ideal for gatherings and communal activities. Straw bale insulation paired with translucent exterior panels ensures sustainability and architectural harmony. Public spaces, including a communal kitchen and a learning hub, are carefully designed with wire mesh flooring and advanced ventilation systems to promote airflow. This project reimagines sustainable cooling, fostering comfort and community engagement.

Nesting with Natural Ventilation

Thermal Mass & Cooler in Phoenix

Drawing inspiration from the swamp cooler, this concept integrates evaporative cooling with thermal mass for passive temperature regulation. Moist surfaces cool incoming air, while materials like brick absorb heat by day and release it at night, reducing reliance on mechanical cooling and improving energy efficiency, especially in hot, arid climates.

Air Handling Unit in HVAC System

Second Housing

A Test of Non-anthropocentrism Lifestyle

Type: Studio Work

Site: Tokyo, Japan

Instructor: Yalun Li

Individual work

Date: 2022.9-2022.11

From Vitruvius to Le Corbusier, the scale of human body has profoundly influenced architectural Spaces. This design attempts to rethink the relationship between human beings and animals, tries to dispel the centrality of human beings over other species, and puts forward a new way for human beings and non-human beings to live together in architecture.

In the background of Japanese culture-the cat complex and the large solitarily living population in Japan. By analyzing architectural space under multiple scales, the project takes different scales of people and cats as reference to design an architectural container that carries the equal life of cat and human. The space in slabs and between each slabs are the living site of cats and people, respectively. The vertical volume creates an interface for the two to communicate and live independently.

In his influential book The Posthuman, contemporary philosopher Rosi Braidotti argues: Realising an egalitarianism centred on the non-human vitality of life, the "universal vitality", reconnecting previously isolated species, categories and fields.When architecture is used as a container carrying egalitarianism, the project tries to explore a new way of living together for humans and animals.

The

development of architecture with human scale

Ancient Roman periodThe RenaissancePeriod of Modernism

Vitruvius, in his the Ten Books on Architecture, praised the perfect scale of the human body, and it provides a standard for balanced scale.

The scale of human body profoundly influenced the shape of the ancient Greek architecture, and the columns reflected the human-centered world view of ancient Greece. During the Renaissance, artists regarded the human body as the most beautiful and advocated humanism.

Modulus was born out of Le Corbusier's persistent pursuit of establishing a harmonious relationship between space and human body.

Ancient Greek period
SANAA Steven Holl Alvaro Siza Walter Gropius

When the residents return home, they can either walk through the sunken grounds first and interact with the residents or cats in the front yard, or they can choose to walk through the backyard garden to reach the home more quietly.

The pet economy has been fueled by a rise in the number of people living alone as family structures change due to aging and fewer children. Meanwhile, "Nekonomics" is reinvigorating Japan's economy, which has been sluggish due to the COVID-19 pandemic.

Japanese Cat Culture
The Meguro River Meguro Residence
Meguro City
Japanese Apartments

5

City Cinema

The Architectural solution to the B-side of Tokyo

Site: Tokyo, Japan

Group Work with Lichao Zhang

Role in Team: Conceptual Design(40%), Technical Drawings(60%)

Date: 2022.11-2023.02

The project is about urban regeneration and the concept is to combine the behavior of film watching with urban space to activate the site.

While the city's manufacturing industry was gradually transformed into a service industry, the daily-paid workers who were abandoned by the times were forced to gather in crowded neighborhoods, which over time became the contrasting side of Tokyo's glamorous appearance. In order to address the social phenomena of uneven development and low-end population within the city, project tries to strengthen the connection between the site and other areas of the city by introducing a new social life.

In Japan, many transportation hubs have been built to disperse the concentrated urban population. Therefore, the design uses the Minami-Senju LRT station as an entry point to direct urban people to the site. By designing three main axes, it attracts people from outside the area. Combining the viewing with the urban fabric, it injects fresh blood into the area.

It’s in the outskirts of Tokyo, and in the site, there are parking lot, rail station, corner squares and other urban open space. These spaces can be well combined with movie watching to form diverse watching modes like drive-in cinema. This drawing below is the behavior diagram of film watching.

Lots of workers were forced to live in gentrifying neighborhoods

Behavior Diagram—Movie Watching
The government spent tax money to help these people.
Large Small
Urban construction required laborers everyday. Many rail transportation have been built in Japan.
Economic bubble burst and cities were hollowed out.
areas gradually filled with illegal phenomena.
The vlogs about Doya become popular.

NARRATIVE STORY OF AXIS ONE

Residents will first enjoy the view of the city on the roof of the station and the corridor mountain, and then turn to the freight station. Here they can enjoy an outdoor movie, or go into the car and have a rest in the car theater.

The first axis connects the rail station and the residential area, attracting people to the site. After residents and tourists come out of the rail station, they will go through a series of interesting changes. This page shows the different scenes in the first axes.

In the third axis, some of the abandoned houses are transformed into a new mixed-use architecture to create better living conditions for the local poor people. The new architecture functions as housing, market and hotel. This drawing is the axonometric view of the new architecture.

INTERESTING

LIFE UNDER THE NEW AXIS

The building occupies the original site. As a negotiation, it rebuilds new housing for the residents, and bring new hotels to the community. Besides this, in order to improve the lives of the residents, a huge market is set up under the dome.

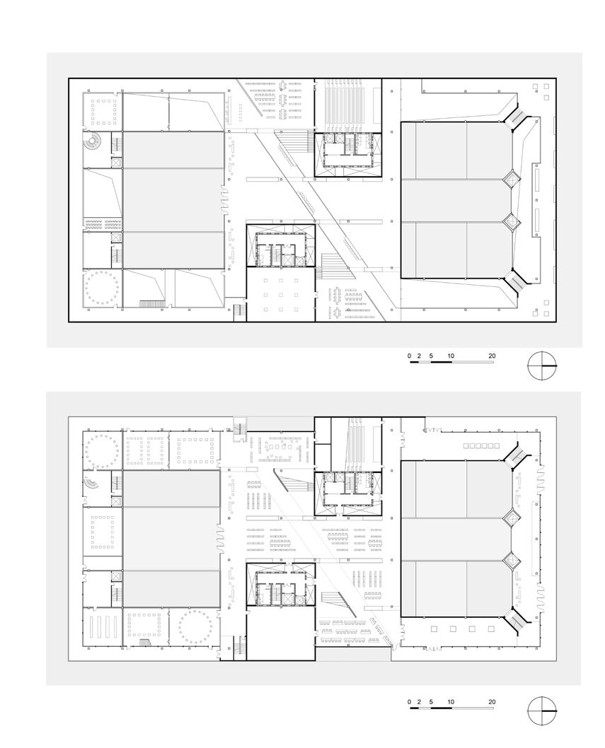
Sail On The Land

The Rethinking of Contemporary Gymnasium in The City

Course Name: Gymnasium Design of Suzhou

Site: Suzhou, China

Instructor: Professor Dehong Gao

Individual work

Date: 2020.11-2020.12

While highlighting the construction of architectural form, the project tries to combine urban culture and emphasizes the relationship between architecture and site. Inspired by the canal culture of Suzhou, the design responds to the surrounding environment with flowing curves and a boat-like structure. Proposing a mixture of suspension cables and trusses. The structure system forms part of the facade, blending the gentle curves with the dynamic force.

Compared with the flowing curves of the first floor hidden from the environment, the second floor and above is more prominent in the sense of volume, so the stadium can be adapted to the scale from people point of view or from a distance. The facilities include a main venue and leisure venues, catering for sporting events and open to the public.

Suzhou is located in the middle of the Yangtze River Delta, east of Shanghai. It has many rivers and lakes, with most of Tai Lake within its borders. The city was built in 514 B.C., and today it still has a parallel water and land pattern with adjacent rivers and streets. The gymnasium is located in the site that faces water on three sides.

Site Analysis

Set the main entrance to the site on the north side to avoid the viaduct and the main city road on the west side.

Outdoor sports venues are located near canals which has less traffic disruption.

According to the flow of people and traffic in different directions, respectively set the entrance for athletes and citizen.

The Jinghang Canal flows through the south side of the site.

Concept Diagram: Inspiration & Development

The project is located in Suzhou, a canal city where ships occupy an important position in both economic and cultural fields. By analogy with the form and structure of a ship, the stadium is innovatively designed.

Choose one of the two structure types that fit the concept and place it in the final design.

Beam String Structure Suspension Structure

The form of ground floor adapts to environmental surroundings, while the upper floor of gym highlights the sense of volume.

The curved body is shaped according to the water environment of the site. During the match, a large number of people were dispersed through the platform on the second floor.

Structure selection design combined with oar form Design, platform is extended to connect with the main entrance of gym.

The site design is integrated with the surrounding environment to create an overall urban environment, which is closely integrated with the local culture.

Suzhou Canal
Local Boat

AFFORDABLE HOUSING

UC Berkeley Fall 2023

Architecture & Urbanism Design Studio

Instructor: Rudabeh Pakravan

Site: Oakland, CA

Concept + Geometry

Concept + Geometry

Concept + Geometry

PAVILION DESIGN

UC Berkeley Spring 2024

Instructor: Prof. Simon Schleicher

Group work

Concept + Geometry

1.4 Geometry Evolution

1.4 Geometry Evolution

1.4 Geometry Evolution

1.4 Geometry Evolution

Geometry1

Geometry1

Geometry1

Geometry1

Max displacement: 3.1cm

Max displacement: 3.1

Max displacement: 3.1cm

Max Utilization: 98.1% Mass: 38137kg

Max displacement: 3.1cm

Max Utilization: 98.1% Mass: 38137kg

Max Utilization: 98.1% Mass: 38137kg

Max Utilization: 98.1% Mass: 38137kg

Geometry2

Max displacement: 12.8cm

12.8cm

Density1

Density1

Max displacement: 3.61cm

Max displacement: 3.61cm

Max Utilization 52.1% Mass: 44852kg

Max displacement: 3.61cm

Max Utilization 52.1% Mass: 44852kg

Utilization: 52.1%

44852kg

Max displacement: Max Utilization: 52.1% Mass: 44852kg

Max Utilization 164.4% Mass: 54333kg

Utilization 164.4%

Density2

Max displacement: 3.12cm

Max Utilization:109.5% Mass: 40582kg

Max displacement: 3.12cm Max Utilization:109.5% Mass: 40582kg

Geometry Optimization

Studio Zhu-Pei, Beijing, CN

Project Site: Qingtian Architectural Intern 2021.9-2021.12

Located in Qingtian, Zhejiang, the Qingtian Contemporary Art Museum is designed to harmonize with the natural topography of Mountain Dongbao. The project aims to seamlessly integrate architecture with the surrounding landscape, maximizing spatial interaction between built forms and nature. Through a minimalist yet flexible design approach, the museum fosters a unique spatial experience that reflects both simplicity and inclusivity. The project aspires to become a cultural landmark, enhancing the region’s

artistic and architectural identity while offering a dynamic space for contemporary art exhibitions and public engagement. The museum’s design draws inspiration from the surrounding landscape, integrating site with functional exhibition spaces. The project emphasizes flexibility, offering diverse gallery sizes, to accommodate a wide range of artistic expressions. With a strategic location and carefully planned spatial arrangements, the museum aims to provide an immersive experience that fosters creativity and cultural exchange.

Technical Drawing

HKS, San Francisco, U.S.

Project Site: Honolulu Architectural Intern 2024.6-2024.8

Conceived as a major expansion and renovation of Hawaii’s premier non-profit health system, this state-of-the-art hospital complex balances the site’s extraordinary natural beauty with a bold vision for transforming the urban health campus and community. Addressing the limitations of the approved PRU, the new design ensures all patient rooms face the landscape and park, enhancing recovery and wellbeing, while maintaining compliance with zoning standards. The efficient 32-unit bed tower layout optimizes functionality, and the design preserves the iconic Punchbowl-Capitol viewshed, seamlessly integrating the hospital into Honolulu’s cultural landscape.

Analytical Drawing

SCHEME 03 - MAUKA + MAKAI

HKS, San Francisco, U.S.

Project Site: West Oahu Architectural

Queen's Medical Center is located in the west-central portion of O'ahu, within the heart of the Ewa District near the coast of Mamala Bay. The ED Expansion aims to address the growing demand for emergency and patient care services. The project includes the addition of a new Emergency Department & Patient Care Unit, designed to enhance capacity, reduce wait times, and improve overall patient outcomes.

The project site is adjacent to the recently approved new town center of Ho‘opili. Ho‘opili will become West O‘ahu’s newest urban and transit-oriented mixed-use commercial and residential neighborhood that will be home to thousands of new residents and businesses. The site's strategic location at the intersection of Fort Weaver Road and Farrington Highway provides regional access between the Wai‘anae coast of O'ahu and Pearl City.

Turn static files into dynamic content formats.

Create a flipbook
Portfolio_Harper Dong by Harper Dong - Issuu