


![]()



Independently handled the entire project presentation, focusing on delivering a clear and engaging visual representation of the design. Produced detailed renderings of the master plan and site layout, tailored to communicate effectively with clients. Ensured the presentation reflected the architectural vision through consistent formatting, strong graphic quality, and organized content flow. Prioritized visual clarity and storytelling to highlight key planning elements, resulting in a polished and professional presentation that supported project understanding and client communication.


The project follows a linear master plan with podium-level design, optimizing circulation, zoning, and open space integration. Residential towers are aligned to ensure cross-ventilation, sunlight access, and functional efficie ncy. A diverse mix of 2, 3, and 4BHK units caters to various user needs, with east and west-facing options for climatic responsiveness. The site is zoned for specific age groups kids, teens, seniors promoting inclusivity and usecentric design. Amenities like a multipurpose court, outdoor gym, amphitheatre, and BBQ deck support community interaction and active living. Strategic green buffers reduce noise from the railway and enhance privacy. Defined entry/exit, drop-off zones, and a central spine improve connectivity, while landscape planning ensures envi ronmental sustainability and a cohesive visual experience.


This residential layout features four spacious bedrooms, a central living and dining area, and a well-placed kitchen for functional flow. Each room is designed for natural light and ventilation, with attached toilets and multiple balconies enhancing comfort. The master bedroom includes a walk-in wardrobe, offering added luxury. The plan balances privacy, utility, and modern living needs.

This three-bedroom apartment layout is designed for efficient spatial use and natural ventilation. It includes a central living and dining zone, a functional kitchen, and three well-placed toilets for convenience. The master bedroom features a private balcony, enhancing comfort. The layout emphasizes clarity, circulation, and privacy, catering to modern family living with thoughtfully zoned private and shared areas.

This three-bedroom apartment plan is organized for practical urban living. The layout features a spacious dining area near the entry, a central living space, and a functional kitchen. Each bedroom is strategically placed with access to attached or nearby toilets. Two balconies enhance ventilation and light. The master bedroom ensures privacy while balancing comfort and flow within the home.
Your Heading Here

This compact two-bedroom apartment plan is optimized for functionality and comfort. It features a well-connected living and dining area, a functional kitchen, and two strategically placed toilets. The master bedroom ensures privacy, while the balcony adjacent to the living area provides natural light and ventilation. The layout supports efficient circulation, making it ideal for small urban households.

This podium-level master plan integrates landscape and leisure spaces within a linear residential development. Key features include a viewing deck, party lawn, outdoor gym, teen’s play park, and a continuous walkway. The design emphasizes active living, community interaction, and greenery. Strategic zoning ensures easy access and seamless circulation while enhancing the project’s livability and recreational value.

This typical floor plan illustrates a high-density residential configuration with 11 units per floor, efficiently organized along double-loaded corridors. Each unit is self-contained, featuring a living-dining area, kitchen, and multiple bedrooms with attached toilets. Strategically placed service cores, vertical circulation, and balconies ensure ventilation, ease of access, and privacy, balancing compact design with livability and urban comfort.

This floor plan efficiently accommodates 11 apartment units around well-structured lobbies and vertical circulation cores. With clear zoning and optimal use of space, the design supports privacy and natural ventilation. The inclusion of a refuge area enhances fire safety compliance. Carefully positioned balconies, shafts, and service zones reflect thoughtful planning tailored for high-density residential living.




Independently handled the entire project presentation, focusing on delivering a clear and engaging visual representation of the design. Produced detailed renderings of the master plan and site layout, tailored to communicate effectively with clients. Ensured the presentation reflected the architectural vision through consistent formatting, strong graphic quality, and organized content flow. Prioritized visual clarity and storytelling to highlight key planning elements, resulting in a polished and professional presentation that supported project understanding and client communication.


The design integrates a cohesive site and floor plan layout, ensuring circulation clarity, efficient zoning, and spatial hierarchy. The ground level features essential services, utility areas, and a grand double-height lobby enhancing visual connectivity and user experience. The podium floors activate community life with multifunctional amenities like a toddler zone, yoga deck, games area, and an infinity-edge pool—promoting wellness and recreation. The refuge floor complies with fire safety norms, ensuring secure evacuation routes. The typical floor layout emphasizes functional luxury, with a 4BHK configuration offering clear zoning, cross ventilation, and seamless indoor-outdoor transitions. Each component reflects an efficient planning strategy tailored for urban high-rise living, blending lifestyle, safety, and design integrity in a compact yet dynamic form.

The site layout is strategically designed to optimize vehicular circulation, pedestrian movement, and spatial organization. A defined drop-off zone anchors the arrival experience, guiding residents and visitors into a welcoming double-height lobby and lounge. Peripheral parking is efficiently integrated around the site’s edge, maximizing space utility while preserving landscaped buffers. Dedicated service zones such as the DG room, electrical room, and transformer yard are positioned for operational ease without disrupting public areas. Entry and exit points are aligned for smooth flow along the adjoining 12M and 18M wide roads. The driveway wraps the building to ensure uninterrupted circulation and emergency access. The design emphasizes functional zoning, visual clarity, and a seamless transition from outdoor to indoor spaces.

The typical floor layout features a well-articulated 4BHK configuration that prioritizes both spatial luxury and functional zoning. Each unit includes a private lobby, enhancing exclusivity and privacy. The plan integrates generous living and dining areas with direct access to balconies and decks, facilitating indoor-outdoor connectivity and natural ventilation. Bedrooms are strategically placed to ensure privacy, while the master suite includes a walk-in wardrobe and ensuite bath. The kitchen is efficiently linked to a utility area and maid’s room, optimizing daily operations. Dual staircases and lifts ensure smooth vertical circulation. The overall layout reflects careful planning for high-rise living, with emphasis on light, ventilation, and user comfort within a clearly defined and luxurious residential module.

The refuge floor plan is designed in compliance with fire safety and building codes, offering a secure and ventilated area for temporary shelter during emergencies. Strategically located adjacent to dual staircases and lifts, the refuge area ensures quick and accessible evacuation routes for residents. The floor retains the core spatial configuration of the typical 4BHK unit, incorporating spacious living and dining areas, private balconies, a functional kitchen with utility zone, and a dedicated maid’s room. The inclusion of a clearly demarcated refuge zone exemplifies a safety-conscious design approach within a high-rise typology. It balances luxury living with essential emergency planning, ensuring resident well-being without compromising on spatial flow, comfort, or lifestyle-oriented design elements.

The podium floor is thoughtfully designed as a vibrant recreational hub that caters to residents of all age groups. It integrates a diverse program of outdoor and indoor amenities including toddler and teen play areas, a yoga deck, viewing deck, and a multifunctional games zone. Activities like table tennis, snooker, and sub-soccer promote physical engagement and social interaction. Green buffers and landscaped edges soften the built form, enhancing the experience of openness and relaxation. Circulation is centrally aligned, providing clear spatial orientation and connectivity across activity zones. This level embodies community-focused design, promoting well-being, leisure, and social cohesion within the vertical living environment of the high-rise. The design balances functionality with comfort, creating an engaging residential amenity space.

he terrace level is designed as a wellness and leisure-focused amenity zone, offering residents an elevated experience with uninterrupted views and active spaces. Anchored by an infinity-edge swimming pool and expansive deck, the design encourages relaxation and visual connectivity with the skyline. Adjacent to this, a well-equipped gym supports daily fitness routines, complemented by gender-specific changing rooms and a janitor’s area for service efficiency. A multipurpose hall adds flexibility, accommodating community gatherings, events, or indoor activities. Circulation is well-integrated through a central lobby with vertical access via twin staircases and elevators. The layout reflects a holistic approach to lifestyle design—balancing recreation, wellness, and social engagement within the architectural narrative of a high-rise residential development.

The upper terrace is envisioned as a serene outdoor retreat that fosters social interaction and leisure in an elevated green setting. A combination of soft landscaping and hard deck surfaces defines zones for relaxation, gatherings, and entertainment. The expansive lawn area provides a breathable open space, while the adjoining lounge terrace and BBQ deck create a perfect setting for casual gatherings and community events. Strategically bordered with lush green buffers, the space ensures privacy while maintaining visual openness. Vertical circulation through twin staircases and elevators provides seamless access from lower levels. Designed to extend the resident experience beyond interior living, this terrace offers a harmonious blend of landscape, functionality, and lifestyle, adding value to the overall vertical housing narrative.




Independently handled the entire project presentation, focusing on delivering a clear and engaging visual representation of the design. Produced detailed renderings of the master plan and site layout, tailored to communicate effectively with clients. Ensured the presentation reflected the architectural vision through consistent formatting, strong graphic quality, and organized content flow. Prioritized visual clarity and storytelling to highlight key planning elements, resulting in a polished and professional presentation that supported project understanding and client communication.


The design integrates a key anchor within a larger mixed-use development, the G+10 commercial block embodies functionality, corporate identity, and user comfort. The layout ensures efficient vehicular circulation through dedicated 8m-wide driveways and ramps, facilitating smooth access for high-volume corporate and retail users. A clearly defined arrival sequence—including security, drop-off, and entry zones—enhances user experience. Thoughtfully integrated landscaped pockets offer visual relief and encourage informal interaction, reinforcing a sense of place. The commercial hub seamlessly connects to the broader development, promoting cohesive spatial flow and a vibrant business environment.

The basement floor is efficiently planned to accommodate 75 car parking spaces, ensuring optimal vehicular circulation through a well-defined one-way movement system and 5–5.5M wide driveways. The layout integrates clear zoning for entry and exit ramps, minimizing traffic conflicts and enhancing flow. Lift lobbies are strategically located with direct access to passenger and fire/service lifts, ensuring convenient vertical circulation and emergency preparedness. The plan also houses essential utility services like the STP and underground water tank, positioned to avoid interference with parking or circulation zones. Staircases are well-distributed for code-compliant fire egress. Overall, the basement layout is functional, accessible, and service-oriented, reflecting a practical approach to space utilization in a high-density residential development.

The ground floor is designed to balance utility, circulation, and first impressions. Anchored by a spacious double-height lobby and a vibrant cafeteria space, the layout supports both functional and social interactions. A well-organized vehicular circulation system with a 6M wide driveway allows seamless movement and accommodates 35 parking slots. The entry ramp connects efficiently to basement levels, ensuring vertical vehicular flow. Core service areas, including the fire control room, electrical room, and vertical circulation (passenger and fire/service lifts, staircases), are clustered for compact planning and ease of access. The integration of disabled-friendly toilet provisions and direct pedestrian access further enhances user inclusivity. This level acts as a transitional zone between public and private domains, setting the architectural tone for the development.

The Typical Floor Plan is designed for optimum spatial efficiency and functional clarity. A large central office space offers flexibility for varied interior layouts, supported by a well-structured core zone on the west side. This core includes passenger lifts, a service lift, and twin staircases, ensuring seamless vertical circulation and meeting fire safety norms. Gender-specific toilets, along with disabled-friendly restrooms, are aligned along a 2-meter-wide service corridor, promoting accessibility. The presence of electrical and AHU rooms ensures that essential building services are centrally and discreetly managed. The modular grid and symmetrical layout allow for efficient structural planning. Overall, this floor plan reflects a balance between functional zoning, occupant safety, and flexible workspace design.

This Refuge Floor Plan exemplifies thoughtful architectural planning focused on safety, accessibility, and functional design. Strategically located refuge areas provide designated safe zones during emergencies. The floor integrates efficient vertical circulation through multiple passenger and service lifts, staircases, and lift lobbies to ensure smooth occupant movement. The layout features gender-specific toilets and disabled-friendly washrooms, enhancing inclusivity. AHU and electrical rooms are tactically placed to support essential building services without disrupting the core office space. The office layout allows for flexible spatial planning, maximizing natural light and structural efficiency. Clear zoning, service corridors, and emergency egress routes reflect a commitment to safety and operational clarity. This plan demonstrates a balanced fusion of functionality, compliance, and user-centric design for high-rise architecture.

The 10th Floor Plan demonstrates a well-balanced integration of functional zoning, efficient circulation, and user-centric design. The large office space is complemented by an expansive terrace, enhancing natural light and ventilation while offering opportunities for informal interaction or breakout areas. Vertical circulation is efficiently managed through strategically placed passenger lifts, service/fire lifts, and staircases, ensuring smooth and safe movement. Support spaces such as toilets, disabled-accessible restrooms, electrical rooms, and AHU rooms are aligned along a 2-meter-wide service corridor, maintaining operational efficiency. The clear spatial hierarchy and symmetrical layout provide flexibility for varied workspace configurations. This design promotes a balance between performance, safety, and environmental responsiveness in a contemporary high-rise environment.

This sectional perspective illustrates the vertical articulation and spatial organization of a commercial office building. The design comprises a double basement, a ground floor podium, and nine typical office floors, each with a floor-to-floor height of 4.05 meters, promoting natural ventilation and daylighting. A centrally placed refuge area ensures fire safety compliance, while the core zone strategically located to the side integrates vertical circulation and essential services. The sectional cut reveals efficient stacking, symmetrical massing, and zoning that enhances functionality and user movement. This drawing highlights volumetric clarity, consistent floor plate layout, and seamless core accessibility, reflecting thoughtful architectural planning. Structural grid logic, modularity, and egress efficiency define the framework of this design, emphasizing both performance and aesthetics in urban commercial architecture.
Collaborated closely with the site engineer to independently manage and execute the project presentation. Took charge of creating detailed elevations and visual renderings, including the master plan and site layout, to effectively communicate design intent. Focused on maintaining consistent formatting, clear graphic quality, and organized content flow to reflect the architectural vision. Emphasized storytelling and visual clarity to showcase key planning elements, resulting in a comprehensive and professional presentation that enhanced client understanding and engagement.


This residence is a thoughtfully designed multi-level home that caters to the needs of a modern Indian joint family. The spatial planning follows a vertical zoning approach—ground floor reserved for services and circulation, first floor hosting the main living and dining areas, kitchen, pooja, and a bedroom for elders, ensuring ease of access. The upper floors accommodate private bedrooms, each with attached toilets and wardrobes, along with a family lounge to encourage bonding and relaxation. A centrally located lift and dual staircases enhance movement and accessibility across all levels. Large windows, utility spaces, balconies, and natural ventilation create a bright and airy ambiance. The design balances privacy, connectivity, and comfort, offering a harmonious blend of functionality and modern family lifestyle.

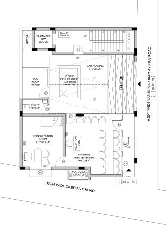
The ground floor of Gowri’s Residence blends clinical utility with functional planning. A dedicated consultation room, ECG room, and waiting lounge cater to outpatient needs, while a compact reception ensures efficient workflow. Ample car parking and a passenger lift provide accessibility. Zoning distinctly separates public and private areas, enhancing both privacy and operational clarity in a compact footprint.

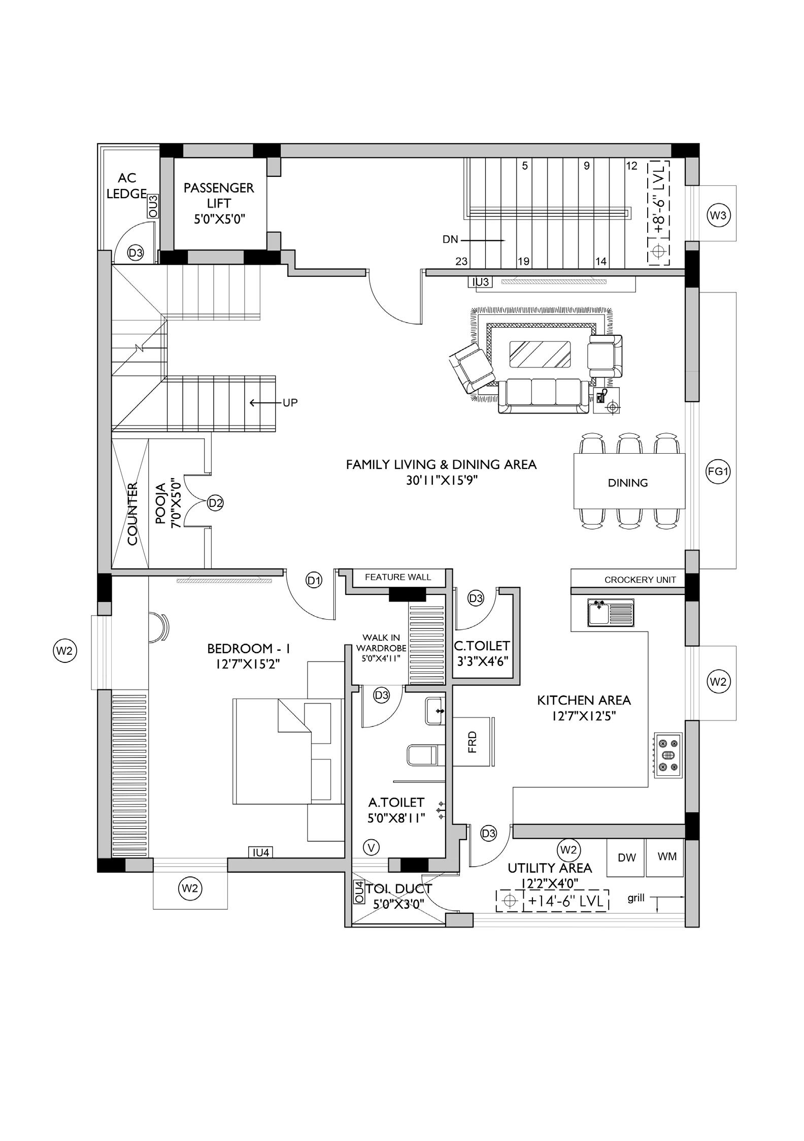
The first floor prioritizes family living with a spacious open-plan lounge and dining area. A well-zoned kitchen connects to a compact utility space. The layout includes a private bedroom with a walk-in wardrobe and attached bath. A passenger lift and stairway ensure accessibility, while pooja space and feature elements add warmth and cultural depth to the design.

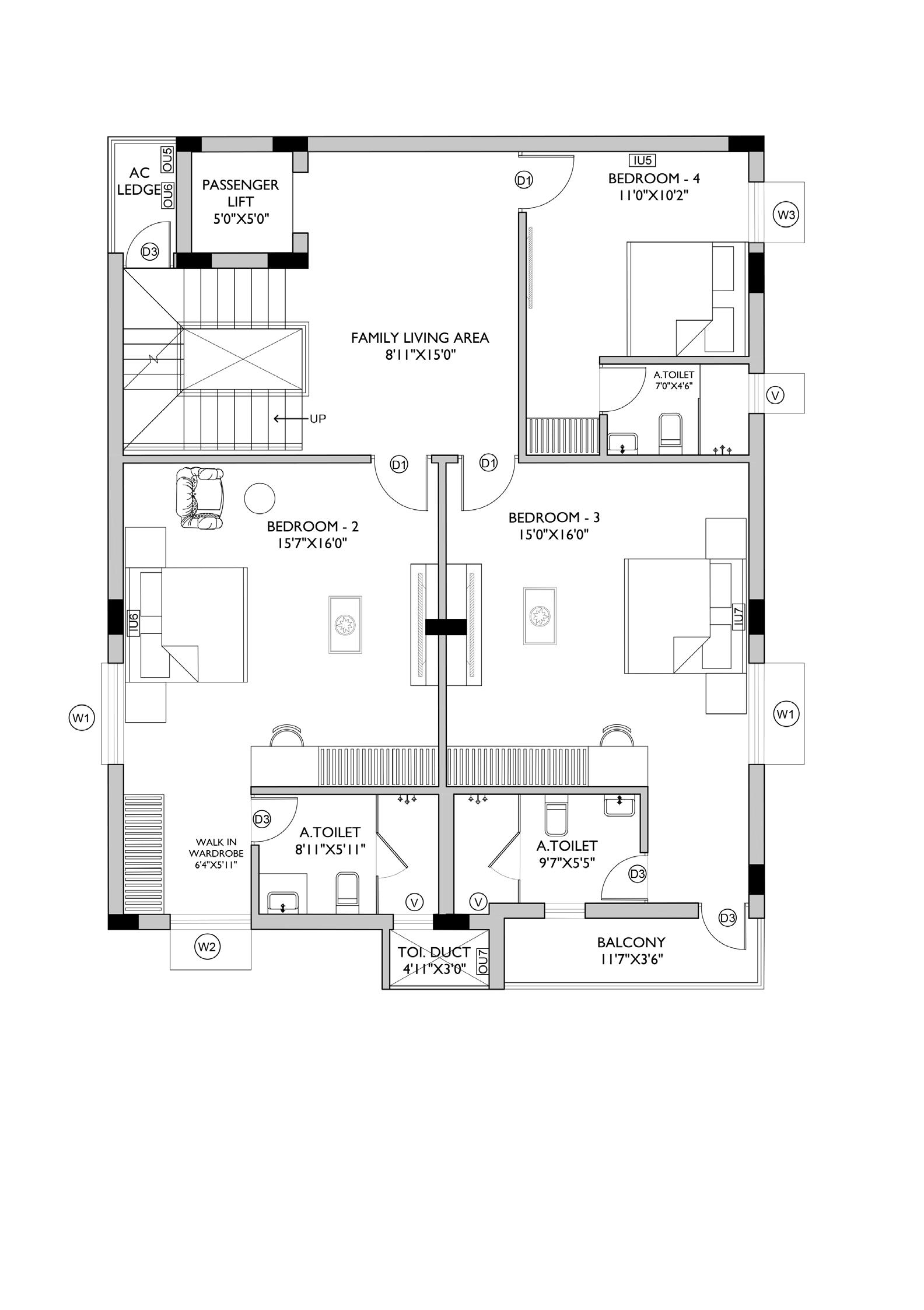
The second floor accommodates three bedrooms with attached toilets, offering comfort and privacy. A central family living area connects the spaces, enhancing interaction. Bedroom 2 includes a walk-in wardrobe, while Bedroom 4 serves as a compact guest or kids’ room. The attached balcony brings in natural light and ventilation, adding to the livability of the upper floor.

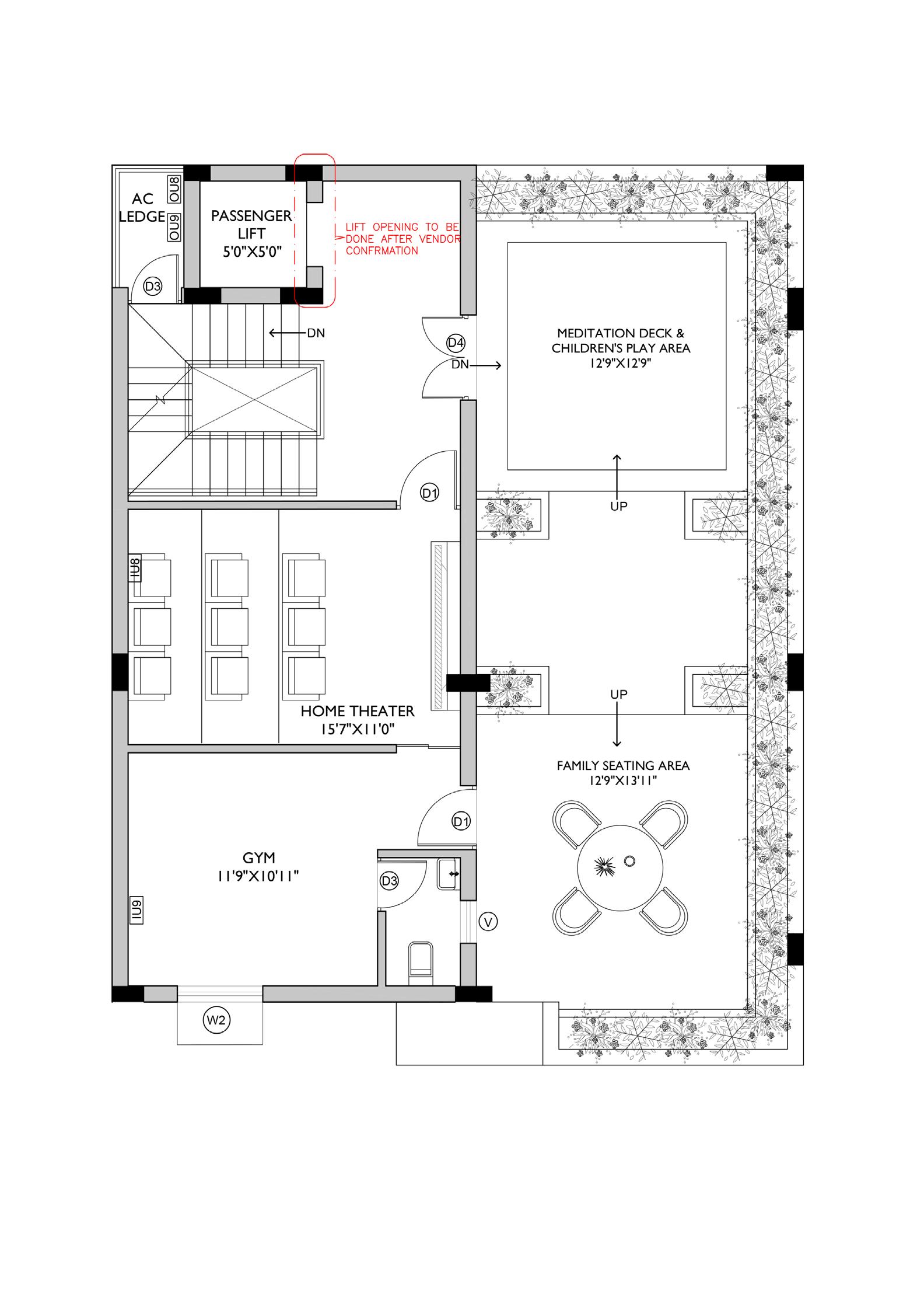
This terrace floor layout integrates wellness and leisure through a meditation deck, family seating area, gym, and home theater. Thoughtful zoning separates active and relaxing spaces, while natural light and greenery enhance the environment. Clean lines, modern aesthetics, and efficient circulation via a central staircase and lift create a harmonious, functional, and comfortable living experience tailored for contemporary lifestyles.




Collaborated closely with the site engineer to independently manage and execute the project presentation. Took charge of creating detailed elevations and visual renderings, including the master plan and site layout, to effectively communicate design intent. Focused on maintaining consistent formatting, clear graphic quality, and organized content flow to reflect the architectural vision. Emphasized storytelling and visual clarity to showcase key planning elements, resulting in a comprehensive and professional presentation that enhanced client understanding and engagement.


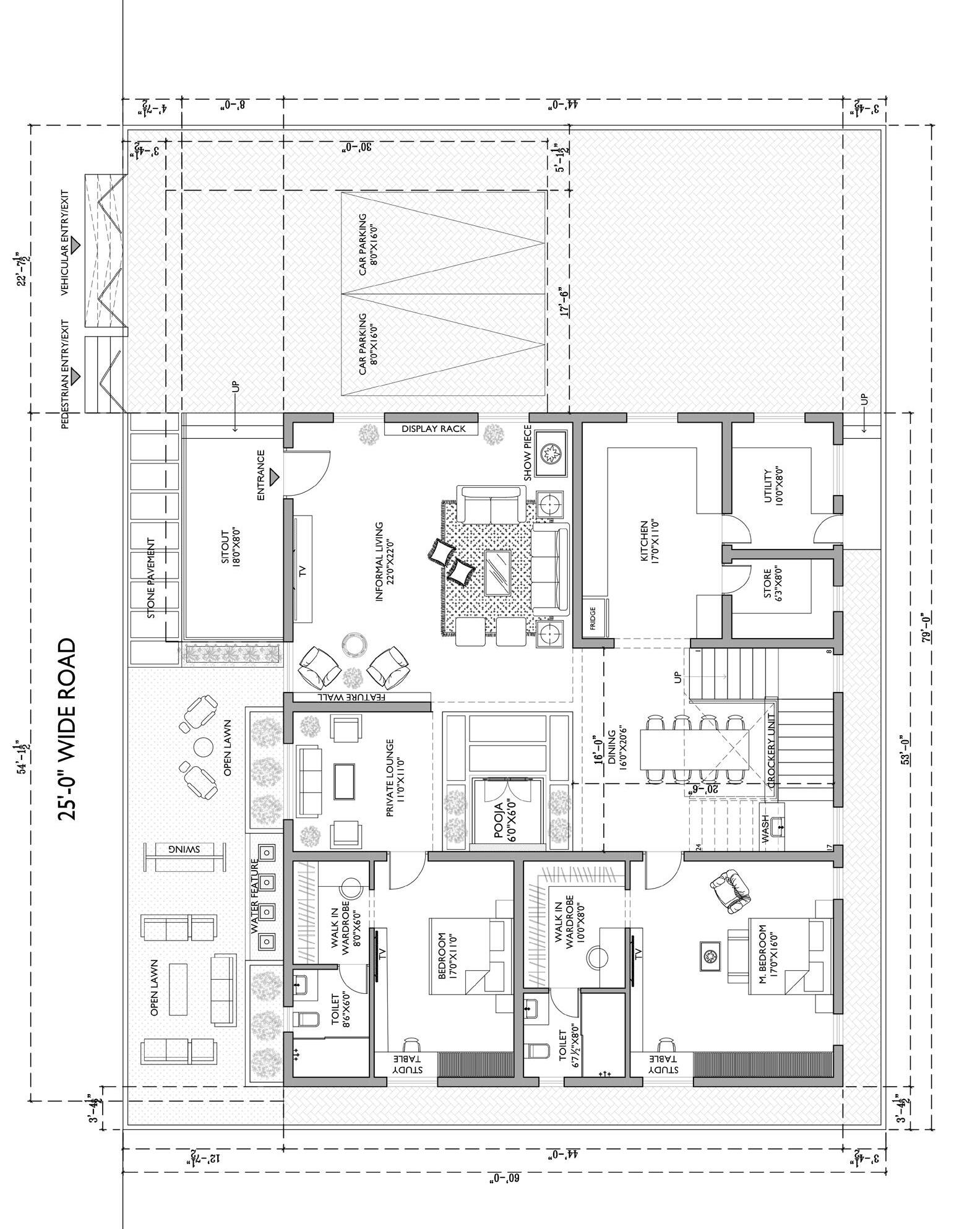
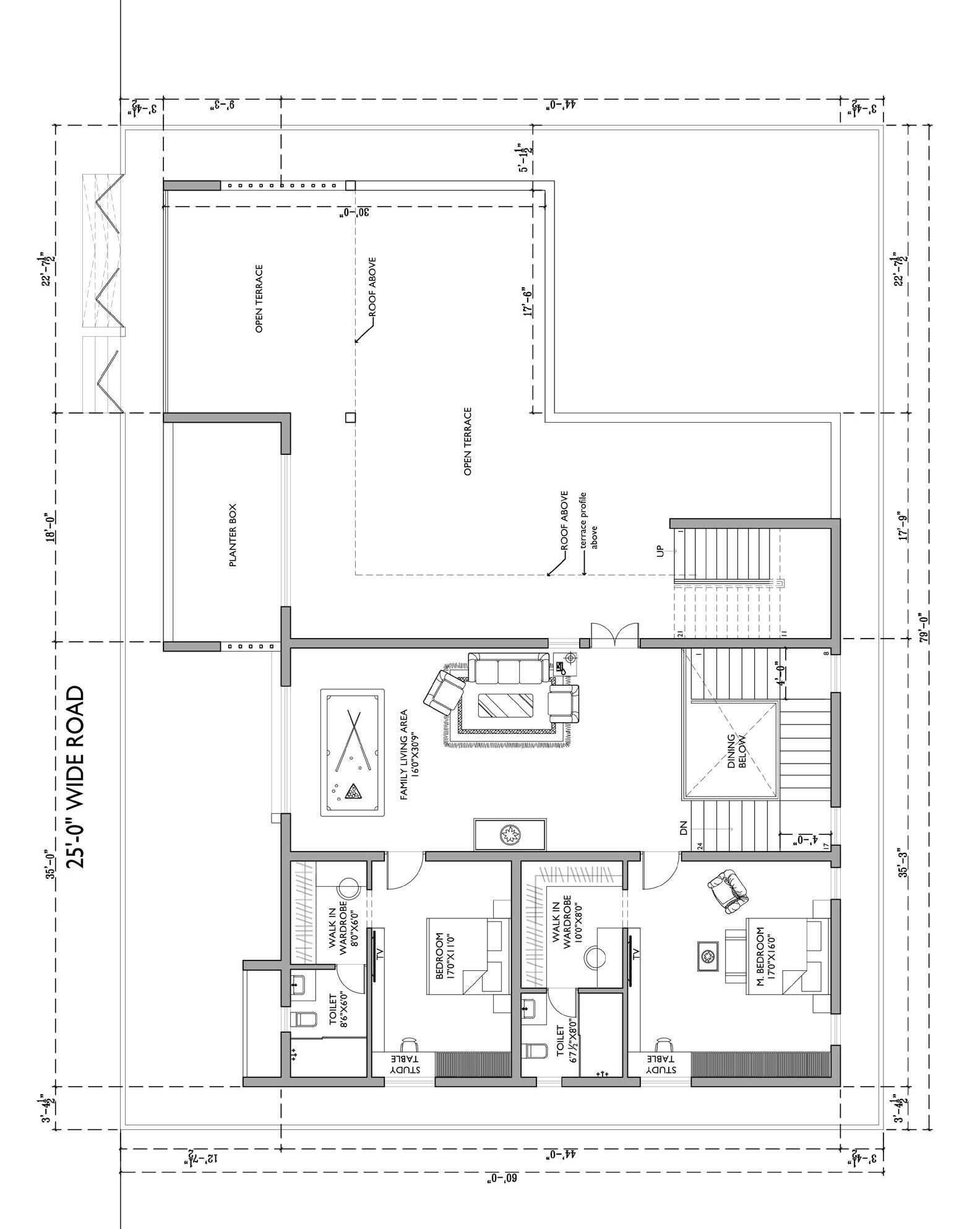
This residence design emphasizes a balance between openness and privacy, tailored for modern family living. The layout is zoned to clearly separate public, semi-private, and private areas, ensuring functionality and comfort. A central double-height informal living space connects both floors, enhancing openness and family interaction. Spacious bedrooms with walk-in wardrobes and attached toilets offer luxury and convenience. Outdoor elements like the open lawn, sit-out, and water feature establish a strong indoor-outdoor connection, promoting natural light and ventilation. Thoughtful planning includes dual car parking, a pooja room, and a private lounge. With large terraces, passive design strategies, and efficient spatial flow, the residence blends aesthetic clarity with lifestyle comfort, supporting both daily use and client-focused presentation.

The ground floor is thoughtfully zoned with a clear hierarchy of public and private spaces.
The informal living room anchors the layout, opening to landscaped lawns for indoor-outdoor flow. The pooja room and private lounge provide cultural and intimate spaces. Functional zones like kitchen, utility, and car parking are efficiently placed, ensuring seamless circulation and privacy.

The first floor continues the home’s spatial coherence with a central family living area that encourages interaction. Both bedrooms are paired with walk-in wardrobes and attached toilets for enhanced privacy and comfort. Large open terraces and a planter box connect the interiors with nature, ensuring ample light, ventilation, and extended outdoor usability for leisure and relaxation.





