

![]()


Harcourts Signature is delighted to offer for sale eleven individual development opportunities situated in New Norfolk, the bustling hub of Tasmania’s beautiful Derwent Valley. Located an easy 35-minute commute to Hobart, New Norfolk is the gateway to Mt Field National Park, Lake Pedder and the West Coast. The township has experienced considerable growth over the last few years and a visit to the area makes it easy to understand why so many people are flocking to become part of this picturesque community. With an abundance of services, award-winning restaurants and tourism ventures already established, New Norfolk is a thriving village that has captured the interest of many astute investors and developers. Talk to Harcourts Signature today to discuss the multitude of shovel ready, titled and awaiting title, permitted, and profitable opportunities.





LOT 8, 1 GLEBE ROAD
9,
LOT 10, 1 GLEBE ROAD
LOT 11, 1 GLEBE ROAD
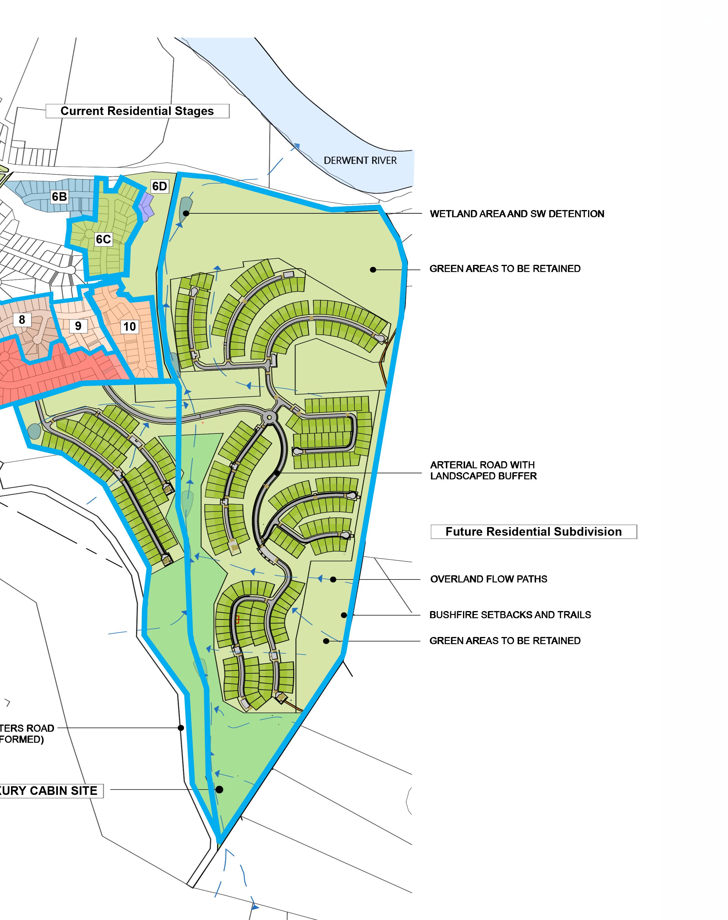
Master plan showing the original subdivision design. Available allotments for sale by Harcourts Signature are defined by the cyan boundary lines.

Please note all boundaries are approximate. Refer to title documents for exact measurements.


Harcourts Signature is delighted to offer for sale, by Expression of Interest, this parcel of 18 titled allotments located in the stunning Derwent Valley. Ranging in size from 684m² to 813m² this is an excellent opportunity for an aspiring or established builder seeking to showcase their talents by building their own display homes. For those seeking long-term investment, this could be the opportunity you have been looking for.
This picturesque region has enjoyed recent growth in services and amenities, making it a popular destination for young families. As the gateway to some of Tasmania’s most prized attractions, New Norfolk is the perfect place to invest.

• Zoned residential
• All 18 allotments have titles and are ready to build upon
• Variety of land sizes
• Located in a new homes area
For sale by EOI closing 5:00pm, Wednesday 14th August 2024
The vendor reserves the right to consider offers prior to the closing date


Brudenell
8
9 11



These generous parcels of land available to purchase separately or as a collective, are already approved for development.
The expansive stages combined span over 12 hectares, showcasing breathtaking views of the surrounding natural beauty that characterises Tasmania’s picturesque landscape.
Previous development in the area provides easy access to power and town services.
For sale by EOI closing 5:00pm, Wednesday 14th August 2024
The vendor reserves the right to consider offers prior to the closing date

• Stage 8 - 3.208 hectares | approved for 33 allotments
• Stage 9 - 1.946 hectares | approved for 19 allotments
• Stage 11 - 7.222 hectares | approved for 71 allotments
• Services close by for easy connection
• Available to purchase separately or as a collective


Mark Brudenell M 0418 302 410 E mark.brudenell@harcourtssignature.com.au
Alex Muller M 0499 389 939 E alex.muller@harcourtssignature.com.au



This 36-allotment development is available for sale as a single entity. All the hard work of the development process has been completed and this project is simply awaiting the issue of title. This unparalleled opportunity is situated close to amenities and takes full advantage of its elevated position, providing the astute investor with an abundance of opportunities for now or in the future. Allotments vary in size from 507m2 to 1243m2 with some allotments suitable for unit development (STCA).
Key insights
• 36 fully developed allotments
• Title pending
• Stunning views
• Unit potential for some allotments (STCA)
• Close to services and transport
• Zoned residential
For sale by EOI closing 5:00pm, Wednesday 14th August 2024


Mark Brudenell
M 0418 302 410
E mark.brudenell@harcourtssignature.com.au
Alex Muller M 0499 389 939
E alex.muller@harcourtssignature.com.au

Boundaries are approximate



Key insights
• 5.5 hectares
• Flat usable land
• Services close by for easy connection
• Zoned Particular Purpose
• Residential or commercial opportunities (STCA)
For sale by EOI closing 5:00pm, Wednesday 14th August 2024


Damien Hollingsworth
M 0409 605 833
E damien.hollingsworth@harcourtssignature.com.au
Nick Machin M 0429 523 157
E nick.machin@harcourtssignature.com.au
Boundaries are approximate



Key insights
• 6793m2 in size
• Flat usable land
• Services close by for easy connection
• Zoned Particular Purpose/ could suit residential or commercial development (STCA)
For sale by EOI closing 5:00pm, Wednesday 14th August 2024


Damien Hollingsworth
M 0409 605 833
E damien.hollingsworth@harcourtssignature.com.au
Nick Machin M 0429 523 157
E nick.machin@harcourtssignature.com.au



Key insights
• Just over 2 hectares in size
• Flat usable land
• Services close by for easy connection
• Zoned Particular Purpose, suiting residential or commercial development (STCA)
For sale by EOI closing 5:00pm, Wednesday 14th August 2024
The vendor reserves the right to consider offers prior to the closing date


Damien Hollingsworth M 0409 605 833
E damien.hollingsworth@harcourtssignature.com.au
Nick Machin M 0429 523 157 E nick.machin@harcourtssignature.com.au



Key insights
• 1.54 hectares in size
• Existing building in place would suit rebuild or demolition (STCA)
• Corner allotment
• Services close by for easy connection
• Zoned Particular Purpose, suiting residential or commercial development (STCA)
For sale by EOI closing 5:00pm, Wednesday 14th August 2024 The vendor reserves the right to consider offers prior to the closing date


Damien Hollingsworth
M 0409 605 833
E damien.hollingsworth@harcourtssignature.com.au
Nick Machin M 0429 523 157
E nick.machin@harcourtssignature.com.au




Zoned as a mixture of General Residential, Low Density Residential as well as Rural Living, here is your chance to create something unique as compared to your standard development opportunity. These two sizable parcels of land have potential for a total of 321 allotments. Additionally, there are concept drawings for luxury cabins to be constructed on Lot 6. Meticulously designed to capture the stunning views available, this bonus opportunity could be an additional income stream to the main development.
Key features
• Lot 5 - 19.07 hectares
• Lot 6 - 89.31 hectares
• Mixed Residential, Rural Living and Low Density Zoning
• Concept drawings in place for ‘luxury’ cabins on Lot 6
• Potential for up to 321 allotments (across both Lots)
• Available to purchase separately or as a collective





Example of cabin design. For more information, please refer to building plans.
For sale by EOI closing 5:00pm, Wednesday 14th August 2024


Damien Hollingsworth
M 0409 605 833
E damien.hollingsworth@harcourtssignature.com.au
Nick Machin
M 0429 523 157
E nick.machin@harcourtssignature.com.au