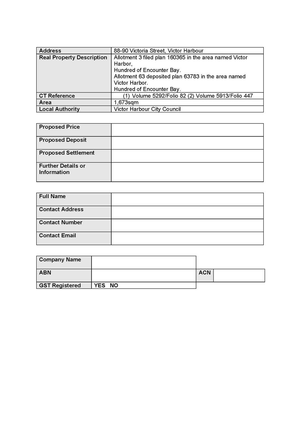
88-90 Victoria Street, Victor Harbour

Page 1

88-90VICTORIASTREET Victor Harbour

1673sqm VICTORIA STREET VICTOR HARBOUR BEACH

PROPERTY Overview Address 88 90 Victoria Street, Victor Harbour Area 652sqm Local Council City of Victor Harbour The Centrelink Building in Victor Harbour presents a golden opportunity to secure an investment nest egg. Ideal for your long term superannuation or investment portfolio this commercial building of 652sqm approximately (has blue chip, Australian Government tenants Centrelink. Recently renewed for a 3 year lease term expiring on 31st of Jan 2026 with further 3 year option, 3% rent increase every anniversary (next 1st of February 2024). Land size of 1673sqm for both titles in the rapidly growing location of Victor Harbour. The very spacious office building has a modern facade & fitout which includes quality staff amenities, kitchen, manager’s office, meeting rooms, interview rooms, pergola area and 6 onsite car park spaces plus double Garage with space for at least 2 cars which has easy access. Annual Rent: $185,767.68 excluding GST - From February 2023 increase to $199,071 excluding GST landlord pays all outgoings. Trent Shorland 0413 519 954 trent.shorland@shorlandre.com.au M E

CERTIFICATEOF Title VOLUME5292/ FOLIO82

CERTIFICATEOF Title VOLUME5292/ FOLIO82

Title CERTIFICATEOF VOLUME5913/ FOLIO447

Title CERTIFICATEOF VOLUME5913/ FOLIO447

VIEW ONLINE

Commonwealth of Australia as represented by Services Australia Centerlink Building - Office Accommodation $185,767.68 exc GST / February 2023 $199,071 exc GST 1st February 2018 3 years Further 3 years February 2026 to 2029 $11,441.40 External Window Cleaning: $1,200, Electricity $8,000 approx, AC $4,200, Gardening $3,050, Water $3,816 $3354.10 $2212.55 FINANCIAL/LEASEInformation Tenant TenantsUse AnnualRent LeaseCommencement InitialTerm RightsofRenewal OUTGOINGS CouncilRates UrbanUtilities Insurance(21-22) ESL(22-23) HOVERPHONECAMERAOVERQR CODEORCLICKTHEQRCODEBELOW TOVIEWLEASEAGREEMENTS 22023-2026 018-2023

FLOOR Plan

LETTEROFOFFER Form PROPERTY DETAILS OFFER TO PURCHASE DETAILS OF PROPOSED BUYER

Turn static files into dynamic content formats.

Create a flipbook
Issuu converts static files into: digital portfolios, online yearbooks, online catalogs, digital photo albums and more. Sign up and create your flipbook.
88-90 Victoria Street, Victor Harbour by Harcourts Adelaide Hills - Issuu