Portafolio de Proyectos Profesionales

Page 1

PORTAFOLIO

PORTAFOLIO DE ARQUITECTURA 2024
Trabajos seleccionados de 2019 a 2023
PORTAFOLIO DE ARQUITECTURA 2024

Contenido

P. 3 YOJHANTH DAVID GONZALEZ CASTELLANOS
ZAG
CLINICA CASTILLO
ORTENAU ACHERN CLINICA UNIVERSITARIA TÜBINGEN HANN & TASTE P. 08 P. 12 P. 18 P. 24 P. 30 2019 Construccion terminada 2020 Concurso 1er puesto 2021 Concurso Mención 2022 Concurso 2do puesto 2023 Renovación interior
ZIG
PARK
WINNENDEN CLINICA

Hola,

Soy David González, Arquitecto graduado de la Universidad Piloto de Bogotá (Colombia) con un MBA de la Universidad Politécnica de Barcelona. Tengo experiencia profesional en el diseño de edificaciones culturales, industriales y médicas. Además, me intereso especialmente por los concursos, tanto en diseño como en planificación ejecutiva. Me mantengo en constante formación en el manejo de software Bim .

Architecture is one of the best ways of prompting people to think about how the world could be other than what it is.
PORTAFOLIO DE ARQUITECTURA 2024
TOM WISCOMBE
P. 5
YOJHANTH DAVID GONZALEZ CASTELLANOS
PORTAFOLIO DE ARQUITECTURA 2024
03.CAZUCA, BOGOTA, COLOMBIA

Bogotá, Colombia

Mi influencia personal se refleja a través de la experiencia de crecer en Bogotá, caracterizada por la autogestión y autoconstrucción que define a muchas comunidades colombianas. En las áreas más remotas, se pueden observar barrios donde cada casa cuenta una historia de esfuerzo y creatividad, donde los habitantes construyen sus hogares con sus propias manos, adaptándose a las necesidades y recursos disponibles. Estos barrios, a menudo denominados “barrios populares” o “barrios informales”, son un testimonio vivo de la capacidad de los colombianos para superar adversidades y construir comunidad en medio de dificultades. La arquitectura en estos lugares puede parecer caótica a primera vista, pero está impregnada de un espíritu de inventiva y resistencia, donde cada espacio se aprovecha al máximo y cada solución arquitectónica se adapta a las necesidades específicas de los habitantes.

La arquitectura es un sistema vivo, no un objeto.
Jhon F.C. Turner
P. 7 YOJHANTH DAVID GONZALEZ CASTELLANOS

ZIG ZAG PARK

Estado : Completado año : 2018

Lugar : Bogotá, Kolumbien

Premios : Architekturbiennale Bogotá, 2019

Azure social goods Merit, 2020

Publicaciones :Azure magazine, archdaily

Empresa :Whiteknee

La imaginación de los niños es un santuario de emociones, ideas y sentimientos desinteresados. En teoría, podría ser el mejor campo de práctica para el diseño arquitectónico. Lamentablemente, el apoyo en las poblaciones más pobres y vulnerables de Colombia es limitado, y los niños se encuentran en situaciones de riesgo que son desconocidas para sus pares europeos. Gottdeiner dijo: “Las relaciones sociales que mejoran la vida deben expresarse en forma material a través de la producción social del espacio”. Características como estas en áreas descuidadas y no protegidas por parte de las autoridades estatales pueden disminuir las habilidades de estos futuros adultos y profesionales, y ponerlos en desventaja en un mundo cada vez más globalizado. La siguiente historia trata sobre estos niños.

PORTAFOLIO DE ARQUITECTURA 2024
1. FOTOGRAFIA TOMADA POR AARON PAUL BRAKE
P. 9
YOJHANTH DAVID GONZALEZ CASTELLANOS
PORTAFOLIO DE ARQUITECTURA 2024
01. CONCEPTO DE DISEÑO 04. DESIGN3D 03. PLANTA GENERAL 02. DIAGRAMA DE CIRCULACION

ZIG ZAG Park

En el año 2017, mientras buscaba un espacio para adaptar una escultura que desarrollé con corte CNC, impulsado por mi deseo de completar mi trabajo de grado en arquitectura con métodos de diseño innovadores, como el uso de software paramétrico para definir estáticas y métodos de montaje, mi director de tesis me sugirió un lugar. Se trataba de un área donde se depositaban desechos frente a un jardín escolar en una zona vulnerable.

Este lugar estaba en las afueras de Bogotá, y la realidad de los niños que jugaban entre los desechos me llevó a reflexionar sobre la importancia de dedicar mi energía creativa a un propósito más significativo. Junto con Sebastián Bastidas, un estudiante de cine, y mis colegas Alejandro Bello, Iván Ávila y Juan Nicolás Rivera, organizamos un documental en el que los niños expresaban sus ideas y sueños para un parque de ensueño. Este proceso cambió radicalmente mi perspectiva, y mi proyecto de escultura pasó a un segundo plano.

Nos propusimos hacer realidad estos sueños aparentemente mínimos, como un césped verde o una escalera con barandilla. Aunque parecían simples, eran sueños tangibles para los niños. Con determinación, obtuvimos los permisos para la construcción del parque. Gracias al conmovedor documental, pudimos llegar al corazón de algunos políticos, quienes nos conectaron con empresarios como el director de Cemex o Le Grand, empresas conocidas en Colombia, que nos apoyaron financieramente para realizar los primeros trabajos de excavación.

Bajo la guía de mi director de tesis, Aaron Paul Brakke, CEO de Whitknee, logramos construir el parque y convertir un espacio olvidado en un santuario para la imaginación y la felicidad de los niños. Este proyecto no solo cumplió su propósito arquitectónico, sino que también destacó la capacidad de la creatividad y la solidaridad para generar cambios significativos en las comunidades más necesitadas

P. 11 YOJHANTH DAVID GONZALEZ CASTELLANOS

Clinica Castillo de Winnenden

Estado : En construcción

Año : 2021

Lugar : Winnenden, Baden-Württemberg, Deutschland

Premios : Zentrum für Psychiatrie Klinikum Schloß Winnenden Concurso, 1.er Puesto

Publicaciones :Competitiononline.com/ WA Wettbewerbe aktuell

Empresa :HSP HOPPE SOMMER PLANUNG

Nuevo edificio de estaciones abiertas para la Clínica de Psiquiatría General y Psicoterapia del Hospital Castillo de Winnenden

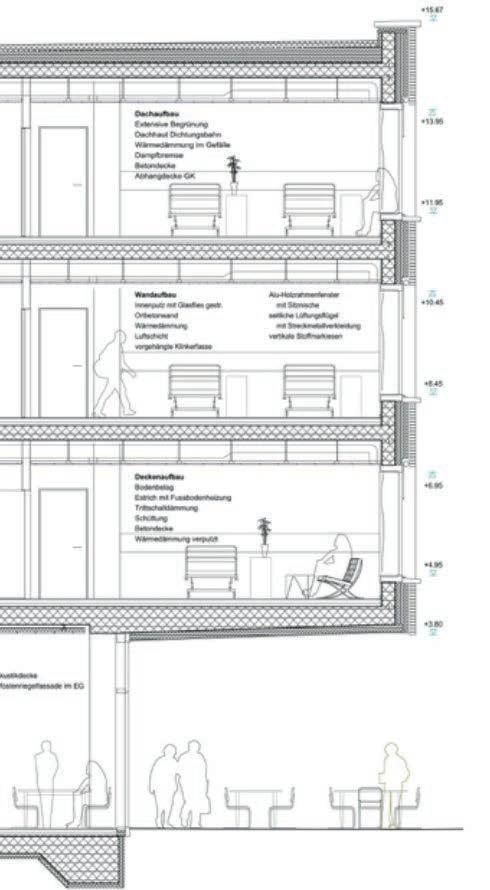
Un edificio ecológico y compacto, construido principalmente con madera. Desde su concepción, este proyecto ha sido un ejemplo de innovación y compromiso con el medio ambiente.

El diseño de esta estructura se caracteriza por su eficiencia energética y su enfoque en la sostenibilidad. El uso de la madera como material principal logra una huella ecológica reducida, al tiempo que crea una atmósfera cálida y acogedora para los residentes.

Una característica destacada de este edificio son las numerosas áreas residenciales, cuidadosamente diseñadas para ofrecer una variedad de entornos que satisfacen las necesidades y preferencias de todos. Desde grandes salones hasta rincones íntimos, cada espacio invita a la relajación y la contemplación.

Además, se ha prestado especial atención a las áreas al aire libre, orientadas hacia el norte y hacia el patio interior, que ofrecen amplias vistas y una conexión directa con la naturaleza circundante.

PORTAFOLIO DE ARQUITECTURA 2024
P. 13
YOJHANTH DAVID GONZALEZ CASTELLANOS 05. MODELL

Städtebau

Concepto

Ein aspecto fundamental del diseño es la conexión y organización de la clínica de día y la consulta psiquiátrica. Estas áreas están integradas sin problemas en el edificio, con accesos claramente definidos y una distribución que promueve el confort y la privacidad de los pacientes.

En el exterior, la clínica presenta una estructura compacta que se integra armoniosamente en el paisaje urbano circundante. Sin embargo, su verdadera belleza reside en el interior, donde los espacios están hábilmente dispuestos para maximizar la funcionalidad sin comprometer el confort.

La estructura de madera en el techo del edificio le otorga al diseño una nota elegante y sostenible al permitir la entrada de luz natural y crear una atmósfera tranquila y apacible en los interiores. Las amplias ventanas y las terrazas abiertas conectan los espacios interiores con el mundo exterior e invitan a pacientes y personal a disfrutar de la belleza del paisaje urbano mientras se recuperan o trabajan.

D er großzü gige Park sü d lich des Sch loss W in n en den ist m it s B a u m b e s t a n d fü r d as gesam te Klin iku m von großer fre

Bed eu tu n g. D er vorgesch lagen e En tw u rf p latziert sich kom p akter solitärer B a u kö r p e r zwisch en dem W egen etz d e d er Rin gstraße So b leib t d ie M itte des Parks frei un d d as G fü r fußläufige Besu cher gut wah rn eh mb ar in Ersch e resp ektvoller Ab stand zu m h istorisch en Sch loss, ein e an Geb äud ehöh e sow ie d er Erh alt d er w ertvollen Bäu m e n Grundstücks unterstützen die Einfügung des N eubaus in die U

Während die fußläufige Anbindung des Haupteingangs über d W esten erfolgt, so s i n d d ie An lieferu n g u nd d er N eben K r a n k e n w a g e n t r a n s p o rt e getren n t d avon im Sü den gep können von Norden kommend über eine Vorfahrt direkt am ü Hau p tein gan g h alten .

Pflegegeschosse

Holzskelettbauweise

Sockelgeschoss

Massivbauweise

Taxi
PORTAFOLIO DE ARQUITECTURA 2024
06. CONCEPTO ESTRUCTURAL

m it seinem alten r freiräu m lich er sich d aher als tz d es Parks un d d as Geb äud e tritt rsch einu n g. Ein n e an gem essene m e n örd lich d es die Um gebung.

ber den Park von eben ein gan g fü r n gep lan t Taxis am überdeckten

Pflegegeschosse

Holzskelettbauweise

Sockelgeschoss Massivbauweise

06. FACHADA PRINCIPAL

P. 15
YOJHANTH DAVID GONZALEZ CASTELLANOS
PORTAFOLIO DE ARQUITECTURA 2024
07. PLANTA GENERAL

Integración con el contexto

La clínica se abre al área del parque urbano del complejo de salud existente, logrando una perfecta integración entre el interior y el exterior. En el interior, se refleja la exuberante vegetación del entorno, creando una sensación de armonía y conexión con la naturaleza. Las habitaciones están estratégicamente ubicadas para ofrecer vistas panorámicas de los jardines, permitiendo a los pacientes disfrutar de un entorno tranquilo y apacible durante su recuperación.

La seguridad de los pacientes es de suma importancia, por lo que se han tomado medidas adecuadas para garantizar su bienestar. Además, el segundo piso sirve como refugio para los pasillos exteriores del primer piso, ofreciendo protección adicional en caso de mal tiempo o condiciones climáticas adversas.

Con el objetivo de promover un estilo de vida saludable y sostenible, se ha habilitado un amplio estacionamiento para bicicletas que fomenta el uso de transporte alternativo y reduce la contaminación ambiental. En resumen, esta clínica no solo ofrece atención médica de alta calidad, sino que también crea un entorno acogedor y estimulante que contribuye al bienestar integral de los pacientes.

P. 17 YOJHANTH DAVID GONZALEZ CASTELLANOS

Clinica Ortenau Achern

Estado : Concursos

Jahr : 2022

Standort : Achern,Baden-Württemberg, Deutschland

Premios : Mención Wettberwe Aktuell

Publikationen :HSP, hoppe-sommer-planung.de

Firma :HSP HOPPE SOMMER PLANUNG

El concepto de las áreas exteriores se basa en tipologías de espacios libres graduales perceptibles en el espacio.

La construcción de la nueva clínica para el Hospital Achern surge de la fase actual de remodelación del panorama hospitalario del distrito de Ortenau, en relación con los cambios en toda la región del Alto Rin, y establece un claro acento para el distrito de Ortenau en la competencia con los distritos vecinos.

Las calles existentes ya están cargadas con el tráfico de acceso para la escuela y la vivienda. Por lo tanto, la conexión para el nuevo hospital será establecida a través de una calle planificada desde el lado opuesto de la propiedad.

PORTAFOLIO DE ARQUITECTURA 2024
08. MAQUETA
P. 19
YOJHANTH DAVID GONZALEZ CASTELLANOS
PORTAFOLIO DE ARQUITECTURA 2024
09. STADTPLAN 10.1OG

Con la construcción de la calle planificada y el establecimiento del nuevo hospital, surgen nuevas influencias significativas para el tráfico peatonal y ciclista, en parte también como resultado de las conexiones con el transporte público. En general, existe el deseo de conectar con la estación de tren, así como con la zona residencial adyacente al sureste y las relaciones viales existentes hacia el centro del pueblo. Esto conduce a una permeabilidad natural del terreno en dirección longitudinal.

Por otro lado, las pistas de tenis en el lado suroeste de la propiedad ofrecen poca difusión transversal, pero sirven como respaldo para el tráfico relacionado con la utilización, incluido el de pacientes en reposo y carga de mercancías. En contraste, el área al aire libre adyacente al comedor escolar ofrece un gran potencial para una variedad de usos similares a un parque en relación con el hospital, la escuela, el comedor y la vivienda.

Integración con el contexto

El concepto de las áreas exteriores se basa en tipologías de espacios libres graduales perceptibles en el espacio: desde áreas verdes de uso público hasta espacios al aire libre de uso privado. Estructuras de espacios libres naturales y también lineales caracterizan el diseño. El plan incluye un amplio parque entre el gimnasio y el hospital, que es utilizado de forma colaborativa por los diferentes usuarios. Asimismo, esta área puede funcionar como espacio de retención para el agua de lluvia. El “salón verde” crea un centro para la interacción, comunicación y estancia. Las áreas verdes proporcionan un lugar para el descanso y el intercambio entre sí con vistas a la Selva Negra.

P. 21 YOJHANTH DAVID GONZALEZ CASTELLANOS

Las paredes internas no portantes están diseñadas como estructuras de montantes de doble revestimiento, que cumplen fácilmente con todos los requisitos esenciales de aislamiento acústico, protección contra incendios y física de la construcción.

PORTAFOLIO DE ARQUITECTURA 2024
11. CORTE POR FACHADA
FACHADA PRINCIPAL
12.

Las fachadas del edificio funcional y de atención se proponen con barandillas uniformes hechas de revestimientos prefabricados de ladrillo. El uso de elementos prefabricados de barandillas permite una construcción duradera, atractiva y prácticamente libre de mantenimiento, que no solo se puede construir rápidamente, sino que también es desmontable gracias a la división en segmentos según ejes, lo que la hace abierta a ajustes constructivos. Se prevé un fuerte aislamiento térmico como aislamiento central en el espacio entre la construcción portante y el núcleo.

P. 23 YOJHANTH DAVID GONZALEZ CASTELLANOS
PORTAFOLIO DE ARQUITECTURA 2024
13. RENDER FACHADA

Clinica Universitaria de Tübingen

Estado : Competencia, 2.do Puesto

Año : 2022

Lugar : Tübingen, Baden Würtemberg

Premios : Vermögen und Bau Baden-Württemberg, Amt Tübingen

2022 Wettbewerb, 2 Puesto

Publicaciones :Competitiononline.com/ WA Wettbewerbe aktuell

Empresa :HWP Planungsgesellschaft mbH

Betriebsorganisation & Beratung im Gesundheitswesen Medizin- & Labortechnik

Al desarrollar el concepto para un nuevo proyecto arquitectónico, se priorizó la creación de un diseño compacto con una destacada eficiencia energética y climática. Se buscó desarrollar un proyecto que no solo cumpliera con altos estándares técnicos, sino que también integrara eficientemente todas las conexiones con la clínica existente. La necesidad de implementar el proyecto en dos fases fue un factor decisivo en la planificación.

Además, se tuvo en cuenta la sensibilidad hacia el paisaje y la topografía circundante. Se buscó crear remates y miradores contemplativos que se armonicen con el entorno natural. El diseño fue concebido para ser sensible al tiempo y permitir a los usuarios disfrutar de experiencias cambiantes a lo largo del día y las estaciones.

P. 25 YOJHANTH DAVID GONZALEZ CASTELLANOS
PORTAFOLIO DE ARQUITECTURA 2024
13. RENDER 1 NIVEL
P. 27 YOJHANTH DAVID GONZALEZ CASTELLANOS
14. 3D IMPLANTACIÓN

Concepto

El paisaje y la planificación urbana desempeñaron un papel fundamental en la formulación del diseño y afectaron la disposición de los espacios, así como la creación de una atmósfera que fomentara la conexión con la naturaleza. La arquitectura no se consideró solo como un elemento independiente, sino como parte integral de un entorno más amplio, donde cada detalle fue cuidadosamente diseñado para complementar y enriquecer la experiencia de los residentes y visitantes.

PORTAFOLIO DE ARQUITECTURA 2024
15. PLANTAS Y CONEXIONES

“Nueva Clínica Médica NMK” en el campus del Hospital Universitario de Tübingen, con laboratorio de cateterismo cardíaco, ecografía y diagnóstico funcional cardiológico, endoscopia, medicina de laboratorio, radiología, cuidados generales, CMI, áreas de suministro y eliminación

P. 29
DAVID GONZALEZ CASTELLANOS
YOJHANTH
17. GESAMTPLAN 18. SCHNITT
Perspectiva Axonométrica 1 1 94 55 Perspectiva Axonométrica 2 132 46 Perspectiva Axonométrica 3 1 161 82 PORTAFOLIO DE ARQUITECTURA 2024
FOTO EN HANN & TASTE 17. ESPACIO ANTES DE LA RENOVACION 18. RENDER
16.
“La arquitectura es un acto de colaboración entre arte, ingeniería, economía y ecología.”

RENZO PIANO

HANN &TASTE

Estado : Completado

Año : 2023

Lugar : Barcelona, Spain

Premios : Nominado a mejor Café en los Coffee Awards Barcelona 2023.

Publicaciones : hanntaste.com

Empresa : GONZALEZ & DUFFNER

En el corazón del pintoresco barrio residencial de Sant Gervasi en Barcelona, se presentó una oportunidad única de transformación. Lo que alguna vez fue un antiguo local, conocido por su pasado como un pequeño bar de copas y tragaperras en pesimas condiciones, se convirtió en un lienzo en blanco para nuestro equipo. Decidimos aceptar este desafío y convertirlo en algo nuevo y emocionante: Hann & Taste.

P. 31 YOJHANTH DAVID GONZALEZ CASTELLANOS
PORTAFOLIO DE ARQUITECTURA 2024
P. 33 YOJHANTH DAVID
CASTELLANOS
GONZALEZ
PORTAFOLIO DE ARQUITECTURA 2024
P. 35
YOJHANTH DAVID GONZALEZ CASTELLANOS

El Proyecto

Desde el principio, nuestro enfoque estaba claro: queríamos deshacernos de la imagen de un antiguo y oscuro bar y crear un espacio que fuera luminoso, limpio y acogedor para nuestros clientes. Con un presupuesto limitado pero una gran dosis de creatividad y determinación, nos pusimos manos a la obra.

El proceso de renovación involucró una serie de tareas desafiantes. Desde desmontar paredes hasta pulir y limpiar cada rincón del local, cada paso nos acercaba más a nuestra visión. Uno de los tesoros que encontramos durante este proceso fue una hermosa barra de madera, que decidimos conservar y restaurar como elemento central de nuestro nuevo espacio.

RG 0,37 4,88 0,37 3,62 0,10 0,77 0,10 1,53 0,20 0,86 0,62 2,00 1,67 0,37 1,35 0,21 0,80 0,10 1,05 1,25 0,20 10,70 12,00 0,20 0,25 0,80 0,68 1,50 1,15 1,84 1,06 1,42 2,15 0,89 7,36 0,20 S-01 0,72 0,43 0,69 0,30 0,10 2,71 1,11 0,20 0,58 0,73 0,50 0,62 0,10 Passeig sant Gervassi 81 Passeig sant Gervassi 81 Barcelona Spain 08022 Maßstab Aktuellen Arq David Gonzalez C PORTAFOLIO DE ARQUITECTURA 2024

Trabajamos incansablemente junto con amigos especializados en electricidad y otras áreas para reemplazar sistemas obsoletos y garantizar la seguridad del lugar. Hubo momentos de frustración y desafíos inesperados, pero nuestro espíritu de equipo y determinación nunca flaquearon.

Finalmente, después de meses de arduo trabajo, Hann & Taste abrió sus puertas al público. Fue un momento de orgullo y alegría ver cómo nuestro proyecto de autogestión y autoconstrucción cobraba vida. Hann & Taste se convirtió en algo más que un lugar para disfrutar de buena comida o bebida; se convirtió en un símbolo de aprendizaje, colaboración y pasión para crear algo nuevo en un lugar antiguo en Barcelona.

1,53 0,10 2,68 1,80 0,10 1,18 2,89 0,20 5,80 S-01 Datum: 01 12 22 Aktuellen Zustand Gonzalez C P. 37 YOJHANTH DAVID GONZALEZ CASTELLANOS
10.EL EQUIPO

Portfolio 2024

N.04 PORTAFOLIO DE ARQUITECTURA

Turn static files into dynamic content formats.

Create a flipbook
Issuu converts static files into: digital portfolios, online yearbooks, online catalogs, digital photo albums and more. Sign up and create your flipbook.