Portfolio Deutsch

Page 1

PORTFOLIO

AusgewählteWerke,imZeitraum von2019bis2024

ARCHITEKTUR PORTFOLIO 2024
ARCHITEKTURPORTFOLIO 2024

ZIG ZAG PARK

KLINIKUM SCHLOSS WINNENDEN

ORTENAU KLINIKUM ACHERN

UNIVERSITÄTS KLINIKUM TÜBINGEN

HANN & TASTE

P.3 YOJHANTH DAVID GONZALEZ CASTELLANOS
Inhalt
BLOCKBAUHOLZULM P.08 P.12 P.18 P.24 P.30 P.38 2019 Bau abgeschlossen 2020 wettbewerb 1 preis 2021 wettbewerbsbeitrag 2022 wettbewerb 2 preis 2023 2024 Innenrenovierung Praktikum

Hallo,

Ichbin David González - Architekturabsolvent der Universität Piloto de Bogotá(Kolumbien) mit einem MBA der Universidad Politécnica de Barcelona Ich verfüge über berufliche Erfahrung im Design von kulturellen, industriellen und medizinischen Gebäuden Darüber hinaus interessiere ich mich besonders für die Wetbewerbe, sowohl im Design als auch in der Ausführungsplanung, und bilde mich kontinuierlich indiesem Bereich weiter.

Architecture is one of the best waysof promptingpeopletothinkabouthowthe worldcouldbeother than what itis.
ARCHITEKTURPORTFOLIO 2024
TOMWISCOMBE
P.5
YOJHANTH DAVID GONZALEZ CASTELLANOS
ARCHITEKTURPORTFOLIO 2024
03.CAZUCA, BOGOTA, COLOMBIA

Bogotá,Colombia

MeinepersönlicheEinflussnahmewird durchdieErfahrungdesAufwachsensinBogotá reflektiert,dievonderSelbstverwaltungundSelbstkonstruktiongeprägtist,dievielekolumbianischeGemeinschaftencharakterisieren.IndenabgelegenerenGegendenkönnen Viertelbeobachtet werden,indenenjedesHauseineGeschichtevonAnstrengung und Kreativitäterzählt,indenendieBewohnerihreHäusermit ihreneigenenHändenbauen, sichandieBedürfnisseunddie verfügbaren Ressourcenanpassen.

DieseViertel,oft als“beliebte Viertel”oder“informelleViertel”bezeichnet,sindeinlebendigesZeugnisfürdieFähigkeitderKolumbianer,Widrigkeitenzuüberwinden undGemeinschaftinmitten vonSchwierigkeitenzuschaffen.DieArchitekturandiesenOrtenmag aufdenerstenBlickchaotischerscheinen,istjedochvoneinemGeistderErfindungsgabe unddesWiderstandsdurchdrungen,indemjederRaummaximalgenutzt wirdundjede architektonische LösungdenspezifischenBedürfnissenderBewohnerangepasstist.

DieArchitektur isteinlebendiges System, keinObjekt.
Jhon F.C.Turner
P.7 YOJHANTH DAVID GONZALEZ CASTELLANOS

ZIGZAGPARK

Projektstatus :Completed Jahr :2018

Standort :Bogotá,Kolumbien

Preise :ArchitekturbiennaleBogotá,2019 AzuresocialgoodsMerit,2020

Publikationen :Azuremagazine,archdaily

Firma:Whiteknee

Die VorstellungskraftderKinderisteinHeiligtum derEmotionen, Ideenund selbstlosenEmpfindungen. InderTheoriekönnte esdas besteÜbungsfeld für architektonischesDesignsein. Leideristdie Unterstützung in denärmerenundverwundbareren BevölkerungenKolumbiensbegrenzt,und dieKinderbefinden sichinRisikosituationen, dieihren europäischenAltersgenossenunbekannt sind.

Gottdiener sagte:“SozialeBeziehungen,die dasLebenverbessern, müsseninmaterieller Formdurchdie sozialeProduktion desRaums zum Ausdruckkommen.”Eigenschaftenwiediesein denvon staatlichen Stellenvernachlässigtenund ungeschützten BereichenkönnendieFähigkeitendieserzukünftigen ErwachsenenundFachleute mindernundsieineinerzunehmendglobalen Weltbenachteiligen. DiefolgendeGeschichtehandelt vondiesenKindern.

ARCHITEKTURPORTFOLIO 2024
1. FOTO AUFGENOMMEN NACH ABSCHLUSS DES PROJEKTS
P.9
CASTELLANOS
YOJHANTH DAVID GONZALEZ

01.DESIGNKONZEPT-SCHEMA 04.DESIGN3D

ARCHITEKTURPORTFOLIO 2024
03.GESAMTPLAN 02.RUNDGANGSDIAGRAMM

ZIGZAGPark

ImJahr2017,alsich nacheinem Raumsuchte,um eineSkulptur anzupassen,dieich mit CNC-Schnittentwickelte, angetrieben vonmeinemWunsch, meine Architekturabschlussarbeit mit innovativen Designmethodenabzuschließen,wieder Verwendung parametrischerSoftwarezurDefinition von StatikenundMontagemethoden, schlugmirmein Thesis-DirektoreinenOrt vor.EshandeltesichumeinenBereich,indemAbfällevoreinemSchulgarten ineinergefährdetenZoneabgelagertwurden.

DieserOrt befandsichamStadtrandvonBogotá,und dieRealitätvonKindern,diezwischenAbfällenspielten,führte michdazu,überdieBedeutung zureflektieren, meine kreative Energieeinembedeutungsvolleren Zweck zuwidmen. Gemeinsammit SebastianBastidas,einem Filmstudenten, und meinen Kollegen Alejandro Bello,IvánÁvilaund JuanNicolásRivera,organisiertenwireinenDokumentarfilm,indemdieKinderihreIdeenundTräume für einen Traumparkzum Ausdruck brachten. DieserProzessveränderte meinePerspektiveradikal,undmeinSkulpturprojekttratindenHintergrund.

WirsetztenunsdasZiel,diese scheinbarminimalenTräume,wie einengrünen Rasenoder eineTreppemit Geländer,zuverwirklichen. Obwohl sieeinfach erschienen,warensiefür die Kindergreifbare Träume.Mit Entschlossenheit erhielten wir dieGenehmigungenfürdenParkbau.Mit demberührenden Dokumentarfilm konntenwirdasHerzeinigerPolitikererreichen,dieunsmit Unternehmern wiedem Direktor vonCemexoderLeGrandinVerbindung brachten,bekannte Unternehmen in Kolumbien,die unsfinanziell unterstützten,umdieerstenErdarbeitendurchzuführen.

Unter der Anleitung meinesThesis-Direktors, Aaron PaulBrakke,CEOvon Whitknee, gelang esuns,denParkzubauen und einen vergessenenRaum inein Heiligtum für dieVorstellungskraftund dasGlückderKinderzuverwandeln.DiesesProjekterfüllte nicht nur seinenarchitektonischenZweck, sondernbetonte auchdieFähigkeitvonKreativitätund Solidarität,bedeutendeVeränderungenindenammeistenbedürftigen Gemeinschaftenzu bewirken.

P. 11 YOJHANTH DAVID GONZALEZ CASTELLANOS

klinikumSchloss Winnenden

Projektstatus :ImBau

Jahr :2021

Standort :Winnenden,Baden-Württemberg,Deutschland

Preise :ZentrumfürPsychiatrieKlinikumSchloßWinnenden Wettbewerb,1.Preis

Publikationen :Competitiononline.com/WAWettbewerbeaktuell

Firma:HSPHOPPESOMMERPLANUNG

NeubauoffenerSektorstationenderKlinikfür Allgemeinpsychiatrie und Psychotherapiefür dasKlinikum SchlossWinnenden

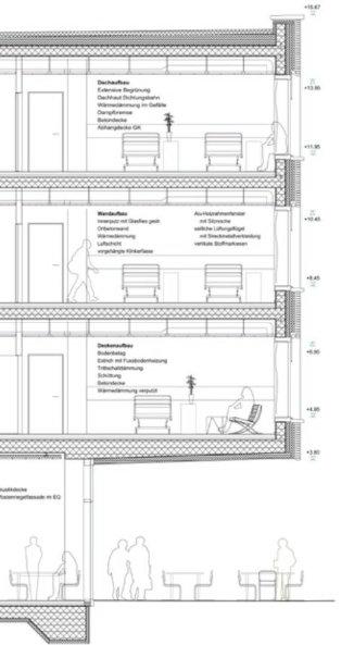
Einökologischesund kompaktesGebäude,hauptsächlich ausHolz gebaut. SeitseinerKonzeption istdiesesProjektein Beispielfür InnovationundEngagementfürdieUmwelt.

DasDesigndieserStrukturzeichnetsichdurchseineEnergieeffizienz und seinenFokusaufNachhaltigkeit aus. Durchdie Verwendung vonHolzalsHauptmaterialwird einreduzierterökologischerFußabdruckerzielt,währendgleichzeitigeinewarme undeinladende At-

mosphärefürdieBewohnergeschaffenwird.

EinherausragendesMerkmal diesesGebäudessind die zahlreichen Wohnbereiche,die sorgfältig gestaltet wurden, um eineVielzahl vonUmgebungenzubieten,diedieBedürfnisseundVorliebenaller befriedigen. VongroßenSalonsbishin zuintimen Eckenlädt jeder RaumzurEntspannungundKontemplation ein.

ARCHITEKTURPORTFOLIO 2024

05.MODELL

P.13
YOJHANTH DAVID GONZALEZ CASTELLANOS

Konzept

Darüber hinauswurde besonderesAugenmerk auf die Freiflächen gelegt,dienachNordenundzumInnenhof ausgerichtetsindund einenweiten Blick und einedirekteVerbindungzurumgebenden Natur ermöglichen. Eswird jedoch anerkannt, dassdieseBereiche nochgroßzügigersein könnten,und esistgeplant,sieinzukünftigenEntwicklungsphasenzuerweitern.

Einwesentlicher AspektdesDesignsistdieVerbindungund Organisation derTagesklinikund der psychiatrischen Ambulanz.Diese Bereichesind nahtlos in dasGebäudeintegriert, mit klar definiertenZugängenundeiner Aufteilung,die denKomfortund diePrivatsphärederPatientenfördert.

AnderAußenseitepräsentiertdieKlinikeinekompakteStruktur,die harmonischindieumgebendestädtischeLandschaftintegriert ist. DochihrewahreSchönheitliegt imInneren,wodieRäumegeschickt angeordnet sind,um die Funktionalität zumaximieren,ohne den Komfortzubeeinträchtigen.

DieHolzstruktur aufder OberseitedesGebäudesverleiht demDesigneine elegante Note und Nachhaltigkeit, während sieden Eintritt vonnatürlichemLichtermöglichtundeineruhigeundfriedliche Atmosphäre in den Innenräumen schafft. Diegroßzügigen Fenster undoffenenTerrassenverbindendieInnenräumemitderAußenwelt undladenPatientenundPersonalein,dieSchönheitderstädtischen Landschaftzugenießen,währendsiesicherholenoderarbeiten.

Pflegegeschosse

Holzskelettbauweise

Sockelgeschoss Massivbauweise

ARCHITEKTURPORTFOLIO 2024
06.STRUKTURELLEZERLEGUNG

Pflegegeschosse

Holzskelettbauweise

Sockelgeschoss

Massivbauweise

06.HAUPTFASSADE

P.15
YOJHANTH DAVID GONZALEZ CASTELLANOS
ARCHITEKTURPORTFOLIO 2024
07.STADTPLAN

Integration

DieKliniköffnet sichzumstädtischenParkgeländedesvorhandenen Gesundheitskomplexesund verbindet dabeidasInnereperfekt mit demÄußeren.ImInnerenspiegelt sichdieüppige Vegetation der Umgebungwider und schaffteinGefühlvonHarmonieundVerbundenheit mit derNatur.Die Zimmersindstrategisch platziert, um Panoramablickeaufdie Gärtenzubieten, wasesdenPatienten ermöglicht, eineruhige und friedliche Umgebungwährend ihrer Genesungzugenießen.

DieSicherheitderPatientenhat oberstePriorität, daherwurden angemessene Maßnahmenergriffen, um ihr Wohlergehen zu gewährleisten. Darüber hinaus dient daszweite StockwerkalsZu-

fluchtsort für dieäußerenGängedeserstenStockwerksund bietet zusätzlichenSchutz bei schlechtemWetteroder widrigen Witterungsbedingungen.

Umeinengesundenundnachhaltigen Lebensstilzufördern,wurde eingroßzügigerFahrradparkplatzeingerichtet, deralternativeTransportmöglichkeiten fördert unddieUmweltbelastung reduziert. ZusammenfassendbietetdieseKliniknichtnurhochwertige medizinischeVersorgung,sondernschafftaucheineeinladendeundanregendeUmgebung,diezumganzheitlichenWohlbefinden derPatientenbeiträgt.

P.17 YOJHANTH DAVID GONZALEZ CASTELLANOS

KlinikumOrtenau Achern

Projektstatus :Wettbewerbvetrag

Jahr :2022

Standort :Achern,Baden-Württemberg,Deutschland

Preise :

Publikationen :hoppe-sommer-planung.de

Firma:HSPHOPPESOMMERPLANUNG

DasKonzeptderAußenanlagenbasiertaufräumlichwahrnehmbarabgestuften Freiraumtypologien

DerKlinikneubaufür dasKlinikum Achernresultiert ausdergegenwärtigen Umbauphase derKliniklandschaft desOrtenaukreisesim Zusammenhangmit Veränderungenim gesamtenOberrheinbereichundsetztfürden

OrtenaukreisgeradeimWettbewerbzubenachbartenLandkreiseneinen deutlichen Akzent.

BestehendeStraßensindbereitsmit demErschließungsverkehrfürdie SchuleunddieWohnbebauungbelastet.DieAnbindung fürdasneueKrankenhauswird daherdurcheinePlanstraßevondergegenüberliegenden Grundstücksseiteneuhergestellt.

ARCHITEKTURPORTFOLIO 2024
08.MODELL
P.19
YOJHANTH DAVID GONZALEZ CASTELLANOS
ARCHITEKTURPORTFOLIO 2024 09.STADTPLAN
10.1OG

Mit demBauderPlanstraßeundderAnsiedlung desKlinikneubausergeben sichneuewesentlicheEinflüssefür denFuß-und Radverkehr,teilweise auchresultierend ausden Anbindungen andenÖPNV.Insgesamt entsteht derWunschnacheiner Anbindung andenBahnhof,aber auchandieimSüdostenangrenzendeWohnbebauungund bestehendeWegebeziehungen indenOrtskern.Diesführt zueinernatürlichenDurchwegungdesGrundstücksin Längsrichtung.

DieTennisanlageaufderSüdwestseitedesGrundstücksbietet hingegen wenig Querdiffusion,bildet aberdenRückenfür dennutzungsbezogenenLiegendkranken

–undWarenverkehr.Gegenüberliegendbietet dieandieMensaangrenzendeFreiflächeein schönes

Potentialfür dievielfältige parkartige Bespielung im Zusammenhang vonKrankenhaus, Schule,Mensaund Wohnen

Freianlagen

DasKonzeptder Außenanlagen basiertaufräumlichwahrnehmbar abgestuftenFreiraumtypologien: Vonöffentlich nutzbaremGrünraum bishinzuprivatnutzbarenFreiräumen.NaturnaheundauchgeradlinigeFreiraumstrukturen prägen denEntwurf.

DiePlanungumfassteinengroßzügigenParkzwischenGymnasium undKlinikum,dervondenunterschiedlichenNutzerngemeinschaftlichgenutztwird.Ebenso kanndieseFlächealsRetentionsraum für anfallendes Regenwasser dienen.Das,,grüneWohnzimmer‘‘ schaffteineMittefürInteraktion, KommunikationundAufenthalt.Die Grünflächenbilden einenOrtder ErholungunddesAustauschsuntereinandermit Blickauf denSchwarzwald.

P.21 YOJHANTH DAVID GONZALEZ CASTELLANOS

Dieinneren,nichttragenden Wändesind alsdoppelt beplanktes Ständerwerkgeplant,dasalle wesentlichenAnforderungen anSchallschutz,Brandschutz undBauphysikproblemloserfüllt.

ARCHITEKTURPORTFOLIO 2024
11.FASSADENSCHNITT 12.HAUPTFASSADE

DieFassadendesFunktionsbausund derPflegewerden miteinheitlichenBrüstungenausvorgefertigten Ziegelverblendernvorgeschlagen. DieVerwendung elementierter Brüstungselemente ermöglicht einedauerhafte,dabei attraktiveundnahezu wartungsfreieKonstruktion,dienichtnurraschhergestellt, sonderndurchdieachsbezogeneTeilunginSegmenten abnehmbarist und sichso offen darstellt für bauliche Anpassungen.ImZwischenraum zurtragenden Rohbaukonstruktion ist einestarkeWärmedämmungals Kerndämmung vorgesehen.

P.23 YOJHANTH DAVID GONZALEZ CASTELLANOS
ARCHITEKTURPORTFOLIO 2024
13. RENDER FASSADE

Universitätsklinikum TübingenNeubau

Projektstatus : Wettbewerb,2.Preis

Jahr :2022

Standort :Tübingen,BadeWürtemberg

Preise :VermögenundBauBaden-Württemberg,AmtTübingen 2022Wettbewerb,2Preis

Publikationen :Competitiononline.com/WAWettbewerbeaktuell

Firma :HWPPlanungsgesellschaftmbH

Betriebsorganisation&BeratungimGesundheitswesen

Medizin-&Labortechnik

BeiderEntwicklungdesKonzeptsfür einneuesarchitektonischesProjekt wurdedieSchaffungeineskompakten Designsmit herausragender Energie-undKlimaeffizienzpriorisiert.Eswurdeangestrebt,einProjektzuentwickeln,dasnicht nurhohetechnischeStandardserfüllt, sondernauchalleVerbindungenmit derbestehendenKlinikeffizientintegriert. DieNotwendigkeit, dasProjektinzweiPhasenumzusetzen,war einentscheidenderFaktorinderPlanung.

Darüberhinauswurde dieSensibilitätfürdieLandschaftunddieumgebendeTopografie berücksichtigt.Eswurdeangestrebt,Abschlüsseund kontemplative Aussichtspunktezuschaffen,diesichmit dernatürlichen Umgebungharmonisieren.DasDesignwurdesokonzipiert, dasses zeitempfindlich istundesdenNutzernermöglicht, sichimLaufedesTagesundderJahreszeitenveränderndeErfahrungenzugenießen.

P.25 YOJHANTH DAVID GONZALEZ CASTELLANOS
ARCHITEKTURPORTFOLIO 2024
13. RENDER 1OG
P.27 YOJHANTH DAVID GONZALEZ CASTELLANOS
14. 3D STADTPLAN

konzept

DieLandschaftund die Stadtplanung spielten eine wesentliche Rollebei der Formulierung desDesigns und beeinflusstendie Anordnung derRäume sowie die Schaffungeiner Atmosphäre,die die Verbindung zurNaturförderte.DieArchitekturwurde nicht nurals eigenständiges Elementbetrachtet, sondern alsintegralerBestandteileiner umfassenderenUmgebung,in derjedes Detailsorgfältig gestaltet wurde,umdie Erfahrung derBewohnerund Besucherzuergänzenund zubereichern..

ARCHITEKTURPORTFOLIO 2024
15. GESAMTPLAN VERBINDUNG 16. GESAMTPLAN 1OG

Klinikum |Neubau‚NeueMedizinische Klinik NMK‘aufdemGeländedes

UniversitätsklinikumTübingen Schwerpunktversorgermit Herzkatheterlabor,Sonographieund kardiologischerFunktionsdiagnostik, Endoskopie,Labormedizin, Radiologie, Allgemeinpflege, IMC,Ver-und Entsorgungsbereiche

P.29 YOJHANTH DAVID GONZALEZ CASTELLANOS 17.GESAMTPLAN 18.SCHNITT
20.DerAusgangszustandderBarre PerspectivaAxonométrica(1) 1:94,55 ARCHITEKTURPORTFOLIO 2024
21. 3D
19. Pflanzen,natürlicheMaterialienundRestauration
“Architektur ist ein AktderZusammenarbeitzwischenKunst, Ingenieurwesen,Wirtschaftund Ökologie.”

22. 3D-VisualisierungdesEndzielsdesDesigns

HANN&TASTE

Projektstatus :Completed

Jahr :2023

Standort :Barcelona,Spain

Preise :NominierungalsbestesCafébeiden CoffeeAwardsBarcelona2023.

Publikationen :hanntaste.com

Firma:GONZALEZ&DUFFNER

ImHerzendesmalerischenWohnviertels SantGervasiin Barcelona bot sich eine einzigartige Transformationsmöglichkeit. Was einst ein altesLokal war, bekanntfür seineVergangenheitalsgünstige Bar,wurdezueinerleerenLeinwandfür AnneDuffner undmich.Wir beschlossen,dieseHerausforderunganzunehmenund sieinetwas Neuesund Aufregendeszuverwandeln: Hann&Taste.

P.31 YOJHANTH DAVID GONZALEZ CASTELLANOS
RENZOPIANO
ARCHITEKTURPORTFOLIO 2024
23. ElektrischeInstallation

24. KurzePausewährendderAnpassungundRenovierungdesHolzesderBarre

P.33
DAVID GONZALEZ CASTELLANOS
YOJHANTH
ARCHITEKTURPORTFOLIO 2024
25. 3D-DruckdesoffiziellenLogos.
P.35 YOJHANTH DAVID GONZALEZ CASTELLANOS
26.
Feinarbeiten

DasProjekt

UnserAnsatzwarvonAnfanganklar:Wirwollten dasBildeineralten, dunklen Barloswerden und einen Raumschaffen,derhell,sauber undeinladendfürunsereKundenist.MiteinembegrenztenBudget, abereinergroßenPortionKreativitätundEntschlossenheit,machten wirunsandieArbeit.

DerRenovierungsprozessumfassteeine Reihevon anspruchsvollen Aufgaben.VonderDemontage vonWänden biszumPolierenund Reinigen jeder Eckedes Lokalsbrachte uns jeder Schritt unserer Vision näher. Eineder Schätze, die wir während diesesProzesses fanden,wareinewunderschöne Holztheke,diewir beschlossen,als zentralesElementunseresneuen Raumszuerhalten und zurestaurieren.

27. Gesamtverteilungsplan

RG 0,37 4,88 0,37 3,62 0,10 0,77 0,10 1,53 0,20 0,86 0,62 2,00 1,67 0,37 1,35 0,21 0,80 0,10 1,05 1,25 0,20 10,70 12,00 0,200,25 0,80 0,68 1,50 1,15 1,84 1,06 1,42 2,15 0,89 7,36 0,20 S-01 0,72 0,43 0,69 0,30 0,10 2,71 1,11 0,20 0,58 0,73 0,50 0,62 0,10 ARCHITEKTURPORTFOLIO 2024

Wirarbeiteten unermüdlich zusammenmit Freunden,diesichauf Elektrizität und andereBereiche spezialisierthatten, um veraltete Systemezuersetzenund dieSicherheit desOrteszugewährleisten. EsgabMomente derFrustrationund unerwartete Herausforderungen,aberunserTeamgeistundunsereEntschlossenheitschwankten nie.

Schließlich,nachMonatenharter Arbeit, öffnete Hann&Tasteseine Türenfür dieÖffentlichkeit. EswareinMoment desStolzesund der Freudezusehen,wie unserProjektderSelbstverwaltung und Selbstkonstruktion zumLeben erwachte.Hann&Tastewurde mehrals nur ein Ort,um gutes Essenoder Getränkezugenießen;eswurde zueinemSymbolfürLernen,ZusammenarbeitundLeidenschaft,um etwasNeuesaneinemaltenOrt inBarcelonazuschaffen.

28.
0,10 2,68 1,80 0,10 1,18 2,89 0,20 5,80 -01 P.37 YOJHANTH DAVID GONZALEZ CASTELLANOS
MeinTeamundFreunde

HOLZBLOCKBAUULM

Projektstatus :Completed

Jahr :2024

Standort :Ulm,Baden-Württemberg

Beschreibung

:Entwicklungeinesökologischenundeffizienten HausesinUlm,vonderDesignphasebiszur FertigstellungdertragendenStruktur,komplettaus HolzdurcheinepatentiertetraditionelleMethode desZusammenbausvon38x38cmgroßen Holzstücken

:www.duffner-blockbau.de

Firma:DUFFNERBLOCKBAU

ÖkologischerHolzbau,entwickeltinRekordzeitundmit Oberflächenfinishs,diedenRessourcenverbrauchminimieren,mit Techniken,dietraditionelleunddigitaleAnsätzekombinieren,sowie einerTechnikeinerFamilie,diebereitsanderKonstruktionvonüber 200HäusernimSüdenDeutschlandsgearbeitethatundüberein eigenesPatentfürdieEntwicklungvonFugenverfügt,dieGebäude mitminimalenKomponententhermischisolieren.

29. ArbeitamDach N.04 ARCHITEKTURPORTFOLIO

30.erstenlagederblockbalken

Weisstanne,Eiche,LärcheundKiefer

P.39 YOJHANTH DAVID GONZALEZ CASTELLANOS
23.
31. FüreinStockwerksinddafüri.d.R7Balkenausreichend

DieErfahrung

DieErfahrungimEntwicklungsprozessjederdieserHäuseristunterschiedlich,bedingtdurch logistischeFaktorenwiedieUmgebung,dieArtdesHolzesoderdieGrößedesHauses.Dennoch istderProzessimAllgemeinensystematisiertunderfordertwenigPersonal.Zudemisterleise, ökologischundäußersteffizient.AllesbeginntnachdemZuschnitt,wenndasursprüngliche Erscheinungsbildder38x38cmgroßenBlockstämmezuerkennenist.ZudiesemZeitpunktkann jedemStammeinebestimmtePositionimHauszugewiesenwerden.

DiePlänegebenmiteinerNummerundeinemCodediegenauePositionjedesTeilsan,das erkanntundplatziertwerdenmuss,damitdieInstallationmanuellodermitHilfevonMaschinen erfolgenkann.ImlogistischenProzesswirdtäglichHolzperLKWgeliefert,undamEndedes TagesisteindeutlicherFortschrittaufderBaustellezuerkennen.

EinekritischePhaseistdieersteSchichtderBlockstämme,beiderdasHausfürseineendgültige Positionausgerichtetwird.DavonhängtderErfolgderArbeitab,dajedesElementperfekt zusammenpassenmuss,daessichumvorgefertigteTeilehandelt.MitHilfeeinesKranswerden danndieStämmeanihrerichtigePositiontransportiertundinstalliert.DieBasis,anderdiesebiszu 16MeterlangenstrukturellenTeilebefestigtwerden,kanneineBetonplatteodereinKellersein.

UmeinedauerhafteWinddichtigkeitanderOberflächederäußerenHolzwandundanden Ecküberlappungenzugewährleisten,erreichendieDuffner-Holzhäusereinelangfristige Winddichtigkeit.DiesevonunsentwickelteTechnikistpatentiert(Duffner-Patent)undwurdeüber Jahrzehntehinweggetestet.

DieInstallationsprozesseerfordernPräzision,sindabersehrintuitiv.Nachdemdieersten SchichtenvonBlockstämmenverlegtwurden,erhältmanbereitsindenerstenWocheneinen erstenEindruckvonderEinfachheitundSchönheitderBlockwand.

AuchbeiderPlanungwerdendieverschiedenenPositionenfürSteckdosen,Schalterund WandlampendurchBohrungenineinemelektrischenPlanberücksichtigt.

DieBlockstämmederDuffner-HäuserhabeneineDickevonmindestens38cmundkönnen Längenvonbiszu16mhaben,wieindiesemProjekt.DieStämmewerdenandenFugennicht profiliert,sondernbleibenmitscharfenKantenundwerdenübereinandergestapelt. NormalerweisewerdenfüreinenStock7Stämmebenötigt.

DieDachstrukturenwerdenmitderselbenPräzisionbehandelt,unddieWinkelwerden kontinuierlichkorrigiert,wobeiWerkzeugeverwendetwerden,diedieFlexibilitätdesHolzesund seineEigenschaftennutzen.

Holz

DieArbeiterfolgtestetsunterVerwendungvongesundem,heimischemHolz;ausgewähltes RohholzstammtausnachhaltigbewirtschaftetenWäldernimSchwarzwald,derSchwäbischenAlb unddemAlpenvorland.VorzugsweiseFichte,aberauchEiche,LärcheundKiefer.

N.04 ARCHITEKTURPORTFOLIO
N.04 ARCHITEKTURPORTFOLIO
23. Weisstanne,Eiche,LärcheundKiefer

Portfolio2024

N.04 ARCHITEKTURPORTFOLIO

Turn static files into dynamic content formats.

Create a flipbook
Issuu converts static files into: digital portfolios, online yearbooks, online catalogs, digital photo albums and more. Sign up and create your flipbook.