

HEIMAT PORTFOLIO
“Life is not made up of minutes, hours, days, weeks, months, or years. It’s made up of moments, and you must experience each one before you can appreciate it.”
-- Charles Morgan
Heimat (German, noun)
A place that you can call home; includes a sense of belongingness, acceptance, safety and connection to the homeland.
BDES2027 - ARCHITECTURE STUDIO 2B
ASSIGNMENT 3 - PORTFOLIO
GROUP 6B - HOUSING IN INNER SYDNEY
STUDENT: MY HAN LAM - SID: 520140822
TUTOR: ISABEL GABALDON
CONTENT
01. SITE (05)
02. PRINCIPLES (11)
03. CONCEPTUAL DEVELOPMENT (14)
04. PROPOSED DESIGN (18)
05. SECTIONAL PERSPECTIVE (30)
06. TYPOLOGIES (32)
07. GREEN BUILDING (38)
08. SUMMARY (45)
09. MODELS PHOTOGRAPHS (47)
10. PRECEDENTS (61)
11. BIBLIOGRAPHY (67)

- The location is close to different means of transport including a bus stop about a minute away and Redfern station which one can reach in five minutes.
- The safety is assured in the area with many shops, restaurants, cafes, bars, and even a police station.
- The location is close to the community service therefore, people are likely to meet help during emergencies.
- Because of the lack of exposure to wind, good natural ventilation should be provided.
- The presence of other surrounding tall buildings calls for addressing shading during project design phase.
- Its location is highly advantageous .
- An environmentally conscious site would have at least two nearby bike parking spots that could put this in a “green” zone
- This suburb has been rated as one of difficult neighbourhoods to dwell in NSW especially during morning hours and at night; hence, it presents a challenging environment for walkers, especially those who are young women or children .
- One should take extra care because of high speed vehicles that one crosses at the risk while waiting for a red light to go on and green turn off.


A HOME A PLACE TO SHARE TO BE HEARD TO BE SEEN TO BE SAFE

“In the quiet of her twilight years, She found a place that quelled her fears. Where time and solace could embrace.
The walls would listen to her tales, Of loves lost and ships that set sail. Of dreams she dreamt but never told,
The creaking floors and shadows cast, A comforting presence from the past.
Reflections of who she used to be.
With every word that left her tongue, The walls would whisper, old and young. They heard her joys, her cries, her laughter,
For in that place, she was not alone, But surrounded by the love she’d known. And through the years had come and gone, She found in it, where she belonged.”
A highly dynamic mixed-use project, Heimat , located in Redfern combines residential and commercial zones. A lively café at its center – this is neither a mere coffee shop, but rather an integral meeting place allowing daily exchange of ideas among those women who, once again, give their faces and dignity back to the community. Communication is my strong belief that can facilitate unity and make people feel united among others .
The cozy café is run with dedication to sustainability which involves making use of renewable energy sources as part of their commitment in creating an eco-friendly future. At its heart is the notion that sharing is an actionable manifestation of care which goes beyond words to benefit our immediate society and surroundings.
Acknowledging the urgency of providing a safe platform for people to freely narrate their stories and experiences is what has motivated Heimat to create a home and a refuge place that constitute a healing haven for the community. This is where I try to create an environment that carries with it the concept of ‘Heimart’, which signifies feeling at home, safety and belonging to one’s culture, tradition, and identity
02. PRINCIPLES

THERMAL CONTROL
Install louver screens as an additional layer of protection against afternoon sunlight, ensuring both privacy and comfort for residents.

CROSS VENTILATION
Install opposing openings to facilitate cross ventilation and create a comfortable living environment during summer condition.

ENVIRONMENTAL FRIENDLY MATERIALS
Using Cross-Laminated Timber (CLT) as the primary material offers several advantages.

QUALITIES OF COMMUNITY SPACE
Establishing a mixed-development featuring a café that not only creates job opportunities for residents and locals but also serves as a therapeutic space.

ZERO ENERGY BUILDING
Optimize the utilization of renewable energy by installing PV panels for electricity and implementing a rainwater harvesting system to provide a clean water for the residents.

EFFICIENT USE OF LAND
Elevate the floor to optimize land usage while ensuring the development does not exceed a height of 15 meters.

COST EFFECTIVE
Ensure fair distribution of resources among different units while maintaining accessibility and compliance.

SUNNY SPACE
Offer private terraces for each unit to maximize sunlight exposure, benefiting the mental and physical health of residents.
03. CONCEPTUAL DEVELOPMENT
The overarching idea revolves around establishing a communal space seamlessly woven into various locations , offering both visual and auditory access through different buildings.
1. As per the instruction provided, the height should not exceed 15 meters.

2. Raised the floor to make the most of the land and allow for more space for diverse development.
3. Split the building into two sections to ensure that both parts equally benefit from the project’s objective.

4. Adjusting the position to ensure that all units have an equal opportunity to receive sunlight.
5. Continuously adjust to minimize the chance of overshadowing between buildings.
6. Design each building with three levels with different typologies to further optimize the use of land.

7. Incorporate a service core to grant residents complete access to the building and to finalize the overall construction of the development.


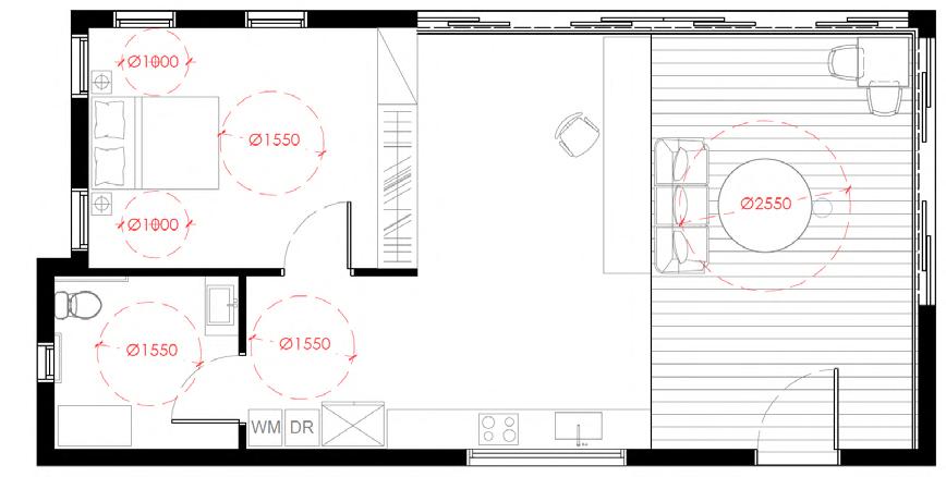
04. PROPOSED DESIGN













05. SECTIONAL PERSPECTIVE

06. TYPOLOGIES





07. GREEN BUILDING
CROSS-LAMINATED TIMBER (CLT)
time saving | reduced environmental waste | air-tightness | soundproofing
MASS TIMBER CONSTRUCTION
sustainability | reduced construction time | aesthetic and design flexibility | improved thermal performance



This building is oriented westwards so it gets a strong afternoon sun which makes the day unbearable. In view of this, louver screens were added as reinforcements in order to shield the building from the severe afternoons’ heat and as well rainfall.
RENEWABLE ENERGY
energy security and independence | economic development | cost - effectiveness

1 PV panel produces 3.96 kWh/DAY (according to Solar Choice) --->>> 181 PV PANELS produce 3.96 x 181 = 716.76 kWh/DAY
1 Person needs 15.69 kWh/DAY (according to Captain Cook Electricity) --->>> 27 PEOPLE need 15.69 x 27 = 423.63 kWh/DAY
A 14 METERS tall structure accommodating 27 RESIDENTS AND FULLY ACCESSIBLE .
181 PV PANELS generating 716.76 kWh/DAY SAVING 60% OF NON-RENEWABLE ENERGY CONSUMPTION
A COFFEE SHOP that upholds the DIGNITY OF WOMEN , provides job opportunities for locals, FOSTERS A SAFE SPACE FOR OPEN CONVERSATIONS about thoughts, feelings, and personal journeys, SUPPORTS MENTAL AND PHYSICAL WELL-BEING , and PROMOTES A SENSE OF BELONGING AND ACCEPTANCE .
All and all, I aspire for HEIMAT to truly feel like HOME for the 27 WOMEN who have chosen to reside here.
09. MODELS PHOTOGRAPHS
1:500 MASSING MODEL


1:100 PROPOSED TYPOLOGIES





1:100 PROPOSED MODEL







“Home
is where love resides, memories are created, friends always belong, and laughter never ends.” -- Unknown
10. PRECEDENTS

Habitations Saint-Michel Nord
Saia Barbarese Toupouzanov Architects
Montréal, Canada

Studio 19 Community Housing
Strachan Group Architects, Studio 19
Auckland, New Zealand



SOS Children’s Village In Djibouti
Urko Sanchez Architects
Tadjoura, Djibouti

54 Viviendas de Protección Pública en Inca, Illes Balears
Joan Josep Fortuny Giró + Alventosa Morell Arquitectes Inca, España



Arimunani School
Aulets Arquitectes + Aixopluc Marratxinet, España
11. BIBLIOGRAPHY
1. “54 Viviendas de Protección Pública en Inca, Illes Balears / Joan Josep Fortuny Giró + Alventosa Morell Arquitectes.“ ArchDaily en Español, May 6, 2023.
https://www.archdaily.cl/cl/995118/54-viviendas-de-proteccion-publica-en-inca-illes-balears-joan-josep-fortuny-giro-plus-alventosa-morellarquitectes
2. “Escuela Arimunani / Aulets Arquitectes + Aixopluc.” ArchDaily en Español, May 6, 2023. https://www.archdaily.cl/cl/995060/escuela-arimunani-aulets-arquitectes-plus-aixopluc
3. “Habitations Saint-Michel Nord / Saia Barbarese Toupouzanov Architectes.” ArchDaily, September 15, 2021. https://www.archdaily.com/968447/habitations-saint-michel-nord-saia-barbarese-toupouzanov-architectes
4. Jeff, Sykes. “How much electricity does a solar panel produce?” Published on August 7, 2023. https://www.solarchoice.net.au/learn/solar-energy/how-much-will-my-solar-panels-produce/
5. Local, Rise. “Average electricity bills in Sydney (2023 - 2024).” Published on June 26, 2023. https://www.captaincookelectrical.com.au/electrical-blog/average-electricity-bills-in-sydney/
6. “SOS Children’s Village In Djibouti / Urko Sanchez Architects.” ArchDaily, December 2, 2020. https://www.archdaily.com/773319/sos-childrens-village-in-djibouti-urko-sanchez-architects
7. “CLT by Stora Enso - Techincal Brochure.” Stora Enso. https://www.storaenso.com/-/media/documents/download-center/documents/product-brochures/wood-products/clt-by-stora-ensotechnical-brochure-en.pdf
8. “Studio 19 Community Housing / Strachan Group Architects, Studio 19.“ ArchDaily, February 16, 2014. https://www.archdaily.com/477004/studio-19-community-housing-strachan-group-architects-studio-19
9. Wikipedia. “Heimat.” Last edited on October 19 2023. https://en.wikipedia.org/wiki/Heimat#:~:text=Heimat%20(pronounced%20%5B%CB%88ha%C9%AAmat%5D),home’%20or%20’homeland’
“Home is where your story begins.”
-- Annie Danielson