Hang Yin Lee_Portfolio

Page 1


PORT

CONTENTS

Chapter I: Top-ia

MTBVU x SOM x Nova ProForma

Location: Florida/Flexible Location

Chapter II: Blooming in Human Future City in the Age of the Anthropocene

Location: Northwest, Southeast, and Southwest corners of Wabash Street and Van Buren Street

Collaborator: Yeni Guarneros

Chapter III: Memory of Loss

Multi-Institutional Vertical University: The Institute Of Anthropogenic Studies

Location: 990 North Lake Shore Drive, Chicago, IL

Collaborators: Tianjiao Wang & Theint Shwe Yeen Lin & Stephanie Genis

Chapter IV: Rift Valley

XL Sharing House

Location:

3719 W Chicago Ave, Chicago, IL

Chapter V : Conversation Mirco House

Location: 3307 S Racine St, Chicago, IL

Chapter V I: Rhapsody

Photography

Mixed Media

Hybrid Object

Poetryv

CHAPTER I

Top-ia

Concrete - Timber Structure: Concrete core + CLT Floor

Poppy is a natural resource that can be used to manufacture morphine for medical and culinary purposes. Morphine, due to its effectiveness, is also used in the production of painkillers, as well as for managing pain in cases of major trauma, surgery, labor pain during childbirth, and cancer pain. However, many pharmaceutical companies import opium from other countries, incurring various expenses, including shipping costs and taxes when importing poppy. Particularly in unexpected situations, these costs can increase.

In this high-rise building located in Florida, there is a research hospital that collaborates with educational institutions and pharmaceutical companies to provide healthcare services, training programs, and research facilities. The building also offers long-term and short-term stays for patients. All of these programs have a direct or indirect impact on each other, maximizing their functionality within this high-rise building.

Site: Florida/ Flexible

Term: Fall 2023

Projected by: Hang Yin Lee

Software: Rhino, Lumion, Photoshop, Procreate

A bold assumption. A revolutionary tall builing designed to adapt seamlessly to any location. It embodies fantasies about the future of human development.

Assuming the US needs around 12,046,547 mg morphine

Why Tall:

Vertical Farming on Ground: $ 143,000,000

Economically and socially, it was a risky proposition, but also a significant opportunity. Vertical management could also ensure the safety of the production process.

Lorem ipsum

Circle - Southern Exposure

Summer Sun Path - 86 degree at noon Starts from North of East Ends at North of West

Volume decreases from the bottom to the top. Avoid self-shading.

Maximize Surface Ares

Winter Sun Path - 38 degree at noon Starts from South of East Ends at South of West

Residential

Half
Offices
Hospital

No- Place:

What will life be like in the future? Our present was once the future of the past. So, what kind of world, attitude, or way of life do you envision for the future?

Poppy
Poppy

Warehouses/ High-rise/ Social Infraustrure/ Conservatory

Blooming in Human CHAPTER II

Mass Timber Warehouses | Hybrid - Timber Tall Building: Concrete Core + Steel Column + CLT Floor

The Green Palace project is a combination of providing physical and mental health care, social infrastructure, and more affordable housing, which located on the Northwest, Eastwest and Southwest corners of Wabash Street and Van Buren Street. There are two parts to the project: Connected warehouses and an affordable apartment tower. In the warehouses, one provides physical related programs, one provides mental-related programs with 40’ x 40’ Mass Timber Structure. Bringing greenery to the Loop is one of the concepts. On the third level of the warehouses is a conservatory that connects both sides, the greenery created its path from the top to the lower level and extends to the sidewalk.

Since the project is located in the Loop’s office and institutional area, the tower that is across the street from the warehouses, provides a music practice room, gym, restaurant, and party room for students, workers, and residents. It is a more affordable housing in which the tower provides four studios and three 2-bedroom units with basic equipment on each floor in a limited area.

Site: Northwest, Southeast, and Southwest corners of Wabash Street and Van Buren Street

Term: Spring 2024

Projected by: Yeni Guarneros & Hang Yin Lee

Role: Design Development, 3D modeling, Physical Modeling, Architectural drawing, Rendering

Software: Rhino, Enscape, Photoshop

One project spans three sites: two warehouses connectedd together and a ‘more affordable housing’ complex across the street. This represents a more reralistic vision of futurer urban infrastructure.

BUREN

W IDA B WELLS DR

E HARRISON

Pollen and Pollination:

Grant Park, one of the notable parks in downtown Chicago, not only offers green spaces for residents to relax bbut also hosts various venues for events of all sizes. We “pollinated” from Grant Park into our sites.

E BALBO DR

S COLUMBUS DR
Grant Park
Green Palace
Glulam Column
Epoxy Relief Holes
Round Hass
Bolts
CLT Beam
CLT Panel
Steel Panel
Threaded Rod
GWB Type X

Buckling Restrained Brace

Curtain Wall

Fire Caulk Joint

Attachment/ Deflection Clip

Fill Cavity

Galvanized Steel Pan
Knife Plate
Drag Strut Tie
Connected to column
Closure sealed to Curtain Wall System & Glulam Column with fire caulk
Spanning btw column

The market provides fresh food. The Assembly Hall creates a flexible space for

conservatory level is where cells fuse, hybridize, and differentiate

Multi- Institutional Vertical University/ Green Canyon

CHAPTER III

Memory of Loss

Hybrid - Timber Structure: Concrete Core + Steel Column + CLT Floor

This project is to study the issues of the Anthropocene, and imagination of the future of cities and buildings. This highrise building will replace the current 990 North Lake Shore Drive residential building. The site is surrounded by historical buildings such as 900 910 North Lake Shore by Mies Van der Rohe and 999 N Lake Shore Drive by Benjamin Marshall. The high-rise building will be a Multi-Institutional Vertical University, the Institute of Anthropogenic Studies, whose mission will be a combination of the Institute of Advanced Study (IAS) at Princeton University, an independent institution for theoretical and applied research and intellectual inquiry as well as the Salk Institute in La Jolla, California.

The concept of this building is the memory of loss and rejuvenation. This high-rise building combines the idea of nature to rejuvenate our future living environment which is the canyon with greenery which is facing the Lake. Also, the concept of “SHRINE” reminds human of the memory of loss and makes visible what this means to humans and future generations.

Site: 990 North Lake Shore Drive

Term: Summer 2022

Projected by: Tianjiao Wang & Theint Shwe Yeen Lin & Stephanie Genis & Hang Yin Lee

Role: Design Development, Facade Design, 3D modeling, Physical Modeling, Architectural drawing, Rendering, Diagram

Software: Rhino, Enscape, Illustrator

What have we lost in the past? How many things can be preservedd for over a hundredd years without changing? Memories remain forever.

Honden: Canyon

Heiden: Core

Haiden: Services/Events

Massing Slope to redirect wind coming from the lake Laying out programs with the idea of “SHRINE”

Industrial: Chicago Skyline

Industrial: Facade

Nature: Canyon

vs Nature

Concept of Japanese Shrine: Honden, Heiden, and Haiden. Sanctum, Offering, and Worship.

SENSIBLE MEMORY

RESEARCH

GROUP WORK INDIVIDUAL WORK

COLLABORATE

CORE

CONFERENCE

PASSAGE CIRCULATION FLOW SOCIAL AMENITIES ELEVATORS BREAKOUT AREA

Plate of the Shrine: How people interacy with memories when it keeps flowing?

Industrial
Nature: Lake

Mind: When memories are in your mind, they can offer you some personal time.

N Lake Shore Dr

Look Up: Memories have a way of resurfacing, if you will.

1.

Daylight penetration from the canyon on the east side and the stack ventilation design approach for the building aims at maximizing naturally ventilated spaces and maximizing distributed daylight to interal spaces.

Lake Michigan

CONCRETE CORE

2.

Mass Timber Floor Slabs: Low carbon material than concrete or steel and which can potentially reduce a structure’s overall carbon footprint and the construction’s industry carbon emisson.

STEEL COLUMNS

MASS TIMBER FLOOR

Research Lab

3.

Simplicity in Architectural design of the research labs spaces to provide a complete flexibility and adaptability for the changing furture needs of academic department and changes in technology and workspace trends.

CORE HEAT EXCHANGES

CONCRETE MATT FOUNDATION

GEOTHERMAL CONCRETE PILES

Facade Structure and Glass

Angle Increaseing to The Lake
Angle Decreaseing to The Lake
Misty & Clear All Clear Frosted & Clear Programs/ Functional
Facade System

Episodic Memories:

You may be immersed in your memories, or you might not be. Oncw you become aware of it, they transform into real life.

Rift Valley CHAPTER IV

Hybrid - Timber Structure:

Concrete Core + Steel Column + CLT Floor

Rift Valley is a residential building in Humboldt Park, which combines communal areas and programs for the residents and the neighborhood. 33.6% of people’s income is less than $25000, although the neighborhood’s median income is higher than Chicago’s median income. In this district, there are more than 50% of people do not have a higher education background. 34.7 % are from big families which might have four or more people in the same house, 16.2% from three-people families, 25.1 % are a couple or single parent with a child, and 24% are single.

In response to this research, The Rift Valley is designed for lowincome families with a shared kitchen program, small class education program, and child-focused program. It allows residents to learn, focus, and make connections through “The Rift Valley”. There are 4 different types of units for different families, and each of them has the basic requirements of a unit.

Site: 3719 W Chicago Ave, Chicago, IL

Term: Spring 2021

Projected by: Hang Yin Lee

Software: Rhino, AutoCAD, Lumion

The façade, inspired by Sauerbruch Hutton, reflects the character of the Rift Valley and integrates into the Humboldt Park neighborhood. It uses brick colors similar to surrounding buildings and incorporates transparency, creating a cohesive streetscape.

CUT:

CUT OUT the extra spaces and, create a OPENED SPACE on the second floor

PUSH: PUSH the units back, Create a STEPPED design and, Build a VERTICAL COMMUNITY

SEPARTE:

SEPARTE the unit blocks into different unit SIZES

Moving Path:

PULL:

Pull out the unit blocks’ corners, use it as BALCONIES.

Pull up the corners on the second floor OPENED AREA, to create a CONNECTION with the units.

How can architecture aid the underprivileged in improving their lives? By understanding their challenges, architects can create designs that respond to these needs.

Structure Frame

Wall Section
First Floor

Biotic Environment:

In the Rify Valley, various organisms and plants thrive in the narrow crevices, contributing to the growth and vitality of the rift.

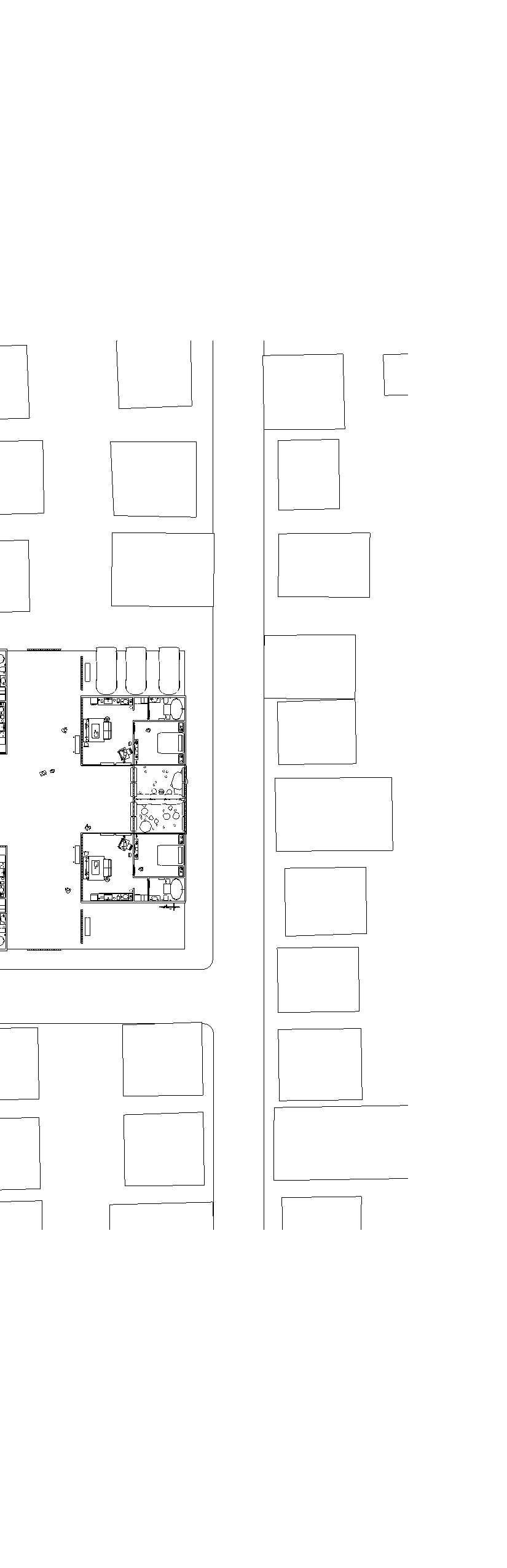
CHAPTER V

Conversation

Concrete Structure

COVID-19 has changed human habits over the past two years. People stayed at home for work and study. We started to lose the interest to go out — or simply couldn’t go out. However, this pattern of living gave us a chance to talk to ourselves.

During COVID, did you think about how your life had changed? Did you appreciate the time you were alone? Did you want to keep a social distance from people, but still stay connected with them?

These micro houses provide a balance between yourself and the community. The house is designed for one or two people, allowing you to stay focused on yourself while still remaining connected to those around you. People desire private spaces, but also seek meaningful relationships with their communities.

This living condition allows you to have a personal space where you can clear your mind, while still maintaining social interaction.

Site: 3307 S Racine St, Chicago, IL

Term: Fall 2020

Projected by: Hang Yin Lee

Software: Revit, Enscape

1/32" = 1'-0"
3/32" = 1'-0"
A Section A
3/32" = 1'-0"
B Section B

CHAPTER VI

Rhapsody

As an architecture student, gaining diverse experiences in different fields is crucial for our future. At the same time, architecture is NOT just about art, buildings, or construction. It’s not solely about creating spaces for human use. Architecture also involves philosophy, the beauty of nature, and the act of creation. How can we integrate these elements into architecture?

Fantasy to Reality:

Transforming a flat piece of land in the high mountains of Vietnam into a classroom for local children. All the IIT students encounted various challenges along the way. Together, we worked hand in hand to create a new space that belongs to Vietnam’s next generation.

Apartment Image

Apartment Image

Rendering

Rendering

Parametric Models: Rhino/ Grasshopper

Turn static files into dynamic content formats.

Create a flipbook
Issuu converts static files into: digital portfolios, online yearbooks, online catalogs, digital photo albums and more. Sign up and create your flipbook.