Skip to main content

Haneen - Senior Portfolio

Page 1

Interior Design

PORT FOLIO

Haneen Kilany

My name is Haneen Mohamed Kilany. I am an Interior design student that is currently in her third year in the American University in Dubai. I'm a student that likes to create distinctive and peaceful designs. I consider myself to be a responsible, organized, and orderly person.

About Me: My skills:

Soft Organization

DetailOriented

Timemanagement

Teamwork

Technical

AutoCAD

3DMax

Photoshop

InDesign

Revit

Slidepresentation

Achievements:

Winner of a business challenge by "INJAZ"

Associated with Al Rashid Al Saleh School

Our team own the challenge, where we had to come with a new creative business idea that would be innovative and insure a good income.

Winner of a design competition "Every Design tells a story" by Gensler in 2022.

Affiliated with American University in Dubai In the interuniversity competition, our team received an award for our design piece, 'Global Roots '

We collaborated with "BW interiors to build our model to real-life scale and it will be displayed in Gensler.

I participated again in their competition in 2023.

Top 10 in a Herman Millar office design competition.

My teammate and I were selected top 10 in a Herman Millar competition with our innovative office design. We were selected from around 100 students from different universities who also participated in the competition.

3rd Place winner of a hospitality design competition with Rotana.

Our project “Tanagum” Won 3rd place in the competition for having a unique hospitality design that was inspired by the shape of the mangrove tree in Abu Dhabi.

Participated in a competition done by iGUZZiNi. Designed a Logo that can be projected in the walls, floors, and the front of desks.

Participated in a competition with lamborghini.

I designed a car display booth that was inspired by threads, and hexagons.

Residential design

01
Farah’s House
Project 1

Renders

Farah’s House

Project 2

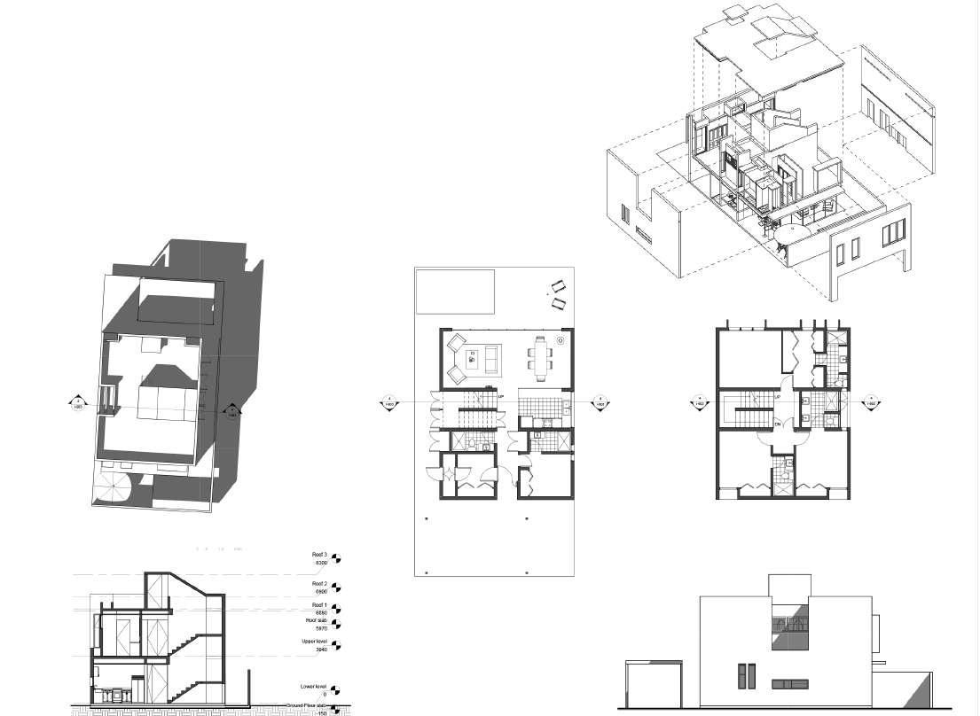
Revit Project

Project 3

3D Max Projects

Project 4

3D Max Projects

02

Commercial Design

Gazelle Gazelle

Herman Miller Competition Gazelle Gazelle
Plans

Section A

Section B

Sections

Renders

Competition
Herman Miller

kkhuyut huyut

Lamborghini Competition
Project 2

Renders

Lamborghini
Competition

Wellness and Spa

Project 3

Wellness and Spa

Plans

Wellness and Spa
Section Wellness and Spa

Hospitality Design

03

Tanaghom

Tanaghom OurStory PersonalSketches

Rotana competition Sections

Renders

Renders

Rotana competition
04
PhotoShop
Thank you Haneen Kilany

Turn static files into dynamic content formats.

Create a flipbook