Refraction Capstone Booklet

Page 1

Wellness & Nourishment Centre

INTD 8500 - Capstone Project

Capstone

Booklet

April 18, 2024

Prepared by: Hailey Olivieri

Prepared for: Prepared for Sharon Hollingsworth & Grace Rodrigues Sikich

The Current Major Issue For University Students

There are many expenses dealt to university students but as inflation keeps increasing the prices of necessities, more and more university students are finding it harder to pay for all of it. The rising costs of living have dealt students with a difficult decision that forces them to choose their priorities, and their basic needs over one another. Their fixed expenses get dealt with first, but “After tuition, rent and other expenses are settled, a student’s remaining budget for food can be scant, or even none. Food—for some university students in Canada— is an afterthought.” (Sing, 2022).

The increased costs of living have made university students choose if they should eat or not, based on whether they can afford it or not. The result of this issue leads to the food insecurity of around 30% to 40% of university students (UBC, 2021). The ripple effect of the increased prices has not only resulted in food insecurity amongst students but the rising inflation also affects their well-being and their academic success at school. “For many [students], the university is the educator, employer, landlord, restaurant, cafe and kitchen”(Sing, 2022) and when the university is marking up food prices on top of the rising inflation it increases the difficulty of being able to maintain a proper diet significantly.

The relationship between food insecurity and university life is not a positive relationship, specifically, “food insecurity was pervasive and positively associated with moderate–extremely severe psychological distress amongst these students” (Hattangadi et al., 2019). The duration of university itself is known to be a stressful part of life. Still, with the addition of not being able to achieve a basic human necessity like eating, the university becomes an ever more stressful and hostile environment for students. For the students, it’s a draining and distressing situation to be in. Not only is it stressful but it also has an impact on the physical, emotional and social aspects of their life.

2

One of the main health concerns that stems from food insecurity is that it promotes unhealthy eating as unhealthy food options are usually the cheapest form of food students can find in a grocery store, “‘We’re eating the crappy food, we’re hating ourselves for it, but it’s all we can afford right now’” (Hattangadi et al., 2019). University students are aware of the decisions that they make, and they know it’s not ideal, but because of the price of everything else, they feel like they have no other choice but to eat unhealthy food. Additionally, fast food consumption is also higher among those who experience food insecurity as fast food options are quicker, more accessible and more affordable than making meals at home. “the diet of the average university student is inadequate and reflects poor eating behaviours due to the price of healthy foods and exacerbated by easy access to fast food.” (Jackson et al, 2009).

The Major Underlying Problem For University Students

Food insecurity amongst students creates a vicious, negative cycle. The increased stress put on students creates poor eating habits which also impact their mental and physical health which can eventually impact their academic performance.

Currently, on-campus food pantries are one way students can obtain healthy food and ingredients without having to worry about costs. However, these food pantries are usually student run which typically results in smaller, underfunded spaces. At the BCIT food pantry, volunteers noted that they get no funding from BCIT and most of their food is donated by the Greater Vancouver Food Bank. With the rising inflation, more and more students are using the campus food pantry. Last year in 2022 the BCIT food pantry saw around 2,000 students and in 2023 they surpassed that number in April. The increase in students and the minimal funding resulted in a space that was getting to be too small for the amount of people coming. Furthermore, the volunteers noted that the current food pantry was not as accessible for wheelchair users compared to non-wheelchair users.

3

Those who are struggling with food insecurity may also face mental and physical health issues, as mentioned previously. One way that design can help lessen the effects of food insecurity is by integrating wellness programs with affordable food options. “Physical health and mental health are inherently connected, and as schools increasingly prioritize wellness, it becomes important to weave nutritious food options and fitness spaces throughout campus.” (Brasier, 2022). Interconnecting food with fitness creates a strong psychological bond between the two and advocates both as being equally important for a healthy lifestyle. Additionally, spaces that foster a sense of community can also promote healthy living and eating. “Maker spaces are taking on new meaning, with kitchens for guided food preparation playing a role in helping students make healthier choices and cook independently.”(Brasier, 2022). Kitchens in student amenity spaces not only encourage independent cooking but can also promote social gatherings among students to share and cook together.

Design Solutions To Combat These Prevalent Issues

One aspect of design that helps improve student wellness is the integration of nature. Natural elements such as plants and views from the outside are known to improve well-being and reduce stress. In a space that is used to promote healthy well-being, natural elements can be used to offer psychological benefits to the users of the space “Places with natural features can provide a setting for behaviours that enhance health and well-being, such as physical activity...and social [connection]” (Dean et al., 2018). In a setting as stressful as university, exposure to natural elements can lead to psychological restoration and improve moods. Biophilia can make a space more inviting, and calming, especially to those who are already feeling separated and left out. As well, it can be used to foster and create socialization hubs and communities as “A vibrant, dynamic campus culture is perhaps the most powerful way to improve mental well-being.” (Rechkemmer 2023).

4

Furthermore, by changing the way university buildings are typically structured and planned out, a new type of system and design ideology can be used to support the growth and nurturing of a student’s well-being. Typically, all services integral to student well-being and support are spaced out from one another on campus. This separation can create extra invisible barriers to students who are already struggling to find support and seeking out access to these spaces. Counseling services are isolated away from main circulation paths and are hidden from public sight. Leveraging public, high-traffic spaces to centralize counseling services will allow these services to become more accessible, recognizable and will reduce the invisible barriers students are facing. Also, unlike the typical separation of campus resources, “adding dining options and additional spaces for prayer and meditation serves students holistically” (Rechkemmer 2023). By combining and centralizing mental health services with other amenities such as physical health activities and program spaces, a building can further be used by all students and can create social connections and remove segregation between students. “Locating food pantries and other services in a convenient location can help address disparities among students while combating the underlying issues that contribute to mental health decline.” (Rechkemmer 2023).

5

Survey Results.

This survey was conducted by myself and had a survey pool of 50 people. People who were in university or who had just graduated were the target demographic.

6
7
8
9

Preliminary Adjacency Matrix

*This adjacency matrix reflects the process used to achieve the final furniture plan, and the order and layout of the adjacency matrix may not reflect the final space plan.*

10

Preliminary Bubble Diagrams

*These bubbles reflect the process towards the final furniture plans, some room spaces might be missing from these plans and the order of the bubbles might not reflect final layout and space planning*

11 Legend Major Circulation Minor Circulation Staff Circulation

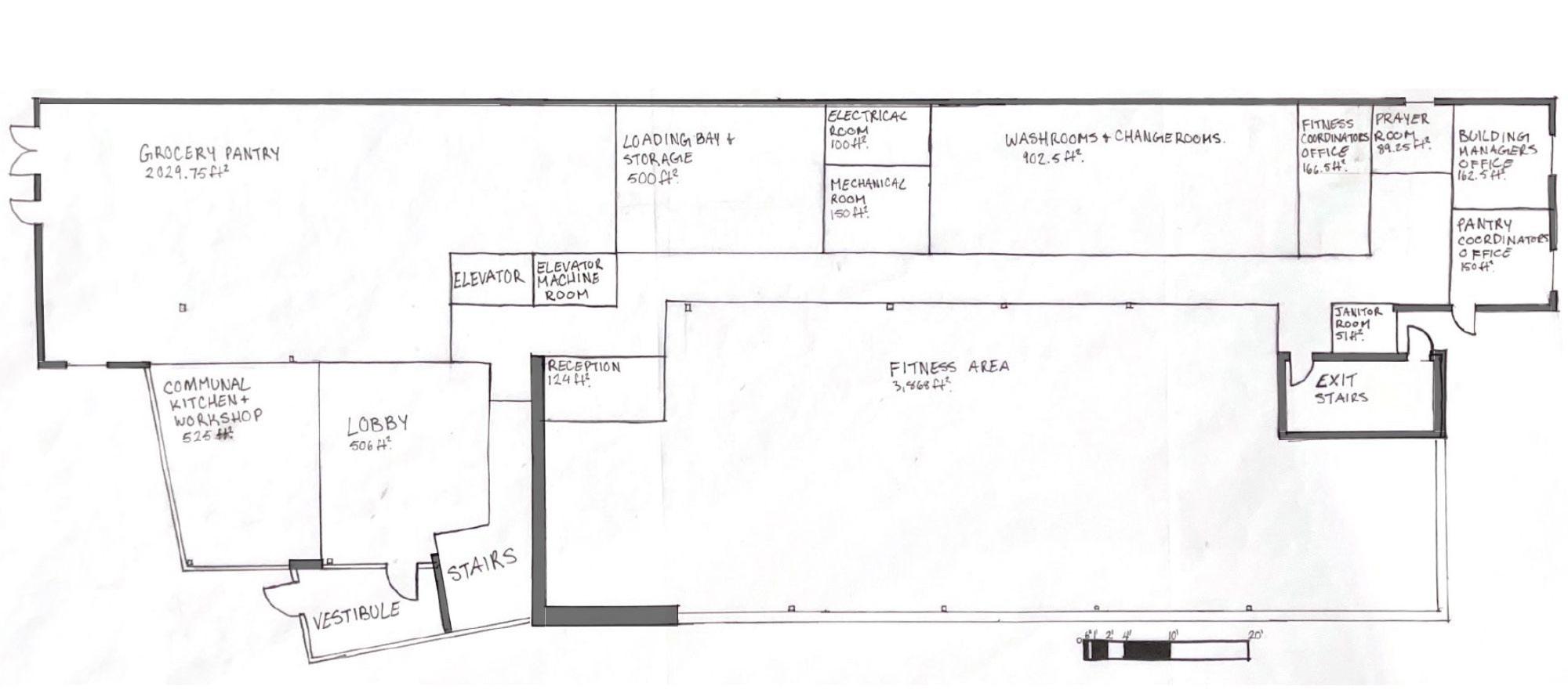
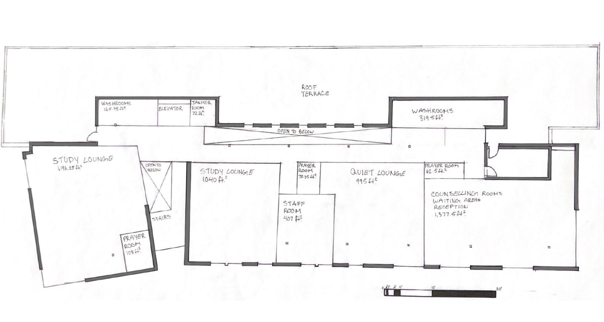
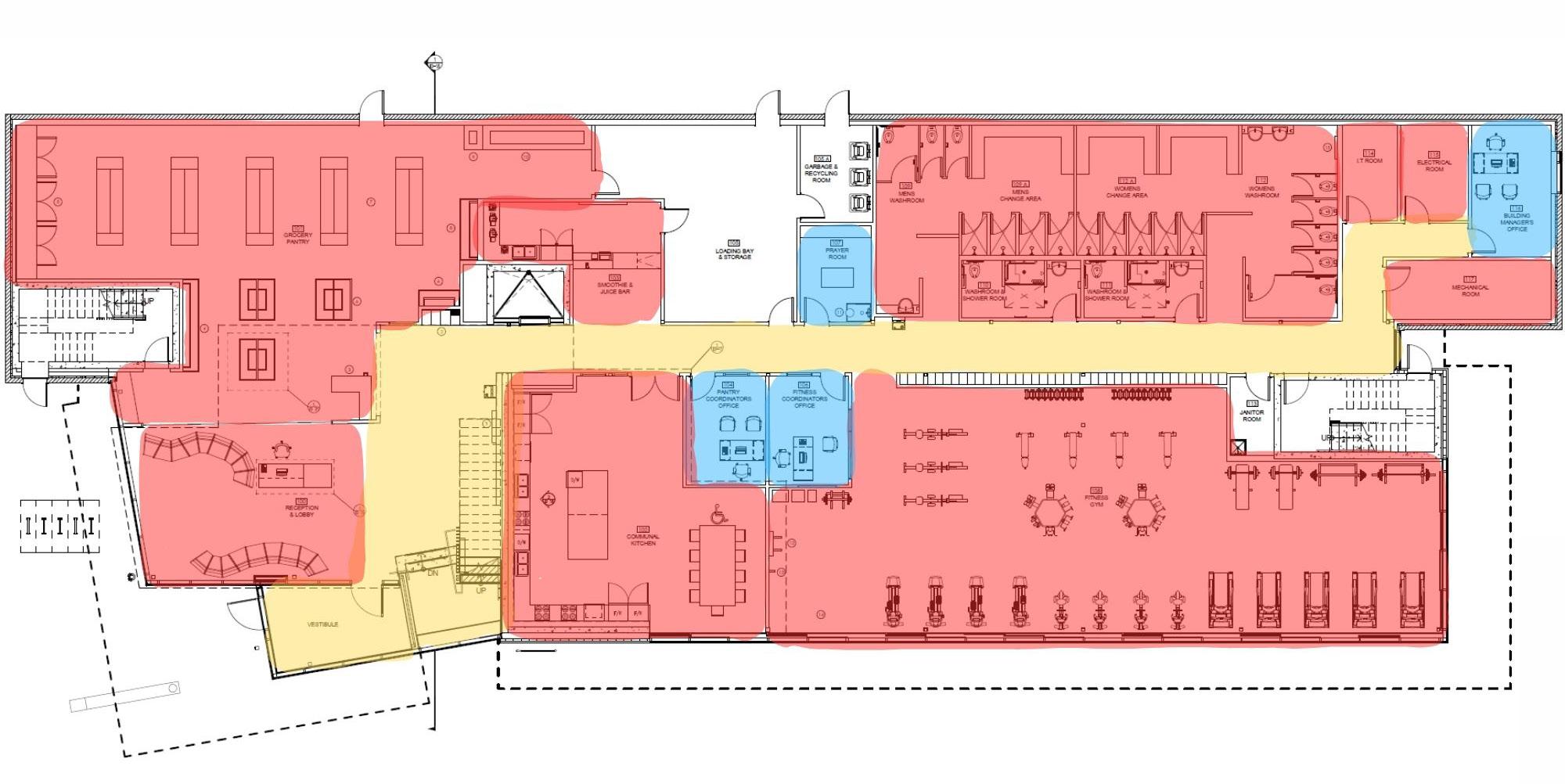
Preliminary Block Plans

*These plans reflect the process towards the final furniture plans, some room spaces might be missing from these plans*

12

Preliminary Block Plans Edits

*These plans reflect the process towards the final furniture plans, some room spaces might be missing from these plans*

13

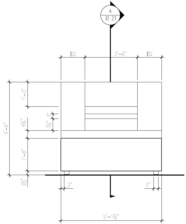
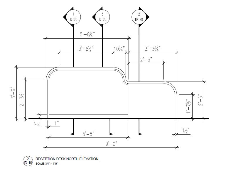
Preliminary Test Fits

*These ideations reflect the process and development towards the final furniture plans, note that these test fit may not reflect the final layout of their respected areas.*

The washroom test fits helped determine that the original allotted square footage for the washrooms is not enough. This is because the originally planned amount of square footage only accounted for washrooms and not the addition of change rooms and showers. While the program allotted space for an all-gender washroom, 1 washroom is not enough, as well, there needs to be an all-gendered change room and shower. The wash and change rooms might end up needing even more square footage depending on the final layout of the showers and change rooms. Currently, this test fit only shows where the showers and change rooms would be located. However, depending on the code there could be more or less shower stalls needed. There is also the possibility that the changing stalls and showers can or cannot be combined.

14

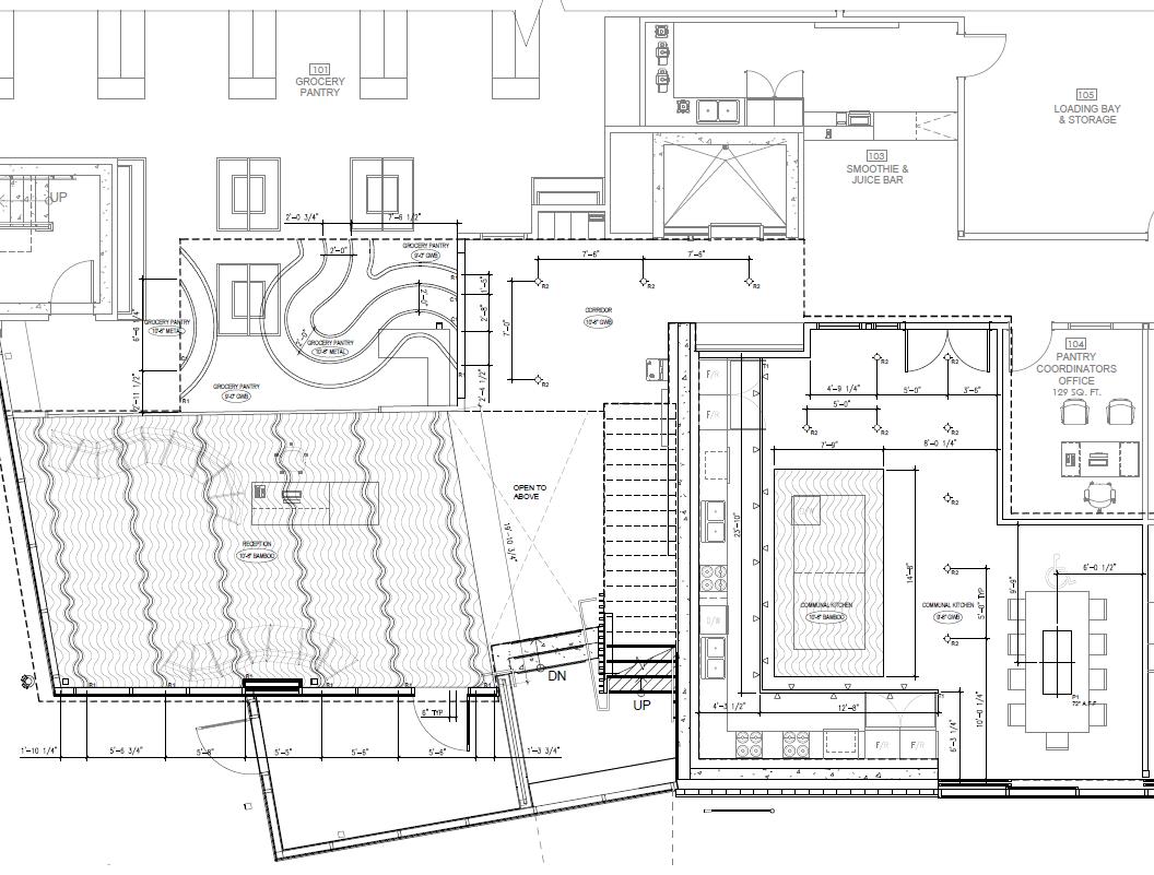
The grocery pantry is the most unknown area within this whole project, as it’s a whole new area of design. To start off, there are no cashiers in this space because while this looks like a grocery store, it is actually a free food pantry for students. The approach is to offer a familiar grocery store-like experience while discarding the small, cramped feeling and design of current campus food pantries. In terms of the test fit layouts, dimensioning the whole area helps develop a further understanding of how big this space is. With that being said, the overall square footage of the test fits’ was lower than what was allotted for in the program. This is a positive as it allows for more circulation between aisles to be designed within this space. Having a test fit with lower square footage than what is required allows for the ability to add more displays and shelving, as well as create more defined groupings. The two images on the left offer a small seating area for eating while the bottom left offers strictly only groceries. With the square footage of the test fits’ being lower than planned, this also allows for the addition of more tables and chairs for a larger dining area. Overall these test fits show different ways to group types of groceries together while also trying to provide a different style and approach to grocery shopping

15

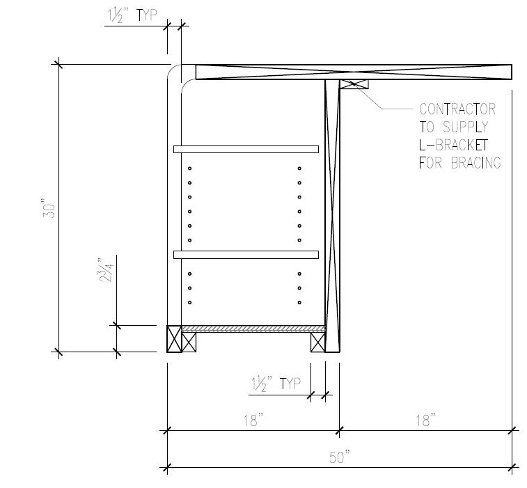
Within the grocery pantry will be a variety of displays, most of which will be less than five feet tall to prevent a disorientating feeling that could happen when surrounded by tall shelving units. Below are sketches of the proposed produce display units. Above the display units will be a suspended, angled, wire rack which will house the lighting for this area which will be spotlights, as they allow for flexibility for displays within the pantry. The dropped ceiling design creates defined groupings within the grocery pantry. Above the wire racks will still be foliage (top image), which will hide some of the frame and wiring and provide some biophilia for the space.

This is another sketch of a proposed display unit within the grocery pantry. Again this display area features a defining ceiling design which matches the shape of the display unit below. This ceiling feature has recessed LED lighting and also features foliage above the lighting. Behind the standalone display unit is the proposed design for the refrigerator and freezers. Above the doors to the freezers right now are wave motifs but this design can change to either a fake plant wall or another design motif which would match the building’s overall concept.

16

The purpose of this sketch is to show the overall mood and desired goals for this space. Access to daylight and views to the outside are present in this area to help relieve stress and improve mental and physical health but blinds will help control the amount of bright daylighting that could be present in this space. Indirect lighting is a major factor in this space and is created from cove lighting and recessed linear millwork lighting. The warm-toned lighting is used to decrease overhead glare and create a relaxing, mellow atmosphere. This desired atmosphere is further enhanced by the range of seating types. The space should be able to accommodate many different user needs. The space could be for those who need a minute of silence or darkness. If a user wants to have the ability to fall asleep in here then they should be able to achieve this desire with little worry. Sleep is important in maintaining a balanced mental well-being, and providing areas that encourage sleep is crucial for hardworking students.

17
18
Preliminary Furniture Plans
19
Preliminary Furniture Plans

Concept Statement:

Soft, diffused reflections emerge as sunlight embraces the calm surface of Okanagan Lake. The synergy between the ripples of Okanagan Lake and sun rays creates a dynamic and tranquil interplay of reflecting light that can be seen from afar and deep within the waters. Within the water, the sunlight transforms into a beacon, guiding the way back to the surface of the water. The movement of the reflections created from the water and sunlight invites a serene and peaceful atmosphere, that also beckons to be explored.

20
Wirestock on Freepik
pegbfh on Pinterest Pekka Parviainen/SPL, BBC found on Facebook

Rationale:

Natural light pools deep into the building, mimicking the way light reaches deep within the water. Diffused accent light is reminiscent of the sunlight that bounces off of the waves. Transparent elements within the building allow for an expansive and vast feeling of openness, similar to how vast Okanagan Lake can appear to be. Repetition of several elements is used within different parts of the building allowing for familiarity and consistency.

21
Wästberg on Architonic ChenLy on Pinterest Installation by Lisa Cahill

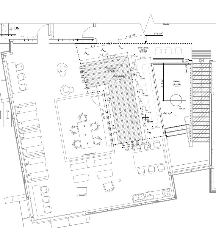
An issue with this study room is that this large cube can create too much attention towards itself. Putting the study room in the middle of the lounge may visually block part of the study lounge from the open waiting area in front of the stairs. However, this placement allows for more privacy from the open waiting lounge in the section that is behind the study room. The study room breaks up the openness between the first floor, second floor and connection areas, which can be good or bad.

Window

Adding a table or seating here that can look down to the first floor can connect the two areas, this idea should be incorporated into the other area that is open to below as well

22

This is a long and tall corridor that will have lots of traffic. From this sketch, if you were to look down this corridor it would look like it never ends, there should be a small rest area lounge or even a banquette bench near the end of this corridor.

The corridor is also where the lockers are located which means people will be stopping in the corridor to access their lockers. Currently, the corridor is 5’ wide but after looking at the model and sketch, this corridor should be wider to minimize congestion that can happen due to people congregating and using the lockers and also by people who are trying to walk by the people who are using the lockers.

The second floor also has a long corridor, and it is not as dark and overbearing compared to the first floor because has the open to below section. However, this area should still be broken up to create more spaces where people can rest or wait for other people. Adding more seating and opening up this area can create more connection. Connection between people sitting next to one another or between the two floors.

23

This sketch shows an option for a individual and collaborative, the goal is for this space to feel secluded with curved furniture surrounding the seating and warm ambient lighting from above. However, this furniture arrangement also allows users to not be fully secluded if wanted, as the nooks of seating are open and apart of the overall space, and still receiving lots of natural light. Providing these semi-private little nooks with lounge type seating allows users to feel more secure with the ability to relax and be comfortable.

24

The intention for the overall ceiling and lighting design was to reflect the movement of the water as well to mimic the patterns and reflections that light produces when it interacts with water.

25

Feature pendant with qualities that evoke the formgivers from the concept

Lighting ideas for feature ceiling in the study lounge, with wave motif acoustic baffles

This is a sketch showing what this layout would look like if you were to look up at it from directly underneath

26
27
28
29
30
31
32
33

LIST OF WELL V2 PRECONDITIONS & OPTIMIZATIONS THAT THIS PROJECT MEETS:

34 A01 Air Quality A02 Smoke-Free Environment A03 Ventilation Design A04 Construction Pollution Management A07 Operable Windows A09 Pollution Infiltration Management W01 Water Quality Indicators W02 Drinking Water Quality W03 Basic Water Management W06 Drinking Water Promotion N01 Fruits and Vegetables N02 Nutritional Transparency N03 Refined Ingredients N04 Food Advertising N07 Nutrition Education N08 Mindful Eating N10 Food Preparation L01 Light Exposure L02 Visual Lighting Design L05 Daylight Design Strategies V01 Active Buildings and Communities V02 Ergonomic Workstation Design V03 Circulation Network V04 Facilities for Active Occupants V05 Site Planning and Selection V08 Physical Activity Spaces and Equipment T01 Thermal Performance S01 Sound Mapping S03 Sound Barriers S05 Sound Reducing Surfaces X01 Material Restrictions X02 Interior Hazardous Materials Management X05 Enhanced Material Restrictions X06 VOC Restrictions X07 Materials Transparency X08 Materials Optimization M01 Mental Health Promotion M02 Nature and Place M03 Mental Health Services
Restorative Opportunities
Restorative Spaces
Health and Well-Being Promotion
Integrative Design
Emergency Preparedness
Occupant Survey
New Mother Support
Civic Engagement
and
M06
M07
C01
C02
C03
C04
C09
C11
C13 Accessibility
Universal Design I01 Innovate WELL
I02 WELL Accredited Professional (WELL AP)
I03 Experience WELL Certification I05 Green Building Rating Systems
35 WELL V2 S01 Sound Mapping

To minimize sound reverberation time and reduce the level (dB) of sound travel to the second level and throughout the first level, the following sound dampening materials were used.

Additionally, the smoothie and juice machines are placed around the corner behind the elevators to force the sounds produced from these machines to bounce off more walls before reaching the corridor.

Estimated Reverberation time according to WELL S04 for this area is: t ≤ 1.0

100% of ceiling treated with NRC 0.95

Although not required for this space typology, treating 25% of 2 perpendicular walls with NRC 0.85 was still provided with the intention of providing extra noise reduction.

36 WELL V2 S04 & WELL S05
Hush Acoustics Bold Wall Panels Linea Acoustic Kerf - T&G - 8mm

Bibliography:

Beitzen-Heineke, E. F., Balta-Ozkan, N., & Reefke, H. (2016, October 1). The prospects of zero-packaging grocery stores to improve the social and environmental impacts of the food supply chain. Journal of Cleaner Production. https://www.sciencedirect.com/science/article/abs/pii/ S0959652616315797?casa_token=uSBvPhPqVvMAAAAA%3AkQQxf-ZfUlENlIk573rF0OmgzWrFeEjxlxn1__7PoEOC4G5v61rQ3SMOHdhdnWZodc-50oGzVA

Brasier, C. (2022, October 3). How design can support student wellness on higher ed campuses. Clark Nexsen. https://www.clarknexsen.com/blog-how-design-can-support-student-wellness-on-highered-campuses/

Canada, H. (2020, February 18). Government of Canada. Canada.ca. https://www.canada.ca/en/ health-canada/services/food-nutrition/food-nutrition-surveillance/health-nutrition-surveys/canadian-community-health-survey-cchs/household-food-insecurity-canada-overview.html

Dean, J. H., Shanahan, D. F., Bush, R., Gaston, K. J., Lin, B. B., Barber, E., Franco, L., & Fuller, R. A. (2018, June 29). Is nature relatedness associated with better mental and physical health?. MDPI. http://dx. doi.org/10.3390/ijerph15071371

Food security. UBC Food Hub. (2021, November 10). https://foodhub.ubc.ca/food-security/#:~:text=Research%20has%20consistently%20shown%20between,social%20wellbeing%20and%20educational%20attainment.

Hattangadi, N., Vogel, E., Carroll, L., & Côté, P. (2019). “Everybody I Know Is Always Hungry…But Nobody Asks Why”: University Students, Food Insecurity and Mental Health. Sustainability, 11(6), 1571. MDPI AG. Retrieved from http://dx.doi.org/10.3390/su11061571

Jackson, R. A., Berry, T. R., & Kennedy, M. D. (2009). The relationship between lifestyle and campus eating behaviours in male and female university students. College Student Journal, 43(3), 860+. https://link.gale.com/apps/doc/A206687080/AONE?u=googlescholar&sid=googleScholar&xid=c0157009

Rechkemmer, Josh. “Supporting Mental Health on College Campuses through Design.” Architectural Design Services in Iowa, Neumann Monson Architects, 3 Nov. 2023, neumannmonson.com/blog/ supporting-mental-health-college-campuses-through-design.

Sing, N. (2022, November 15). The fight to end hunger on Canadian university campuses: Maclean’s education. The fight to end hunger on Canadian university campuses | Maclean’s Education. https:// education.macleans.ca/feature/the-fight-to-end-hunger-on-canadian-university-campuses/

Why 42% of UBCO students are food insecure, and how we’re working to change that. (n.d.). https:// wellbeing.ubc.ca/examples-and-research/why-42-ubco-students-are-food-insecure-and-howwere-working-change

Xu, Y., Jeong, E., Jang, S., Shao, X., Ajzen, I., Bernués, A., Campbell, J., Carfora, V., Chou, S.-F., Cook, A. J., Furst, T., Ha, J., Heng, Y., Hooge, I. E. D., Jaiswal, D., Jang, S., Konuk, F. A., Lam, T., Lee, H.-J., … Chamhuri, N. (2020, November 27). Would you bring home ugly produce? motivators and demotivators for Ugly Food Consumption. Journal of Retailing and Consumer Services. https://www.sciencedirect. com/science/article/abs/pii/S0969698920313849#preview-section-snippets

37
38

Turn static files into dynamic content formats.

Create a flipbook
Issuu converts static files into: digital portfolios, online yearbooks, online catalogs, digital photo albums and more. Sign up and create your flipbook.