Portofolio Arsitektur 2023 - Hafizah Al Fhatanny

Page 1

POR TOFO LIO. H A F I Z A H A L F H A T A N N Y A r s i t e k t u r 2 0 2 3

CURRICULUM VITAE.

PROFIL

Halo, Saya Hafizah

Saya merupakan Mahasiswa Arsitektur Semester 6 di Universitas Sriwijaya. Saya adalah orang yang dapat cepat beradapatasi, berkomunikasi dengan baik, memiliki kemampuan leadership, quick learner, kreatif dan mampu bekerja dalam tim maupun individu

Desain adalah hal yang saya tekuni karena ketertarikan saya akan desain dalam Arsitektur maupun desain grafis terutama layouting Definisi Arsitektur menurut saya, bagaimana orientasi lingkungan sekitar mempengaruhi bangunan dan dapat mencapai kenyamanan thermal.

PENDIDIKAN

PALEMBANG, 21 NOVEMBER 2002

Perum. Green Island 1 (D9), Palembang, Sumatera Selatan

0895604684311

alfhatannyhafizah@gmail com

@hafizahaf

KETERTARIKAN

Arsitektur

Desain Interior

Lansekap

Desain Grafis

KETERAMPILAN

SOFTWARE

Sketch Up

Autodesk CAD

Enscape

Lumion

Canva

Ms. Office

LAINNYA

Permodelan 3D

Sketsa

Layouting

Fotografi

2020-Sekarang Universitas Sriwijaya

IPK (Sem. 1-5): 3.91

2017-2020 SMA LTI IGM Palembang

PENGALAMAN

2023 - Asisten Laboratorium Kota, Perumahan, Permukiman & Pelestarian (KP3) PSTA UNSRI

Desain Grafis Buku Profil lab.kota

Pemateri pelatihan software Zotero & Mendeley

IMA SRIWIJAYA Kabinet Nuansa

Kepala Departemen Ekonomi Kreatif

Penanggung Jawab Desain Grafis Pembukuan

KKL Tematik 2023 Teknik Arsitektur UNSRI

2022 - Penanggung Jawab Desain Grafis IG Departemen Ekonomi Kreatif @astore ima

Sayembara Arsitektur Nasional ETALASE 4.0 Peserta-Berpartisipasi dalam kelompok (3 orang)

Ketua Tim Proyek Perancangan Arsitektur 05 Desain Perancangan Bangunan Bentang Lebar

Tim Program Pengabdian Masyarakat (PPM)

Sosialisasi & Promosi Warisan Sejarah sebagai Metode Peningkatan Pelestarian & Wisata Heritage di Kota Palembang

Tim Program Pengabdian Masyarakat (PPM)Kekayaan Arsitektural Kampung Al-Munawar Drafter Permodelan 3D

H A F I Z A H A L F H A T A N N Y
04 DAFTAR ISI. 01 02 03
05 06
07 Lainnya Sketsa,
Modern-Tropis Villa Akademik; Semester 2 Axl Townhouse Akademik; Semester 3 Buana Dormitory Akademik; Semester 4 Jakabaring Badminton Arena Akademik; Semester 5
Dakara Museum Interior; Semester 4 45 Co-working Space Kompetisi
Fotografi, Maket, Desain Grafis

MODERNTROPIS VILLA

PERANCANGAN ARSITEKTUR 02 A k a d e m i k , 2 0 2 1 . 8 0 0 m ²

Merupakan sebuah fasilitas tempat tinggal sementara yang terletak di daerah pinggiran kota dengan total luas lahan 800 m ² . Tapak berorientasi

langsung mengarah ke anak sungai pada arah Utara Dihuni oleh keluarga

kecil yang terdiri dari Ayah, Ibu dengan

2 anak remaja. Terdiri dari 9 ruang

indoor

ENERGI ECOFRIENDLY

Mengusung konsep Arsitektur ModernTropis yang dimana Villa mampu bertahan dengan iklim dan cuaca tropis dengan penerapannya Penerapan

penggunaan material alami seperti kayu dan batu alam bertujuan agar bangunan terkesan lebih menyatu dengan alam. Selain itu, batu alam memiliki kemampuan kedap terhadap air yang cocok untuk iklim hujan tropis

Penghematan energi juga diterapkan pada desain dengan mengurangi

penggunaan penghawaan buatan dan memaksimalkan penghawaan serta

pencahayaan alami Dan tetap

mempertahankan kontur untuk

mengurangi dampak kerusakan

terhadap lingkungan dengan

menjadikan bangunan sebagai rumah

panggung dengan split level

HEMAT
MATERIAL ALAMI KONTUR
KONSEP
permasa lahan

Kontur pada tapak memiliki ketinggian masing-masih

sekitar 50 cm, sehingga

mempengaruhi bentuk

bangunan Salah satunya

bangunan menjadi

panggung agar tetap

mempertahankan kontur

dengan cara manambahkan

split level sebanyak 2 kali

Split level pertama turun

sekitar 1 m kemudian turun

lagi sekitar 50 cm, sehingga total keseluruhan ketinggian split level adalah 1,5 meter.

Bangunan Villa langsung berorientasi menghadap

Sungai pada arah Selatan tapak Sehingga untuk mendapatkan view yang maksimal, maka Ruang

Keluarga beserta Teras Belakang dibuat mengarah ke

Sungai untuk medapatkan view dari Sungai tersebut.

Dilengkapi dengan 2 Kamar Tidur yang salah satunya

terhubung dengan balkon yang mengarah ke arah

Timur Kemudian Dapur yang terhubung langsung

dengan Ruang Makan dan beberapa ruang servis lainnya yaitu Kamar Mandi dan Ruang Cuci

A B C 1 3 4 5 6 7 8 9 2 100 cm 50 cm U SITE PLAN PERANCANGAN ARSITEKTUR 02 Akademik, 2021. 800 m ² DENAH 11 12 10 U Carport Teras Depan Foyer Kamar Tidur Ruang Cuci Balkon Kamar Mandi Ruang Makan Dapur Kamar Utama Ruang Keluarga Teras Belakang KETERANGAN 1 2 3 4 5 6 7 8 9 10 11 12.

VISUALISASI

AXL

TOWNHOUSE

PERANCANGAN ARSITEKTUR 03

A k a d e m i k , 2 0 2 1 1 2 0 m ²

Merupakan sebuah komplek hunian yang dibangun di tengah perkotaan

dengan ukuran lahan yang terbatas yaitu 120 m ² , sehingga Townhouse

dibangun dalam dua lantai. Dihuni oleh

keluarga kecil yang terdiri dari Ayah, Ibu serta 2 anak remajanya dengan seorang ART.

PERMASALAHAN KONSEP

Mengusung konsep Arsitektur

Scandinavian yang menerapkan simplicity, minimalism dan functionality. Yang dimana rumah didominasi dengan

warna netral dengan bukaan lebar

untuk memaksimalkan pencahayaan

serta penghawaan alami serta

penggunaan furnitur yang minimalis

merupakan salah satu bentuk upaya

dalam menjaga kelestarian alam.

Penggunaan penghawaan dan pencahayaan alami merupakan bentuk

dari penghematan energi Ruang-ruang

akan dibuat lebih efisien akibat luas

lahan yang terbatas sehingga

walaupun lahan terbatas, aktivitas

didalam rumah harus tetap maksimal

dengan ruang-ruang efisien tersebut

HEMAT ENERGI ECOFRIENDLY
LAHAN TERBATAS BANGUNAN BERHIMPITAN UDARA & CAHAYA ALAMI

Dari permasalahan luas lahan yang terbatas serta bangunan yang saling berhimpitan, maka massa mengalami subtraksi atau proses pengurangan pada beberapa bagian, sehingga terdapat void pada bangunan. Hal ini bertujuan agar terciptanya sirkulasi udara serta pencahayaan alami yang langsung masuk ke bangunan

Dapur

Kamar Utama

WC K Utama

Kamar Mandi lt.1

Balkon

Kamar Tidur 2

Ruang Keluarga

Kamar Tidur 1

Gudang

Kamar Mandi Lt 1

Cuci Jemur

LEGENDA: A TOWNHOUSE B CARPORT C TAMAN D. TOWNHOUSE LAINNYA E JALAN A D D C B D E 11 10 1 2 3 4 5 6 7 8 9 12 13 14 15 16 17 U
Carport Taman
DENAH
Teras Ruang Tamu Taman Ruang Makan
10. 11.
SITE
Ruang
KETERANGAN 1 2 3. 4. 5. 6 7 8 9
12. 13. 14 15 16 17.
PLAN PERANCANGAN ARSITEKTUR 03 Akademik, 2021. 120 m ²
DENAH LANTAI 1 DENAH LANTAI 2
U

VISUALISASI

BUANA

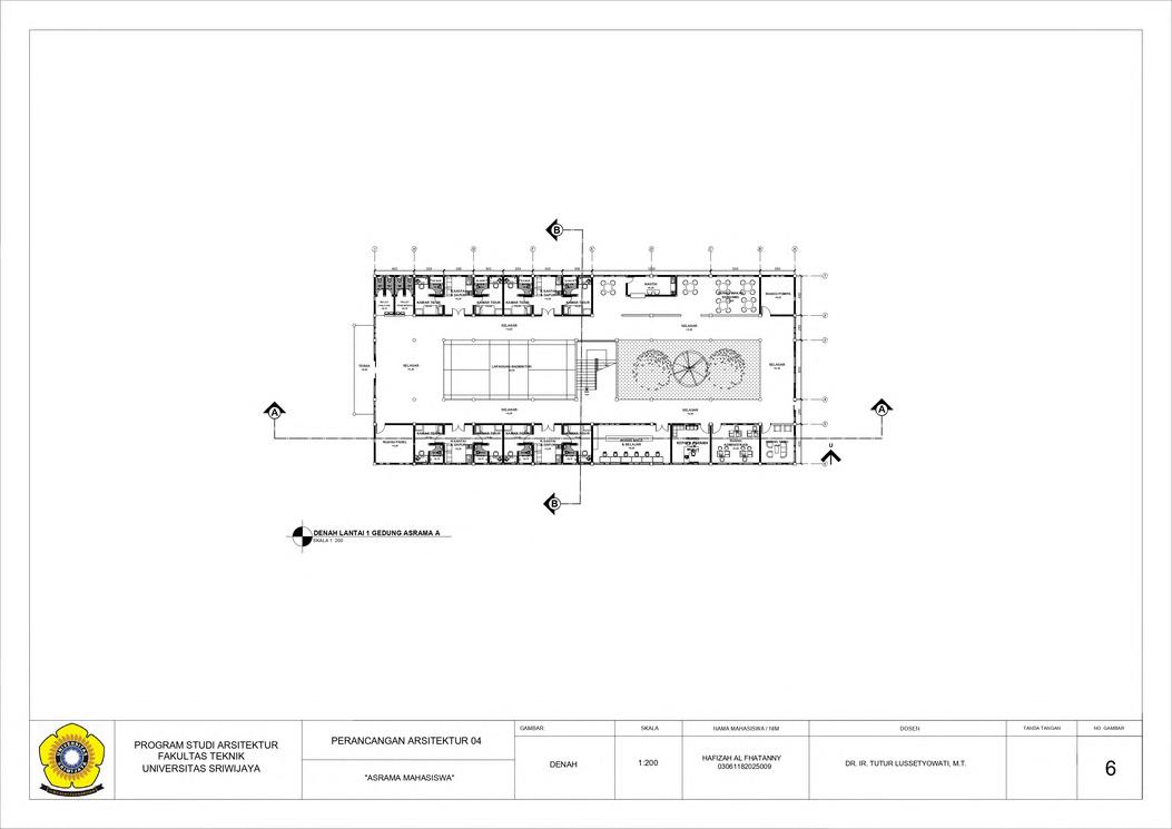
Merupakan sebuah Kawasan hunian mahasiswa dan mahasiswi Universitas Sriwijaya dengan luas lahan ±12.792 m ² yang mampu menampung segala kegiatan mahasiswa/i, mulai dari ruang privat, fasilitas bersama sekaligus tempat untuk rekreasi Selain menampung kegiatan para mahasiswa, Buana Dormitory menjadi salah satu Asrama mahasiswa/i yang mewadahi hobi dari para mahasiswa melalui fasilitas tambahan yang mendukung kegiatan tersebut Seperti penyediaan Lapangan Badminton Indoor, Ruang Baca dan Belajar, Area Komunal dan lainnya

Mengusung konsep Arsitektur moderntropis, konsep diimplementasikan pada bangunan modern guna memastikan bangunan tersebut mampu beradaptasi dengan lingkungan alam sekitar, serta penghuni mendapatkan kenyamanan paling maksimal dan mampu bertahan dengan iklim dan cuaca tropis disebuah wilayah.

Buana ; Dunia ; Jagat. Penggunaan kata "Buana" memiliki filosofi yaitu dimana dunia dipijak, semua manusia itu sama. Buana Dormitory ini juga mengangkat isu Rasisme yang kerap terjadi, tidak terkecuali dilingkungan akademik.

LOKASI : Kawasan Rusunawa, Universitas Sriwijaya, Indralaya
DORMITORY PERANCANGAN ARSITEKTUR 04 A k a d e m i k , 2 0 2 2 1 2 7 9 2 m ²

PERANCANGAN ARSITEKTUR 04

Akademik, 2022. 12.792 m ²

LATAR BELAKANG DESAIN

PENDEKATAN KONTEKSTUAL Memperhatikan lingkungansekitar

RUANG TERBUKAHIJAU Memaksimalkanlahan denganAreaRTH

TEMPAT BERISTIRAHAT

Menyediakantempat untukberistirahat

MEWADAHI KEGIATAN&HOBI

Menyediakanfasilitas penunjang

KONSEP GUBAHAN MASSA

ATRAKSIREKREASI

Penambahanfasilitas tambahansebagai atraksirekreasi

Massa awal terdiri dari 4 bentuk geometri persegi panjang yang merupakan respon akan kebutuhan ruang terhadap massa

Massa mengalami proses substraksi p a void pada massa. Void tersebut menjadi sirkulasi penghawaan dan pencahayaan alami.

Penambahan elemen massa lainnya diantara massa bertujuan sebagai penghubung antar massa

Massa dengan fungsi penunjang serta bersifat publik akan diarahkan mengarah ke jalan, sehingga dapat diakses dengan mudah.

Terakhir, penambahan massa yang berada tepat dipinggir jalan bertujuan untuk keamanan pada tapak

GEDUNG PERTEMUAN MUSHOLA POS SATPAM

MINIMARKET & ATM CENTER

3 1 4
ASRAMA PUTRI ASRAMA PUTRA
2

SITE PLAN

LEGENDA:

A GEDUNG ASRAMA MAHASISWA

B GEDUNG ASRAMA MAHASISWI

C GEDUNG PERTEMUAN

D TAMAN

E MUSHOLA

F MINIMARKET & ATM CENTER

G AREA KOMUNAL

H POS SATPAM

I JOGGING TRACK

A A B B C D H I J K L L L L L L M M M M M M
DENAH LT 1 DENAH LT. 2,3,4 DENAH LT 1 DENAH LT. 2 & 3 TAMPAK DEPAN KAWASAN
U
TAMPAK BELAKANG KAWASAN
GAMBAR PERANCANGAN.
PERANCANGAN
ARSITEKTUR 04 Akademik, 2022. 12.792 m ²
VISUALISASI

JAKABARING BADMINTON HALL

LOKASI : Jakabaring Sport City, Jakabaring, Kota Palembang

Merupakan sebuah Bangunan Bentang

Lebar yang berfungsi sebagai Gedung

Olahraga Badminton yang berada di Kompleks Gedung Olahraga di Kota

Palembang dengan luas lahan ± 32.413

m ² . Memiliki 4 lapangan indoor serta

mampu menampung ±5000 penonton dengan tribun yang mengelilingi

lapangan. Terdiri dari tipe seat reguler, VIP, dan VVIP

Mengusung konsep Arsitektur

Kontemporer yang merupakan sebuah

konsep yang beradaptasi dengan

zaman serta teknologi, umumnya

terdapat beberapa gaya yang

berbeda-beda dan tidak ada satu gaya

dominan yang kemudian akan

digabung menjadi sebuah kesatuan

desain dan bersifat dinamis

LATAR BELAKANG DESAIN

BENTANG LEBAR SUSTAINABILITY HIGHTECH GREEN BUILDING

PERANCANGAN ARSITEKTUR 05 A k a d e m i k , 2 0 2 2 3 2 4 1 3 m ²
T I M : Hafizah Al Fhatanny Fachrul Mardianto Sarifah Hairunnisa F.A.Q Farah Ragilia Maretha

PERANCANGAN ARSITEKTUR 05

Akademik, 2022. 32.413 m ²

SKEMA IDE TERBARUKAN

SOLAR PANEL

Solar Panel diletakkan di atap Public Space, energi listrik yang dihasilkan akan dimanfaatkan sebagai sumber listrik utama dari pencahayan buatan berupa lampu jalan dan lampu taman pada tapak

GREEN ROOF

Green Roof berada pada massa trapesium pada bangunan. Selain berfungsi sebagai serapan air hujan, Green Roof juga dimanfaatkan sebagai Skywalk yang dapat diakses oleh pengunjung

PORT CHARGER KENDARAAN LISTRIK

Port Charger Kendaraan Listrik merupakan fasilitas tambahan yang ditawarkan bagi kendaraan listrik Untuk fasilitas ini, akan dibuat tempat pengisian level 1 berdasarkan standar Amerika Utara

FASAD Mengusung pola "movement" terhadap fasad

KONSEP GUBAHAN MASSA

Massa terbentuk dari segi empat menyesuaikan bentuk site

Menaikkan massa bangunan seperti rumah panggung yang berada di Sumatra Selatan

Bagian tengah LT DASAR diberi AKSES PEDESTRIAN bagi pengunjung dari stadion Gelora Sriwijaya Sementara, LAPANGAN badminton berada di LT 1

Massa bagian Timur & Barat mengalami ADITIF berupa

TRAPESIUM sebagai respons dari neighborhood context

Atap bangunan terbentuk dari

TRANSFORMASI LIMAS dari Rumah

tinggi di Kampung Al-Munawar, dengan substraktif pada sisi atap yang dibuat melengkung

Orientasi bangunan dibuat menghadap ke arah TIMUR (Jalan Utama) & BARAT (Stadion Gelora Sriwijaya) untuk mendapat view terbaik

KONSEP TAPAK.

: PUBLIC (Pengunjung)

: PRIVATE (VVIP)

: SEMI PUBLIK (Ruang Atlet)

LEGENDA:

A BADMINTON HALL

B JALAN AKSES VVIP

C JALAN KELUAR DROP OFF

D PEDESTRIAN

E JALAN AKSES UTAMA

F PARKIRAN BUS

G PARKIRAN MOTOR

H PARKIRAN MOBIL LISTRIK

I PARKIRAN DIFABEL

J PARKIRAN MOBIL

K. PUBLIC SPACE

L JALAN AKSES KELUAR

O R I E N T A S I B A N G U N A N U POS SATPAM K E T E R A N G A N :
TAMAN PUBLIC SPACE
HYDRANT Z O N A S I T A P A K & M A S S A U A U B C D E F G H I J K K K L SITE PLAN
BADMINTON HALL
R POMPA
TAMPAK DEPAN TAMPAK BELAKANG TAMPAK SAMPING KANAN TAMPAK SAMPING KIRI

PERANCANGAN ARSITEKTUR 05

Akademik, 2022. 32.413 m ²

PENUTUP ATAP (ZINCALUME & SOLAR FLAT)

RANGKA ATAP (SPACE FRAME)

TRIBUN

SECONDARY SKIN

LAPANGAN STRUKTUR BANGUNAN

+3411 1430 1613 1430 704 +1080 840 600 840 9510 200 600 1052 600 00 600 00 +250 1613 234 500 650 600 650 234 PEDESRANPEDESRANPEDESTRANPEDESTRANPEDETRANAPANGANBADMNTON -
DENAH LT. DASAR LT 1 LT 2 LT. 3 POTONGAN
A-A

VIDEO ANIMASI

VISUALISASI

Merancang sebuah Museum Budaya di tengah Kota bertujuan guna memperkenalkan jati diri dari negara Indonesia melalui budaya. Museum dirancang sedemikian rupa dengan memperhatikan beberapa aspek salah satunya kebutuhan ruang pada sebuah Museum Budaya, Museum memberikan kesan Tradisional dengan sisipan konsep modern Museum Budaya ini difungsikan sebagai sebuah sarana edukasi dalam memberikan pengetahuan mengenai kebudayaan Indonesia.

MASALAH & KEBUTUHAN EXHIBITION ROOM COMUNAL SPACE PENCAHAYAAN FASILITAS TAMBAHAN BUDAYA INDONESIA SIRKULASI DAKARA
INTERIOR A k a d e m i k , 2 0 2 2 4 0 0 m ² T I M : H a f i z a h A l F h a t a n n y A i s y a h Y u d i s t i n D i l l a Y o l a n d a S h i e l v a n a S u g i a r t o C i t r a P u p a t i l a C h a e r u n i s a h
MUSEUM

MOODBOARD

ern-Tradisional merupakan gaya modern dan gaya interior Tradisional memiliki an lebih elegan yang ter tenang dan teratur han alami seperti kayu serta ng rumit dan bahan alam ngkan, gaya Interior Modern n yang merujuk pada masa ain yang dipengaruhi oleh berkembang Termasuk di naan furniture, tren warna, konsep ini kesan alami, seni an lebih ditampilkan berupa da konsep modern lebih di enataan tata ruang pada

R E S E P S I O N I S E X H I B I T I O N C A F E T A R I A
ANTAI GRANIT BU-ABU PARKET KAYU PLAFOND WAFFLE GYPSUM
300 1300 800 300 480 2 580 A B B EXHBTON3 320 500 1550 225 225 300 1300 600 90 350 800 300 480 200 2700 1580 A A B B DAPUR ±000 CAFETARIA ±000 EXHBTON2 -100 RESEPSONS ±000 EXHBTION3 +320 ±000 -100 ±320 ±700 ±740 EXHBTION2 -100 EXHBTON ±000 EXHBITON3 +320 INTERIOR Akademik, 2022. 400 m ² PELAKU
Penjaga Pengunjung Pegawai Cafetaria Cleaning Service (OB) Pengelola POTONGAN A-A POTONGAN B-B DENAH LT. 1 DENAH LT. MEZZANINE

VISUALISASI

45-COWORKING SPACE

SAYEMBARA

NASIONAL

Desi Amalia

LOKASI : Jl. Merdeka, Talang Semut, Bukit Kecil, Kota Palembang

45-Coworking Space hadir sebagai wadah yang menyediakan ruang kerja untuk orang – orang dengan latar yang berbeda-beda serta menciptakan ruang kerja yang mendukung kolaborasi, partisipasi, keterbukaan, inovasi, fleksibilitas, berbagi peralatan, pengetahuan dan pengalaman dengan menerapkan sistem open space.

ARSITEKTUR ETALASE
K o m p e t i s i , 2 0 2 2
KONSEP DESAIN 6 4 0 m ²
4.0
.
T I M : Hafizah Al Fhatanny
Citra Pupatila Chaerunisah Dengan keterbatasan akan ketersediaan energi, maka dibutuhkan sebuah wadah yang mampu menekan jumlah penggunaan energi dengan memanfaatkan ketersediaan energi terbarukan yang tak terbatas dan ramah lingkungan. Sebuah wadah yang mampu menampung aktivitas manusia dengan tetap memperhatikan isu lingkungan sehingga menciptakan suasana kerja yang nyaman, aman, serta ramah lingkungan RAMAH LINGKUNGAN Penggunaan Panel Surya Material Ramah Lingkungan Interior Biophilic

SAYEMBARA NASIONAL ARSITEKTUR ETALASE 4.0

Kompetisi, 2022.640 m ²

SKEMA ZONASI RUANG

LANTAI 2

LANTAI1

LLan an sseb eb ssem em sser er me me are are ttam am pu pub kker er me me ttoioil

LLan an sseb eb ssem em Na Na llan an sseb eb pri priv me me tten en

seperti ruang rapat dan seperti ruang rapat dan ruang privat ruang privat

ZONA PUBLIK

ZONA SEMI PUBLIK

PENERAPAN KONSEP RAMAH LINGKUNGAN

RUANG TERBUKA HIJAU

Pada bagian belakang dan depan lahan, menjadi solusi untuk membantu menyejukkan bangunan, mengurangi polusi, dan filter debu

ZONA PRIVAT AREA SERVIS

Lobi Toilet

Area Kerja

Pantry & R Istirahat

LANTAI1

Cafetaria

LANTAI2

Toilet Ruang Komunal

Area Kerja Ruang Privat Ruang Komunal Ruang Rapat Ruang Rapat

PENGGUNAAN PANEL SOLAR

Sebagai pengganti tenaga listrik PLN pada siang hari Dikarenakan site memiliki potensi pencahayaan alami yang besar

PENGGUNAAN MATERIAL EKSPOS

Seperti bata dan plasteran untuk mengurangi penggunaan cat sebagai upaya ramah terhadap lingkungan

Bukaan cahaya yang dimaksimalkan untuk memanfaarkan

pencahayaan alami

Dan kusen jendela yang menggunakan material alumunium.

U

DINDING BETON EKSPOS

LANTAI BETON EKSPOS MENGKILAP

Co-working Space didesain dengan didesain dengan Konsep Industrial Konsep Industrial yang menggabungkan yang menggabungkan Konsep Biophilic Konsep Biophilic pada bagian interiornya, dan menggunakan material bata ekspos yang menonjol pada eksterior dan pada bagian interiornya, dan menggunakan material bata ekspos yang menonjol pada eksterior dan penggunaan elemen beton ekspos yang dominan pada desain Material juga dikombinasikan dengan penggunaan elemen beton ekspos yang dominan pada desain. Material juga dikombinasikan dengan material glass block, batu alam dan kayu agar desain tidak terkesan monoton material glass block, batu alam dan kayu agar desain tidak terkesan monoton.

Co-working Space

POTONGAN A-A POTONGAN B-B
MATERIAL
ATAP
BATA EKSPOS BATU ALAM
BITUMEN
GLASS BLOCK
KAYU

SAYEMBARA NASIONAL ARSITEKTUR ETALASE 4.0

Kompetisi, 2022 640 m ²

TAMPAK DEPAN TAMPAK BELAKANG TAMPAK SAMPING KIRI TAMPAK SAMPING KANAN

VISUALISASI

LAINNYA Sketsa-Maket.

LAINNYA Desain Grafis.

LAINNYA

Fotografi-3D Permodelan.

POR TOFO LIO. A r s i t e k t u r 2 0 2 3 H A F I Z A H N Y

0895604684311

alfhatannyhafizah@gmail com

@hafizahaf

TERIMA KASIH.

Turn static files into dynamic content formats.

Create a flipbook
Issuu converts static files into: digital portfolios, online yearbooks, online catalogs, digital photo albums and more. Sign up and create your flipbook.