Hadi Boudouch Portfolio

Page 1


PUBLIC?

PROJECTS

Rethinking the role of Public Space within the built environment

Istanbul

In Between the Gardens

Section 1 Pages 1-20 (Site analysis, Site Strategy and The Ottoman Palace)

Section 2 Pages 21-40 (Programme and Urban Layout)

Section 3 Pages 41-58 (Rethinking the role of Ornamentation)

Section 4......................................................................Pages 59-76 (Initial Interior design)

Section 5.......................................................................Pages 77-94 (Programme and Urban Layout - More detailed)

Section 6 Pages 96-120 (Final Design)

Cairo

Public?

Section 1 Pages 121-144 (Paprika, Cairo and the of modernity)

Section 2 Pages 145-172 (Site Strategy)

Section 3 Pages 173-182 (Initial design)

Section 4..................................................................Pages 183-200 (Secondary Design)

Section 5...................................................................Pages 201-224 (Detail, Structure and Construction)

Section 6 Pages 225-258 (Final Design)

Section

1

Aims

Pinpointing Various areas of interest that will serve as main drivers throughout the portfolio in order to create a coherent sense of progress between the various design philosophies implemented

How can the inner workings of the Ottoman palace be reapplied to contemporary Turkish architecture.

Means of Achieving Goal:

Analyse the Topkapi palace and attempt to redefine the role of the garden within wish a space.

Rethink the significance of the orientalist view of the harem relative to todays Istanbul

How can a relatively simple site strategy result in an intervention whose architecture embodies a contemporary depiction of Ottoman Architecture yet whose urban layout redefines the role of the ‘palace’/’luxury hotel’ within Istanbul.

Means of Achieving Goal:

Choose a site and conduct in depth site analysis. Furthermore look into existing example of luxury hotels within the city of Istanbul.

Develop a initial simplistic site strategy that rethinks the relationship between public/private space.

Conduct interviews with architects that work within the luxury field in order to get a better understanding of the process of developing such spaces

Section 1

Introduction

A city in contrast can be a place where the world of fantasy and reality constantly clash. This section looks at how the Western and Eastern perception of Istanbul creates the city we know today

The word ‘Contrast’ can be used to describe materials, structure or the basic geometry of a building. However what does it mean when a culture is in contrast? At what point does familiarity become novelty, and when does something new become an embodiment of a past fragment. The context to which an object/building is placed becomes just as much of a factor in defining ‘the strange’ as the composition of the building itself. Istanbul is without a shadow of a doubt a place where divergence is celebrated.

I wanted to study what both the past and presence means for such a place and try to create a space that overlaps tradition and modernity. In doing so I first began to study how the perception from both the western and eastern perspective plays a role in narrating the story of Istanbul. The Ottoman palace becomes a perfect starting point when decoding this narrative, as it is a place of excess, indulgence and rampant orientalism when seen from both perspectives. Furthermore, this typology’s sense of fantasy has seemed to be lost in contemporary Turkish architecture since the country’s shift in trying to become a fully industrialized nation under the blueprint of the country’s founder, Attaturk. Therefore I wanted to re-establish what the Turkish place means for

the city within the 21st century by designing a hotel that honours its past and presence yet attempts to redefine the role of ‘the boundary’ in luxury spaces.

I hope to look into how various vernaculars and programmes will function relative to each other for the purpose of developing public/private typologies that aim in revisiting the very meaning of the word ‘Turkish’. The contrast that signifies multi-vernacularism, alongside the questioning of the boundaries that define separate typologies will be the means of turning the cities history with eclecticism, and aesthetic/ ideological contrast into a single coherent space.

In order to investigate the points described I looked into the past and current role of Topkapi palace, alongside various other historical buildings. By trying to decontextualize such an intervention I attempted to create a modern day interpretation of such a space. Orientalism, and its fever dream-like qualities were analysed when developing a distorted image of the Topkapi. In addition to this, looking into how ornament relates to both the structural and aesthetic qualities of a building was central in developing a revitalized native style.

The Palace

Topkapi Palace

Analysing the Topkapi palace for the purpose of reimagining its construction within the 21st century. The hope is to understand both its layout and use of ornamentation.

Understanding Topkapi Layout and the role of the Garden

A:

External garden mainly consisting of public gardens or unaccessible green cliff edges

B1: Courtyard leads to the imperial gate

B2: Courtyard, Entry spaces to the kitchen and Haram

B3: Courtyard, spaces like the ‘Chamber of petitions’, mosques and treasury are found here (the inner political working of the palace)

B4: Courtyard, Tower of the head physician, wardrobe room and monques are found here (Relates to the sultanes personal life as opposed to

matters of the state)

C1: Imperial Gate

C2: Imperial council and the tower of justice

C3: Library chamber of petition etc

CX: represents the Harem (where the sultan’s wives, mother and children lived).

D: CLiff and dense greenery act as a buffer zone between the palace and the rest of Istanbul

Programme /Courtyard

1- The Special (entry to Harem). 2- Harem (With windows).

3-Harem Without windows.

4- Central Political Space. 5- Service Space (Kitchen etc). 6Main Gate. 7- Connecting Spaces

‘A’ represents the basic layout of Topkapi palace. The garden essentially becomes the primary means of defining the sites layout. Options ‘B’ and ‘C’ begin to redefine this, while still using the base components found in the initial scheme. Yet options ‘D’-’G’ represent a more radical means of reimagining this systems programmatic layout. A much more in-depth study of the relationship between these individual components and their adjacent garden will be essential in defining this project.

Inside Topkapi Palace

Site Analysis

Understanding Istanbul’s Zones

Analysing the wider site in relation to the cities neighbourhoods and how the Bosphorus can serve as architectural and urban precedence

Redefining how ‘Uskudar’ is perceived with the surrounding neighborhood but more importantly introduce tourists to the area in order to improve economic output

Rethink how public space relates to the Bosphurs, in order to create a model for how future private developments can allow locals to acess the waterways while maintaining privacy

Highlighting some basic principles in order to create an overarching urban/architectural narrative

A/ Private/Public access to the Bosphorus Strait (Public access must be ensured)

B/ Given there is a direct Subway access to the site the aim is to move tourists from Fatih to Uskudar

C/Competing with the palaces by the waterway (1: The chosen site directly mirrors some of the most

Analysing some of the most iconic structures that reside along the waterway as a means of creating a potential future models for 21st century turkish architecture

1A- Chose Site

2A- Dolmabace Palace

The Old and the New

Following Circular Images:

A-Frontal view of the Structure

B-Access/Back streets] (Uskudar has more pleasant surroundings)

iconic structures on the european side of the city) (2:Dolmabace Palace- Museum) (3:Four Seasons Hotel- Palace hotel) (4:Ciragan palace- Hotel) (the Bosphuus as a metaphorical mirror between past and present turkish contemporary architecture)

D/ Push Existing green space outwards

Besikats

Chosen Site Faces North East in order to view both Besiktas+Beyogly and witness the sunset As the defacto

The chosen site faces and is surrounded by traditional Ottoman architecture. Transport infrastructure makes this Area easily accessible while public space makes it urbanism relatively unique.

Movement into and out of the site becomes paramount when introducing more tourists to Uskudar. Public transport is a necessity when trying to competing withother luxery hotels.

Ferry Terminal - Üsküdar

Valide Sultan Gemisi iskelesi

Subway Services - (Üsküdar

Public transport stop

Marmaray heavy rail route (under water tunnel)

Inclined railway station (rare in Üsküdar)

Tram Stop (rare in Üsküdar)

Access to public transport is always an essential aspect of a functioning densely populated urban landscape. However in the case of this project it is the ability to quickly access the heart of Faith which makes this area unique.

Luckily the main public transport hub is only a 10 minute walk from the chosen hotel site. This is perfect as it allows for a guest to easily access modes of transport while still being located in what feels to be a more secluded area.

Beyoglu Fatih
Galata Bridge
Uskudar

The Harem

The Ottoman Palace and Orientalism

How our modern understanding of the Ottoman palace serves to creates a sense of fantasy yet aids in this semi-taboo perception of such spaces within contemporary architecture

Here you see an attempt to create an surrealist depiction of the Ottoman palace. Similar to the study of the separate programmes that define Topkapi in the previous pages, in this instance multiple aspects of the Harem are layered on top of each other in order

to occupy a singular continuous space. 1- The Bath House, 2-The private rooms, 3- The serving of tea, 4- The Political meeting point, 5- The passage of the Bosphurus, 6- The connecting garden, 7The connecting structure, 8- The People

The initial hand drawn sketch (The birth of the idea)

The base template used to create the repetitive image

Here you can see the gradual build up of the image. The base structure is relatively simple, yet when repeated the system seems complex

The Chosen Location Site Analysis

A more in depth look at the characteristics that define the site, and developing means of using the existing topography to define public and private space

What is needed is needed

Private Amenities:

1- Spa

2- Pool

3- Residents Cafe

4- Residents Bar

5- Boat Access

6- Conference room

7- Reading room

6- Reception

7- Rooms

8- gardens

Servicing: 1-Staff room

2- Offices (reception, manager 1,2,3 , travel coordinator)

3- Kitchen Storage rooms

4- I.T. room

5- Cleaning and secondary storage rooms

6- Staff Changing rooms

7- Staff Cores/ pathways

8- Exterior truck access

Public Amenitie:

1- Cafe

2- Restaurant

3- Shisha Lounge

4- Baklava Cafe

5- Gardens

6- Access to the waterfront

A luxury hotel tries to sell a dream that is exclusive in nature. Therefore how can such a building be constructed while still becoming a quintessential part of its wider surroundings?

Buildings that stand out adjacent to the site:

A- Ciner Kimya Yatırım (İnvestment group)

B- Istanbul State theater

C- Small Cluster of restaurants

(traditional forms of architecture that are well maintained)

X- Possible relocation of main roadway

Y-Initial road merged with surrounding greenery

Important distances: 1:83m 2:125m 3: 26m 4:56m

The red hatches represent the area in which the site’s dimensions can be added upon. In normal circumstances the current site is enough to build a 50-100 room hotel. However my aim is to develop a larger public/private complex to help redefine the area as a whole.

Pub -

lic Park with a series of gardens (the creation of a journey/ trying to tell a story).

Publicly accessible amenities (cafes, bar, restaurant).

Private Park (only to be used by hotel guests)

Private amenities (Spa, Cafe, restaurant, Lounge, library, cigar lounge).

Reception/Rooms (taller roof cafe/tower).

Existing boundaries of current site.

Public/Private Pathway.

Change in topography height prevents member of the public from accessing the private elements of the hotel.

The movement through various gardens must create a sense of fantasy.

Green space pushed forward and tunnel for traffic.

Private boat access (Luxury).

Open access throughout the waterfront.

Emergency pathway (firefighters).

Gardens need to be segmented in a way that not only define movement but also create various interventions/experiences (similar to Topkapi Palace)

This simplified diagram describes the basic components that will make up this project .

PR:Private, PU: Public, Red:Hotel/ Private amenities, Green:Gardens, Dark Blue: Public Amenities, Bu:Bosphurus

The topography of the site (like much of Istanbul is very hilly). A new way of implementing level changes could improve the efficiency of movement. Heights/ A:0m, B:50m, C/100m

Basic Concept to Resturcture the Programme of Luxery Hotels

1- A member of the court 2- The Sultan3- The Public 4- The Garden Y- The Current relationship between these components Z- Potential to create gardens/buildings that are used by the public and the court (yet maintain a private space for the sultan)

Site Analysis/ Strategy

The Massing Strategy

Developing the basic strategy for the wider layout in accordance to the site analysis conducted. The aim is to develop a scheme that is efficient yet creates a sense of fantasy.

Existing

hotels

Average Prices

Four Seasons (1 night in March) for 2 adults

Superior room: 579 £

Delux Room: 783 £

Junior Suite: 1366 £

Palace Room: 1489 £

One Bedroom Suite: 2264 £

Bosphurus Palace Suite: 6938 £

2 Bedroom Bosphurus

Palace Suite: 6938 £

Yildik King Room:403£

Bosphurus View:518£

Yildiz Suite: 787£

Deluxe Ciragan: 902£

Executive Suite:1220£

Harem Suite: 1475£

Palace Bosphurs Suite: 1657£

Valide Suite: 2932£

Deluxe King:171£

Deluxe Twin:171£

Deluxe+View:184£

Deluxe+Bosphorus view: 196£

Park Suite: 269£

Bosphorus Suite:326£

Ambassabor: 3018£

Presidental Suite: 5873£

The following three buildings (shown on the left) represent luxury five start hotels within the city of Istanbul. Although their price point differs they all share a commonality in charging significantly more for rooms with a view of the Bosphorus. Options 1 and 2 are of most interest as they are former palaces which where then converted to hotels.

Access to the Bosphurus and its meaning to such a space will therefore be central to the project moving further.

X, A, B and C represent the boundaries of each hotel. Walls are used to separate the public from accessing the waterfront in order to give the sites guests a sense of privacy. Can this be changed?

Ciragan Palace
Conard Istanbul
Hotels by the Bosphurus

1- Open Space which allows access to the waterfront.

2-Extending that space to the adjacent cliff (Purple=public Dark grey=private)

3-Increase hight of topography (no ridged walls)

4- Stepped gardens to allow for ease access and the creation of interesting pavilions (Garden city approach)

5- Segmenting hotel space (Orange= Public and Private, Green=Private gardens, Dark bule=Entry point and amenities, Light Blue=Rooms)

6- Stepped gardens to allow for ease access

7- Stepped extrusion to maximise Bosphorus views

8- Further extrusions to create special roof gardens

9- Orange=’Specials’

10- Adding roof gardens A- Hotel Boundary, B- Gardens, C- Roof gardens, D-Specials (Use of ottoman Architecture), E- Level Changes

Section 2

Aims

Developing the basic urban strategy of the project. By analysing the role of topography and structure, this section should gain significant insight into how to efficiently redefine the boundary of the Luxery hotel.

How does the Public/Private Realm relate to Luxury Space? (Rethinking the notion of privatised Public Space)

Means of Achieving Goal:

How the cities topography can be used as a means to develop a new urban approach within the city of Istanbul)

How multivenacularism can create borders in defining changes in programme)

How will the turkish historical approach of developing architectural styles that are directly influenced by external influences potentially result in the creation of a new type of turkish architecture (quote for the grammar of Ornament)

Means of Achieving Goal:

Analysing traditional forms of turkish ornament and direct superimposing them with more contemporary means of form and manufacture

The freedom not to specify a singular architectural style while still maintaining a sense of the citie identity

‘‘All their mosques and public buildings present a mixed style. On the same building, side by side with ornaments derived from Arabian and Persian floral ornaments, we find debased Roman and Renaissance details’’ (The Grammer of Ornament)

The Potential to create a new typology relative to the context of Istanbul

Section 2

Massing Strategy 1

Developing a basic massing strategy to be used in order to ensure efficiency within the hotels layout and direct links to adjacent public space.

1-Hotel entry point

2-Arched Pathways (private)

3-Gardens

4- Cores (Lift + Staircase)

5- Hotel rooms

6- Reception

7-Amenities

8-Pool

9-Shared Spaces (To be used by hotel guests and members of the hotel) (Cafe1)

10-Shared Spaces (Shisha Lounge)

11- Shared Spaces (Cafe2)

12-Public gardens (opens up water front to the public)

13- Main Public Garden

14- Dense Greenery

15- Helicopter pad

A-Private cars path to hotel

B-Private pathway (Hotel guest access to external gardens)

C- Private Border (raised topography)

D-Private Border

E-Public walkway

X-Main view of the site

The Arched pathways serve as the central structural system that defines circulation within the private grounds of the hotel. It allows access to amenities, the reception and the various gardens.

Here we can see the view of the hotel from the main public garden at ground level. It will also be the site’s primary visual reference point for those traversing the Bosphorus.

1-Basic Massing 2-Elevated pathways give access to roof gardens

3- Arched Pathway (semi closed)

4-Specials (Main points of Ornamentation)

Topography (and Gardens) in relation to structure and the public/private programme

X-Main Site

1-Varied topography allows for gradual level changes and separation between public and private areas without the need of dividing walls

2-Tunnel

3-Boundary gardens (mainly public)

4-Private gardens (garden city inspiered)

5-Pools

6- Roof Gardens

7-Shared spaces

8-Private amenities

9- Service spaces

10-Rooms1

1-Arched pathways+Cores

12-Reception

13- Main Entrance

Section 2

Massing Strategy 2

Developing a basic massing strategy to be used in order to ensure efficiency within the hotels layout and direct links to adjacent public space.

Improving access points and rethinking basic layout of the site

The cantilever and the garden

Axo

Plan

1-Curved pathways (private guests given access to external gardens 2- Shaded spaces connected by cantilevers 3-Gardens used by hotel guests and members of the public 4- Arched Pathway

X-Basic Massigs(programme separated by raised topography)

Y- Cantivelvers connect private gardens to buildings that are accessible by members of the public

A-Hotel entry pathway (cars)B-Curved PathwaysC- Private boundaryD-Private BouderEEntrance into shared spaces X-Main Public garden and viewpoint

How spaces are experienced from varied positions

Image X and the above rendered elevation shows how this scheme has improved how the project is seen from the main view point (X on the plan) and by people traversing the Bosphorus. Nonetheless the scheme still needs improving.

Section 2

Massing Strategy 3

Developing a basic massing strategy to be used in order to ensure efficiency within the hotels layout and direct links to adjacent public space.

1- Waterfront allows for public access (rethinks how luxury relates to the public realm). Varied levels allow for more interesting interventions and separate private hotel spaces from the rest of the scheme. 2-Stepped topography allows for smoother transition with

surroundings 3-Amenities (Dark blue= shared spaces)4- Rooms (height difference and position maximise rooms with views of the Bosphorus)5- Curved pathways (Link private areas to public surroundings)6Arched Pathways 7-External gardens merge with private areas

The Image above shows how both members of the public and hotel guests will experience the external boundaries of the hotel. The aim is to create an experience where people can meander around the site. Topography and greenery becomes a means of defining a programme as opposed to rigid walls.

Pathways and roof gardens connect the private elements of the hotel to the shared spaces (Similar to the Cantilevers used in Massing 2)

1- Varied steps allow for smoother transition with surroundings. (maybe introduce additional pathways)

2-Arched pathway

3-Sloped pathway (need to be reconsidered for wheelchair access)

4-Cliff side (dense greenery allows for the project to better merge with its surroundings)

5-Gradual slope (wheelchair friendly)

6-Gradual slope (Dense greenery)

7-Hidden seating area

A- Main road for hotel entrance

B-Curved pathway (guests can access external gardens)

C- Main access point

D-Private boundary line

X-Site Boundary

Although the previous three massings have focused on the basic layout of the scheme, any indications regarding the stylistic depiction of these structures has remained relatively vague.

Changes in height and varied pathways serve as the primary means of defining public and private space, however I intend to also use various architectural styles to define a building’s purpose.

When walking around Istanbul the layering of various architectural styles becomes evident. There seems to be no underline rule regarding how the external visual experience of the city is

experienced. Ottoman, modern, post modern and early 20th century manifestations of architectural vernacular can be present within the same section of hillside. Thus this Multi-Venacularism is essential.

Section 2

Massing Strategy 4

Developing a basic massing strategy to be used in order to ensure efficiency within the hotels layout and direct links to adjacent public space.

The Image above shows pathways can be used to rethink how separate topologies can be organized within a cliff face.

A-Main road to hotel entrance B-Entrance into Hotel C-Arched PathwayD-Archways serves as entry into shared space and the hotel itself E- Curved Pathway (Private to Public)F-Curved Pathway (Private to Public)G-Site Boundary X-1.5m level change

The main issue thus far is how built up the site seems. I intend the scheme to better merge with the surrounding cliff side. Thus further consideration on the sale of certain elements is needed.

Element 4 and 5 show more freedom on the way in which connecting structures area laid out however it seems at times unnecessary.

The above diagram shows how this zig-zag like structure connects rooms (Orange), amenities(green) and roof gardens. This allows for roof gardens to play a more significant role when traversing the site.

The structure highlighted from the plan is visually interesting but it would be better to use topography as a connecting element.

Section 2

Massing Strategy 5

Developing a basic massing strategy to be used in order to ensure efficiency within the hotels layout and direct links to adjacent public space.

Attempting to create a general scheme that better follow the sites existing topography

Plan:

A-Main road into the Hotel

B-Curved pathway (Private use)

C- Curved pathway (Private use)

D- Arched pathway now follows the gradual level changes of the hill face

E-Arched pathway connects shared spaces to private segment of the hotel

F- Filament (Enclosed space curves with

surrounding topography)

H-1.5m level change defines the boundary of private areas

Axo:

1-Public gardens (public access to waterfront)

2- Private gardens and pools 3- Amenities (dark blue=shared amenities like cafes) 4- Rooms

5-Curved Pathways 6-Arched pathways (now sloped) 7-Elevated enclosed pathways

Incorporating the meandering like experience found in Ottoman palaces and well designed gardens is essential to give the intervention a sense of fantasy

Although this scheme takes successful components from the previous 4 iterations there seems to be something categorically wrong with its design. Much more consideration must be taken regarding how the rooms are layed out to ensure they are easily accessible by guests. Where the design when wrong

A-C shows the basic principle of the massing resulting in various gardens

D- Arched pathway better merging with topography

Section 3

Aims

Prior to designing the scheme further, the potential use of ornamentation will be studied. This will aid in developing a coherent visual language and to better pinpoint areas of interest within the site.

Use hand drawings as a means of visualising initial ideas regarding how to rethink the function of ornamentation

Means of Achieving Goal:

Create a series of sketches and superimpose them to 3D modeled structures and existing spaces within istanbul

Try to create a visual language that can be later used in the design of internal and external spaces

Try to question the perception of traditions relative to the implementation of ornamentation within the Turkish context. This will attempt to rethink the role of materiality and form when synthesising a contemporary turkish decorative style.

Means of Achieving Goal:

Create a series of hand models that attempt to rethink how surface ornament can be applied within an excessively varied surface

Begin to experiment with material finish as a means of highlighting separate decorative components.

‘‘All their mosques and public buildings present a mixed style. On the same building, side by side with ornaments derived from Arabian and Persian floral ornaments, we find debased Roman and Renaissance details’’ (The Grammer of Ornament)

As the defacto ‘modern style’ I believe that by reincorporating traditional craftsmanship will not only benefit how ‘modern style’ I believe that by reincorporating traditional craftsmanship

Although we live in a time where more contemporary interpretations of conmporary interpretations

Although we live in a time where more contemporary interpretations of beauty are considered as the defacto ‘modern style’ I believe that by reincorporating traditional craftsmanship will not only benefit how people experience the built environment but also create jobs for the local community. Here I drew an interior

view of how people would experience the central courtyard; although it takes its liberty in adding surreal elements the ideas of mixing modern and traditional architectural components within a singular system still resonate. I chose to create a simple architectural form in rhino and overlap with the hand drawn image; by placing the structure in the gardens of Bahia Palace in marrakech you can begin to visualise the external and internal qualitie of the scheme. in rhino and overlap

Section 3

The Role of Fantasy, 21st Century?

Incorporating fragments of turkish culture into my personal drawing style and overlapping it with vintage pictures of Istanbul’s most notable landmarks

The Bosporus essentially defines the urban layout of the city. It is the lifeblood of Istanbul

Create a direct link with the interior and external elements of the drawing and the city

Allow the viewer to see through the drawing to better merge it with its surroundings

Develop internal structural elements that extrude outwards and interact with the base

Irrespective of the subject matter of a drawing certain characteristics of the individual’s artistic style will come through. Therefore I chose to simply allow my personal aesthetic to take center stage in this process. The subject matter of the initial drawing is the private life of the sultan within his Harem. It tries to create a fantasy-like depiction of what the internal qualities of such space were like when perceived through the lens of the modern world. By trying to overlap this non-existent world with that of reality a link between the two can be formed.

A/Distortion of structure, B/ Traditional Pattern C/ Human Precence

Section 3

The Old, The New and The Story

Attempting to develop a contemporary Turkish decorative style centered around a fabricated storyline (The road towards fantasy)

The juxtaposition between materials, in addition to the composition of decorative surfaces can both result in interesting visual conditions. This forced overlap may seem excessive, however once linked to a storyline the emergence of fantasy becomes the connecting factor.

Diagrams A-C describe the basic concept of material or structural juxtaposition. However it is the juncture at zone ‘X’ which seems the most interesting (how these elements merge)

Story Line (Proposed fantasy)

This project can either adopt a Turkish story or simply fabricate one (giving a space a sense of mystery). The image above proposes the Ottoman conquest of Egypt. The Image to the right suggests a futuristic festival where the tulip becomes a symbol of state imperialism.

The

Section 3

Tiles and Tradition

The initial development of hand carved tiles in an attempt to revisit more traditional forms of craftsmanship

Images 1-6 show how the basic geometry for one of the islamic tiles displayed on the image on the right was developed. Although this follows the basic schemes of traditional islamic ornament, I further complicated the design by adding interlacing tendril ornament made of a different clay (which of course fires at the

These images display how I develop these ceramic tiles. They where old hand carved using two different types of earthenware clay

same temperature as the terracotta base). The other examples are further attempts to develop carved vegetal tendril tiles. It is however diagrams ‘X’ and ‘Y’ which begin to develop means of augmenting the geometric configuration of these otherwise flat manifestations of surface ornament.

The primary issue of these designs is that even though they can be considered visually appealing, they simply take too much inspiration on past manifestations of furcase ornament. Slight changes have been made to the larger tile with the terracotta base, however it still seems insufficient when trying to achieve the sense of fantasy I intend this project to embody.

Section 3

The Hand and the Mold

Attempting to better understand the process of hand carving in relation to the process creation of mold and copies of original pieces.

The connecting tiles+Illusions of forever

The menas in which individual components of a wider expansive pattern link is the key to understanding how to decorate large expansive surfaces. Here I attempted to link a simple rectilinear base of two perpendicular lines with an interlacing vegetal tendril. The aim was to create an effect that mimicked plants interacting with a fence.

Of Course the desired illusion was only achieved once the original hand carved tile was duplicated and then joined together (images 1-6 shows this process). Schemes A-C begin to develop means of furer complicating this geometry by mounting these tiles on a sloped base. However in doing so one would have to rethink how pattern’s rhythm can be maintained.

Hand carving and Molding

Although the process of creating the silicone mould was relatively straightforward, issues did arise when trying to separate the hardened hound from the original terracotta hand carved tile. Nonetheless once plaster of paris was

poured into the mold, the resulting duplicate did indeed resemble the original. To what extent such a process will be mass manufactured, and what impacts it will have on the craft of hand caring plaster walls is still up for debate.

Beginning to visualise the illusion of infinity to better understand how large surfaces decorated by these tiles may look like

The first timage is a relatively traditionalist approach in how these tiles link to create continuous surface decoration. However the middle image begins to play with the notion of sale in relation to how these ceramic pieces function as a whole.

Of Course they no longer seem continuous, however functions can not be dictated by the scale of each individual piece. While smaller units can simply serve as floor tiles, large elements can become a type of furniture or help define entry and exit points.

Here the patterns seem more uniform and relatively predictable. I believe that introducing a sense of unpredictability, in both the ornamentation geometry and material treatment could introduce more interesting ways of understanding contemporary

Turkish surface decoration. A similar sense of contrast developed in ‘The old ,the new and the story’ could benefit these more traditional forms or ornaments. Yet even still the general form would still need to be reconsidered.

Section 3

Contrast and Continuity

Attempting to rethink the relationship between material finish and the use of vegetal tendril ornament in relation to more traditional architectural typologies.

Here I took the basic template of an archway (potentially used as an entry point to an Ottoman palace/hotel). Although the majority of the arch consists of a matte white base, the focal point is of an asymmetrical series of interlacing vegetal

tendrils with a shiny blue glaze. The aim was to create the illusion of tendrils growing out of the base model. Although this sense of contrast is something I would like to continue, I believe the base geometry needs to be revisited.

Section 4

Aims

Designing one of the shared pavilions (to be used by both members of the public and hotel guests). This will serve as the initial design for the treatment of the interior of such spaces.

Creating the base layout and a relatively simple primary and secondary structure (instead the focus is materiality and ornament)

Means of Achieving Goal:

Incorporating arches as a means of utilising structure not only ro define programme but also as a form of ornament

Using ornament (both 2D and 3D) to create the illusion of structural elements that gradually merge with each other.

Begin to develop means of further augmenting the base principles that design the initial design in order develop a more contemporary understanding of Turkish interior design.

Means of Achieving Goal:

Use drawing as a means of developing ways in which structural, programmatic, and decorative elements can function within a singular system.

Use clay modelling to rethink how the base geometry of these elements can interact with its surface decoration.

Section 4

Gianni Berengo Gardin

Analysing the photography of Gianni Berengo Gardin to better understand the role of the silhouette and areas of repose when creating balanced images (balance in ornamentation)

Berengo’s Opinion on Black and white

“Il colore distrae. Un cielo azzurro brillante sistema molte cose. Il libro che dedicai a Venezia, nel ‘62, era in bianco e nero, ma quella Venezia ora sembra irreale. Il bianco e nero dà quello scarto rispetto alla visione naturale che ti costringe a guardare meglio.”

‘‘Color is distracting. A bright blue sky fixes many things. The book I dedicated to Venice, in ‘62, was in black and white, but that Venice now seems unreal. Black and white gives that gap compared to natural vision th forces you to look better’’

Analysing the images, the diagrams and the possibilities for change.

Diagrams C1 and C2 relate to Gianni’s images 2 and 4. These shames try to separate the silhouette from the forms that define the pictures sense of depth. Images 2 and 3 are in my opinion the most interesting as they both contain heavily decorated floors,. Even though there is immense detail in these elements, the contrast created by shadows still makes individual elements easily legible. Diagram X,Y and Z try to replicate this in the design of the shared space (in this case the Baklava café). In all three schemes the floor remain the central decorative element.

Gianni’s images (especially 1,2 and 3) served as the main precedents when designing the interior spaces of the baklava cafe. The use of floor tiles and heavily contrasting shadows is the most obvious link with the inspiring images. However I chose the keep

the walls plain and at time painted in a dark grey or play in order to mimic the effect of the silhouette in Gianni’s images. Nonetheless I believe there is an excessive use of ornamentation which should be dialled down in future iterations.

Section 4

The Baklava Cafe (Initial Design)

Understanding the role of detail in relation to a relatively simple structural approach in the hopes of creating timeless design. (the footprint will change later in the design process)

At times furniture and structure merge in the hopes of giving the viewer a sense of fantasy

The need to rethink the role of landscape

Sections1-4 shows how the structure is not only simple but boring at times (especially sections 3 and 4). Using the sites topography to define the internal and external programme could introduce interesting outputs.

The outer pathway whose boundary is defined by a series of open archways acts as a buffer zone

Even though this initial design of the cafe is primarily an attempt to develop ways of experiencing the internal qualities of the structure the sections how shown the shortcoming of such a simple layout. Nonetheless once material, texture, ornament and light is added to the space, the project begins to gain the desired sense of fantasy. Keeping this contrast between light and dark (and decorated and plain) will be essential. Having said that it would be beneficial to incorporate more contemporary means of applying ornamentation.

Section 4

Tradition/Suspision

Analysing the Topkapi palace for the purpose of reimagining its construction within the 21st century. The hope is to understand both its layout and use of ornamentation.

As the defacto ‘modern style’ I believe that by reincorporating traditional craftsmanship will not only

Although we live in a time where more contemporary interpretations of beauty are considered as the defacto ‘modern style’ I believe that by reincorporating traditional craftsmanship will not only benefit how people experience the built environment but also create jobs for the local community. Here I drew an interior view of how people would experience the central courtyard; although it takes its liberty in adding surreal elements the ideas of mixing modern and traditional architectural components within a singular system still resonate. I chose to create a

As the defacto ‘modern style’ I believe that by reincorporating traditional craftsmanship will not only benefit how ‘modern style’ I believe that by reincorporating traditional

As the defacto ‘modern style’ I believe that by reincorporating traditional

Although we live in a time where more contemporary interpretations of beauty are considered as the defacto ‘modern style’ I believe that by reincorporating traditional craftsmanship will not only benefit how people experience the built environment but also create jobs for the local community. Here I drew an interior view of how people would experience the central courtyard; although it takes its liberty in adding surreal elements the ideas of mixing modern and

Section 4

Pattern and its Potential

Analysing the Topkapi palace for the purpose of reimagining its construction within the 21st century. The hope is to understand both its layout and use of ornamentation.

As the defacto ‘modern style’ I believe that by reincorporating traditional

Although we live in a time where more contemporary interpretations of beauty are considered as the defacto ‘modern style’ I believe that by reincorporating traditional craftsmanship will not only benefit how people experience the built environment but also create jobs for the local community. Here I drew an interior view of how people would experience the central courtyard; although it takes its liberty in adding surreal elements the ideas of mixing modern and traditional architectural components within a singular system still resonate. I chose to create a simple architectural form in rhino and overlap with the hand drawn image; by placing the structure in the gardens of Bahia Palace in marrakech you can begin to visualise the external and internal qualitie of the scheme. in rhino and overlap with the hand drawn imy placing the structuthe gardens of Bahilace in marrakech you can beualise the external and internal qualitie of the scheme. you

Berengo’s Opinion on Black and white Photography on Black and white Photography on Black and white Photography on Black and white Photograph:

Although we live in a time where more contemporary interpretations of beauty are considered as the defacto ‘modern style’ I believe that by reincorporating traditional craftsmanship will not only benefit how people experience the built environment but also create jobs for the local community. Here I drew an interior view of how people would experience the central courtyard; although it takes its liberty in adding surreal elements the ideas of mixing modern and traditional architectural components within a singular system still resonate. I chose to create a simple architectural form in rhino and overlap with the hand drawn image; by placing the structure in the gardens of Bahia Palace in marrakech you can begin to visualise the external and internal qualitie of the scheme. in rhino and overlap with the hand drawn imy placing the structuthe gardens of Bahilace in marrakech you can beualise the external and internal qualitie of the scheme. you can begin thand the scheme. kech you can beualise the external and internal qualitie of the scheme. you can begin thand the scheme. the external and internal qualitie of the schyouand the scheme.

What is needed is needed What is needed is neededded

Although we live in a time where more contemporary interpretations of beauty are considered as the defacto ‘modern style’ I believe that by reincorporating traditional craftsmanship will not only benefit

how people experience the built environment but also create jobs for the local community. Here I drew an interior view of how people would experience the central courtyard; although it takes its liberty in

What is needed is needed What is needed is needed ded

Although we live in a time where more contemporary interpretations of beauty are considered as the defacto ‘modern style’ I believe that by reincorporating traditional craftsmanship will not only benefit

how people experience the built environment but also create jobs for the local community. Here I drew an interior view of how people would experience the central courtyard; although it takes its liberty in

Tradition/ Augmentation

Analysing the Topkapi palace for the purpose of reimagining its construction within the 21st century. The hope is to understand both its layout and use of ornamentation.

Although we live in a time where more contemporary interpretations of beauty are considered as the defacto ‘modern style’ I believe that by reincorporating traditional craftsmanship will not only

benefit how people experience the built environment but also create jobs for the local community. Here I drew an interior view of how people would experience the central courtyard; although it takes

Section 5

Aims

Pinpointing Various areas of interest that will serve as main drivers throughout the portfolio in order to create a coherent sense of progress between the various design philosophies implemented

How does the Public/Private Realm relate to Luxury Space? (Rethinking the notion of privatised Public Space)

Means of Achieving Goal:

How the cities topography can be used as a means to develop a new urban approach within the city of Istanbul)

How multivenacularism can create borders in defining changes in programme)

How will the turkish historical approach of developing architectural styles that are directly influenced by external influences potentially result in the creation of a new type of turkish architecture (quote for the grammar of Ornament)

Means of Achieving Goal:

Analysing traditional forms of turkish ornament and direct superimposing them with more contemporary means of form and manufacture

The freedom not to specify a singular architectural style while still maintaining a sense of the citie identity

‘‘All their mosques and public buildings present a mixed style. On the same building, side by side with ornaments derived from Arabian and Persian floral ornaments, we find debased Roman and Renaissance details’’ (The Grammer of Ornament)

The Potential to create a new typology relative to the context of Istanbul

Section 5

Where Form Looses Function

Analysing the Topkapi palace for the purpose of reimagining its construction within the 21st century. The hope is to understand both its layout and use of ornamentation.

ergdfgfbdfbsdfbzbdfbxbsbvsv

ergdfgfbdfbsdfbzbdfbxbsbvsv ergdfgfbdfbsdfbzbdfbxbsbvsv

ergdfgfbdfbsdfbzbdfbxbsbvsv

ergdfgfbdfbsdfbzbdfbxbsbvsv

ergdfgfbdfbsdfbzbdfbxbsbvsv

Although we live in a time where more contemporary interpretations of beauty are considered as the defacto ‘modern style’ I believe that by reincorporating traditional craftsmanship will not only benefit how people experience the built environment but also create environment but also create jobs for the local communitjobs for the local community. H local community. Here ere Although we live in a time where more contemporary interpretations of beauty are considered as the defacto ‘modern style’ I believe that by reincorporating traditional craftsmanship will not only benefit how people experience the built environment but also create jobs for the local community. H local community. Here erelieve that by reincorporating traditional craftsmanship will not only benefit how people experience the built environment but also create environment but also create jobs for the local communitjobs for the local community. H local community. Here ere Although we live in a time where more contemporary interpretations of

Although we live in a time where more contemporary interpretations of beauty are considered as the defacto ‘modern style’ I believe that by reincorporating traditional craftsmanship will not only benefit how people experience the built environment but also create environment but also create jobs for the local communitjobs for the local community. H local community. Here ere Although we live in a time where more contemporary interpretations of beauty are considered as the defacto ‘modern

Section 5

Where Form Looses Function

Analysing the Topkapi palace for the purpose of reimagining its construction within the 21st century. The hope is to understand both its layout and use of ornamentation.

ergdfgfbdfbsdfbzbdfbxbsbvsv ergdfgfbdfbsdfbzbdfbxbsbvsv ergdfgfbdfbsdfbzbdfbxbsbvsv ergdfgfbdfbsdfbzbdfbxbsbvsv ergdfgfbdfbsd-

Although we live in a time where more contemporary interpretations of beauty are considered as the defacto ‘modern style’ I believe that by reincorporating traditional craftsmanship will not only benefit how people experience the built environment but also create environment but also create jobs for the local communitjobs for the local community. H local community. Here ere Although we live in a time where more contemporary interpretations of beauty are considered as the defacto ‘modern style’ I believe that by

Although we live in a time where more contemporary interpretations of beauty are considered as the defacto ‘modern style’ I believe that by reincorporating traditional craftsmanship

Although we live in a time where more contemporary interpretations of beauty are considered as the defacto ‘modern style’ I believe that by reincorporating

that by reincorporating traditional craftsmanship will not only benefit how people experience the built environment but also create environment but also create jobs for the local communitjobs for the local community. H local community.

ere Although we live in a time where more contemporary interpretations of beauty are considered as the

Movement into and out of the site becomes paramount when introducing

Although we live in a time where more contemporary interpretations of beauty are considered as the defacto ‘modern style’ I believe that by reincorporating traditional craftsmanship will not only benefit how people experience the built environment but also create

environment but also create jobs for the local communitjobs for the local community. H local community. Here ere Although we live in a time where more contemporary interpretations of beauty are considered as the defacto ‘modern style’ I believe that by reincorporating

Although we live in a time where more contemporary interpretations of beauty are considered as the defacto ‘modern style’ I believe that by reincorporating traditional craftsmanship

will not only benefit how people experience the built environment but also create environment but also create jobs for the local communitjobs for the local community. H local community.

Although we live in a time where more contemporary interpretations of beauty are considered as the defacto ‘modern style’ I believe that by reincorporating traditional craftsmanship

will not only benefit how people experience the built environment but also create environment but also create jobs for the local communitjobs for the local community. H local community.

Movement into and out of the site becomes paramount when introducing more tourists to Uskudar. Public transport is a

Although we live in a time where more contemporary interpretations of beauty are considered as the defacto ‘modern style’ I believe that by reincorporating traditional craftsmanship will not only benefit how people experience the built environment but also create environment but also create jobs for the local communitjobs for the local community. H local community. Here ere Although we live in a time where more

Although we live in a time where more contemporary interpretations of beauty are considered as the defacto ‘modern style’ I believe that by reincorporating traditional craftsmanship will not only benefit how people experience the built environment but also create environment but

Section 5

Production, and Manipulation

Analysing the Topkapi palace for the purpose of reimagining its construction within the 21st century. The hope is to understand both its layout and use of ornamentation.

While conducting this interview I found that this link between the beauty of a structure, and its ability to be appreciated seemed to justify this application of contemporary bespoke design as being something that can prolong a buildings lifespan. Furthermore this understanding of Luxury as being linked to craftsmanship and storytelling at various scales seems very applicable to also becoming a driving factor to the Istanbul

Movement into and out of the site becomes paramount when introducing more

While conducting this interview I found that this link between the beauty of a structure, and its ability to be appreciated seemed to justify this application of contemporary bespoke design as

What is needed is needed What is needed is neededded

Although we live in a time where more contemporary interpretations of beauty are considered as the defacto ‘modern style’ I believe that by reincorporating traditional craftsmanship will not only benefit

how people experience the built environment but also create jobs for the local community. Here I drew an interior view of how people would experience the central courtyard; although it takes its liberty in

Section 6

Aims

Creating a more detailed depiction of the internal properties of the design and developing a structural system that allows for both private and public zones to function within a singular system.

Develop visuals that more accurately detail how different components of the Hotels programme function

Means of Achieving Goal:

The plans and external axonometric views serve as the primary means of understanding how the project works.

Developing a relatively simple structural system that can allow for a more realistic output within this larger urbanistic aproach

Creating an approach to ornamentation that utilises the defining factors of the Arabesque. In this insistence ornament will both serve as a means of defining programmes and attempt to better merge structural systems.

Means of Achieving Goal:

Developing a floor and tile layout that aid in guiding both members of the public and hotels guest sign in what can and can not be accessed.

Rethink the relationship between wall, columns and beam in the hops to create a smoother transition between each structural component

Section 6

Reinventing the Palace wall

A basic overview of the final design and the Zone of interest for further development

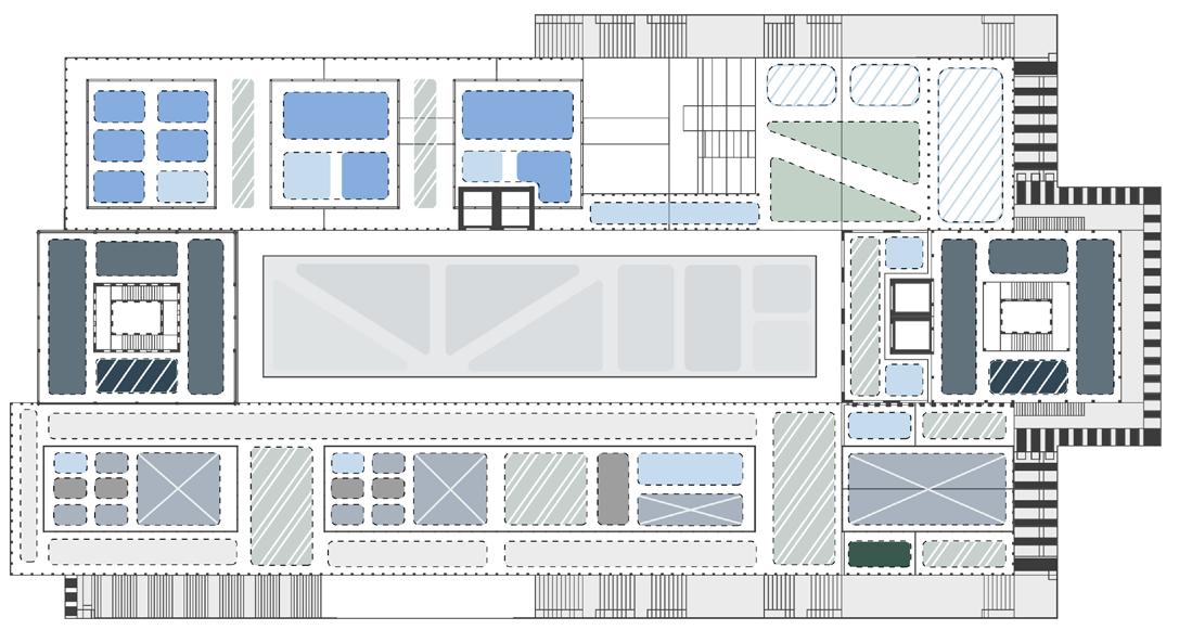
Two options of the primary building have been designed. The ground, first and second floor however remain constant

Section ‘X’ highlighted in the urban site strategy shown above represents that man area that will be developed to a higher resolution. The circular structure to the left is the ‘Baklava’ cafe whose access is granted to both members of the public and hotel guests.

The orthogonal structures to the right consist of steering areas and bars/pool lounges that can only be accessed by hotel guests. As already described in the previous section, the archways and enclosed pathways are what connect these two programmes.

As you can see from the rendered plan there is not ridges walls which separates public and private space. Topography and vegetation serves as the primary means of defining access while also allowing access to the waterfront.

Luxury hotels typically allow members of the public to access many of their facilities (bars, restaurants, spa’s etc). Except in this case the boundary which defines a traditional hotels layout is redefingined in order to place space accessible by non guests within the outer perimeter of the plan.

Section 6

Sections and the Role of Landscape

An overview into how ornament, level changes and landscape function within the scheme in order to allow members of the public to hotel guests to access various spaces.

The exterior is supposed to utilise ornamentation and structure as a means of defining programmes. For Example, external facades which are decorated with steel indented panels are supposed to represent pathways that are accessible by members of the public. This allows them to access the different internal and external levels. This makes it much easier when defining access points.

The close up of section three shown below shows how the ‘private pathway’ (used by hotel guests) connects to the arches which defines the internal and external layout of the private hotel spaces. Furthermore the highlights of section 1 and 4 shown below, exhibit how ornamentation has been used to define the internal layout of the baklave cafe. The staircase handrail, along with the floor tiles are the primary components which attempt to achieve this. When entering the sapice the goal is create a sense of fantasy irrespective of the guests origins.

The ground floor primarily contains the space which manufactures the baklava. People standing within the lower park can witness the process of creating these Turkish sweets (primarily roaling of the paestery and its decoration). Delivery trucks can easily access this space as it is at the same level as the main access road. Section 2 Shows how storage space, bathrooms and corridors are placed within single heighted space while staff meeting areas and offices are located in double heighted ceilings in order to allow natural lighting, fresh air and the creation of a fire exit.

The use of ornament really depends on the programme of the space. As already stated, enclosed pathways are heavily decorated in order to define access points in addition to defining boundaries between separate users. Furthermore service spaces used by the hotel’s staff are kept relatively minimalistic for the purpose of guiding members of the public to the first floor (which contains the baklava cafe and raised public park.) The ornamentation used within internal spaces also depends on the programme. The archway in the highlighted view of section 1 is by far the most complex expression of Ornament. This is due to it being the primary entry point into the cafe.

The Sections exhibited on the previous pages give a basic overview of how ornament, structure and topography function relative to each other. However, the section above is a better indicator of the level of detail which will be utilised within the internal and external elements of the building’s design. Having said that, the section shown above

is of ‘option 2’. Nonetheless both buildings consist of the same interior and identical applications of the Arabesque. Wall paintings attempt to link three dimensional extrusions of ornament with their flat counterpart. The aim is to create a sense of interaction between the two. This is also true regarding how the floor tiles are designed.

Section 6

The Kitchen and Service Spaces

Describing the inner workings of the baklava cafe. Here the production process, storage areas, management / staff spaces work in a signal efficient system .

1-Main Public park.2-Main footpath (leads to the bosphorus and the adjacent forest.3Entry into enclosed pathway (elads to first floor)4- Open Pathway (Leads to upper public park for a better view of the Bosphorus)5Entry into the Baklava kitchen6-Reception (used to signing of deliveries and accessing the elevator) 7- Central core ( contains lift and a spiral staircase which leads to the central bar/baklava shop on the first floor)8- Baklava pastry is mixed and machined to make the gough and rolled out into fine sheets. 9- Pain ovens used to cook the baklava and add the

hot syrup 10-Nuts and filling added to the pastry sheets prior to being placed within the oven. 11- Space used to decorate the sweets after being backed12- Storage room (cooled storage room used to keep baklava fresh) 13Automatic distribution system that allows trays of baklava to easily move within the system14Additional mixing and sorting area 15- Storage room 16- Storage rooms, bathrooms and staff changing room 17- Ventilation system 18- Staff room, kitchen and staircase with access to the upper garden.

A- Primary Access point (orange box= Baklava distribution system)

B- Central Core (defines internal programme)

C- Staff room with upper garden access)

1-Topography (Upper and lower public garden) 2-Base, 3- Central production (creating Baklava pastry, filling and decoration) (Visible for members of the public), 4- Enclosed pathway 5Less exciting elements of the Baklava production process (Oven, storage room, staff rooms, etc) ,6- Double height space for staff room (Natural lighting, fresh air and fire exit) , 7- Roof garden, 8- Automatic distribution system, 9- External wall, 10External window beams, 11- Structural columns and beams (Primary Structure), 12-Skylights (allow for natural lighting but not first air), 13- In Situ concrete floor slab , 14- First floor, 15- Enclosed pathway

X- Ground Floor and first floor enclosed pathways facilitate the movement between the upper and lower public parks in addition to the Baklava Cafe

A relatively simple structural system is chosen due to the complexity of the external topography. In reality a hotel construction budget may allow for one but not both.

The Baklava Cafe

Looking at the internal and external programme of the first flor and studying the tiles used. The aim is to create a space tat not only facilitates freedom of movement na efficiency

1-Enclosed pathway that connects upper and lower public parks, 2- Seating area with views of the lower gardens and Bosphorus.

3-Seating area with mainly views of the Bosphorus. 4- Main entry point to cafe. 5Trays and utensils for visitors. 6- Choosing Baklava. 7- Drinks collections. 8-Entry into Lift. 9- Internal garden. 10- Seating area. 11Main internal seating area.

12- Shop (Baklava, coffee, souvenirs etc) (used by those who want to eat outside or takeaway) .13- Bathrooms and storage rooms . 14- Storage room. 15- Ground floor double height space. 16- Open Pathway with skylights (Visitors can look down to see Baklava being made). 17- Beginning of dense green vegetation (beginning to define private areas). 18- Bridge that leads to ground floor

A defining aspect in how people experience the internal spaces of the design is how different two and three dimensional components gradually merge into eachother

Tiled surfaces and the creation of open bounderies

A- This is a close up of the wider tile layout. Although it is clear there is no fixed rule regarding how they are formed, the aim is to create patterns that gradually lead to spaces with different functions.

B+C-show how boundaries between walkable spaces, seating areas and entry points are defined by the use of these tiles

D- Here a sense of contrast is created between the richly decorated interior and the otherwise simple surface expression of its external counterparts

Unlocking the tiles meaning

1- Here the tiles follow the form of the staircase which leads to the second floor. It links directly to the cafe’s main entry point to guide people to the roof garden.2- Contrast between internal and interior spaces in order to create a sense of fantasy. 3- Larger tiles suggest walkable pathway and lead to elevator4- Larger tiles lead to internal garden and seating area

A-Second Floor (Baklava cafe for hotel guests)

(Served by waiter as opposed to first floor cafe layout)+ (Private hotel space)

B- Third floor (Hotel roof Gardens)

1- Central Core. 2- Seating area for hotel guests.

3- Entry point for hotel guests. 4- Enclosed Pathway used only by hotel guests. 5-External terrace. 6- Roof Garden. 7- Outer seating area (View of Gardens. 8- Arches Pathway (defined Hotels programme). 9- Dense greenery separates private and public gardens. 10- Entry point into reception and amenities. 11- Pool

bar (Barbecue, ice cream etc). 12- External seating area. 13-Bar (primarily for adults using the pool area). 14- Interior garden and fireplace with lounge. 15- A more contemporary bar/ lounge space. 16- Large internal Garden. 17External seating area.

18-Reception area (yet to be finalised). 19Path leading to pool. 20- Pool seating area. 21-Island (also a lifeguard seating area). 22Pool. 23- External seating areas with views of the bosphorus (can be used for venues like weddings). 24- Private park. 25- Pathway leading to private boat landing dock.

The basic principle of the tile layout on the second floor is identical to that of the first floor. However, given the programme is less complex, so are the tiles. 1-Tiles follow the dimensions of the steps to make it seem as if they are somehow

merging with the floor.2-More intricate floor tiles represent seating areas.3- Swoop elad to Main exit point (All windows are operable however this one functions as a door throughout the year) 4- Tiles lead to the enclosed pathway which connects to the hotel.

Section 6

A Contemporary Fantasy

The reinterpretation of the ottoman palace in 21st century contemporary architecture

While elevation ‘A’ is seen primarily seen by members of the public (from ground level), this building will be seen mainly from above by hotel

X- View of the building from the Bosphorus, Y+Z: Ground and first floor view of building from public gardens.

Adjacent Perspective: Seen from upper hotel levels

A:Best Depiction of the finalised designedB: Hotel Main entrance (Still need to be designed) C: View from the Bosphorus is suppose to create and sense of fantasy and compete with the ‘’Dolma Bachi Palace’’ on the opposite side of the waterway.

This still needs to be resolved. However the focus of this project was to rethink the role of the ‘Boundary’ within the luxury setting.

A luxury hotel tries to sell a dream that is exclusive in nature. Therefore how can such a building be constructed while still becoming a quintessential part of its wider surroundings?

Although we live in a time where more contemporary

While conducting this interview I found that this link between the beauty of a structure, and its ability to be appreciated seemed to justify this application of contemporary bespoke design as being something that can prolong a buildings lifespan. Furthermore this understanding of Luxury as being linked to craftsmanship and storytelling at various scales seems very applicable to also becoming a driving factor to the Istanbul hotel. This means of using tradition and modernity both in its wider narrative and its material

Section 1

Public?

Section 1

A Pinch of Paprika

Analysing Satoshi Kon’s film ‘Paprika’

as an example of

how

One can not specify the date in which the film Paprika is set; however, it is clear to the viewer that it takes place at a time that is not very far off from our current stage of societal development. The basic premise of the film is that man is at the cusp of developing a machine that allows others to enter the psyche of others in the form of dreams. In essence a machine called the D.C mini is developed for the purpose of revolutionizing the field of clinical psychology, however in the process of its development a fault occurs. This leads to the D.C mini in becoming less of a tool for psychological treatment and more of an interface for those who have used the machine to access each other’s dreams; in the vast majority of cases this is done without the knowledge or will of the user. The world of dreams and reality become blurred, essentially leading to the demise of the majority of the characters. A type of collective psyche is created thus creating a world that is both incredibly liberating yet catastrophic. Personally I saw great similarity of this collective

Individuality Uniformity

Overlap Remixing

Section 1

Overlap, Space and Scale

Understanding individuality in the context of modular design

Whether it be within the context of a city grid whose streets are set in accordance to strict rules or that of a slum, whose irregularity becomes the very testament to its volatility, the regular elements that form space remain relatively unchanged (columns, walls and beams). If we take the ‘Superblock’ found in a city like Barcelona you find a built environment whose urban layout follows strict rules. However when walking the city the constant change in architectural expressions and buildings scale forms a multitude of interesting

public and private spaces. A paradox to which the individuality of a singular element shines best under the strict accordance of a shared wider system. The following image tries to visualise how space that functions within a strict geometric layout can allow elements of varying functions to interact relative to each other. Image 12 on the diagram exhibits how certain ‘Spacial’ elements can reside within this system, essentially representing focal points of public space within the city scape.

The basic rhythm of the space is relatively easy to read when seen from a larger urban scale, yet when you focus on a singular aspect of the image and zoom in, its sense of irregularity becomes its most celebrated aspect. Here every individual archway, step and cavity becomes a space where the everyday aspects of Egyptian life and

culture interact relative to each other in a suspended sense of surrealism. This constant shift in scale, architectural expression and iconography within a shared basic system will be a major aspect of this project moving on. I hope to find means in which opposing programmes and vernaculares can become dependent on each other.

A Pinch of Paprika Section 1

Analysing Satoshi Kon’s film ‘Paprika’ as an example of how surrealism can create a storyline in which irregularity can form a collective sense of space.

One can not specify the date in which the film Paprika is set; however, it is clear to the viewer that it takes place at a time that is not very far off from our current stage of societal development. The basic premise of the film is that man is at the cusp of developing a machine that allows others to enter the psyche of others in the form of dreams. In essence a machine called the D.C mini is developed for the purpose of revolutionizing the field of clinical psychology, however in the process of its development a fault occurs. This leads to the D.C mini in becoming less of a tool for psychological treatment and more of an interface for those who have used the machine to access each other’s dreams; in the vast majority of cases this is done without the knowledge or will of the user. The

world of dreams and reality become blurred, essentially leading to the demise of the majority of the characters. A type of collective psyche is created thus creating a world that is both incredibly liberating yet catastrophic. Personally I saw great similarity of this collective phycological interface created by the D.C mini and the notion of culture. .The way in which the film layers imagery from each individual participating in the shared dream results in an interesting build up of ideas and space. The constant use of the colour red becomes this shared aspect of the focal point of each frame. I wonder if it is possible to structure the built environments in a way whereby clashing ideas can be understood relative to varying focal points.

The following drawing is my interpretation of the film ‘Paprika’ if it was to be set in Cairo. The film constantly layers objects that not only represent japanese culture but vast arrays of interests and midsets; when examined outside of the context of the film it might seem like a random amalgamation of things however once you get to understand the collective nature of the dream scape the correlation of certain elements relative to each other become clear. Element ‘A-D’ shows how I incorporated a traditional Arab geometric pattern when forming this image. Taking this as a base I tried making it three dimensional by incorporating iconography that is more familiar with the egyptian way of life. Elements 1-6 are examples of forms and individuals familiar to the egyptian context; most notably the evil eye amulet in a recurring theme throughout.

Section 1

Material and Form

How a singular unit will change relative to various people

The function of a Tee-shirt is essentially to clothe an individual, keep them warm and maintain their modesty. Yet if that was its only purpose we would all be wearing simple plain coloured Tee-shirts. Design comes into play when trying to express your

individuality, and thus in its wake creating countless jobs. The following exercise is looking at how the ‘DC Mini’ (taken from the film ‘Paprika’) would be expressed differently once attaining wide spread use amongst the masses.

Gradual growth around the singular element that is the human form can become the potential starting point for designing changes that function in accordance to a singular system (that being our shared anatomical structure)

Similar to the prior pages in which individuality is reached even when functioning within a strict singular system I tried envisioning the human form as being the arbiter of uniformity within design while also being its patron in forming special outputs. I chose to design both the persons form and the grows that are dependent on it.

Section 1

The Individual and the Collective

How various manifestations of the singular element can function within a shared space

By taking all of the differing expressions of the DC mini and placing them on a cast of people (which I designed for the purpose of representing changes in age and character) I was interested in seeing how they would interact relative to each other. I chose to place them within a built environment that consisted of modular components that gradually grew to create both private and public space. Similar to the previous

pages the detail of each individual element becomes only apparent once you zoom in; therefore at a larger scale it is its uniformity that becomes its defining aspect. Nonetheless once light and colour are introduced into this system the notion of a hierarchy can be unearthed. How a strict grid can allow for interesting interpretations of contemporary Egyptian design will as a result become a focal point of this project.

Section 1

Multiplicity within a Single System

How changes in a base grid can create outputs that remain legible amongst the wider system

If we take for example the human form as the singular unit to which a grid functions, how this unit is read will create a series of possibilities whereby the uniformity of the singular element is brought into question. Take images 1-9 as an example, here the topography of the skin can be read both via its vertical and horizontal elements, resulting in the singular unit in itself becoming a changing variable. This shift in orientation can also be implemented for the purpose of creating more interesting expressions of the base elements from. Furthermore if a foreign entity is added (like element 9) the storyline in its entirety changes , giving rise to the potential introduction of a narrative to both individual and wider components. Images A-f shows how this basic unit can be remixed to create a distorted view of the original form, thus creating additional interpretations of its horizontal and vertical outputs.

Section 1

Conjunction and Deformation

How varying styles can reside within a singular system while maintaining easily traversable and defined urban spaces

Throughout the previous exercises the hope of creating a sense of individuality within an overarching gridded system became the clear focal point of the project. By analysing the film ‘Paprika’ the notion of highlighting uniformity amongst varying layers of spatial and iconographical expressions of Egyptian life, alongside the introduction of new traditions that lack any shared characteristics with existing realities became a perfect metaphor for Cairo’s built environment. I tried devising how the ways in which a grid is read may affect its output. In addition to this I looked at potential means of setting the human as the unit to which design as a collectiver is to be measured, however both these ideas lacked any sense of a real world application.

Therefore I simply chose to reseach ways in which various styles of design could interact within a singular grid, thus celebrating the city’s chaotic architectural heritage while maintaining an easily traversile urban space. In essence strengthening the ideas laid out in pages 1-4. Sections A-D each represent various vernaculars, whose function also relate to a different programme. For example section C embodies an industrial output while B and D represent areas relating to commerce and housing. Section A aims to celebrate existing architectural design, thus is tasked with cultural and religious institutions. The grid aims to facilitate movement between eact zone and connect it to existing neighbourhoods

The focal point of the design aims at creating a primary intervention that incorporates each of the following styles and programmes allocated to the individual districts within a singular installation, thus hoping to create a sense of hierarchy and potentially unearth a new form of architecture

Section 1

Destruction Via Modernity

The forced overlap of existing expressions in the hopes of creating something new

Although this design tries to express the ideas developed in previous pages it greatly lacks the original sentiment of overlapping systems, styles and programmes in the hopes of creating something new. By looking at the singular building as an individual manifestation of a style/programme and simply creating various interpretations of it the sense of overlap is lost. Therefore instead of each building belonging

to a shared collective system it belongs to its own cut off intervention. This is due to the fact that the grid’s streets and public spaces aid in creating boundaries between the separate programmes. To amend this issue a means of looking at the grid as a singular body whose varying spaces result in a symbiotic relationship must be devised.

When trying to impose a grid on an urban landscape that lacks one you are essentially trying to impose order onto the existing built environment. This can be seen as being authoritarian however if you are aiming to create a space which facilitates, commerce, industry, culture and therefore the improvement of a population’s quality of life a

series of rules must be followed. However, if a Utopian view is taken to the extent of the image shown above you lose the characteristics that gave a city its individuality and in essence rob a people of their culture. Heritage and potential deviation from the grid system is essential in order to maintain interest.

In order to better understand this concept of ‘Spatial Overlap’ and ‘Multi-Vernacularism’ I need to pinpoint an existing community within Cairo and look at means of remixing a people’s current socioeconomic tendencies with new possibilities. By overlapping the past, present and future within a singular system it will result in a space that celebrates

the constant interaction between social and commercial processes that would otherwise exist independently. The hope is to create an intervention that not only improves a people’s quality of life but also creates a blueprint for a contemporary Egyptian design which can be replicated throughout the city.

Section 2

A Pinch of Paprika

Analysing

Satoshi Kon’s film

‘Paprika’ as an example of how

One can not specify the date in which the film Paprika is set; however, it is clear to the viewer that it takes place at a time that is not very far off from our current stage of societal development. The basic premise of the film is that man is at the cusp of developing a machine that allows others to enter the psyche of others in the form of dreams. In essence a machine called the D.C mini is developed for the purpose of revolutionizing the field of clinical psychology, however in the process of its development a fault occurs. This leads to the D.C mini in becoming less of a tool for psychological treatment and more of an interface for those who have used the machine to access each other’s dreams; in the vast majority of cases this is done without the knowledge or will of the user. The world of dreams and reality become blurred, essentially leading to the demise of the majority of the characters. A type of collective psyche is created thus creating a world that is both incredibly liberating yet catastrophic. Personally I saw great similarity of this collective

Individuality Uniformity

Overlap Remixing

Section 2

Introduction

Rethinking public space within slums by introducing a multi-programme community centre which focuses on both architectural/urbanistic arragements within informal settlements and the wast management Processes undertook in ‘Manshiyat Naser’

Cairo’s Garbage city is inhabited by the ‘Zalabeen’, a primarily Coptic Christian minority within Manshiyat Naser. This densely populated informal settlement sees 70 thousand of its 263 thousand inhabitants collect, sort and sell the city’s waste. It can be said that its inhabitants both live from and amongst the garbage. The zalabeen are able to recycle 80% of the waste they collect, although this system mainly functions due to excessive manual labour as opposed to technological advancements. This is extremely impressive when compared to the 25% recycled in European systems. However the cost of such waste management is a life expectancy capped at 55 years of age and rampant disease. Therefore the primary aim of the design realisation of this project is to look at means of rethinking how public space relates to the slum setting in order to improve public health and how garbage can be seen as a means of creating energy, producing building materials and giving its inhabitants an economic incentive to innovate the existing processes present within this industry. Given the industrial process of waste management totally engulfing the public realm, understanding how to incorporate this within the design alongside other characteristics of daily life is paramount to create a design that both relates to the site and is beneficial in pushing the area forward.

Extraction

The Past, Present, and Future of Manshiyat Naser’s inhabitants

A- Between the 1950’s-60’s Coptic Christian smoven into ‘Manshiyat Naser’ with a previous history of raising swine.

B- The inhabitants became garbage collectors while feeding livestock primarily biological waste

C- Due to the swine flu all pigs within the area had to be killed. Nonetheless this did not stop the area from processing 3-4 thousand tons of waste a day ( each ton supplies around 12 people with work)

D- Community centre which aims at reimagining waste management and public space

E- The gradual redevelopment of the surrounding housing

Initial concept of the Multi-Programme arrangement of the community centre

X- Connection the surrounding existing slum to aid in gradual redevelopment

Y- Publically accessible multi level pathways that aim to rethink ground level

Section 1: Religious spaces (and education space) that look at the public realm within a vertical sense. both a church and mosque are introduced to create community engagement amongst different religious sects.

Section 2: Courtyards that give inhabitants access to public space yet still allow certain industrial process to be undertook (waste as energy to create a series of bath houses)

Section 3: Education Spaces, commercial spaces and workshops which aim to innovate waste management processes and create better economic incentives for its inhabitants

Section 2

Waste Collection in relation to Social Structure

Understanding the current chain of waste management in order to redevelop existing social structure and introduce new social and commercial outputs

Essential Facts

3-4 thousands tons of waste come tons this place everyday

Every ton of waste employs around 12 people

Collectors=Men Sorters=Women+Children Onsellers= External Party

A lot of the families that sort through the rubbish specialise in 1 specific area and have contracts with overseas companies

60000 Zalabeen (primarily garbage collectors) reside in Manshiyat Naser. This is 24% percent of Manshiyat Naser’s 258000 population

In 2003 the government sponsored private companies to improve waste collection in Cairo. This has reduced the Zalabeen’s profit margin

350,000 pigs where culled in 2009 therefore an alternative source of income is needed

Current Socio-Economic Model

Zalabeen Community

Waste Collection (Male)

Waste Sorted (Female)

Waste taken to Manshiyat Naser

Introducing New Social Programme

Reimagining current norms and intruding new commercial and social possibilities

1-Collection (type dependent on Family)

2-Waste Storage (need to be redeveloped)

3-Waste Sorting

4- Commercial means to sell goods made of repuposed waste

5-Energy Production scheme that utalises waste that normally has little to no value

Current Socio-Economic Model

Existing Social System

Main Profits are seen by middle men and waste porcessing

Outside Party (Wholeseller, Process, Recycle

A- Given Families specify in a specific type of waste collection the schemes MUST BE VERSATILE IN THE TYPE OF PRODUCTS IT USES.

B- Given current social norms regarding sex the scheme must incorporate space that consist of segragated and mixed programmes. This will ensure the introductio of women within the sites commercial gains.

Waste Porcessing and the sale of repurposed goods will reduce the need for middle men thus increasing the communities profit margin

Waste Porcessing Shredding etc

Industry (Fabric,Construction...) Eduction (Teaching new possibilities)

1- Waste Collection (Wood offcuts)

2- Biomass to cash scheme

3- Storage System

X- Underground

X- Sorting and Processing System

4- Energy System

Y- Describing the Energy system

6- Insinerator (Heats up water)

7- Steam Spins Turbines

8- A.C. moter creates energy

9- Batteries A-lighting B-Hot Water C-Industry

Energy (Lights, Industry, Water) Hygene (uses biomass to heat )

Section 2

Site Analysis

Understanding the pros and cons of the sites existing characteristics

Access Routes

Existing roadways (Vehicle accessible)

Primary access routes

Cliff Base (little to no incrastructure)

Road allows larger trucks to access site

Slopes allows cliff to be traversed

Not accessible to larger trucks

Incremental Grid Development

Densely built urban blocks

Gradual development of an unban grid

Zones segregated by function to reduce the constant human interaction with waste. This is done in the long term basis to prevent total gentrification.

Topography

Key landscape features (sudden rise or dips in topography)

Old Cairo (visited by tourists looking to experience Fatimid historical sites)

Modern developments mainly built in the last 15 years

Deconstructing the districts in and round Manshiyat Naser to find potential architectural precedents and viable economic schemes

‘Manshiyat Naser’ (The Garbage City)

Cemeteries like ‘The City of the Dead’ (Housing/Graves)

21st Century upper middle class developments

Informal settlements with more legible roadways

20th century middle and upper middle class districts

Open space with public amenities (malls, museums...)

Old Cairo major sites (very popular with tourists)

Least Legible Urban grids and roadways

‘Manshiyat Naser’ (The Garbage City)

Open Green Space

Historical Sites (The Cave Church, built into the cliff)

Open space (not built on due to the topography)

21st Century developments

More Legible Urban grids and roadways

Cemeteries like ‘The City of the Dead’ (Housing/Graves)

Main location of the proposed community centre

Given a mosque will be built it must align with mecca

Numbers 1-6 each look at a different site characteristic surrounding the centre’s proposed location. Modernism, Bricolage, traditional Fatimid design, postmodernism and all the other traits of an informal settlement give the site the potential to incorporate vernaculars of the past, present and future.

Waste not gone to Waste Section 2

Developing a wider narrative for the use of waste and their by products in conjunction with the development of improved public space

1-Waste as an energy source

2-Waste as an economic incentive

3-Waste and livestock

4-Waste as a construction material

Garbage incinerator and shredder

Activities relating to repurposing waste

Housing (incorporating a bricolage approach)

Religious Space (both a mosque and church)

Public access cores (public infrastructure)

Public access cores (public infrastructure)

Multilevel publicly accessible pathway

The current state of Manshiyat Naser is such that the industrial process of collecting, sorting and processing waste totally engulfs that public realm. The ground floor becomes part factory, part public pathway. I wanted to look at means of using infrastructure and to redefine what is to be considered as ‘ground level’ and create pockets of space that allow members of the public to separate themselves from the processes of waste management. Furthermore this approach will have to work in conjunction with both the existing and new housing scheme for the purpose of gradually introducing an improved urban grid to the site. Diagrams ‘X’ and ‘Y’ are the initial thoughts of the structural and programatic approach while schemes ‘A-C’ begin to pinpoint ways of having various programmes working relative to each other.

Creating an initial story line for how Manshiyat Naser can be reimagined in the age where waste becomes a source of innovation as opposed to

1-The current ground level still remains the base zone of waste management. offcuts of wood are shredded and fed to the incinerator.

2-The incinerator is located underground in order to create a more controlled environment

3- Energy and hot water are stored in large water tanks and batteries

4- A pathway leads to either a bathhouse or above ground (this makes the space more insulated to retain heat)

5- Stairways and initial building extrusions lead to the upper levels while also hintiner to higgen gardens.

6- A mesh of arches and pathways allows for multi levels access

7- Various programmes and vernaculars interact relative to each other

8-Open space and roof gardens become oases and places of refuge

The current reality of that of the Zalabeen is one of despair. Not only are they marginalised but they have little to no means of leaving their current socio economic predicament. Their position within the city in serving an essential service is not only disregarded by the government but are looked down upon by the population as a whole. This is mainly due to the unpleasant nature of waste collection. However by turning their existing familiarity with waste collection to one which champions socioeconomic growth a means of improving the site as a whole can be devised. By introducing an intervention that implements a multi program system whereby waste collection is also linked to energy production, commerce and innovative manufacturing you can create an intervention that remixes current social tendencies with new outputs. This alongside changes in education, public Infrastructure, and the general layout of Manshiyat Naser a plan for changing similar slums can be implemented throughout the entirety of Cairo.

Section 2

Public?

Trying to redevelop how public space relates to the slum setting

Given the ground floor has become the interface to which the industrial processes concerning waste collection takes place, it has totally engulfed all public space.

Images A-D try to create an initial means of understanding how ‘Multi-Vernaculaire’ can be implemented within a singular building. Given I am trying to combine social, commercial, industrial and cultural processes all within a singular structure, which in itself is located within a densely populated urban setting, the notion of public space must be redefined. For example, given the ground floor is an area whereby waste is collected and sorted, by potentially elevat-

ing public space to the roof levels you allow for the redevelopment of urban pockets while maintaining existing industrial processes. This intersection between new and existing ideologies will hopefully allow for innovation to take place within the ‘in between’ spaces. However if public space is to be relocated to the first or second floors, pathways must be made accessible to the public in order to facilitate free movement.

In order for open space to be beneficial to the public in the long term it must also serve an economic role in improving the quality of life of its inhabitants. Otherwise it will simply be a pretty refugee to an otherwise bleak existence.

Section 2

To segment and To Link

The three principles to manifest change within the slum environment

In order to create change within a slum you must given its inhabitants a better return of investment on their business ventures (the garbage they collect), you need to help aid in resolving any social issues present among the population and you need to improve the populations literacy rate in order to give them access to more potential job opportunities. In the hopes of attaining these goals I devised three architectural directives:

1- Developing a form of publicly accessible infrastructure that allows the slum dwellers to access multiple levels of public, commercial and industrial space, thus facilitating the multiprogrammed system

2- Public spaces that are separate from any

of the industrial process of waste collection in order to improve the public mental and physical health

3- Allow for the various programmes to work relative to each other in order to develop innovative means of viewing waste management

This intersection between a public and private initiative aims at ensuring that the members of the community find ways of improving the sites commercial output without having to be fully dependent on aid. By making energy and manufacturing dependent on both the garage and its relation to public space I believe it is possible to create schemes from the Zabaleen to greatly improve their wider social standing.

Section 2

The Axis and is Possibilities

Developing potential pathways that allow members of the public to access the upper levels of the design, in order to elevate the notion of the ground floor

The notion of ‘The Axis’ and how it relates to potentially allowing members of the public to freely inhabit multiple levels is very much essential to this project. I see it as being not only a pathway but also the interface which allows the multi-programme system to develop symbiotic relationships between the varying functions. Options 6, 12 and 100 seem to produce the most promising results regarding the creation of extrusions and voids that promote the introduction of various installations while maintaining a common

rule of movement. The placement of a central courtyard creates an area that gives the public refuge from the surrounding waste management while also being representative of traditional egyptian design. However it is fundamental to analyse how each element (the pathway, the installations and the courtyard) will function relative to each other to ensure that notion of ‘publicly accessible leisure space’ permeates throughout the entirety of the design as opposed to only being prevalent in the courtyard.

Section 2

Developing a Base Concept

An initial attempt in applying the multi programme system to the ideas previously developed

-1: Waste to energy scheme (produces energy for the building and heats up water for the male and female bathhousse)

1: Religious (Mosque and Church), Entry into bathhouses, public park, Access point to upper levels

2:Religious Spaces and an open leisure space to allow member of both communities to interact

3: Education spaces (used by both the mosque and church and also include separate libraries/class rooms to allow students to learn new skills)

4:Education Spaces (Library to allow for self study), larger open space to allow for leisure and public discourse

5: Roof Gardens and various steps to allow for events to take place

C/

1+2: The orange arrows show various entry points, this very porous system promotes free movement while maintaining a boundary between the leisure and industrial spaces

A: Archways allow for people to easily access upper levels

B+C:Mosque and Murch (shared open space in the upper levels)

D: Staircase separates certain elements from the main prayer area

E+F+G: Steps and pathways allows for the subtle transition between upper levels

Manshiyat Naser, like most slums in the world, has little to no order with regards to its urban or architectural layout. Its built environment is dependent on the small sums of money available to its inhabitants, leading to exposed brick and lack of open space being the defining factor in how people experience the informal settlement. However there is no lack of interventions that deviate from this rule, resulting in a collage of styles which seem to not follow any rules. I propose that this volatility in urban and vernacular layering can serve as a potential base for the creation of a new urban experience amongst Cairos built environment.

Section 2

Public Infrastructure

n initial attempt in applying the multi programme system to the ideas previously developed

Underground elements (-1)

1-Garbage incinerator (A smoke stack most be considered in the design in order to release the steam developed in energy production)

2- Biomass storage area (collecting and storing waste to be burned)

3- Energy Transfer systems (the circles represent water tanks to be used to store water for the bathhouses and roof garden irrigation systems)

4-Storage (to be used by the entirety of the multi-programme system)

Upper Levels

5-Male and female bathhouses (storage rooms, baths, changing rooms etc)

6-Showers (alternative to traditional baths)

7- Gardens (to be used to specify the type of public space the community is encountering. For example when open space is experience without the presence of green spaces it is to be used to facilitate education and or commerce)

8-Transition spaces (used to give women a better sense of anonymity when entering spaces like bathhouses or prayer rooms)

9- Religious entry spaces

10-Bathrooms (some are publically accessible and some are not)

11- Open space (to be used to host markets, events, educational programmes etc)

12- Potential internal gardens within closed off buildings

Section 2

Levels of Public Space

An initial attempt in applying the multi programme system to the ideas previously developed

A/Mosque(its orientation must face mecca in order to ensure that people are praying the the right direction)

B/Church (Although there is no need for it to face a specific direction it would be beneficial to follow a similar geometry to that of the mosque to reduce the projects complexity)

C/ Archway voids can potentially be used as pathways or entry points to various installations

D/ Roof gardens produce shade and therefore allow for the public to comfortably inhabit the upper leisure spaces

E/ Roof gardens can be potentially incorporated to the inner programmes of the religious spaces

F/ Internal pathways allow for free movement throughout the entirety of the design

G/ Openings specify entry points

H/ Larger planting pots allow for potential urban farming

I/Larger opening specifies primary entry and exit points, resulting in a sense of hierarchy

J/ Slope leading to the subterranean elements of the design

The attempt of developing the multi-programme system in the previous 4 pages used public space as a means to create buffer zones between each individual function, resulting in shared areas of interest. Although this idea is beneficial in ensuring sunlight and passive ventilation penetrates the structure, it results in the archways becoming glorified staircases as opposed to a link between various interventions. As a consequence it is important to reconsider the design as a whole and focus more on the direct impact of each consecutive element to its adjacent counterpart, thus structuring the program in a way that encourages innovation and commerce. Schemes A, B and C show my initial attempts in revisiting the pathways developed on the page titiled “The Axis and is Possibilities”. I believe option C shows the most promising result as it orthogonal layout will work better with the ideas developed in the first carpet regarding how individuality and uniformity function relative to each other.

Given the proximity of the site to some of the most significant cultural landmarks Cairo has to offer the possibility of creating a place that allows touism to flourish produces an alternative revenue stream for the local community. However given its current issues regarding safety and hygiene

this is very unlikely unless significant change is introduced. Therefore by placing special components within the structure as a whole I hope to create a sense of fantasy within the design. An industrial and commercial endeavour whose architectural qualities create a sense of Egyptian imagination.

A B C

Generation Section 3

Further developing the project under the guide of the research conducted on previous pages

Having researched the role of the grid in expressing both individually and uniformity in order to achieve a cohesive system I must now apply this concept directly to the slum setting of Manshiyat Naser. The intersection between the individual elements of the multiprogramme system is paramount during this process as it will give rise to ‘overlapped space’ which should in theory result in remixed programmes and therefore subtle transitions between varying programmes. In addition to this, how public space relates to the

various floor levels of the scheme is essential to research as it must relate both to the practical purpose of facilitating waste management and ensuring adequate leisure space. Throughout this process principles of shifting vernacular and a more overarching sense of hierarchy will be applied in order to ensure that the following project follows safety regulations and ensures passive ventilation and the penetration of sunlight. In essence this section is trying to apply the theory researched to practical use.

1:Irregularity and no real sense of cohesion seems to exist within the current slum setting.

2:A section of the slum is selected for redevelopment (adequate open space is kept around the perimeter to ensure potential links with the surrounding buildings)

3: Stepped buildings are placed besides the existing build environment to ensure subtle transition between upper levels

4: Basic Axis point are set to define entry and exit points

5: The base extrusion is cut to follow the primary axis points (these cuts will form the primary means in separating the individual components of the programme)

6: The Original extrusions are separated into three levels and the middle segment is offset by 2.5 meters to ensure additional open pathways on the first floor)

7: Special elements (of varying architectural styles). These buildings are clearly visible when inhibiting any of the external

....public spaces. Their purpose is to give a sense of hierarchy to the design and create clear entry and exit points relative to each specific programme

8: Public Access cores (shared cores allows members of the bulic to access the interior of various programmes. They are placed to ensure fire safety and that disabled people can access the design as a whole)

9: Steps allow members of the public to freely explore the roof gardens (they also serve as potential emergency exit routes in the case of a fire)

10: Green spaces scattered throughout the design (preferably placed in areas with access to shades in order to reduce the amount of water needed)

11: Upper pathways set with a different material in order to give clarity of movement

12: Extrusion and cuts created in order to ensure the project functions relative to the various programmes (multivernacularism is applied to create boundaries and shard space)

Section 3

Order / Disorder

How movement relates to the inner and outer elements of the design

Given the scale of the project I hope to take a simple orthogonal approach as I believe that its impact will result in the gradual development of the buildings surrounding the site. Therefore its has the potential of instilling a grind onto the entirety of the site in the long term

1- Basic entry/exit points (given the arched pathway is set to have a width of 5m it should be more than adequate to allow people to access the building via multiple directions)

2-The base extrusions are dependent of the primary pathway (this will allow the interior elements of the design to be more easily linked to the peice of public infrastructure)

3- Secondary pathways allow member of the public to traverse the site via multiple directions (these cuts exist on both the ground and first floors)

4- Special towers are placed to ensure a sense of hierarchy is achieved ( in this case 2 are used to allow steam to escape the bathhouses and 2 are used for the church and mosque)

Section 3

Cultue as a Manifestation of Public Space

How a flexible design can relate to various responses to Egyptian tradition

The following images represent the basic ideas in how the space could be inhabited in relation to current traditions. Roofscapes, open pathways and bridges are all potential intervention spaces for markets, cafes and meeting points for the public. By making the structure porous it allows for various additional events to take place, for example during Ramadan the archways can be converted into large food halls for members of the public to break the fast.

1-Base (around 6000m2 should be enough to introduce a new district to manshiyat naser)

2- Way in which the main building interacts with the existing structure must be further developed

3- Changes in topography may serve as a means of transitioning between various programmes

4- Base used for the main building must be flat to ensure simple construction methods can be applied

5- Primary buildings (reasoning between voids and extrusion must be further developed)

6- Incinerator must be developed in a way which allows member of the public to safely inhabit the site as a whole

Structure and Multi-Vernacularism in relation to the Multi-Programme system

Larger Exploded Axo 1-Base footprint

2-Arched pathway (allows public to access ground, first and second floors)

3-Ground Floor (Mainly occupied by bathhouse due to lack of sunlight), 4&5-First and second floor contain education, commercial and manufacturing spaces, 6- Second floor contains shaded roof gardens and various cafes/ commercial spaces (hopefully attract tourists), 7- Bathhouse towers allow steam to escape, 8-Public access cores , 9&10- Church and mosque with seperate central staircases (which encase a library and additional learning spaces)

Multi-Vernacularism

Blue: Postmodernism blocks (allow for colour and ornament to be introduced)

White: Modernism (simple cleancut faced)

Red: Exposed brid (celebrate the existing built environment)

Orange: (Traditional Fatimid architecture celebrates the citie heritage)

Section 3

Issues and Opportunities

Pinpointing issues with the ‘initial design 1’ in order to further develop the scheme

The main issue with the current design is that it takes much liberty in deviating from the original 5x5m grid, resulting in no real sense of cohesion between individual elements. Moving on a more precise application of a grid must be imposed. In addition to this the towers use up too much space; instead of being functional elements of the design they simply serve an aesthetic purpose. Furthermore the project seems to totally disregard its surroundings, even though a sense of order must be achieved it should be done in a way that allows the structure to be linked to the existing built environment.

A more accurate interpretation of existing Egyptian styles (most likely Fatimid in nature) should be applied in order to ensure it reflects the current tastes of the local population. Furthermore the internal courtyard must be understood in relation to both waste management and leisure space.

It is safe to say that the elevations show that the current design is a mess. Even with the external arched pathway it seems to follow no overarching common principle. Although I originally intended to celebrate the chaotic nature of the manshiyat naser within this scheme I believe that it should at least contain

a common theme between individual components. Only then can the volatility of the slum be turned into a positive design contarint as opposed to a destructive aspect of informal settlements. How common pathways on the upper levels of the design may serve as a solution to this problem.

Section 4

Uniformity and its Possibilities

Adding additional layers of circulation on the upper levels of the design and developing additional ways of viewing the arched pathway

1-Series of gardens placed at ground floor help guide movement into and out of the building (their layout also helps separate the industrial and leisure spaces)

2-Arched Pathways (instead of only wrapping around the perimeter of the building it also penetrates the centre of the scheme)

3-Public access cores (3 are incorporated as opposed to the original 2)

4-Ground floor units (religious, commercial and industrial) (should be around 4m in height)

5- First Floor (religious, craftsmen/women workshop, education)

6-Second Floor (religious, education, leisure)

7-Steps that allows member of the public to freely explore the upper levels

8-Roof gardens (the orange represent bridges that connect to the upper leisure spaces)

X-As the roof level shows the premise of this design is that multiple streams of circulation function relative to each other in order to facilitate the multiprogramme system.

Understanding the role modular design with have on the project as a whole

Given Manshiyat Naser relies on the constant layering of in situ structures, which disregard their individual impact on its adjacent structure you tend to get buildings that constantly contradict with each other. This makes navigating the area as a whole significantly more difficult. By introducing prefab blocks onto the site the public is forced to work relative to the dimension of these elements. As a result you can introduce more uniformity to the slum and consequently better define public space. I propose that the Arched pathway be made of such components as it will serve as a base framework to allow various layers of in situ structures to interact with it in a way which safeguards the general orientation of the space while celebrating the disorder present within slums.

Section 4

To Interact

Should struicture Ignore or link to the slum?

The various layers of circulation work relative to the system as a singular element with sudden common links with its surroundings. It is isolated in its typology and structural layout however I’m not particularly sure if that is to be considered as a positive or a negative. If the topography surrounding it is to be redesigned it could better incorporate its surroundings.

1:Irregularity and no real sense of cohesion seems to exist within the current slum setting.

2:Various base levels of the site are selected in order to develop a better sense of cohesion between new and existing roof levels (various redefinitions of the ground level will take place depending on the programme taking place)

3: Central courtyard is developed (creates a sense of refuge)

4:The base extrusion is cut to follow the secondary axis points (hopefully links to existing streets)

5:Internal arched pathway is developed

6: The base extrusion is cut to follow the primary axis (also links to the existing buildings)

7: Arched Pathway is developed alongside the primary entry and exit points

8: Voids and exturison added to the arched pathways to developed various gardens and leisure spaces (potential popup spaces for cafes and/or market stalls)

9: Smaller courtyards added (alongside mainly manufacturing and education spaces) (although the public is allowed to traverse these spaces they are mainly introduced to improve the staffs working conditions and helps facilitate passive ventilation)

10: Voids placed on the first floor to ensure passive ventilation

11: First floor is offset to allow people to circle each individual programme

12: Public access cores added

13: Various roof gardens added (public access is granted to all of these spaces)

14: ‘Specials’ are added (these correspond to the focal points of the design which highlight entry points and give the structure a sense of hierarchy) (hopefully they will follow the ideology exhibited by Fatimid architecture)

15:Adjacent housing structure is redesigned (using the same grid as the main intervention)

16: Upper bridges connect to the surrounding buildings

The Public and the Multi-Programme System

Further developing how the Multi-Programme system will function in regards to the layering of architectural styles and the addition of multiple circulation strategies

Vernacular can be a means of identifying programmes and specific entry points throughout the entirety of the building. This in addition to the scale in which various base components are used will help members of the public to navigate an otherwise complex circulation system. For example in this scheme large archways represent the boundary of leisure gardens while smaller arches represent space used for education.

In this design the smoke stack is incorporated directly into the outer perimeter of the main building as opposed to being placed in a separate structure in the periphery. By doing so various environmental and social considerations must be taken into account. For example, how the

staff of the energy, manufacturing, social and hygienic sectors work relative to each other is extremely important as the scheme must respect the current social norms that separate waste management via sex while still ensuring that the women feel welcome within the space.

As shown by the above site plan this iteration takes the scheme’s relationship with the surrounding built environment as a major aspect of the design. For example there are 4 means of linking the new building to the existing built environment:

1/ Using Changes in topography to create transition spaces between the boundaries of new and old build

2/ Using shared green spaces to ensure that locals have a sense of ownership of the new public amenities

3/ Connecting the rooftops of existing buildings directly with the upper components of the new structure

4/Directly linking old and new streets in order to make sure the project does not overly complicate circulation at ground level

Section 4

Vernacular and Hierarchy

The role of vernacular in creating a contemporary interpretation of Egyptian architecture

Developing industry, and social services is a means of improving the quality of life of the local community however it does not ensure that the building being introduced will stand the test of time. Offering such a large structure a storyline will not only allow it to function alongside the existing social and industrial framework of the site but give it a sense of familiarity and longevity it would otherwise not have. Industrial landscapes tend to lack a certain human touch that make them habitable, however if the sauce is made to seem familiar and or beautiful I believe that it will allow both work and leisure to comfortably reside within the same space. This can be done by tweaking the materials and architectural styles used throughout the building.

The following exploded axo shows how the scheme is built up. It shares similarities with previous design however one its primary goals is to rethink how circulation functions within the upper levels

As the following close ups of the above axonometric show the pathways used by the local community to explore the building are easy to read as they use a totally different material characteristic from the rest of the building. However by making the arched pathway function as a system built up of various different components the scheme greatly loses its sense of uniformity and as a result makes interpreting each individual program unnecessarily difficult. Therefore the next iteration must continue the principles of vernacular and circulation applied to this design but make it much more legible.

Section 4

Public Pathways and its Possibilities

Taking Menshaya Nassir as a Case Study for the possibility of redeveloping slums in a way that improves community engagement with public space  in order to prevent total gentrification

1/Existing streets directly incorporated into the schemes layout (with will make the ground floor function much more cohesively with its surroundings)

2/Housing (modular blocks allow in situ elements to be layered on top of them)

3/Changes in topography (space will transition better between new and existing elements)

4/Archech pathway (Creates boundaries, facilitates circulation and makes the deign more legible)

5/Building blocks (Multi-programme)

6/ Special elements (highlight entry point and create a sense of hierarchy

7/ Public access cores

8/Upper connecting bridges

Section 4

Function, Form and Furture

Understanding the pros and cons of the site in developing a schemes that is both socially responsible, economically viable and innovative within totally removing the sites character

1- The use of a biomass incinerator will significantly reduce the energy costs of each household. It will also prevent the build up of wooden based waste within the site.

2- The washing and dyeing of fabric offcuts in the pursuit of creating recycled textiles will become a varied element of the building’s architecture. Like the dyed wool drying in the sun used as shading within Moroccan markets.

3,4- Tha ground level shredders give families access to the

processing of waste elements that give them a larger profit margin

5,8- Housing will take a joint structural approach, incorporating current building tactics which incorporate exposed columns for the gradual addition of levels and Alejandro Aravena’s half house building approach.

7- keeping farm animals will have to be incorporated into the scheme as it is a fundamental aspect of everyday life within the area.

The Following images relate to the following close ups on the adjacent Axo’s. The colours of the Axo’s relate to a change in programme not a change in material or vernacular. This will however change further on in the projects development

Section 4

Waste, Housing and Growth

Developing the Programme of a community centre and housing development plan within the Menshaya Nassir to allow for the gradual re-development of inexpensive structural interventions within slums

The basis of this design is centered around how architecture and urbanism relate to each other within the context of a multi-program system that rethinks waste management and housing development within slums in order to  develop viable economic and social systems. Ground Floor: Here topography, structure and public space aim to work relative to each other in order to store waste, and guide people to the upper levels of public space. The first floor aims to allow various programmes to interact with

each other due to a commonly accessible public pathways and cores. In addition to this the first floor, a series of bridges, and changes in topography  function relative to each order in order to be better incorporated into housing units. This aims at reimagining the ground level. The second floor shares similarities to the frist  however the production of crafts, and more intimate public space allows for recycled fabric collection of the textiles industry to hand from the adjacent  roof tops.

General Key

Bathhouses : (water heated due to the incineration of Cairos waste (old furniture, newspaper, non usable wooden crates etc).

Religious Spaces : (Mosque and Church each with an allocated education space)

Storage Spaces: Collected waste before it is sent for processing

Public access Cores : (now serving public infrastructure)

Waste related activities : Shredders, incinerator and Public Ovens)

Commercial Spaces : (Primarily used to sell goods made out of repurposed waste. Given the site is besides touristic sites the hope it to also attract foreigners to the market)

Primary arched pathways: (creates a boundary between the inner courtyards the rest of the site to give visitors a sense of refuge)

Education Spaces: (Library, class rooms, Craft Skills)

Artisans attaliers: Fabric weavers that repurpose the offcuts of Cairos textile industry

Semi Open space : (either covered to give visitors shade of incorporated into gardens, meeting points etc)

Varied Topography: Allows for visitors to be more easily guided into the buildings and removes the stigma of using public space on upper levels) (Made out of recycled brick)

Section 4

A Past to be Reinvented

How traditional concepts of beauty are to be applied to the design in order to ensure longevity

Although we live in a time where more contemporary interpretations of beauty are considered as the defacto ‘modern style’ I believe that by reincorporating traditional craftsmanship will not only benefit how people experience the built environment but also create jobs for the local community. Here I drew an interior view of how people would experience the central courtyard; although it takes

its liberty in adding surreal elements the ideas of mixing modern and traditional architectural components within a singular system still resonate. I chose to create a simple architectural form in rhino and overlap with the hand drawn image; by placing the structure in the gardens of Bahia Palace in marrakech you can begin to visualise the external and internal qualitie of the scheme.

Section 5

Detailing and Services

An initial attempt in creating a more detailed overview of the structural system in relation to the buildings envelope

Section 1.07

Climate and it’s effect Programme

Analysing Cairo’s Climate to pinpoint strategies that need to be taken with regards to both the projects programmatic layout and structural approach

How voids, shading systems, light wells and the porous nature of the facade function relative to each other is essential in ensuring comfort, passive ventilation and thus reduced energy costs.This in conjunction with in-expensive structural principles is paramount.

1- Average High/Low Temperature

Ensuring a facade and structural system that allows constant regulation between very high and lower temperature without the excessive use of insulation and air conditioning is essential to reduce energy consumption.

2-Average Daily Sunshine Hours

Variable shading will be needed throught the deisgn

3- Lines: Average/rain days

Bar Chart: Rainfall (Volume)

The extremely dry climate of Cairo results in the design being able to take a more liberal approach on the impact of water on the facade however efficiency is paramount in the rainwater collection system.

4-Wind Rose: Waste collection and incinerators must be placed on the northernmost tip of the schemes to reduce their odour impact.

5-Average Daily Temperature: Little to no insulation

6- Wind Direction: The Ensuring openings (voids) are placed due south are essential to essure passive ventilation

Section 5

Structural Strategy

A basic understanding of the structural principles that wil be utilized throughout the entirety of the building

1-Rain water redirected to Archway to be removed from main site

2-Semi permeable Structure allows for passive ventilation

3-Service piped to run in between ceiling cavity and potentially incorporated into archway

When devising a structural strategy for a slum one must always take into account the existing construction methods used within the site. With the limitations of an area (whether it be technical no how or financial cost) you can begin to devise ways of working within its boundaries to find innovation. Therefore I chose to make sure that the project follows a simple grid whereby a primary structure is to be made out of prefabricated concrete columns. Once the primary structure is erected various means of developing the facade and inner walls are to be incorporated. This mix in vernacular takes direct inspiration from the lack of uniformity within the slum setting. By mixing modern prefabricated methodologies with simple existing construction methods like those highlighted in images A,B,C and D I hope to modernise the system as a whole.

The system relies of both prefabricated and on site construction with an aim to incorporate elements made of recycled waste into the system (mainly the seconday structure)

A- Primary structure (Prefab concrete beams and columns)

B-Publically accessible Archways (perimeter of the design)

C- Prefab, prestressed concrete floor slabs

D-Water bottles and concrete to create lightweight composite panels

E-Prefab frame with roof paneling

F- Semi permeable brick wall

G-Normal brick wall

H- Corrugated steel wall (low cost)

I-Possible make roof retractable to improve passive ventilation

1- Shading paneling (incorporate traditional vernacular)

2- Possible to use prefab sewer pipes (low cost)

3-Rammed earth panels (special areas due to cost)

4-A simplified joints system needs further investigation

5-The use of curved brick coule be used in changes in topography

6- For both religious buildings more traditional applications of brick (mimicking that of old Cairo) need to be used.

Section 5

Structure in relation to Climate

Implementing a structural system that takes Cairo’s hot dry weather into account in order to promote passive ventilation, reduced energy loss and sustainable vegetation growth

Diagrams A-E exhibit the simplified principles of using semi permeable facades to regulate air flow and sunlight. F however relates to the potential use of the thermal mass of soil

1- Roof shading panels along most used pathways

2- Transition space between the individual programmes and the outer facade allow for the growth of vegetation. The shading will allow plants to grow without the need of excessive water.

3- Exterior Early facing glass paneling can be mixed with semi closed brick structures

to better regulate the entry of sunlight and possible to incorporate more traditional architectural motifs.

4- Semi open facades can be used without fully enclosing a space in order to set the boundary between public and private space

5- Retractable shading panels

The following section looks at the programme relating to weaving

A- Retractable frame used to dye fabrics (placed within a double heighted tower)

B- A structural system guides thes frames during the dying process

C- Due to Cairos year round sunshine the frames are rolled outwards to allow fabrics to fully dry

D- Due to the odor of the dying process a retractable shading is used to ensure passive ventilation

E- Open terrace allows for both a leisure space and more substantial vegetation growth.

F- Green space placed within the confines of the interior building

1-Dense greenery placed at perimeter to reduce bad smells and create shading

2- Permeable shading allows fabrics to dry while also make this space comfortable for worker

3-Incinerator placed underground to better control interior conditions (cooling, emergency water valves etc)

4- Chimney placed on the most northern point of the design and at a height of 3-4 stories (taller than surrounding buildings)

5- Rainwater collection system connected to public archways

6- Greenery placed with slight shadows to reduce water consumption

7-Bathouse placed underground to improve heat retention

8-Public access core

9 to 13- Pathways and openings formed in a way to create non-inhibited passive ventilation

Section 5

The Subterranean as a Source of Efficiency

How the underground elements of the design relate to energy production, rainwater collection and the separation of male/female spaces in the context the bathhouses

1- Female bathhouse employee entry space

2- Male bathhouse employee entry space

3-Employee uniform washing room and storage (entierty of building staff)

4- Secondary storage room (seperate male and female pathways)

5-Steps leading to central pool

6- Pathway from biomass collection and sorting point to incinerator

7- Automated biomass passage feeds chips to incinerator

8-Biomass incinerator

9- Towels and flip flops storage area

10- Rainwater collection tanks (pipes connected to upper archways)

11- Emergency Passage placed along the perimeters allows multiple exit routes

12- Central Pool (contains room temperature water)

13- Showers (to be for quick entry then exit to the space)

14- Storage room

15- Rainwater storage system (used to water plants)

16- Bathrooms

17- Turkish bathhouses (similar to Sauna)

Incinerator

1 and 3- Rainwater gutters leading to collection tanks

2- PVC pipes connection to tanks

4- Biomass sorting and Shredding

5- Biomass collection point

6- Energy used to heat water in heating tanks then taken to bathhouse

7- Female workers changing room

8- Male workers changing room

1- Rainwater hits the roofs and is redirected to the perimeter arched pathways

2- The floor palens of the arches create a substantial void that allows rainwater to pool and be collected (similar to an aqueduct).

3- The rainwater within this archways system is redirected to the storage tanks via guterres hidden within the pathways floor voids

4-Rainwater is filtered and stored (this will primarily be used for cleaning, water plants and emergency fires within sensitive underground areas.

5- Rainwater used for irrigation

6- Secondary rainwater collection system

Section 5

Fire Safety

Analysing the various tactics used to prevent fires from spreading and to ensure safe exit in the case of danger

1- If a fire does occur all retractable walls and shading panels are to be opened to physically separate segments of the building from one another to prevent the fire from spreading

2- The ground floor pathways between separate programmes are used to both improve passive ventilation and prevent fires from spreading

3- When navigating public spaces on upper levels there are always two open exit points.

4- Due to the sensitive nature of the underground programmes they are fitted with sprinklers that are connected to their individual water storage tanks that remain constantly full in the case of an emergency

5- Fire resistant walls separate each individual programme relative to each other to prevent fire from spreading

6-The arched pathways adds multiple exit points which vastly improves the fire safety of upper levels

7- Voids between upper levels prevent fire from spreading

8- Areas where fabrics are allows to dry are kept surrounded by open space and are the only areas above ground that have access to sprinklers (due to cost)

9 and 10- Retractable walls and inner floor frames allow waste storage areas to be quickly emptied in the case of a fire

Distances between public access cores

A- Underground (bathhouse and biomass incinerator)

B- Public assess arched pathway

C- Ground Floor

D- First Floor

E- Second Floor

F-Spacials (Towes, access to roof gardens)

Stairways linking ground floor to underground porgrammes

Example of exit from the first floor using the public access pathway (bypassing the ground floor)

Stairways and public access cores

Section 5

The Primary Structure

Analysing the Primary structure and (aspects of the secondary) structure as a whole

A/

1- Prefabricate Pile and Isolated spread footing foundations are used (depending on the height and depth of the section being developed)

2-Prefab Columns (joins support the beaims

3- Prefab beams (joints support the floor)

4- prefab concrete floor slabs

B/

1- Concrete containment box

2-Concrete Axis strengthens system as a whole ( makes pouring concrete into the founda-

The variation of the patterns used for the semi-permeable brick facades will create interesting variety within the design and also help define changes in the programme. However it is how these bricks are made that require an indepth understanding

tion easier)

3- Rebar (connected to ground floor prefab columns)

4-Cap encloses system once concrete is poured into rebar (screed or tile work depending on floor finish)

5- Rebar join

6- Steel base further secures the column to the foundation block

7- Steel joints

A- Pile foundations (these primarily correspond to elements of the building that reach both the lower and upper levels

B- Bathhouse prefab and pre-stressed concrete frames

C- Isolated spread footing foundations used

in points where the lowest level reached is ground level (low cost and can support a maximum of 5 stories) (perfect for a site where buildings are mainly 3-4 levels)

D-Ground Level prefab concrete frames

E-First floor prefab concrete frames

Section

5

The Archway

Creating a light weight vaulted archway made of repurposed building material from the sites slum clearing projects, waste plastics, concrete and rebar

Given the amount of buildings in Cairo being destroyed for redevelopment there is a need to rethink how these buildings waste is used.

1-Finalised Archway

2- Moulds used to create archways

3- How the archway is segmented into transportable pieces

4/

A-Crew column joins into base foundation

B-Screw;s supporting rebar

C-Columns rebar

D- Mould creates indent within the columns tip to hide the archways joints

E- Column’s rebar create cylindrical extraction to be used as a joint to the upper segments of the archway

F- Mould creates extrusion within the upper elements to hide the archways joints

G-Mould creates void to allow the columns joint to connect to the upper elements while remaining hidden

H- Upper segments rebar

Water Bottles are connected to panels with fishing mesh to ensure they stay in place when concrete in being poured during the following process

1- External frame used to create internal structure

2- Bottles gradually added

3-once all the bottles have all been added they are temporarily clamped to the external frame

4- The rebar structure is made. (the frame being used allows the rebar to be secured relatively

easily due to its grid and openings)

5- The internal structure is removed from the external frame and the mold is placed

6- A mixture of concrete and finely crushed building waste material (primarily made form unuseable broken brick) is poured

7- Once dry the mold is removed

Section 5

A means to innovate

Analysing existing methods to create building materials from waste and how this will effect the program

Conceptos Plasticos Colombia

Gjenge makers Kenya

Given these manufacturing process have shown to be successful in both Kenya and Colombia, it is most likely that when they are transplanted to a slum setting that already has a culture of waste management its efficiency and therefore potential is significant

A/

1- Waste plastic is collected and sorted between hard and soft plastics

2-Plastic is compacted

3-Plastic is shredded

4- Hard and soft plastics are measured and mixed with silica

5- Plastic and silica mis is fed into heater with metals the material

6- Soft gooey mixture is placed in moulds and compacted

7-Mould is placed in cooling pool

8- Hardened columns or brick is removed from the mould

9- The ends of the column are cut to create a clean finish

10- Bricks and columns used on construction sites

B/

Gjenge’s manufacturing model is very similar to that of ;conceptos plasticos except stage 6 (in wish a hydraulic press is used to make bricks) seems very interesting

1- Dust collection system

2- Plastic compactor

3- Waste shredder

4- Hydraulic press used to create various bricks and shading panels (most have an interchangeable mold)

6- Heating system melts the materials (the goop like product can surprisingly be touched by bare hands without getting burned) (goal it to heat the material not burn it)

With regards to the semi-permeable shading bricks used to create an offset between the enclosed glazed facade and the exterior I am interested in using a similar joint system to that of ‘Conceptos plasticos’ due to their simplicity and speed of construction.

The main inhibitors of this design is the fact that the manufacturing process is both smelly and noisy. By placing the system underground with a series of light wells and ventilations systems the project should be able to bypass these issues

Section 5

The Retractable Frame

Incorporating structural systems that allow changes in the dimension of the different programmes and its potential use in developing shading systems

A/ 1-Publically accessible archway

2- Structural base frame attached to the archway floor to create voids and tracks that guide the retractable frame 3- DMP

4- Floor panels that blend into the surrounding archway panels (these require a structure to slightly elevate them to ensure rainwater can still reach the gutters

5- Tracks guide retractable floor base

6- Example of a retractable interior commercial space with shelving (can be customisable)

7A- Tracks aid the retractable commercial space to re enter its initial position

7B- Floor panels (facing the same direction as movable floor plates to ensure uniformity)

7C- Steel frame (primary structure of the Retractable system)

7D- Outer facade hydraulic system (Moves wall to allow the commercial frame to extend outwards

7E-Outer facade

7F- Base frame (supports floor)

7G-Floor panels

7H- Customisable shelving system

8- Primary and secondary structure of the normal elements of the commercial space

9- Prefab concrete floor slabs

The current state of Manshiyat Naser is such that the industrial process of collecting, sorting

The current state of Manshiyat Naser is such that the industrial process of collecting, sorting and processing waste totally engulfs that public realm. The ground floor becomes part factory, part public pathway. I wanted to look at means of using infrastructure and to redefine what is to be considered as ‘ground level’ and

Section 5

Initial Facade Structure

An initial attempt in creating a more detailed overview of the structural system in relation to the buildings envelope

(The decision to pass receiving pipes via the archways has changed as I came to the conclusion that the programme is too complex to allow for such a rudimentary system)

The Following images relate to the following close ups on the adjacent Axo’s. The colours of the Axo’s relate to a change in programme not a change in material or vernacular. This will however change

Section 5

Detail 2&3

Understanding the pros and cons of the sites existing characteristics Understanding the pros and cons of the sites existing characteristics Understanding the pros and cons of the sites existing characteristics

The current state of Manshiyat Naser is such that the industrial process of collecting, sorting and processing waste totally engulfs that public realm. The ground

The current state of Manshiyat Naser is such that the industrial process of collecting, sorting and processing

The current state of initial thoughts of the structural and programatic approach

C’ begin to pinpoint ways of having various working relative to each other. ways of having various working relative to each other. ways of having various working relative to each other. ways of having various working relative to each other. ways of having various working relative to each other. working relative to each other. ways of having various working relative to each other. ways of having various working

Contemporary Egypt Section 6

A brief interpretation of the film Paprika as a means of deconstructing the elements that define a culture A brief interpretation

The premise of the movie Paprika looks at the introduction of a piece of technology called ‘The DC Mini’. The purpose of this machine is to allow therapists to analyse the inner thought process of our dreams, and in turn enter them in order to improve the mental health of the user. However, during the film the D.C. mini malfunctions and creates a shared dream between all of those who have previously

used the machine, in essence creating a collective psyche; blurring the lines between dreams and reality. What I am interested in is understanding how a machine that can access the inner thoughts of an individual or a group will affect the of an individual or a group will or a group will affect the of an individual or a group willal or a group will called ‘The DC Mini’. The purpose of this machine is to allow therapists to analyse

Section 6

Irregularity and Ornament

Understanding the pros and cons of the site in developing a schemes that is both socially responsible, economically viable and innovative within totally removing the sites character

The current state of Manshiyat Naser is such that the industrial process of collecting, sorting and processing waste totally engulfs that public realm. The ground floor becomes part factory, part public pathway. I wanted to look at means of using infrastructure and to redefine what is to be considered as ‘ground level’ and create pockets of space that allow members of the public to separate themselves from the processes of waste management. Furthermore this approach will have to work in conjunction with both the existing and

With regards to the semi-permeable shading bricks used to create an offset between the enclosed glazed facade and the exterior I am interested in using a similar joint system to that of ‘Conceptos plasticos’ due to their simplicity and speed of construction.

Section

6

Topography, Programme and Waste Management

Understanding the multipogramme system in relation to topography changes and how this functions to serve both waste management and context cohesion

1- Although changes in the topography might result in a sense of confusion when traversing the site ensure that all entry points utilize the same vernacular (in this case the Archway), pinpointing areas of interest will be straightforward.

2- Waste management that is kept outside the confines of the storage units that are hidden within the topography changes, must

be odourless (fabrics is an example)

3- The opening for waste storage systems must be fully retractable (similar detailing to industrial buildings)

4- Walkable oben space must be present on the first floor in order to properly redefine ground level.

5- The Chimney must not have access to changes of topography to ensure safety.

Public access archways (movement, fire safety and links the multi-programme system)

Education Spaces (used to increase literacy rate, teach religion and train member of the public alternative revenue streams for their waste)

Industrial workers space (waste to building materials)

Bathhouse (male and female entry points place on opposing sides)

Manufacturing processes that implement waste materials in their development (in this case fabric offcuts from the garment industry are turned into carpets)

Commercial spaces (selling the objects made by recycling). The arched axis alongside this program is sures as an open market.

Religious Spaces (Church and Mosque) ( used to strengthen the community)

Underground Elements (Bathhouse and Biomass incinerator)

Road adjacent to the site used for vehicles and those traversing the site are strictly accessible by pedestrians

Topography changes (hide waste storage units)

Green spaces and waste storage systems

Housing units redevelopment (this project is supposed to occur after the main building is built)

Section 6

Ground Floor

An in depth analysis of the multi-Programme system on the ground floor

1- Mosque entry space with Staircase that leads to all upper levels 2- Mosque shoe storage room 3- Area to perform WUDU (cleansing before prayer)4- Shelving for Qurans and prayer mats 5-Prayer Room (182 worshipers can fit within this space comfortably however during eid and ramadan the mosque can be opened towards the garden)6- Iman Prayer area 7- Public Access core 8- Toilets (hidden from main prayer area)9- Storage room 11- Commercial pace 12- Storage rooms and staff bathroom 13- Entry space into male bathhouse 14- Storage room and toilet for ticket staff15- Storage room for people items 16- Changing room 17- Entry into library and education spaces 18- Book collection room19- Study Space20- External conversation area

21-Commercial space to make orders and or buy items made by industrial compost brick making facility 22- Entry space 23- Office (meeting point for ‘Waste to Cash’ program (got to section 4 for further information)24-Weighing area for collected plastics and biomass 25-Plastics storage space 26- Biomass storage space 27- Path way and fire exit (separates storage units in the case of a fire)28- Plastics shredded and prepared for processing29- Biomass shredded and prepared for incineration 30- Composite brick and panel making facility  31- Staff room 32- Storage room (composite materials left to cool doing on trays)33- Staff Entry area 34- Pathway to men’s changing rooms35-Pathway to women’s changing rooms36-Woman’s changing room 37- Men’s changing room 38- Men’s staff room and prayer room 39- Woman’s staff room and changing room 40-Staff meeting and eating area 41-Staff kitchen 42-Textile weaving entry point 43- Textile sorting area 44- Textile Washing area 45- Textile sorting area 46- Preparing textiles for drying outside48- Textile drying racks 49- Textile elevator shaft  50- Church entry space 51-Chapels 52- Church seating area 53- Community meeting area 54- Priest Sermon area55- Choir

Section 6

First Floor

An in depth analysis of the multi-Programme system on the ground floor

1- Entry Space into Female islamic prayer room

2-

3-

4-

5-

6- Open garden allows children to play while women are praying or partaking in community dialect

7- Public Access core

8- Commercial space

Shoes storage area
Wudu (Cleansing prior to Prayer)
Void connecting to male changing room (in order to hear the Iman)
Prayer room

9- Storage room and staff/visitor bathrooms

10-Staff room and book sorting area

11-Book sleeves

12- Study are with retractable walls that open up to adjacent garden (perfect for large study sessions)

13- Study area

14-Entry point (leads directly to classrooms as opposed to having to enter from the library entry point on the ground floor)

15- Technology learning area and shelving

16- Children’s classroom

17- First floor gardens and topography changes

18- Church classroom (for older children)

19- Church classroom (for younger children)

20- Staff and storage room

21- Carpet design studio

22- Design analysis area

23- Retractable Frame increase commercial space

24- Connecting bridge (enclosed)

25- Fabric cut and allocated to specific designs

26- Printed designs with allocated fabrics storage area

Final

Second Floor

An in depth analysis of the multi-Programme system on the ground floor

1- Community organisation entry point

2- Open meeting point

3- Community meeting area (this relates to charities and slum representatives who help run the project as a whole (go to section 4 for further information))

4- Charity office and storage room

5- Slum representative office

6- Community kitchen to help fee the poor (used by both the mosque and Church)

7- Public access cores8- Kitchen herb garden

8- Kitchen herb garden

8- Kitchen herb garden

9- Storage room

10-Imam living quarters

11-Class room/ Lecture room

12-Connecting bridge

13- Double heighted library/study area

14- Entry point (bypassing library ground floor)

15- Study area

16- Book shelves

17- Class room/ Lecture room

18- Connecting bridge

19- Dyed fabric drying area

20- Weavers looms

21- Storage area

22- Fabric elevator (connects sorting, cleaning, designing and production areas)

23- Staff area

24- Fabric dying area (double heighted with retractable dying frames)

25- Priest living quarter

26- Brothers living room

27- Brothers bedrooms

28- Church office

29- Sisters/Nuns living room

30-Sisters/Nuns bedrooms

31- Storage/Clothing washing room

Section 6

Safety Systems

Given the very sensitive nature of the fire risk posed by the following programs an in-depth analysis of minimising this risk is needed

A-The ventilation system must not only filter air air entering into the underground levels but also filter the air being extreated to the outside in order to reduce pollution B-A sprinkler system is of utmost importance within this scheme as it ensure any fires are put out immediately C- The ceiling must reach at

least 4m to ensure there is adequate space to a secondary support frame and for the various servicing systems to work relative to each otherD-When materials are moved around the programme ensuring large trolleys are kept empty when not being used is essential

Changes to the ground floor:

1-Plastic waste sorting and compacting

2-Biomas sorting

3-Entry Space, Office (waste for cash scheme), staff room, changing rooms, storage rooms

5- Manufactured blocks storage area (can be quickly dispatched to street level)

6- Design studio tasked with the future redevelopment of the garbage city

Addition to the existing underground floor

1-Lift used to move plastics

2- Plastics/Silica mixing ares

3- Soft plastic storage area

4- Hard Plastics Storage area

5-Soft Plastics Shredder

6-Hard Plastics Shredder

7- Creating Bricks

8-Creating Hollow columns (to be used for glazing panels)

9-Creating shading panels

10- Bricks quality control

11-columns quality control

12- Shading panels quality control

13- Crane primary mechanism

14- Ventilation system and striacase (ventilation pipes pass through public access core)

15- Storage area

16- Storage area and staff bathrooms

17- Trollies move material and manufactured goods

18- Bathroom

19- Staircase

20- Lift to upper storage room

21- Rainwater collection system

22- Biomass lift

23- Biomass storage room

24- Shredder

25- Shredder biomass chips storage room

Section 6

Power and Potential

Understanding the pros and cons of the site in developing a schemes that is both socially responsible, economically viable and innovative within totally removing the

The current state of Manshiyat Naser is such that the industrial process of collecting, sorting and processing waste totally engulfs that public realm. The ground floor becomes part factory, part public pathway. I wanted to look at means of using infrastructure and to redefine what is to be considered as ‘ground level’ and create pockets of space that allow members of the public to separate themselves from the processes of waste management. Furthermore this approach will have to work in conjunction with both the existing and new housing scheme for the purpose of gradually introducing an improved urban grid to the site. Diagrams ‘X’ and ‘Y’ are the initial thoughts of the

The current state of Manshiyat Naser is such that the industrial process of

The current state of Manshiyat Naser is such that the industrial process of collecting, sorting and processing waste totally engulfs that public realm.

The current state of Manshiyat Naser is such that the industrial process of collecting, sorting and processing waste totally engulfs that public realm. The ground floor becomes part factory,

The current state of Manshiyat Naser is such that the industrial process of collecting, sorting and processing waste totally engulfs that public realm. The ground floor becomes part factory, part public pathway. I wanted to look at means of using infrastructure and to redefine what is to be considered as ‘ground level’ and create pockets of space that allow members of the public to separate themselves from the processes of waste management. Furthermore this approach will have to work in conjunction with both the existing and new housing scheme for the purpose of gradually introducing an improved urban grid

to the site. Diagrams ‘X’ and ‘Y’ are the initial thoughts of the structural and programatic approach while schemes ‘A-C’ begin to pinpoint ways of having various programmes working relative to each other. ways of having various programmes working relative to each other. ways of having various programmes working relative to each other. ways of having various programmes working relative to each other. ways of having various programmes working relative to each other. programmes working

Section 6

Light and Passive Ventilation

Understanding the pros and cons of the site in developing a schemes that is both socially responsible, economically viable and innovative within totally removing the sites character

The current state of Manshiyat Naser is such that the industrial process of collecting, sorting and

The current state of Manshiyat Naser is such that the industrial process of collecting, sorting and processing waste totally engulfs that public realm. The ground floor becomes part factory, part public pathway. I wanted to look at means of using infrastructure and to redefine what is to be considered as ‘ground level’ and create pockets of space

The current state of Manshiyat Naser is such that the industrial process of collecting, sorting and processing waste totally engulfs that public realm. The ground floor becomes part factory,

The current state of Manshiyat Naser is such that the industrial process of collecting, sorting and processing waste totally engulfs that public realm. The ground floor becomes part factory, part public pathway. I wanted to look at means of using infrastructure and to redefine what is to be considered as ‘ground level’ and create pockets of space that allow members of the public to separate themselves from the processes of waste management. Furthermore this

Section 6

Light as a Manifestation of Movement

Understanding the pros and cons of the site in developing a schemes that is both socially responsible, economically viable and innovative within totally removing the sites character

The current state of Manshiyat Naser is such that the industrial process of collecting, sorting and processing waste totally engulfs that public realm. The ground floor becomes part factory, part public pathway. I wanted to look at means of using infrastructure and to redefine what is to be considered as

‘ground level’ and create pockets of space that allow members of the public to separate themselves from the processes of waste management. Furthermore this approach will have to work in conjunction with both the existing and new housing scheme for the purpose of gradually introducing an improved

The current state of Manshiyat Naser is such that the industrial process of collecting, sorting and processing waste totally engulfs that public realm. The ground floor becomes part factory, part public pathway. I wanted to look at means of using infrastructure and to redefine what is to be considered as ‘ground level’ and

With regards to the semi-permeable shading bricks used to create an offset between the enclosed glazed facade and the exterior I am interested in using a similar joint system to that of ‘Conceptos plasticos’ due to their simplicity and speed of construction.

Section 6

Irregularity and Ornament

Understanding the pros and cons of the site in developing a schemes that is both socially responsible, economically viable and innovative within totally removing the sites character

The current state of Manshiyat Naser is such that the industrial process of collecting, sorting and processing waste totally engulfs that public realm. The ground floor becomes part factory, part public pathway. I wanted to look at means of using infrastructure and to redefine what is to be considered as

‘ground level’ and create pockets of space that allow members of the public to separate themselves from the processes of waste management. Furthermore this approach will have to work in conjunction with both the existing and new housing scheme for the purpose of gradually introducing an improved

The current state of Manshiyat Naser is such that the industrial process of collecting, sorting and processing waste totally engulfs that public realm. The ground floor becomes part factory, part public pathway. I wanted to look at means of using infrastructure and to redefine what is to be

With regards to the semi-permeable shading bricks used to create an offset between the enclosed glazed facade and the exterior I am interested in using a similar joint system to that of ‘Conceptos plasticos’ due to their simplicity and speed of construction.

Section 6

Incinerate / Regenerate

Understanding the pros and cons of the site in developing a schemes that is both socially responsible, economically viable and innovative within totally removing the sites character

The current state of Manshiyat Naser is such that the industrial process of collecting, sorting and processing waste totally engulfs that public realm. The ground floor becomes part factory, part public pathway. I wanted to look at means of using infrastructure and to redefine what is to be considered as

‘ground level’ and create pockets of space that allow members of the public to separate themselves from the processes of waste management. Furthermore this approach will have to work in conjunction with both the existing and new housing scheme for the purpose of gradually introducing an improved

The current state of Manshiyat Naser is such that the industrial process of collecting, sorting and processing waste totally engulfs that public realm. The ground floor becomes part factory, part public pathway. I wanted to look at means of using infrastructure and to redefine what is to be considered as ‘ground level’ and create pockets of space that allow members of the public to separate themselves from the processes of waste management. Furthermore this approach will have to work in conjunction with both the existing and new housing scheme for the purpose of gradually

With regards to the semi-permeable shading bricks used to create an offset between the enclosed glazed facade and the exterior I am interested in using a similar joint system to that of ‘Conceptos plasticos’ due to their simplicity and speed of construction.

Section 6

Waste as a form of Liberation

understanding the overall premise of the project in relation to slum redevelopment, government bodies and private ownership

Manshiyat Naser (with a population of 258 thousand inhabitants serves an essential role in aiding the site’s waste management. Simple relocating them would destroy the communities existing social and urban structures relating to garbage collection and process thus heavily impacting the quality of life in the entirety of the city.

The Informal nature of the borders of these settlements make it such that they tend to interact with adjacent districts (including historical sites). Thus potential for increase increased revenue flows is high

The Primary means of redeveloping slums is to destroy them and relocate its residents (many are not eligible for this scheme) into tower blocks. Revenue streams relating to community interactions are broken and community engagements severely reduced.

‘Haram City’ (a slum redevelopment project) allowed individuals living in Manshiyat Naser to relocate to less densely packed modern housing. Although its vernacular and density in a vast improvement from the tower block approach its commercial, leisure and production power with regards to individual entrepreneurship (waste collection, innovation, cafes etc) is severely reduced (american ‘Suburbia Approach’)

Examples of community-led slum redevelopment schemes that take into account the existing socio-economic norms of a population in order to enhance quality of life (hygiene, finance, public space etc) are few to none. Examples like the UN lead ‘Surabaya’ in Kampung City are essential to give individuals a sense of ownership and promote entrepreneurship and industry.

Examples of communityled slum redevelopment schemes that take into account the existing socio-economic norms of a population in order to enhance quality of life (hygiene, finance, public space etc) are few to none. Examples like the UN lead ‘Surabaya’ in Kampung City

Aims

1- Introducing alternative means of using waste: This comes in the form of creating building materials, producing energy and utilising waste to manufacture goods (carpets as an example)

2-Increasing the public’s revenue streams: Waste sorting is an essential aspect of this but it is how the materials are refined and processed that will have the greatest impact. This is done via education schemes and on site industrial processes during the construction and duration of the building.

3-Create a model of Cairo’s slum redevelopment aims: This project looks at engaging with existing socioeconomic tendencies and improves their efficiency and adds potential outputs in order to allow for the gradual amendments of the site via private initiative from members of the community as opposed to total government intervention.

4- Increased tourism: This will encourage entrepreneurship as it will create a secondary market for the sale of goods created by waste products (especially given the site is located adjacent major tourism sites)

5- Increased Community engagement: The multi programme approach of the schemes incorporates existing social hierarchies within its planning however by organising them within a shared publicly accessible piece of infrastructure it encourages interfaith dialogue, female engagement within public space.

6- Rethinking the role of public space: Within the slum setting public space becomes a place for industry, commerce, waste management and movement. Rarely is it considered a place for leisure.

7- Hygiene: Within impoverished communities hot water is a Luxury. By giving the public access to cheap means of remaining clean (public bath house) the hope is to reduce disease to improve quality of life.

Section 6

Encouraging Entrepreneurship

Understanding existing redevelopmetn schemes in order to impliment a new plan that is both socially responsible, economically viable and innovative

UDF- Urban Development Fund

A 17 billion dollar schemes to redevelop Egypts slums. Launched in 2022 its aims is to remove all slums in Egypt by 2030.

Phase 1- Unsafe Zones

1.6 Billion dollar budget with hopes to construct 24053 housing units (357 Zones in egypt have been given this qualification) (the land itself is priced around 938 million $).

Phase 2- Unplanned Zones

With an investment of 13 billion $ this represents 76% of the total UDF’s budget. Its primary aim is to develop 132000 units across egypt. Around 152000 Acres is needed to obtain this.

Phase 3- Informal Markets

1105 informal markets have been highlighted as needing redevelopment or renovation (whether the plan is to remove them or grant them the use of public infrastructure the final outcome is yet to be fully known and understood with regards to its socio-economic impact)

These are the Primary bodies tasked with the redevelopment of Slums in Egypt

Ministry of Housing, Utilities and Urban Communities

Private EPC Firm: (Egypt’s Orascom is an Example) (Engineering, procurement, and construction)

Understanding the current redevelopment model and using its existing institutions in order to develop alternative means of improving Cairo’s slums

Diagram A gives a basic overview of how housing redevelopment in slums function within the Egyptian context. A government body (like the Ministry of housing) would highlight an area that needs to be renovated. Given the area contains private dwellings built on public land the government would initially allow a private EPC (Engineering, Procurement and Construction company) to remove the existing structures and build alternative housing (most likely in a part of the city far away from the original site). With the aid of the government the inhabitants are relocated. As compensation to the EPC the land where the original slum was located would shift into their ownership. It is no surprise that the majority of the profits of such a scheme will go to the EPC as a result of the significant change of land costs between the original and relocated area.

Limitations

The main issue with the existing model ‘A’ is that although it is efficient in moving people from one part of the city to another, its heavy reliance on government intervention and large scale corporations make it such that the opportunities granted to local inhabitants either remain unchanged or are at times diminished. This comes as a result of the existing revenue streams accessed by the population being totally severed. Although relocation improves the quality of life of slum dwellers it encourages relatively little entrepreneurship (this would especially be true in the case of the Manshiyat Naser as their proximity to the city centre serves a vital role in their ability to collect and sort waste. Given the relatively low literacy rate of slums, training new skills would require both time and increased government financing.

As opposed to relocation I believe that the gradual redevelopment of the slum alongside the improvement of the skillset of the site’s inhabitants would be beneficial to both the city and local population. The initial intervention’s aim is to improve the site’s commercial and industrial competitiveness. By introducing structures that create jobs which rethink existing socioeconomic traits of the slum it will encourage entrepreneurship and improve profit margins. Although this intervention is government led, the construction of the project will be completed by an EPC. By giving locals and the EPC access to the new structure the EPC will have access to part of the profit (the construction materials made by the Zalabeen at a heavily subsidised cost and the revenue made in renting commercial spaces and bathhouse tickets). This alongside the inhabitants’ increased profit margins will encourage the gradual redevelopment of the slum via the private acquisition of land and buildings by members of the community. By focusing on the individual purchasing power of slum dwellers as opposed to large scale government intervention the site will naturally grow and improve. Nonetheless durings its gradual renovation the housing ministry must make sure that the new structures built by the slums population follow regulation and aim to facilitate rapid growth and an improvement of the quality of life.

Limitations

The main issue of such a scheme is the time needed to fully realise its compilation. Total renovation and relocation is quicker, however I believe in the case of Manshiyat Naser and the essential role it plays in society this new method would be vastly more beneficial.

Plan of Work

Sorting out the design process to create an extensive step by step plan of the design process to improve the project efficiency (taken directly from RIBA specifications)

0 (Strategic Definition):

January-March 2024

Stage Outcome:

Creating an initial narrative that devisies the need of a potential programme which satisfies all interested parties

Core Tasks:

This process will require in-depth discussion with slum dwellers, the housing ministry and the EPS tasked with building the project. The main focus will be to analyse existing economic models within the slums and devise means of improving them. In addition to this the built environment must be surveyed to pinpoint the pros and cons of Manshiyat Naser topography and urban context. Once all this has been understood, relatively simple massing relation to potential programmes will be devised alongside a business case in order to give reasoning behind the project and visualise both its scale and therefore potential budget and risk.

Core Statutory Processes:

Analysing the programme in relation to the needs of the involved parties and creating potential year revenue relative to each individual element of the multi programme approach used during the project

1 (Preparation and Briefing):

April 2024

Stage Outcome:

Project Brief Approved by both the ministry of Housing and the EPC

Core Tasks:

Creating a series of goals relating to the project as a whole and each individual element of the multi programme system. The main focus will be creating set outcomes in how waste management and architecture will function with regards to sustainability goals and the economic incentive of both the developer and slum dwellers. The programme and total budget will be agreed upon. Simple massings alongside the outline of the site with a more indepth site survey must be devised in order to analyse and give reasoning behind the budget decisions.

Core Statutory Processes:

• Project Brief

• Feasibility Studies

• Site Information

• Project BudgetProject

• Programme

• Post construction profit margins (EPC and Slum population)

• Potential statistic regarding potential tourism

The following ‘Stage Otcomes’ are taken directly from the RIBA’s ‘Plan of Work’. This should be applicable to Egyptian architectural standards (which tend to be less restrictive when compared to their European counterparts). Nonetheless it is essential that during the entirety of this process an Egyptian architect is to shadow any foreign team. This will result in a more in depth understanding of local building code and aid in both the design process and legislative paperwork.

2 (Concept Design):

May-July 2024

Stage Outcome:

Architectural Concept Approved by the ‘Ministry of Housing’, ‘EPC’ and Council of Manshiyat Naser representatives

Core Tasks:

Create an initial plan (both at 1-500 and 1-200) that takes into account budget, basic structure, programme and basic understanding of fire safety regulations (make sure entry and exit routes already function follow regulation). An overview of the materials and structural systems being used are essential to devise adequate cost sheets. The multi programme system will require constant discussion and reviews between the government, community and developer. Furthermore it is best to get in contact with specialists (such as those in recycled brick manufacturing and biomass incineration to get an understanding of how the programme will function)

Core Statutory Processes:

• Obtain pre-application Planning Advice

• Agree route to Building Regulations compliance (especially regarding waste collection and fire safety)

• Submit outline Planning Application (only involves the Ministry of housing)

3 (Spatial Coordination):

Agust-Oct 2024

Stage Outcome:

Architectural and engineering information Spatially Coordinated

Core Tasks:

Understanding how the composite materials (primarily the light weight concrete containing water bottles) function relative to the design is of the utmost importance during this stage of planning. By studying the engineering in relation to the design it will call for a much more in depth discussion to be had with regards to potential changes in the programme. If possible it would be best to physically test a 1:1 scaled version of the arched pathway surrounding the perimeter of the design (stress test). By doing so a much more accurate estimate of construction costs will be achieved (it will also familiarise the local population with these new modes of manufacture thus reducing training costs further on in the construction process)

Core Statutory Processes:

• Signed off composite material report Signed off Stage Report

• Project Strategies

• Updated Cost Plan

• Planning Application

Plan of Work

Sorting out the design process to create an extensive step by step plan of the design process to improve the project efficiency (taken directly from RIBA specifications)

4 ( Technical Design ): 5 (Manufacturing and Construction):

Nov 2023- Feb 2024

Stage Outcome:

Design information is completed (including all 1:5 details). Construction can commence under these documents.

Core Tasks:

Finalising the programme at a detail of 1:50 with a series of sections at 1:20 and an extensive package of 1:5 details is essential. Ensuring that all systems (primary and secondary structure, the building Facade and Servicing System) all function relative to each other without overlapping elements is essential. Specialist subcontractor designs require meticulous organisation as many of the construction methods and materials being used are new to the region. Alongside each composite material and structural system being implemented a plan for how it is to be constructed alongside the workforce training scheme will be developed in addition tohe the typical documentation.

Jun 2024- Jun 2026

Stage Outcome:

The Design is built (complete to a standard to allows member of the public to safely inhabit the space)

Core Tasks:

Monitoring the building process alongside the construction programme is essential. This is especially true when considering the fact that the underground biomass incinerator and building blocks manufacturing area will be accessed and used while the design is still being built. Given it is the secondary structure that is made of composite materials that incorporate waste, during the timeframe in which the primary structure is being built on the upper levels a stockpile of shading panels and outer bricks can be made. Ensuring an architect visits the site weekly should be sufficient to ensure construction is kept on time. Given the structural system being used it is both simple and takes direct influence from existing practices; the development of the building should be straightforward.

Core Statutory Processes:

• Manufacturing Information

• Construction Information

• Final Specifications

• Composite Materials Construction strategies

• Composite Material training Process

• Building Regulations Application

Core Statutory Processes:

• Create a manual with an overview of the fire safety information

• Statement of completion submitted by the Housing ministry

• Asset information

The following ‘Stage Otcomes’ are taken directly from the RIBA’s ‘Plan of Work’. This should be applicable to Egyptian architectural standards (which tend to be less restrictive when compared to their European counterparts). Nonetheless it is essential that during the entirety of this process an Egyptian architect is to shadow any foreign team. This will result in a more in depth understanding of local building code and aid in both the design process and legislative paperwork.

6 (Handover):

Aug 2026

Stage Outcome:

Construction process finalised under desired specifications with the building contract being completed

Core Tasks:

Once the finalised building is reviewed by the Housing ministry, architects and EPC, with each party satisfied with the end product the project can be opened to members of the public. (In the Egyptian context the architect has little to no power in stating whether or not a project is fully completed; however if an EPC contact is reached with a good firm like ‘Orascom’ more likely than not they will do a good job to ensure they have access to future government contracts). In the case of this project, its post occupancy evaluation should be relatively straightforward as there are little changes in the construction methods used throughout the building.

7 (Spatial Use):

Sep 2026 - Lifespan of Building

Stage Outcome:

The building is inhabited by members of the public and its workforce with it being maintained during of its lifespan

Core Tasks:

The facilities management will be tasked to the company originally given the EPC contract for a duration of X years (until a profit is made) and a panel representing the slums wider community (this panel is essential in analysing the waste material quota for both the Biomass and manufacturing processes). The Church and mosque however will be under the jurisdiction of the Egyptian government and various faith organisations (Following Egyptian Law). Analysing the Pros and cons of this building through its lifespan is essential as one of its goals is to act as a template for future slum redevelopment projects across the country.

Core Statutory Processes:

• Final Certificate (issued by the housing Ministry)

• Assessment of the finalised design

Core Statutory Processes:

• Feedback from community and private investors must be evaluated

• Health and Safety must be monitored (manuals and regularly checking biomass incinerator system)

Turn static files into dynamic content formats.

Create a flipbook
Issuu converts static files into: digital portfolios, online yearbooks, online catalogs, digital photo albums and more. Sign up and create your flipbook.