Portfolio

Page 1

HSBochum

2023 Hanaa Al Masalmeh Architekturstudentin
PORTFOLIO

Inhat:

01. Lebeslauf

02. Innovations Gebäude in Wuppertal konstruktieves Projekt_WS2022

03. Cultural centerin Ecuador,Cuenca

Entwerfen_WS2021

04. Architekturschule und Forschungseinrichtung in Bonn

Entwerfen_WS2020

05. Bergheim_Economy_topia

Städtebau_WS2021

06. Studentenwohnheim in Bochum

BaukonstruktionIII_WS2020

07. Brücke in Dortmund

Tragkonstruktion_SS2020

29/04/1995

+49 17687097718

Oberdorf Str. 60 45143 Essen

hanaa.almaslmah2@gmail.com

HENDRIK FANGMANN

Drusenbergstr. 158

44789 Bochum

Sehr geehrte Herr Fangmann, da mein Architekturstudium bald zu Ende kommt, suche ich nach eine Werkstudent stelle, um mich fachlich und beruflich weiter zu entwiceln. Durch meine Kollegin Nayaz Othman bin ich auf Ihr Architekturbüro aufmerksam geworden und möchte mich gerne bei Ihnen bewerben .

Derzeit befinde ich mich in meinem letzte Fachsemster des Bachelorstudiengangs Architektur an der Hochschule Bochum. In meinem Studium habe ich mich mit zahlreichende Projekte im Entwerfen beschäftigt und mich mit der Konstruktion als Maßnahme zur Projektführung intensiv auseinandergesetzt. In diesem Zusammenhang bin ich auf der Suche nach einer Möglichkeit, praktische Erfahrungen zu sammeln und mein bereits erlerntes Wissen anzuwenden.

Während meines Studiums habe ich durch das Ausarbeiten von Plänen sehr gute Kenntnisse des Zeichenprogramms ArchiCAD erlangt. Des Weiteren habe ich meine Excel Fähigkeiten bei der Tabellenkalkulation für Bauwirtschaften bzw. Baumanagement intensiviert. Im Rahmen der Tragkonstruktiven Projekte habe ich die statischen Berechnungen mit dem Ingenieursoftware SCIA-Engineering durchgeführt. Ich arbeite gerne mit 3D-Modellationen, Visualisierungen und Bildbearbeitungen anhand von Photoshop und Twinmotion. Außerdem lerne ich aktuell das 3D Rendering Software ( Lumion).

Im Rahmen verschiedener Jobs und Praktikums bewies ich meine Teamfähigkeit sowie Kommunikationsfähigkeit. Durch meine Leistungsfähigkeit bin ich in der Lage neue Aufgaben schnell und effizient umzusetzen. Dies als neues Mitglied Ihres Teams in Ihr Büro einzubringen.

Über die Möglichkeit zu einem persönlichen Gespräch würde ich mich sehr freuen.

Mit freundlichen Grüßen.

LEBENSLAUF

EDV Kenntnisse

Microsoft Office

CAD/ BIM

Adobe Cloud

Rendering

Strukturanalysesoftware

BILDUNGSGANG

2019_Heute

Word, Powerpoint, Excel

ArchiCAD, AutoCAD

Photoshop, Illustrator, In Design

Twinmotion

SCIA Engineer

Architekturstudium

HS Bochum, Deutschland, 8.Semesterabgeschlossen

2013–2014 Architekturstudium

Universität Damaskus, Syrien 2.Semesterabgeschlossen

2010–2013

Gymnasium, Daraa, Syrien

Allgemeine Hochschulreife (anerkannt )

Abiturnote 1,4 (94% Abschlusswert)

2001–2010

GrundschuleundMittelschule,Daraa,Syrien

PRAKTIKA

2015

Praktikum im Architekturbüro in Damaskus,Syrien

PARALLEL( Design&Consultancy):

• Technisches Zeichnen (CAD-Zeichnung mit AutoCAD)

• 3D-Darstellung( Modellierung U. Vesualisierung mit Sketchup

• Baurelevante Tätigkeiten

SPRACHEN

Arabisch

Deutsch

Englisch

HF² Architekten 22.01.2023
Hanaa Al Masalmeh Hanaa Al Masalmeh

Konstruktives Projekt_SS2022

Innovations Gebäude in Wuppertal

Aufgabe:

Im Mittelpunkt des Projektes steht der Aufbau eines Accelerators am Standort Wuppertal, in dem Startups und etablierte Unternehmen gleichermaßen neue Lösungen für Fragen des Ressourceneinsatzes finden. Das Gebäude soll die Initiative mit einem eindeutigen und architektonisch anspruchsvollen Auftritt, der der inhaltlichen Ausrichtung gerecht wird, repräsentieren. Entsprechend sind die Fassaden im Laufe des Projektes zu entwickeln. Erwartet wird auch eine helle und großzügige Erschließung der einzelnen Ebenen mit Angeboten zum Treffen und Verweilen. Die Integration von aktuellen technischen Entwicklungen soll den Anspruch der Initiative als Ort für neue innovative Wirtschaftsund Lebensmodelle unterstreichen.

Prof. Dipl.-Ing. Christian Schlüter

Baukonstruktion/Nachhaltiges Bauen und KonstruktivesProjekt

Prof. Dr.-Ing. Michael Maas

Tragwerklehre und konstruktives Entwerfen

Prof. Dipl.-Ing. Volker Huckemann

Lehrgebiet Bauphysik & Energieeffizientes Bauen

Prof. Dipl.-Ing. Dipl.-Wirtsch.-Ing. Jörg Probst

Technische Gebäudeausrüstung

01

Cultural centerin Ecuador,Cuenca

Aufgabe: To physically and programmatically connect the proposed cultural center with the Pumapungo museum and the central bank. The topography of the site strongly represents the conditions of the Andes in the city of Cuenca. That is why the proposal must analyze, understand and project in relation to its environment and the important archaeological pieces found in the sector. It is important to make decisions about the formal, structural and constructive response of the proposal. Understand the materials, vernacular construction, resources, technologies, seismic ground and urban textures of Cuenc a city so the formal and constructive representation resultus coherent.

Gast Prof: Javier Durán

02 Entwerfen_WS2021

Site analysis plan

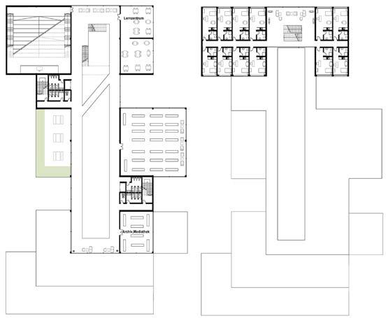
Entwerfen_WS2020

New European Bauhaus

Aufgabe: Die EU-Kommission präsidentin skizziert ein ihrer programmatischen Rede „DieWelt von morgen scha fen,,:Eine vitale Union in einer fragilen Welt“ zur Lage der EU die Idee eines New European Bauhaus. Die Entwurfsaufgabe hat zum Ziel, einen baulich-programmatischen Vorschlag für diese Vision zu entwickeln, der als kreativer Inkubator für Architekten, Ingenieure und Designer eine hybride Mischung aus postgradualer Architekturschule und Forschungs einrichtung, Werkstatt und Ausstellungsort darstellt und hier Baukultur und Nachhaltigkeit zur Deckung bringt, um die Zukunft zu meistern. So wie das historische Bauhaus aus der Integration von Architektur, Kunst und Bildhauerei mit dem Handwerk neue Kraft für die Gestaltung der Zukunft schöpfen wollte, soll das New European Bauhaus durch das Zusammen spiel von Architektur, Ingenieursdisziplinen und Materialwissenschaft im Zeitalter von Digitalisierung und Ökologie in angewandter Forschung und Lehre zu neuen Ufern aufbrechen.

Prof. Dipl.-Ing. : Erhard An-He Kinzelbach MSAAD

Lehrstuhl Entwerfen und Baukonstruktion

03

KONZEPTIDEE

Ziel ist es, ein Projekt zu entwerfen, das sich optimal mit den unterschiedlichen kontestuellen Ransbedingungen - Lage am Wasser mit der Gartentradion des Alt-Bonner Rheinufers und den historisch relevanten Bauwerken und die Verortung im Zusammenhang mit einem modernen internationalen Campus auseinandersetzet.

Das Gebäude definiert funktional und symbolisch als akademischen und sozialen Kontext. Es fördert gleichzeitig ein interaktives, kommunikatives Umfeld für die Zusammenarbeit zwischen Studenten und Adminstratoren. Eine interne Umgebung, die natürliches Licht, Blick auf die Natur und offenes Gefühl mit einem wit-

5-OG 6-7 OG

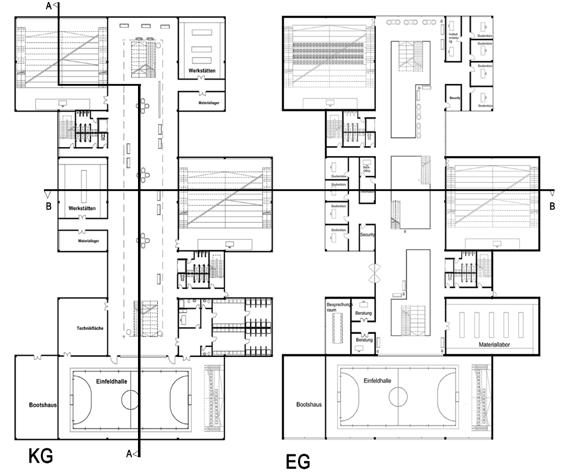
Städtebau_SS2021

Bergheim_Economy_topia

Aufgabe:

Das vom BMBF geförderte Forschungsprojekt NACHWUCHS sucht nach innovativen agri-urbanen Siedlungsmodellen für eine nachhaltige regionale Entwicklung. Der Begriff Siedlung wird hier nicht als klassische Stadterweiterung am Stadt-rand bzw. neu angelegter suburbaner Vorort verstanden. Vielmehr geht es um ein neues Gefüge aus Quartier, Agrarlandschaft und Naturraum, das den Wert der Ressource Land anerkennt

Prof. Dipl.-Ing. : Andreas Fritzen

Lehrstuhl Städtebau und Entwerfen

04

Nutzung

LEITIDEE

Die Idee war es so wenig neue Straßen zu bauen, wie möglich, weshalb wir all unsere Gebäude an die vorhanden Straßen im Süden und Westen angeschlossen haben. Wir haben für Autos keine neuen Wege geplant, nur für Fuß gänger und Radfahrer. Des weiteren haben wir die Grundfläche unserer Bebauung so klein, wie möglich gehalten, um der Landwirtschaft so wenig Platz wie möglich zu nehmen.

Alle Fläche, die wir dei Landwirtschaft nehmen, kompensieren wir durch Gewächshäuser die ganz unter dem Moto„sharingeconomy“ stehen. Unser Stadtviertel soll als eine Gemeinschaft, die sich größten teils selbst versorgt funktonieren. Wir haben zwei kleine Stadtzentren, die direktin Verbindung zur Bergheimer Innenstadt stehen und von denen auchder ÖPNV ausgeht.

KONZEPTPEKTOGRAMME

Analyse

Freiflächen Verkehrsanalyse

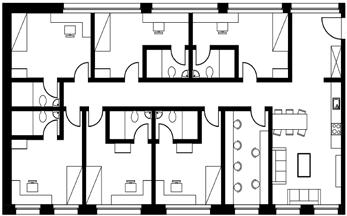
Baukonstruktion III _WS2020

Studendtenwohnheim in Bochum

Aufgabe:

In der Semesteraufgabe soll ausgelotet werden, wie qualitätsvolles Wohnen mit weniger Fläche möglich ist. Neben den Konstruktionsaufwendungen auch die Verbräuche während des Betriebes minimiert werden müssen sollte selbstverständlich sein. Bei Wohngebäuden ist dies maßgeblich von der Kompaktheit sowie der Ausrichtung zur Sonne abhängig. Der Entwurf soll vor allem auf diese Aspekte fokussieren. Kompakte Gebäude lassen aber nur eine begrenzte Anzahl von südausgerichteten Räumen zu. Ebenso führt der Wunsch nach niedrigen A/V Verhältnissen oft auch zu großen Volumen die für die Nutzung nicht zweckmäßig sind

Baukonstruktion/Nachhaltiges Bauen und KonstruktivesProjekt

05
Prof. Dipl.-Ing. Christian Schlüter
1.OG 1/200 2 .OG 1/200 Lagepla 1/500 EG 1/200

Ansicht Süd 1/200

Ansicht Nord1/200 Schnitt1/200
Fassadenschnitt 1/20

Tragkonstruktion _WS2020 Brücke in Dortmund

Aufgabe:

An der B1 in Dortmund soll eine neue Brücke entstehen, die eine Fuß- und Radwegbrücke sein soll, die ebenfalls eine direkte Verbindung zwischen dem Max-Ophüls-Platz oberhalb der Lindemannstraße und dem Messevorplatz an den Westfalenhallen bieten soll. Ein Kriterium sei der Stadt bei dem Neubau besonders wichtig: Der Zugang soll barrierefrei sein.

Prof. Dr.-Ing. Michael Maas

Lehrstuhl: Tragwerklehre und konstruktives Entwerfen

06
Hanaa Al Masalmeh hanaa.almasalmeh2@gmail.com +49 176 87097718

Turn static files into dynamic content formats.

Create a flipbook
Issuu converts static files into: digital portfolios, online yearbooks, online catalogs, digital photo albums and more. Sign up and create your flipbook.