Portafolio | Historia de la Arquitectura III | Gustavo Gutierrez

Page 1

Historia y Teoría de la Arquitectura III Sec 621

20203020

UNIVERSIDAD DE LIMA
Gustavo Andrés Gutiérrez Palacios
F ac ul ta d d e Ing e ni er í a y Ar qui tect u r a Carrera de Arquitectura Área de Historia y Teoría de la Arquitectura Ciclo 2022-2 UNIVERSIDAD DE LIMA
EC1 EC2 03
14 15 16 17 18 19 20 9 10 11 12 13 13 12 11 10 9 1 2 3 4 5 6 7 8 7 6 5 4 3 2 1 8 7 6 5 4 3 2 1 8 1 2 3 4 5 6 7 8 SALA COMEDOR COCINA COCHERA SEGUNDA PLANTA PRIMERA PLANTA ALMACÉN RECIBIDOR A A B B 3 4 2 1 A A B B 3 4 2 1 0 1 3 ESCALA GRÁFICA 0 1 3 ESCALA GRÁFICA 30 31 32 33 34 35 23 24 25 26 27 28 29 DORMITORIO PRINCIPAL BALCÓN TERCERA PLANTA DORMITORIO 36 38 39 40 41 42 43 44 PLANTA DE TECHOS 37 AZOTEA 30 31 32 33 34 35 UNIVERSIDAD DE FACULTAD DE INGENIERIA Y ARQ. A-02 PLANTAS MAISON A A B B 3 4 2 1 A A B B 3 4 2 1 0 1 3 ESCALA GRÁFICA 0 1 3 ESCALA GRÁFICA ELEVACIÓN 0 ESCALA GRÁFICA

ELEVACIÓN 1

ELEVACIÓN 1

ELEVACION 2 0 1 3 ESCALA

0 1 3 ESCALA GRÁFICA UNIVERSIDAD DE LIMA FACULTAD DE INGENIERIA Y ARQ. HISTORIA Y TEORIA DE LA ARQ. III

UNIVERSIDAD DE
A-01
A-02
LIMA FACULTAD DE INGENIERIA Y ARQ. HISTORIA Y TEORIA DE LA ARQ. III
PLANTAS MAISON RIBOT UNIVERSIDAD LIMA
PLANTAS RIBOT
A-05
GRÁFICA
ELEVACIONES MAISON RIBOT
ELEVACION 2 3 0 1 3 ESCALA GRÁFICA
UNIVERSIDAD DE LIMA
Y ARQ.
III A-05 ELEVACIONES
FACULTAD DE INGENIERIA
HISTORIA Y TEORIA DE LA ARQ.
MAISON RIBOT

diagonales rojas unen los extremos virtua les del proyecto. Las diagonales azules eviden cian las proporciones que compraten los ambientes interiores. Se observa que los cruces de ambas diagonales; determinan los limites de cada espacio.

UNIVERSIDAD DE LIMA FACULTAD DE INGENIERIA Y ARQ. HISTORIA Y TEORIA DE LA ARQ. III A-08 AXONOMETRÍA MAISON RIBOT 14 15 16 17 18 19 20 9 10 11 12 13 13 12 11 10 9 1 2 3 4 5 6 7 8 7 6 5 4 3 2 1 8 7 6 5 4 3 2 1 8 1 2 3 4 5 6 7 8 SALA COMEDOR COCINA COCHERA SEGUNDA PLANTA PRIMERA PLANTA ALMACÉN RECIBIDOR A A B B 3 4 2 1 A A B B 3 4 2 1 0 1 3 ESCALA GRÁFICA 0 1 3 ESCALA GRÁFICA c c c c by bx gx gx bx bx bx z y y z Las
bx 30 31 32 33 34 35 23 24 25 26 27 28 29 DORMITORIO PRINCIPAL BALCÓN TERCERA PLANTA DORMITORIO 36 38 39 40 41 42 43 44 PLANTA DE TECHOS 37 AZOTEA 30 31 32 33 34 35 A A B B 3 4 2 1 A A B B 3 4 2 1 0 1 3 ESCALA GRÁFICA 0 1 3 ESCALA GRÁFICA z ax ax ax ax y z y c c c

1

2

f

0 1 3 ESCALA GRÁFICA ELEVACION
0 1 3 ESCALA GRÁFICA
ELEVACION 3
3
3f k 1 2 k 1 2
ELEVACIÓN
ELEVACION
El volumen central contiene la proporcion aurea. A su vez, si se adiciona una circunferencia con diámetro equivalente a la diagonal del volumen; se observa que el radio cruza con el comienzo de la pendiente de ambas escaleras 0 1 3 ESCALA GRÁFICA 0
f f f ESCALA GRÁFICA
1 3
e e t t e t t 2e e 2t
En las elevaciones se puede observar la proporción aure en ambos pisos. Las diagonales y sus perpendiculares responden a la pendiente de la escalera. Gracias a la proporcion aurea y sus cruces con las digonales rojas y sus cionales entre ellos.

Universidad de Lima

Facultad de Ingeniería y Arquitectura Carrera de Arquitectura

INFLUENCE OF MAISON RIBOT ON HANSELMANN HOUSE INFLUENCIA DE MAISON RIBOT EN LA CASA HANSELMANN

Trabajo de investigación de la asignatura

Micaela María Barrios Pigati - Gustavo Andrés Gutiérrez Palacios Códigos 20200223 - 20203020

Profesor

Juan Carlos Doblado Tosio

Lima – Perú Noviembre de 2022

TABLA DE CONTENIDO

ÍNDICE DE IMÁGENES……………………………………………………. pág 4 RESUMEN……………………………………………………………………..……pág 6

ABSTRACT…………………………………………………………………...….. pág 7

MARCO REFERENCIAL ……………………………………………..….. pág 8

EL AUTOR Y LA OBRA ….……………………………………………… pág 11

ANÁLISIS DE LA OBRA………………………………………………… pág 13

CONCLUSIONES……………………………………………………….…… pág 21

BIBLIOGRAFÍA…………………………………………………………..…. pág 22

3

ÍNDICE DE IMÁGENES

Imagen 1: Modelado 3D de Maison Ribot

Fuente: Elaboración propia

Imagen 2: Casa Hanselmann

Fuente:https://limaparislima wordpress com/2020/11/30/tecnne marcelo gardinetti michael g raves casa hanselmann reformulacion semantica de la arquitectura moderna/ Imagen 3: Le Corbusier

Fuente: https://artishockrevista.com/2016/10/26/le corbusier sur america/ Imagen 4: Michael Graves

Fuente:https://arquitecturaviva com/articulos/michael graves

Imagen 5: Elevación 2 Maison Ribot

Fuente: Elaboración Propia

Imagen 6: Elevación este Casa Hanselmann

Fuente: Elaboración propia

Imagen 7: Segunda y tercera planta de Maison Ribot

Fuente:Elaboración propia

Imagen 8: Planta nivel 01

Fuente:Elaboración propia

Imagen 9: Axonometría Maison Ribot

Fuente:Elaboración propia

Imagen 10: Diagrama Axonometría

Fuente:Elaboración propia

Imagen 11: Diagrama-Axonometría 2

Fuente:Elaboración propia

Imagen 12: Elevación 1 y 2 Maison Ribot

Fuente:Elaboración propia

Imagen 13: Fachada oeste

Fuente:Elaboración propia

Imagen 14:Diagrama Fachada oeste

Fuente:Elaboración propia

Imagen 15 y 16: Fachada Norte Casa Hanselmann

Fuente:Elaboración propia

4

RESUMEN

El presente trabajo analiza la Maison Ribot (no construida) proyectada por Le Corbusier en 1923 y la Casa Hanselmann ubicada en Fort Wayne, Indiana; diseñada por Michael Graves en 1967. Con el objetivo de evidenciar la influencia de la primera, sobre la última casa mencionada.

Para el desarrollo del ejercicio se realizó el levantamiento de plantas, cortes y elevaciones de cada casa y se tomó en consideración el análisis geométrico elaborado previamente. Asimismo, se explican acontecimientos importantes que contribuyeron en el resultado del diseño final de ambos proyectos.

Gracias a este trabajo se puede notar la gran relación que existe entre la Casa Hanselmann y la Maison Ribot; tomando en cuenta elementos y principios arquitectónicos similares; tales como los cinco (5) puntos de la arquitectura moderna expresados por Le Corbusier. Dicho resultado demuestra cómo es que Graves fue inspirado por la Maison Ribot Además, el proyecto de Le Corbusier no sólo fue un referente para la casa Hanselmann, sino que también, forma parte de las bases que contribuyeron al entendimiento de la arquitectura moderna del siglo XX; las cuales siguen vigentes hasta el día de hoy

Palabras Clave: Maison Ribot, Casa Hanselmann, Le Corbusier, Michael Graves, Modernismo

6

ABSTRACT

The following work analyzes the Maison Ribot (not builded) designed by Le Corbusier in 1933 and the Hanselmann House, located in Fort Wayne, IN USA designed by Michael Graves in 1967. In order to prove the influence between the first one, over the last mentioned one.

The geometric analysis previously elaborated for the development of the exercise is taken into consideration. Which consists in the survey of plans, sections and elevations. Likewise, important events that contributed to the result of the final design of both projects are explained.

As a consequence of this work, It can be noticed that the Hanselmann House and Maison Ribot are related to each other, considering elements and similar architectural principles; such as the five (5) points of modern architecture expressed by Le Corbusier This result demonstrates how Graves was inspired by the Maison Ribot. Le Corbusier`s project was not only a reference for Hanselmann House, but also, it's part of the bases that contributed to the understanding of modern architecture of the 20th century, which are still valid to the present day.

Keywords: Maison Ribot, Hanselmann House, Le Corbusier, Michael Graves, Modernism

7

1 MARCO REFERENCIAL

Dentro de la primera década del siglo XX Auguste Perret le ofrece trabajo por varios meses. Gracias a esto, Le Corbusier aprende muchas técnicas acerca del concreto armado. Posteriormente, en 1910 Charles-Édouard Jeanneret-Gris (Le Corbusier) comenzó a trabajar en la oficina de Peter Behrens junto con Mies Van der Rohe y Walter Gropius. La relación entre Le Corbusier y Behrens no fue la mejor; finalmente vuelve a Suiza, en donde fundará un estudio de arquitectura con su primo, Pierre Jeanneret. Así pues, durante los siguientes años diseñaron en su mayoría proyectos residenciales.

Imagen 1: Modelado 3D de Maison Ribot

Fuente: Elaboración propia en base a referente

En 1914 se da inicio a la Primera Guerra Mundial. Le Corbusier ve como muchas partes de Europa se encuentran destruidas y empieza a idear la forma de reconstruir el mundo a través de la arquitectura; pues, piensa que ello podría ayudar a solucionar grandes problemas y reemplazar las transformaciones sociales de la época.

8

Esto da inicio a la Casa Domino, pensada como una vivienda capaz de ser reproducida hasta convertirse en ciudad. Tres años después, en 1917, vuelve para instalarse en París y se encuentra con Amédée Ozenfant (1886), pintor francés de estilo cubista quien resucita en Le Corbusier el deseo de ser pintor; idea que Jeanneret-Gris siempre tuvo presente. Ambos trabajaban en un nuevo estilo llamado Purismo, el cual consistía en la búsqueda de objetos naturales que hayan llegado a ser perfectos por medio de la depuración. A partir de 1920 hasta 1925 publica 28 ejemplares de una revista titulada L’Esprit Nouveau La cual tiene como tema principal al “purismo”. Más adelante, en 1922, construye la Maison Ozenfant; en donde se puede notar la incorporación de trazados reguladores y proporciones; aplicando mecanismos compositivos de la arquitectura clásica a un estilo arquitectónico más reciente. Asimismo, en el Salón de Otoño de 1923 se presentan varias maquetas en escala 1:20 de diversos proyectos; entre ellos, la Maison Ribot. La ubicación de esta vivienda de dos pisos se desconoce ya que nunca se llegó a construir. En 1923 Le Corbusier publica Vers une architecture (Hacia una arquitectura) considerado el libro más influyente de la arquitectura del siglo XX. Aquí explica su fascinación por el mundo de la industria y la relación entre los autos y los edificios. Por último, en 1926 Jeanneret-Gris formuló Los 5 puntos para una nueva arquitectura Es decir, pilotis, planta libre, fachada libre, ventana longitudinal y terraza jardín. Este fue uno de los aportes arquitectónicos más importantes de Le Corbusier .

Con respecto a la casa Hanselmann, esta se construyó entre los años 1967 y 1972. La arquitectura de los años 60 y 70 se caracteriza por salir de lo común y buscar nuevos conceptos, busca nuevas alturas, formas y sobre todo la ruptura que para entonces sería el viejo modernismo. No solo cambia la arquitectura, el arte en general busca nuevas fronteras, se desarrollan nuevos movimientos musicales y de expresión.

Imagen 2: casa hanselmann fuente: Tecnne.com

9

Así mismo, surge el grupo de arquitectos “The new York Five” en el año 1967 al que forma parte Michael Graves junto con Peter Eisenman, Charles Gwathmey, John Hejduk y Richard Meier, su obra fue conocida por el público por primera vez el mismo año cuando se expuso en el Museum of Modern Art en Nueva York. Los arquitectos de este movimiento proyectaban la forma pura típica del modernismo de los años veinte modificada con su estilo propio e influencias de otras corrientes, en el caso de Michael Graves el Postmodernismo es la corriente a la que se aferra, esta corriente artística que abarca distintos rubros incluyendo la arquitectura. La posmodernidad es la consecuencia de un notable declive de la sociedad industrial y cambios en lo político y económico a nivel mundial, se evidencia desde los años 60 una mayor sensibilidad artística predomina la intuición, lo sensible. A diferencia del modernismo en donde la funcionalidad domina en la arquitectura en el post modernismo la funcionalidad se asocia al poder de expresión de una idea. Estas ideas se ven en la arquitectura de Graves con su intento de darle un giro y modificar lo moderno.

10

EL AUTOR Y LA OBRA

Imagen 3: Le Corbusier Fuente: Artishock - artishock.com

Charles-Édouard Jeanneret-Gris, más conocido posteriormente como Le Corbusier, nació el 6 de octubre de 1887 en Chaux-de-Fonds, parte de la Suiza francófona. Estudió artes y oficios en la escuela de arte de la Chaux-de-Fonds. Es aquí donde la pintura y la arquitectura le interesaron gracias a su maestro L'Eplattenier. En 1910 viajó a diversos países de Europa y Asia tales como: Rumania, Turquía, Italia y Grecia. Al volver, fue profesor de arquitectura por dos años en la Escuela de Artes de París. Jeanneret-Gris recibe el seudónimo de Le Corbusier a sus veintinueve (29) años cuando volvió a París. En relación al tema central de nuestro análisis, nombramos “Ihre Gesamtwerk von” (Obras Completas) libro publicado entre 1910 y 1929 a modo de lista sobre la producción arquitectónica. La colección expone 60 proyectos. Sin embargo, excluye cerca de 33 producciones, entre ellas, la Maison Ribot. Por consiguiente, poco conocemos acerca de esta curiosa vivienda. Se sabe fue desarrollada en los años 20 y que fue expuesta en 1923 en “el Salón de Otoño” junto a otras maquetas denominadas

2
11

“villas blancas”, las cuales fueron hechas en yeso blanco por Charles Lasnon (1879-1942). La Maison et Cantine (1924), también presentada en el salón previamente mencionado, guarda un gran parecido con la Maison Ribot; lastima que la escasez de información también es un factor que las relaciona. Acerca de Lasnon, sabemos que desde 1922 a 1937 se encargó de modelar dichas maquetas, con el objetivo de divulgar la arquitectura y hacer que sea de fácil entendimiento para el público.

Imagen 4: Michael Graves Fuente: arquitectura viva.com

casa Hanselmann construida en 1967 fue una de sus primeras obras. En ella se ve una fuerte influencia del movimiento moderno, se inspira en los conceptos Lecorbusianos para diseñar la casa. Por otro lado, Graves aplica su propio estilo e intenta llevar lo moderno de una manera distinta, las ideas modernistas empiezan a quedar cortas para los arquitectos y muchos dejan de verles el sentido, se busca un cambio. Esto se aprecia en la comparación de la casa Ribot con la Hanselmann al ver la forma y cómo cambia un poco los elementos y hace que las casas se diferencien, hace una mayor exploración a la Geometría intentando descomponer más el cubo. como se mencionó anteriormente el drástico cambio de pensamiento en los años 60 y 70 también afectan los movimientos artísticos y a la arquitectura el posmodernismo está presente en el diseño de Graves, y se evidencia en la casa Hanselman, utiliza los elementos modernos como las ventanas longitudinales, la planta libre la fachada libre los pilotis pero les da una funcionalidad algo diferente les da más expresión, juega más con la espacialidad y a partir de las proporciones exagera algunos elementos como por ejemplo en gran puente que genera

12
Michael Graves nació el 9 de julio de 1936 en Indiana, Estados Unidos. Estudió arquitectura en la universidad de Cincinnati y en Harvard University. La

el ingreso principal, dicho lo anterior la casa Hanselmann es la obra en la que Michael Graves experimenta y evoluciona los conceptos modernos.

3 ANÁLISIS DE LA OBRA

La casa Ribot de Le Corbusier y la casa Hanselmann de Michael Graves son similares a primera vista ya que cuentan con una serie de elementos que cumplen las mismas funciones y por lo tanto expresan ideas similares en la composición de sus fachadas. Para comparar ambas casas se analizarán a partir de los principios de la arquitectura moderna resaltando los giros e innovaciones que aplica el arquitecto Graves en su arquitectura de los años 70 tomando de referencia la arquitectura de los años 20 que proyecta Le corbusier

Aspecto 1: Recorridos y diagonales Un elemento que ambas casas tienen en común son las escaleras que elevan el ingreso al proyecto a un segundo nivel dejando la primera planta como un sótano pero no como la planta principal, lo interesante de la escalera es que la diagonal que genera se ve en la fachada y es un elemento que hace

13

En cuanto a la segunda escalera; si realizamos el mismo procedimiento encontraremos que la proyección determina la altura del parapeto del balcón ubicado en el tercer piso.

Imagen 6: Elevación este Casa Hanselmann

Fuente: Elaboración propia

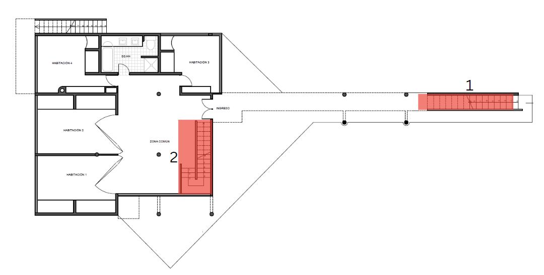
Por otro lado en la imagen 6 se muestra la fachada principal (la cara Este) de la casa Hanselmann. Al igual que la casa Ribot, la escalera está presente en dos momentos, primero para ingresar al segundo nivel por la puerta principal y luego la escalera interior colocada de manera transversal a la primera escalera como se muestra en la planta de la imagen 8.

Imagen 8: Planta nivel 01 Fuente: Elaboración Propia

Al igual que lo explicado previamente sobre la Maison Ribot, la escalera interior de la casa Hanselmann (2) también le da la forma diagonal a la fachada. Por otro lado la escalera que lleva al usuario al ingreso principal en el segundo nivel (1) crea un eje central que es muy notorio. A diferencia de la casa Ribot, Graves exagera el uso de este elemento y distingue entre el concreto y el vidrio que coloca encima haciendo más evidente la presencia del recorrido vertical. De igual manera es importante destacar la fuerte similitud entre ambas casas, Graves utiliza la idea de la escalera como elemento que compone la fachada y le da forma al edificio al igual que Le Corbusier, ambos creen en la idea de levantar a un segundo plano el ingreso principal dejando un primer nivel más libre a excepción que en la casa Hanselmann las ideas tienen mayor presencia y el arquitecto utiliza los elementos para darle forma a la casa.

Aspecto 2: Ortogonalidad, la casa desde la caja En segunda instancia el aspecto que probablemente más presencia tiene al momento de comparar ambas casas es la ortogonalidad. La casa Ribot y Hanselmann generan su composición a partir de una caja o cubo y extraen masa reemplazándola por elementos como puentes, pilotes o escaleras para crear la composición final. Esta intención tiene mucha relación con la idea desarrollada por Le Corbusier sobre lo que él denominaba “Objeto-Tipo”. A estos se les caracteriza por ser elementos de la vida cotidiana que gracias a su uso y la optimización

15

del mismo, se vuelve un objeto perfecto e inmejorable. En el campo arquitectónico, estos objetos son justamente los mencionados al inicio del párrafo (los pilotis, las

Imagen 9:

Axonometría Maison Ribot Fuente: Elaboración Propia escaleras y puentes). Como se ve en la imagen 9, la axonometría de la casa Ribot muestra como un cubo y los elementos funcionales son únicamente los que conforman el conjunto. La arquitectura se reduce a su funcionalidad y a la forma optimizada de sus elementos. Por otro lado en la imagen 10 se muestra la axonometría de la casa Hanselmann donde se enfatiza la descomposición del cubo prácticamente por completo en las caras Este y Sur, el uso de dos grandes pilotes para soportar el gran vacío y el ambiente de área libre en el tercer nivel generado por esta extracción de masa muestran la diferencia de abierto- cerrado que proyecta Graves, así mismo el área común se encuentra al lado más permeable de la casa mientras que las habitaciones y áreas privadas se encuentran al lado de las fachadas Oeste y norte donde hay menos aberturas. Dicho lo anterior se puede decir que comparando ambas casas, en la Hanselmann el cubo se descompone aún más y el uso de elementos de la arquitectura

16

moderna también son más evidentes, el nivel de transparencia es mayor, los vanos crecen más hasta ocupar toda una cara o generar encuentros entre dos caras creando una vista panorámica, también hay un nivel mayor de expresión.

Imagen 10: Diagrama-Axonometría Fuente: Elaboración Propia

Imagen 11: Diagrama-Axonometría 2 Fuente: Elaboración Propia

En la imagen 11 también se muestra como hay una diferencia entre lo estereotómico y lo tectónico evidenciando la mayor extracción de masa del cubo en las caras este y sur y dejando prácticamente sin aberturas a las caras oeste y norte, estas últimas caras se asemejan más a la casa Ribot ya que esta muestra carácter estereotómico. Dicho lo anterior es importante mencionar la influencia de las épocas en las que se construyeron

17

las casas. La casa Ribot fue diseñada en 1923, tres años antes de que Le Corbusier determina y comparte los 5 principios de la arquitectura moderna en 1926, por lo tanto estos principios no se llegan a desarrollar mucho en la casa, hay una noción de ellos pero no del todo. Con respecto a la casa Hanselmann esta se construye en el año 1967 y a diferencia de los años 20 donde el pensamiento era aún más concervador y no se exploraba tanto las formas de cambiar la arquitectura, en la casa Hanselmann si se muestra el lenguaje expresionista de la época típico de los años 60 y 70, así mismo los principios determinados por Le Corbusier ya se habían aplicado en la arquitectura por 30 años, esto permite que Michael Graves explore los principios y les de una forma y función distinta, debido a esto se ve que la casa Hanselmann tiene una exploración espacial mayor y el uso de los pilotis, ventanas, puentes, etc es más eficiente.

Aspecto 3 : Proporciones Las ventanas longitudinales son otro elemento presente en ambas casas, estas forman parte de los 5 puntos de la arquitectura moderna y ayudan a generar orden, simetría, proporción y sobre todo un lenguaje. Es el elemento de la arquitectura moderna que tiene más presencia en ambas casas. Con respecto al uso de las ventanas longitudinales en cada casa. En el caso de la casa Ribot (imagen 12)

18

Se aprecia la intención absoluta de proporcionalidad entre entre puertas, ventanas y vanos. Además, estas se encuentran ordenadas respondiendo a una diagramación bastante básica de márgenes y alturas. La ventana alta horizontal de la casa Hanselmann es un elemento también visible en la Maison Ribot y en muchos proyectos de Le Corbusier. Incluso, ambas casas muestran una carpintería de barandas y marcos bastante similares. Sin embargo, se puede decir que el tercer punto de la nueva arquitectura, fachada libre, es casi nulo en la Maison Ribot y por lo contrario muy presente en la Casa Hanselmann; sobre todo en el volumen superior

En el caso de las Casa Hanselmann el uso de las ventanas toma mayor presencia en las fachadas norte y oeste, como se mencionó anteriormente estas fachadas son las que se asemejan más a las características de la casa Ribot.

Imagen 13: Fachada oeste

Fuente: Elaboración propia

Imagen 14: Diagrama - Fachada oeste

Fuente: Elaboración propia

Como se muestra en la imagen 13 la fachada oeste de la casa cuenta con 7 ventanas y una mampara que forma parte de la pequeña terraza que conecta a la cocina. En el diagrama de la imagen 14 se muestra como todas las ventanas tienen una relación proporcional entre ellas, y se encuentran en un mismo eje. Lo mismo ocurre en la fachada norte como se muestra en las imágenes 15 y 16.

19

Imagen 15: Fachada Norte Casa Hanselmann Fuente: Elaboración propia

Imagen 16: Fachada Norte Casa Hanselmann-diagrama Fuente: Elaboración propia

Como se muestra en la imagen 16 todas las ventanas coinciden en un mismo eje y no solo las ventanas también el puente los escalones de las escaleras, las terrazas todos los elementos tienen una relación en su ubicación. La idea de proporción y generar una relación entre los perfiles y encuentros de todos los elementos fue primero de Le Corbusier, Graves encuentra una armonía y herramienta para generar orden en la composición utilizando este mismo principio. Como se muestra en las imágenes las ventanas longitudinales permiten que haya una vista más amplia del entorno y en el caso de la casa Hanselmann se aprovecha la vista de pura naturaleza a los alrededores.

20

En conclusión, luego de haber analizado y comparado ambas casas se puede decir que el diseño de la casa Ribot de Le Corbusier fue una fuerte influencia para el diseño y construcción de la casa Hanselmann de Michael Graves. El aspecto interesante del ensayo es poder entender de qué manera la época y las corrientes artísticas y de pensamiento afectan en el diseño. Se vió un fuerte contraste entre una casa de 1923 y otra de 1967, la casa de Le corbusier presenta características más simples, la complejidad es menor y el uso de elementos modernos aún no tiene una fuerte presencia ya que en dicha época (1923) Jeanneret-Gris aún se encontraba en la búsqueda del lenguaje de la nueva arquitectura moderna. Posiblemente, en aquel momento, los 5 puntos aún no se encontraban del todo conceptualizados. Mientras que la casa de Michael Graves al haberse diseñado a finales de los años 60 le permitió al arquitecto explayarse dentro de las nuevas corrientes artísticas como el post modernismo corriente a la que forma parte y sacarle provecho a las ideas de Le Corbusier, obteniendo como resultado una casa con elementos interesantes y que se salen de esos parámetros de concepto moderno que existieron por varios años. Jeanneret-Gris siempre trataba de incluir conceptos nuevos en sus proyectos haciendo que se relacionen con su modo de ver la arquitectura. Además, la etapa de pintor influyó mucho en su manera de proyectar. Esto indicaría que la arquitectura puede ser observada desde muchos puntos de vista y que desde la misma se podrían abarcar muchas disciplinas. Por otro lado, analizando rápidamente a Michael Graves; vemos que continuó con la simetría y la proporcionalidad en sus obras posteriores. Es probable que la obra de Le Corbusier también haya influenciado en ellos. A su vez, fue la geometría y la proporción de las obras de Paladio, las que intervinieron en los proyectos de Le Corbusier. Entonces podemos decir que la arquitectura se transforma a través del tiempo pero esto no siempre significa que tenga que perder u olvidarse del pasado.

4
CONCLUSIONES
21

BIBLIOGRAFÍA

Mengual Muñoz, A. (2022, 23 marzo). Casas Lange y Esters. Urbipedia. Recuperado 10 de octubre de 2022, de https://www.urbipedia.org/hoja/Casas_Lange_y_Estersv

Mengual Muñoz, A. (2022, marzo 23). Casa Erich Wolf. Urbipedia. Recuperado 10 de octubre de 2022, de https://www.urbipedia.org/hoja/Casa_Erich_Wolf

Alumnos Construc-3D. (2014, 21 marzo). Wolf House, Ludwig Mies van der Rohe. 3D Warehouse. Recuperado 12 de octubre de 2022, de https://3dwarehouse.sketchup.com/model/90cbabb17770525b548aa422e334d443/wolfhouse-Ludwig-Mies-van-der-Rohe?hl=es

Ávila, M. (2014). La arquitectura posmoderna. Universidad Nacional de Córdoba. Recuperado 20 de octubre de 2022 de http://matiasavila.com/arq/TP_n4.pdf

Ortíz, R. (1992). Reflexiones sobre la posmodernidad: el ejemplo de la arquitectura Recuperado 20 de octubre de 2022 de https://www.infoamerica.org/documentos_pdf/ortiz01.pdf

Pimlott, W M. (1980). Michael Graves: Evolving a Language The Fifth column. Recuperado 17 de Octubre de 2022 de https://fifthcolumn.library.mcgill.ca

5
22

Delgado Mayordomo, C. (2018, 23 enero). Le Corbusier, la máquina de crear ABC cultural. Recuperado 20 de octubre de 2022 de https://www.abc.es/cultura/cultural/abci-corbusier-maquina-crear-201801230124_notici a.html#:~:text=Plantean%2C%20adem%C3%A1s%2C%20un%20vocabulario%20pict %C3%B3rico,racionalidad%20de%20los%20procesos%20industriales

Colección completa de la revista L’Esprit Nouveau (1920-1925). (2020, 28 mayo). Veredes: Arquitectura y divulgación . Recuperado 12 de octubre de 2022 de https://veredes.es/blog/coleccion-completa-de-la-revista-lesprit-nouveau-1920-25/

23

Turn static files into dynamic content formats.

Create a flipbook
Issuu converts static files into: digital portfolios, online yearbooks, online catalogs, digital photo albums and more. Sign up and create your flipbook.