Architectural Design Portfolio 4ṭḥ yr

Page 1

RTF

GurmeetPrajapati ArchitecturalDesign B.Arch.

IamGurmeetPrajapatia4th yeararchitecturestudent.My journeyhasbeenfuelledbya genuinepassionfordesignand agrowingexperienceinDesign &Planning.I'vecultivateda reputationformydedicationto understandingstructural intricaciesandintegrating innovative,sustainabledesign practices.Lookingforward,I'm eagertoadvanceintoafulltimearchitectwhereIcan collaboratewithotherswho shareasimilarvision, collectivelypushingthe boundariesofwhatcanbe achievedinarchitecture.

About
Dehradun,Uttarakhand
Hi!

Experience

2023-2024 2022 EDCL,Kigali,Rwanda

HomeyConstructions, Dehradun,India

(Parttime)

SiteIncharge/WorkCoordinator

(Internship)

InternArchitect

Education

2020PRESENT 2019 Intermediate

Software (3Months) (14Months) SoftSkills

oCreativity

oTeamwork

oVisualization

oProblemSolving

BachelorofArchitecture

DITUniversity,Dehradun,India

ASAVMSchool,Haridwar,India (ExpectedtoGraduateby2025)

oAttentiontodetail

oWorkethic

oInterpersonalskills

oEmotionalIntelligence

+91Gurmeetprajapati611@gamil.com 8171072152

Education&Skills
Content Villa 01 MultipurposeComplex 02 PersonalWork 03 04 UrbanDesign(Minor)

Villa

Thisarchitecturalprojectenvisionsa villanestledwithintheembraceofahilly region.Designedforbothgrand entertainingandintimatefamilymoments, thelayoutboaststwoluxuriousmaster bedrooms,adedicatedservantroom,anda spaciouskitchenseamlesslyflowingintoa diningarea.Adedicatedkid'sroomensures aplayfulhavenforyoungerresidents.Dual livingspacescatertobothsophisticated gatheringsandcasualrelaxation,the formallivingroomfeaturesandairy double-hightceiling,creatingasenseof spaciousness.Steppingoutdoors,a sparklingpoolbeckons,completewitha built-injacuzziforultimateindulgence. Tofurtherenhancetheconnectionwith nature,afireplaceanchorsaninviting outdoorsittingarea,creatinganidyllic settingforstarlitevenings undertheopensky.

01
Villa Groundfloorplan
Firstfloorplan Villa
Section
Sketch
Render
Model

MultipurposeComplex

Theaimwastocreateadynamicand harmoniousmixed-usedevelopmentthat seamlesslyintegratesdiversefunctions withinasinglecohesivedesign.This projectseekstoestablishavibranturban environmentthatmaximizesthepotentialof space,enhancesthequalityoflifefor users,andcontributespositivelytothe surroundingcommunity.

Theconceptbehindthisprojectis‘Place Making’,whichtransformstheordinary areasintovibranthubswherepeoplegather andconnect.Keyelementssuchascommunity engagement,senseofplace, multifunctionality,accessibility,human scale,activation,landscape,and connectivityguidestheapproach.By understandingtheneedsanddesiresof users,ameaningfulenvironmentthat promotessocialinteractionandimproved qualityoflifeiscreated.

02

AshtleyHall,Dehradun,Uttarakhand248001 30.3277°N,78.0465°E

Site
Location
`

FrederickWilsoncametoDehradunafterthebattleof1857andlaid thefoundationofAshtleyhallanditwasnamedafterhisgrandson ‘Ashtley’.Dehradunhasmany'hidden'heritagegems.AstleyHall, builtbyPahadiWilsonisonesuchgem.Wecrossiteverydayon RajpurRoad,andyetknowsolittle,aboutthesignificanceofthe oncesprawlingshoppingplaza.Today,mostheritagepiecesofAstley Hallhavebeenrebuilttoaccommodatemodernbusinesses. AstleyHallwasamagnificentstructureandshowcasedablendof colonialandGothicRevivalstyles.Itfeaturesspaciousrooms,high ceilings,ornatefireplaces,andverandasoverlookingthescenicDoon Valley.AstleyHallstandsasacommercialcomplex,accommodating shops,offices,andrestaurants.Whileitsoriginalgrandeurhas wanedduetoalterationsandcommercialization,thebuildingstill retainsitsarchitecturalcharmandhistoricalsignificance.

Analysis History
Plans

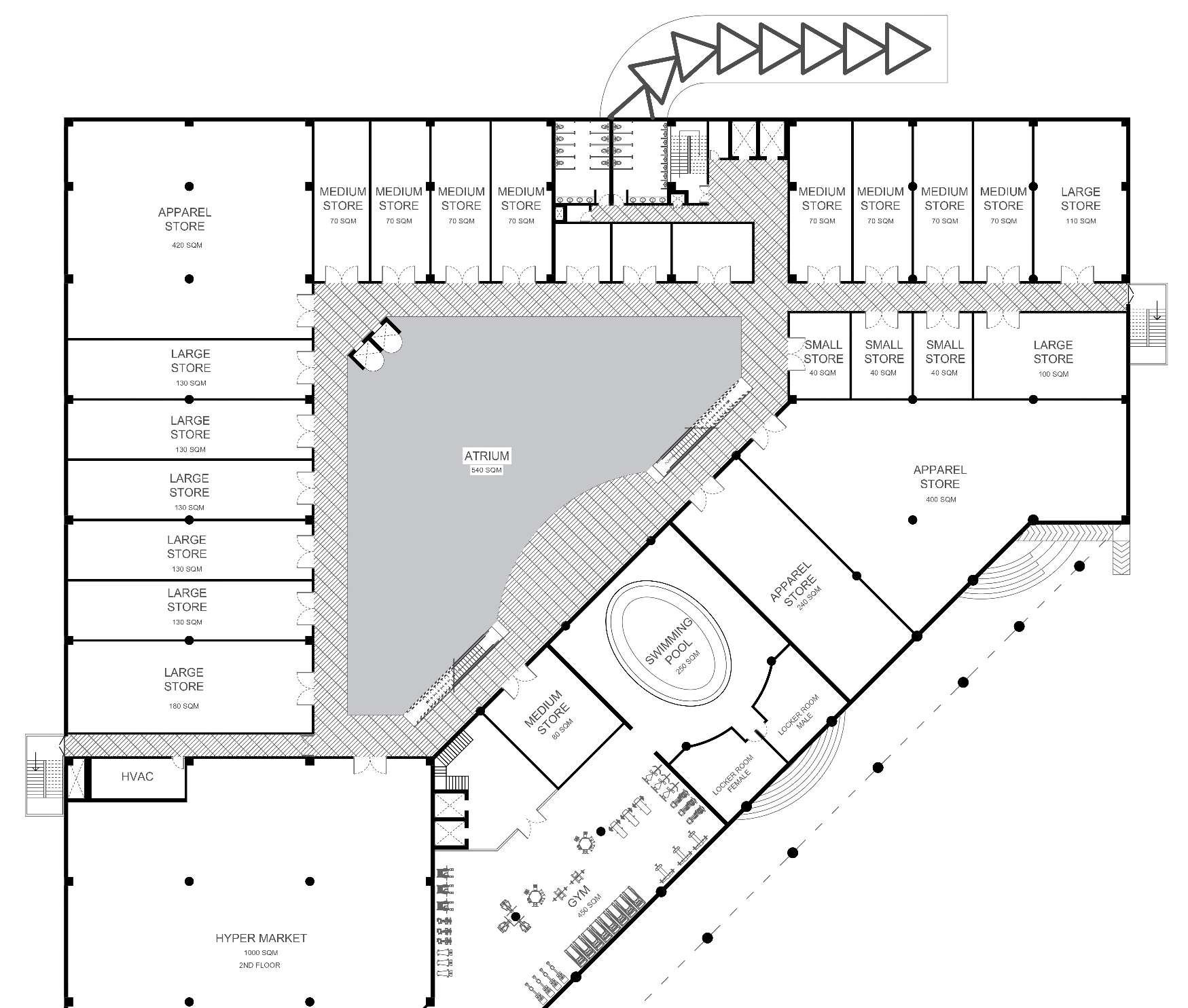
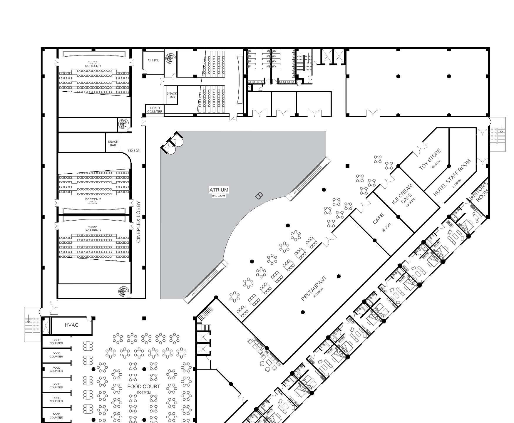
FirstFloor

SecondFloor

ThirdFloor

FourthFloor

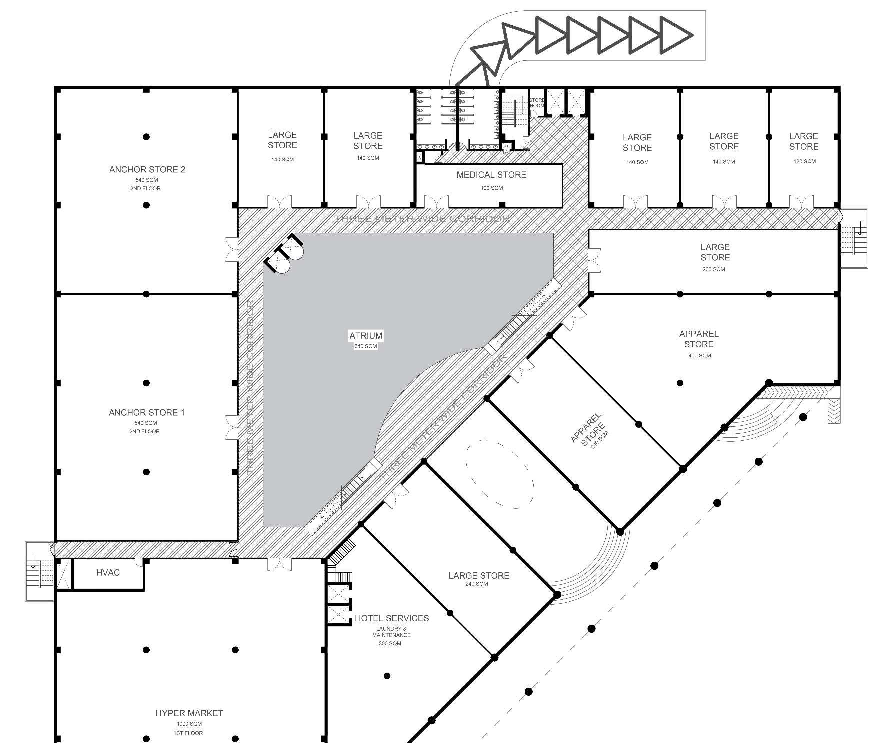
Plans ENTRANCE HOTELRECEPTION BANQUETHALL ANCHORSHOP
LARGESHOP 6SUPERMARKET 7KIOSKS 8ATRIUM
5
Section
Section
PerspectiveViews ExteriorView
InteriorViews InteriorViews

UrbanDesign(Minor)

Aspiringtocreateasecureaccessible walkwaythatfacilitatessmoothflowof pedestrian.Organizingparkingtofreethe footwayfromthehinderingvehicular movementandprotectingtheusersfromany vehicularmishappens.Apathwhereyoucan pauseandrestyourfeetortakeastroll whilethestreetlightsguideyouthrough thenight.Preventingpuddlescausedby waterrunoffonthefootwayanddiverting ittothedrainchannelswhichlater rechargesaquifer.

03
Site Location MussoorieRd,SalanGaon,BhagwantPur,Dehradun,Uttarakhand 24800930.396270°N,78.076643°E

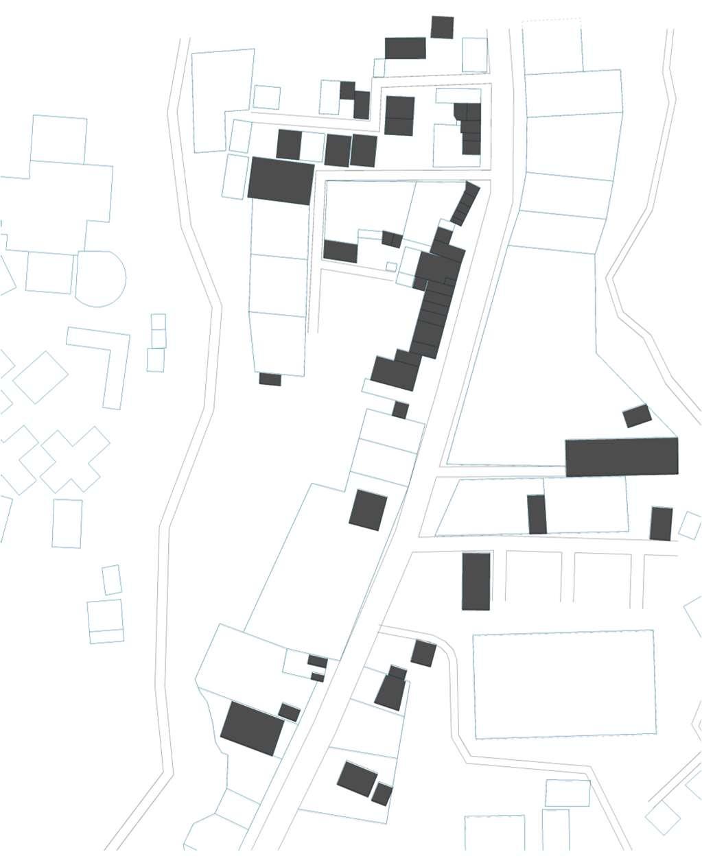
FigureGround

Objectives

oAccessibility: Ensureaseamless&accessiblepedestrianpathbyraising footpathstoroadlevel,facilitatingasmoothtransitionfor allusers,&eliminatingphysicalbarriers.

oSafe&BrightPathway: Adedicatedpathwayforpedestriantoseparatethemfromongoing vehiculartraffic.Also,providingadequatelightingtomake themfeelsecure.

oConvenientParking: Developorganized&dedicatedparkingfacilitiestoreducethe currentchaosandgivesenseofaccessfromthedesired destination.

oReplenishGroundwaterTable: Guidingthewaterrunofftoproperdrainchannels&torecharge groundwatertable.

Analysis
CurrentConditions Plan&Section Before
Plan&Section After
PurposedConcept
Handmade Model
HandmadeModel Views

PersonalWork

Mytravelsacrossdiversecitieshave fueledmypassionforarchitecture.I activelyseekoutinspiration,observing andabsorbingthebuiltenvironmentto informmydesignprocess.Mylovefor visualcommunicationtranslatesintoskills likephotography,sketching,painting,and modelmaking.Thesetools,alongwith participationinnumeroussitevisits,have allowedmetodelveintotheintricate detailsofconstruction,from foundationtofinish.

04
Thanks! +918171072152 Gurmeetprajapati611@gmail.com @gurmeet.prajapati Dehradun,Uttarakhand-248009 Contact

Turn static files into dynamic content formats.

Create a flipbook
Issuu converts static files into: digital portfolios, online yearbooks, online catalogs, digital photo albums and more. Sign up and create your flipbook.