Portfolio, 2018

Page 1

architectural portfolio 2018

Name

Burhan Gün Rodoplu

References

Didem Kılıçkıran

Architect

Head of Architecture Department of Kadir Has University

Aslıhan Demirtaş

M.sc, Architect

Founding partner at Aslıhan Demirtaş Architects and KHORA Büşra Al

M.sc, Architect

Founding partner at Plug Ofis

you can see more of my life, and work, here: instagram.com/fkardesi

instagram.com/subat12_gun

Birth
Location now; Şişli/İstanbul then; Nilüfer/Bursa
22.09.1997
Contact +905333926012 gunrodoplu@gmail.com linked.in/gunrodoplu

Education

2015-present

Kadir Has University

Faculty of Art and Design

Bachelor of Architecture

+2017 Kadir Has Honour Scholarship

2011-2015

Nilüfer Milli Piyango

Anadolu Lisesi

Workshops and experience

Summer 2018 (will be) attendant, VARDİYA

Award

Fall 2017-2018

Awarded 2nd place, MimED2017.

Language

Turkish, native English, fluent

16th International Architecture Exhibition

La Biennale Di Venezia

Pavilion Of Turkey

Summer 2017 attendant, Nesin Sanat Köyü, Mimarlık Yazokulu

Summer 2017

Internship, Evke Yapı

Spring 2017

founding member, Kadir Has Mimarlık Kulübü

Summer 2013

attendant, Rotary Short Term

Summer Exchange Program

Fall 2012

attendant, Comenius Exchange Program

Summer 2008

attendant, CISV International Camp

Illustrator Indesign
Skillset Photoshop
Premier AutoCAD Rhinoceros

Awarded 2nd place, MimED2017.

tutors:

ARCH202 Architectural Design II RETREAT CENTER ON BURGAZADA

Spring 2017, 10 weeks.

The project does not aim to have conventional functions besides administration and service spaces. It includes five 'elemental' spaces, which is defined by different size and material choices, a food court and a watch-tower over Kalpazankaya.

The projects sits on the already damaged soil.

The linear road from Burgazada Pier to Kalpazankaya is such an interesting part of the experience.

1 footprint 2 linearity

First impressions was expressed on site plan and sections. Kalpazankaya and textures like the aggregate, the beach, greenery and sea were all represented on a single page. From the site plan drawing, the main decision behind the project came to be: all the textures are in and on one another, this is what we call earth.

From the red soil of the island and spesific inputs from the site, the second decision was that the architecture would mimic the Kalpazankaya’s relation to the rest of the island. That meant some places are under the ground and some above.

These are strengthened with the choice of materiality. The materials chosen is either earth-based, or has a strong relation to it. As it can be observed easily, Kalpazankaya does not end in a mere moment, or exists suddenly; what keeps stone, rock and water together is the earth. From this observation, it is decided that the project should be build of rammed-earth walls. What inspires the project other than this, is the main attraction of the site, Kalpazankaya. Inspired from the rock’s relation to the sea and and the rest of the island, some of the masses hide under ground where possible; the building imitates the rock which comes out from the sea, by coming out of the earth likewise.

3 the onething that holds everything together 4 out of the earth
+ =

Burgaz (Pyrgos) adını almıştır. Ortodoks kilisesinin en saygın patriklerinden

Metodios’un ikonakırıcılar tarafından

adadaki bir mahzende yedi yıl hapsedildiği söylenmektedir.

Bugün bu mahzenin üzerinde Ayios İoannis Kilisesi bulunmaktadır.

Evliya Çelebi’nin 17.yy’da yazdığnıa göre, ada halkı Rumlardan çok az sayıda Ermenilerden oluşmaktadır.

En az 1 kilometre genişliğindeki boğaz Heybeliada’yı Burgaz (Antigoni) Adası’ndan ayırır. Antikçağ yazarları bu adaya

Erebinthus, Bizanslı yazarlar ise Therebintos ya da Panormos adını vermişlerdir.

Çağdaş Türk edebiyatının önemliyazarlarından hikâyeci Sait Faik Abasıyanık, bölümünü burada geçirmiştir.

Burgaz Adası ve diğer İstanbul Adaları,

Burgaz Adası; ağaçlarla kaplı olan Heybeliada ve Kaşık Adası’na baktığı için

176 m yükseklikteki Bayrak Tepe, adanın güney kıyısından yükselen dik bir yamacın üstündedir.

adadaki Rumların sayısı da azalmıştır. Buna karşılık, adada

İstanbullu Yahudilerin sayısı artmıştır ve adanın nüfusunun büyük bir oranını

Türkler oluşturmaktadır. Adanın sol yamacındaki Avusturya Lisesi’ne ait

binalarda ise Avusturyalı rahip ve rahibeler yaşamaktadır.

da Yahudi ve Ermenilerden oluşmaktadır. En az 1 kilometre genişliğindeki boğaz Heybeliada’yı

Burgaz (Antigoni) Adası’ndan ayırır. Antikçağ yazarları bu adaya

Erebinthus, Bizanslı yazarlar ise Therebintos ya da Panormos adını vermişlerdir.

Çağdaş Türk edebiyatının önemliyazarlarından hikâyeci Sait Faik Abasıyanık,

Working by hand was important in this project because of the primitive feel of the subject.

buraya büyük bir kale yaptırmıştır. Ada önce onun adıyla anılmış, sonra Yunanca kale/burç anlamına gelen

Burgaz (Pyrgos) adını almıştır. Ortodoks kilisesinin en saygın patriklerinden Metodios’un ikonakırıcılar tarafından

adadaki bir mahzende yedi yıl hapsedildiği söylenmektedir.

Bugün bu mahzenin üzerinde Ayios İoannis Kilisesi bulunmaktadır.

Evliya Çelebi’nin 17.yy’da yazdığnıa

göre, ada halkı Rumlardan çok az sayıda da Yahudi ve Ermenilerden oluşmaktadır.

En az 1 kilometre genişliğindeki boğaz Heybeliada’yı

Burgaz (Antigoni) Adası’ndan ayırır. Antikçağ yazarları bu adaya

Erebinthus, Bizanslı yazarlar ise There bintos ya da Panormos adını vermişlerdir.

Bugün bu mahzenin üzerinde Ayios İoannis Kilisesi bulunmaktadır. Evliya Çelebi’nin 17.yy’da yazdığnıa göre, ada halkı Rumlardan çok az sayıda

The ‘cave room’, which is a place completely underground, acts like a womb giving birth to other places. This place is low and crowded with material, only the deep place with the skylight on the threshold can light the inside, just like a cave. Spacewise, the place is inspired by the history of quarries on the island, as the space inside is carved. Relation of the human and earth is taken in it’s most prim itive way. Places where one can feel the materiality, takes the scale factor between human and earth in a different way. All the places are designed through their relation with the earth.

Massingwise, the project tries to mimic natural phenomenomns like Kalpazankaya. While doing so, it doesn’t forgets it is out of human hands, it’s geometry is primitive.

Earlier sections.

A B B’ C C’ D D’ E E’ ZEMİN KAT PLANI ÜST KATLAR (2 ve 3) PLANI ÜST KAT PLANI 2 3 5 4 1
A’

Collage-making is a good way to test material in a place, and the livelihood of the places designed.

Early sketches exploring the massing, circulation and the greenery, the atmosphere.

There are damaged parts of earth all over the island near asphalt roads. It is a great opportunity to examine the red soil. Inspired by this, the earth room is a place where cross-sections of red soil is exhibited.

Inspired by the cave and the underground, it is a place which gives birth to other places. The cave room, which is the most important part of the narrative of the whole architecture, is inspired by quarries and the notion of fire, as fire is lit inside rammed-earth columns.

This place takes the notion of fire a bit further, and used it as a tool of not just heat and light, but also for cooking. This is place of dining where people visitors can cook and eat themselves. Material-wise, it is of terra-cota and ceramics, which are also cooked.

The islands also have a very strong presence of forests. The place is a con tinuation of the feel of wandering in the forest. It is a place where cross-sec tions of wood and wood-working pieces are exhibited, where you can examine the nature itself and the human factor.

Rammed-earth walls of the architecture is reinforced with iron bars. Walls end but iron bars contin ues to grow and form a cage, where stones of the island are kept in a gabion-like way.

1 earth

In comparative mythology, sky father is a term for a recurring concept of a sky god who is addressed as a “father”, often the father of a pantheon. The concept is complementary to an “earth mother”.

An Earth goddess is a deification of the Earth, in the sense of fertile soil, classical element and the inhabited world, typically pictured as flat surface stretched under the firmament. Earth goddesses are also often associated with the “chthonic” deities of the underworld.

The idea of fire in the cave room adds a different aspect to whole concept of this place: the infamous ‘‘Allegory of the Cave’’ of Plato, where one of his most famous theories took place. The project doesn’t necessarily comments on the allegory, it is merely inspired by it, given it is such an important work on the field of philosophy.

I tried to connect the idea of the cave and the light with the fire lit inside, because the project too is tackling with the concepts of the origin of humanity and it’s understanding of what is around them. The element of fire is what binds the two.

Gravings of Gustave Dore, where he depicts many stories of importance which takes place in the cave; from the Bible to Paradise Lost to Divine Comedy. The caves were always important devices to tell a story.

This place is where the project is most ambitious, with the concept of threshold, the cave, the fire are all together and works to remind a person of his/her relation to earth and life.

Architecture takes inspiration from many; the nature of the island, the greenery, the sea, the earth and it’s place in architecture, the quarries, stones, woodworking, etc.

Section drawing that shows the relation between places of ‘the cave’ and ‘the sky’ .

This is the place where the narrative of the retreat starts, and ends. The project is about human and the earth, about our history with the earth. This is a place of underground, and architecturally, it is a place that jumpstarts the others, in the sense that all other are born out of this place. It gives birth. When I started the toss the word of ‘birth’ around so much, I tried and come up with an idea that would bind the themes of birth and earth, the notion of underground and the cave.

The allegory is that the cave is a womb. It is dark, protective from the outside. Warm with little light. Like a mother giving birth to a child, the narrative of the space is the moment of birth, the threshold of the cave: threshold that is the inside and outside. The earth and the sky. The mother and the father.

In many stories of religion and myth, the cave is an essential part of the narrative, often a turning point in one’s life. The story changes after one goes inside. After one is outside, he/ she is more experienced, wiser.

Earth is both a conceptual and an architectural tool in the project. So much so that walls are made out of it with a technique called ‘rammed-earth building’.

A photo my instuctor took on one of the jury sessions.

1st year, Spring, Reading and Writing on Architecture.

ARCH122

Instructor: Asst. Prof. Ayşe Sevil Enginsoy Ekinci A GLOSSARY ON ARCHITECTURE IN 14 PARAGRAPHS

14 readings were given by our professor during the course of the second semester of my first year in graduate school. Those were extensive readings on the history of modern architecture and writings by the leading architects of the 21st century on their practises and theories. A word, a term or an expression was chosen in relation to that particular reading, and a paragraph was written for each of them. The project was a a graphic design project, as well as a reading/writing one, in the sense that 14 two-page spreads were designed spesifically which makes an architectural glossary of the semester when put together. The graphic design process was similar in all, as it was about using negative space and the text to create meaningful compositions on each of the pages, according to the written material.

An examplary two-page spread, pages 9 to 10.

Posters I have done for two films I admire, the first two for Beginners(2010), the third for The Dreamers(2003).

3rd year, Fall, identity and poster work for student club.

Graphic work I have done for myself and my brother, to avoid questions of Wi-Fi password in our apartment.

1.
2. 3.

2nd year, Spring, graphic work for the student club, Kadir Has Mimarlik Kulubu, an organization among architecture and design students.

Graphic desicions taken, such as the font and the temporary logo, led to be consistent parts of the student club and it’s graphic language.

tutors: Nilüfer

Kozikoğlu

ARCH102

Introduction to Architectural Design ROW HOUSE FOR SCHOOL TEAM, IN BALAT

Spring 2016, 6 weeks.

private: the places they would occupy.

A row house for the school rowing team near campus, in Balat, Fener. The main inspiration was this Japanese artwork called ‘The Wave Off Kanaguwa’.

Different usages of the row house, both public and private.

Scenarios of daily life of users of public, and sporstmen were studied.

The building has a strong relation to it’s green enviorenment, and a contrasting structure to it’s surrounding neighbourhood, Balat where many wooden houses can be found.

What the project tries to achieve can be found in this drawing: A rowhouse in service of both sportsmen and the neighbourhood Balat, where kids and elders would like to spend time and have a new relation to Haliç coast.

The action of carrying the boat, and boat’s slender nature of characteristics, with the influence of sea and the great waves, helped me achieve a certain look and mass’ relations to the coast of Haliç.

with: tutor:

Burak Arifoğlu Nilüfer Kozikoğlu

ARCH102 Introduction to Architectural Design A PERFORMING MODEL

Spring 2016, 3 days.

Based on a structure system designed by Burak, the two of us made a structure nearly 2 meters tall and can carry a small number of people.

with: tutor:

Burak Arifoğlu Nilüfer Kozikoğlu

ARCH102 Introduction to Architectural Design

AN ANALYSIS ON REM KOOLHAS’ BORDEAUX HOUSE

Spring 2016, 2 weeks.

As a group of four, working in two parts, we’ve prepared a 1/2 replica of Rem Koolhas’ Bordeaux House’s facade, many other analysises aside.

with:

Doğa Cansu Vural

Şeyma Cesur

Burak Sula

tutors:

Didem Kılıçkıran

Ahmet M. Özgüner

ARCH201

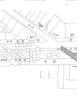
Architectural Design I STREET FAIR ON HALASKARGAZİ ST.

Fall 2016, 5 weeks.

both vehicular and pedestri an. The project aims to create an area for a weekend, as dense as the traffic, to make an exception in the city life, especially for a place like Halaskargazi Street where it is nearly impossible to have a time of peace and fun.

The project, for a group of four people, imagines what it would be like to have a city-scale street fair in the heart of Şişli, one of the prominent centres of the city of İstanbul.

As a group, we visited the site; took photos, notes and did r search on the area, the history of the neighbourhood, especially the importance of the street in post-republic times.

Given that this is a city-scale project, we take a look at Christopher Alexander’s A Pattern Language, and took concepts like ‘the city nod’ and ‘cluster’, and tried those on our project. First, our studies concentrated on the circulation, which is an important thing to achieve given that the street is such a linear form, and the subject of the project is a street fair. It should be playful for people to have a good time in this place.

So, the idea was to try and create isles like clusters, which are not necessarily circular in form, that would have a concentrated presence of booths on them and let people through between. Four different type of booths were distributed evenly on these isles for vendors, and some of these stains on the morphology of the street came to be different type of structures for people to enjoy.

Until the 1800s, Şişli was open countryside, used for hunting and agriculture and leisure. It was developed as a middle class residential district during the last years of the Ottoman.

important influence in this period and the wide avenues of Şişli were lined with large stone buildings with high

of Jews, Greeks and Armenians as well as some Turks, many of whom built homes in Şişli after a large fire in the

the Levantine trading families of this period who settled in Istanbul for trade or were contracted by the Ottoman Empire. Şişli attracted migrants from former possessions in Greece and the Balkans. In the late 19th century, Şişli was one of the first areas supplied with tramlines, electricity and natural gas. The Darülaceze orphanage and the large Şişli Etfal Hospital were built here in this period, as well as the French schools of St. Michel and Notre Dame de Sion.

ceilings and art nouveau wrought-iron balconies, and

neighbouring district of Beyoğ

lu in 1870. To this day, several

Following the founding of the Turkish Republic in the 1920s, larger and larger buildings were built along wide avenues such as Halaskargazi Caddesi, the main road that runs through the middle of Şişli, with its lit tle arcades of shops below tall

Empire and the early years of the Turkish Republic (the late 19th-early 20th centu ries). French culture was an

which often had little eleva tors on wires in the middle of the stairways. This trad ing middle-class was composed

families from Istanbul’s local Armenian community live in the Kurtuluş neighbourhood of Şişli. The area was also popular with

buildings of apartments and of fices. In the republican era, the area was still the residence of the middle-class, as well as traders

SITE PLAN SITE SECTIONS
Out of four different kinds of shops for each of us in the group, the one that I designed was a shop for second-hand books and music records.
Notes on Christopher Alexander’s Pattern Language, which influenced the project greatly.

Documenting the project through photographs of the models was suitable, the project also aims to settle in the same manners of demountability.

The 4x4 meter units take their place on the street fair with demountable actions, which makes sense for this project in lots of different ways. These ‘units’ are made out of wooden pallets, which is a light, healthy material for such an urban event., also helping with it’s demountable nature. Visitors can replace pallets out of the units to make places of their own. Vendors can also modify their booth any way they see fit. All the units are pallets on top of each other, with the help of a steel grid structure.

ARCH201

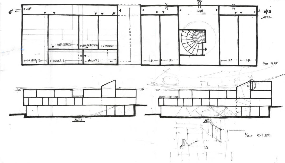
Architectural Design I HEALTH CENTER IN BOMONTI

Fall 2016, 8 weeks.

Şişli, especially Bomonti is a fast-growing neighbourhood, lots of young people prefer the relatively calm neighbourhood over more central parts of Şişli. In the sense that it is rapidly changing, a communal place regardless of it’s program was intended for the project, a place of green and community for the neighbourhood.

The first decision was to have entrances all over the site without stairs, even without facades that would cut the visibility of the greenery: therefore the masses would ‘‘fly’’, and people would walk under these brick-boxes to a rather-reserved place of health and green.

tutors: Didem Kılıçkıran Ahmet M. Özgüner

FLYING MASSES/ FREE GROUND FLOOR

Main decisions of what to do with the site, the mass and the greenery it provides.

GROUND FLOOR MASS

CONNECTING FLYING MASSES

GROUND FLOOR MASS

CONNECTING BOTH SIDES OF THE SITE

MASS/ STREET RELATION

REORGA -

NIZING THE TOPOGRAPHY MASS

CONNECTING STREETS/ TOPOGRAPHY

CONNECTING SIDES OF THE SITE

A more basic approach was more fitting, a singular mass that would become a communal place for middle-school kids after school, people with health conditions and poeple of Bomonti. The ground level is a multi-purpose hall that would serve the community, with a wide stair indicating the movement of going from a street to the next.

The ground floor is a multi-purpose hall with very basic colonnade space, the program of health is on the upper levels of the building. The ground level is an entrance from the south of the site while the other entrance more fitting for people who would come with cars, take the entrance from the north side. The building takes advantage of the 3 meters rise, makes it a 4-meter space more fitting for a public purpose.

The idea of a singular mass that would let the greenery of the site take over.

Flying mass studies, with a reference to the middle school and the rest of the neighbourhood.

People who come from the back of the site, from the stree in front of the school, would be able to get across.

Geometries of the landscape and it’s inte section with the mass.

Contrasting the mass-

The 3 meter rise on the site was handled in a way that would make many public places. The project’s main claim is that it would create a new experi ence on the neighbourhood of Bomonti, with people having their share of the much-need ed green and public space.

For breaking the rough solidness were gathered in the center facade. On facade, there out of the solid mass, creating to the program-based rooms

Site model, the mass and the land.

solidness of the mass, the rooms center and the circulation was near are small pieces tucked in and creating places of resting very near rooms of doctors, nurses, etc.

ARCH234 ARCH 235 Structural Systems

Spring 2016

Fall 2017, 8 weeks.

TERRACE WORKSHOP

Summer 2016.

that’s me!

A rigid structure was built for experimenting with materials such as rope, tape and foil. It is always a process of learning while doing, and testing the materiality of tools at hand. Through the process, we’ve come up with models that could carry weight and create interesting spaces. These were study models for the upcoming project in the school, therefore, they were in a scale of 1:5.

KHAS SUMMER WORKSHOP16, temporary exhibition Summer 2016.

‘‘Uncharted is a research project with a vision of understanding structural geometries. Our approach is based on analysis and experimentation through making physically performative models.’’

KHAS SUMMER WORKSHOP17, structure for school amphi

Summer 2017.

This was a project of testing the materiality of the bamboo and through that designing a canopy in 1:1 scale, for the school amphi. There were supposed to be 12 of the beams you see in the photos, making a 360 degree canopy that would reach out a length of 4 to 5 meters. Given that bamboo works both in tension and compression, tape and rope was not enough to stabilize, then metal claps were used.

Turn static files into dynamic content formats.

Create a flipbook
Issuu converts static files into: digital portfolios, online yearbooks, online catalogs, digital photo albums and more. Sign up and create your flipbook.