PORTAFOLIO

Page 1

PORTAFOLIO

“Las ideas no se pierden nunca. En cierto modo, una vez que has encontrado algo, como arquitecto, que has trabajado en algo, siempre se puede pensar en eso otra vez.”

JOSEPH MOYANO

Educación

Chiclayo - Perú

josephmoy0601@gmail.com

2019- Presente

Estudiante de arquitectura y urbanismo

Universidad Señor de Sipán

Idiomas

Español / Idioma nativo

Inglés / Básico

Habilidades en softwares

Revit Intermedio

AutoCAD

Rhinoceros

Zbrush

Maya

Enscape

Adobe Indesing

Adobe Illustrator

Adobe Photoshop

Avanzado

Básico Básico

Básico

Intermedio

Intermedio Intermedio Intermedio

Re - Uso ecosistémico / Fábrica Tumán Centro de Investigación e Innovación Tecnológica 02 01

RE - USO ECOSISTÉMICO / FÁBRICA

TUMÁN

2021

Taller 4

Tumán, Lambayeque, Perú

Softwares: Revit / Photoshop / Illustrator

Se decide reutilizar el conjunto de naves industriales pre-existentes , con el finde darles un nuevo uso.

Continuidad de la tipología de naves industriales en el nuevo edificio.

Conectar y apoyar la pre - existencia con el nuevo edificio, mediante una plataforma.

Se logra a partir de la disposición de volumenes longitudinales, haciendo uso de un damero

MÍMESIS ADOSAR PLAZAS REHUSO 02 03 04 01
3 Sala de comidas 4 Huerto 2 Local 5 Almacén 6 Cuarto electrógeno 7 Plaza 1 Hall Primer nivel 1 3 7 7 4 2 2 5 6 6 2 1 2 2 1 0 2 3 4 5 10
3 Co working
4
2
5 S.U.M. 5
6
6
7
Segundo
0 2 3 4 5 10 1 6 2 1 3 7 7 3 1 3 3 1 5 3 1 7 3 3 1 4 4 4 2 1 4 4 4 3 3 3 7 7 1 1 2 2 5 5 5 1 2 5 5 5 1 4 1 4
3 Taller de pintura
Consultorio 4 Taller de robótica
Recepción 2 Recepción
Aula
Restaurant
Biblioteca 7 Restaurant
Zona de descanso 1 Hall 1 Hall
nivel Tercer nivel
3
Almacén
4
Cuarto de limpieza
2
Recepción
5
Vivienda
6
Huerto hidropónico 1 Hall Cuarto nivel
0 1 2 3 4 5 10 1 1 3 3 3 3 3 3 3 3 4 4 4 4 2 6 5 5 5 5 5 6 6 2 1 1
Planta Techo

PAVIMENTO

PA - 01

PA - 02

PA - 03

PA - 04

PA - 05

PA - 06

PA - 07

PA - 08

MUROS

MU - 01

MU - 02

PISO CON ACABADO DE CEMENTO PÚLIDO

PORCELANATO LISO GRIS 60 X 60 CM

PISO DECK WPCV 13.8 x 280 cm

PISO DECK WPC 30 X 30 CM

PISO DE MADERA CAFÉ 12 X120 CM

PISO DE MADERA GRIS 12 X120 CM

CERÁMICO ESMALTADO MATE 30.1 X 60.5 CM

PORCELANATO MATE PLATEADO 15 X 60 CM

MURO DE LADRILLO DE HORMIGÓN DE 10 X 20 CM

CABINAS DE PANEL FENÓLICO 12 MM

CARPINTERÍA METÁLICA Y VIDRIO

CP - 01

CP - 02

CP - 03

CP - 04

VENTANA ALTA DE VIDRIO TEMPLADO DE 4MM

VENTANA INTERIOR FIJA DE ESTRUCTURA METÁLICA + VIDRIO TEMPLADO DE 4MM

BARANDA DE ACERO INOXIDABLE TUBO 2”

MAMPARA CON CRISTAL TEMPLADO DE 10MM INCOLORO CON MARCO DE ALUMINIO CON TIRADOR EN FORMA DE “H”

CARPINTERÍA DE MADERA

CP - 05 PUERTA INTERIOR HDF

TECHOS

TE - 01 CUBIERTA PANEL SÁNDWICH 30 MM CON DOBLE ENCHAPE METÁLICO DE ALUZIC Y UN NÚCLEO RÍGIDO DE POLIESTIRENO EXPANDIDO

ESTRUCTURA

ES - 01

ES - 02

ES - 03

VIGAS H ALAS ANCHAS WF - ASTM A36 0.30X0.30X3M

COLUMNA H ALAS ANCHAS WFASTM A36 0.30X0.30X3M

LOSA COLABORANTE, ESPESOR DE 20 CM. CONCRETO ARMADO (F’C =210 Kg/ CM2) Y UNA CHAPA DE ACERO NERVADA INTERIOR.

FACHADA

FA - 01 PANEL DE POLICARBONATO TRANSPARENTE 6MM - UV

3 4 5 6 7 8 1 2 3 4 5 6 7 8 1 2 A B C D A B C D

PAVIMENTO

PA - 01

PA - 02

PA - 03

PA - 04

PA - 05

PA - 06

PA - 07

PA - 08

MUROS

MU - 01

MU - 02

PISO CON ACABADO DE CEMENTO PÚLIDO

PORCELANATO LISO GRIS 60 X 60 CM

PISO DECK WPCV 13.8 x 280 cm

PISO DECK WPC 30 X 30 CM

PISO DE MADERA CAFÉ 12 X120 CM

PISO DE MADERA GRIS 12 X120 CM

CERÁMICO ESMALTADO MATE 30.1 X 60.5 CM

PORCELANATO MATE PLATEADO 15 X 60 CM

MURO DE LADRILLO DE HORMIGÓN DE 10 X 20 CM

CABINAS DE PANEL FENÓLICO 12 MM

CARPINTERÍA METÁLICA Y VIDRIO

CP - 01

CP - 02

CP - 03

CP - 04

VENTANA ALTA DE VIDRIO TEMPLADO DE 4MM

VENTANA INTERIOR FIJA DE ESTRUCTURA METÁLICA + VIDRIO TEMPLADO DE 4MM

BARANDA DE ACERO INOXIDABLE TUBO 2”

MAMPARA CON CRISTAL TEMPLADO DE 10MM INCOLORO CON MARCO DE ALUMINIO CON TIRADOR EN FORMA DE “H”

CARPINTERÍA DE MADERA

CP - 05 PUERTA INTERIOR HDF

TECHOS

TE - 01 CUBIERTA PANEL SÁNDWICH 30 MM CON DOBLE ENCHAPE METÁLICO DE ALUZIC Y UN NÚCLEO RÍGIDO DE POLIESTIRENO EXPANDIDO

ESTRUCTURA

ES - 01

ES - 02

ES - 03

VIGAS H ALAS ANCHAS WF - ASTM A36 0.30X0.30X3M

COLUMNA H ALAS ANCHAS WFASTM A36 0.30X0.30X3M

LOSA COLABORANTE, ESPESOR DE 20 CM. CONCRETO ARMADO (F’C =210 Kg/ CM2) Y UNA CHAPA DE ACERO NERVADA INTERIOR.

FACHADA

FA - 01 PANEL DE POLICARBONATO TRANSPARENTE 6MM - UV

CP- 04 PA- 03 PA- 01 PA- 05 ES- 02 ES- 01 FA- 01 TE- 01 ES- 03

CENTRO DE INVESTIGACIÓN E INNOVACIÓN TECNOLÓGICA

2022

Taller 5

Chiclayo, Lambayeque, Perú

Softwares: Revit / Enscape / AutoCAD / Photoshop / Illustrator

La pieza se adapta a las condiciones del lugar, además de generar vistas hacia el casco histórico.

La cubierta actua como un muro continuo urbano

La pieza se retira para liberar la calle vicente la vega, lo cual genera una plaza de aproximación.

La estructura de adapta al claustro, lo cual permite la conservación de la plaza central sin afectar la arcada pre - existente.

ESCALA URBANA RETIRO EMPLAZAMIENTO ESTRUCTURA 02 03 04 01
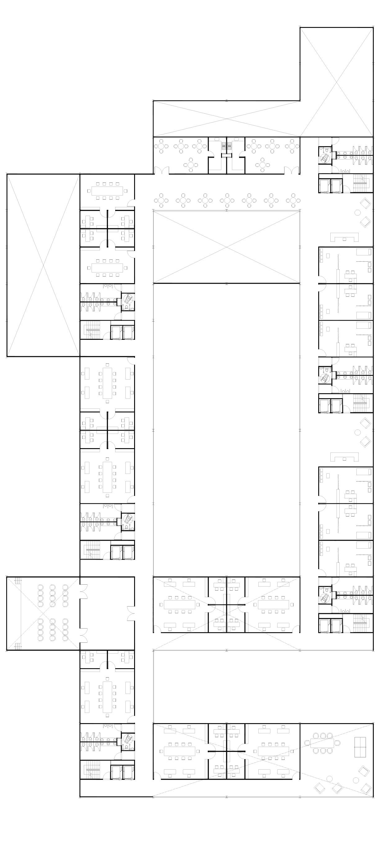
4 Área de exposiciones 5 Feria tecnológica 3 Taller de robótica 6 Cafetería 7 Tópico 8 Grupo electrógeno 9 Cuarto de máquinas 10 Plaza de exposiciones 11 Estacionamiento 12 Cuarto de limpieza 13 Depósito 2 Recepción 1 Hall Primer nivel 2 4 7 3 3 3 12 13 5 1 6 11 8 9 10 2 0 1 2 5 10

Segundo nivel

1 Hall

2 Recepción

3 Aula satélite

4 Laboratorio

5 Sala de computo

6 Sala de exposiciones

7 Sala de exhibiciones

8 Cafetería

9 Auditorio

10 Foyer

11 Cuarto de limpieza

12 Depósito

Tercer nivel

1 Hall

2 Biblioteca

3 Aula satélite

4 Aula de seminario

5 Sala de Exhibiciones

6 Sala de conferencias

7 Co working

8 Sala de descanso y recreación

9 Cuarto de limpieza

10 Depósito

1 1 6 7 7 8 2 3 4 4 3 3 3 3 5 6 12 8 2 9 10 7 11 9 12 10 10 0 1 2 3 4 5 10
4
5
3
10
2
1
Laboratorio de concurso
Laboratorio de docentes
Aula satélite 6 Sala de descanso 7 Sala de computo 8 Aula star 9 Cuarto de limpieza
Almacén
Recepción
Hall
1 3 5 5 3 7 8 4 10 10 9 2 6 0 1 2 3 4 5 10
Cuarto nivel Planta techo

Cubierta termotecho

Anclaje de acero galvanizado

Listones de madera de 0.3 x 0.5

Viga de acero estructural 36 x 35 cm

Plátino metálico de conexión rígido

Combo corredera ducloset simple

Riel colgante U-20 x 30

Losa colaborante de 2 ½ de 12 cm

Plátino metálico de conexión semi simple

Losa falsa con encuentros

Columna de concreto de .35 x .35 cm

Riel colgante U-20 x 30

Perfil de aluminio para muro cortina

Muro cortina de cristal templado de 10 m.m.

Listones de madera de 0.3 x 0.5

Losa colaborante de 2 ½ de 12 cm

Plátino metálico de conexión semi simple

Losa falsa con encuentros

Contra piso, cemento púlido e= 0.05 cm

Falso piso e= 0.10 cm

Afirmado E= 0.20 cm

CONTACTO

Email: josephmoy0601@gmail.com

Instagram: @josepmoy

Turn static files into dynamic content formats.

Create a flipbook
Issuu converts static files into: digital portfolios, online yearbooks, online catalogs, digital photo albums and more. Sign up and create your flipbook.