Confort Ambiental UPC - Pasco

Page 1

SANTUARIO NACIONAL DE HUAYLLAY

TRABAJO PARCIAL

Carrasco,rayza Cáceres, claudia Martinez, jessica Navarro, mila Page, stephanie

ANÁLISIS DE PASCO - HUAYLLAY

1. Análisisurbano Ubicación Recursosconstructivos Análisisdeterreno

2. Análisisclimático Temperaturayvientos Asoleamiento

3. Análisisdemo ráfico

4. Análisisdeusuarios

5. AnálisisdeODS

6. Análisisdelcasestudy

7. Análisisdeconstrucciones

PROYECTO

1. Análisisurbano Ubicación Análisisdeterreno

2. Análisisdeestrate ias Tratamientodea uas Residuossólidos Producciónlocal Sistemaderecoleccióndelluvias Estrate iasclimáticas Sistemadeacuaponía

3. Análisisdeactividades

4. Análisisdezonificación Primernivel

5. Análisisdematerialidad

6. Análisisclimático Asoleamiento Vientos

7. Análisisdeplanimetría

8. Análisisdebioclimática

9. Análisisestructural

10. Detallesconstructivos

11. Fotomontajeexterior

12. Fotomontajeinterior

13. Conclusiones

ÍNDICE

INTRODUCCIÓN

Las edificaciones bioclimáticas se refiere al diseño de construccionesbasadasenloscambiosclimáticosdellu ar.Diri ido aproporcionarcon orttérmicoaprovechando uentesambientalesy unainte raciónestéticaconelentorno.

Elobjetivodeesteproyectocomunitariovivencial está en ocadoen crear espacios con ambientes ecoló icos, sean eficientes y se con ormesindestruireláreanaturallacualeselSantuarioNacional deHuayllayenCerrodePasco.Asímismo,lascapacitacionesquese proporcione como actividades de este proyecto ayudará a que la poblaciónpuedareplicarestastécnicasensusviviendas.

“El proyecto opta por incitar a la interacción de los pobladores mediante actividades Medioambientales rupales y omentar el cuidadosderecursosnaturalesdelazona.”

ANÁLISIS DE PASCO-HUAYLLAY

ANÁLISIS URBANO

ANÁLISIS URBANO

UBICACIÓN

SANTUARIONACIONALDEHUAYLLAY

Es un bosque de rocas con gran singularidad. Debido a la presencia de formas de animales que llevan las rocas, y además por las pinturas rupestres que se encontraron alrededor de paisajes muy llamativos. Lo que enriquece este santuario son algunas fuentes de aguas termales conpropiedadescurativas.

Rutasprincipales

Lagosyríos Parquesybosques

REGIÓN: Pasco

DEPARTAMENTO: Pasco

PROVINCIA:Pasco

RECONOCIMIENTOCOMO

SANTUARIONACIONAL:

7deagostode1974

ÁREADETERRENO: 6815 hectáreas

1

ANÁLISIS URBANO

RECURSOS CONSTRUCTIVOS

● PAREDESMAMPOSTERÍA

La Albañilería o Mampostería se define como un conjunto de unidades trabadas oadheridasentresí.

Las piedras con el mortero de barro Ladrillos y bloques con el cemento

Es el sistema de construcción más difundido. Basa su éxito en la solidez, la nobleza y la

ANÁLISIS URBANO

● TECHODOSAGUA

Es una forma de cubierta para climas fríos o templados

● ESTRUCTURADETECHOS

Lamaderaparaelusodeestructuradevigasparalelaspor cada cara que se asientan sobre los muros. Es frecuente utilizar machihembrado para cubrir las hileras y posteriormenteelresto

● REVESTIMIENTODEESTRUCTURADETECHO

Base del techo en madera rolliza y coberturadepajaoichu.

● EDIFICACIONESDELLUGAR

Lar ueros Vi uetas Vi a cumbrera Vi a soporte a la canaleta Vanos pequeños

Ventanas y puertas de madera

Tarrajeo con arena de barro Muros de adobe

CONCLUSIONES: Se ha detectado que el sistema de construcción de la mayoría de las viviendas en Huayllay utilizan materiales como la calamina para los techosyotrosmaterialesparaambientesfrescosdebidoasueconomíaybajocosto,lacualnoesrecomendableporeltipodeclimafríoylluviosodellugar.

ANÁLISIS URBANO

RECURSOS CONSTRUCTIVOS

DISTRITODEHUAYLLAY

El Santuario de Huayllay se ubica en el distrito de Huayllay, provincia y región de Pasco, aun altitud que varía entre 4546 m.s.n.m. tiene una extensiónde6815hectáreas.

● TERRENO Y PAISAJE

TERRENO

Comprende un gigantesco conjunto de formaciones rocosas de naturaleza volcánica de 65 millones de años sobrepuesta en capas de calizas sedimentarias y se caracteriza por un especial ecosistema altoandinoodepuna.

Pueden encontrarse rocas de diferente origen, edad, colores, textura,composiciónyresistenciaalaerosiónymeteorización.

Es por ello que las geoformas del relieve contrastan en topografía y color, principalmente en algunos sectores del Santuario.

Tobasblanquecinas

ElSantuarioNacionaldeHuayllayestáconstituidoenun 90%porrocasdeorigenvolcánico(tufosocenizas volcánicas)ysetratadetobasblanquecinasdenaturaleza dacíticoariodacitico.

ANÁLISIS URBANO RECURSOS CONSTRUCTIVOS

El 10% restante lo conforman rocas de origen sedimentario como calizas, areniscasylutitasqueseubicanenlabasedelastobas.

ARENISCASCALIZAS

LUTITAS

PAISAJE : FLORA

Está representada principalmente por pajonales, las cuales sirven de alimentosparalosanimalesytambiéncontienenpropiedadescurativaso también sirven de utilidad para las personas que habitan en los alrededores.

Poaceas (Gramíneas)

Sirve para el forraje del ganado, conservar fuentes de agua y sirve como alimento.

Ichu

Crece en abundancia. Por su resistencia e impermeabilidad, los pobladores la utilizan para la fabricación de los techos o ladrillos artesanales.

El material volcánico del bosque de rocas corresponde a flujos piroclásticos,losqueprobablementeseoriginaronenuncentrovolcánico elcualseubicaríaaloestedeHuayllay(elcerroPariamachay)

Actualmente, las formaciones rocosas presentes reflejan la contribución dealrededorde8erosionesvolcánicasenvariosmomentosoetapascomo seobservanasimplevistalascapasderocassuperpuestas.

Pasto estrella

Los pobladores obtienen como costumbre ancestral "la turba o champa" que utilizan comocombustible.

Queñua.

Única especie arbórea. Regula el clima, previene la erosión de los suelos, contribuye con nutrientes al suelo y almacena grandes cantidadesdeagua.

ANÁLISIS CLIMÁTICO

TEMPERATURA - VIENTOS

MayorprecipitaciónesenDiciembrealcanzalos138mm

MenosprecipitaciónesJulio alcanzalos9mm

Latemperaturamediaestáen23°

Latemperaturamáximallegahastalos26°

ElvientoestásoplandodesdeelSuroeste(SO) paraelnoreste(NE)

Huayllay Lima Huayllay Lima

6°C media anual

3200 mm mediaanual 18.7C media anual 16mm mediaanual

Temperatura más alta

FEBRERO 26°C

Temperatura más baja

JULIO -6°C

Lluvias con más intensidad

FEBRERO 9mm

2

ANÁLISIS CLIMÁTICO

ASOLEAMIENTO

Sombras generadas en el solsticio de verano 9:00 am hastalas4:00pm

Sombras generadas en el equinoccio de otoño y primavera de9:00amhastalas 4:00pm

Sombras generadas en el solsticio de invierno de 9:00 am hastalas4:00pm

ANÁLISIS DEMOGRÁFICO

SUPERFICIE 1018,00km²

3 LONGITUD 76°21'53''O

ALTITUD 4 311m.s.n.m

DEMOGRAFÍA

POBLACIÓN 6736hab.

MUJERES 3507hab. HOMBRES 3229hab.

LATITUD 11°0'8''S

TRANSPORTE 60%

HOTELES Y RESTAURANTES 20%

ANÁLISIS DE USUARIOS

65 a más años

HOMBRESMUJERES

15 - 64 años

8 306 con un total del 6,5 %

15 - 64 años

83 386 con un total del 65,1 %

Población 100%

81 811 con un total del 65,0 %

65 a más años

4 8 835 con un total del 7,0 %

NIÑOS

0 - 14 años

35 308 con un total del 28,0 %

0 - 14 años

36 419 con un total del 28,4 %

ANÁLISIS DE ODS

ACCIÓNPORELCLIMA

● Acelerar la descarbonización de todos los aspectos de nuestra economía.

● Empleos verdes y crecimiento sostenibleeinclusivo.

● hacer que las sociedades y los pueblos sean más resilientes mediante una transición justa para todos y que no deje a nadie atrás.

● Invertir en soluciones sostenibles: los subsidios a los combustibles fósiles deben desaparecer y los contaminadoresdebenpagarpor sucontaminación.

● Afrontar todos los riesgos climáticos.

FINDELAPOBREZA

● Poner en práctica a nivel nacional sistemas y medidas apropiadas de protección social para todos, incluidos niveles mínimos, y lograr, para 2030, una amplia cobertura de las personas pobres y vulnerables.

HAMBRECERO

● En Perú, se busca terminar con todas las formas de hambre y desnutrición para el 2030 y velar por el acceso de todas las personas.

POR

5
ACCIÓN
EL CLIMA13
PRODUCCIÓN Y CONSUMO RESPONSABLE TRABAJO Y CRECIMIENTO ECONÓMICO

ANÁLISIS DEL CASE STUDY

Mil Centro es un proyecto que busca recuperar las técnicas ancestrales de construcción y aplicar el uso de elementos naturalesenlaconstrucción.

MATERIALIDAD

● TECHO

UBICACIÓN

● MORAY,CUSCO

Techo tejido a mano con fibra de ichu. Se usó una técnica que era implementada por los Incas, la cual es con madera, fibra de ichu y barro

● FACHADA

Se utilizó un sistema constructivo basado en la mezcla de la tierra con resinas que provienendeloscactus

● MUROS INTERIORES

Se usaron distintos tipos de tierra de los alrededoresyseaplicaronenlosambientes

● PATIO CENTRAL

Está hecho de piedra y cuenta con un jardín central donde se sembraron distintas especiesnativasyunárboldelaqueñua

Muro de adobe Enlucido

Baldosa de barro

Capa de grava Arena gruesa

MILCENTRO

6

ANÁLISIS DE CONSTRUCCIONES

TOTALDEVIVIENDASPARTICULARESENHUAYLLAY:1708

MUROS

Material noble 59%

Material de adobe o tapia 32,8%

Material precario 7,3%

PISOS

Cemento 20,8%

Tierra 18%

Parquet, losetas o similares 6%

TECHOS

Concreto armado 9%

Calamina o teja 86,9%

Material precario 3,3%

7

ANÁLISIS DEL SANTUARIO NACIONAL DE HUAYLLAY

ANÁLISIS URBANO

ESCALA TERRITORIAL

ESCALA CIUDAD

BosquedepiedrasHuayllay Víavehicularprincipal-20A Víavehicularsecundaria

CENTRO COMUNITARIO VIVENCIAL

Dirigidoparalapoblaciónadultosyniños. Enlacualpodránreunirse para realizar actividades Medioambientales grupales y fomentar el cuidadoderecursosnaturalesdelazona.

ESCALA COMUNIDAD

Corrientedeagua

Está ubicadaen elSantuarioNacionaldeHuayllay,Pasco. LaFachada estáubicadaalSuresteytieneunaelevaciónde4115msnm

Eláreatotaldelterrenoesde1500m2.

● NORTE:CentroPobladodeCanchacucho

● SUR:SantuarioNacionaldeHuayllay

● ESTE:SantuarioNacionaldeHuayllay

1 Lapoblaciónpodráhacerusodeestastécnicas sostenibleyseenseñaraelusoadecuadodelos recursos naturales y a como preservar el santuarioparaquepuedanserreplicadas.

● OESTE:BosquedePiedrasdeHuayllay

4115m

Limitacionesdelterreno 95.6m75.2m42m21.5m17.3m10.5m6.32m

RíoAnticona
ANÁLISIS URBANO CONTEXTOEXTERIOR-HITOSURBANOS 01 02 03 04 05 06 06 Bosquedepiedrasde Huayllay Centropobladode Canchacucho Restaurantsnack-Rubi Informaciónturística SagradoCorazonde Jesus-cafetería Explanadafestivalrural tour Bungalowscanchacucho -Huayllay Corrientedeagua BosquedepiedrasHuayllay Víavehicularprincipal-20A Víavehicularsecundaria

ANÁLISIS

UBICACIÓNDELPROYECTOENELSANTUARIONACIONALDEHUAYLLAY-PASCO

ProyectoCentro Comunitario

URBANO
Vivencial

ÁREA:

Cuarto de tanques

ANÁLISIS DE ESTRATEGIAS

Tratamiento de aguas

Casa

FUNCIONES:

● Eliminarlossólidos: Sepuedeeliminarlosplásticos,vísceras,arena,hasta partículasmáspequeñosqueseencuentranenlasaguas residuales.

● Reducirlamateriaorgánicayloscontaminantes: Se puedeneliminarlasbacteriasymicroorganismos,estas consumenlamateriaorgánicadelasaguasresidualeslas cualessonseparadas

● Restaurareloxígeno:Elprocesodeltratamientoasegura queelaguaseareutilizadoenlosríosylagosnuevamente soportandolavida.

Hervir a 1000°C y descartamos el 99% de combustible. De ahí obtenemos un vapor relativamente limpio que refinamos con filtros muy, muy finos.

Luegolocondensamosylosometemosotravezaprocesosdelimpieza

Primero ingresa a la cámara de decantación y desengrasado. Consta de dos compartimientos.

A través de procesos bioquímicos degrada y elimina la materia orgánica presente. El panel Lamelar impide el paso de sólidos en suspensión más pequeños.

La rotación de discos provoca la transferencia de oxígeno.

El agua clarificada pasa a la cámara de bombeo y estabilización

En el módulo los componentes complementa y desactiva el proceso de degradación biológica. Esto elimina malos olores, toda bacteria y elementos biológicos.

El agua residual pasa por la trampa, la cual retiene sólidos mayores. Además que es de fácil limpieza.

Planta biodisco

Trampa de sólidos

Módulode perfeccionamiento deagua

Filtro de malla

Filtro de sílice Filtro UV Cloro

Floculación KDF
2

ÁREA: Compostaje

ANÁLISIS DE ESTRATEGIAS

Residuos sólidos

Compostaje

ReciclajedePlástico

El sistema hidropónico requiere ciertos tratamientos de alimentación natural para fortalecer el cultivo, es por eso que se propone cubrirestanecesidadatravésdelareutilizaciónde ciertosrestosdecomida.

ÁREA: Taller de jardineríayzona decultivo

Parapoderfortalecerelsistemahidropónicose plantea reutilizar los plásticos de botellas o tubos desechados para de esta manera poder crear maceteros y soportes para las semillas y alimentoscultivados.

Finalmente se cortan las botellasotubos seleccionados para crear los maceteros.

Abastecimientoparaaguasrecicladas

ÁREA: Acuaponía

ANÁLISIS DE ESTRATEGIAS

Sistemahidropónico

Producción local

Se plantea cultivar alimentos básicos para así evitar que los usuarios locales contraigan enfermedadesyasÍcombatirconunadelasODS´s máscomunes,elHAMBRECERO.

PASOS

1. Realizalosagujerosyencajalastuberías.

2. Conecta los tubos o mangueras con la tubería superior y la caja o recipiente grande que irá abajo del todo. Según el ángulo que le des al sistema, quizá tengas que colocar más manguerasparaconectarlastuberíasentreellas y con la caja de abajo que recogerá el agua, dependerádeldiseño.

Fijarbientodaslaspiezasentreellasylaparedo soporteenformadepirámide.

Añadir el agua con la solución o película Colocayaccionalasdosbombas.

Colocarenlosagujeroslosbrotesconunpoco de sustrato en la base y ver que sus raíces tocanelagua.

ÁREA:

Cuarto de tanques

ANÁLISIS DE ESTRATEGIAS

Sistema de recolección de lluvias

BOMBA

Lluvia

Paraaprovecharlalluviaserecolectaráatravésde canaletasytuberías.Yaqueconsisteentresetapas el primero Sistema de captación, el segundo Sistemadeconducciónyporúltimollegaraltanque dealmacenamiento.

Seplanteaunabombadeaguaparaelsistemahidropónicoyriegodecultivocon unamejorcirculaciónymovimientodeaguaatravésdelastuberíasquereposan enunestanteconnutrientesparalasplantas.

LAUTILIDADQUESELEBRINDARÁAESTASAGUASTRATADAS

ACUAPONÍA

HIDROPÓNICO

SANITARIOS

ÁREA: Jardinería

ANÁLISIS DE ESTRATEGIAS

Iluminaciónnatural

Estrategia climáticas

Para aprovechar el calor e iluminación del sol se proponeusarpolicarbonatoeneltechoelevadoen lazonadejardinería.

Policarbonato Tallerde jardinería

Ingresodelaluzsolar

USOS: Iluminaciónnaturalenelinterior

Brindarcalordentrodelespacioyalrededoresdel tallerdejardineriaenépocasfrías.

Creaunefectoinvernaderoelazonarequerida.

Retieneelcaloremitido enlossuelos

Policarbonato Tallerde jardinería

Efecto invernadero

Generaelrebotede calornuevamentealos lateralesdelambiente.

ÁREA:

Jardinería

ANÁLISIS DE ESTRATEGIAS

Sistema de acuaponía

ACUAPONÍA

Esunsistemadeproduccióncerradodepecesuotrosqueintegrala técnicadeacuiculturaconlahidroponía,esunacombinacióndela produccióndepecesyhortalizassinsueloporelmediocomún"agua".

USOS:CultivoconsemillaslocalesBrindaralimentacióndiariaal público.Finalhambre.

Lechugas Tubérculos

Hierbas

REGADÍODESISTEMAACUAPÓNICO

Seplanteausarelaguarecicladaatravésdelalluviasparael cultivodeplantasenelexteriorointeriorsinnecesidadde tenercomoprincipalabastecimientolatierra.

ANÁLISIS DE ACTIVIDADES

ÁREADE CAPACITACIÓN

Los usuarios recibirán charlas informativas en los se tendrá conocimientos específicamente del cuidado del área comunal y el Santuario Nacional deHuayllay.

TALLERDE JARDINERÍA

Los usuarios recibirán charlas informativas en los se tendrá conocimientos específicamente del cuidado del área comunal y el Santuario Nacional deHuayllay.

En este taller los usuarios podrán realizar de manera vivencial el manejo de la jardinería y la vegetación.

TALLERDE JARDINERÍA ZONADE CULTIVO COMPOSTAJE ACUAPONÍA

El espacio va dirigido a los asistentes que quieran y necesiten mayor experiencia en el cultivo de distintos alimentos básicos. Para así poder crecer económicamente.

El compostaje es primordial en esta zonaparaasíevitarel desecho de diversos residuos agrícolas a zonas que no son adecuadas. De esta manera se podrá reutilizar estos desechos como fertilizantes en la jardineríayzonade cultivo.

Con este sistema las plantasylospecesson aprovechados como nutrientes por los vegetales.Mientrasque las plantas limpian el agua y eliminan los compuestos tóxicos para los peces reduciendo la renovacióndelagua.

GRANJADE CUYES

Loscuyesseráncriados y alimentados adecuadamente con la vegetacióncultivadaen dichostalleres. Delamismamanerase usarálashecesdeestos paraeltratamientode plantas

ZONA RECOLECTORA DEAGUAS

En este ambiente se recolectará agua de las lluvias para poder ser distribuido a diversas zonas comolosbaños.

3

ANÁLISIS DE ZONIFICACIÓN

Ambienteenelcualpodráningerir alimentosybebidasytambiénsepodrán adquirir Ambientedestinadoparaser habitadoporcuatrousuarios dondepodránresidir

Seexhibiráelarte rupestredellugar yotroselementos históricos

Se capacitarán a los pobladores acerca del Santuarioydelbuenmanejode susrecursos

Se desarrollará la enseñanza del cuidado decultivosycómorealizarlos

Se realizará compostaje a partir de residuos orgánicos generados por los usuarios

Secultivaránplantas comestiblesytípicasdelazona

Serecepcionaránalosnuevos usuarios ysebrindarán informaciónacercadelos programas

la alimentación de familias

Serealizaránactividadesde pisciculturayacuacultura

Sealmacenaránarchivosyelementosausar paraelpersonaladministrativo

Seráutilizadocomooficinaoárea administrativadelproyecto

Ambienteenelqueserecolectaráaguadelas

lluviasparapoderserenviadoaotraszonas

LEYENDA

Área administrativa Cuarto de tanques

Recepción Almacén SSHH Área de exhibición

Vivienda Cafetería Taller de jardinería

Granja de cuyes Zona de compostaje Zona de cultivo

Área de capacitación

Granja de peces

4

ANÁLISIS DE MATERIALIDAD

Policarbonato enlazonade jardinería.Utilizadasen invernaderos.

Madera. Materialcon resistencia,dureza,rigidez ydensidad. Estructuramaciza.

Paneles solares enlostechos a 4 aguas para generar energía en espacios requeridosalinterior.

Canaletas para recaudar el aguadelaslluviasydistribuir a la zonas necesarias y adecuadas.

Adobe. Aislante térmico, acústico y de radiaciones electromagnéticas de alta frecuencia.

Noserealizaningúnconsumo de energía, Materiales naturales.

Paredes junta al sistema estructuraldelaquincha.

5

ANÁLISIS CLIMÁTICO

SOLSTICIO INVIERNO - 21 DE JUNIO

Hora : 8 am Elevación: 7.5° Azimut: 64.27°

SOLSTICIO VERANO - 21 DE DICIEMBRE

Hora : 12 pm Elevación: 51.89° Azimut: 25.42° Hora : 5 pm Elevación: 23.51° Azimut: 301.74°

Hora : 8 am Elevación: 17. 22° Azimut: 11.35°

Hora : 12 pm Elevación: 70.41° Azimut: 131.65°

Hora : 8 am Elevación: 17. 22° Azimut: 11.35° Hora : 12 pm Elevación: 70.41° Azimut: 131.65° Hora : 5 pm Elevación: 32.55° Azimut: 249.08°

Hora : 5 pm Elevación: 32.55° Azimut: 249.08°

6
E O E O E O

ANÁLISIS CLIMÁTICO

● Según la rosa de vientos nos muestra que los vientos son predominantes por el norte-noreste. También se muestra proveniencia del Norte y del Noreste.

● Enáreatotaldelapropuestapodemosobservargrancantidaddevientos vienedelNoreste.

● Asimismo, se puede ver que el viento recorre todo el área del proyecto debido a las aberturas como ventanas altas y ventanales que tiene la estructuras. En la parte superior del techo, la abertura que se encuentra en el techo de cuatro aguas ayuda que todos los ambientes tengan una ambientaciónadecuada.

ELEVACIÓN

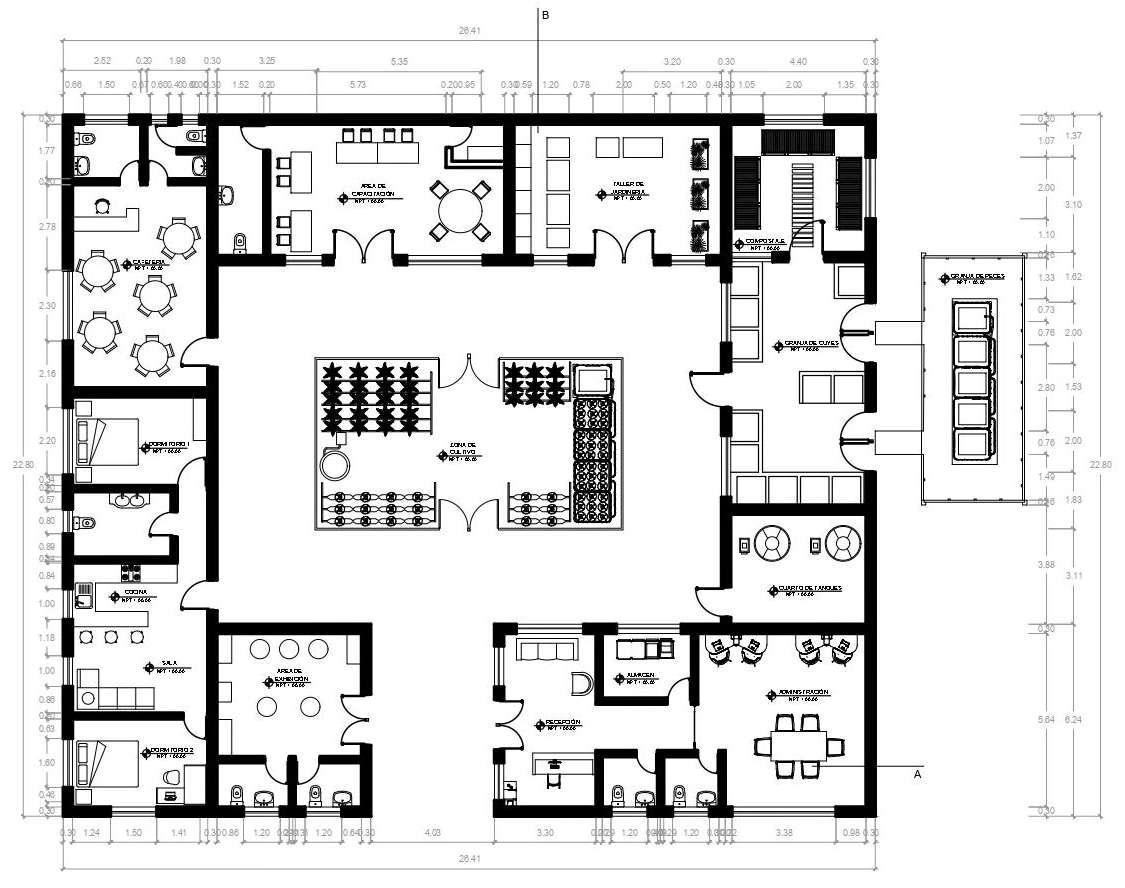
ANÁLISIS DE PLANIMETRÍA

PLANOS TÉCNICOS - PLANTA

Recepción

Cuarto de tanques

Granja de cuyes

Zona de compostaje

Taller de jardinería

Área de capacitación

Cafetería

Vivienda

Área de exhibición

Zona de cultivo

Granja de peces

Área de administración

7
1 2 3 7654 8 9 10 11 1 2 3 4 5 6 7 8 9 12 12 10 11
13 Almacén13

ANÁLISIS DE PLANIMETRÍA

CORTES D1 D2

ANÁLISIS DE PLANIMETRÍA

CORTES

ANÁLISIS DE DE BIOCLIMÁTICA

Elproyecto,esunespaciosostenible,cuentaconenergíasrenovablesyundiseñoentodalaedificaciónparaelconfortdelospobladoresqueasistanallugar.

● En Huayllay, los veranos son fríos y nublados y los inviernos son muy frío, secos y parcialmente nublados. Caracterizado por frecuentes precipitacionesenformadeaguaceros,granizoynevadas.

1

Muros de adobe: Fácil de ejecutar, precio asequible, Características: Es aislante térmico, acústico y de radiaciones electromagnéticasdealtafrecuencia.

2 Lasventanas

3

Techo a cuatro aguas: duradero y confiable de lluvia y nieve en todas las direcciones.

5

renovables ubicados en los

6

Canaletas en los filos de los techos: Como sistema recolector de aguadelluvia.

El piso del terreno del proyecto tiene un sobrecimiento la cual tiene una cámara de aislamiento con piedra y cubierta de piso machihembradodemadera

8
NS CORTEA-A CENTROCOMUNITARIOVIVENCIAL 1 43 2 5
6

ANÁLISIS ESTRUCTURAL

Cubierta de policarbonato

Recubrimiento de policarbonato

Cubierta de hidrocemento mezcladoconichu

Panelessolares

Vigasdemadera

Vigacumbrerade8”x

Viga collar de

Viguetas

Ventanales de vidrio templado

Muro interior de adobede20cm

Muroexteriordeadobede 30cm

Piso machihembrado de madera

Capadepiedra Sobrecimiento

9
8”x12”
12”

DETALLES CONSTRUCTIVOS

DETALLE 1

10
DETALLE 2 D2 D1
11 VISTA EXTERIOR

VISTA EXTERIOR

12 VISTA INTERIOR

VISTA INTERIOR

VISTA INTERIOR

CONCLUSIONES

Con este proyecto se busca enerar un ambiente con ortable para las usuarios objetivos que desean tener un conocimiento mayor acorde a los cambios climáticos y talleres de productividad que otor an la práctica vivencial en los espacios o recidos para la comunidad.

Los ambientes propuestos son lo suficientemente amplios para poder realizar los talleres vivenciales y charlas. Todos los ambientes son ventilados e iluminados adecuadamente con la luz solar y vientospertinentes.

La materialidad se decidió en base a la localidad en la que se encuentra el proyecto y los labores comunales que realiza este sector, como por ejemplo: el adobe y la madera. Asimismo las estrate ias es un punto muy importante para lo rar un ambiente renovable y sostenible, desde los materiales hasta el posicionamientodelapropuesta.

13

BIBLIOGRAFÍA

● WeatherSpark(2021)"ElclimayeltiempopromediodeHuayllay".Recuperadode: https://es.weatherspark.com/y/21319/Clima-promedio-en-Huayllay-Per%C3%BA-durante-todo-el-a%C3%B1o(consultade 16deabrilde2022)

● Climate-Data(2020)"ClimaHuayllay".Recuperadode: https://es.climate-data.org/america-del-sur/peru/pasco/huayllay-765033/#temperature-graph(consultade16deabrildel 2022)

● Senamhi(2021)"MapadeClasificaciónClimáticaNacional".Recuperadode: https://www.senamhi.gob.pe/load/file/01404SENA-4.pdf

● GobiernoPeruano(2019)"ServicioNacionaldeÁreasNaturalesProtegidasporelEstado".Recuperadode: https://www.gob.pe/institucion/sernanp/informes-publicaciones/1928682-santuario-nacional-de-huayllay(consultade16 deabrildel2022)

● DiarioCorreo(2015)"Pasco:GranizadayventarrónendistritodeHuayllay".Recuperadode: https://diariocorreo.pe/peru/pasco-granizada-y-ventarron-deja-diez-damnificados-distrito-de-huayllay-559067/?ref=dcr (consultade16deabrildel2022)

● MinisteriodeAgricultura.(2005).SantuarioNacionaldeHuayllay-PlanMaestro2005-2010. https://sinia.minam.gob.pe/download/file/fid/39162

● RepúblicadelPerú(2019).SantuarioNacionaldeHuayllay. https://patrimoniomundial.cultura.pe/sites/default/files/li/pdf/18.%20Santuario%20Nacional%20de%20Huayllay%20-%20E sp_compressed.pdf

14

Turn static files into dynamic content formats.

Create a flipbook
Issuu converts static files into: digital portfolios, online yearbooks, online catalogs, digital photo albums and more. Sign up and create your flipbook.
Confort Ambiental UPC - Pasco by andrea zavala - Issuu