Design Portfolio

Page 1

Charles Griffiths

Intent

To showcase my passion for design while gaining invaluable experience that ultimately will help me achieve my licensure. This portfolio will help demonstrate and display my current skills and tools that I use to contribute to your team.

Sculpture Garden

Sunset Event Center

Table of Contents

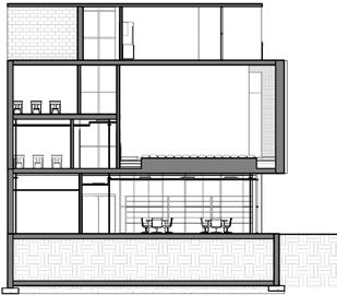
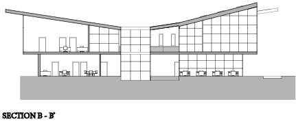
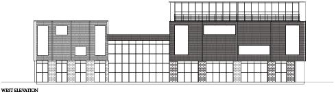
CERAAS Innovation Center

ECOWAS Cultural Center

Sculpture Garden

Sunset Event Center

CERAAS Innovation Center

ECOWAS Cultrual Center

Turn static files into dynamic content formats.

Create a flipbook
Issuu converts static files into: digital portfolios, online yearbooks, online catalogs, digital photo albums and more. Sign up and create your flipbook.
Design Portfolio by Charles Griffiths - Issuu