Skip to main content

Climate Analysis

Page 1


CASE STUDY AND CLIMATE ANALYSIS OF PALMYRA HOUSE

ARCHITECTS: STUDIO MUMBAI

ANALYSIS BY: GRETCHEN HUNDERTMARK & DANI LLAGUNO

Image 1. Binet, Helene. “Palmyra House by Studio Mumbai”

CLIMATE ANALYSIS & COMPARISON

Case Study Project: Palmyra House

Architects: Studio Mumbia

Location: Nandgaon, India

Analysis By: Gretchen Hundertmark & Dani Llaguno

Course: ARCH 622 - Building Systems II

Instructor: Hannibal Newsom

University: Syracused University, School of Architecture

Image 2. Binet, Helene. “Palmyra House by Studio Mumbai”

Project Introduction

Project Name:

Project Type:

Architecture Firm: Location: Year:

The Palmyra House, completed in 2007, is a weekend retreat located south of Mumbai, near the fishing village of Nandgaon. Positioned within a working coconut plantation and oriented toward views of the Arabian Sea, the project integrates built form and landscape in a manner that foregrounds its coastal context.

Palmyra House

Single Family Residential

Studio Mumbai

Nandgaon, India

2007

Designed by Studio Mumbai, the project reflects the firm’s process-driven ethos, rooted in the traditions of local craftsmanship. Their work unites architects and artisans, employing indigenous materials and construction techniques in ways that honor the site’s natural and cultural character.

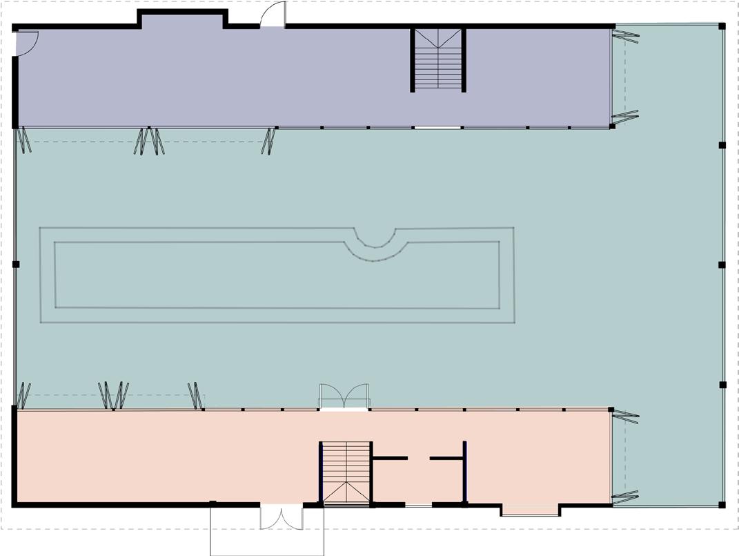
The project comprises two separate, two-storey volumes, each enclosed by timber louvres and elevated on stone plinths. A courtyard and pool occupy the space between them, while a network of wells and aqueducts supports both the plantation and the dwelling. The northern volume contains the main bedroom, living room, and study; the southern houses the kitchen, dining area, and guest rooms.

Primary structural elements are constructed from ain, a local hardwood, joined using traditional carpentry techniques. The louvred facades are crafted from palmyra wood, lending the house its name. Additional traditional details include hand-worked copper flashing, standing seam aluminium roofing, teakwood finishes, and India Patent Stone flooring.

The design engages directly with its tropical coastal setting, encouraging cross-ventilation and maintaining fresh air throughout the interiors. Surrounded largely by rural land, the site is part of a coastline dotted with seasonal vacation homes.

Part One

Site Relocation & Climate Comparison

Existing Site and General Climate

Nandgaon, India (18°22’50.3” N, 72°55’34.5” E)

Average Temperature Ranges:

High 34°C Low 18°C

Located along the Arabian Sea, Mumbai experiences a consistently humid, maritime climate. Annual temperatures range from 18°C in the cooler months to 34°C in the premonsoon summer. Average yearly rainfall is approximately 95 inches, with the majority occurring during the summer monsoon, when high tides and rough seas characterize the

Prevailing winds average around 5 mph, peaking at 8 mph in July, coinciding with the windiest and wettest period of the year. Humidity is at its highest during the monsoon months, contributing to the area’s distinctly damp conditions. The regional climate is broadly defined by three seasons: summer, winter, and monsoon.

Monsoon

Alternate Site and General Climate

Óttarstaðavegur, Iceland

(64°2’24.99” N , 22°2’53.26” W)

Average Temperature Ranges: High 14°C Low -2°C

Reykjavik has a subpolar oceanic climate, characterized by cool, cloudy summers and long, cold, snowy winters. Winters are also notably windy and overcast, while summers remain short and mild. Annual temperatures range from approximately 14°C in the warmest months to -2°C in the coldest.

The city’s relatively moderate climate for its latitude is influenced by the Gulf Stream, which carries warmth from the Caribbean along Iceland’s west and south coasts. The interaction of warm and cold air masses generates frequent winds and storms throughout the year. Cloud cover is extensive from early November through late April, peaking in January when overcast conditions occur about 77% of the time.

Subpolar Oceanic

Overall Microclimate

Overall Microclimate

Average High: 14 Low: -2

Record High: 22 Low: -17

Daylighting

Brightest Months: Apr-Sep

Darkest Months: Oct-Mar

Dry Bulb Temperature

Nandgaon, India

(18°22’50.3” N, 72°55’34.5” E)

Between June and September, sun path and dry bulb temperature differ significantly between the two locations. In Mumbai, the sun maintains a high angle, and peak temperatures reach approximately 38.5°C. In contrast, Reykjavik’s sun remains at a low angle, with maximum temperatures around 17.6°C.

Dry Bulb Temperature

Mumbai, India

May 1st - October 31st

Dry Bulb Temperature Mumbai, India

September 1st - April 30th

Dry Bulb Temperature

Óttarstaðavegur, Iceland

(64°2’24.99” N , 22°2’53.26” W)

Dry Bulb Temperature

Reykjavik, Iceland

May 1st - October 31st

Dry Bulb Temperature

Reykjavik, Iceland

September 1st - April 30th

In winter, sun path and dry bulb temperature differ sharply between the two sites. In Mumbai, the sun remains at a high angle, and temperatures drop only to around 19°C. In contrast, Reykjavik’s sun stays low on the horizon, and winter lows can reach -29°C.

Wind Patterns

Nandgaon, India

(18°22’50.3” N, 72°55’34.5” E)

Prevailing winds originate from the west and southwest, moving toward the northeast. The building’s open westfacing façades capture these breezes, facilitating natural ventilation and promoting air circulation throughout the interior.

Mumbai, India

1 Jan - 31 DEC

Hourly Data: Wind Spreed (m/s) Calm for 19.58% of the time = 1715 hours

prevailing wind patterns optimize natural ventilation by promoting airflow through the building’s wings. The open west-facing façades facilitate the easy entry of breezes, effectively circulating air throughout the interior spaces.

Wind Patterns

Information from Ladybug

Wind Speed Mumbai, India
Wind Rose

degrees counterclockwise alters wind patterns, exposing the south, east, and west façades to prevailing breezes rather than directing airflow solely through the courtyard.

In winter, sun path and dry bulb temperature differ sharply between the two sites. In Mumbai, the sun remains at a high angle, and temperatures drop only to around 19°C. In contrast, Reykjavik’s sun stays low on the horizon, and winter lows can reach -29°C.

1 Jan - 31 DEC

Hourly Data: Wind Spreed (m/s) Calm for 0.98% of the time = 86 hours

Information from Ladybug

Wind Speed Reykjavik, Iceland
Wind Patterns
Wind Rose
Reykjavik ISL

Predicted Thermal Comfort

Nandgaon, India

(18°22’50.3” N, 72°55’34.5” E)

The southern facade receives the highest solar heat gain; however, in the northern building, prevailing wind patterns combined with the strategic placement of doors result in the southern rooms being among the coolest spaces. Conversely, in the southern building, the southern wall, lacking louvered shading and exposed to direct sunlight, is predicted to experience the greatest heat accumulation.

Thermal Comfort Site Plan

Information from Ladybug and Honeybee

Predicted Thermal Comfort

Óttarstaðavegur, Iceland

(64°2’24.99” N , 22°2’53.26” W)

In Iceland’s cold climate, the extensive use of louvers for natural ventilation would compromise thermal comfort, making the two structures uncomfortable to inhabit. Since louvers cover nearly the entire envelope, temperature variation within the buildings would be minimal, except in areas directly warmed by solar radiation, such as the south-facing facades.

Thermal Comfort Site Plan

Information from Ladybug and Honeybee

Predicted Visual Comfort

Nandgaon, India

In Nandgaon, India:

• The southern façades receive direct sunlight, but palmyra louvers effectively diffuse the light, reducing solar heat gain.

Predicted VIsual Comfort Plan

Information from Ladybug and Radiance

• Opening the accordion doors in the living space increases daylight penetration, enhancing natural illumination.

• The louvers help modulate light levels and minimize warmth from solar radiation.

• Surrounding coconut palm vegetation acts as a natural barrier, further diffusing light and providing additional shading.

Predicted Visual Comfort

Óttarstaðavegur, Iceland

(64°2’24.99” N , 22°2’53.26” W)

In Óttarstaðavegur, Iceland:

• The southern facade receives direct sunlight, which is diffused by palmyra louvers to reduce glare and heat gain.

• Due to the sun’s lower angle compared to Nandgaon, interior living and dining spaces with accordion doors receive limited daylight.

• Reduced solar penetration limits passive solar heat gain, potentially increasing dependence on mechanical heating during colder months.

Predicted VIsual Comfort Plan

Information from Ladybug and Radiance

Materials Analysis

The Palmyra House employs a palette of locally sourced and durable materials, each selected for its performance in the coastal climate of Nandgaon.

The primary envelope is formed by fixed louvers crafted from palmyra palm trunks, which filter light, heat, and breezes while maintaining visual permeability.

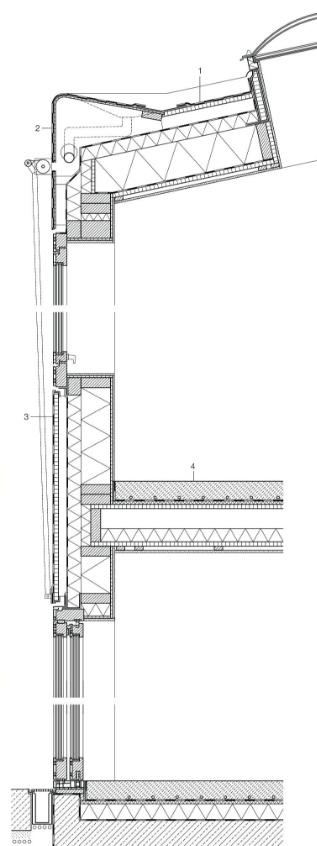
Ain shiplap and reused teak boards contribute to the tactile warmth of the interiors, while sheet aluminium and hand-worked copper provide weather resistance in roofing and flashing details. Structural integrity is achieved through reinforced concrete and basalt rubble, grounding the buildings on elevated stone plinths that protect against moisture and seasonal flooding.

1 Sheet Aluminium Roofing

2 Copper Rainwater Spout

3 Coated Toughened Glass

4 Ain Shiplap Boarding Fixed to Notched Ain Posts

5 Reused Teak Board Flooring

6 Adjustable Teak Louvres in Teak Frame

7 Reused Teak Boarding

8 Reinforced Concrete

9 Basalt Rubble Foundation

Part Two

Passive Architectural Design Strategies

Passive Design Strategies

Existing Site - Nandgaon, India

Design Priorities

The construction technology and design choices of this house emphasize the architect’s goal of utilizing passive cooling and comfort strategies while placing occupants in direct contact with the exterior environment. Design choices include the use of a permeable ‘skin’ made from louvers, removable framed plastic sheets to cover openings, a pool located in the outdoor courtyard, and vegetation surrounding the two structures.

Current Passive Strategies:

• Vegetation

• Cross Ventilation

• Evaporative Cooling

Vegetation

In its construction, only two coconut palm trees were cut down. The remaining vegetation acts as protective barriers against solar radiation, extreme weather, and noise pollution.

The trees reduce the amount of sunlight entering the structures and thus the amount of heat, keeping the structures cooler.

Diagram showing sun blockage by vegetation

Additionally, they block harsh winds, rain, and debree that could injure the house, especially during monsoon season which is present in India. Vegetation surrounding the sight can absorb and limit sound pollution from neighboring residencies and the Arabian Sea by sound attenuation or the reduction of sound intensity.

Arabian Sea Surrounding Neighborhood
Diagram showing sound absorption by vegetation

Multi-Story Cross Ventilation

The designs of both structures employ the use of cross ventialtion by designing using open louvered screens, accordian-doors and openings at opposite ends of the buildings, and an open floorplan which minimizes obstructions, all of which amplify cooling by way of wind passage through the structures.

South Structure North-Facing Section Showing Cross-Ventilation

Cool air enters through west-facing opening, travels through open interior plan, and warm air is released through openings at opposite end of structure.

Maximizing crossventilation in tropical, hot, and humid climates, is key to removing heat by creating natural flows of air through the space. On site, wind travels from southwest to northeast. The positioning of the openings on the south and east end of the northern structure and west and east end of southern structures allows for maximized cross ventilation and passive cooling of both structures.

Wind Speed Mumbai, India

South Structure North-Facing Section Showing Cross Ventilation

Cool air enters through western opening, travels through open interior plan, and warm air is released through windows on second floor.

The incorporation of openings on the second floors of the structures allows for ventilation. Warm air naturally rises from the ground floors and is released through the openings at the top of the structure. Ventilation is optimum for structures located in hot and humid climates with wind access such as Nandgaon, India.

On site, the structures have access to winds which enter through the bottom openings on the east and south facing sides and exist at the highest points of the building on the western sides. Additionally, these exhaust sites face away from the prevailing winds, maximizing the effectiveness of the use of this strategy on the site.

Evaporative Cooling

The courtyard pool has an evaporative cooling effect on the microclimate of the building structures. Water evaporation consumes large amounts of heat which reduces the temperature of the air.

Evaporative cooling works best in hot, dry climates as it requires warm air, relatively low humidity, and good airflow.

Air cools through evaporation

Cool air enters structure

The location of the site has good access to air flow and warm temperatures, however, Nandgaon, India has a relatively humid and damp climate. High levels of humidity limit evaporation and therefore the cooling effectiveness will be reduced.

Proposed Passive Design Strategies

Existing

Site - Nandgaon, India

Design Priorities

The construction technology and design choices of this house emphasize the architect’s goal of utilizing passive cooling and comfort strategies while placing occupants in direct contact with the exterior environment. Design choices include the use of a permeable ‘skin’ made from louvers, removable framed plastic sheets to cover openings, a pool located in the outdoor courtyard, and vegetation surrounding the two structures.

Proposed Passive Design Strategies:

• Roof Venting

• Window Coverings

With both structures utilizing cross ventilation, by incorporating roof venting systems that can be opened and closed, increased amounts of hot air can be released from the upper stories of the structures.

Stack Ventilation Section Diagram of South Structure

Conducted Research

Roof Venting

In conducting our research, we looked to earthships which utilized roof and stack ventilation methods to control the flow of air and temperature inside the spaces. As the utilization of stack ventilation works to release heat out of the Earthship, a realtively small space, similar to the Palmyra House, utilizing these techniwues would cool the interior structures. Additionally, one benefit in adopting stack ventilation in this design is that it doesn’t rely on wind to cool the space. Therefore, when there is a lack of wind in Mumbai, the home could still be ventilated and the occupants could have control over the heat.

Stack Ventilation Diagram from Earthship Biotecture
Stack Ventilation Diagram from 2030 Palette

With an average of 9.5 hours of sunlight from October to May, south-facing windows allow for passive solar and heat gain. In order to limit this, keep the interior occupant comfortable, and match with the exterior of the structure, we propose to add louvered shutters that can be closed to limit solar radiation.

Louvered Window Coverings
South Elevation of Louvered Window Coverings on South Structure

Conducted

Research

Window Coverings

Wohnhaus in Munchenstein Dwelling House in Munchenstein

Architects: Buchner Brundler Architects

Located: Basel, Switzerland

What We Looked At: Use of Window Coverings

This two-story single-family house utlizes a black skin of commercially available, slate-finish bitumen sheeting that is stretched across the exterior.

The building also contains black, drop-arm awnings that can be opened and closed in order to allow or block light and heat from entering the home.

We took inspiration from this house in the proposed passive design strategies for the existing building in Nandgaon, India. However, we changed the style of the window coverings to flow seamlessly with the existing louvred membrane of the Palmyra House.

Passive Design Strategies

Relocated Site - Óttarstaðavegur, Iceland

Design Priorities

In relocating the Palmyra House to Óttarstaðavegur, Iceland, the main design strategies that should be implemented should prioritize maintaining heat by maximizing sun exposure, minimizing heat loss, and using geothermal technology.

Passive Strategies Which No Longer Apply:

• Cross Ventilation

• Stack Ventilation

• Evaporative Cooling

• Vegetation for Sun Radiation Barriers

• Window Barriers

• Roof Vents

The proposed window barriers and roof vents would not apply in Iceland since it is crucial to keep as much heat as possible within the the home in this new climate. The window barriers that were introduced in the south facade were meant to limit solar radiation coming from the south in India which is something we are trying to maximaxine in Iceland due to the minimum amount of daylight hours in Iceland.

The roof vents would allow the heat to escape the structure which we are trying to avoid and instead capture and enhance the heating system within the new building design.

The existing passive strategies of utilizing multistory cross ventilation and evaporative cooling would no longer be applied to the new design.

The design of these cottages incorporates two identical cottages that modernize the traditional design of Icelandic turf houses.

Much like our hypothetical design for the Palmyra house’s new location in Óttarstaðavegur, Iceland, Ferienhäuser has turf roofs and utilizes geothermal energy.

As our hypothetical design also incorporates turf roofs, we looked to Ferienhäuser for information on how to design for turf roofs in cold climates as well as heated concrete flooring.

Ferienhäuser in Brekkuskógur

Holiday Cottages in Brekkuskógur

Architecture Firm: PK Architect

Located: Reykjavik, Iceland

Hütte auf Hersoya, Norwegen Cottage on Hersaya, Norway

1996

Architect: Sigurd Hamran, Tromso

Location: Northern Norway

We looked to Hütte auf Hersoya, for information on building turf roofs and wood structures in cold, snowy climates.

Hütte auf Hersoya was designed to respond to the condition of the rough climate of northern Norway and is located next to the water, similar to the proposed location of our hypothetical site.

The details of these two sites proved helpful in the creating of our own wall, roof, and foundation section details.

The design of the turf roof uses traditional and local building materials such as pressure-impregnated turf “stops” and rock-wool layers as bedding for turf.

Insulated Walls

Existing Wall Detail

Design Priorities

1. Keep open structure

2. Maximize wind

3. Use traditional building techniques

4. Use local and repurposed materials

a. sheet copper cladding; 6mm foamedplastic filing; 2x19 mm marine-quality plywood; 6mm foamed plastic filing aluminium rainwater gutter

b. sheet aluminium 19 mm marine-quality plywood to falls cavity/marine-quality plywood ribs 19 mm marine-quality plywood

c. 75/150 mm ain cross-beam

d. 150/230 mm ain edge beam

e. 12 mm coated toughened glass

f. 150/230 mm ain edge beam

g. “jharoka” (oriel window): copper sheeting on 38 mm solid teak

h. adjustable teak louvres in teak frame (both reused material)

i. 20/100 mm reused teak boarding

j. 50 mm pigmented monolithic screed 200 mm reinforced concrete floor

k. 150/230 mm ain edge beam

l. 150/115/12 mm steel angle

m. basalt rubble foundation

Design Priorities

1. Add insulation in floors, walls, and roofs

2. Utilize traditional building techniques native to Iceland

3. Use local materials

a. planted layer with turf

b. rock-wool layer as bedding for turf

c. plastic mat, root-resistant, UV-resistantm with burls for drainage

d. 48/48 mm battens

e. pressure-impregnated turf “stop”

f. steel angle

g. air cavity

h. insulation; vapour barrier; boarding

j. 15 mm internal boarding

k. vapour barrier; 48/98 mm timber posts

m. mineral wool insulation

n. bitumized chipboard

o. 17 mm battens

p. horizontal boarding

q. 130 mm reinforced concrete floor with acid polished surface

r. underfloor heating

s. 100 mm rigid-foam thermal insulation

Green Roof

The addition of soil and vegetation improves roof insulation performance and, therefore, reduces the building’s energy consumption. Additionally, green roofs reduce noise pollution, filter air pollutants, and protect roofing membranes.

Traditional Icelandic houses utilized turf roofs as they provided superior insulation to ones made of wood.

Recent studies conducted at the University of Iceland have also concluded that green roofs reduce the amount of rainwater runoff, an addition that proves useful in areas with increasing precipitation due to changing climates.

Generic Extensive Green Roof from American Hydrotech
Norwegian Homes, Roros, Norway, 2030 Palette

a. planted layer with turf

b. rock-wool layer as bedding for turf

c. plastic mat, root-resistant, UV-resistantm with burls for drainage

d. 48/48 mm battens

e. pressure-impregnated turf “stop”

f. steel angle

h. insulation; vapour barrier; boarding g

g. air cavity

The inclusion of the turf roof on the proposed design will not only increase the insulation performance of the roof and protect the roofing membrane from harsh weather, but will additionally protect the structure of the building in the future by retaining rainfall and reducing surface water.

Turf Roof Detail Based on Cottage on Hersaya, Norway

Wind Barriers

Landscaping

With strong winds coming from the south, south east, east, and north east, exposure to wind is a concern in the new region and orientation. Therefore, using barriers surrounding the home and blocking openings is important in the new, proposed design.

The coconut palm trees surrounding the Palmyra house in Mumbai, act as a protective barrier against extreme weather, and noise pollution. Likewise, we want to introduce local vegetation in Iceland to act as a wind barrier and to help protect the structure from Iceland’s extreme climate. Placing Downy Birch trees and Dwarf bushes, both native to Iceland, by windows and entrances can be used as natural wind barriers or buffers.

Downy Birch Tree
Dwarf Birch

Covered Entrances

With strong winds directed towards the two main entryways into the home, we propose the addition of sheltered entrances to limit cold air from entering the home and disturbing the comfort of the inhabitants and to protect the entranceways from accumulating snow.

Geothermal Research

Iceland is the world leader in the use of geothermal heating with geothermal sources accounting for 66% of energy use in Iceland.

Heat FLow Map of Geothermal Energy Sources in Iceland, Government of Iceland

Uses for Geothermal Energy :

Greenhouses

Heat Pumps

Space Heating

Heating of Swimming Pools

Snow Melting

Fish Farming

Salt Production

With abundant geothermal energy sources, Iceland has been heating greenhouses with geothermal energy since 1924 (Orkustofnun National Energy Authority). Situated around multiple low-temperature fields, the proposed site would be able to utilize geothermal energy for heating the home, the central greenhouse, and the pool.

*Government of Iceland, Ministry of the Environment, Energy and Climate

Case Study

C40 Reinventing Cities Global Competition Winner

Architects: Basalt Architects

Location: Lágmúli in Reykjavik, Iceland

This building design proposes the use of Iceland’s geothermal swells to heat a mainly glass-enclosed building. Additionally, the design utilizes greeninfrastrucutre, ventilation systems equipped with heat loss recovery systems, and low-carbon materials including Icelandic stone wool, timber cladding, and cross-laminated timber (CLT).

Incorporated Information

low-carbon materials: Icelandic stone wool

geothermal swell heating and energy

Greenhouses have been heated by geothermal energy since 1924 with a majority being enclosed in glass and used for growiwng vegetables, fruit, and flowers.

C40 Reinventing Cities Global Competition, exterior rendering, C40.org
C40 Reinventing Cities Global Competition, exterior rendering map of geothermal swells, C40.org
Geothermal Greenhouse, Government of Iceland

The Greenhouse

One component of the design of the Palmyra House was the courtyard which connected the two structures of the home. In order to include this connection, the addition of a greenhouse maintains thermal comfort when moving between the two spaces and preserves the space as a habitable part of the holiday home.

Additionally, by leaving the interior as louvered walls, the home does not lose the connection and accesibility between the three main spaces that the original design of the Palmyra House intended.

Enclosed Greenhouse Space
Enclosed Greenhouse Space, Northeast Facing Facade

Geothermal Heat Source

Much like the majority of Iceland we propose heating the structures using geothermal heating.

Iceland is one of the most geothermally active locations in the world with hotsprings, geysers, and volcanoes, all of which are ideal for Geothermal Energy.

Return Cold Out Hot
Diagram of Geothermal Heat Pump

Part Three

Enclosure & Envelope Assemblies

Insulated Walls

Existing Wall Detail

Design Priorities

1. Keep open structure

2. Maximize wind

3. Use traditional building techniques

4. Use local and repurposed materials

a. sheet copper cladding; 6mm foamedplastic filing; 2x19 mm marine-quality plywood; 6mm foamed plastic filing aluminium rainwater gutter

b. sheet aluminium

19 mm marine-quality plywood to falls cavity/marine-quality plywood ribs 19 mm marine-quality plywood

c. 75/150 mm ain cross-beam

d. 150/230 mm ain edge beam

e. 12 mm coated toughened glass

f. 150/230 mm ain edge beam

g. “jharoka” (oriel window): copper sheeting on 38 mm solid teak

h. adjustable teak louvres in teak frame (both reused material)

i. 20/100 mm reused teak boarding

j. 50 mm pigmented monolithic screed 200 mm reinforced concrete floor

k. 150/230 mm ain edge beam

l. 150/115/12 mm steel angle

m. basalt rubble foundation

Envelope Assemblies

Existing Site - Nandgaon, India

Roof, Wall, and Foundation section details during winter.

Envelope Assemblies

Existing Site - Nandgaon, India

Roof, Wall, and Foundation section details during Summer.

Envelope Assemblies

Existing Site - Nandgaon, India

EXTERIOR TEMP: 33.33 C

INTERIOR DESIRED TEMP: 23.89 C

ROOF DETAIL R-Value Table

Existing Site - Nandgaon, India

INTERIOR DESIRED TEMP: 23.89 C EXTERIOR TEMP: 33.33 C

FOUNDATION DETAIL R-Value Table

The Palmyra House’s existing envelope proves to be very ineffective at conserving heat inside of the structure.

This can be attributed to the lack of insulation in the roof, floor, and foundation and the presence of permeable walls.

For the hypothetical envelope we propose to use insulation, solid walls, and traditional Icelandic turf roofing practices to conserve heat inside the structures.

Roof, Wall, and Foundation section details of original building in Iceland during winter.

Palmyra Louvres
Reinforced Concrete

While the summer months are not as extreme as the winter, the existing envelope’s roof and foundation provides very little assistance in maintaining a comfortable temperature inside the structures. The louvered walls additionally do not act as a barrier against heat loss.

Roof, Wall, and Foundation section details of original building in Iceland during summer.

Enclosure and Envelope Reasearch

Ferienhäuser in Brekkuskógur

Holiday Cottages in Brekkuskógur

Architecture Firm: PK Architect

Located: Reykjavik, Iceland

Cottage

1996

Norway

Architect: Sigurd Hamran, Tromso

Location: Northern Norway

* Research References Module 3, Envelope and Enclosure Research

Hütte auf Hersoya, Norwegen
on Hersaya,

Design Priorities

1. Add insulation in floors, walls, and roofs

2. Utilize traditional building techniques native to Iceland

3. Use local materials

a. planted layer with turf

b. rock-wool layer as bedding for turf

c. plastic mat, root-resistant, UV-resistantm with burls for drainage

d. 48/48 mm battens

e. pressure-impregnated turf “stop”

f. steel angle

g. air cavity

h. insulation; vapour barrier; boarding

j. 15 mm internal boarding

k. vapour barrier; 48/98 mm timber posts

m. mineral wool insulation

n. bitumized chipboard

o. 17 mm battens

p. horizontal boarding

q. 130 mm reinforced concrete floor with acid polished surface

r. underfloor heating

s. 100 mm rigid-foam thermal insulation

Envelope Assemblies

Proposed Wall Assembly - Summer

The proposed hypothetical wall essembly introduces mutlitple forms of insulation to the envelope. This allows for the structure to maintain a comfortable temperature in the summer and winter. In the winter the new proposed envelope is more efficient than the existing given that it provides a mass wall that is specifically designed for cold climates such as Iceland.

Roof, Wall, and Foundation section details of hypothetical building in Iceland during summer.

Envelope Assemblies

Proposed Wall Assembly - Winter

Roof, Wall, and Foundation section details of hypothetical building in Iceland during winter.

Envelope Assemblies

Proposed Wall Assembly - Winter

ROOF DETAIL R-Value Table

EXTERIOR TEMP: -26.67 C INTERIOR DESIRED TEMP: 23.89 C

Envelope Assemblies

Proposed Wall Assembly - Winter

WALL DETAIL R-Value Table

Envelope Assemblies

Proposed Wall Assembly - Winter

EXTERIOR TEMP: -26.67 C

INTERIOR DESIRED TEMP: 23.89 C

FOUNDATION DETAIL R-Value Table

Part Four Daylighting

Daylight Analysis

Mumbai, India

The Palmyra House located in Mumbai India, benefits from the narrowness of the building footprint as it allows most rooms to interact with direct sunlight and the exterior environment. The kitchen space as well as the living room should benefit most from natural lighting given that they are the most occupied spaces within the structure. To have a reference, the outdoors on a clear day in Mumbai, would have lighting of approximately 10,000 Lux. In the Palmyra house, the least performable spaces like the hallways where concentrated visual tasks are not performed would only need around 100-300 lux. In comparison, the areas where reading takes place the lux level would need to raise anywhere from 800-1,700 Lux. Specifically looking at surfaces where concentrated tasks take place such as kitchen counter-tops, bedrooms the lux level could range from 800 to 1,700.

Sun Blockage by Vegetation
Palmyra House Courtyard

Main Programmed Spaces

Space 1 - Living Room & Study

Ground Floor

Space 1 - Living Room & Study

Second Floor

Qualitative Daylight Analysis

Due to the surrounding vegetation, louvers, and dark materials, the interior of many of these spaces are dimly lit.

Study
Living Room
Bedroom Loft
Images: Helene Binet, “Palmyra House/ Studio Mumbai, 2007

Daylight Analysis - Mumbai, India

Living Room & Study

August 8:00 8:00 16:00 16:00

In the existing cite of Mumbai India, the hours of sunlight appear to be fairly constant throughout the year. However as shown from the diagrams above. The study on the right northern facade at 8:00 is very bright making the study uncomfortable place in the morning.

The living space has high amounts of light at 16:00 diagram which brings in an intense glare that should be reduced to improve visual comfort.

Second Floor Bedroom, Bathroom, & Loft

8:00

In the upstairs bedroom and the upstairs bathroom, there is a high lux level in the bedroom at 8AM as well as the bathroom at 16PM. This becomes an issue given that the glare will be transmitted and can become uncomfortable in these areas of the residence.

In August, the lux level is intensely high in the bedroom which brings upon a very uncomfortable environment for the occupants given that too much sunlight is able to transmit through the building at such early hours.

Glare Analysis - Mumbai, India

Living Room & Study

In Mumbai, the North facing facade specifically the study and living room encounter a high visually uncomfortable glare during the day.

Bedroom & Loft Space

In Mumbai, the Southern facing facade encounters just a bit of glare in the upstairs bedroom and a lot of glare in the bathroom which could be inconvenient in these areas of the residency.

Evaluation of Daylighting & Glare in Mumbai, India

In reviewing the data collected for the space’s point-in-time-illuminance and the anual glare, we believe that changes should be made to address the disturbing glare in the transitional space between the living room and the study as well as the northeast study.

Additionally, the bathroom and bedroom on the second floor of the southern structure receive significant glare and illuminance. This we would propose making changes to in order to increase the visual comfort of these spaces.

Existing Design Strategies to Limit

Disturbing Glare

The two bedrooms that recieve significant light already contain strategies to limit sunlight from entering the rooms during unwanted times. The design includes louvred accordian doors that can close and open.

Proposed Changes

In suggesting hypothetical passive design strategies, we suggest adding louvered window coverings to exterior glazed openings to limit heat gain in the structure. This design choice would additionally limit the disturbing glare that is present in the bathroom.

South Facing Elevation of Louvered Window Coverings on South Structure

Accordian, Louvered Doors, Helene Binet

Before Implementation

Annual Glare

Living Room & Study

Bedroom & Loft

Point-In-Time-Illuminance, February, 8AM

Living Room & Study

Bedroom & Loft

Annual Glare

Living Room & Study

Bedroom & Loft

Point-In-Time-Illuminance, February, 8AM

Living Room & Study

Bedroom & Loft

The addition of the louvered coverings and use of existing louvred doorways significantly improves the overall disturbing glare that would make the structure visually uncomfortable. However, the existing louvers did not seem to improve the point-in-time-illuminance in the bedroom.

Daylight Analysis - Reykjavik, Iceland

August 8:00 16:00

In Iceland, during the cold winter months, the amount of sunlight that comes into the building is very minimal. Like shown at 16:00 there is very little daylight to bring illuminate the living room as well as the study.

During August in Iceland, there is an increase in the number of average daylight hours allowing more sunlight as shown at both 8:00 and 16:00.

Second Floor Bedroom, Bathroom, & Loft

10-3000 8:00 16:00 8:00 16:00

During February, the upstairs bedroom and bathroom almost become complete dark spots throughout the entirety of the day.

In August, Iceland is known to have more daylight, however, the upstairs bedroom and bathroom continue to be dark spots that will need artificial lighting given its normal occupancy.

Glare Analysis - Reykjavik, Iceland

In Iceland, the living room and the study recieve intense glare that needs to be taken care of due to the uncomfortability.

In Mumbai, the north facing facade specifically the living and study rooms encounter high glare during the day.

Living Room & Study
Bedroom & Loft

Glare on Northeast Facing Facade of Greenhouse

Glare on Southwest Facing Facade of Greenhouse

This data shows that for most of the daylight hours the glare on the greenhouse is intolerable.

Evaluation of Daylighting & Glare in Reykjavik, Iceland

The ground floor of the structures receive significant disturbing glare, rendering the space visually uncomfortable to inhabit. Additionally, there is almost no light entering either of the structures during February and August. Overall, both the point-in-time-illuminance and the annual glare data show that this would not be a visually comfortable space to inhait.

In moving our site from India to Iceland, we want to prioritize sunlight entering the structure during the months when days are shorter and be able to limit the amount of sunlight entering during the months when the sunlight hours are longer.

In addition to testing the spaces of the hypothertical structure in Iceland, we tested the glare on the greenhouse walls as we hypothesized that they would have extreme disturbing glares making the building visually uncomfortable to live in and look at from outside.

As we hypothesized, the glares on the glass were intolerable for most of the daylight hours out of the entire year.

Additional Windows

We propose to add windows in key locations to increase light in the building in specific locations.

Window Coverings

Similar to our proposal for limiting sunlight in Mumbai, India, we propose the addition of wood, venetian blinds to the inside of the greenhouse. This would allow occupants to roll the blinds up and down depending on the amount of sunlight and glare entering the space during different seasons.

Anti-Reflective Glass

As large amounts of the building are made of glass and receive intense and uncomfortable amounts of glare, we propose the use of anti-reflective glass films to be used on the glass of the greenhouse in order to improve visual comfort both inside and outside the enclosure.

Proposed Improvements Research

Anti-Reflective & Non-Glare Glass

Diffuse Glass (yuhua-glass.com)

Combivlient F4-F7

Location: Middenmeer, Netherlands

Greenhouse utilizing Low Haze Tempered Diffuse Glass

2016 - 2019

With Anti-Reflective Coating on Both Sides

Benefits of Hyuhua AntiReflective & Non-Glare Glass :

1. High light transmittance: the visible light transmittance of the glass is increased from 91.7% to 97.5%

2. Allows 12% more sunlight to enter the greenhouse

3. High Scattering: sunlight passes through the glass and changes from direct light to scattered light

4. Lowers the intesity of light entering the greenhouse and improve visual comfort

Normal Glass Without Coating

Anti-Reflective Glass| Non-Glare Glass Supplier (jnsgalss.com)

Proposed Placement of Venetian Blinds

Northeast Facade Before Additional Windows

Similar to our proposal for limiting sunlight in Mumbai, India, we propose the addition of wood, venetian blinds to the inside of the greenhouse.

This would allow occupants to roll the blinds up and down depending on the amount of sunlight and glare entering the space during different seasons.

Proposed Placement of New Windows

Southwest Facade Before Additional Windows

Southwest Facade After Additional Windows

August at 14:00

Before the addition of the windows

August at 14:00

After the addition of the windows

The addition of these windows allow for more light to enter the living space and the study which will improve the visual comfort of the occupants.

The use of more windows could improve the visual comfort in the other spaces of the structures. However, these windows should be placed carefully and intentionally so that they do not lead to heat loss in the home.

Part Five

Active Systems

Critical Climate Factors

Critical climate factors that must be taken into account when moving the Palmyra House to Iceland include :

Temperature

Snow and Precipitation

Sunlight Hours

Wind Patterns

Orientation on new site is rotated 90 degrees counterclockwise so that its originally, northeast facing facade is now facing northwest.

Old Orientation on New Site
New Orientation on New Site

14

Unlike the tropical climate in Mumbai, India, where cooling the house is the main priority, in the new proposed location in Iceland, the subpolar oceanic climate the priority will be to maintain heat inside the structure.

-2

Snowfall in Reyjavik, Iceland per Month

In Mumbai, India, monsoons are a weather hazard. In Iceland, however, snow is the main weather hazard which will effect the design needs for the proposed building.

Reykjavik, Iceland Average Sunlight Hours Daylighting

Brightest Months: Apr-Sep

Darkest Months: Oct-Mar

Iceland goes for long periods of constant darkness which results in insufficient daylighting, and other periods of days with close to constant daylight.

Wind Patterns

Windiest Months: Oct - Apr

Wind Speed Range: 8-12 mph

With strong winds coming from the south, south east, east, and north east, exposure to wind is a concern in the new region and orientation.

Instead of passing through the house structures and providing nautral ventilation and cooling, the wind is now a hazard.

Introduced Factors

Green Roof (left)

The green roof was added to provide additional insulation to the structure to reduce heat loss.

Solid, Insulated Walls

The addition of walls with insulation and vapour barriers also increase the thermal performance of the building.

Greenhouse

The addition of the greenhouse, heated by geothermal energy, improves the building’s passive thermal performance and energy efficiency.

Geothermal Heat Source

By using a geothermal heat source, the building’s passive thermal performance and energy efficiency is improved.

Green Roof (right)

Spanning over the entire structure it, it also limits heat loss through the roof of the greenhouse.

Solid, Insulated Walls

Additionally, these walls replace perforated walls improving both its thermal performance and the thermal and visual comfort of the inhabitants.

Greenhouse

The greenhouse also allows for additional sunlight into the spaces that require more daylighting.

Geothermal Heat Source

This also allows for inhabitants to enjoy the greenhouse space without relying on sunlight to heat the space.

Passive Strategies - Shortcomings

The limitations from the passive design strategies that were proposed include the loss of heat from the greenhouse structure as well as excessive humidity due to use of geothermal heat, the introduced greenhouse, and lack of a ventilation system. The glass used for the greenhouse causes poor insulation in comparison to a standard solid, insulated wall which makes consistent temperature difficult to achieve in a cold climate like Iceland. The other limitation is associated with the way the warm air, that is conducted in the greenhouse due to the geothermal heating, holds an uncomfortable amount of moisture and makes the enclosed environment excessively humid. The addition of solid walls in place of open louvers adds to this problem as it removes the buildings passive ventilation strategy between the interior and exterior of the buildings.

Building Zones

The structure is divided into four zones determined by their location in the building and their open or closed design.

Zone One and Zone Three consist of the two partially enclosed structures. As these structures utilize an open floorplan, both solid and louvered walls, and accordian-style doors, they are impacted by the environment and climate of the greenhouse and the solar radiation and glare from outside of the whole structure.

Zone Two is the greenhouse. As its envelope is mostly made of glass and it houses a geothermally heated pool, the space will be affected by solar radiation, increased humidity, and glare.

Zone Four consists of the bathrooms that are separated from the rest of the build through solid doors. As it is closed off the temperature and needs will be different to the rest of the structure.

Introduced Systems

Split System

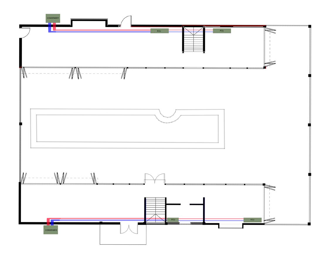
For the Palmyra House, we decided to install a HVAC Split System in order to provide a cooling, ventilation and heating system within the two structures. Like modeled, the split system model holds the condenser and the compressor in the outside of the building and another inside which holds the fan coil unit, FCU. The FCU is the device that uses a coil and a fan to heat or cool a room without connecting to ductwork. The indoor air moves over the coil, which in return heats or cools the air before pushing it back out into the room. Since the split system is separated into two units, it gave us more flexibility with the placement in comparison to the HVAC packaged unit. Given that split systems are more common in residential installations, it would be efficient for the placement in the new site of Reykjavik, Iceland.

Cooling

However, while we proposed this, since the hypothetical site is located in Iceland, where the average yearly temperature does not rise above 58 degrees fahrenheit, we see no reason to include an air conditioning system.

Heating System

In the proposed building, the structure will be heated using geothermal heating given that 85% of all houses in Iceland are heated with this renewable energy source. With the Icelandic geothermal power plants located close to the site, the structure will have access to heat and will be able to transfer it across the structure to be able to handle the extremely cool temperatures of Iceland.

Geothermal

With the access to geothermal heating in the new location, the inside structure has access to floor heating by using a tubing system embedded in the light weight concrete flooring to radiate heat upwards which in turn releases direct heat and increases overall thermal comfort.

HVAC Split System Diagrams

Split System Ground Floor Diagram

HVAC
HVAC Split System Second Floor Diagram

HVAC Split System Diagrams

North West Facing Section of HVAC Split System

Geothermal

Radiant Floor System

Geothermally Heated Ground Floor Plan

To improve thermal comfort in the home, we propose the addition of a geothermal radiant floor system in both the structures and the enclosed greenhouse.

Geothermally Heated Floor Detail Lightweight Concrete

ST. Concrete

Summary of Passive & Active Design Stategies

Wind

Like shown in the diagram, various passive strategies impact the way wind interacts with the Palmyra house in the new site. Given that the wind comes from the northwest, the new insulated walls prevent wind from traveling across the structure like it did in India. The drastic temperature change from a humid and warm climate to a cool and windy one is why such strategies were important to be implemented in the new site. The main focus was to trap heat inside the structure and prevent cold winds from entering from the facades.

Downy Birch Tree
Dwarf Birch

Daylighting & Visual Comfort

Daylighting was an important factor to consider when looking at the new strategies that became implemented in the new location of Iceland. Since Iceland has a very low number of hours the sun gives off direct radiation, it was important for us to maximize and take the opportunity for those hours to bring in some sort of natural heat source. Like shown by the contrasting diagrams from the old to the new hypothetical site, there is a big change of how much sun hits directly into the facade which affects the visual comfort of the residents. The new site distributes the light better throughout the building while also clearing the dark sports within the building which allows natural lighting throughout the living space.

After Window Additions Southwest Facade After Application of Additional Windows

Thermal Comfort

The proposed hypothetical wall assembly introduces mutlitple forms of insulation to the envelope. This allows for the structure to maintain a comfortable temperature in the summer and winter. In the winter the new proposed envelope is more efficient than the existing given that it provides a mass wall that is specifically designed for cold climates such as Iceland.

EXTERIOR TEMP: -26.67 C

INTERIOR DESIRED TEMP: 23.89 C

Geothermal Energy & HVAC

For the new site, geothermal energy was introduced to the Palmyra House due to its use in Iceland as a heat source. Since the original structure in India was an open residence that allowed both wind and solar energy to pass through the building easily, we wanted to keep some of those aspects to retain as much as the original building as possible. The introduction of the greenhouse that covers the courtyard allows for the building to keep its opened louvered walls in the inside facing facades. With the geothermal heating that occurs directly into the greenhouse, the heat conducted is able to easily pass through and from the buildings while trapping the heat inside the insulated wallsa main goal in the new site given Iceland’s extreme winter temperatures.

HVAC Split System Ground Floor Diagram
Geothermally Heated Ground Floor Plan

Works Consulted

Adams, Chris. “Ergonomic Lighting Levels by Room for Residential Spaces.” ThoughtCo, ThoughtCo, 4 Nov. 2019, https://www.thoughtco.com/lighting-levels-by-room-1206643.

“Anti-Reflective Glass: Non-Glare Glass Supplier.” JNS Glass & Coatings, https://jnsglass. com/anti-reflective-anti-glare-glass/

“Beach House in Nandgaon.” DETAIL Inspiration, June 2008, https://inspiration.detail.de/ beach-house-in-nandgaon-103344.html.

“Climate Data.” Mumbai Climate, https://en.climate-data.org/asia/india/maharashtra/ mumbai-29/.

ComproGear. “Residential ERV - Energy Recovery Ventilator Systems.” ComproGear, 26 May 2021, https://comprogear.com/residential-erv/.

“Diffuse Glass 75 Haze (2 Sides AR Optional).” YUHUA, https://www.yuhua-glass.com/glass/ diffuse-glass-75-haze.html.

“Dwelling House in Münchenstein.” DETAIL Inspiration, Nov. 2017, https://inspiration.detail. de/dwelling-house-in-muenchenstein-114016.html.

“Energy.” Government of Iceland, https://www.government.is/topics/business-and-industry/ energy/.

“Geothermal Energy.” National Geographic Society, https://www.nationalgeographic.org/ encyclopedia/geothermal-energy/.

“Geothermal Energy Iceland: Everything You Need to Know.” Arctic Adventures, https:// adventures.is/information/geothermal-energy-iceland

Gunnarsdóttir, Nanna. “Iceland Weather, Climate, & Temperature Year-Round.” Guide to Iceland, 4 Oct. 2019, https://guidetoiceland.is/travel-info/climate-weather-and-northern-lightsin-iceland.

Haraldsdóttir, Ragnheiður Harpa. “All About Icelandic Turf Houses and Which Ones to Visit.” Iceland Tours, 6 Oct. 2022, https://www.icelandtours.is/blog/icelandic-turf-houses

“Holiday Cottages in Brekkuskógur.” DETAIL Inspiration, Oct. 2016, https://inspiration.detail. de/holiday-cottages-in-brekkuskogur-113502.html.

“House in Riederau, Upper Bavaria.” DETAIL Inspiration, June 1992, https://inspiration.detail. de/house-in-riederau-upper-bavaria-109777.html.

“HVAC.” “Your Challenge is our Solution ‘’. Engineeredairsolutions.com, https:// engineeredairsolutions.com/.

Karin. “What Is Daylighting and Why Is It Important?” Patriquin Architects, New Haven CT Architectural Services, Commercial, Institutional, Residential, 27 Jan. 2021, https://www. patriquinarchitects.com/what-is-daylighting-and-why-is-it-important/.

Kevin Low, “Palmyra House.” 2010 On Site Review Report, file:///C:/Users/danil/Downloads/FLS2291%20(3).pdf

Michael Chapman, Chapman. “The Complete Guide to Forests in Iceland.” Guide to Iceland, https://guidetoiceland.is/nature-info/the-forests-of-iceland. Timebie, http://www.timebie.com/sun/mumbaiin.php.

“Trees in Iceland, or Lack Thereof.” Earth.com, 28 Sept. 2022, https://www.earth.com/ earthpedia-articles/trees-in-iceland-or-lack-thereof/.

Paul Evans, et al. “Fan Coil Units - HVAC.” The Engineering Mindset, 31 May 2020, https:// theengineeringmindset.com/fan-coil-units-hvac/.

Velux, Group. “Daylighting - Daylight, Energy and Indoor Climate.” VELUX, https://www. velux.com/what-we-do/research-and-knowledge/deic-basic-book/daylight

Weatherspark, Mumbai Climate, Weather By Month, Average Temperature (India)WeatherSpark, https://weatherspark.com/y/107286/Average-Weather-in-Mumbai-India-YearRound.

Turn static files into dynamic content formats.

Create a flipbook
Climate Analysis by Gretchen Hundertmark - Issuu