g/k
selected works | architecture portfolio 2025 university of nebraska - lincoln | 2018 - 2023 iowa state university | 2024 - present greta krohn
p. 1
table of contents
kansas city art institute
p. 15
indian cave state park
p. 25
subtraction
![]()
g/k
selected works | architecture portfolio 2025 university of nebraska - lincoln | 2018 - 2023 iowa state university | 2024 - present greta krohn
p. 1
kansas city art institute
p. 15
indian cave state park
p. 25
subtraction
ARCH 311
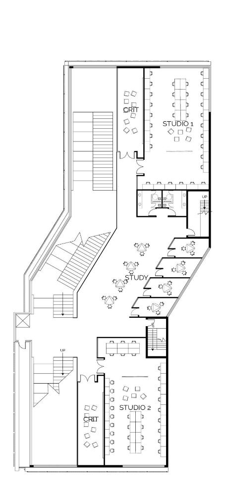
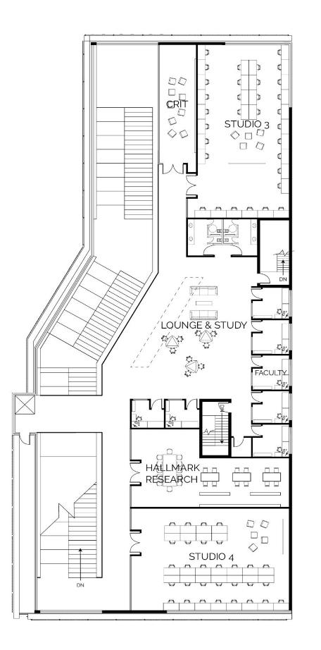
kansas city, missouri
collaborators: joshua lorenzen, renee zandt, trever zelenka
Through the design of the Department of Architecture at the Kansas City Art Institute in Kansas City, MO, this project aims to diminish cultural and societal boundaries by placing an emphasis on interconnectivity both within the building and out in the community. Our design utilizes a circulation core that connects each of the programs throughout four floors creating a cohesive space for students and the community.
Situated on a high-traffic corner of the Kansas City Art Institute, the unique and ever-changing facade draws the attention of passing visitors and encourages the exploration of numerous gathering spaces and public programming inside. In conjunction with these spaces, a Hallmark Research Center and the grand learning staircase create an interconnected environment, promoting the connection of a diverse community of people.

With interconnectivity as a core design principle, our project encourages exploration within the building, on campus, and throughout the community. With the central learning staircase, open gathering spaces, and programming that aims to provide access and resourses for the public, the proposed design promotes the connection of students and the surrounding community.

surrounding context

programmatic diagrams








a green facade
Utilized as a shading technique, a double-screened facade with greenery growing from planter boxes allows for a facade that changes with the seasons. The facade creates unique opportunities for filtered shadows, framed viewpoints, and an ever-changing street presence.










DSGN 410 / interdisciplinary design studio schubert, nebraska
collaborators: sofia lent, alyssa winkelman, michael rieder
Indian Cave State Park’s oak woodland is a rare sight in the region and it is home to numerous endangered species as well as a rich history and culture. In collaboration with all design disciplines, we worked with Nebraska Game and Parks to design a new visitor center for the park. This project places an emphasis on the visitor experience with themes such as interpretation, education, and preservation.
While prioritizing the preservation of the oak woodland, the soil, and the endangered species, we designed a visitor center that acts as a hub for all visitors entering the site, encouraging them to maneuver through the building’s strategically placed programmatic spaces that provide interpretive experiences and education on the history and cultural significance of the site. Upon exiting the building, visitors are welcomed by an equally engaging and interpretive experience.












ARCH 411
lincoln, nebraska
collaborators: allison woodring
Hardin Hall currently houses the School of Natural Resources at the University of Nebraska-Lincoln. This project proposal addresses underutilized space and the lack of collaborative space within the School of Natural Resources by combining the educational and investigative aspects of the discipline as well as the social aspects. By designing a rooftop greenhouse for Hardin Hall, our primary goal was to create a comfortable space that not only fosters a sense of community but also celebrates it. Promoting collaboration between students and faculty, the design acts as a new research facility while making existing building more energy efficient and introduces sustainable features.


Greenhouse additions are integrated with the existing 9th floor circulation core, the 10th floor mecahnical room, and the 11th floor equipment room.
The addition of 3 individually controlled greenhouses atop the building replaces the previous 9th floor structure. Two greenhouses function as research greenhouses while the third functions as a collaborative learning and study space.
Highlighted in blue, the existing egress is maintained. The egress on the North end of the tower is accessed by balconies on each floor. The new 9th floor proposal utilizes the existing stairs and central circulation, only updating the elevator with a larger service elevator.

Removal of the existing 9th floor structure, columns, and walls, keeping only the structural columns and walls that support the remaining circulation core and egress.
(N) 4” Rigid Insulation (N) 2.5” Concrete Slab
(N) 1.5” Metal Deck
(N) 1” Air Gap
(N) 3 5/8” Metal Stud Wall with 3” Batt Insulation
(N) 6” Wide CMU
(N) 2” Rigid Insulation
(N) 2.5” Concrete Slab
(N) 1.5” Metal Deck (E) Lightweight Concrete
(N) Suspended Drywall Ceiling System (E) Lightweight Concrete
(N) Face Brick
(N) Glazing with Mullions
(N) 4” Concrete Slab
(N) 4” - 6” Sloped Rigid Insulation
(E) Concrete Joist
Legend (N) - New (E) - Existing EXISTING 8TH FLOOR

