





IQNGWffiD COLLEGE
July 1985 V

![]()






July 1985 V


July1985
DearFriendofLongwood:
TheMasterPlanforLongwoodCollegeprojectstheexcitingfuturethatisgrowingoutofLongwood'sexistingstrengths,uniquecharacteristics,andrichheritage.Thisplanwascommissionedby theLongwoodBoardofVisitorsasanintegralpartoftheextensivestrategicplanningprocess currentlyunderwayattheCollege.Emergingfromthestrategicplanarefiveprimarygoalsfor Longwood'sfuture:
1.ToenhancethequalityofeducationalprogramssothatLongwoodwillhaveamaximum impactonthequalityoflifeofitsstudents,theregion,andtheCommonwealth.
2.Toidentifyandcreatecentersofexcellencewhichwillbeformedonexistingstrengthsof theCollege,theperceivedneedsoftheCommonwealthandnation,andthoseeducationalconcepts whichblendpracticalexperienceswitheducationaleffectivenesswheneverpossible.
3.Toprovidehighqualitylivingandlearningenvironmentswhichwillsupportandencourage studentinvolvementintheirowneducation.
4.TheCollegewillstrivetomanageeffectivelyandefficientlytheresourcesmadeavailableto ittowardtheachievementoftheacademicgoalsandthegeneralmissionasaVirginiainstitutionof highereducationoperatinginthepublicinterest.
5.TheCollegewillplangradualincreasesingeneralenrollmentstoincludestudentstothat pointatwhichtherewillbesatisfactoryenrollmentsinallmajorprograms.
ThesegoalschartthecourseforLongwood'sfutureandrequirefullsupportofthefaculty,staff, alumni,andfriendsoftheCollege.Additionally,thegoalsrequireamasterplanforcreativeand responsiblestewardshipofexistinganddesirableresources.
Longwoodcurrentlyservesandcancontinuetofulfillimportantresponsibilitiestotheregion,the Commonwealth,andthenationasaninstitutionofvision,particularlywhenthatvisionisbuilton thefoundationofpivotalgoalsandprudentplans.IhopeyouwillsharetheexcitementforLongwood'sfuturethatthisplanrepresents.
Sincerely,
G-'lJ-J/�
JanetD.Greenwood President


Dr.Janet Greenwood President
Dr. JamesAdams VicePresidentforAcademicAffairs
Richard V. Hurley VicePresidentforBusinessAffairs
Mr. Donald Lemish VicePresidentforInstitutionalAdvancement
Ms. PhyllisMable VicePresidentforStudentAffairs
Dr. John King AssociateVicePresidentforP/,anning, Research andInformationSystems
Mr. Donald Winkler &cutiveDim:torofPublicAffairs/Publications
Mr. A.T. Wadi-Williams DirectorofP�sicalP/,ant
Ms. Brenda L. Atkins Assistant to the VicePresidentforBusinessAffairs
Mr. Gerald Spates Farrrwil!,e TownManager
Dan Bolt, AIA Principal-in-Charge
Alain C. deVergie, ASLA LandscapeArchit,ecture &P/,anning
John Knickmeyer
John Lutostanski












LongwoodCollege,establishedin1839 asatwo-yearprivatewomenscollege,was designateda state college in 1884and becameco-educationalin1976.Itoffers majorsin30academicareasaswellas diversifiedgraduateprograms.
ThecollegeislocatedinFarmville,Virginia-onehourfromLynchburgtothe west,andRichmond,thestatecapital,to theeast.
Amajoreast-westhighway,US460,isthe maintransportationroute.Itlinksmajor north-south routesthrough Richmond andRoanoke.Farmvilleiseasilyaccessible from other major metropolitan areas, includingtheWashington, D.C. metropolitanarea.
LongwoodCollegeisfortunatetohave theopportunitytoinitiateaMasterPlan. Sufficientlandexistsforacquisitionand thereexistsacommitmenttoproperly planforfuturegrowthandchange.





ACADEMIC kl RUFFNER A·2 BEDFORD ,1-J WEST RUFFNER ,\-4 HINER A-5 GRAINGER A-b LANCER A-7 COYNER A·B LANCASTER A·9 WYGAL A·10STEVENS A11112IV!cCORKLE/JEFFERS A•IJWYNNE A·14JARMAN GENERAL
C·I BARLOW c-2 GRAHAM
C·J LANKFORD
C-4 BRISTOW c-s ILER
C·b ALUMNI BLDG.
C-7 POWER PLANT
C·B FUEL STORAGE
C·4 BARLOW FIELD
c-I0ILER FIELD
c-·I·IWHEELER MALL
c-12OLD HIGH SCHOOL
C·JJCRAFTS
RESIDENCE HALLS
R·1 DINING HALL ,., CURRY
R·J FRAZER ,., FRENCH
R-5 TABB
•·• cox ,., WHEELER
R·B STUBBS <-9 CUNNINGHAMS ,-10SOUTH RUFFNER
Master planning is one of the most importantandmostdifficultprocessesfor a major college to accomplish and is closelytiedtosuchfactorsas:
• Academicprogramming
• Projectedsizeofstudentbody
• Fundingsourcesandtimetables
• Communityservices
• Futureathleticprograms
• Landacquisition
• Sequencingofmajorsteps
• Competition
• Centersofexcellence
PreparationofacomprehensiveMaster Planandprojectedacademicprogram for Longwood College is planned in 1986-1988.

ThisInterimMasterPlanupdatespecificallyincludesevaluationandrecommendationsfor:
• Sitinganewfour-levellibrary
• Sitingnewhousing
• Parkingconsiderations
• Vehicularcirculation
• Pedestriancirculation
• Upgradingcampusimage
• Locationofa 4,000squarefootstorage facilityatLongwoodEstates
• Locationofathleticfieldsandfacilities
• Handicapaccess
• Expansion and screening ofcentral boilerfacility
UpgradingthevisualimageoftheLongwoodcampustocreate"asenseofplace" inseveralkeyareas willinclude:
• Entrances
• Campusedges
• Permanentopenspace
• Lighting
• Signage
• Landscaping
• Screeningofboilerplant,parkingand serviceareas



Inordertoevaluatepresentandfuture problemsandneeds, itisnecessary to makeananalysisoftheexistingcampus. Thissectioncontainsdocumentationof theanalysisandisabasisfordetermining the various elements and systems whichcanberetainedaswellasthose whichmustberevised.
Athoroughanalysisofthesiteprovides information that leads to the logical placementofnewbuildingsandfacilities. Thisinformationwillhelpdeterminethe locationofthenewlibraryandstudent housingsites-siteswhichwillbechosenaftercarefulconsiderationoftheir relationtotheexistingcampusaswellas anexpandedcampus.
The following existing elements have beenanalyzedanddocumentedinthis section:
• LandUse
• CampusImage
• CampusEdges
• Pedestrian
• VehicularCirculationandParking
• Service

LEGEND
PROPERTY LINE


BUILDING LEGE D
ACADEMIC
A·I RUFFNER
A-2 BEDFORD A·J WEST RUFFNER A·4 HINER
A·5 GRAINGER
A·6 LANCER A·7 COYNER A-8 LANCASTER A-9 WYGAL A-10STEVENS
A11112McCORKLEIJEFFERS A·I] WYNNE A-14JARMAN
GE ERAL
c-1 BARLOW
c-2 GRAHAM
G·J LANKFORD
G-4 BRISTOW
G-5 ILER
G·6 ALUMNI BLDG.
G·7 POWER PLANT
C-8 FUEL STORAGE
C·Y BARLOW FIELD
G•10ILER FIELD
C· 11WHEELER MALL
G·llOLDHIGH SCHOOL
C·llCRAFTS
RESIDE CE HALLS
•·1 DININGHALL ,., CURRY
R·J FRAZER
R·4 FRENCH
R·5 TABB
R-6 COX
R-7 WHEELER
R·8 STUBBS
•·• CUNNINGHAMS
R-10SOUTH RUFFNER



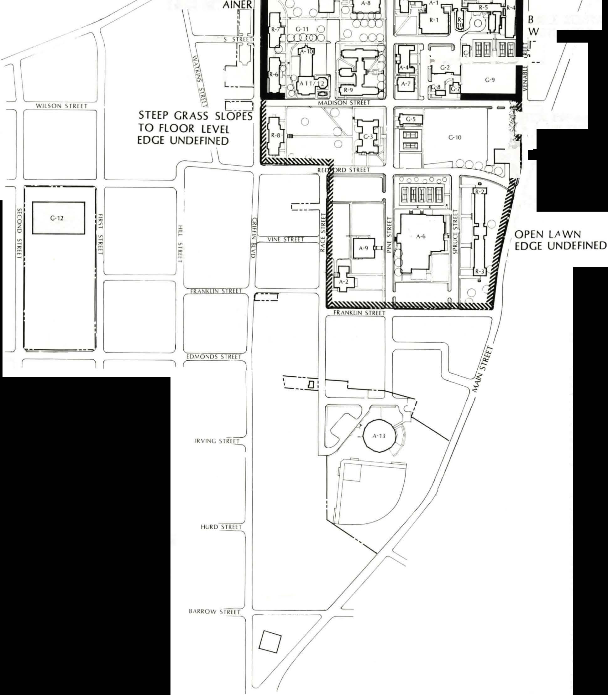
LongwoodCollege is bounded onthe north, south, and west by residential property. Commercial development extendsalongitseasternboundary
The main campus, north ofRedford Street,consistsofresidenthousing,academicandstudentactivitybuildings,the centralboilerfacility(referredtoasthe PowerPlant), sports fields andcourts. TheareasouthofRedfordcontainsacademicbuildings,twohighrisedormitories,andLancergym,aswellassports fieldsandcourts.
TheWynneBuildingandbaseballfields areatthesouthendofthecampus.Crafts HomeManagementHouse,theBicentennialparkandtheAlumniHouseare locatedacrossHighStreettothenorth.
TheOldHighSchoolsite,threeblocks westofthemaincampus,containsthe soccerfield.
LongwoodEstate,comprisingthepresident'shomeatLongwoodHouse,anine hole golfcourse and other facilities is locatedapproximatelyoneandone-half miles east ofthe main campus. The Longwood Estate plan is located in theAppendix.

FIELD

RUFFNER
BEDFORD
WEST RUFFNER
HINER
GRAINGER
LANCER
COYNER
LANCASTER
WYGAL


GRAHAM
LANKFORD
RESIDENCE HALLS R-I DINING HALL R-2 CURRY
FRAZER
FRENCH
TABB
WHEELER
STUBBS
CUNNINGHAMS
RUFFNER



ThefirstimageofLongwoodappearsto bethatofacollegesplitintotwoseparatecampuses.The"traditional"campus islocatedgenerallyonalineextending eastalongRedfordfromGriffinBoulevardtoPine,northonPineandeaston MadisontoVenable.Southofthisarea isthe"new"campuswhichextendsto theresidentialareassouthofFranklin. Thereisessentiallynovisualconnection to other parts of the campus which include the Wynne Building and associatedplayingfieldtothesouth,and theOldHighSchoolandsoccerfieldto thewest.ThevisualimageofLongwood fromHighStreetispleasantwithtreeshadedlawnsandattractivetraditional architecturejoinedbyacoveredcolonnade.RuffnerHall,distinguishedbyits Rotunda(circa1905),isthecenterpiece ofthiscomposition. Fromthenorthor southalongMainStreettheimageofthe campus isconsiderably different. The viewisofanunconsolidated, cluttered groupofbuildings.Theloadingdockof Barlow;thehighrisedorms,Curryand Frazer,whichcanbeseenformiles;and thesmokestackofthePowerPlantare dominantimages.
EnteringthecampusonRedfordStreet oneseessportsfields,highmastlighting, majorparkinglots, parkingalongboth sidesofthestreet,andpowerlineswith LankfordandStubbsinthebackground. This area represents one of several specificareaswithinthecampuswhich significantlydiminishesapositiveviewof Longwood. A majorgoalofthisstudy willbetovisuallyunifyLongwoodCollege.



HARD CAMPUS EDGE
SOFT CAMPUS EDGE
UNDEFINED EDGE

BUILDING LEGEND
ACADEMIC
A-I RUFFNER .-2 BEDFORD
A-J WEST RUFFNER
A-4 HINER
A-S GRAINGER
A-b LANCER
A-7 COYNER
A-6 LANCASTER
A-9 WYGAL
A-10STEVENS A11112Mc:CORKLE/JEFFERS A-13WYNNE A-14]ARMAN
GENERAL
c-1 BARLOW
c-2 GRAHAM
C-J LANKFORD
c-, BRISTOW
c-s ILER
c-b ALUMNI BLDG.
c-; POWER PLANT
c-• FUEL STORAGE
C-Y BARLOW FIELD
c-10ILER FIELD
C-11WHEELER MALL
c,;-11OLDHIGH SCHOOL
c-11CRAFTS
RESIDE CE HALLS
R- 1 DINING HALL
R-2 CURRY
R·l FRAZER
R-4 FRENCH
R-s TABB •-•cox

R-7 WHEELER •-• STUBBS
R-9 CUNNINGHAMS •-,oSOUTH RUFFNER




Longwood College is characterized by threedifferentedgeconditions:
• SoftCampus Ed ge
• Hard Campus Ed ge
• Undefined Ed ge
Thesofted geoccursmainlyalong High Street.Itisdefinedbytree-shadedlawns and buildings connected in part by a coveredcolonnade.Theed gecondition north of Bristow to Madison Street is similar.Herearowof Willow Oakand lowhedge help define theed ge
The hard ed ge occurs along Venable Street between High and Madison Streets.Formostofitslengthitisabrick retainingwallwithaninsetwroughtiron fence. Closer to Madison the fence becomeschainlinkandsitsontopofthe brickretaining wall.Alongportionsof Chambers Streetnorthof Madison,the ed geisdefinedbyabrickretainingwall withacast concrete cap.
Thebalanceofthecampusedgeisnot welldefined.Major visual elements in theseareasconsistofparkinglots,grass slopes and lawns,few trees,on-street parkingandviewsofloadingdocksand serviceareas.




HEAVIEST CONCENTRATION

BUILDING LEGEND
RESIDENCEHALLS
R·1 DININGHALL
R·l CURRY
R·J FRAZER ,, FRENCH
R-5 TABB
•·• cox
R-7 WHEELER
R-8STUBBS
R-9 CUNNINGHAM$
R·IUSOUTHRUFFNER
ACADEMIC
A·I RUFFNER
A-2 BEDFORD
A·J WESTRUFFNER
A-4 HINER
A·S GRAINGER
A·6 LANCER
A-7 COYNER
A-6 LANCASTER A·') WYGAL A·IDSTEVENS
A11112McCORKLE/JEFFERS A·IJWYNNE A-14JARMAN
GENERAL
c- BARLOW
c-2 GRAHAM
C·J LANKFORD
C-4 BRISTOW
c-s ILER
C-6 ALUMNIBLDG.
C-7 POWERPLANT
c-sFUELSTORAGE
C-9 BARLOWFIELD
C·1UILERFIELD
c-11WHEELER MALL
c-12OLDHIGHSCHOOL
C·IICRAFTS



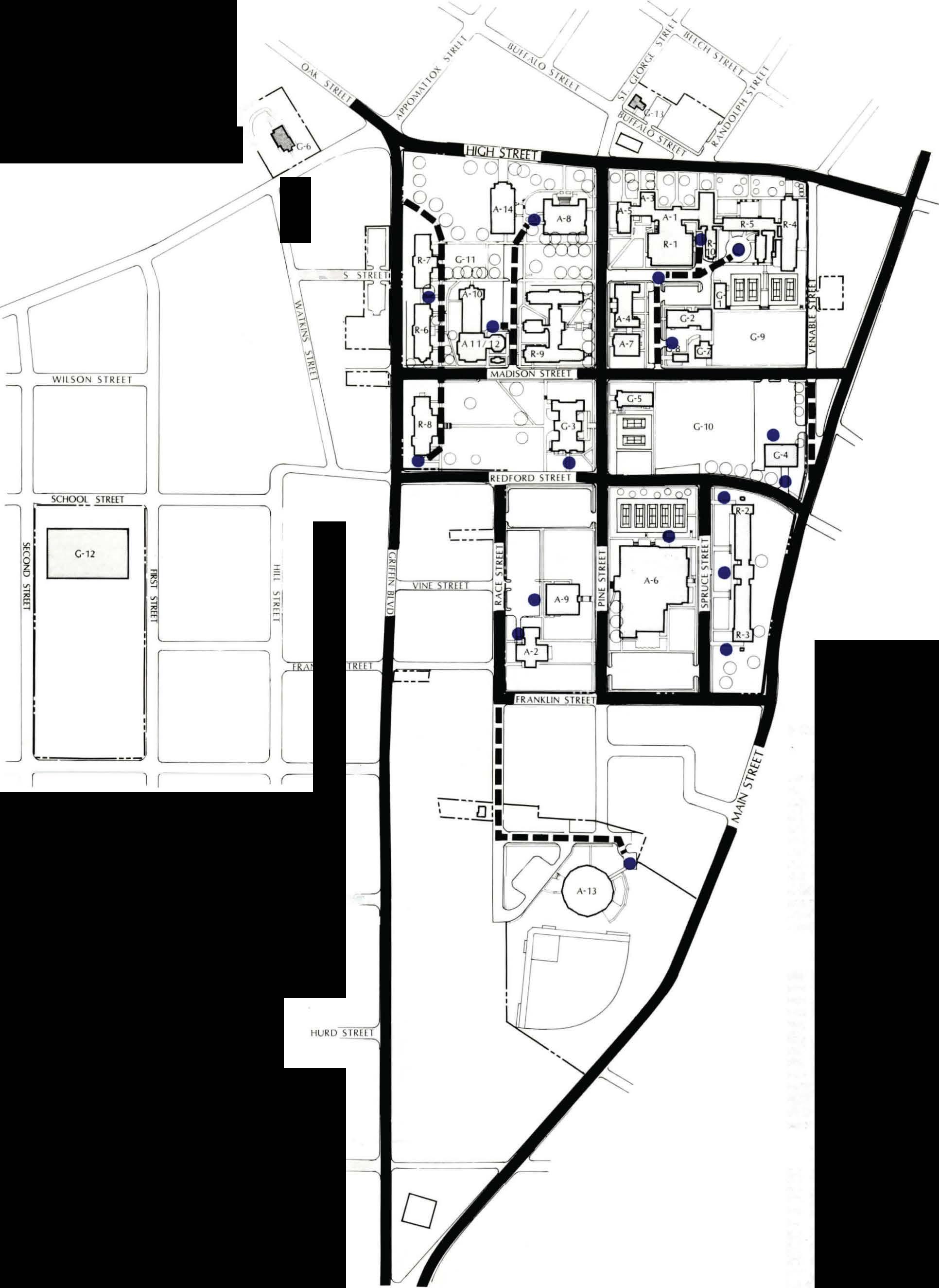
Major ex1stmg pedestrian movement occurs between student housing and BlackwellDiningHallandbetweenboth housingandBlackwellDiningHalltothe commercialstripalong MainStreet.
Secondary existing circulation occurs between student housing and various athleticfieldsandcourts(includingthe soccerfieldlocatedonthegroundsofthe OldHighSchool).
Desirelinesforcrosscampusfoottraffic arediagonalwhilemostcampuswalks areconfmedtoagridpatternbyexistingadjacentstreets.Oneresultisaseries ofunsightlydirtpathscrisscrossingthe openlawnsofthecampus.





Thereareatpresentseveralmajorand second arycirculationroutesthroughand adjacenttothecampus.
Amongthemajorcirculationroutesadjacent tothecampus, Griffin Boulevard and Highand Main Streetsarethemost heavilytraveled.Both Main Streetand Griffin Boulevardcarryaconsiderable amountofcommercialtraffic.
Redford Street, used by bothstudents and the residential community to the west,isoneoftwomajorcrosscampus routes.Madisonistheother.


Pine,Race,Franklinand Spruce Streets carry a moderate amount of intracampusstudentcirculation.
Adjacenttothecampus,Venable Street isasecond arycirculationroutebetween Highand Main Streets.
Becauseboth Pineand Venableareone waytothesouth,allnorthboundcampus circulationmust use GriffinBoulevardor Main Streettotravel from Madison.
Existingparking forcommutingstudents isconfinedto anL-shaped area bounded by Race,Pineand Redford Streets.Day studentparkingtotalsapproximately 70 spaces.
Existing parking for resident students occursalong portionsof Redford,Spruce, Madisonand Race Streetsand Griffin Boulevard.Resident students are also allowedtoparkatthe Wynne Building, south of Lancer,in smaller lots at the Baptist StudentCenter,southof Iler,west of Wheeler Dorm andeastof Venable Street.Resident student parking totals approximately 875spaces.
Faculty/staffparking occurs south of Bristow,in lots between Graham and RuffnerandGrahamand Hiner,inthe Wheeler Mall,alongbothsidesof Pine Streetnorthof Iler,southof Lancerand adjacentto Wynne, Wygaland Crafts. Faculty/staffparkingtotalsapproximately 400spaces.
Visitorparkingislimitedtosevenspaces intheareaof Grahamandtwohourrestrictedparkingon High Street.
Acompletelistingofexistingparkingis foundinthe Appendix.



Majorservicepointsoccuratthesouth endofBlackwellDiningHall,thePower Plant, the north and south ends of BristowandonthesouthsideofLankford. All other general and academic buildingscontainservicepointsfordeliveriesandsolidwastepickup.Inaddition, theresidencehallscanbeapproachedby vehiclesforfireprotection,loadingstudentbelongingsandtrashpickup.





Creating aMaster Plan is an orderly processofthought-asequenceofdecisions-resultinginanarrangementof formsandobjectsinanorderly, harmoniouscomposition.Itisamethodofmakingrationalandlogicaldecisionsoutof manypossiblealternatives.Thecreation ofaMasterPlanforLongwoodCollege willresultinevaluatingandsiftingout manypossiblesolutionsinordertoreach satisfactoryandlogical decisions. This InterimMasterPlanwillbethefoundationandtooltomaketimelyandaccurate longrangedecisionsconcerninggrowth changeatLongwoodCollege.
Thefollowingsectionincludes:
• Design Considerations
• SiteSelectionFactors
• PedestrianMovement
• VehicularCirculationandParking
• SiteLighting
• BarrierFreeDesign
• Signage




RUFFNER
BEDFORD
WEST RUFFNER
HINER
GRAINGER
LANCER
COYNER
LANCASTER
WYGAL
RESIDENCE HALLS
R-1 DINING HALL R-2 CURRY

DevelopmentofthisInterimMasterPlan updateiscenteredaroundthefollowing majorconsiderations.
1.Optimizeuseofexistinglandandplan forfuturebuildingexpansion.
• Locateanewlibraryatthesouthwest comer ofRedford and Pine Streets andproposednewhousingwestofthe Wygal/Bedfordbuildingsbetweenthe proposedRaceStreetpedestrianspine andGriffinBoulevard.
• Locateanew50,000squarefootfacility for student groups engaged in programmaticintellectualthemesor tasks, and fraternity and sorority housing.
• Relocateallintramuralandintercollegiate sports fields and facilities to southendofcampus.
• RetainIlerField,thelargeopenplay fieldareanorthofRedfordbetween MainandPineStreets,forlocationof futuremajorfacilitiesoraspermanent openspace.
2. Defineandimprovepedestrianand vehicularcirculationroutes.
• Createtwomajorpedestrianspines. The first, a continuation of the WheelerMalltoVenableStreet;the second,anewmajorpedestriancirculation path perpendicular to the Wheeler Mall beginning between McCorkle/JeffersandCunningham Dorm.Thiswalkwaywillextendsouth tothenewlibraryanddormitorysites andterminateattheplayingfieldsand parkingareassouthofFranklin.
• BlockRedford Street at Pine Street intersection.CloseMadisonandRedford Streets west ofPine and Race Streetstoallvehiclesexceptserviceand emergency.
• Reserveinternalstreetsforcollegeuse. Minimizelocaltrafficthroughcampus.
3. Upgrade overall visual image and identificationofcampus.
• Establishthemainentrancetocampus forvisitorsandnewcomersatRotunda withvisitorparkingatCrafts.
• Major upgrading of a secondary entrancetocampusatRedfordand MainStreets.
• Removeparkingfromallmajorinternal streets and in its place provide planted walkways, underground power, and attractive traditional luminaires.
• Locatemajorparkingareasonperimeterofcampus.
• Raisegradeandprovidebermingat intersection of Pine and Redford Streets similar to berm adjacent to northandeastsidesofLancer.




SITE BOILER PLANT EXPANSION


Theproposedsiteforthenewfour-level, 100,000 square foot library is on the southwestcomerofRedfordandPine Streets, opposite the south end of Lankford(StudentUnionCenter).
• This location is the approximate geographiccenterofexistingandprojectedacademicandstudenthousing facilities.
• Longwoodownstheland.
• Majorexpansionispossible.
• Amajornewbuildinginthisareawill significantly improve the visual qualitiesthatarenow unacceptable andwouldgiveamuch-needednew emphasistothisendofthecampus.
• Extensivepedestriancirculationwill crisscrossinfrontofthisfacility.
• Future dining facilities may be relocatedfromtheirpresentlocation in the Blackwell Dining Hall to Lankford.Thispossiblerelocationwill favorably concentrate a significant numberofstudentsinthelibrary/studentunion/dining/housingcomplex, makingadynamiccampuscenterfor studentuse.
• Locationofthenewlibraryalongthe proposed new pedestrian spine on RaceStreetnearstudenthousingand academiccenterswillenhancetheconceptofthelibrarybeing "thecenter oflearning".
• Thetopographyoftheland will be raisedattheintersectionofRedford andPineStreets.Inaddition,Redford StreetwillbeclosedfromPineStreet to Griffin Boulevard except for emergencyandservicevehicles.
A50,000squarefootfacilityforstudent groups engaged in programmatic intellectualthemesortasks,andfraternityandsororityhousing.
• Thesiteforthenewfacilityislocated onthewestsideofRaceStreetoppositeBedfordandWygal.
• RaceStreetwillbecomeadeveloped pedestrianspinewithvehicularaccess limitedtoemergencyandservicevehicles.
• Locationofresidentialunitsalongthis spineaffordsstudentssafe,attractive andconvenientaccesstoseveralkey pointsoncampus,includingnearby athleticfacilitiestothesouth.
• Convenientparkingandaccessisindicated to be from Griffin Boulevard behindtheseunits.
• Thisareaisidealforthistypeoffacility due to location separation from areasthatwouldbedisturbedbynoise andstudentactivity.
• Adequateexpansionspaceisavailable tothenorth.
• Designofthishousingcouldbemore residentialinnaturewithsuitesand efficiency kitchens and be more in keepingwithresidentialscaleofadjacentcommunity.





BUILDING LEGEND ACADEMIC
A·l RUFFNER A-2 BEDFORD
WEST RUFFNER A·4 HINER A·5 GRAINGER
LANCER
COYNER
WYGAL
G·10ILER FIELD
G-11 WHEELER MALL c-12OLD HIGH SCHOOL G·ll CRAFTS
RESIDENCE HALLS R·1 DINING HALL
R·2 CURRY R·l FRAZER •·• FRENCH
R·5 TABB
cox R-7 WHEELER R-8 STUBBS R·9 CUNNINGHAMS
R·10SOUTH RUFFNER
Pedestrianpathsshouldmoreaccurately reflect actual circulation needs and accommodatetheserequirementsin a direct,yetattractiveenvironment.Constructionofnewbuildingswillcreatenew pedestriancirculationneeds. Theplan takesthesenewprioritiesintoconsideration.Newmajorpedestriancirculation focusesontwomajorandseveralsecondarypathways.Themajoreast-westpath encompasses the already established WheelerMallwhichwillbeupgradedby theeliminationoftheparkingareasouth ofJarman,theadditionofamajorpedestriancrossingatPineandthereconstructionofopenspaceeastofBlackwellDining Hall into a pedestrianplaza. The pedestrianpathwaycontinuestotheeast toincludespecialnodesoractivityareas atRuffnerandTabbandterminatesat abroadsetofstepswhichwillleadtoa future connection todowntownFarmville.

Thenorth-southpathbeginsatWheeler MallbetweenCunninghamDormand Stevens.ItcrossesMadison, whichwill beclosedbetweenPineStreetandGriffin Boulevardtoallbutserviceandemergencyvehicles.FromMadison,thepathwaycontinuessouthtothe sitesofthe newlibraryandstudenthousing.Atthis point it crosses Redford and parallels RaceStreet.Both,likeMadison,willbe closedtothroughtraffic.Fromthenew library site the pathway follows Race StreettomajorparkingareasandathleticfieldssouthofFranklinStreet.
Asecondary pedestriancirculationsystemwilloccurfromLancer,Curryand Frazerinanewtree-shadedwalkwayeast ofIler, CoynerandHiner. Itwillcross WheelerMallandcontinuetoRuffner andBlackwellDiningHall.Othersecondary pathswillparallelPineStreetfrom High Street to the athletic fields and parkingareassouthofFranklinStreet; alongRedfordStreettothecommercial establishments on Main Street; and alongtheclosedoffandconvertedportionsofRedfordandMadisonStreets.




ThisInterimMasterPlansuggestsclosing certain campus streets to through traffic and allowing only service and emergency vehicular traffic. However, beforeanystreetandparkinglotredesign and/orclosingsareimplemented,a thoroughtrafficandparkingsurveyand analysis should be commissioned by LongwoodCollegeandreviewedbythe MasterPlanteam.
TheInterimMasterPlancontinuesto regardGriffin Boulevard, High Street andMainStreetasmajoradjacentcirculationroutes.
Thefollowingrevisionstothestreetsystemareproposedatthistime:
• Close the following streets to all throughvehiculartrafficexceptemergencyandservicevehicles,andtemporary loadingbystudentsandstaff: Madison Street betweenPineStreet andGriffinBoulevard.RedfordStreet betweenPineStreetandGriffinBoulevard.RaceStreetinitsentirety.
• Realign portions ofFranklin Street betweenGriffinBoulevardandRace Streettoallowsmoothflowofthrough traffic.
• Restoretwowaytrafficconditionto one-wayportionsofPineandSpruce Streets
• MaintainVenableStreetasoneway to the south.
• Close one block section ofVenable fromMadisontoMain Streets.
• Classifyallremainingcampusstreets assecondary circulation,andrestrict offcampustrafficflowonthesestreets.
• All on-street parkingwill be eliminated.
• ParkingareassouthofJarman,west ofGraham, eastofRuffner,southof Tabb, southofIlertenniscourtsand southeastofRedfordandRaceStreets willbeeliminated.
• SomeparkingnorthofGrahamand Bristow and south of Lancer will remam.
• The existing parking area across GriffinBoulevardfromWheeler,Cox andStubbsDormswillbeexpanded toincluderequiredparkingforspecial eventsintraditionalcampusarea.
• Newfacultyparkingwillbelocatedin theBarlowFieldareaandreplacethe tenniscourtseastofBarlow.Additional facultyparkingwillbelocatedinthe existinglotnorthofBristow.
• New student parking will be establishedinbrightlylitserviceareassouth ofFranklinStreetadjacenttothenew Race Street Mall; between Griffin BoulevardandHillStreet;andalong Griffin Boulevard south ofStubbs. Theselotswillbefencedandscreened from immediateviewbutaccessible andvisibletosecuritypersonnel.
• TheparkingareaadjacenttoCrafts Home Management House will be expandedtoapproximately20carsto includevisitorparking.
• Asmall12-15spaceparkinglotwillbe placedwestofBristowforadditional visitorparking.
• Preliminaryparkingrequirementsto year2000: Residentstudentparking 1,500 Daystudentparking 600 Facultyparking 500 Visitorparking 150
2,750spaces
Parkingforfuturefootball: 500spaces.


ACADEMIC
A·l RUFFNER A-2 BEDFORD A·J WEST RUFFNER A-4 HINER A·S GRAINGER A·6 LANCER A·7 COYNER A·B LANCASTER k9 WYGAL
A-10STEVENS
A11112MctORKLE/JEFFERS
A-llWYNNE A-14JARMAN
G·l BARLOW G·2 GRAHAM G·J LANKFORD G·4 BRISTOW G·S ILER G·• ALUMNI BLDG. G·7 POWER PLANT G·e FUEL STORAGE
G9 BARLOW FIELD
G·l0ILER FIELD
c-11WHEELER MALL
c•12OLD HIGH SCHOOL
G·IJCRAFTS
RESIDENCEHALLS
R•1 DINING HALL n CURRY
R·l FRAZER R·• FRENCH M TABB
cox n WHEELER •·• STUBBS M CUNNINGHAMS

R·l0SOUTH RUFFNER

The lighting systemofLongwoodisa majorconsiderationinthedevelopment ofaunifiedcampus.Theimportanceis basedonthevisibilityoflightfixtures, bothatnightandduringthedayandthe degree, intensity and character ofthe lightatnightandday.
ItisveryimportantforLongwoodCollegetoprovideconsistentlightfixtures andlampsinordertounifythecampus nightscape.
Theintentofsitelightingistoproduce anadequatelightleveltoinsureproperty safetyandsecurity,andtoprovidenighttime visibility for both vehicular and pedestriantraffic.Atthesametime,lighting should provide a pleasant visual environmentwhereindividualscanfeel confortableandsecure.
Fivetypesoflightsystemsshouldbeconsidered:
• VehicularandPedestrianCirculation Lighting
• ParkingAreaandSecurityLighting
• Landscape and Low Walkway Lighting
• BuildingandSign Lighting
• AthleticFieldsandCourtsLighting
Existingandproposedelectricalservice shouldbeplacedunderground. There areseveraladvantagestoplacingelectrical services underground, allofwhich relatetopersonnelandequipmentsafety, andservicereliability.Whilethesehave nodefinabledollarvalue,they,alongwith computer service, are historically the basisformostundergroundinstallation.
Aproperlyprotectedundergroundservice provides physical protection from lightning,treelimbs,storms,automobiles andotherhazardsthatcaninterruptelectricalservice. Anaddedbenefitofprotectionfromlightningisthereductionof linesurgesandspikescausedbylightning strikeovervoltage. This providesbetter isolation for electrical and electronic devicesthataresensitivetoovervoltage conditions. With electrical conductors thatoperateat distribution voltagesof 13,800 and 4160 volts underground insteadofoverhead,theoccurencesof downed overhead conductors creating hazardstothepublicarevirtuallyeliminated.
Thislightingsystemwillconsistofasingletraditionalluminaireona12foothigh ornamentalironpostandadoubletraditionalluminaireplacedonan18foothigh ornamental iron post. The single lurninaire system willbe used for the most part along secondary pedestrian paths,plazasandotherspecialoutdoor areas.Thedoubleluminairewillbeused to light streets and major pedestrian paths.







This lighting system will consist of luminaires on 20 footwoodlaminated polesspaced40feetto60feetapart.The luminairewillbeofa"cutoff''designthat will concentrate the light on the pavementandeliminate glareto surroundingareasonthecampus.
Thissystem,consistingmostlyofground andtreemounteduplights,willbeused tohighlightandaccentlandscapingon the campus. In addition, allwalks not already lit with the "traditional" luminairewillbelitbylowbollardlighting.Thelightswillbesetapproximately 36incheshighandnotmorethan20feet apart Thiswillresultinapleasantnighttimeenvironmentandpromotearelaxed residentialquality.
Buildingentrancesandmajorfeatures, steps, building identification signs and othercampussignswillbeadequatelylit. Thistypeoflightingwillbeuniformin character and style and will relate to individualbuildings. Allbuildingidentificationsignswillbeinternallylitand campus signs "up lit" from a ground mount.
Lightingfortheseactivitieswillbeafunctionofthetypeofsurfacetobelit. The principleof"cutoff" fixturesshouldbe usedtoeliminateglareto surrounding areas.

AccessibleRoute

PedestrianIntersection

Barrier Free Intersection



AccessibleParking



Barrierfreeexteriorsitedesign willbe implementedtocomplementhandicap accessimprovementsproposedforexistingcampusbuildings.
Barrierfreedesign andhandicapaccess willbeinitiatedtoincludeasmuchofthe "traditional"campusaspossibleandbe anintegralpartofallnewconstruction.
Thefollowingstandardswillbeobserved:
• Locate accessible parking spaces as closeaspossibletoaccessibleentrances andtoabarrierfreewalkwayserving theseentrances.
• Acurbrampwillbeprovidedwheneverawalkcrossesacurb.Curbramps willbelocatedtopreventobstruction byparkedvehicles.
• Curb ramp will have a mmunum widthof3feetexclusiveofflaredsides andamaximumslopeof1:12.
• Wherevermajorpedestrianpathscross vehicularstreets,curbswillbeeliminatedandthepavedareawillextend acrossthestreetinabarrierfreeplane. Vehiculartrafficwillbecontrolledby bollardsorothersimilardevices.

• Accessibleparkingspacewillbeatleast 8feetwideandadjoina5footminimumwideaisle.Thespaceshouldbe identifiedasahandicapspacewiththe appropriatesymbol. StandardHandicapSymbol
• Rampswillhaveamaximumslopeof 1:20withacrossslopenogreaterthan 1%. The minimum width of the rampswillbe4feet.Alevellanding willbeprovidedat35footintervalsfor rampsexceeding35feetinlength.

• Continuoushandrailataheightof2 feet8inchesmeasuredfromtheramp surfacewillbeprovided.Onswitchback ramps the handrail will be locatedontheinsideedge.
• Rampandlandingsurfaceswillbestable, firmandslipresistant.
• Otherbarrierfreeconsiderationswill beaccordingtostandardsestablished inthemanual"BarrierFreeDesign HandbookAccommodationsforthe Physically Handicapped;' Office of Construction,U.S.VeteransAdministrationand/orsimilarpublications.





Acomprehensivesignageandgraphics programfortheentirecampusisenvisioned. The following establishes the basicphilsophyofthe signagesystem. However,amoredetailedstudyshould be initiated to determine signage requirements. At that time, color, materials, letterstylesandsizewillbe determined.
Fourcatagoriesofexteriorsignsareconsidered.
• MajorCampusIdentification
• BuildingIdentification
• CampusLocationMaps
• PedestrianandVehicularCirculation

Majorcampusidentificationsignswillbe placedonthecurvedbrickwallsofGatewaysatPineandHighStreets,Redford andMainStreetsandFranklinStreetat MainStreetandGriffinBoulevard. In addition, major campus identification willbelocatedatHighStreetandGriffin Boulevard, High and Venable Streets andafuturesign willbeplacedatthe intersectionofMainStreetandGriffin Boulevard at the southern end ofthe property.Thesesignswillbeplacedon threefoottallfreestandingbrickwalls. Thecampusidentificationsignswillbe lit from ground-level lighting fixtures placedinwellsbelowthesurfaceofthe ground.
Eachbuildingwillbeidentifiedbyalow horizontalsign. Whereverpossiblethe sign willbeplacedatthewalkintersectiontothebuilding.Thesesignswillbe internallylit,sothatatnightthebuildingnamewillbehighlighted.
Campuslocationmapswillbeplacedat strategic locations throughout the campus. Visitorswillbeabletoeasily identifytheirlocationandthemostdirect routetotheirdestination. Thesemaps willbeinternallylit.
Internationally-accepted pictoral signs andsymbolswillbeusedforvehicular and pedestrian circulation. The wellknownhandicapparkingsymbolisan exampleofthistypeofsign


A major factorin providing a unified campusisforthevariouselementsthat areplacedonthecampustobeuniform incharacteranddesign.
Asdiscussedinthesectiononlighting, atraditionalluminaireandlightpolewill beusedthroughoutthecampus.
Thesameuniformityofcharacterand designisrequiredforpavingand _si�age systems, plantingandsitefurrns�gs. Themostsignificantelementtounifying the campus will be the design and implementation ofthe Campus Edge andGatewaysystem.
Thefollowingelementsarediscussed:
• LandscapeCharacter
• CampusEdgesandGateways
• Paving
• StreetscapeandParking
• SiteFurnishings

• Visuallyseparatecampusfromsurroundingresidentialandcommercial areas. Strengthen and improve campus"edges".
• Designgatewayssothatvisitors,staff, andstudentsenteringthecampusare remindedthattheyhaveenteredaspecialplace.
• Connectthegatewaystointernaland pedestrianpathsandvehicularroadwayswhichthenbecomeavisualform frameworkfortheentirecampus.
• Protect, preserve and enhance the landscape values ofthe "traditional "campus
• Provide a pleasant, relaxed, treeshadedenvironment.
• Identify or create special areas or nodesofvariouskindsandfunctions. Connectthemwithtreesand other landscape elements to provide continuitythroughoutthecampus.
• Providequalitylandscapeelements, suitable planting, abundant open spaceandaworkableandattractive pedestriancirculationsystemcomplete with gateways and people spaces to unifyandimprovethequalityoflife onthecampus.
• Provideautomaticlawnsprinklerirrigationforallnew facilities. Retr�fit existingportionsofthecampuswith lawnsprinklers.

Character Sketch




Landscape Screen
Landscape desi gn will emphasize a straightforward use of indi genous and adaptedplantspecies.Anemphasiswill be made to minimize the landscape maintenanceeffort A carefully conceived plan will enhance the image _ of t!1e campusbyprojectingscalerelationships betweentheindividual,architectureand openspace.
Theplanshouldprovideforadditional andappropriateplantingsin connection withnew structures. In addition,the existing planting should be improved. Dead, partially dead and overgrown shrubberywillberemovedfromwhere it hasgrown,crowdingpedestrianpaths andblockingnaturallight fromentering buildings.
Existing foundationplantings,withthe exception of certainplantswithhistorical significance, willbe removed and replaced with hardy, low evergreen plants.Theseplantswillbeplacedsoas nottorestrict or obstruct views across campus open spaces,walks or special plazaareas.

Theseplantswillalsobelowenoughso thatsitesecurity canbemaintainedatall times.
Plantingdesi gnwillfeatureuse ofsim� larspeciesthroughoutthe campus.This willresultinyetanothervisuallinka ge toassistintheunification ofthe colle ge grounds.
Every effortmust �mad�toP�:sen:eandprotectthemaJortrees mthe _tr� tional campus".Newshadetreeswillline theroadwaysandmajorpedestrialpaths.
Specimenshadeand ornamen�altrees willbeselectedtoenhancespecialareas on the campus.Evergreenand flowering treeswillscreenparkingareas fromsurrounding walksandroadways.
The Power Plant,parkinglots,service areas loadingdocksand otherunsightly featu�es willbescreenedwitha combination of evergreen shrubs and shade trees.
See Appendix forrecommendedplant list.






Thedevelopmentofthecampusedgeas itfacesthecommunity,passingmotorists andpedestriansisofmajorimportance. The character and appearance ofthe traditionalcampuswith its "soft" and "hard"edgeswillbeextendedarow1dthe perimeterofthecampus.
The"soft"edgeismaintainedonHigh StreetfromGriffinBoulevardtoVenableStreetandonVenablefromMadison to Main. Additional "soft" edge treatmentofgrass-coveredberms,open spacewithviewsintothecampus,and groupingofshadeandornamentaltrees extendsalongGriffinBoulevardsouthto MainandonMainnorthtoFranklin.
The"hard"edge,characterizedbylow brickwallsandcolumnsincombination with a wrought iron fence and taller curvedbrickwallsatgateways,occurson VenablebetweenHighandMadison,on MainfromRedfordtoFranklinandon GriffinnorthtoWheelerDorm.
The "hard" edge is punctuated by a seriesofpedestrianandvehiculargateways.Visitors,staffandstudentsenteringthecampusthroughthesegateways recognizethattheyhaveenteredintoa specialplace.Thegatewaysareconnected totree-linedpedestrianpathsandroadways. Thesearewelllit, attractive and reasonablyaccessibletoallpartsofthe campus.

CampusPedestrianGateway









PedestrianIntersection






Thepedestrianandvehicularcirculation willbedesi gnedtobeaestheticallycompatibleaswellas functional.Thedevelopmentofacomprehensivepavingsystem willconsiderthe following:
• Thepathsystem willbe wellshaded and convenient. Multiple walkway intersections can become feature areas. Trees within tree grates, benches,decorativelighting,brickor otherspecialpavingcanallbeutilized to provide the campus a relaxed residential quality.
• Walkwaysurfacesshouldbecomfortable and safe to walk on. Where pedestrianwalksdoubleasserviceways they will be constructed ofsturdy materialstosupporttheweightofservice vehicles.

• Majorpedestrianand service access walks-18feet wide.
• Second arypedestrianwalks including walks that service dormitories and building entrances-12feet wide.
• Minor walksandstreetscapewalks-8 feet wide.
• Majorwalks willbeconstructedofa high qualitymaterial,intimate ins�e andreflectingthecharmofthetraditionalcampus.Firstpreference forthis specialpaving isabrickpave�placed withhand tightjointsinahemngbone or basketweave pattern.Other preferredmaterials includeinterlocking concretepavers,granite,andprecast sandblastedconcretepavers.
• Second aryandminorwalkwayscanbe constructedofnatural poured-in-place concrete withaheavy broom finish, visually enriched with special paver inserts.Thismaterialcanbevisually enriched by the addition ofscored joints,exposedaggregate,dividers,etc.
• In order to minimize the labor involved inhandtr,.Inniinggrassadjacenttoplantedareasorpaving,alow raisedcurbor flushdividerwillseparatetheplanting area from grass of paving.Theedging material �be compatiblewiththeadjacentpavmg.


ExistingStreetSection






Agoalofthisinterimreportistoimprove theimageofthecampus.Amajorstep forwardinthisdirectionistherecommendation to eliminate parallel curb parkingfromallinteriorstreets.
Theareanowutilizedasparkingwillbe convertedtoapedestrianwalkway.Street curbswillbeextendedouttotheedgeof whatwastheparkingarea.Adjacentto thenewcurbwillbea6footwidegrass strip containing trees planted 30 feet apartandwithatraditionalstreetlight betweeneachtreeandanew8footwide pedestrian walk constructed ofheavy broomfinishconcrete,brickorconcrete paver.
Parking lotsadjacenttostreets will be screenedbybermsandplanting. This landscapetreatmentwillnotonlyserve toscreentheparking,itwillhelpdefine thecampusedge Parkingareaswillbe designedsothattheyincorporatetreelinedpathsthroughthelot.Thesepaths willbecontainedinminimum 20foot widepedestrianwaysoccurringatleast everytworowsofparkingorapproximately14-0feetoncenter.Shadetreeswill bespaced30feetoncenterthroughthe centerofthepedestrianway.










Furnishings and accessories are an importantelementin providing foraunified campusenvironment.The campus isa home foritsstudentsandthe furnishin gsandaccessoriesshouldservethestudents needs.Furnishings,while being sturdyand functional,shouldavoidlooking institutional.This section provides designguidelines for campus furnishin gs andaccessoriestobe installedin connection withnew construction as wellas retrofitting older areasonthe campus.
Amongtheelementstobeillustratedare:
Benchesareamajordesi gnelementon a collegecampus.Benchesmustbe comfortable, accessible and easily maintained.Twotypesofbenchesarerecommended:one,atraditional curvedwood benchwithwrought iron accents;the other,ablack-vinyl cladmetalbench.
Bollardsareusedtoseparate vehicular and pedestrialtraffic.Theuseofbollards allows for curbless and barrier free street/walk crossings.Thebollarddesi gn is compatiblewithstreetlightsandother site furnishings.
Theseelementsarebothfunctionaland usableandvisuallyattractive.Materials havebeenselectedtobe compatiblewith both traditional lighting and bollard desi gn.



Thefollowinglistcontainsplantsthatare indigenousoradaptabletotheregional environmentoftheSouthernVirginia area.Plantsselectedfromthislistwillfurtherenhancethevisualqualityofthecollege by their healthy growth and appropriatecharacter.
Eachplantislistedwithitscommonand botanicalname.
WillowOak
RedOak
SawtoothOak
Marshall'sAsh
RedMaple
SugarMaple
ThornlessHoneylocust
SweetGum

Quercusphellos
Qrubrum
Qacutissima
Fraxnuspeon. lancealataMarshall's Acerrubrum
Acersaccharum
GleditsiatriacanthosShademaster
Liquidambarstyraci.flua
Redbud
WhiteFloweringDogwood
Hawthorne
Sourwood
SweetbayMagnolia
AmurMaple
EvergreenTrees
WhitePine
AustrianPine
CanadianHemlock
AmericanHolly
Cerciscanadensis
Camusflorida
Crataeagus(species)
Oxydendrumarboreum
Magnoliavirginiana
Acerginnella
Piousstrobus
Piousnigra
Tsugacanadensis
Ilexopaca
Shrubs
FraserPhotinia
GolddustAucuba
EvergreenAzalea
Exburyhybrid
Pyracantha
NellieR. StevensHolly
Dwf.Jap. Holly
HetzJap. Holly
Jap. Pieris
Elaeagnus
Dwf. WingedEuonymus
SpreadingYew
EvergreenBarberry
GroundCovers
CompactAndorraJuniper
CompactPfitzerJuniper
BlueRugJuniper
BalticIvy
Liriope
Periwinkle

PhotiniaFraser
AucubajaponicaGolddust
AzaleaKurume(species)
AzaleaExburyHybridAzalea(species)
Pyracantha
IlexNellieR. Stevens I. hellera I. hetzi
Pierisjaponica
Elaeagnuspungens
Euonymusalatacompacta
Taxuscuspidatadensiformis
Berberisjulianae
Juniperushorizontalisplumosa
Youngstown
J. chinensisCompactPfitzer
J. horizontalisWilton
HederahelixBaltic
LiriopemuscariBigBlue
Vincaminor
Location
BaptistStudentCenter
Bedford
Bristow
Campus School
Campus School
Chambers Street
GriffinBlvd./Ely St. Lot
Ely St. (High toFranklin)
Franklin St.(So. Main St. toPine St.)
Graham High(ElytoVenable)
Hiner
HomeManagementHouse Lot Iler
IlerLot(BasketballCourt)
Jarman (St. behind JarmanandJarman ParkingLotand behindStevens) LancerLot
Lankfordonly
Lankford(dirtlot andpartofLankford DayStudentLot)
Madison St. (ElytoVenable)
Pine St. (High toMadison)
Pine St. (MadisontoFranklin)
Race St. (RedfordtoFranklin)
Redford St. (So. MaintoGriffinBoulevard)
South RuffnerAlleyway
SpruceSt. (FranklintoRedford)
TabbCircle
Venable St. Lot
WynneLot

16-Students
34-20 Fac/14Stu.
76-Fac/Staff/StateCars
70-Students
35-Fae/Staff
21-Fac/Staffw/1 handicapped
70-Students
56-Students
18-Students
33-Fae/Staffw/2Visitorspaces SO-Fae/Staff/Stud.
2-hr. limit
29-Faculty
20-Fac/Staff
13-Students
23-Students
49-Fac/Staffw/1 handicapped
117-Fae/Staff/Stud. w/3 handicapped approx. 80 students
67-DayStudents
113-Studentsw/2 reserved
96-Studentsw/3handicapped
49-Fac/Staff
76-Fac/StaffStud. approx. 65 Students
44-Students
79-Students
9-Fae/Staffw/5reserved 55-Students
9-Fac/Staff 23-Student
40-Student








