85 Mahon Street, Dalby - Inspection Booklet

Page 1


The details contained herein are those supplied by the Vendor and Prospective Purchasers should satisfy themselves by inspection or otherwise, as to the accuracy of these details

The details contained herein are those supplied by the Vendor and Prospective Purchasers should satisfy themselves by inspection or otherwise, as to the accuracy of these details

Spacious lifestyle Living

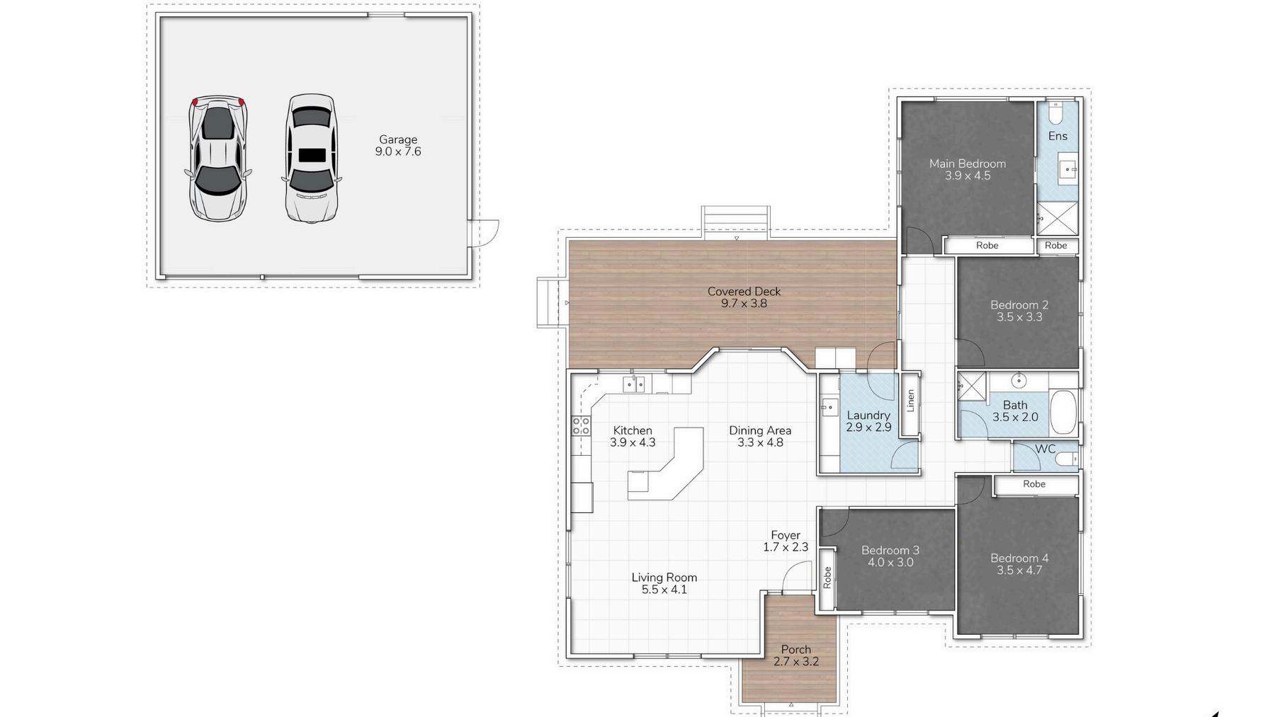
Designed for families, this well-appointed home offers the perfect blend of comfort and space. Situated on a generous 1-acre block, there’s plenty of room for kids to run, kick a footy or go for a dip in the dam. 85 Mahon Street delivers the ideal balance of relaxed living and practicality.

Situated towards the end of a long Cul-de-sac a short drive from the town centre, the property is surrounded by other large lifestyle and rural blocks. Step inside to an inviting, open-plan layout that reflects the home’s spacious surroundings and provide comfort and functionality for everyday living.

With four generously sized bedrooms, all featuring built-in wardrobes and ceiling fans, there’s room for everyone The master suite includes a private ensuite, while a large second bathroom ensures smooth mornings before school just 2 5km away A well-placed large laundry keeps daily chores out of sight yet easily accessible

Outdoors, the covered deck seamlessly extends the living space, perfect for weekend BBQs or a quiet coffee before the day begins The backyard is a haven for relaxation, with ample space to gather around the firepit on a Friday evening Whether you love an active lifestyle filled with outdoor adventures or prefer laid-back family moments at home, this property offers the best of both worlds

Fully fenced

Double garage with workspace

Town water

Modern kitchen

Reverse Cycle Aircon

4000m2

BIRs

Ceiling fans

Dam Fire pit

Back Veranda

The details contained herein are those supplied by the Vendor and Prospective Purchasers should satisfy themselves by inspection or otherwise, as to the accuracy of these details

The details contained herein are those supplied by the Vendor and Prospective Purchasers should satisfy themselves by inspection or otherwise, as to the accuracy of these details

Other Information

A deposit needs to be paid at time of signing a contract

Do you need assistance with Finance?

Building & Pest Inspection is the responsibility of the Buyer

Are you aware that settlement terms may vary - 30/45/60 days

Don't forget Insurance when signing a contract. Do you need assistance?

Turn static files into dynamic content formats.

Create a flipbook
Issuu converts static files into: digital portfolios, online yearbooks, online catalogs, digital photo albums and more. Sign up and create your flipbook.