

![]()


GRAHAM FAUPEL MENDENHALL & ASSOCIATES

Wind River 2 is a fully remodeled, three-level townhome located in the heart of Teton Village, just a short walk from the Moose Creek chair lift. This iconic destination is known worldwide for its legendary terrain, making it a bucket-list stop for skiers and outdoor enthusiasts alike. The home offers direct access to year-round recreation, dining, and adventure. Inside, thoughtful updates, quality materials, and a refined layout make it both functional and elevated in design.








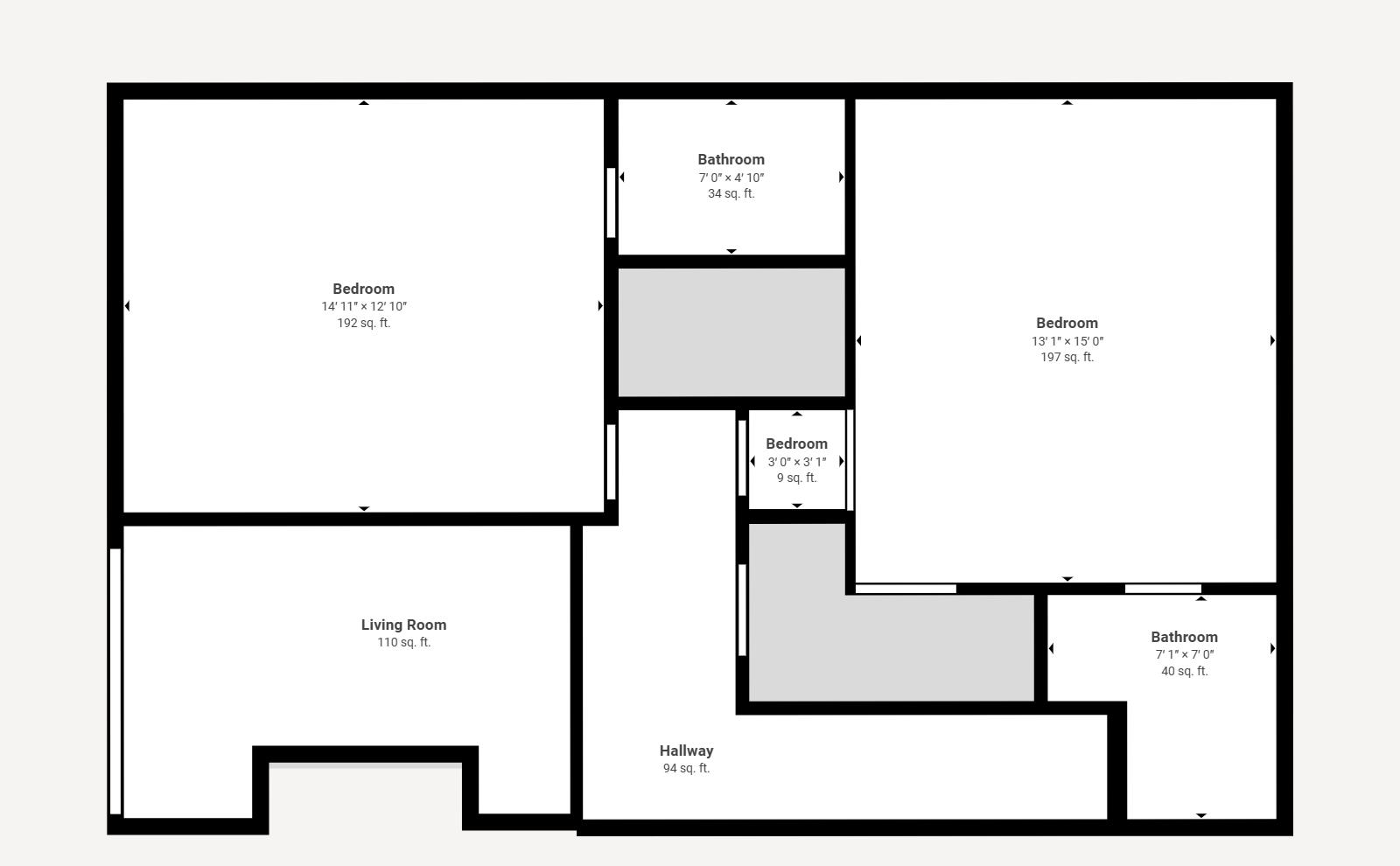
The main level features a light filled, open-concept living space with vaulted ceilings and a two story, floor-to-ceiling limestone fireplace. Two private decks extend the living area outdoors, offering space to grill or take in the mountain air. The kitchen is equipped with quartzite countertops, and top of the line appliacnes, including a Wolf induction range, Sub-Zero refrigerator, wine chiller, and ice maker, while the adjacent dining area offers space for hosting.


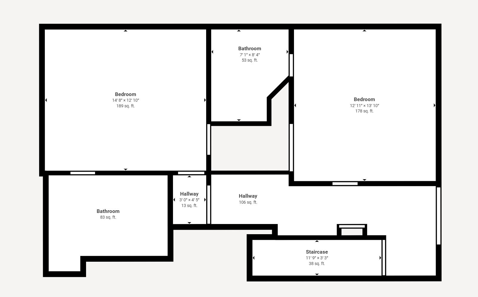
The third level includes two additional guest bedrooms, each with its own en-suite bathroom featuring walk-in tile showers and modern finishes. With separation from the main living spaces, this level offers added privacy for family and guests.




The entry level includes a functional mudroom with built-in storage and a wall-mounted boot dryer—ideal for managing gear after time on the mountain. This floor also features a twin bedroom with an en-suite bath, a spacious primary suite with a soaking tub, marble tile shower, and double vanity, as well as a washer/dryer and ample closet space.





Wind River Townhome
2,428 sqft
4 Bedrooms | 4 Bathrooms
Three Stories
Recently Remolded
Teton Village
Ground Floor
Flagstone Entryway
Mudroom
Built in Shelves
Ample Storage for Skis and Gear
Electric Boot Dryer
Fits up to 12 Pairs of Boots/Gloves
Primary Suite
Full Bathroom
Standalone Soaking Tub
Tile Shower with Glass Walls
Oak and Quartz Vanity
Guest Suite
Full Bathroom
Designer Tile
Laundry Closet
Washer/Dryer: LG
Floor 2
Open Concept Great Room
Living Room
Two-Story Limestone, Woodburning Fireplace
Tall Windows That Fill The Space with Natural Light
Expansive Porch Kitchen
Chef’s Kitchen
Quartzite Countertops
Appliances:
Refrigerator: Sub-Zero
Range: Wolf (Induction, Electric Range)
Microwave: Wolf
Dishwasher
Wine Chiller
Ice Maker
Dining Area
Guest Suite
Private en-suite bathroom
Walk in shower
Guest Suite
Private en-suite bathroom
Walk in Shower
Oak Cabinetry
Quartz Countertops
Heat: Cove Heaters
Forced Air In-Floor Heat
Water: Private (Community)
Sewer: Private (Community)
Fuel: Electric
Water Softener Short walk to Jackson Hole Mountain Resort ski access + all shopping and dining options that Teton Village has to offer
Amenities
On the Ski Shuttle Route
Private Parking Spot Taxes: $21,538.47 (2024)
Fees
HOA: $1,225 (Monthly)


—
We maximize revenue by sifting through the analytics on both aggregate and individual levels. Outpost’s in-house revenue team tweaks pricing and strategy of our homes on a daily basis to ensure we deliver optimal performance. The following projections assume zero owneroccupied days and a strategy focused on optimized income. To arrive at these projections, we analyzed the performance of the closest comparable properties. With your financial success in mind, Outpost will closely monitor and fine tune the pricing strategy we put in place for the units on a regular basis to perfect the strategy and maximize revenue.
WIND RIVER 2
SEASON
SPRING (APR & MAY)
SUMMER (JUN—SEP)
FALL (OCT & NOV)
WINTER (DEC—MAR)
$9,000 — $10,000 — $90,000 — $9,500
$8,500 $80,000
$87,500
$100,500 — $210,000 $185,000
It is important to note the above figures include forecasts and projections that represent Outpost’s assumptions and expectations in light of currently available information. Outpost’s actual performance results may differ from those projected and we cannot guarantee what is presented or implied as to the accuracy of specific forecasts. Lastly, as an industry standard practice, Outpost projections apply to year two in our program when optimal earning potential is recognized.








3675 W MICHAEL Drive 2, Teton Village, WY 83025 25-2034 Residential Active $4,790,000

Provided as a courtesy of Graham-Faupel-Mendenhall
Compass Real Estate 80 W Broadway PO Box 4897 Jackson, WY 83001
Mobilegfm@compass com http://www grahamfaupelmendenhall com
Non-Public: No
House Style:
Main House Total Bedrooms: 4
Main House BathsHalf: 0
Main House 2nd Flr & Above SqFt: 1,648
Main House # Stalls: 0
Main House-BG SqFt Unfinished:
Guest House Baths: 0
Overall Total Bedrooms: 4
Overall Livable SqFt: 2,472
Senior Community YN:
List Price Per SqFt: 1,937 70
Auction YN:
Year Built: 1982
Main House Baths-Full: 2
Main House Total Baths: 4
Main House-Main Level SqFt: 824
Main House Garage SqFt:
Main House SqFt: 2,472
Guest House Garage SqFt: 0
Overall Total Baths: 4
Acres: 0 07

Start Showing Date:
Last Major Remod:
Main House Baths3/4: 2
Ownership: Condo
Main House Garage Type: None
Main House-BG SqFt Finished: 0
Guest House Bedrooms: 0
Guest House SqFt: 0
Overall Garage SqFt: 0
Lot Size:
Horses Allowed: No # Horses Allowed:
Sold Price Per SqFt:
Common Name: County: Teton
Area: 01 - Teton Village Subdivision: Jackson Hole Ski Corp Lot #: Zoning: Single Family Flood Zone: Flood Class: Ann HOA
Latitude: 43 582807 Longitude: -110 835989
Possession: At Closing
In-House Listing #:
Exclusions:
Legal Description: Unit 2, Wind River Condominium Project Public Remarks: Discover the perfect blend of comfort and style at Wind River #2 This condo is ready for you to move in and enjoy, with four spacious bedrooms and three and a half bathrooms spread across 2,472 square feet of living space Fully renovated in 2024, this unit is perfect for enjoying winter and summer alike in Teton Village Whether you're into skiing, hiking, or just enjoying the great outdoors, you'll find it all right here
Water: Private (Community)
Sewer: Private (Community)
Basement: None
Construction: Stick Built On Site
Exterior: Cedar
Furnished: Furnished
Ground Flr Primary Bdrm: Ground Flr Primary
Bdrm: Yes
Agent Owned: N
Seller Concessions:
Listing Price: 4,790,000
LO: Compass Real Estate
Amenities: Balcony; Cathedral Ceiling(s); Deck; Hardwood Floors; Terrace
Property Features: Few Trees; Paved; Ski in/out; ST Rentals Allowed
Interior Trim: Oak
Hardwood Floors: Oak
Roof: Comp Shingle
Fireplace: Wood #: 1
Fuel Type: Electric
Heat: Cove Heaters; Electric; Forced Air
Appliances: Dishwasher; Disposal; Dryer; Freezer; Microwave; Range/Oven/Cooktop; Refrigerator; Washer
View: Mountain View; Scenic
Special Rooms: Eat-in Kitchen
Lifestyle: Mountain; Outdoor Recreation; Resort; Skiing
Information is deemed to be reliable, but is not guaranteed. © 2025 MLS and FBS. Prepared by Graham-Faupel-Mendenhall on Tuesday, July 29, 2025 2:50 PM. The information on this sheet has been made available by the MLS and may not be the listing of the provider