6835 E Little School Road Brochure

Page 1

6835 E Little School Road

GRAHAM FAUPEL MENDENHALL & ASSOCIATES

Quiet Neighborhood Living

A quiet escape from the bustle of downtown Jackson, this Kelly property is ideal single family living. With living spaces up and downstairs, as well as an outdoor deck, this home provides ample space for entertaining friends and family.

Access to Outdoor Recreation

Surrounded by nature, the beautiful neighborhood of Kelly is an inholding of Grand Teton National Park—meaning summer and winter outdoor pursuits and access to wild, protected land are right at your fingertips. Enjoy hiking, biking, or skiing just a short distance from your front door! Or head out for a walk down the road to cast a line in to the world famous waters of the Gros Ventre River.

Grand Teton National Park Gros Ventre River

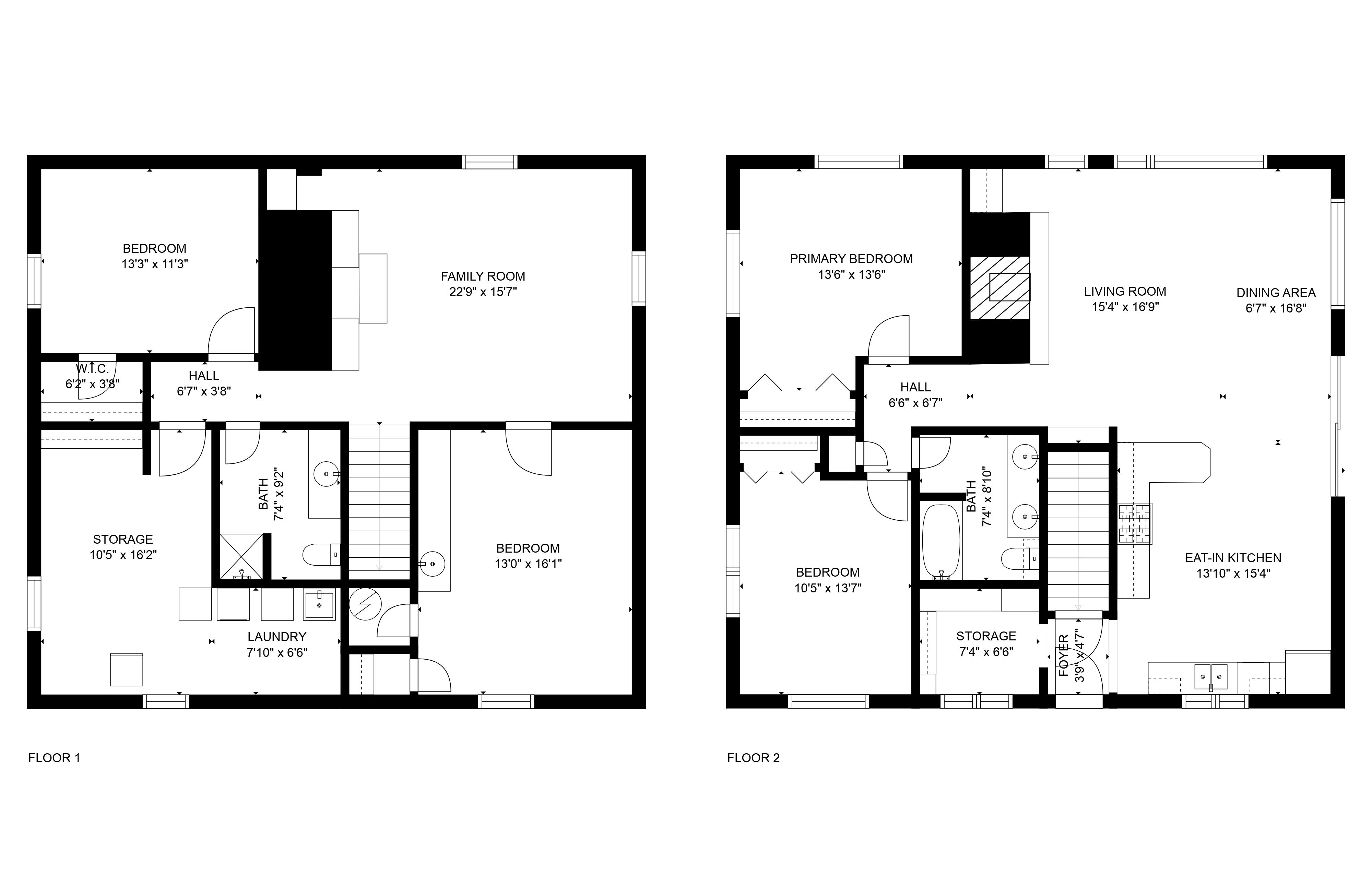
Single Family Living

Four bedrooms, two baths, and an open floor plan provide ample space for family and friends to gather. The mudroom ensures efficient gear storage, and the outdoor deck can be the perfect spot to end a day of recreation in the surrounding wilderness.

BEDROOM 1 BEDROOM 2

UPSTAIRS FULL BATH

MUDROOM

BEDROOM 4

BEDROOM 3
DOWNSTAIRS LIVING AREA
DOWNSTAIRS BATHROOM

6835 E Little School Road, Jackson WY 83001

VIRTUAL TOUR

This four bedroom, two bath single family home in Kelly allows for quiet neighborhood living, with downtown Jackson amenities still in reach. Nestled between Grand Teton National Park and the Gros Ventre Wilderness area, this house can serve as an ideal basecamp for a number of different outdoor pursuits, summer or winter. A quick drive south puts you in the heart of downtown Jackson, and provides access to shops, restaurants, and nightlife. Home includes a back deck, perfect for entertaining, or enjoying solitude among the mountains.

PROPERTY SUMMARY

Year Built: 1975

.26 Acres

Mountain Views, Scenic

Quiet Neighborhood Location

Treed Property

Flat, Large Yard

Log Home

Large Deck off Kitchen

INTERIOR SUMMARY

Livable Space: 2,368 sqft

4 Bedrooms | 2 Bathrooms

Eat-In Kitchen

Open Concept Kitchen & Living

Woodburning Fireplace

Upstairs & Downstairs Living Spaces

Built in Desk in Main Living

Mudroom

APPLIANCES & FIXTURES

Range: Kenmore Gas 4 Burner

Oven: Kenmore

Dishwasher: Frigidaire

Microwave: Kenmore

Refrigerator: Kenmore

Washer/Dryer: LG

FEES

Taxes: $ 6,710,26 (2022)

HOA: None

SYSTEMS

Water: Well (Shared by 4 Homes)

Sewer: Septic

Electric Baseboard

AMENITIES

Close Proximity to Outdoor Recreation

Neighborhood is an Inholding of Grand Teton National Park

Walking Distance to Gros Ventre River

14 Miles to Town Square

9.9 Miles to the Jackson Hole Airport

IMPROVEMENTS

2019: New hot water heater, water softening system, well pump, subdrive system, and pressure tank

2017: New windows and log corners wrapped with synthetic chinking

2013: New 2”x 10” roof with foam insulation

2012: New deck posts and rails

2009: Hickory flooring installed in kitchen, living area, and hallways

2006: Cob blast all logs and stain with Transformation

2005: Pacific wood stove insert

2003: Radon pump installed - Full House Radon

6835 E LITTLE SCHOOL ROAD • JACKSON, WY
Provider Billing Period Use Revenue ELEC Jul-22 67.27 $ ELEC Jun-22 78.61 $ ELEC May-22 110.83 $ ELEC Apr-22 171.41 $ ELEC Mar-22 172.27 $ ELEC Feb-22 190.01 $ ELEC Jan-22 233.93 $ ELEC Dec-21 166.40 $ ELEC Nov-21 123.04 $ ELEC Oct-21 110.13 $ ELEC Sep-21 59.16 $ ELEC Aug-21 60.81 $ ELEC Jul-21 65.83 $ ELEC Jun-21 77.75 $ ELEC May-21 100.07 $ ELEC Apr-21 147.72 $ ELEC Mar-21 154.91 $ ELEC Feb-21 172.78 $ ELEC Jan-21 250.86 $ ELEC Dec-20 205.15 $ ELEC Nov-20 132.45 $ ELEC Oct-20 83.00 $ ELEC Sep-20 57.23 $ ELEC Aug-20 65.99 $
ELECTRIC USAGE
Average Electric Usage: $127.40
grahamfaupelmendenhall.com 307.690.0235 gfm@compass.com 80 W BROADWAY JACKSON, WY 83001 6835 E Little School Road Jackson, WY 83001
grahamfaupelmendenhall.com 307.690.0235 gfm@compass.com 80 W BROADWAY JACKSON, WY 83001 6835 E Little School Road Jackson, WY 83001 6835 E Little School Road
grahamfaupelmendenhall.com 307.690.0235 gfm@compass.com 80 W BROADWAY JACKSON, WY 83001 6835 E Little School Road Jackson, WY 83001 Jackson
6835 E Little School Road
Wilson
Jackson Hole Mountain Resort Mack Mendenhall • Emily Eldredge • Caroline O’Neill • Julie Faupel • Karen Terra • Matt Faupel • Morgan Ablon • Tess Hartnett • Allie Detwiler Matt Faupel Associate Broker Julie Faupel Associate Broker Karen Terra Associate Broker
Marketing
Morgan
Executive
Caroline
Marketing
307.690.0204 | gfm@compass.com GrahamFaupelMendenhall.com #1 RESIDENTIAL SALE 2022 #1 RESIDENTIAL SALE IN WYOMING HISTORY (2021) FOUNDING MEMBER THE PRIVATE CLIENT NETWORK
Mack Mendenhall Associate Broker Emily Eldredge Associate Broker Tess Hartnett Sales Associate & Contract Coordinator Allie Detwiler
Director
Ablon
Assistant
O’Neill
Assistant

Provided as a courtesy of Graham-Faupel-Mendenhall

Compass Real Estate

80 W Broadway PO Box 4897

Jackson, WY 83001

Mobilegfm@compass.com

http://www.grahamfaupelmendenhall.com

Possession: At Closing

Legal Description: LOT 30, KENT-3

Listing #:

Public Remarks: This four bedroom, two bath single family home in Kelly allows for quiet neighborhood living, with Jackson amenities still in reach. Nestled between Grand Teton National Park and the Gros Ventre Wilderness area, this house can serve as an ideal basecamp for a number of different outdoor pursuits, summer or winter, with its close proximity to the National Park and walkability to the Gros Ventre River. A quick drive South puts you in the heart of downtown Jackson, and provides access to shops, restaurants, and nightlife.

Ground Flr Mstr Bdrm: Ground Flr Mst Bdrm: Yes

Amenities: Deck; Gas Heating Stove; Hardwood

Water: Well

Sewer: Septic (existing)

Basement: Finished

Construction: Stick Built On Site

Exterior: Log; Stone

Furnished: Unfurnished

Agent Owned: N

Seller Concessions:

Listing Price: 1,795,000

LO: Compass Real Estate

Floors

Property Features: Electric to Property; Flat; No

CC&R's; On Paved Road; Phone to Lot Line; Trees; Year Round Access

Roof: Comp Shingle

Fireplace: Wood #: 1

Fuel Type: Electric

Buyer Agent: Y

Heat: Electric Baseboard

Appliances: Dishwasher; Dryer; Freezer; Microwave; Range; Refrigerator; Washer Driveway: Gravel

View: Mountain View; Teton View; Scenic

Special Rooms: Bonus Room; Eat-in Kitchen

Lifestyle: Country Living; Fishing; Hunting; Mountain; Outdoor Recreation

Buyer Agent % or $: 2.50

Information is deemed to be reliable, but is not guaranteed. © 2023 MLS and FBS. Prepared by Graham-Faupel-Mendenhall on Thursday, June 01, 2023 12:03 PM. The information on this sheet has been made available by the MLS and may not be the listing of the provider.

6835 E LITTLE SCHOOL Road, Kelly, WY 83011 22-2425 Residential Active $1,795,000
Non-Public: No Start Showing Date: House Style: Year Built: 1975 Last Major Remod: Main House Total Bedrooms: 4 Main House Baths-Full: 1 Main House Baths-3/4: 1 Main House BathsHalf: 0 Main House Total Baths: 2 Ownership: Single Family Main House 2nd Flr & Above SqFt: 0 Main House-Main Level SqFt: 1,184 Main House Garage Type: None Main House # Stalls: 0 Main House Garage SqFt: Main House-BG SqFt Finished: 1,184 Main House-BG SqFt Unfinished: Main House SqFt: 2,368 Guest House Bedrooms: 0 Guest House Baths: 0 Guest House Garage SqFt: 0 Guest House SqFt: 0 Overall Total Bedrooms: 4 Overall Total Baths: 2 Overall Garage SqFt: 0 Overall Livable SqFt: 2,368 Acres: 0.26 Lot Size: Horses Allowed: Yes # Horses Allowed: Common Name: County: Teton Area: 07 - N of Gros Ventre Jct Subdivision: Kelly Lot #: 30 Zoning: Single Family Flood Zone: Flood Class: Ann. HOA Fee $: 0 Taxes: 6,710.26 Tax Year: 2022 Latitude: 43.621773 Longitude: -110.627224
In-House
Exclusions:

Turn static files into dynamic content formats.

Create a flipbook
Issuu converts static files into: digital portfolios, online yearbooks, online catalogs, digital photo albums and more. Sign up and create your flipbook.