Architecture Portfolio

Page 1

GRADY O’NEILL Architectural Portfolio W

1

Contents.

2

ube Design C

Addition M 6-13 14-21 22-25 26-33 34-37 uiding studio B

useum
esearch 3
Studio R hinkle Project S
4
5

Research

6
7
Studio
8
9
10
11
12
13
Cube 14

Design

15
16
17
18
19
20
21

Shinkle

22

Project

23
24
25

Buiding

26
27
studio
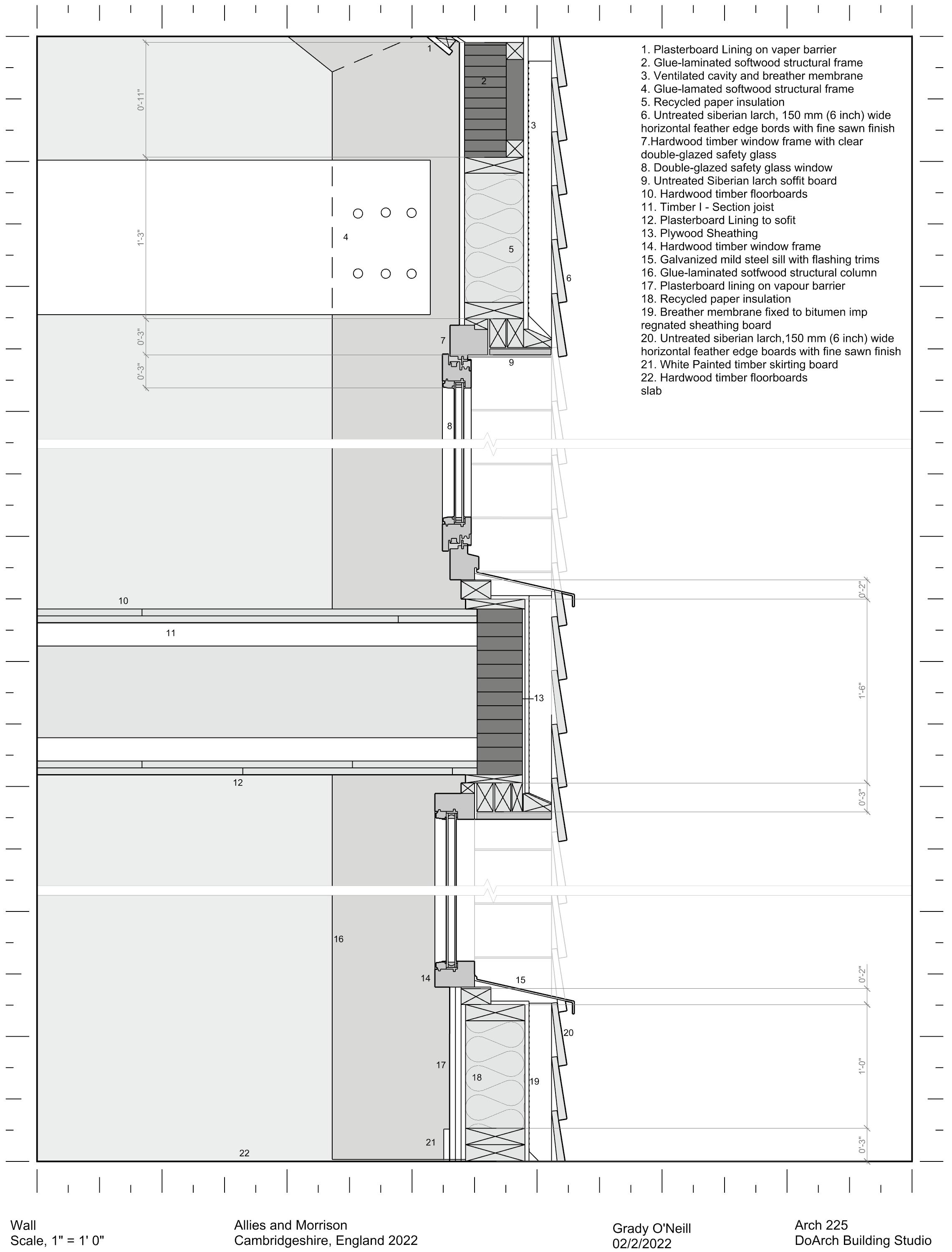
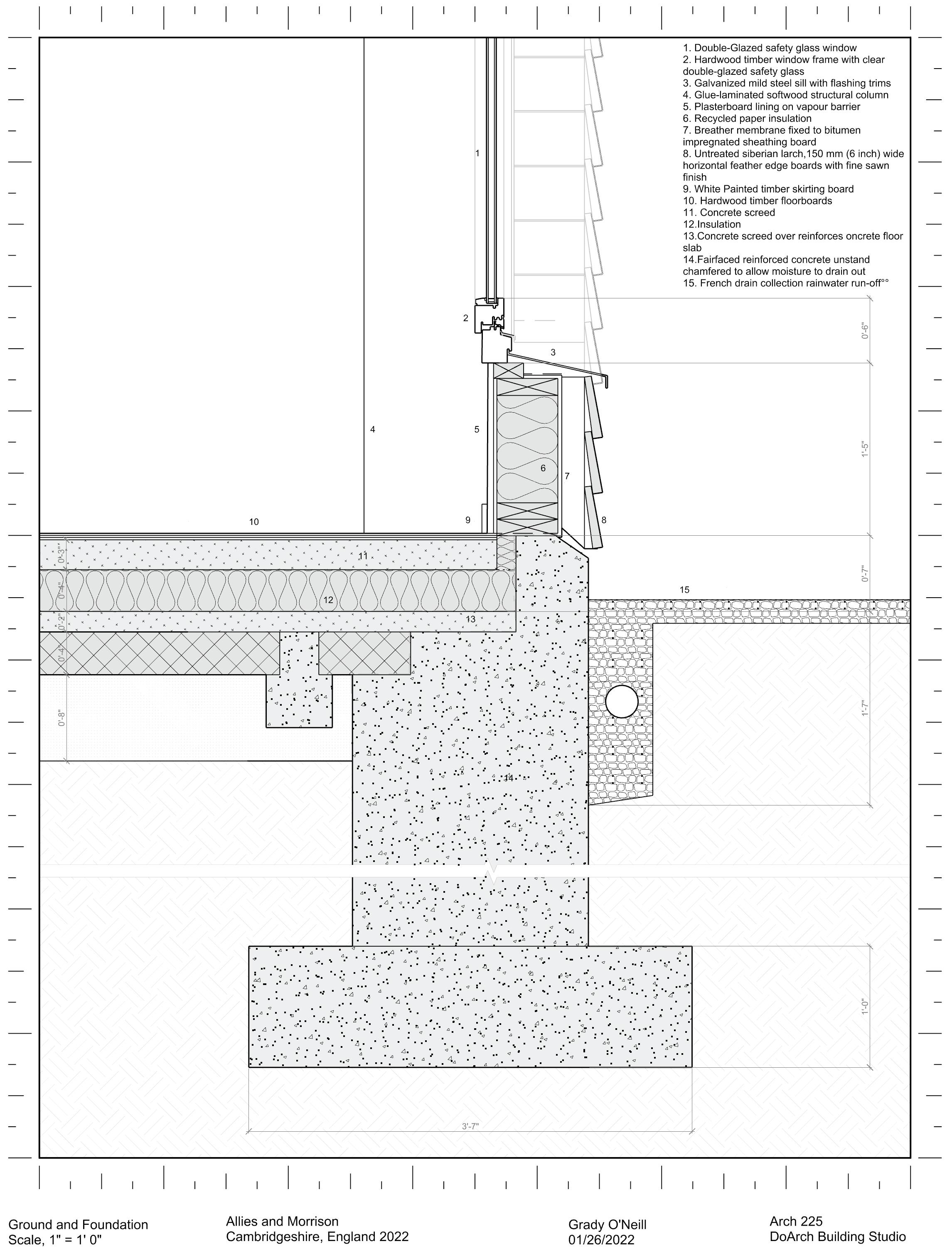
1 2 7 8 3 1 6 9 1. Wood Plank Shell 2. Exterior Light 3.Wooden Shutters 4. Aluminum Window Sill 3. Glass Panel 4. Vent 5. Window Frame 6. Concrete Slab 7.Grass 8. Wood Door Opening 10 4 5 Foundation Cut 28
29
1 2 7 8 3 1 6 9 1. Wood Plank Shell 2. Exterior Light 3.Wooden Shutters 4. Aluminum Window Sill 3. Glass Panel 4. Vent 5. Window Frame 6. Concrete Slab 7.Grass 8. Wood Door Opening 10 4 5 Roof Cut 30
31
32 1 2 7 8 3 1 6 9 1. Wood Plank Shell 2. Exterior Light 3.Wooden Shutters 4. Aluminum Window Sill 3. Glass Panel 4. Vent 5. Window Frame 6. Concrete Slab 7.Grass 8. Wood Door Opening 10 4 5 Wall Cut
33

Museum

34

Addition

35
Matt C, Alec B, Alec W, Grady O Design Sheet 02 Scale: 1/16" = 1'0" Top Roof First Floor Excisting Plan and Section 04/08/2022 16' 0" 21' 85' 6" 21' 0" 32' 64' 0" Storage 136' Matt C, Alec B, Alec W, Grady O Team 05 Design Sheet 02 Scale: 1/16" = 1'0" First Floor Excisting N S.03 Plan and Section 04/08/2022 21' 85' 6" 21' 0" 32' 64' 0" Storage Section 03 04/08/2022 Clearstory Construction: 2x10mm Double Glazing 03 02 04 05 12mm Air Cavity Concrete Support for Grating 6" Thermal Insulation Heating Pipes Flashing Dampproofing Reinforced Concrete Footing Matt C, Alec B, Alec W, Grady O Team 05 Design Sheet 03 Scale: 1/2" = 1'0" Design Posi�ons: stretches the length of the east wall, minimizing the campus to the museum, and from the parking lot. large glass curtainwall making the movement visible minimizing the structural effect given. The connec�on to the exis�ng museum along the allowing the gallery space con�nue into the new Section 03 04/08/2022 Clearstory Construction: 2x10mm Double Glazing 03 02 04 05 12mm Air Cavity Concrete Support for Grating Thermal Insulation Heating Pipes Flashing Dampproofing Reinforced Concrete Footing Matt C, Alec B, Alec W, Grady O Team 05 Design Sheet 03 Scale: 1/2" = 1'0" Design Posi�ons: stretches the length of the east wall, minimizing the campus to the museum, and from the parking lot. large glass curtainwall making the movement visible minimizing the structural effect given. The connec�on to the exis�ng museum along allowing the gallery space con�nue the new Matt C, Alec B, Alec W, Grady O Team 05 Images 04/08/2022 Design Sheet 04 Scale: 1/2" = 1'0" 36
13th STREET 9th AVE MEDERY AVE MEDERY AVE MEDERY AVE 11th STREET Matt C, Alec B, Alec W, Grady O Team 05 Section 03 04/07/2022 Design Sheet 03 Scale: 1/32" = 1'0" 37

Turn static files into dynamic content formats.

Create a flipbook
Issuu converts static files into: digital portfolios, online yearbooks, online catalogs, digital photo albums and more. Sign up and create your flipbook.