NWP Campus Master Plan

Page 1

CAMPUS MASTER PLAN

ACKNOWLEDGEMENTS

Northwestern Polytechnic acknowledges that our campuses are located on Treaty 8 territory, the ancestral and present-day home to many diverse First Nations, Métis, and Inuit people. We are grateful to work, live and learn on the traditional territory of Duncan’s First Nation, Horse Lake First Nation, and Sturgeon Lake Cree Nation, who are the original caretakers of this land.

We acknowledge the history of this land, and we are thankful for the opportunity to walk together in friendship, where we will encourage and promote positive change for present and future generations.

Karl Germann, (Acting) VP Corporate Services

Vanessa Sheane, Provost + VP Academic

Thomas Watts, Director, Facilities Maintenance and Operations

Stephanie Moore, Manager, Capital Facilities Maintenance and Operations

Megan Slifka, Registrar

Justin Kohlman, President + CEO

Ray Wolfe, Architect/ Partner-in-Charge

Dayna Wlasoff, Planner

Joylyn Teskey, Architect

LAND ACKNOWLEDGEMENT CONSULTING TEAM STEERING COMMITTEE EXECUTIVE TEAM

Justin Kohlman, President + CEO

Vanessa Sheane, Provost + VP Academic

Karl Germann, (Acting) VP Corporate Services

Sivagowry Lewis, Manager, Policy and Governance

Leonard Rodrigues, Architect/Planner

Rosie Hadzipetros, Junior Planner

i

LETTER FROM THE PRESIDENT

I am delighted to share with you an exciting development that will shape the future of Northwestern Polytechnic on both the Fairview and Grande Prairie campuses, ensuring we continue forward to meet the needs of our community and students as outlined in our strategic plan as a new polytechnic. In particular, we want to ensure we use our space to have students gather and work together, that we expand our high-demand programming space, and that NWP operates as sustainably as possible.

Aligning with current and future academic and programmatic needs, the 2023 Campus Master Plan represents a collective effort of our dedicated team, including leading architects, faculty and staff members, student representatives, and representatives of the regional communities that we serve. Together, we have analyzed our existing infrastructure, anticipated growth trends, and sought valuable input from various stakeholders to design a campus that truly reflects our institutional aspirations.

Key features of the Campus Master Plan include:

1. State-of-the-Art facilities: We recognize the importance of providing cutting-edge facilities that support interdisciplinary learning and research. The plan outlines the construction of modern classrooms, laboratories, and research centers equipped with advanced technologies and resources.

2. Enhanced Student Life: Our students are at the heart of our institution, and their holistic development is of paramount importance. The Campus Master Plan aims to create vibrant spaces for social interaction, extracurricular activities, and wellness programs. Student centers, recreational areas, and improved facilities will provide a supportive and engaging campus environment.

3. Sustainable Infrastructure: We are committed to environmental stewardship and sustainable practices. The plan integrates energyefficient systems, nodes, and sustainable designs reducing our ecological footprint and create a greener campus for generations to come.

4. Collaborative Spaces: Recognizing the importance of collaboration and innovation in the 21st-century educational landscape, the plan includes the creation of leading polytechnic classroom and labs, incubators, and co-working spaces. These areas will foster cross-disciplinary collaboration, encourage entrepreneurship, and facilitate industry partnerships.

5. Accessibility and Inclusivity: We believe in creating an inclusive campus that ensures equitable access for all members of our community. The Campus Master Plan incorporates accessible design principles, ensures compliance with disability regulations, and promotes a welcoming environment that celebrates diversity.

The implementation of the Campus Master Plan will be a phased process, carefully executed over the coming years. We understand that such an endeavor requires financial resources, collaboration, and the support of our entire community. We are actively seeking partnerships, grants, and philanthropic contributions to bring this vision to life.

I invite you to join us on this transformative journey as we shape the future of our institution. Together, we can create an environment that inspires excellence, fosters innovation, and prepares our students to thrive in a rapidly changing world.

Thank you for your continued dedication and commitment to our shared mission. Your support is vital in realizing the potential of our Campus Master Plan.

ii
Justin Kohlman, President + CEO
iv
Development Potential and Parcelling CONTENTS
Best Practices
Sustainability and Resilience
Equity, Diversity, Inclusion, and Accessibility
Space Management
CAMPUS STRUCTURE AND QUALITY .1 Process Overview
USING THE PLAN
INTRODUCTION
UTILIZATION AND SPACE REQUIREMENTS
Master Plan Goals and Objectives
The Planning Process
Alignment with the Strategic Plan
Engagement Events Summary
ENGAGEMENT
BACKGROUND
NWP and Surrounding Communities EXECUTIVE SUMMARY
SUMMARY OF RECOMMENDATIONS
The Need for a Campus Master Plan
Existing Space Types .2 Existing Student Spaces
A Living Document .1 Overview
Existing Image Map .3 Campus History .4 Campus Overview .5 Land Use and Zoning .6 Existing Building Conditions
Services and Infrastructure
Utilization and Optimization of Space
Administering and Monitoring the Plan
The “WeatherMap” - Campus Strategies
Creating a Vibrant Campus .3 A Master Plan Framework
Demographics
Policy Considerations
.4
.3
.4
.5
.6
5.0
7.0
APPENDICES 1.0
4.0
.3
.2
.4
.2
2.0
3.0
.1
6.0
.1
.1
.1
.1
.7
.3
.2
.2
.2
.2
.3

EXECUTIVE SUMMARY

Introduction

The Northwestern Polytechnic (NWP) Campus Master Plan lays out the long-term vision for future development and enhancement of the campuses over a span of 10-15 years. This is the Institution’s third Master Plan, and it comes with the need for an update after the recent designation of a Polytechnic. This plan will provide the Institution with a reference point to help guide decisions in the long term.

Northwestern Polytechnic campus space includes the Grande Prairie campus, the location of the Douglas Cardinal main building, an important Canadian architectural landmark, the Fairview campus, originally the Fairview College, and the National Bee Diagnostic Centre in Beaverlodge. In 2021, the nursing program moved into leased space in the Health Education Centre at the Grande Prairie Regional Hospital.

Recommendations Engagement

Over the course of the campus master planning process, extensive engagement occurred with the campus community and externals from the surrounding communities. The conversations and feedback helped to inform the plan. All engagement activities were relationship- driven utilizing visioning sessions, focus groups with internal and external stakeholders, a student survey, and open houses to review the development of the plan.

Campus Review

A review of the campuses has been completed to determine the baseline condition of both the Grande Prairie and Fairview campus and identifies future opportunities, including:

• Campus Structure and Quality

• Best Practices

• Phasing and Strategies

The results of the planning process provide NWP with a series of recommendations around best practices and using the Campus Master Plan as a living document, including recommendations for internal management of the plan.

1

Document Structure

The plan itself is organized into 7 sections:

1.0 Introduction outlines the need for a Campus Master Plan, guiding principles and alignment with the Strategic Plan.

2.0 Engagement provides an overview of the engagement and consultation process.

3.0 Background outlines the Institution’s history, provides context on the community and region, and includes an overview of the campuses.

4.0 Utilization and Space Requirements provides a baseline understanding of the current conditions of NWP’s buildings and space.

5.0 Campus Structure and Quality provides an overview of existing structure of the campus and outlines opportunities to improve structure and quality.

6.0 Recommendations summarizes the recommendations for the Institution including phasing and priorities, best practices around space, sustainability and resilience, and equity, diversity, inclusion, and accessibility.

7.0 Implementation provides an overview on how to administer and monitor the living document and suggests policies to consider.

2

1.0 INTRODUCTION

4

1.1 THE NEED FOR A CAMPUS MASTER PLAN

The Northwestern Polytechnic (NWP) Campus Master Plan is an update to the Institution’s long-term plan with a focus on both the Grande Prairie and Fairview campuses. The last plan was completed in 2018, and due to the recent transition from a Regional College to a Polytechnic, an update to the Campus Master Plan is needed to reflect the new goals and mandate of the institution. The Campus Master Plan sets forth a strategic direction to guide decision-making in the short-, medium-, and longterm planning horizon. The plan considers the existing physical resources of the campuses, the key challenges facing the institution, as well as present and future space needs.

Informed by research, growth projections, and utilization data, the Plan will establish a comprehensive vision for future development and planning. Aligning with NWP’s strategic and academic plans, the Plan update identified opportunities for strategic interventions, established capital planning priorities, and create a framework to guide future campus development.

5
Research lab, NWP National Bee Diagnostic Centre Atrium, Fairview Campus Teaching space, Grande Prairie Regional Hospital Cardinal building, Grande Prairie Campus

1.2 THE PLANNING PROCESS

The development of the planning process was structured in four phases:

Framework - This phase consisted of set up for the project, including lines of communication, schedules, scope confirmation and other project management items.

Discovery – This phase allowed the project team to collect information and learn as much as possible about Northwestern Polytechnic. This included background research, review of strategic documents, consultations with stakeholders (internal and external).

Exploration – This phase was for exploration of the data gathered and allowed for the project team to assemble possible solutions and strategies. These strategies were compared so the optimum path forward could be identified.

Recommendations – The results of the previous phases were gathered and formed the recommendations for moving forward.

6
1.0 Introduction
Open House Visioning Session Focus Group Meetings

1.3 MASTER PLAN GOALS AND OBJECTIVES

The Campus Master Plan outlines the goals and objectives for the Plan. The vision will help to inspire and guide decision making based on the values of Northwestern Polytechnic.

There are three guiding principles for the Campus Master Plan that provided a foundation for the design and recommendations that will guide the development of the campuses.

The establishment of guiding principles is beneficial in the planning process to help with key decision making. During the visioning session with senior leadership, three themes emerged and formed the basis of the principles.

7

Bold, Hard Questions Welcome Priority One: Students Long-term Sustainability

First and foremost, this planning exercise welcomes bold, hard questions. While these questions will be asked with heart and the results gathered with empathy, the plan will be driven by the vision of an Entrepreneurial Polytechnic. In developing the Master Plan, the project will engage with Students, industry, staff, greater communities of Grande Prairie and Fairview to ensure a wide variety of voices will be heard.

The community of people who learn, work, live and play at NWP are its heart. While the campus welcomes every person, and the Master Plan will be rooted in their voices, decisions will be made with students in mind first. Following the polytechnic vision, Industry, staff, and the community will also be considered in turn.

To optimize the student life, energy and vitality should be sought through building a critical mass of learners to create the best learning experience possible.

The Master Plan will also emphasize welcoming all people to campus, by improving accessibility and inclusion through physical improvements such as elevators, washrooms and improved circulation, and improved navigation and wayfinding.

To ensure the viability and vibrance of NWP in the long term, financial and environmental factors should be key principles. Data-driven decision making is key. Considering divestment in underutilized or low facility condition space will enable future investment and support building critical mass, which will increase utilization and space optimization. To optimize space, multiuse and flexible space planning should maximize long term use while reducing customization and renovation.

Environmental sustainability is enhanced by reducing the total footprint of campus infrastructure and improving building systems in new and existing spaces. Both campuses will be examined and balanced in the Master Plan.

8 1.0 Introduction

1.4 ALIGNMENT WITH THE STRATEGIC PLAN

The Campus Master Plan is aligned with other key Northwestern Polytechnic plans, including the new Strategic Plan. NWP’s strategic plan sets goals for 1-, 3-, 5-, and 10- years.

Strategic Plan Vision: To become the most entrepreneurial Polytechnic in Canada by 2034.

2 Top Employer CEE: Create a Centre of Entrepreneurial Excellence

1

One of the strategic plan outcomes is to become one of the top 75 employers in Alberta. Stakeholders identified a desire to collaborate and interact both within and across units. Collaboration and hang out space for faculty and staff provide opportunities for cross-pollination and informal conversations and connections to occur. Co-locating units improves long term flexibility as groups grow and shrink and provides further opportunities for interaction and collaboration.

The Centre for Entrepreneurial Excellence

(CEE) is envisioned as a campus hub, bringing the community and industry to NWP. The CEE space has not been defined. Stakeholders identified potential space types that would support connections to industry and entrepreneurs.

3 Entrepreneurial Education

Integrate entrepreneurial education into existing programs through space for experiential learning, high flex and better access between industry and students. A goal of the Master Plan is to allow NWP students and staff to “show their work.”

9

4 5 6 Enrollment Student Life Physical Infrastructure Utilization

Increasing enrollment overall will drive delivering polytechnic education to the maximum number. Adding 500-600international students to NWP is key solution defined in the strategic plan. By considering the kinds of spaces required to support international students, who often live on campus, both the unique characteristics of that student population are addressed as well as the needs of students overall.

Improve student life opportunities for a growing number of domestic and international students. By consolidating activities and services, a critical mass of people adds energy to campus life. With students and programs moving to the hospital, there are less people using the campus amenities.

Increasing the utilization rate of existing classroom and laboratory space, targeting up to 80% utilization in the long term, improves the use and allocation of space. Consolidating use allows for underutilized space to be repurposed or removed from the inventory. Divesting from space that requires a high degree of maintenance or repair, or is ill-suited to current or future needs, provides an opportunity to invest in spaces that are better suited (by quality, size, or location) to the future needs of NWP.

Exploring new technology and delivery methods support improved classroom flexibility and utilization. At a campus level, prioritizing spaces for collaboration and group work and study reinforces the polytechnic mandate.

10 1.0 Introduction

2.0 ENGAGEMENT

12

2.1 PROCESS OVERVIEW

Engagement is an integral part to any Master Plan in order to provide and receive feedback. The Master Plan process saw the engagement with the Northwestern Polytechnic community, as well as various external stakeholders from Grande Prairie and Fairview.

Engagement sessions were held around key milestones in the development of the Campus Master Plan. Events took place in various formats including interactive workshops, informal interviews, an online student survey, and open houses. Feedback informed the evolution of the plan, confirming what is currently working, community perceptions and defining staff and student needs.

13

2.2 ENGAGEMENT EVENTS SUMMARY

2.2.1 VISIONING SESSION

A Visioning Session with senior leadership occurred in September 2022 to determine the overall direction for the Master Plan. Through the Visioning Session, three overall goals for the Master Plan emerged: to allow the people of NWP to “show their work”, to come together, and to seek innovative space solutions supporting flexibility and optimization. These goals for the Master Plan provide clear connections between NWP’s strategic goals and the space it occupies. The themes and findings from the Visioning Session were then synthesized and 3 key principles were derived to guide decisionmaking:

1. Bold, hard questions welcome

2. Priority one: students

3. Long-term sustainability

14
2.0 Engagement

2.2.2 STAKEHOLDER MEETINGS

Following the Visioning Session, stakeholder interviews were conducted through 26 focus group sessions with over 160 internal and external stakeholders. These meetings with stakeholders (internal and external) provided insight into a series of issues, concerns, and potential opportunities across NWP’s campuses. They also ensured that the draft vision and principles accurately reflected the community’s aspirations for the institution. Stakeholders were asked a series of questions to understand how NWP’s space can be better used to achieve the goals set out in the Strategic Plan and the institution’s connection to community. The consultation methods for the meetings were adjusted on the group size and makeup, including interviews, written answers to prompts on shared note paper allowing for agreement and comment on other’s thoughts (often called a gallery walk), and site tours. External stakeholders met as small groups and were led through a series of questions.

Feedback gathered included many of the themes raised during the visioning and background project meetings, including the notion of consolidating Trades at Grande Prairie from the Trades building to the L and M buildings, examining classroom utilization, and the desire to collaborate as a polytechnic community.

The stakeholder conversations were collected and reported based on the six pillars defined in the NWP strategic plan.

See Appendix B for detailed stakeholder meeting results.

15

2.2.3 SURVEY

NWP Student Association administered an online survey in January 2023 that allowed students to provide feedback on what is currently working and what needs to be improved regarding student space on campus. A summary of the survey results have been provided here and indicated the following (See Appendix C for full Survey Results):

• The areas that students felt “say NWP” the most include the theatre concourse, cafeteria/ Pillars, and the learning commons. The Student’s Association/ Howlers/ Notley Square, the fitness area, and the whole campus were also identified as spaces that “say NWP.” A significant number of commenters also said that there was no space on campus that reflected NWP.

• Students had several preferred locations to hang out on campus. The learning commons and theatre concourse were the most popular, followed by academic space (including HEC) and Pillars/ cafeteria.

16 2.0 Engagement

• The kinds of spaces that are missing include individual and group study space and hang out space. Students wanted to have better access to food, power/ heat, activity space and outdoor space.

• Students were most interested in seeing natural light, comfort, power and quiet in student spaces.

17

2.2.4 OPEN HOUSES (TOWNHALLS)

Open houses were held in February 2023 at both campuses. Eighty-seven people signed into the open houses. Many of the people interviewed in the stakeholder meetings also attended the open houses and commented that they found their feedback included in the recommendations.

Specific feedback included:

• Concern surrounding the operational implications of a collaborative office environment including confidentiality, heads down requirements,

• A desire for increased access and utilization of green space, particularly in Grande Prairie,

• Thoughts on student housing on both campuses, including adding indigenous family housing, allowing student pets and on improving building conditions in some buildings,

• Considerations for relocating office suites to improve acoustics, adjacencies to other units,

• Improving accessibility and equity through improved ramping, gender neutral and accessible washrooms

• Offering the same opportunities in Fairview as on the Grande Prairie campus.

18
2.0 Engagement

3.0 BACKGROUND

20

3.1 NWP AND SURROUNDING COMMUNITIES

3.1.1 OVERVIEW

Northwestern has property holdings in three communities in northern Alberta. The Institution has two academic campuses located in Grande Prairie and Fairview (460 km and 550 km northwest from Edmonton, respectively), and a research facility in Beaverlodge (40 km west of Grande Prairie). These campuses are in the Peace Country of Northern Alberta, the northernmost farming region in North America. As the largest city north of Edmonton, Grande Prairie houses Northwestern’s Grande Prairie campus, offering academic and trades programming to students. The Grande Prairie campus is situated at the northeast intersection of 100 Avenue and 108 Street and is surrounded by commercial uses to the west and south, single family residential to the east, and Bear Creek Reservoir to the north.

21
Location of Grande Prairie, Fairview, and Beaverlodge in Alberta

Located 115 km north of the Grande Prairie via Highway 2 is the Fairview campus which houses most of the institution’s specialty programming, including agriculture, animal health, motorcycle, and automotive programs. The Fairview campus is situated at the southeast intersection of 100 Avenue and Highway 2 and is surrounded by commercial uses to the north and west, farmland to the east, and industrial uses to the south.

NWP also has a research facility in Beaverlodge that houses its National Bee Diagnostic Centre.

22
3.0 Background
Location of Grande Prairie, Beaverlodge, and Fairview in relation to County of Grande Prairie

In the City of Grande Prairie, the Institution also owns land at 68 Avenue and 108 street (the Southlands) that is currently vacant, as well as occupies teaching space in the newly constructed Grande Prairie Regional Hospital northwest of the campus, in addition to the Grande Prairie Campus.

23
Location of NWP Land in City of Grande Prairie Location of Fairview Campus in Town of Fairview

3.1.2 OPEN SPACE

Muskoseepi Park

The Muskoseepi Park is Grande Prairie’s central green space. The Park Master Plan creates a setting for multiple experiences that becomes an accessible destination for the public.

Northwestern Polytechnic campus overlooks the Reservoir wetland area but does not offer a strong connection with it. Opportunities present themselves to better connect with the park and encourage more interaction between the students and the area. The architecture creates interesting views in the surrounding area and offers a pleasant backdrop across the reservoir.

24 3.0 Background

3.1.3 TRANSIT

Grande Prairie has recently introduced redesigned routes and schedules to enhance connectivity and provide better service within the city. Highlights of this new system relevant to NWP are service to Grande Prairie Regional Hospital and two-way service along 104 Avenue linking downtown, NWP and Westgate area.

The main transit stop at NWP is located near the main entrance of the Cardinal building and includes a new bus shelter. Additional stops are adjacent to the existing trades building.

25
Transit to and from Grande Prairie campus Transit to and from Grande Prairie Regional Hospital

3.1.4 PARKING

Grande Prairie Fairview

There are a total of 1,556 stalls on the Grande Prairie campus, 1,407 stalls that are dedicated lots for parking in. Lot A is observed as the preferred lot to park in, followed by Lots B and C due to proximity to entrances. All parking is surface parking.

There are a total of 503 stalls on the Fairview campus, plus an additional 29 stalls at the Community Centre. Lot 5 currently does not allow parking, and no parking count has been included for the area around the Hawker Pavilion. All parking is surface parking.

26
Background
3.0

3.1.5 AMENITIES

The amenity spaces that NWP offers foster social connections by providing the students and community with spaces to gather and socialize. Spaces such as the theatre and gym which are heavily used by the public help to create a sense of community and belonging. Providing highquality amenities can be a key factor in attracting and retaining new members of the community.

Other amenity spaces on the Grande Prairie campus include the daycare, recital hall, and health clinic.

The Fairview campus is located adjacent to the Community Centre and Hawker Pavilion, which was once operated by the Fairview campus. The community heavily uses these spaces and remains an important piece connecting the students to the community. The cafeteria is another service located within the administrative building that is currently used by students, staff, and the community.

27
28 3.0 Background

3.2 DEMOGRAPHICS

Regional Demographics

Population projections for Alberta under a medium growth model predict that the number of 18–24-year-olds will increase steadily by an average rate of 1% per year to as many as 17,235 individuals by 2046. This projected growth will be distributed across the province, with some municipalities and regions absorbing more growth than others.

29
Alberta Population Projections (Medium Growth, 18-24 Years Old) Grande Prairie Proportion of Population between 15-29 Years Old Fairview Proportion of Population between 15-29 Years Old

Grande Prairie has seen an increase in population, growing by 1.5% from 2016 to 2021. However, Fairview’s population has been declining from 2016 to 2021 the population decreased by 6%.

Additionally, the populations of Grande Prairie and Fairview are aging, as indicated by an increasing median age as well as a decreasing proportion of 15- to 29-year-olds in both municipalities.

30
Grande Prairie Population
3.0 Background
Fairview Population Grande Prairie Median Age Fairview Median Age

In both municipalities, the largest proportion of the population is employed in the sales and service industry, followed by trades, transport, and equipment operators.

Grande Prairie Labour Force by Occupation Fairview Labour Force by Occupation

31

Enrollment Demographics

Given these trends, this Campus Master Plan will provide a framework for Northwestern to accommodate this projected growth while ensuring the quality of the campus experience.

Northwestern’s student population has been increasing after a few years of decline, increasing to 1,210.651 FLEs (Full-time Load Equivalent) for the 2021/2022 academic year from 1,155.06 the year before. Of the 1,210.651 FLEs, 65% were female and 35% were male. In terms of age distribution, the largest proportion of students by age is 18–24-year-olds, consistently comprising over 68% of the student population.

The proportion of international students has been steadily increasing in recent years, comprising 9.6% of the population for 2021/2022, up from 4.9% for 2020/2021 and 2.5% for 2019/2020.

The indigenous student population has also increased from the 2020/2021 year, from 122.92 FLEs to 148.38 FLEs for the 2021/2022 academic year.

32
Age Groupings (FLE) Indigenous Students (FLE) International Students (FLE)
3.0 Background

3.3 CAMPUS HISTORY

The following timeline outlines some of the critical dates in the development of Northwestern Polytechnic’s campuses.

3.0 Background

3.4 CAMPUS OVERVIEW

Grande Prairie Campus, Grande Prairie

Tenure: Owned

Programs: Academic upgrading, Trades (Electrical, Millwright, Instrument control, Parts and materials, Welding, and Power engineering), Business administration, Computer systems, Education, Health care aide, Kinesiology, Music, Office administration, Open studies, Personal training, Arts, Commerce, Computing science, Education, Engineering, Science, and Sport and tourism

Facilities: Theatre, fitness centre, daycare, bookstore, learning commons, health centre, and student housing

35

Fairview Campus, Fairview

Tenure: Owned

Programs: Motorcycle mechanic, Harley Davidson, Animal health technology, Automotive, ThinkBIG, Construction, Plumbing, Welding, and Health care aide

Facilities: Cafeteria, computer labs, theatre, student housing, residences, several mechanical shops, and a working farm

36
3.0 Background

Grande Prairie Regional Hospital, Grande Prairie

Tenure: Leased (30 to 50 years)

Programs: Nursing, Health care aide

Facilities: Classrooms, nursing labs, high fidelity simulation space, administrative and meeting space

37

NWP National Bee Diagnostic Centre, Beaverlodge

Tenure: Land is Leased, Building is Owned

Programs: Applied Research, Outreach, and Innovation Services

Facilities: Level 2 Containment Lab, 5-room molecular site

38
3.0 Background

3.5 LAND USE AND ZONING

Grande Prairie Campus

Northwestern’s Grande Prairie campus is zoned as Public Service District (PS), as per the City of Grande Prairie Land Use Bylaw 1260. Permitted land uses in the PS zone include accessory building or structure, accessory use, childcare facility, community outreach facility, community recreation facility, community service facility, education (private), education (public), essential public service, government service, park, parking lot of building, religious assembly, residential care facility, small wind energy systems, and solar collector. The minimum setbacks for this zone are: 6.1m front yard, 3.0 side yard, and 7.6m rear yard. Buildings within this zone may not exceed a maximum height of 15m. Additional approvals for developments in this zone including the site plan, relationship between buildings, structures and open space, the treatment of buildings, the provision, and architecture of landscaped open space, and the parking layout are at the discretion of the Development Authority. Parking provisions for this zone for College/ University uses require a minimum of 1 stall for every 10 students plus 1.0 stalls for 5.0 m2 of gymnasium and/or public assembly area.

39

Fairview Campus

As per the Town of Fairview Land Use Bylaw 1064, Northwestern’s Fairview campus is zoned as Community District (COM). The purpose of this zone is to provide recreational, educational, and community service developments for the community. Permitted uses in this zone include accessory buildings or uses, arenas, community or cultural facilities, parks or playgrounds, private religious institutions, public uses, indoor recreation facilities, outdoor recreation facilities, religious use facilities, and schools. Dormitory residences, WECS, and parking facilities are listed as discretionary uses. Additionally, the design, setting, construction, architectural appearance, and yard dimensions of any building or structure, accessory building, signs, and landscaping must be to the satisfaction of the Development Officer and/or Municipal Planning Commission.

40 3.0 Background

Grande Prairie Regional Hospital Health Land Use and Zoning

The hospital lands northwest of the Grande Prairie Campus has been rezoned from Urban Reserve (UR) to Site Specific Direct Control District (DC-5). This rezoning was to allow for the development of the Grande Prairie Regional Hospital and associated Grande Prairie Regional College. All of the permitted and discretionary uses contained in the Public Service District may be approved at the discretion of the Development Authority in this zone.

41

Southlands Zoning

Northwestern also owns land on the southeast corner of 68 Avenue and 108 Street in Grande Prairie. The land is surrounded by residential uses to the west, green space and undeveloped land to the south and, commercial uses to the east, and community uses to the north. The parcel of land itself is zoned as Arterial Commercial (CA). This zone allows for a variety of commercial uses that are adjacent to High Visibility Corridors as identified by the City of Grande Prairie. The minimum setbacks for this zone are: 6.1m front yard and rear yard, and 1.5m on one side, and 6.0m on the other. Buildings within this zone may not exceed a maximum height of 12 storeys for hotels, 6 storeys for commercial buildings, and 6 storeys for all other sole commercial uses. Any developments on this land are limited to a maximum site coverage of 60%.

42 3.0 Background

3.6 EXISTING BUILDING CONDITIONS

Overview

The plans illustrate the building condition on both the Grande Prairie and Fairview campus. These have been calculated from the Facility Condition Assessments (FCA). The objective of the FCA’s is to identify, based on current observed conditions, deficiencies, and potential lifecycle replacements, over a span of several years.

Buildings listed in very poor condition are candidates for replacement or removal. In the case of NWP’s buildings, the range is excellent to average condition. While buildings may have low condition ratings, they are still capable of supporting the institution in its daily activities. Buildings with a lower condition rating should be prioritized in the long term for replacement or renovations.

Grande Prairie Campus

Most buildings on the Grande Prairie campus are in excellent to average condition, except for the Health Clinic, Carpentry Shop, and Art Studios. The Health Clinic is still capable of running out of this location, in the short- to medium term.

The deferred maintenance costs for the Grande Prairie campus are ~$12.1 million with a 5-year outlook of ~$42.4 million.

43

Fairview Campus

The building conditions on the Fairview Campus are in a similar condition to Grande Prairie, excellent to average condition. However, modernization of the spaces should be reviewed and prioritized. The farm shop is the only building that is shown as average to poor condition. During stakeholder sessions, the Dunvegan Hall had been identified as a building that is in poor condition and an outdated residence model. Although the FCAs place it in good condition, it has never been renovated and is quite outdated.

The underground infrastructure is in need of a significant investment due to its age. Cost estimates in 2020 suggest over $10 million is needed in the next 10 years. A partial infrastructure failure occurred in 2020 and in 2023.

The deferred maintenance costs for the Fairview campus are ~$7.1 million with a 5-year outlook of ~$30.3 million.

44
3.0 Background

3.7 SERVICES AND INFRASTRUCTURE

Grande Prairie Campus

Services were reviewed, covering power, water, sanitary, gas, and drainage/ stormwater.

The layout of lines and services on the Grande Prairie campus do not constitute any constraints on the proposed development found within the plan. A sanitary line with a designated ROW can be found running on a diagonal through Lot C. The other ROW is an abandoned watermain and is no longer in service, so it does not cause any constraints on campus development.

45
46 3.0 Background

Fairview Campus

Services were reviewed, covering power, water, sanitary, gas, and drainage/ stormwater.

The services and infrastructure on the Fairview campus do not offer any major constraints for proposed plans. In recent years, the natural gas lines have been replaced, as well as some electrical service upgrades.

47
48 3.0 Background

4.0 UTILIZATION AND SPACE REQUIREMENTS

50

4.1 EXISTING SPACE TYPES

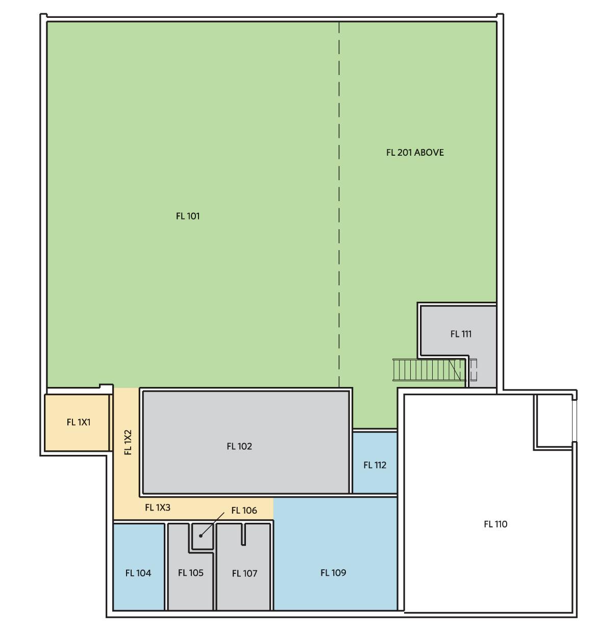
Northwestern Polytechnic has nearly 120,000 square metres of space across the Grande Prairie, Fairview and Beaverlodge campuses. Current types of space across the campuses have been identified and mapped to understand the campus space allocation.

Cardinal Building - Level 1

51
52 4.0 Utilization and Space Requirements
Cardinal Building - Level 2
53
Cardinal Building - Level 3
54 4.0 Utilization and Space Requirements
Cardinal Building - Level 4

Trades Building Space Types

Trades Modular Space Types

55

Health Education Centre Space Types - Level 2

Health Education Centre Space Types - Level 3

56 4.0
Utilization and Space Requirements
57
Fairview Campus Space Types - Administration Building, Trades Instructional Building

4.0

Fairview Campus Space Types - Mechanics I

Fairview Campus Space Types - Mechanics II

Fairview Campus Space Types - Mechanics III

Fairview Campus Space Types - Mechanics IV

58
Utilization and Space Requirements

Fairview Campus Space Types - Mechanics V

Fairview Campus Space Types - Mechanics VI

Fairview Campus Space Types - Mechanics VII

Fairview Campus Space Types - Hawker Pavilion

59

Fairview Campus Space Types - Animal Sciences

4.0 Utilization and Space Requirements

Fairview Campus Space Types - Gymnasium

Fairview Campus Space Types - Library

60

Fairview Campus Space Types - Trev Deeley Building

Fairview Campus Space Types - Automotive, Heavy Duty, Plumber and Parts

Fairview Campus Space Types - Notley Square

61
62 Fairview Campus Space Types - Plant Sciences Fairview Campus Space TypesCampus Services 4.0 Utilization and Space Requirements

Fairview Campus Farm Pens - Academic Use

63

4.0 Utilization and Space Requirements

Beaverlodge National Bee Diagnostic Centre Space Types

64

4.2 EXISTING STUDENT SPACES

The following diagrams show where all existing student spaces (formal and informal) are located throughout the Cardinal building.

As part of the survey, students noted that the amount of individual and group study spaces are deficient, as well as hang out space.

Cardinal Building Student Space - Level 1

65
66 Cardinal
4.0
Building Student Space - Level 2
Utilization and Space Requirements
67
Cardinal Building Student Space - Level 3

4.0 Utilization and Space Requirements

Fairview Campus Student Space

The following diagram shows where all existing student spaces (formal and informal) are located throughout the Fairview campus.

68

4.3 UTILIZATION AND OPTIMIZATION OF SPACE

4.3.1 CLASSROOM AND LAB

UTILIZATION

Key to the long-term development of campus is understanding how existing spaces are being used.

Bookable classrooms and laboratories utilization were reviewed to inform space optimization, both by understanding the utilization of both rooms and student seats to match room size to demand. Space optimization based on the intensity of actual use can impact both bookable spaces, such as classrooms and meeting rooms, and usable spaces, such as change rooms and collaboration spaces.

Efficient room utilization at an institutional level is targeted at 80%. This utilization rate supports efficient scheduling while also providing space for ad hoc or occasional use. Utilization below 70% indicates that there is too much classroom and laboratory stock.

Seat utilization within a room is targeted at 80%. Unlike rooms, seats cannot be booked on an ad hoc basis. Having a high utilization of seats indicates a good fit between section sizes and the required space for classrooms. Optimized scheduling matches both room size and room count. Combining classroom utilization with seat utilization provides a quick way to review overall, or real utilization. The Government of Alberta targets 64% real utilization.

Grande Prairie classroom and seat utilization falls short of Government of Alberta targets. Based on scheduling information provided for September 2021 to April 2022, the campus sees an average 57% classroom utilization and 50% seat utilization based on classroom capacity, combining for a real utilization of 26%. While this time frame is within the COVID pandemic, this utilization is within typical margins for this campus.

Fairview campus classroom and laboratory utilization is not recorded as classrooms and laboratories have been dedicated to programs. While this is a practice seen in many smaller post-secondary institutions, it does not allow for analysis or for increasing programming requirements in other academic areas. Recognizing this requirement, NWP has added a Health Care Aide laboratory and classroom. While the lab is dedicated to the program, the classroom has been developed as a general access and video conference-capable classroom.

After completing the Master Plan, Thinkspace will complete a laboratory utilization and optimization study. This study will include room and seat utilization reviews and recommendations. The study will also consider potential classroom renovations or consolidations to match academic space and class sizes.

69
70 4.0 Utilization and Space Requirements
Cardinal Building - Level 1
71
Cardinal Building - Level 2
72 4.0 Utilization and Space Requirements
Cardinal Building - Level 3

4.3.2 CARDINAL BUILDING GYMNASIUM UTILIZATION

The gymnasium and fitness spaces on the Cardinal Campus are used for academic programming, athletics, recreation, and community access. While academic courses use all of the fitness facilities on campus and represent approximately 23% of the booking hours in the gymnasium, the heaviest users are the community and athletics programming.

73

4.3.3 CARDINAL BUILDING LEARNING COMMONS UTILIZATION

The learning commons have extended capacity due to long library hours, making the utilization look deceptively low. During peak academic hours, between 11:00 and 2:00 PM, 40-50% of the rooms are booked. On average, 265 students access the learning commons every week day and 49 students every weekend.

74
4.0 Utilization and Space Requirements

4.3.4 HEALTH EDUCATION CENTRE UTILIZATION

Health Education Centre (HEC) programming was coming on line during the time analyzed. As a result, the hours of utilization are lower than anticipated. Simulation labs typically have lower utilization rates than other lab types due to both the unique programmatic requirements supported by the labs and the set up and tear down time required to support learning. With additional simulations and improved technician availability, it is anticipated that utilization will increase in the future. When not used for labs, the debriefing rooms are being used as additional study space.

75
76 4.0 Utilization and Space Requirements

5.0 CAMPUS STRUCTURE AND QUALITY

78

5.1 EXISTING IMAGE MAP

Grande Prairie Campus

Northwestern’s Grande Prairie campus is fairly legible, with two main entrances to the campus off of 100 Avenue and 108 Street that are connected by a road that bisects the campus. This road can cause some confusion depending on which way you enter the campus; however, the Cardinal building is a major landmark which helps with wayfinding on campus. The main entrance to the Cardinal building is not well-defined, making it difficult for visitors and new students to orient themselves. The other buildings on the campus are distributed on the north side of the main road that divides the campus; Student housing lines the east perimeter along 106 Street and 104 Avenue, while the rest of the buildings are distributed across the campus, connected by a series of paths and parking areas.

79

Fairview Campus

The Fairview campus offers numerous possible entryways into campus which allows for easy access and circulation through the campus. However, none of these entryways are defined as a main entrance, making it difficult for visitors and new students to know where to go on campus. Student housing is situated on the southern half of the campus and residences on the northern side of 98 Avenue. The remainder of the buildings are distributed north of the student housing, south of 98 Avenue, and east of 111 Street.

80
5.0 Campus Structure and Quality

5.2 CREATING A VIBRANT CAMPUS

5.2.2 FRAMEWORK 5.2.1 OVERVIEW

The key to vibrancy and spatial success of a campus is done by connecting components of paths, nodes, landmarks, edges, and districts, and to ensure that those connections embody significant reference to the campus culture and surrounding community. This can be achieved by:

• Designing paths to connect different areas of the campus in a logical and efficient way

• Provide clear signage and wayfinding to help students and visitors navigate the campus

• Place nodes in strategic areas to promote interaction of students

• Provide seating, shade and other amenities to the space comfortable and inviting

• Highlight landmarks and make them easily recognizable to help navigate the campus

• Provide welcoming and inviting entrances

The planning analysis completed in this Campus Master Plan is based on the Massachusetts Institute of Technology research from the 1960s. That research continues today and focuses on how people understand space. That understanding is embedded in the way people interpret their spatial surroundings. They structure that understanding as an image that helps organize the persons understanding of where they are and how to navigate to other locations. The value of the research has been giving insight into how that process works and what key features of the built world used to create that image.

The key features are paths, nodes, landmarks, edges, and districts. There all have specific definitions.

These elements define urban structure from their point of view of how people make sense of their environment. That understanding is never a map that exactly reflects the actual physical structure. Instead, it is a mental map representing an individual’s sense of the elements are important to them and how they relate to one another. That sense of the relationships is key to understanding the difference between physical locations that are clearly understood and legible versus locations that are confusing and disjointed. The relationships between these elements of the path, node, landmark, edges, and districts define legibility or confusion. Legible places are normatively better than illegible ones and are perceived as such.

81

Paths

These are linear lines of movement that are used primarily to travel from one location to another.

Nodes

Nodes are areas of intense activity that feel a bit like entering a room.

Landmarks

Landmarks are elements that can be viewed at varying distances and can act as anchor locations. Landmarks can be identified at different scales.

Edges

Edges are physical assemblies that create a wall. This wall might sometimes not allow movement across the edge. Edges can also be permeable.

5.0 Campus Structure and Quality

Districts

Districts are areas of a city (or campus) comprised of similar structures and seem like a contained and almost homogeneous pocket of the population.

82

5.2.3 APPROACH

To achieve the recommendations outlined on the previous page, the approach to the plan is somewhat like that of city planning. In fact, many campuses are very much cities in a more contained scale. The constituent parts of what creates the mapping of space were described above as spatial elements. The combination of elements: paths, nodes, landmarks, edges, and districts all combine to provide a strategy for an overall campus structure.

Spatial Legibility

The simple understanding of campus organization

Sense of Arrival

Entry points onto campus will be designed to serve as gateways, which will welcome people onto campus. Wayfinding elements such as public art, signage, and lighting features will articulate NWP’s identity to those arriving on campus.

Unifying Elements

The use of signage, landscape features, and/ or public art should be used strategically throughout campus as an element of wayfinding.

Access Connections

Fit

The measure of how well the spatial organization of the campus reflects its customary uses.

Control

Efficiency

Provide continuous pedestrian pathways and establish highly viable crossings at key connection points. Reinforce connections between open space and buildings on campus. Look to improve connections to existing pedestrian trails and pathways in the surrounding community.

Vitality

The environment supports health, mental and physical wellbeing, and safety.

The positive sense that a user of the campus has reasonable control over their environment and circumstance. You can think of these as “spatial rights”. The most basic right is to be in space in the first place, followed by the right to use its available characteristics and resources. The efficiency of a locale plays into its ability to be sustained over the long term. This necessarily requires a balance across several issues from the financial wellbeing of the institution, the condition of its buildings, the academic performance of its students, and the life achievements of its graduates.

83
84 5.0 Campus Structure and Quality

5.3 A MASTER PLAN FRAMEWORK

5.3.1 GRANDE PRAIRIE CAMPUS STRUCTURE

Public Realm

The importance of the Public Realm is based on the stabilizing continuity it has on campus development and quality over time. A well designed, clearly defined, and continuous public realm organizes development and allows expansion, that does not compromise the quality of the campus in the long term.

The public realm can be defined as the spaces in between buildings, such as plazas, courtyards, and walkways that are accessible to everyone.

The public realm diagram for the Grande Prairie campus includes a buffer on the perimeter of the site and acknowledges the open space fronting the reservoir. The public realm also reinforces connections across campus and provides an area of buffer around future development.

85

Paths

The modifications to the path network include extending and reinforcing the connection to the existing trades buildings. This can be done by creating a new north-south connector for pedestrians. Paths should provide direct connection between major destinations on campus. A new east-west for vehicular and pedestrian movement should be created for better accessibility onto campus. Pathways should be well-marked, and campus safety and security should be a top priority with measures such as adequate lighting and maintaining clear sightlines along trails/ paths.

86
5.0 Campus Structure and Quality

Nodes and Landmarks

The existing spaces in the Cardinal building act as major nodes on campus and play a vital role in the student experience and campus life. These spaces include:

• Theatre

• Learning commons

• Cafeteria

There are a series of existing minor nodes and landmarks across the campus, and can be defined as artwork/ sculptures, wayfinding, and gathering places within other buildings.

New landmarks and nodes should be introduced to strengthen student experience across the campus. This can be done by:

• Creating minor nodes along the trail system

• Designing new nodes within or around new development

• Creating a node in the L or M wing

• Adding signage around entries to act as landmarks to help with clear wayfinding

87

Edges

The edges experienced on campus are at the perimeter of the site as well as along the road that bisects campus. The Cardinal building also forms a continuous edge against the natural area and parking.

88
5.0 Campus Structure and Quality

Districts

Districts are areas of similar character. The following districts have been identified:

District 1: Academic

District 2: Open Space

District 3: Academic/ Community Support

District 4: Campus Services

District 5: Housing

District 6: Athletics

District 7: Future Development

District 8: Academic Support

89

5.3.2 FAIRVIEW CAMPUS STRUCTURE

Similar to the Grande Prairie campus, the Fairview public realm diagram includes a buffer around the perimeter of the site, as well as the area that is central to campus. This helps to reinforce the green spine that runs through the campus and allows for natural extension of pathways and connections between buildings.

90
Public Realm 5.0 Campus Structure and Quality

Paths

The pathways running north-south are problematic due to the current buildings on campus. It is recommended to enhance and create a pedestrian spine that could run from 98 Avenue to 95 Avenue, allowing pedestrians to travel on a direct path across campus. The eastwest connection is currently well-defined.

91

Nodes and Landmarks

The node and landmark structure are not as defined on this campus. However, there are existing elements that play a vital role in the campus experience.

Existing nodes include the atrium space, Notley Square and the library. Existing landmarks can be defined as the campus signage upon entering the campus, as well as the Hawker pavilion which is used by the community.

There are opportunities to enhance the campus by introducing new nodes and landmarks at entry points/ signage elements on buildings. The creation of new or enhanced student gathering space can also be done. Showcasing academic programs can be another way to enhance quality and help with wayfinding across campus.

92
5.0 Campus Structure and Quality

Edges

The edges of the campus form the boundary of the site along 113 Street and 100 Avenue.

93

Districts

There are eight districts identified for the Fairview campus.

District 1: Future Development

District 2: *Community

District 3: Admin/ Academic

District 4: Future Development

District 5: Housing

District 6: *Community

District 7: Campus Services

District 8: Farmland

*Community Districts – Although these amenities are not directly run by NWP, they are still active districts that complement and enhance the campus overall.

94
5.0 Campus Structure and Quality

5.4 DEVELOPMENT POTENTIAL AND PARCELLING

Overview

The Campus Master Plan identifies potential future development sites on campus that reflect the big moves.

The suggested public realm plan for both the Grande Prairie and Fairview campus can start to relate to the areas where development potential can occur. When the districts are combined with the public realm, parcels can be identified and labelled as development areas – areas open to new buildings, renovations, expansions, etc.

95
Development areas, Grande Prairie Campus
96 5.0 Campus Structure and Quality
Development areas, Fairview Campus

6.0 SUMMARY OF RECOMMENDATIONS

98

6.1 OVERVIEW

The Campus Master Plan bridges the previous regional college with the vision of an entrepreneurial polytechnic within the following planning parameters:

• Grande Prairie campus will be the main campus hub. The Health Education Centre will be the 30-50 year home for Health Education in Grande Prairie, with the intent to move back onto campus in the long term. The architectural integrity of the Douglas Cardinal building will be honoured and respected.

• Fairview campus will be a vibrant campus that caters to students in niche programming.

• The National Bee Diagnostic Centre in Beaverlodge will remain as-is. Eventually, the Centre would be located in Grande Prairie.

• Campus services and support will be available on both campuses, tailored to the needs of needs of the population.

• Both campuses will elevate and celebrate being an entrepreneurial polytechnic, supporting students, staff, industry, and the community.

99

6.0 Summary of Recommendations

6.2 THE “WEATHERMAP” - CAMPUS STRATEGIES

The WeatherMap is a technique used to illustrate the changes in place and movement of people and supporting space on a campus through time. The following illustrations describe the movements over the next 10+ years.

Phasing and Priorities

The moves outlined in the WeatherMap are in no specific order. The prioritization of projects will be impacted by funding, vision and strategic initiatives of Northwestern Polytechnic, guided by the Steering Committee.

Key Projects and Initiatives

While there are plans for many renovations and moves within the next ten years at Northwestern Polytechnic, the following projects and initiatives are highlighted as they meet significant strategic goals and set the institution up for long term success.

Academic Programming Expansion: Health Education

Health Education programming is located in the Health Education Centre at the Grande Prairie Regional Hospital in long-term 30 to 50 year leased space and in new health lab space in Fairview. These spaces provide opportunity for academic programming expansion aligned to market need. Increasing program offerings will improve utilization of existing space and expand the network of health professionals starting their careers at NWP.

Consolidation of Academic Space: Trades and Fine Arts

Bringing academic spaces together, including specialties like Trades and the Fine Arts, improves student experience in diverse student populations, reducing silos and improving overall community. At Grande Prairie campus, most of the Trades and Fine Arts labs, shops and studios are in stand-alone buildings, removed from the energy and life of the Douglas Cardinal building. Consolidating Trades into the L and M wings allows for opportunities for Trades collaboration as well as provides a new home for the Centre for Entrepreneurial Excellence and Continuing Education.

At Fairview campus, academic programming is located in multiple small academic buildings. While there are some programs that can be colocated, consolidating all trades programming is not recommended. Providing a connection point between multiple buildings with an atrium or covered annex will provide connection and student space on the east side of campus.

100

Visibility: Centre for Entrepreneurial Excellence and Continuing Education

Creating a focal point for entrepreneurial excellence that can be seen from the edges of campus would be a beacon to the exciting connections being made with industry and community. As the Centre develops, the space needs and location will be finalized. While the Centre may be located within the Cardinal building to start, there is potential and opportunity in sharing space with Continuing Education in the current Trades building. This location provides visibility from two streets in Grande Prairie and benefits from adjacent parking and wayfinding opportunities.

In Fairview, providing flexible shared teaching and gathering spaces allows the activities of the CEE and continuing education to occur.

Visibility and Community Connections

Adding a joint-use school to the south side of Fairview campus increases NWP’s connections to the community, exposing younger students to the campus and polytechnic education. Potential physical space connections include the use of the gymnasium and library as well as the development of athletics fields. The new school will increase the utilization of existing infrastructure.

Choice: Student Housing

The student housing stock on Grande Prairie campus is in relatively good condition, but only provides one residential experience for students. With an anticipated increase in international students and with a desire to provide family housing options, other housing models should be explored. While not all international students are looking for on-campus housing models, improving housing options may attract more student types to campus. Adding another building type, such as a mid-rise building with individual rooms and/or family townhomes would provide additional options for students.

Pairing this tower with a lower podium of food services, student services and activities would provide a whole-student experience to students living on and off campus.

The housing options at Fairview are more diverse, but are older and in varying degrees of repair. Some selective renovations and demolition will improve the overall maintenance requirements for student housing.

101

Visibility and Access: Student Services and Support

Consolidating student services to a high visibility location sends two messages to students: that health and wellness are important and that supports are available and accessible. Colocating and centralizing the locations of student supports and services in comfortable, easy to access space increases equity and inclusion and promotes student success.

In an environment where every student is supported and celebrated as they are, locating student services in central locations eases access and reduces stigma. Creating clusters of community support all aspects of the person, beyond academics. Academic supports such as tutoring, testing, Accessibility Services, and Academic Success Centre are already colocated within the Learning Commons and provide a template for co-location for other units. Welcome supports including a Welcome Centre, the Registrar, Recruitment, International and Indigenous services are units that can be brought together to welcome and support potential and existing students.

For Fairview students, providing drop-in space allows for flexibility and sharing, while also providing visibility and awareness of the supports and services available to them.

Flexibility: Growth and Expansion

Northwestern Polytechnic is exploring several initiatives. These projects will develop at different speeds and intensities, requiring different levels of spatial solutions. Similar to the future expansion and development zones within the campus, several locations are identified that can be used for future growth plans as needed. While these locations will likely not be the permanent location for these growth initiatives, they provide interim space for incubation and exploration.

Through the Master Plan process, potential areas of growth or change include:

• Student Services, including the Registrar, Welcome, Financial Aid

• Sessionals and flexible academic office space

• Centre for Entrepreneurial Excellence

• Daycare expansion

While these initiatives are known, it is foreseeable that other priorities will develop in the future.

Potential locations for flexible expansion might include:

• A203 and A204

• A303 and 304

• B302 and 303

• H103 suite

• The former nursing offices and classrooms

These spaces are mentioned as potential solutions, not as confirmed changes. Defining the space requirements for new initiatives, including function and adjacencies, helps to determine the best fit. As these spaces evolve, future flexibility should be a key consideration.

102
6.0 Summary of Recommendations

Relocate Continuing Education within Trades building. Fit CEE within the Cardinal building with a potential future move to the Trades building

Move arts into Cardinal building, demolish arts studios and carpentry building

103
Move Electrical Trades/ theory within Cardinal building Potential future housing based on student demand Develop road into campus and reconfigure parking Remove Northern Lakes portable Remove Trades classroom portable Lease south land for commercial/ mixed use Athletic fields upgrade, plus team rooms, washrooms, bleachers (future)
3 1 1 2 3 4 5 6 7 8 9 10 2 5 6 7 8 9 10 4
Relocate loading dock
104 6.0
Recommendations
Summary of
Consolidate offices in Administrative building Relocate Library to Administrative building Consolidate Motorcycle programs. Demolish Mech 6 Demolish Mech 5 Demolish houses on north side of campus (6 houses and garages) Demolish Dunvegan, Sagitawa and Chinook Hall Refurbish Hemstock and Loggie Hall
Create a
Future joint use school 3 1 1 2 3 4 5 6 7 8 9 10 2 6 8 9 10 7 4 5
Relocate Notley Square
campus quad

6.3 BEST PRACTICES

The following recommendations for space management and planning bring Northwestern Polytechnic in alignment with best practices in post-secondary.

Collaboration: Spaces should be designed to facilitate collaboration and interaction.

For students, this can include shared workspaces, group study rooms, and common areas that encourage socializing.

For staff, this can include collaborative office space, meeting spaces with projection and videoconferencing technology, and informal project rooms. Office spaces can be supplemented with informal touchdown space within office suites, and hotelling spaces to support staff moving between and within campuses.

Increasingly, spaces that support the connection between staff and students outside of the classroom are being located throughout campuses through collaboratories, research sandboxes, entrepreneurial centres and social innovation laboratories. Students seeking support may be more comfortable in informal lounge settings than in typical student service kiosks.

Flexibility: Spaces should be designed to be adaptable to different uses and changing needs. This can include movable furniture, modular design, and flexible layouts. Reducing the amount of built-in technology and millwork allows long term use with minimal renovations.

All Space is NWP space: A space policy that clearly allocates space management to the Polytechnic, which is assigned typically to Facilities underlines that all space is owned and overseen by the institution. Space is a resource that is most effectively optimized and utilized without individual ownership and territoriality.

General access classrooms: Allocating all classrooms to the post-secondary rather than dedicated to individual faculties or programs further supports optimizing scheduling and space utilization.

Outdoor Space: Outdoor spaces should be designed to provide a comfortable and inviting environment for students. This can include shaded areas, seating, and recreational spaces.

As with interior space, a variety of outdoor scenes should be provided that allow for multiple uses including collaboration, individual use, learning and wellness.

105

Staff and Faculty Workspace

Office spaces for administrative and academic staff have evolved from individual offices accessible to students only during “office hours”. Office design continues to evolve from notions of corner offices and seas of cubicles to work environments that support the many activities that comprise a work day. Future workspace planning at Northwestern Polytechnic may consider the following themes:

Hybrid work: Since the return to the office after the COVID-19 pandemic, the workforce is looking to hybrid work scenarios, where work can occur simultaneously virtually and in-person. Providing the technology and furniture solutions to work partially on campus and partially at home allows choice and flexibility.

Zones and Departmentalization: Co-locating similar groups, such as by administrative supports or by faculty allows for communitybuilding, ‘findability’ by others on campus, reduces office moves and creates a sense of ownership.

Activity-based work: workspaces are increasingly providing more options than a workstation or an office to do work. These spaces allow staff and faculty to choose the best environment to complete a task, rather than being forced to sit at their desk all day. Additional workspaces supporting both the most concentrated and focused work as well as the most collaborative work include:

• Collaboration and Connection Space: Providing spaces for people to connect and gather, both informally and formally helps to increase collaboration and creativity. These spaces may include meeting rooms, informal lounge space and nooks for quick conversations within an office suite.

• Heads Down Space: Providing acoustically separated space for heads down work is essential in successful workspace. Individual or small group rooms for focused work, quiet conversations or hybrid meetings and classes allow staff to find the right space for all aspects of their work.

6.0 Summary of Recommendations

• Shared Workspaces: By adding specific spaces to be collaborative and focused, there is an opportunity to explore shared or flexible desk space. There are many models of sharing available and considerations for security, confidentiality and personal identity should be considered carefully.

Policies and Operations: The operational policies and standards of an institution that supports workforce flexibility must be revisited to align with changing work types while clearly setting standards and expectations for both staff and institutional supports. Many policies define working hours, communication guidelines, oncampus expectations, technology requirements and usage, security protocols, approvals and expenses. Behavioral guidelines may also include virtual meeting etiquette, boundaries and team-building expectations.

106
107

6.4 SUSTAINABILITY AND RESILIENCE

Sustainability

Sustainability in a post secondary environment refers to promoting and implementing practices that are environmentally, socially, and economically sustainable on campus. Sustainability in a post-secondary environment requires a comprehensive and coordinated approach that involves collaboration among students, staff, faculty, and community partners. By promoting sustainable practices on campus, post-secondary institutions can create a culture of sustainability that prepares students to become environmentally and socially responsible citizens.

The specific recommendation that this plan makes in this regard is to consistently seek out solutions that use the best current proven technology. These solutions can include:

• Building orientation: orient buildings to optimize solar gain, design glazing that responds to each facade orientation

• Shape and massing: prioritize compact building forms with decreased envelope to volume ratio

• Integration with nature: embed principles of biophilia within each building

• Life cycle of materials: consider requiring life-cycle assessments as part of the building design and construction process.

108
6.0 Summary of Recommendations

Resilience

Resilience is the ability to recover from difficulties and to become adaptable. To build resilience, NWP needs to keep in mind renovations and maintenance of current facilities and equipment.

NWP’s campuses present themselves with opportunities for both renovations and new buildings. Renovations to existing spaces can be either minor or major changes / upgrades. These can include renovating learning environments by improving furniture and equipment to better suit a more flexible space, creating a one-stopshop for students, and upgrading accessibility.

Resilience in campus design is essential to ensure the long-term sustainability of a postsecondary institution. Resilient buildings can withstand and recover quickly from various hazards, including natural disasters, power outages, and other disruptions that can affect daily operations. By incorporating features such as redundant systems, backup power supplies, and flexible spaces that can adapt to different uses. Additionally, resilient buildings use durable and sustainable materials that reduce maintenance costs and minimize environmental impacts. Resilient campuses also enhance the safety and well-being of students, staff, and visitors.

Investing in resilient campus design is critical for post-secondary institutions to mitigate the potential impacts of natural and human-made hazards, ensure long-term sustainability, and continue to provide a safe and reliable learning and research environment.

109

6.5 EQUITY, DIVERSITY, INCLUSION AND ACCESSIBILITY

Equity, diversity, and inclusion are the key cultural focus at many post-secondary institutions across North America. In Canada, three key areas of focus in EDI are accessibility, internationalization, and indigenous initiatives. Striving toward equity and inclusion benefits all students, creating an environment of safety to explore and complete the full post-secondary experience.

Physical accessibility has evolved significantly through building code minimum requirements to include universal design, which focuses on providing access to all people rather than focusing on physical challenges. Accessibility in post-secondary also considers academic and mental health supports.

International student populations are increasing, and support related to housing and student visas and immigration should reflect the diversity of the international student body’s needs.

Indigenous initiatives on campus are developing in campuses across Canada, particularly in the wake of the findings of the Truth and Reconciliation Commission’s Calls to Action. In terms of space, EDIA initiatives often focus on providing a sense of belonging, dignity, and safety to all who are part of the community. PSIs across Canada are including the following spatial ideas in their planning and construction plans: genderless washrooms and change rooms, indigenized classrooms, increased options in study and hang-out spaces including different furniture configurations, heights, acoustical and lighting options and additional connections to the landscape and nature.

Universal Design

To create an accessible campus, all types of physical access need to be addressed. This includes multiple modes of transportation, ease of facility access, and clarity and wayfinding of location and movement. If the intended users cannot get into or around the campus, it will not succeed. Good, accessible design is beneficial to more people than just those with ability differences – universal design is about the design of buildings and environments that are accessible to all people, regardless of age, ability, or other factors and allow for flexibility in use. Improving pathways, wayfinding, and reducing hazards are all ways to meet a universal design.

110
6.0 Summary of Recommendations

Seven principles for universal design were developed in 1997, by a group of designers, engineers, and environmental design researchers at the Centre for Universal Design at North Carolina State University and can be followed to guide design decisions:

Equitable Use – The design is useful and marketable to people with diverse abilities.

Flexibility in Use – The design accommodates a wide range of individual preferences and abilities.

Simple and Intuitive Use – The use of the design is easy to understand, regardless of the user’s experience, knowledge, language skills, or current concentration level.

Perceptible Information – The design communicates necessary information effectively to the user, regardless of ambient conditions or the user’s sensory abilities.

Tolerance for Error – The design minimizes hazards and the adverse consequences of accidental or unintended actions.

Low Physical Effort – The design can be used efficiently and comfortably, and with a minimum of fatigue.

Size and Space for Approach and Use –Appropriate size and space are provided for reach, manipulation, and use regardless of the user’s body size, posture, or mobility.

111

6.6 SPACE MANAGEMENT

Effective space management practices and policies establish a baseline of need. With increasing pressure to optimize space, understanding how space is used and its current condition are key to good space management decision making. While the strategies in the Master Plan establish a baseline for the optimization, re-zoning and consolidation of space, an on-going process of space review provides up-to-date information based on renovations, maintenance projects and program changes. Having current space information allows for space to be used as an asset in achieving the Institution’s’ strategic goals.

Recommendation

Implement a space review tool that allows the facilities team to quickly and inexpensively update program requirements based on space inventory and the performance of existing space measured on several criteria. One system is illustrated below and measures several criteria for fit attributes aggregated on a mathematical score that includes a match to the required area.

112
6.0 Summary of Recommendations

7.0 USING THE PLAN

114

7.1 A LIVING DOCUMENT

The Campus Master Plan is a living document. It is meant to change and respond, yet continually inform decisions on how NWP buildings and campuses are developed over time. This document is designed to allow flexibility and adaptability over time.

A vibrant campus will evolve. It will change and priorities will shift in the fullness of time. Therefore, this document assumes that change will begin almost immediately after its publication. What needs to remain constant are the principles underpinning the document and the values that inform it.

Campus Master Plans that reach ahead on a time frame of decades have a history of being documents that remain unused as time wears on. That is almost always due to only having a planning document but no internal protocols to revisit the content, adjust that content every year, and continue to make the plan an evolving toolkit to assist strategic decision-making.

It is suggested that two ingredients need to be part of the institutional framework for a living document to become a reality:

• An internal keeper of the content of the facilities plans and its implementation. This has traditionally been the institution’s planning / facility management organ and exercised through campus planning committees or similar groups; and

• A champion of the plan at the senior administrative level of the institution. NWP has both the Steering Committee and the Facilities Team. The Steering Committee and the Facilities Team should formalize a plan review protocol to regularly assess and suggest changes to the plan as required, as part of the core institutions policy.

115

7.2 ADMINISTERING AND MONITORING THE PLAN

This plan plays an important role in shaping the future development of the campus. Along with NWP’s Strategic Plan, it serves as a longterm decision-making framework to guide the development of the campus.

All decisions regarding the physical form and ongoing management of the campus should be consistent with the plan and refer to it.

Monitoring the Plan

Monitoring is largely an assessment process addressing the policies derived from the plan.

The administration and monitoring of the Campus Master Plan should be done from the vantage point of the Facilities Team, in conjunction with the vice president whose portfolio includes campus planning. Monitoring is largely an assessment process addressing the efficacy of the policies derived from the plan. That efficiency can be measured in improvements in the utilization of teaching stations available, and lower land costs derived from optimized facility distribution. The more qualitative elements of a plan will also need assessment.

To accomplish this, a system should be developed that:

• Manages all space centrally.

• Makes space allocations based on needs data and condition.

• Is transparent in its process flow.

• Is easily understood by the campus community.

• Has assessment tools that are used directly by Facilities personnel on an ongoing basis.

• Establishes a direct relationship between assessed need and facility initiatives.

The system will require a process flow that continuously assesses need, evaluates that need against current allocations, creates a new or revised allocation plan that addresses the needs and issues that arise from the assessments, and formalizes that allocation institutionally.

Recommendation

Develop a space assessment and allocation process that is tailored to NWP and develop a baseline starting point.

116 7.0 Using the Plan

7.3 POLICY CONSIDERATIONS

There are several policy implications that can emerge from a Campus Master Plan. Those might include:

• Establishing space planning, management, and allocation protocols that are transparent, consistent, and clearly understood by the campus community.

• Establishing central scheduling and booking for all academic spaces, including classrooms, labs, and public-facing meeting rooms.

• Establishing guidelines for commonly required spaces.

• Establishing methods to measure utilization.

• Establishing methods to assess spatial needs.

• Ensuring that space planning, management, and allocation protocols are consistent with the objectives of the Master Plan.

• Establishing policy that reinforces that all space belongs to the college and will be planned and allocated to optimize the efficacy of college resources.

117
118 6.0 Summary of Recommendations 7.0 Using the Plan
119

Turn static files into dynamic content formats.

Create a flipbook
Issuu converts static files into: digital portfolios, online yearbooks, online catalogs, digital photo albums and more. Sign up and create your flipbook.