Skip to main content

GOWRISH ARCHITECTURE PORTFOLIO

Page 1

RESUME
RESUME
PG
RESORT
TABLE OF CONTENTS
PG NO-09
NO-01
DESIGN
COMMUNITY MALL
TABLE OF CONTENTS INDOOR SPORTS COMPLEX PG NO-06
PG NO-14
WORKING DRAWING

RESORT DESIGN MASTER PLAN RESORT DESIGN

1-MAIN BLOCK

2-RESTAURANT

3-ECONOMIC COTTAGE

4-POOL VILLA

5-PRESIDENTIAL VILLA

6-OAT

7-STAFF AREA

8-HOUSE KEEPING

9-HOUSE KEEPING

10-VIEW POINT

11-PLAY AREA

NARRATIVE

• With 22 economic cottages, 15 pool villas, and 2 presidential villas, along with two exquisite restaurants housed within a central main block, the resort offers a diverse range of accommodations and amenities to cater to every guest’s needs and desires. One of the key design principles guiding our resort is the seamless incorporation of circulation pathways along the natural contours of the land. This ensures not only ease of movement for guests but also enhances the overall aesthetic appeal by blending with the organic flow of the terrain.

• The arrangement of the cottages and pool villas along these pathways is intentional, with careful consideration given to maximizing views and privacy while maintaining accessibility. Stairs provide convenient access to the elevated locations of the accommodations, offering guests a sense of exclusivity and elevation.

• Moreover, the placement of 5 economic cottages in close proximity to each other allows for a communal atmosphere, while still providing individual privacy. These cottages are connected by pathways, fostering a sense of community among guests staying in this area. Additionally, a dedicated recreational area is provided for these cottages, offering amenities tailored to their needs and preferences.

CONCEPT LOCATION

TRANSPARENCY AND CONNECTIVITY

• Providing visual connection between exterior and interior spaces yet maintaining privacy between cottage.

• Using glass walls for providing transperancy. Positioning the elongated span along the steeper side to enhance the sceneinc view.

• Using sky lights and louvre doors for enhancing transparency. Using vegetation to provide visual barrier between cottages.

• The concept focuses on transparency, achieved through the design of translucent glass skylights in the balcony area.

CONTOUR ANALYSIS

01
SECTION A-A’
yelagiri, tamilnadu

RESTAURANT

SECTION A-A’

FLOOR PLAN

VIEWS

ROOF PLAN
RESORT DESIGN

MAIN BLOCK

ROOF PLAN

FLOOR PLAN

05
VIEWS

ECONOMIC COTTAGE

SECTION A-A’

ROOF PLAN

RESORT DESIGN
VIEWS

SECTION B-B’

FLOOR PLAN

02

POOL VILLA

ROOF PLAN

VIEWS

SECTION
A-A’
RESORT DESIGN
FLOOR PLAN SECTION B-B’ 03

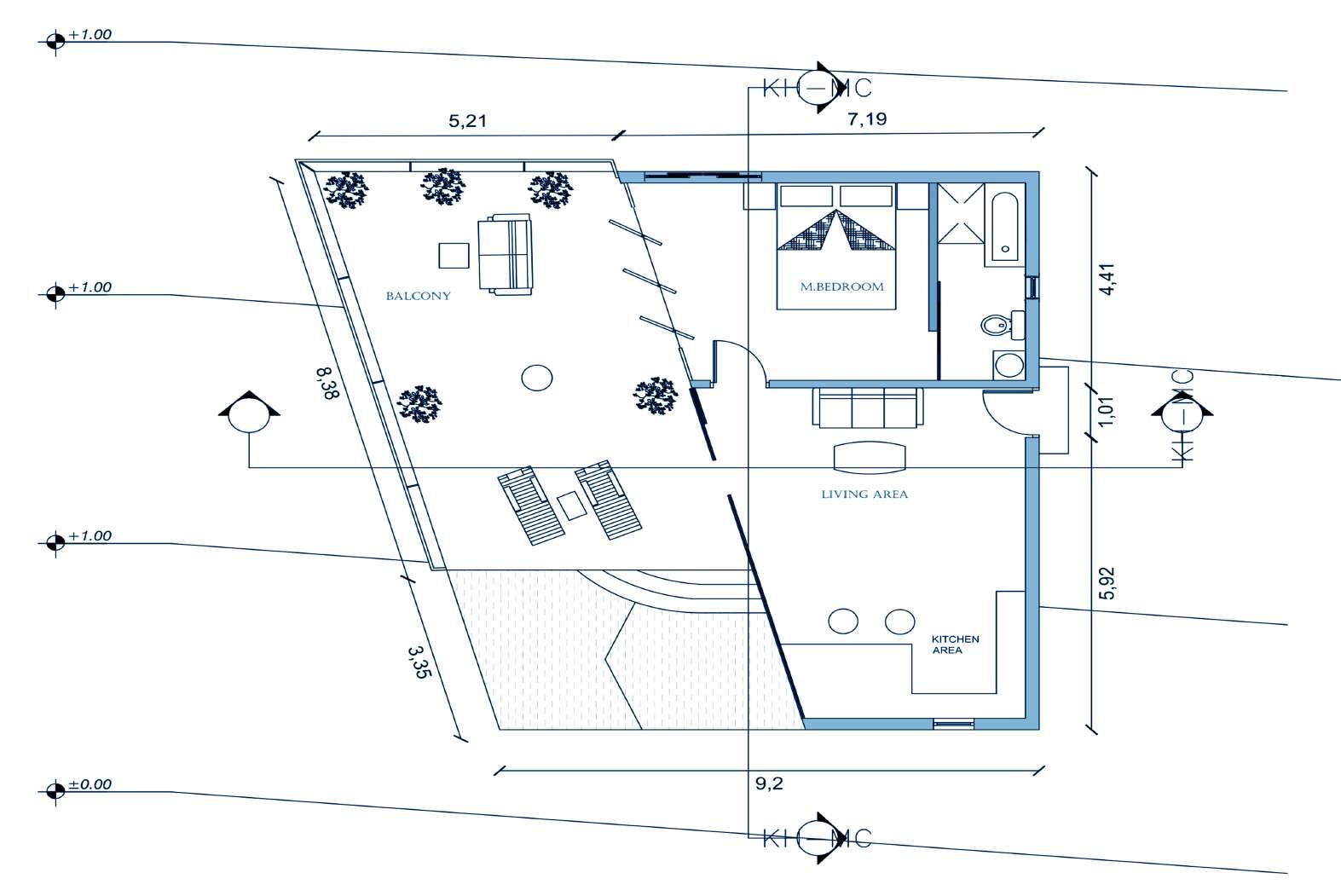
PRESIDENTIAL VILLA

SECTION A-A’

2ND FLOOR PLAN

ROOF

VIEWS

RESORT DESIGN

1ST FLOOR PLAN

PLAN SECTION
04
B-B’

CONCEPT AND ZONING

• For the concept of using ETFE membrane in a sports complex’s curved roofing design to enhance daylighting and create an illuminated effect, imagine a dynamic structure with a series of curved roof sections, each incorporating ETFE panels.

• These panels are strategically placed to optimize natural light diffusion during the day, reducing the need for artificial lighting.

• At night, the interior lighting system is integrated with the ETFE panels, producing a visually striking illuminated ambiance that showcases the building’s modern and sustainable design approach. This concept not only maximizes energy efficiency but also creates a captivating visual experience for users both day and night.

INDOOR STADIUM INDOOR
SPORTS COMPLEX
06
INDOOR STADIUM
MASTER PLAN

MULTIPURPOSE GROUND

07
INDOOR STADIUM
06
INDOOR STADIUM
VIEWS
08

COMMUNITY MALL

NARRATIVE

LOCATION-Sir Thyagaraya Road Parthasarthi Puram,T.Nagar,Chennai, Tamil Nadu - 600 007

DESIGN FEATURES

Biophilic Integration:

Our mall design seamlessly integrates nature into its core, with lush greenery strategically placed throughout the interior. This biophilic approach fosters a sense of tranquility and connection with the natural world.

Voids for Ventilation:

Purposefully incorporated voids between units serve as conduits for cross ventilation, promoting airflow and maintaining a fresh atmosphere within the mall. These voids not only enhance spatial dynamics but also contribute to energy efficiency.

Interior Landscaping:

Thoughtful placement of vegetation within the mall creates microclimatic zones, ensuring optimal comfort for visitors. Indoor gardens, vertical green walls, and planters enhance air quality and imbue the space with a refreshing ambiance.

Natural Illumination:

Abundant natural light floods the interior spaces through expansive windows and strategically po-

SITE PLAN

COMMUNITY MALL

CONCEPT

TRANSFORMING A RECTANGLE IN TO ANGULAR RECTANGLE

GIVING A 3D FORM TO THE SHAPE

SUBTRACTING THE MARKED SHAPE TO FORM THE BASE UNIT FOR THE BUILDING

PROVIDING CANTILEVERD SPACE IN BETWEEN FLOORS FOR LANDSCAPE AND CROSS VENTILATION AND SCEESS IN SIDE THE COMMUNITY MALL

FINAL MASSING OF THE BUILDING WHICH IS CONNECTED BY PASSAGES IN EACH FLOORS IN

09

2ND

1ST FLOOR PLAN

RESTAURANT

GROUND FLOOR PLAN

FLOOR PLAN
COMMUNITY MALL
FOOD COURT FOOD COURT

OFFICE AREA

STAFF AREA

PARKING PARKING
10

ELEVATION

SECTION

COMMUNITY MALL
11

PLANOMETRIC DRAWING

The planometric drawing or painting is a combination of plans, sections, elevations and views in a miniature It should also be a documentation of the architectural spaces, elements, connectivity, ambience, humans sculptures, vehicles, furniture and animals.

COMMUNITY MALL

miniature style of art with parallel projections in it – as we can see in Mughal miniature paintings. humans and activities, both inside the building as well as surrounding it, the landscape, artworks, murals,

12

VIEWS

13

WORKING DRAWING

14

WORKING DRAWING

15

Turn static files into dynamic content formats.

Create a flipbook
GOWRISH ARCHITECTURE PORTFOLIO by GOWRISH S (RA2011201010027) - Issuu