

GONZALO LUIS ACOSTA

DNI: 41841983
16, abril, 1999 Contacto +54 266 4340231
gonzaloacosta782@gmail.com
Descripción Personal
Arquitecto en formación en la FAUD. Busco oportunidades para aplicar mis conocimientos en Softwares para el desarrollo de proyectos arquitectónicos. Cuento con habilidadtes en representación gráfica y documentación técnica, utilizando herramientas de Adobe para la presentación de proyectos. Me interesa integrarme en equipos de trabajo dinámicos donde pueda seguir aprendiendo y aportando valor mediante procesos de diseño y modelado digital.
Observo la arquitectura desde la tensión entre lo esencial y lo expresivo. Me inspiran profundamente tres visiones complementarias: la arquitectura orgánica de Frank Lloyd Wright, que disuelve los límites entre interior y paisaje; la poética monumental de Louis Kahn, que hace de la luz un material constructivo; y la precisión estructural de Amancio Williams. Me interesa la arquitectura que interpela al habitante desde lo sensorial y lo tectónico. En cada proyecto busco que la representación sea tan significativa como la obra misma, cultivando una gráfica que dialogue con la idea.
Softwares
MIB / CAD:
MODELADO
RENDERIZADO
ADOBE
Revit / AutoCAD
Sketchup
Twinmotion / Lumion / Enscape
Photoshop / Indesign
Educación/Experiencia
Estudios Universitarios - en curso Facultad de Arquitectura Urbanismo y Diseño Universidad Nacional de Córdoba - nivel 5 en curso.
Dos años de experiencia como ayudante en taller de Arquitectura en el nivel 2, Curso de formación pedagógica en curso.
Experiencia de trabajo de manera independiente en documentación y visualización arquitectónica
Elaboración de planos técnicos y documentación arquitectónica.
Modelado 3D en SketchUp y desarrollo de imágenes renderizadas para presentación de proyectos.
Logros Académicos
°Año 2017-Septiembre
Participación como Estudiante Asistente del Workshop en la Ciudad Autónoma de Buenos Aires-Argentina organizada por la cátedra de: Sistemas Gráficos de Expresión B.
°Año: 2019- Septiembre
Participación como Estudiante Asistente del Workshop en: Espacio Micro Experimentación “Como aterrizar los ODS” (desrrolado en el marco de semana de acciones del 16 al 19 de septiembre)
°Año: 2021- Reconomiento a trabajo destacado en proyecto de vivienda para el usuario y conjunto de viviendas.
°Año: 2023- Octubre Premio a trabajo destacado - presentado en la Catedra de Urbanismo 1 “A” Reconocimiento a trabajo destacado en para muestra de proyecto en cátedra de Paisajismo “B”

CASA M MICAG
COLONIA CAROYA A 50 AÑOS
PARQUE LINEAL COSTERO BARRIO SAN VICENTE


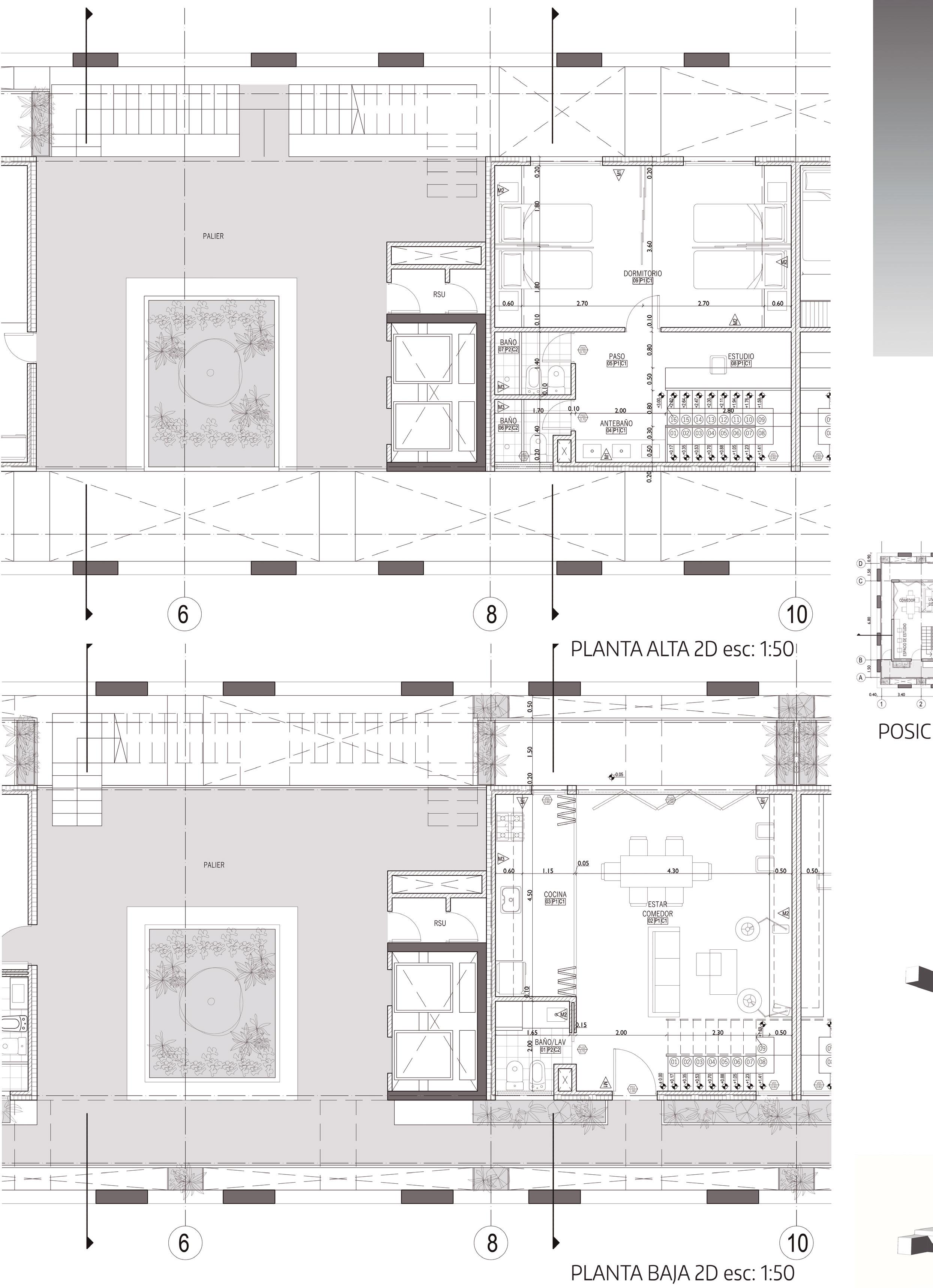
La vivienda se ubica en el Barrio Colinas de Vélez Sarsfield (Córdoba), en un entorno natural, sinuoso y tranquilo, con un lote angosto y profundo que posee doble frente: hacia la calle y hacia el Parque Natural Barranca.
Los usuarios, Una madre (diseñadora de indumentaria) y su hijov (escolar), eligieron este entorno por su tranquilidad, accesibilidad y presencia de espacio verde. La vivienda debía mejorar su calidad de vida a través de espacios luminosos, abiertos, versátiles y adecuados para el trabajo, el estudio y la recreación.
La propuesta parte de una estructura modular de 3 x 3 metros, con una secuencia de llenos y vacíos que permite amplitud visual, buena iluminación y ventilación natural. El diseño se articula mediante una circulación longitudinal tipo “cepillo”, que vincula los espacios y potencia la transición interior–exterior, integrando patios verdes como filtros y expansiones.
La expresión formal busca continuidad en ambas fachadas, adaptándose a las escalas urbana y natural. Se reemplazan las rejas por muros cribados que delimitan, protegen y filtran la luz.






CUBIERTA NO ACCESIBLE
CIRCULACIÓN VERTICAL
CUBIERTA NO ACCESIBLE
TANQUES DE RESERVA
Rotoplast FLAT diam 1.56 m. Cap.


CORTE TRANSVERSAL C-C'
TANQUES DE RESERVA
Rotoplast
CUBIERTA NO ACCESIBLE
































































ESTRUCTURA


(Mercado de Industrias Creativas Alta Gracia)
Proyecto de concurso de ideas realizado para la municipalidad de Alta Gracia.
SÍNTESIS DE PROYECTO
Partimos por proyectar una espacialidad, ateniendo a la situación atmosférica de recorrido del individuo y como esta forma un rol fundamental en el diseño. Posterior a este, integramos la escala proyectual, la cual pone en valor diferentes cualidades espaciales definiendo sus diversos usos y funciones como rol en un proyecto. A posterior nos aproximamos a una escala mayor, atendiendo a su relación con la ciudad, su aporte al espacio público, su historia, sus rasgos singulares y sus cualidades únicas. Como último y en base a lo aprendido, planteamos una arquitectura con rasgos historicistas, pero a su vez con una interpretación contemporánea, donde potenciamos las cualidades espaciales mediante el rol de la estructura como elemento esencial del proyecto y su papel conformando el espacio público y programático.































































La propuesta busca descentralizar el recorrido de colonia Caroya, generando vías importantes hacia el noreste, esto promueve el crecimiento controlado y estratégico, cómo también un nuevo centro de la ciudad. Favoreciendo en el futuro una mayor conexión con localidades vecinas
El desarrollo del proyecto se basó en la definición de parámetros proyectuales que guiaron su evolución y permitieron verificar su coherencia a lo largo del proceso.
Morfología en tira: Se estableció una geometría rectangular con una marcada proyección longitudinal, definiendo la base del diseño volumétrico.
Estructura como soporte y envolvente: Se buscó que la estructura no solo cumpliera un rol funcional, sino que también contribuyera a la expresión morfológica del edificio, garantizando equilibrio y carácter arquitectónico.
Plantas libres y flexibles: La estrategia estructural permitió liberar el interior de apoyos intermedios, generando espacios versátiles que facilitan la adaptación de distintas tipologías.
Envolvente estructural
Este parámetro fue clave en la configuración del proyecto, ya que influenció la organización espacial y formal. Se definió una disposición estructural en los lados mayores del edificio, basada en un módulo de 6.80 m, con columnas inclinadas alternadas cada 3.40 m, articuladas mediante vigas en un sistema de nudos estructurales.
Sistema estructural
Para optimizar la modulación y permitir la integración de vacíos, circulaciones y montantes, se optó por una losa nervurada, brindando eficiencia estructural y flexibilidad en la distribución de espacios.
















La propuesta para la intervención en el sector parte de la idea de combinar lo duro del tejido de vivienda ya existente con lo orgánico del río y la naturaleza. En base a esto se plantea buscar el equilibrio entre ambas partes y combinarlas. Por ello que se plantea proyectar al trama de las viviendas conformando asi balconeos hacia el río. Por otro lado se propone un cauce o efluente del río hacia la manzana libre en forma de sendero. De esta manera se crean recorridos, puntos de encuentros y visuales. El concepto en un primer acercamiento en macroplan fue “Venecia“, ya que esta es una ciudad con multiplicidad de canales, los cuales transportan y mueven. Aquí se buscó trasnportar-mover-conectar cultura, crear puntos de permanencia, puntos de conexión con la naturaleza, puntos de recreación.
El barrio requiere de un lugar-espacio para realizar ejercicio físico, para el ocio y tiempo libre y para la recreación. Por ello se plantean 3 areas:
AREA DE RECREACIÓN ACTIVA (deporte)
AREA DE RECREACIÓN PASIVA (permanencia ocio)
AREA DE PASEO GOURMET
En el ocio de recreación activa se pensó en el deporte, se colocaron mobiliarios para hacer ejercicio tales como barras-poleasactividades con el uso del cuerpo. Como también palestra y actividades de diversión para los menores, además una cancha de bochas para los adultos, ubicado en el “Parque de la costumbre“.
En el area de recreación pasiva destinado al tiempo libre, se disponen sectores con bancos como punto de encuentro interpersonal que se hallan rodeados de vegetación multicolor. Por esta razón se lo nombra “Parque de los colores”
En el sector de “Paseo Gourmet” se plantea la integración del habitante como potencial dueño o cooperador que promueva el comercio (bares, carribares, etc) posibilitando así el acceso a personas externas al parque.






