

BEATRIZ GOMES PORTIFÓLIO
PROJETO ARQUITETÔNICO
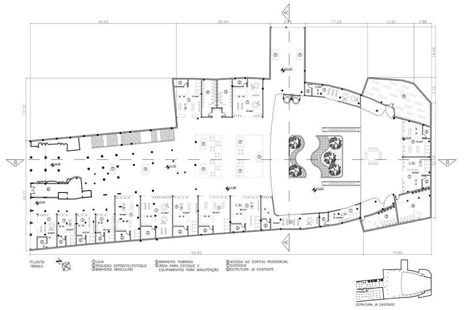
GALERIA PIRATININGA
Projetodeumagaleriacomercialnoantigo
CinePiratininga.
O Cine Piratininga, localizado no Brás e inaugurado na década de 40 e projetado por Rino Levi, foi o maior cinema do Brasil. Após um severo processo de decadência, acabou fechandoetornou-seumestacionamento.



que o e lojas entado as. E, que a ais o sar a





A Galeria tem lojas de roupas e sapatos no piso térreo e um belo jardim interno no meio do grande vão, com uma abertura de vidro no teto.

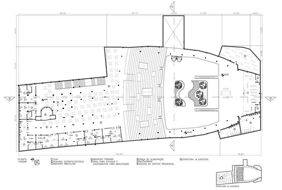
No 1º pavimento tem uma grande praça de alimentação, uma loja de livros e uma arquibancada de estar.
Projeto Arquitetônico - Galeria






PROJETO ARQUITETÔNICO
HOTEL M|POMPÉIA
Este projeto foi desenvolvido com o objetivo de criar um hotel midscale na frente do Sesc Pompéia. O local de projeto é uma região com moradores de classes média e média alta, que atende diferentes públicos de diversas regiões devido ao seu entorno imediato conter equipamentoscomooShoppingBourbon, Sesc Pompéia, Allianz Parque e, em uma distância um pouco maior, o Terminal BarraFunda.




A ideia principal é que este hotel poderia integrar esses distintos públicos com diferentes idades, como por exemplo os frequentadores do Allianz Parque, que contém eventos como jogos de futebol e shows; os frequentadores do Sesc Pompéia, que atende moradores da região na utilizaçãodesuasinstalaçõesetambémpessoas de todas as partes da cidade para visitar exposições, palestras e participar das atividades oferecidas; e também os frequentadores do ShoppingBourbon.
IMPLANTAÇÃO

A solução encontrada para alcançar o objetivo de integração dos públicos, foi criar um hotel midscale que atenderia todas as classes com bastante


de hospedagem, cobertura e casa de máquinas/reservatório superior.
O objetivo foi fazer com que o hotel conversasse com o Sesc Pompéia. Pensando nisso, o projeto não conta com áreas de lazer além da área da cobertura, pois o Sesc funciona de terça a domingo desde manhã até a noite e abriga diversas áreas de lazer, sendo: biblioteca, casa noturna, espaço de brincar, espaço cênico, ginásios, quadras, oficinas de criatividade, piscina, entre outros. Dessa forna, o hotel poderia fazer uma parceria com o Sesc para que os hóspedes pudessem frequentar o local.

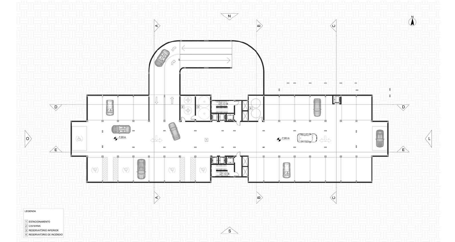
2ºSUBSOLO

No segundo subsolo fica o estacionamento, com 21 vagas comuns e 5 vagas acessíveis. Esse pavimento também abriga a área de cisterna, do reservatório inferior e doreservatóriodeincêndio.

1ºSUBSOLO


No primeiro subsolo fica a primeira parte do estacionamento, com 7 vagas comuns e 5 vagas acessíveis. Esse pavimento também abriga a área de funcionários e a doca.
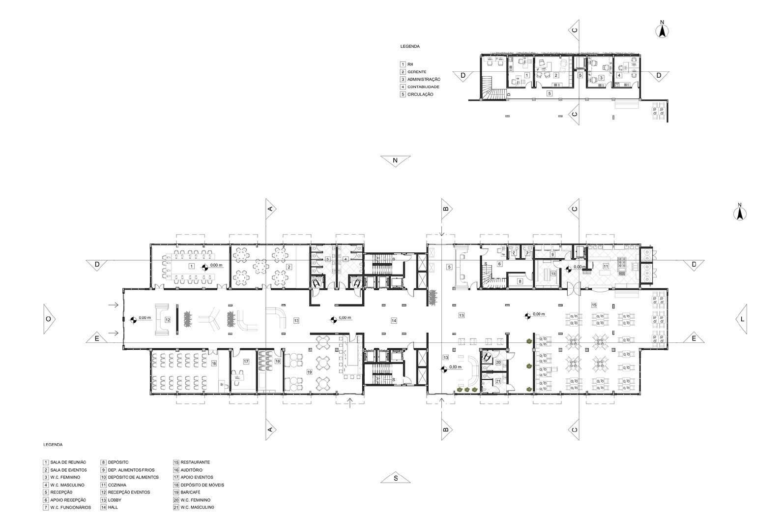
TÉRREOEMEZANINO
NomezaninotemassalasdeRH,gerência, administração e contabilidade. O mezanino tem vista para o restaurante e o acesso se dá pela escada da área da recepção e pelo elevadordeserviços/funcionários.

O térreo tem 4 áreas de acesso, um pédireito duplo e conta com a recepção, apoio, cozinha, restaurante com vista para a praça e a rua Clélia, banheiros, lobby, bar/café e salas deeventos.







SALA DE REUNIÃO
RECEPÇÃO
RECEPÇÃO
LOBBY
FOYER DE EVENTOS
EVENTOS









RESTAURANTE
MEZANINO
PAVIMENTOTIPO

O pavimento tipo apresenta o primeiro, segundo e terceiro pavimentos.Emcadaumdessespavimentosestãoasalada camareiraeos33quartos,sendo15standards, 3masters,6 mastertwin,5mastersduplocasal,2deluxese2PNE. Juntandoos3andares,temosnototal99quartos.
Osandarestambémcontamcomumgrandeátriocomuma coberturadevidro,quetrazmuitailuminaçãonatural.

QUARTOS







Duasmesasdecabeceira
PaineldeTVcomescrivaninha
TVLED
Umacadeiradeescritório
Cofreeletrônico
Frigobar
Miniclosetpararoupasemalas
Banheirosimples
Duasmesasdecabeceira
PaineldeTVcomescrivaninha
TVLED
Umacadeiradeescritório
Cofreeletrônico
Frigobar
Miniclosetpararoupase
malas
Banheirosimples
Duasmesasdecabeceira
TVLED
Escrivaninha
Umacadeiradeescritório
Cofreeletrônico
Frigobar
Miniclosetpararoupasemalas
Banheirosimples

ngSize
Umacamadesolteiro
Duasmesasdecabeceira
TVLED
PaineldeTVcomescrivaninha
Umacadeiradeescritório
Cofreeletrônico
Frigobar
Miniclosetpararoupasemalas
Banheirosimples



UmacamaKingSize
Duasmesasdecabeceira

TVLED
PaineldeTVcomescrivaninha
Umacadeiradeescritório
Cofreeletrônico
Frigobar
Miniclosetpararoupasemalas
Mesacomduascadeiras
Banheiroequipadocom
banheiradehidromassagem
UmacamaKingSize
Duasmesasdecabeceira
TVLED
PaineldeTVcomescrivaninha
Cofreeletrônico
Frigobar
Miniclosetpararoupasemalas
Banheiroacessível


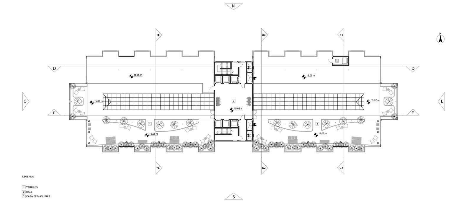
COBERTURA


Na cobertura tem uma
pequena área de lazer e descanso com vistas
para o Sesc Pompéia, ShoppingBourbouneAv. FranciscoMatarazzo.






CORTESEELEVAÇÕES




CORTE AA
CORTE DD
ELEVAÇÃO OESTE
ELEVAÇÃO NORTE




CORTE CC
ELEVAÇÃO LESTE
PROJETO ARQUITETÔNICO
VILA DA FELIZ IDADE
EsteprojetofoidesenvolvidoparaoTrabalho de Conclusão de Curso (TCC), com o objetivo de criar um complexo de habitação e lazer voltadoàsnecessidadesdosidosos.
O projeto mostra que é possível criar um espaço sem aquela "cara de asilo", em que os idosos fazem poucas atividades, se sentem abandonadosenãotemtantaprivacidade.
Aideiaprincipalfoicriarumlocaldemoradia para idosos que ainda são independentes e conseguem fazer as atividades do dia a dia sozinhos, mas todas as casas são equipadas paraqueaquelesquesãodependentespossam convivercomumcuidador.


Localização: RuaBaumann,651-VilaLeopoldina,SãoPaulo-SP

Aescolhadoterrenoemquestãofoifeitapor se tratar de uma área praticamente plana, para que os idosos possam se locomover com mais facilidade, e porque o local está próximo a hospitais, parques e tem fácil acesso tanto de carroquantodetransportepúblico.




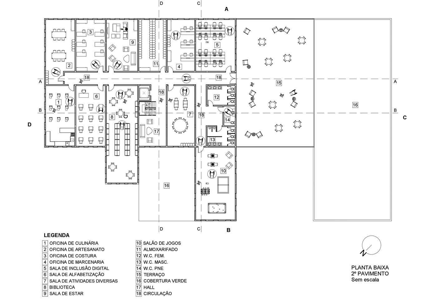
Foi proposto um edifício principal onde há assistência médica básica (que também pode ser frequentada por idosos que moram no entorno), oficinas de cultura e lazer, áreas de lazer e áreas de convívio social.

No restante do terreno foram distribuídas 18 casas geminadas e áreas de convívio e lazer.
Todos os ambientes são de fácil acesso aos deficientes físicos e pessoas com mobilidade reduzida.
O único acesso ao local se dá através da rua Baumann.

Na área externa foi projetado um grande pergolado que dá acesso a todas as casas.
A intenção desse longo pergolado é proteger todos os moradores da chuva ao andar pela vila.
Por exemplo, caso algum idoso queira visitar algum vizinho em um dia chuvoso, o pergolado está lá para protegê-lo e permitir que ele se locomova sem nenhuma restrição.

ACASA
As residências têm a mesma planta e o mesmo layout de móveis, ambos pensados buscando a melhor distribuição espacial e funcional, podendo, ao longo do tempo, serem adaptados facilmente às mudanças que o morador achar necessárias. Todas as residências são térreas, têm o total de 81,04m² e pode comportar até 2 pessoas.




O sistema construtivo adotado para as habitações foi o Light Steel Frame.
O Steel Frame é um sistema de construção seca, pois é industrializado e já vem com os componentes pré-fabricados de acordo com o projeto, que são formados por estruturas de perfis de aço galvanizado.





OCENTRODECONVIVÊNCIA








PROJETO DE INTERIORES
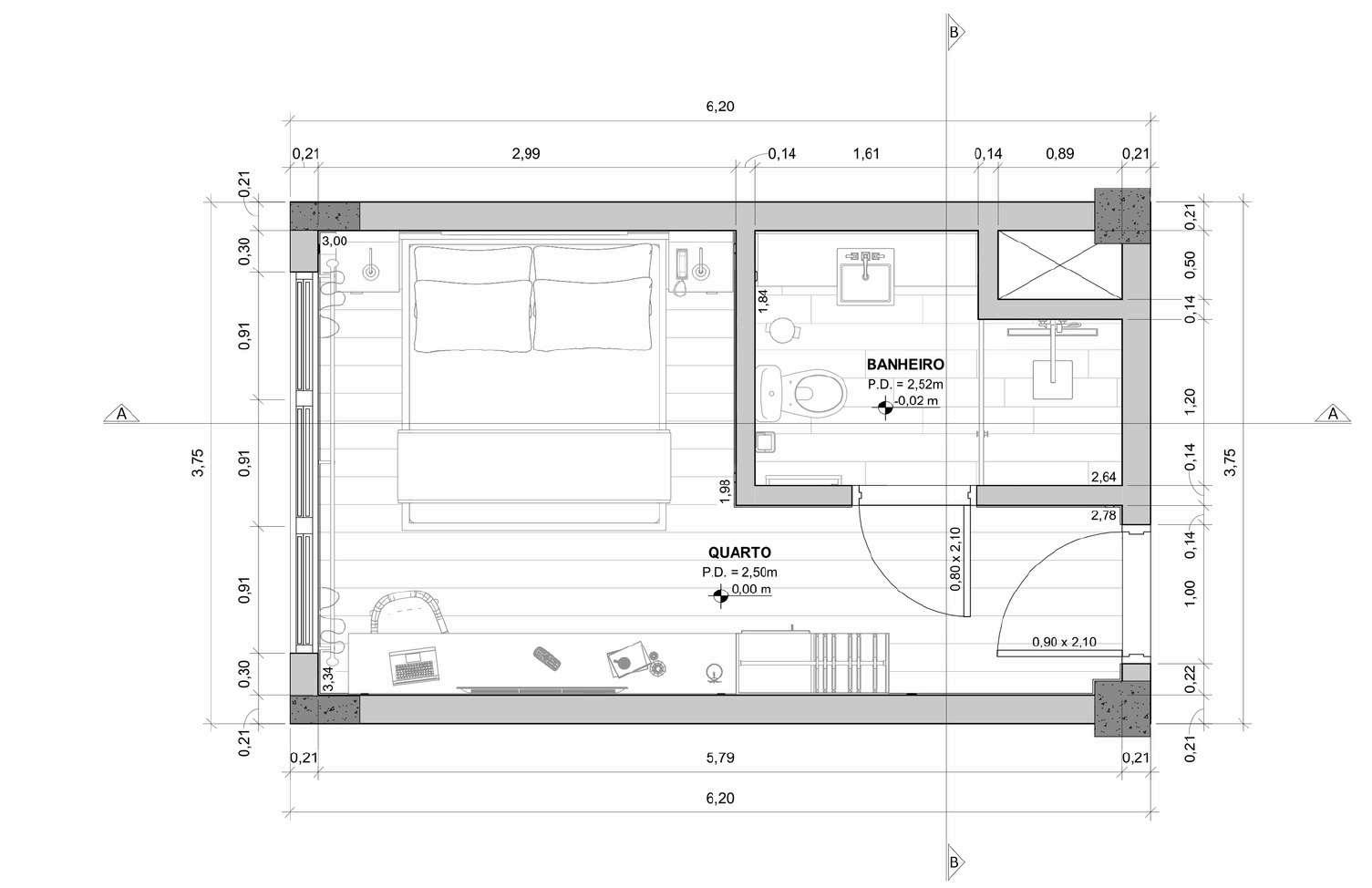
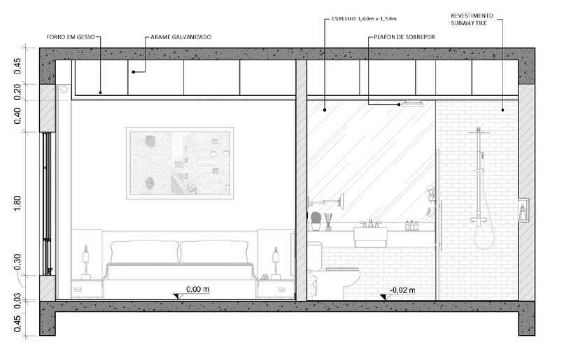
QUARTO DE HOTEL
Projeto de um quarto simples para um hotel próximo ao Sesc Pompéia.
O conceito do projeto foi criar acima de tudo um ambiente bem aconchegante, prático e funcional.
Em toda a decoração foi utilizada uma paleta de cores com tons claros e alguns detalhes destacados em vermelho, assim como as janelas dos edifícios do Sesc Pompéia.






PLANTA BAIXA
em metros | sem escala

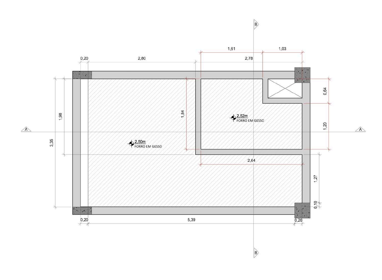
PLANTA DE FORRO
em metros | sem escala

PLANTA DE ILUMINAÇÃO em metros | sem escala





CORTE AA
CORTE BB
Projeto
PROJETO DE INTERIORES
QUARTO MONTESSORI
Projeto de um quarto montessoriano para umameninade3anosdeidade.
O quarto montessoriano serve para que a criançadesenvolvaautonomiacomsegurança.
Portanto, tudo no quarto está na altura da criança para que ela possa ser menos dependente dos pais em tarefas mais básicas, comolevantardacama,lerumlivro,desenhar, aprender, brincar, guardar os brinquedos, escolherumaroupaparavestir,etc.





PROJETO DE INTERIORES
ESTÚDIO GG
Projeto de um mini estúdio musical para gravações de voz e instrumentos musicais de pequenoporte.
A intenção foi seguir a ideia do cliente de aproveitar todo espaço disponível, que é bem pequeno.



