




![]()

















GMC Lifting Solutions offer a wide range of rental equipment and operational personnel from Stavanger and other sites in Western Norway.

The equipment shown on next pages is offered to customers for rental and sale. The catalogue presents most of our rental equipment, in addition GMC can offer a large range of other equipment for offshore & marine operations. Please contact us for requests of equipment other than what is presented in the catalogue.
All equipment are organized in our software system which keep track of equipment and have all information needed of the objects including condition, certification status and location. This makes us able to offer short response time and prepare the requested equipment on time according to our customers needs.




A-frames with capacity from 1 ton up to 250 ton for deck installation or temporary lifting operations.

1, 5, 8 and 10 Ton A-frames


10 Ton telescopic A-frame with winches & wheels



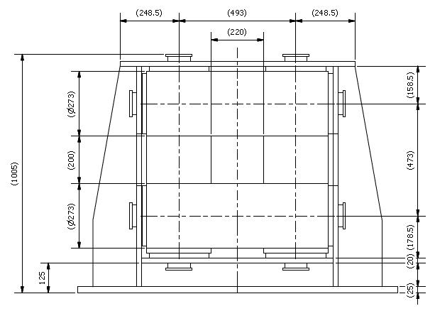
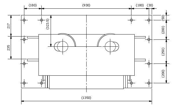
250 Ton A-frame 19 x 15 m

Top beam with 10 Ton and 4 Ton wiresheave
5 Ton and 2 Ton winch, each with 15m wire and hook
4 motorized wheels on frame (2 fixed and 2 with rotation)
Radio control for all movements
For 690 volt, 60 hz, 32 amp – 11 kW electric motor
Electric equipment: Atex zone 1
Operating temperature: from -10 to +45 degrees C
Bottom frame: Width 3m x Length 4m
Height closed/extended at 0 degrees position: 3240/4190mm
According to Norsok R-002 and EU Machine directive.
With Norsok Z-015 documentation.
Transport dimensions: Width 299 cm x Length 400 cm x Height 200 cm, Weight 5500 kg





This is a tool for safe launch and recovering of subsea modules. The tool is a linear, cylinder based design, utilizing a cylinder to compensate for vertical vessel movements (heave) within specifications. The system is designed for full active heave compensation by hydraulic power from the dedicated HPU (active energy) as well as an accumulated source of energy (nitrogen gas, utilized as passive energy).
The system is designed to operate in three principal operational modes:
• Manual operation, for service purposes.
• Shock Absorber Mode
• Active Heave Compensation (AHC) Mode
Design in accordance with below rules and regulations:
“Rules for Certification of LiftingAppliances”, by DNV (1994)
“Rules for the Design of Hoisting Appliances”, Section I, Booklet 2, by F.E.M. 1.001,
3rd edition
“Surface Preparation and Protective Coating”, NORSOK M-501
“Safety related parts of control systems” NSF EN 954-1,
“Safety requirements for fluid power systems” NSF EN 982
Height 4.3 meter x Width 3.8 meter x Length 15 meter. Weight 65 Ton
HPU, control system, MRU and some other items are not included




A range of anchors up to 51 Ton weight with holding capacity up to 50 times own weight.



23 ton Union stockless anchors


14 barges are in our rental fleet.
Two sizes: Tension Barges = 14,5 x 20 x 3 meter and Anchor Pontoons = 12 x 12 x 2 meter.
One TB barge comes with lifting point and can be ballasted as test weight from 150 to 900 ton.








A wide range of baskets for many purposes:
Subsea baskets - Equipment baskets - Personnel baskets - Garbage baskets







Snatch blocks, Fixed blocks, Hook blocks with capacity up to 200 ton







For installation on barge, ship or other vessels





Double bollards 98 Ton MBL for deck installation.









A wide range of surface and subsea buoyancy modules:
• 13 kg to 25 kg spherical subsea buoys
• 60, 120, 145, 155, 250 and 490 kg buoyancy modules.
• 1000, 1200 and 2400 kg buoyancy modules.
• 14000 kg surface buoys
• Subsea Support Buoys SSB200, SSB400 and SSB850 from 90 kg up to 1000 kg @ 500 MWS
• Subsea buoys up to 10 ton @ 500 MWS.
We also make special arrangements to join different buoys to get the required net buoyancy.








20.000 meter offshore quality K4 / R4 anchor chain and components, 73, 82 and 120 mm diameter.









Airdriven, Electric, Hydraulic and Manual hoists and trolleys, capacity 0,5 – 100 T. Standard and lowhead room.









Ratchet and fixed anchor chain stoppers for 76 to 120 mm






Panama chocks for deck mountingAccording to DIN 81915




C20 and C32 on stock, other types and sizes on request


Chutes for guiding of wire, rope or umbilical from vessel to sea








Office, Tool & Equipment containers - Storage containers - Standard ISO containers and DNV 2.7-1








Various cranes for installation on vessels or quay








Fairleads for deck installation to guide wire, rope, cable or umbillical






Rubber Fenders for several purposes with different characteristics and dimensions, air- and foam filled.
Some of our fenders listed below:
Yokohama type Air fenders
Yokohama type Air fenders
Yokohama type Air fenders
Yokohama type Air fenders
Length 2.0m ø1.4m, weight 300 kg inclusive tyre net
Length 4.0m ø2.5m, weight 1000 kg inclusive tyre net
Length 4.5m ø2.5m, weight 1200 kg inclusive tyre net
Length 5.0m ø2.9m, weight 1400kg inclusive tyre net







A wide range of diesel-driven generator sets for supply of electric power.





Grapnels for “fishing” chain, wire, cable, rope or umbillical





Hooks with capacity 1 – 400 Ton for cranes, winches, hoists, ROV operations, etc.







Electric and diesel driven hydraulic power packs for operation of winches, pumps, etc.






*This is only some of our HPU’s


Solar powered self contained LED marine lanterns.

Self-contained LED lanterns with 5-12NM or 6–12NM visible range are designed for a range of lowmaintenance applications.
The light boasts a large internal battery compartment, a SL-155 light-head and 4 premium-grade 10 or 20 watt solar modules mounted to collect sunlight at all angles.
These lanterns is moulded from UV-stabilised, virgin polyethylene, providing enormous impact and weather resistance, in addition to high visibility IALA colours.
The user-friendly, 2-piece design allows the lantern to be opened for convenient battery inspection or replacement whilst the base remains fixed to the supporting structure.


GMC has different sizes of spreader beams for all your lifting operations. Can come single or rigged with shackles, wires and master links. Standard capacity up to 600 T, specials up to 2000 T.





Adjustable spreader beams - WLL from 25 up to 400 Ton
Span from 1 meter up to 25 meter (0.5 meter steps
c/c padeyes: From ~ 1 meter to ~ 25.5 meter
2 x top padeyes for standard or widebody shackles
2 x bottom padeyes for standard or widebody shackles
Comes with certificate and user instructions.
DNV GL type approved
Slings and shackles can be supplied with spreader beam.



Adjustable span from 2 meter to 25 meter (0.5 m steps)

Below spreader beams are some of our beams available for rental. Minimum rental is 3 days.
Special spreaders / lifting beams up to 2000 Ton capacity on request.
Comes with control card / certificate, beams can be equipped with wires and shackles according to your requirement.








Capacity from 2 Ton up to 1250 Ton. Comes with calibration certificate.






A wide range of Masterlinks with SWL up to 400 Ton.






MudMat is a heavy-duty polyurethane (PU) Subsea Protection & Support Mat developed for use offshore and onshore. The mat can be utilised as subsea support, landing and positioning device or as seabed, pipeline and cable protection. Design is based on offshore experience and the requirement for a multi- purpose flexible mat. Certified lifting slings have been integrated in the MudMat® during fabrication resulting in the production of a mat that is robust and easy to handle. MudMat® is available in several standard sizes and weights. The MudMat® is bundled for easy storage and transport. MudMat® Reinforced has been developed for special purposes and is equipped with moulded-in steel reinforcement which ensures increased stiffness, weight and robustness. It will also provide increased stability of the product during subsea operations.





PipeMat is made of High Density Polyethylene pipes, and is a low-cost alternative to the MudMat.
PipeMat may be used as subsea support, landing and positioning device or seabed/ pipeline/cable protection for light loads.
The PipeMat is without sharp edges and rigid parts and is therefore a safe alternative to similar installation and protection products.
PipeMat can easily be rolled up for transport and storage.
Dimensions: 4 meter width x 4 meter length



Simply turn the wheel to lift up or lower down
Features:
- Atex compliant for zone 1 - No scaffolding required
- Easy to operate
- Battery and power free
Wind resistant up to 3 degrees (maximum wind force 12.5m/s)
Professional training can be provided.








• Working Height 28.21 m
• Working Outreach 23.51 m
• Swing (Continuous) 360°
• Platform Capacity – Unrestricted 230 kg
• Platform Rotator (Hydraulic) 180°
• Jib – Overall Length 1.83 m
• Jib - Range of articulation 130° (+70°/-60°)
• Platform Size 0.91 m x 2.44 m
• Overall Width 2.49 m
• Tailswing (working condition) 1.42 m
• Stowed Height 3.05 m
• Stowed Length 12.19 m
• Wheelbase 3.05 m
• Ground Clearance 0.30 m
• Machine weight 1/2 17,200 kg
• Max Ground Bearing Pressure 2 6.5 kg/cm2
• Drive Speed 4WD 5.6 km/h
• Gradeability 4WD 45%
• Axle Oscillation 0.20 m
• Turning Radius – Inside 3.81 m
• Turning Radius – Outside 6.02 m
• With padeyes for lifting or tie down
• 0.91 m x 2.44 m low mount platform


• Selectable creep speed on drive / lift and swing functions
• 1.83 m articulating jib
• 180 degree powered platform rotator
• Four wheel drive
• Weight 17.200 kg
• Tyres 18 – 625 Foam filled


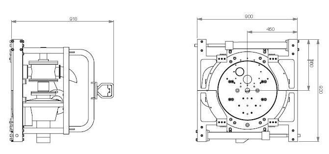
50 Ton capacity lifting tool for pulling of piles, with ROV operated locking.






Flygt Xylem electric seawater pumps
Model 2660.181
Max flow 115 m3/hour
Max lifting height 55 meter
440 – 690 Volt 50 hz, 5.6 kW
Weight 78 kg

Flygt Xylem electric seawater pumps
Model 2201.012
Max flow 234 m3/hour
Max lifting height 90 meter
440 – 690 Volt 50 hz, 37 kW
Weight 240 kg


Yamada airdriven pumps
Max flow 600 liter/min
Max lifting height 60 meter
Air pressure from 1.4 to 7 bar
Air consumption 4 m3/min @ 5 Bar
Weight 70 kg

Capacity: 48 m3/hour @ 150 m.v.s (15 bar)
Motor: Volvo F12-40
Speed: 3600 rpm
Hydraulic required: 148 l/min @ 202 bar
Inlet: DN100
Outlet: DN100
Material: AISI 316
Shaft seal: Mechanical Burgman Sic/Sic
Weight: 75 kg
Base: AISI316







Capacity from 25 to 500 T








Standard shackles, Wide Body, Super shackles, D-type and specials with capacity up to 2000 T






Standard sheaves and deck sheaves with capacity up to 250 T






GMC provide comprehensive spooling services of wire-rope, cable, fiber rope or similar. Spooling machines in different sizes combined with trained and experienced personnel can handle wire rope and umbilical up to 250 ton drum weight.
GMC`s controlled spooling services deliver accurate and efficient spooling results, up to a maximum of 30 ton back tension, reducing the likelihood of problems with incorrectly spooled wire-rope on winches.
Our equipment fits onto lorry, and can be set up at your preferred location worldwide, or at one of our bases in Norway.
Also available: Atex approved machines for use in Atex zone 2.

Remote operated spooling machine, with separate wire guide for spooling onto cable drums. Powered by diesel HPU, installed in separate 20’ container. The spooling machine’s operating speed is max 5 rotation /min. when spooling in and max 10 rotations/min when spooling out.










Change of anchor wire, drum weight 150 Ton, 25 Ton back tension

• RDS is designed to handle wirerope, fibre rope or umbilical on transport reels. The system pay out / spool in on drums weighing up to 150 Tons. The system can be used with wire grippers (page 56) or linear winch to ensure controlled handling of the material.
• RDS consist of two separate units; motor side and free side each to be mounted on deck with grillage/frame/beams depending on use.
• RDS can handle reels with sizes typically up to 6 meters in diameter and 6 meters width; but can also accommodate bigger reels with special designed grillage.
• The RDS is perfect for installing mooring lines on vessels and barges.
• Technical Info:
• Max weight of reel: 150 Tons
• Supply 380 Volt, 50 hz, 7.5 kW, IP56
• Max diameter/width of reel: Any dimension depending on grillage
• Weight/dims (LxWxH) motor side: 6.0 T / 250x142x317 cm
• Weight/dims (LxWxH) free side: 4.5 T / 250x110x306 cm
• Drive force pull: approx. 5 Ton
• Transport dimensions (LxWxH): 290x295x320 cm





• This cable push / pull system provide supplementary force when laying heavy cables.
• Usable in serial combination with oneman operation or as stand alone unit.
• Optimum and gentle transmission of power to the cable.
• Suitable for narrow trenches.
• Cable winch not neccessary.
• Transport chains are equipped with wear resistant plastic studs.
✓ Electric driven
✓ Drive power: 1,5 kW
✓ Pushing force: approx 700 kg
✓ Pushing speed: 0 – 10 m/min
✓ Cable diameter: 30 – 150 mm
✓ Weight each: 185 kg
✓ L 1700mm x W 550mm x H 9830mm




Swivels Suitable for frequent rotation under load, capacity up to 600 ton







Transport trailers for heavy load, airdriven or manual, capacity up to 50 ton







Transport air film systems for heavy load, airdriven or manual, capacity up to 50 ton


Air film transporters, capacity up to 100 ton. Can come with Easy Mover airdriven push / pull machines

Air cushion systems, capacity up to 360 ton

Transport trailers, capacity 16 ton

Total load capacity: 30 ton
Pulling capacity: 30 ton
Height: 180 mm
Air pressure: 8 bar
Air volume: 1.5 m3/min
One set includes:
1 x air-powered transport trolley load capacity 15 Ton
2 x transport trolleys JFB 15 G load capacity 7.5 Ton each
One control unit with E-stop for 15 Ton air trolly
One hose cart with 30 meter 19 mm air hose on reel






Triangle plates for towing or load distribution, capacity up to 700 ton

35 and 55 Ton capacity Tri-plates

35 to 300 Ton capacity Tri-plates

335 Ton capacity roundel plate

300 Ton capacity Tri-plate with links


Turnbuckles used to shorten or expand wirerope or chain assemblies






Turnpoints for subsea use to redirect pipes, cables and similar

3.45 Ton turnpoint H2500 mm ø1524 mm



A wide range of water bags with single units up to 100 Tonne. The water weights have a space saving design and are used for testing of cranes, winches or other equipment. Shackles, master link and fluid transfer fittings comes with each waterbag. Loadcells can also be supplied to check the actual weight. Water bags are foldable for easy storage and transportation.
Capacity: 2, 5, 10, 20, 35, 50 and 100 Ton single waterbags



GMC life boat testing kits can be used to apply an evenly distributed load to a lifeboat or any other object that has to be proof loaded.

Depending upon the required proof load, a number of water bags have to be spread evenly in the life boat and connected to the manifold.
The bags have to be filled to their maximum capacity, this way you can be sure of the total weight, as the manufacturer guarantees a filled weight of 375 kg with a tolerance of 1%.
These specially designed Life boat testing bags of 375kg each are part of a complete life boat testing set. A remote system with a manifold and filling hoses, allows proof load testing to be conducted safely, without entering the craft in the ‘dangerous’ overload situation.
The GMC life boat proof load testing set can also be used for load testing of gangways and small bridges.


GMC has a wide range of clump weights up to 900 Tonne per unit. The weights have a space saving design and are used for testing of cranes, winches or other equipment or as a fixed point on sea bed.








Manual, airdriven or electric lifting and pulling winches including associated equipment for rental.
Capacity from 500 kg to 90 ton, see below a selection of our equipment.
For more winch details, contact us for our winch rental catalouge.










Manual, airdriven or electric lifting and pulling winches including associated equipment for rental.
Capacity from 500 kg to 90 ton, see below a selection of our equipment.
For more winch details, contact us for our winch rental catalouge.










Tirak winch machine with automatic rope winder
For assembly on construction sites
To carry out work on constructions & buildings
To tow, pull or lift equipment
Closed drum storage of the rope ensure a long service life.
Electric input with 100% duty cycle guarantees a reliable continuous operation.
Model: X 520 P
Capacity: 500 kg
Speed 1. rope layer: 9 m/min.
Electric motor: One machine 220 Volt 3 phase
One machine 440 Volt 3 phase
Rope diameter: 9 mm
Rope length max.: 60 meter
Dimension B ca.: 500 mm
Dimension H ca.: 550 mm
Dimension L ca.: 800 mm
Weight: 130 kg
Comes with:




Load test certificate, Certificate of Conformity and User manual


Description Capacity
Horizontal pulling force @ 210 bar 5 Ton
Speed @ 15 liter / min @ 140 bar 60 m/min
Operation hydraulic oil Tellus 32
Max water depth 2000 meter
Rope capacity (11 mm Dynex Dux 75 or similar) 20 Meter Total weight in air


Wiresling, pennants, china fingers, grommets and fibre rope in different sizes.







This gripper machine are special designed to hold wire or sheathed spiral strand up to 167 mm diameter. The length and shape of the interchangeable inserts are calculated and designed to limit the radial pressure to 25 N/mm2 (3550 psi). The inserts have a smooth surface and a large radius. Wire or cable can be removed by the top (by opening the gripper) with easy handling, but cable socket will not be able to pass through the gripper. The machine will act as a linear winch in conjunction with deck winch.

Characteristics:


• Cable drum tensioner provide up to 15 Ton back tension also with constant tension function.
Specifications 15 T drum tensioner:
• Back tension 1 – 15 Ton
• Max line speed 10 m/min
• Drum diameter 3 meter
• Dimensions WxLxH 2.2m x 3.7m x 3.95m
• Weight 12 Ton
• Track tensioners provide up to 150 Ton back tension for installation or recovery of flexibles cables, umbilicals and steel pipe products.
• Tracks fitted with ‘V’ shaped pads operate by gripping the product between the opposing track carriages with failsafe hydraulic cylinders.
Specifications 150 T track tensioner:
• Back tension 15 – 150 Ton
• Max line speed 0-500 m/hr
• Track contact length 5.5 meter
• Nominal squeeze/m 1500 Ton (4 x 375 Ton)
• Dimensions WxLxH 4.5m x 8.5m x 5.1m
• Weight
98 Ton


15 Ton drum tensioner

150 Ton 4-track tensioner

Mooring equipment
Chain Wire Anchors Chasers
Grapnels Barges Gangways Towing gear
Shackles Wiregripper Subsea Buoys Buoyance modules
Marine equipment
Fenders Fairleads Panama chocks Bollards
Project equipment
HPU’s Generators Pumps Compressors
Lifting equipment
Winches Cranes A-Frames Spooling machines
Reel Drive System Power Packs Loadcells Load Shackles
Shackles Test weights Waterbags ROV shackles & hooks
ROV pumps Masterlinks Snatch blocks Sheaves
Wireslings Wiregrommets Softslings Personell Baskets
Equipment baskets Subsea Baskets Containers Workshop containers

Eirik Mikalsen / +47 900 67 549 / eirik.mikalsen@gmc.no Rune Christensen / +47 908 48 050 / rc@gmc.no Please
Contact persons: