Kome Kindergarten, 3rd Architecture Studio Portofolio

Page 1

Kome Kindergarten

your future artist starts here.

GINA YUWAN ALIFIA – 5200911206 STUDIO DESAIN ARSITEKTUR 3

GINA YUWAN ALIFIA

ARCHITECTURE STUDENT

ginalifia@gmail.com

@gin.naaa

082265082526

Jl. Janti Gg. Puntadewa 137A

PROFILE

Saya adalah seorang mahasiswi Arsitektur semester 3 di Universitas Teknologi Yogyakarta . Saya menyukai berbagai jenis seni , seperti fotografi , desain grafis , musik , dan lain - lain .

SKILLS

Place of Birth : Yogyakarta

Date of Birth : 10th February 2003

Age : 18

Religion : Islam

EDUCATION

2020 – NOW

Universitas Teknologi Yogyakarta

S1 Arsitektur

2017 – 2020

SMAN 11 Yogyakarta

LANGUAGE

INDONESIAN

ENGLISH

JAVANESE

KOREAN

IPA

2014 – 2017

SMPN 4 Depok Sleman

2009 – 2014

SD Muhammadiyah Sapen Yogyakarta

Akselerasi

LATAR BELAKANG, DATA & ANALISIS SITE

LATAR BELAKANG

Taman Kanak-kanak adalah suatu bentuk pendidikan yang diselenggarakan untuk mengembangkan kepribadian dan potensi diri sesuai dengan tahap perkembangan peserta didik. dengan prinsip bermain sambil belajar.

Seni memiliki manfaat yang berharga bagi anak pada masa usia dini. Anak-anak yang diberikan kesempatan untuk belajar dan terlibat dalam seni tidak hanya memperoleh pengetahuan dan pemahaman akan seni, tetapi juga manfaat di bidang bahasa, keterampilan, kesiapan prasekolah, apresiasi musik, percaya diri dan pemahaman akan dirinya sendiri.

DATA SITE

Lokasi : Jl Sukun Raya, Jaranan, Banguntapan, Kec

Banguntapan, Bantul, Daerah Istimewa Yogyakarta 55178

Luas : ± 2000 m2

SEKITAR SITE :

ANALISIS SITE

SUNPATH

RAINFALL

:

KONDISI & PROBLEM SITE : Arah matahari dari barat dan timur akan sangat panas saat jam 12 keatas.

RESPON : Mengarahkan orientasi bangunan ke arah selatan, membuat sedikit bukaan di area timur dan barat atau orientasi bangunan tetap menghadap jalan (barat) tetapi dengan memakai secondary skin untuk sisi barat bangunan

VEGETASI

KONDISI & PROBLEM SITE:

Curah hujan yang tinggi (± 90%) dapat menimbulkan genangan air karena berkontur datar

RESPON

Membuat resapan dan saluran drainase di sekeliling site dan mengalirkannya ke selokan atau saluran irigasi

CONTOUR

KELEBIHAN SITE

• Lokasi strategis, berada di daerah rural-urban

• Dekat dengan berbagai instansi pendidikan, seperti TK, SD, dan perguruan tinggi.

• Tidak begitu jauh dari pusat kota

• Tidak begitu jauh dari permukiman warga

• Lalu lintas tidak padat sehingga akan mempermudah akses kendaraan keluar masuk bangunan

• Tingkat kebisingan rendah

• Akses menuju site mudah, 2 arah

• Jalan cukup lebar -+ 5 meter

• Tanah tidak berkontur

• Sekitar site terdapat area hijau yang luas (kebun)

Site hampir di kelilingi oleh area hijau yang merupakan area pertanian kering berupa kebun tebu. Tidak jauh dari site (± 100 meter) juga terdapat pertanian basah berupa sawah Selain itu, terdapat kebun dan rumput liar serta beberapa pohon perindang jalan

KONDISI SITE : Sudah terdapat vegetasi

PROBLEM : Masih sedikit dan tidak tertata

RESPON : Menambah vegetasi jalan sekaligus menata pedestrian

POTENSI SITE:

Tanah tidak berkontur sehingga lebih mudah untuk pengolahannya, tetapi lebih rendah daripada bahu jalan dikarenakan fungsi sebelumnya, yaitu kebun

PROBLEM :

Mudah menimbulkan genangan air saat hujan

RESPON :

1. Menaikkan lahan setara / lebih tinggi dari jalan

2. Membuat saluran drainase

TK, SD, PERGURUAN TINGGI
KAFE PERUMAHAN, PENGINAPAN JEC GRHATAMA PUSTAKA FLYOVE R JANTI RSPAU
PERGURUAN TINGGI SD TK YAYASAN
KET
* * * * ** * ** ** * *

DESIGN CONCEPT

Kome Kindergarten

Berasal dari gabungan kata “Kids” dan “Home” yang berarti anak dan rumah, juga penulisannya yang mirip dengan kata “ come ” yang berarti datang. Huruf terakhir “ e ” dimaksudkan untuk kata “예술” (yesul) dalam bahasa korea, yang memiliki arti kesenian

Dengan penamaan tersebut diharapkan kindergarten ini akan menjadi tempat yang nyaman untuk anak-anak belajar (khususnya seni) seperti di rumah dan dapat menarik minat wali murid untuk ‘datang’ atau memilih kindergarten ini sebagai tempat untuk anaknya bersekolah

*logo

TAGLINE : yourfutureartiststartshere.

Bentuk gubahan tampak atas

Elemen desain utama (bentuk lengkung), menggunakan pintu sebagai simbol dari “rumah”

CONCEPT : HOMIE, MINIMALIST

THEME : RAINBOW PASTEL

COLOUR PALETTE :

MAIN DESIGN ELEMENT :

Menggunakan elemen lengkung / setengah lingkaran untuk membentuk kesan dinamis yang diterapkan pada furnitur, mural cat tembok, gubahan, dan kusen.

PSYCHOLOGICAL : CALMING, COMFORTABLE, IMPACT PLAYFUL.

KOME merupakan kindergarten yang lebih memfokuskan pendidikan anak pada bidang seni. Oleh karena itu, tersedia fasilitas ruang kelas seperti ruang musik, ruang teater (drama) & tari, ruang seni lukis, hingga ruang seni rupa (pottery) yang beberapa ruangnya akan menggunakan ruang apresiasi dan ekspresi sebagai kelasnya

Karena “Pelangi” identik dengan “ warna ” yang memiliki hubungan erat dengan “seni”, maka dari itu konsep ini diciptakan

Prinsip “Bermain Sambil Belajar” akan diterapkan pada perbedaan warna di tiap ruang agar anak dapat sambil menghafal warna serta ruang yang ditempatinya & bentuk-bentuk lengkung yang dinamis

VOLUMETRIC STUDY

Berawal dari bentuk persegi panjang seperti bentuk site

Dibagi menjadi 2

bagian kemudian menumpukkan 2 bagian tersebut

agar menjadi 1

masa yang

memiliki 2 lantai

Masa diletakkan ditengah bangunan bertujuan untuk peletakkan vegetasi untuk merespon analisis site, ruang di tepi bangunan berguna untuk akses & sirkulasi pemadam kebakaran apabila terjadi kebakaran

Berdasarkan arah matahari, bagian tengah masa dilubang untuk memberi innercourt dengan orientasi timur yang terbuka untuk memanfaatkan sinar matahari pagi yang baik untuk kesehatan & memberi penghawaan yang lebih terbuka serta mendapatkan view area hijau di sekitar site.

Pada bagian depan, diberi lubang untuk membuat area entranceyang terbuka yang juga sebagai tempat dropoff outdoor.

Masa diberi potongan melengkung pada kedua ujung depan agar tidak terlihat monoton & memberikan perbedaan antara tampak fasad bagian lain. 1 2 3 4 5

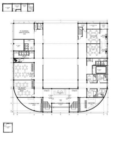
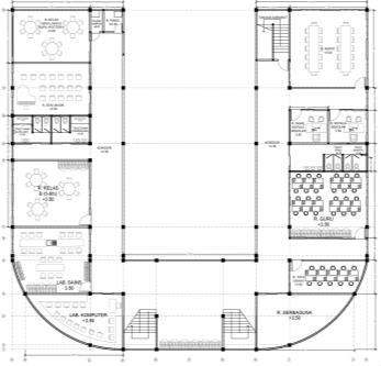
SCHEMATIC DESIGN

D E F G H H H O O O O O P P J K L M M N SITUASI SITEPLAN DENAH LT. 2 DENAH LT. 1

SCHEMATIC DESIGN

+9.28 +3.50 ±0.00 -0.30 7.000 22.500 5.000 3000 4000 6000 2500 B C E F D G A H I +7.00
TAMPAK KAWASAN BARAT TAMPAK KAWASAN UTARA
KETERANGAN
I.
POTONGAN KAWASAN UTARA
A. MINI OUTBOND B. RUANG TERBUKA RAMAH ANAK C. PLAYGROUND D. KEBUN EDUKASI E. LOBBY F. TANGGA G. AREA DROP OFF H. AREA PARKIR MOBIL
KORIDOR

3D EXTERIOR & INTERIOR

GATE VIEW DROP OFF VIEW PLAYGROUND & KEBUN EDUKASI
RUANG TERBUKA RAMAH ANAK RUANG KELAS A LOBBY RUANG MAKAN KANTIN UMUM

BUILDING SYSTEM

( BUILDING STRUCTURE)

Menggunakan sistem struktur rigid frame (rangka kaku)

Dibagi menjadi 3 bagian struktur, yaitu :

1 NAUNGAN (UpperStructure)

ATAP

RINGBALK

2 TEGAKAN (UpperStructure)

BALOK INDUK BALOK ANAK

KOLOM STRUKTUR

( BUILDING SAFETY)

PLAT LANTAI

3 LANDASAN (SubStructure) SLOOF

PONDASI

BUILDING SYSTEM ( UTILITY)

(MEP // SANITASI AIR BERSIH)

(MEP

(MEP // SANITASI AIR KOTOR)

(MEP

// DRAINASE ) // ALUR PEMBUANGAN SAMPAH) (MEP // ELEKTRIKAL LT. 1) (MEP // ELEKTRIKAL LT. 2)

CONSTRUCTION DETAILS

(BUILDING ENVELOPE –FACADE)

(LANDSCAPE - SOFTSCAPE) (LANDSCAPE - HARDSCAPE)

Turn static files into dynamic content formats.

Create a flipbook
Issuu converts static files into: digital portfolios, online yearbooks, online catalogs, digital photo albums and more. Sign up and create your flipbook.
Kome Kindergarten, 3rd Architecture Studio Portofolio by Gina Yuwan Alifia - Issuu