Gianluca Sanzone
Assoc. AIA
Work Experience
Architect I - Hickok Cole - Washington, DC
October 2024 - Present



717-885-7079
sanzone_gianluca@comcast.net
@Gianluca Sanzone
Joined Hickok Cole as an architectural staff member in their multifamily studio. In my role at the firm I have: helped drive the design of unit types; document those units and other exterior and interior conditions around the project; and collaborate with interior and exterior project team members to drive the design forward and meet important project milestones.
Architecture Associate - Niles Bolton Associates - Alexandria, VA
July 2022 - September 2024
At Niles Bolton, I had become invested in various multifamily, active adult, commercial, and conceptual projects and studies. In order to build my bank of well-rounded knowledge, I strove to take lead of various tasks and responsibilities through all phases design. During my time at the firm I helped lead design efforts, coordination between project teams, and the execution of project work while also collaborating with coworkers and other project members to see through the proper documentation needed for delivery.
Architectural Intern - SAA Architects - York, PA
Summer 2021
At SAA I was tasked with spearheading and developing CD sets, and design concepts for existing and prospective commercial and residential projects. As well as communicating with clients regarding design decisions, and visiting job sites to review and measure ongoing and future projects.
Architectural Intern - Mula Design - York, PA
Summer 2019
I took charge of preparing various drawings types for ongoing commercial projects. I helped the team prepare and produce CD sets, details, and design drawings in order to meet project deliverables and deadlines. Alongside
Involvement
Penn State Architecture Alumni Mentoring Program
2018-Present
Participated as a student and now as an Alumni. Connecting with students and mentoring them about the ins and outs of being an architectural professional while also lending a hand to current students by any means.
AIAS Penn State Chapter - Former President & Member
2017 - 2022
Served as member and President of AIAS-PSU Chapter in order to help develop and maintain professional connections, and coordinate networking events for architecture students.
AIAS Benefitting THON - Former Head Chair, THON Dancer, & Member
2018 - 2022
Former head chair, member, and dancer to help fundraise money for an annual 46-hour dance marathon aiming to fight pediatric cancer.

Education
Pennsylvania State University - Bachelor of Architecture - Spanish Minor - 3.5 GPA -Class of 2022
Pantheon Institute - Rome, Italy -Fall 2021 Study Abroad -Focus on Urban Design
Languages
English Italian Spanish
Skills / Tools
Revit AutoCAD Sketch-up Rhino3D Grasshopper Adobe Suite Lumion
TonicDM Procore
TestFit
VRay Enscape
Revu Bluebeam
Microsoft Suite
Competitions
Premio Piranesi Competition - 2021 - Rome, Italy - 1st Place
References
Walter Ploskon (Niles Bolton / Principal) - wploskon@nilesbolton.com
Haley DeNardo (Niles Bolton / Project Architect) - hdenardo@nilesbolton.com
Danika Dallam (SAA / Vice President)ddallam@saaarchitect.com
1
Professional Work Grey to Green Media City Antiquarium Thermal Baths Community Kitchen
9
15
21
29
Professional Work
Multifamily / Commercial/ Studies
From 1 - 6 Months
Revit
AutoCAD
Sketchup
Enscape
NOVU - FIU
-Sweetwater, FL
-Student Housing, 21 Stories, 280 units, 800 beds, 676,500 sq. ft.
Discovery Daytona Beach
-Daytona Beach, FL
-Active Adult Housing, 3 Buildings, 4-5 Stories, 316 units, 92,000 avg, sq. ft.
RockSpot Climbing
-New Haven, Ct
-Commercial Fit Out, 5k sq. ft.
Farmingdale Republic Airport RFP
-Farmingdale, Long Island, NY
-Market Rate Housing, 4 Buildings, 18 Townhomes, 4 Stories, 440 Units, 502,500 sq. ft



Discovery Daytona Beach







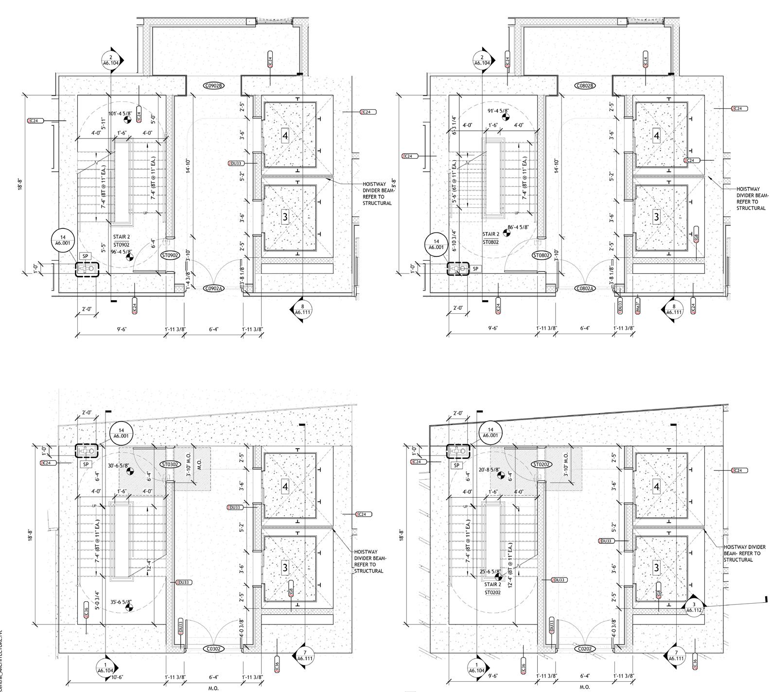
Farmingdale Republic Airport RFP

Typical Bldg. Plans FARMINGDALE -REPUBLIC AIRPORT


Grey to Green
Undergraduate Thesis
16 Weeks
Manhattan, NY
Research / Cultural / Urban Design
Rhino
Illustrator
Photoshop
Enscape
An undergraduate thesis research & design project to culminate 5 years of architecture school. Grey to Green combines my two passions of design and sports. The aim of the research was to discover why there is a scarcity of playing spaces and opportunities within dense urban areas. The research led to unfolding the underbelly of American sports being driven by a pay-to-play system. The system prioritizes high-income families and communities and disfavors low-income players. This in turn pushes playing spaces out towards suburbs and away from urban areas. The design intent is to provide a solution to this issue and reclaim the urban realm in order to provide spacial equity to urban residents and players through a new street scape.
SYSTEMS DIAGRAM

SUSTAINABLE MEASURES
- Green Spaces reduce heat island effect
- Filters the air through greenery

GREEN SCARCITY
VALUES OF THE CITY
- Public Space must be reliably available and free to use and a right to every being in the city
- Green Space is imperative to the health of the urban landscape and its inhabitats
- Most playing elds found in suburbs
- Most elds require reserving if elds not already occupied by adults
- Other available playing spaces are either rent-able, far, expensive, or require a team / league
- Green Space in US metropolitan cities severly underprovide for their residences
- Gives the area and community an identity
- Encourages outdoor recreation

PHYSICAL &
MENTAL
HEALTH
- Most people in cities crave open space for recreation
- Physical activity is a stress relieving activity
- Allows for an oasis / escape from everyday stress

SPORTS ISSUE IN AMERICA
- Proximity of playing spaces hinders opportunities
- Pay to play dominates sports
- With increase participation, the demographics become unbalanced due to wealth.
RECLAIMING RECREATION IN THE CITY
- Public space has now turned private
- Streets are the only public space left in the city where we can cross borders of gender, race, income, ethnicity, etc.
- Setting up a system that utilizes elements of existing streets to generate different programs along the urban fabric
- Play, Culture, Cuisine, Relaxation, and Commerce can thrive on pre-existing, free, public land without generating privitization. Allows for dynamic program of the residential street to freely continue serving the community and create better neighborhoods.
Green Street Systems Diagram
Typical

TurfScapes Functions
TurfScapes Sections and Usage diagram


Green Street Signage Elevation


Media City
3rd Year Project
24 Weeks
Harlem, NY
Cultural / Makerspace
Rhino
Illustrator
Photoshop
Lumion
Media City is designed to attract creatives around the neighborhood and city in order reflect the artistic energy and culture of Harlem back into it’s urban atmosphere. In order to achieve this idea, the use of a double-skin, ETFE facade was critical as it functions not only as an envelope, but allows for a unique semi-transparency and affords a glow to the building. Along with the conceptual side of this project, the building is designed to be as systematically efficient and sustainable as possible. Thermal integrations such as: a double-skin facade, radiant heating, solar panels, and sustainable material use, all contribute to make this building as efficient as possible.





























































































Building Overview Day




















Building Overview Night
Thermal Baths
5th Year Project
2 Weeks
Villa Adriana, Tivoli, Italy
Thermal Bath House
AutoCad Rhino
Illustrator
Photoshop









































































































































































Part of a group design competition for the Premio Piranesi Prix di Roma. The competition brief called for an intervention to an ancient antiquarium on Villa Adriana. The brief’s only requirement was to significantly incorporate water into the design submission. Adjacent to the proposed site are the ancient bath houses on the villa used by the emperor Hadrian, and the conopo which is a large reflecting pool. We proposed an addition to the existing antiquarium by adding a new upper floor serving as the welcome center and hospitality area for the bath house, and a new lower level serving as gallery space for artifacts. Along with the additions, we renovated the original baths that would incorporate a water feature springing from the elevated level of the site, flowing through the various programs down to the baths to create a sensorial connection throughout all levels of the building.







































4th Year Project
16 Weeks
State College, PA
Kitchen / Cafe / Lab
Rhino
Illustrator Photoshop
Designated as a Design-Research-Studio, De-Zone was focused on rethinking how our communities, towns, and cities are structured and designed. My focus was on our food ecosystem in the US and how fresh, readily available food is far too expensive for the average consumer and hard to come by as our grocery stores are stocked with processed, preserved, and modified foods. Our bodies need the nutrition from natural, holistic, and fresh sources. The community kitchen is an architectural response to this problem. Pushing back against existing zoning and building codes, the project rewrites these in order to produce fresh food, feed the adjacent community, and educate people about healthy dietary practices and methods. Allowing humans, their food, and livestock to coexist in a sustainable environment. Packaging farm yards, kitchens, dining spaces, greenhouses, and classrooms into one typology.




COMUNITY KITCHEN DE-ZONE
BASE:
-Public Knowledge of Food
-Directly Sourced Food
-Urban/Rural Cultural initiative

Directly Sourced Food
- Crops and livestock on-site
- New Initiative for inventive farming
- Giving food to the community

Pulic Knowledge of Food
- Knowing where food comes from
- Being Self-Su cient
- Knowing how to harvest, cook, and prep food

Applicable Design Quilt:
- Space / Scale
- Farming
- Interconnevity
- Learning




Space and Scale
- More rural spaces like parks can be used for larger C.K. and farming and livestock
- As plot space decreases more of a focus on compact and innovative practices


Community Kitchen Systems Diagram



- Crops will be planted, grown, and harvested at C.K.
- Livestock used for food will also live on C.K. land
- Emphesis on greenhouse and hydroponic growing will be used in more urban locations
- All food waste will be composted

Urban/Rural Cultural Initiative
- Push for growing our own food
- More reliance on eachother rather than a supermarket
- Promoting a healthy and sustainable lifestyle

- Partnering w/ Penn State to learn and research more about food
- Partnering with soup kitchens, schools, retirement homes, etc. to teach how to prep food and give back to the community
- Each community kitchen will focus on a specific dietary need

- Chefs working at C.K. will demonstrate how to harvest, prep, and cook food
- Learning pods at each C.K. for more personal lessons
- Implementation w/ community programs and schools
- An App will be the focal point to connect the community to show what programs, chefs, and meals are going on at each C.K.
Design Language
- C.K. should be as transparent as the program itself
- Emphasis on traditional rural building vernacular
- Use of local materials to be as sustainable as possible
Thank You