HOSPITAL REFUGIO



![]()






Soy estudiante de 9no ciclo de la carrera de arquitectura, con conocimientos en desarrollo de planos arquitectónicos y visualización 3d. Trabajar en la propuesta de diseño hospitalario fue una experiencia que puso en práctica los conocimientos teóricos adquiridos y desafíos relacionados con la normativa sanitaria, la funcionalidad de los espacios y la optimización de recursos
Soy estudiante de arquitectura finalizando el 9no ciclo con éxito. Poseo conocimientos sobre cad, modelado 3d, renderizado, entre otros. Interesada en laborar en el área de urbanismo, restauración e interiores. Posteriormente, el aprendizaje que me llevo del taller se basa en arquitectura hospitalaria donde existen múltiples factores a tomar en cuenta, pero la eficiencia y funcionalidad son prioritarios para facilitar la recuperación y la salud integral de los usuarios el cual se ve reflejado en el diseño que propongamos a futuro.
DATOS DE PROYECTO 01
CHANCAY-HUARAL
CONCEPTO E IDEA RECTORA DEL PROYECTO 04
CHANCAY-HUARAL
NORMATIVA PARA DISEÑO HOSPITALARIO 02
CHANCAY-HUARAL
PROPUESTA DE PROGRAMA Y ZONIFICACIÓN 05
CHANCAY-HUARAL
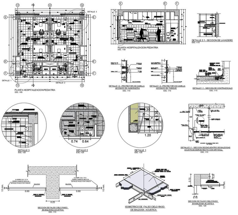
PLANOS A DETALLE
CHANCAY-HUARAL
DETALLE DE FACHADA
CHANCAY-HUARAL
PROPUESTA DE INTEGRACIÓN URBANA 03
CHANCAY-HUARAL
CHANCAY-HUARAL
PLANOS ARQUITECTÓNICOS
CHANCAY-HUARAL
VISTAS DEL PROYECTO
CHANCAY-HUARAL

USO: EQUIPAMIENTO DE SALUD
LOCALIZACIÓN: CHANCAY - HUARAL - PERÚ
La construcc ón de un hospita de nivel de atenc ón II-1 en Chancay - Huara representa un avance significat vo para la región. Esta moderna infraestructura no solo amp ará la capac dad de atención médica, s no que también mejorará la cal dad de vida de miles de peruanos.
A contar con un hospita de mayor complejidad, se podrá br ndar una atención más especializada y oportuna, reduciendo los tiempos de espera y garantizando un acceso equitativo a servicios de sa ud de ca dad. Este proyecto es fundamental para forta ecer el s stema sanitario local y contribuir al desarrollo ntegral de a comunidad















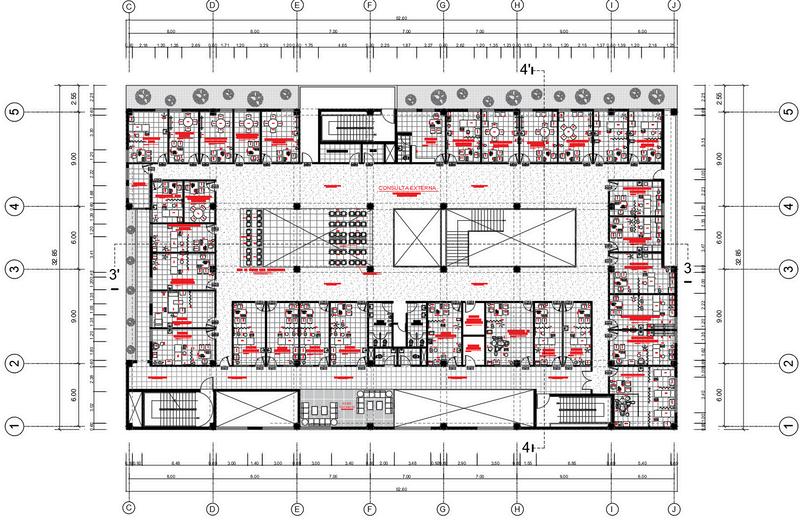
ZONIFICACIÓN DE PROYECTO - UPS/UPSS

DATOS DEL TERRENO:
CALLES COLINDANTES:
NORTE:LosIncas
ESTE:Sinnombre
SURESTE:Sinnombre
OESTE:24deAgosto
LEYENDA:





PATODEMANIOBRAS (INSUMOSYCARROZA)
PATIODEMANIOBRAS (AMBULANCIA)
INGRESOPEATONALHACIA CONSULTAEXTERNA
INGRESOPEATONALHACIA EMERGENCAS
INGRESOPEATONALDEL PERSONAL
INGRESOVEHICULARDE VISITANTES
INGRESOVEHICULARDEL PERSONALYVISITANTES














DATOS GENERALES UBICACIÓN EMPLAZAMIENTODELTERRENO




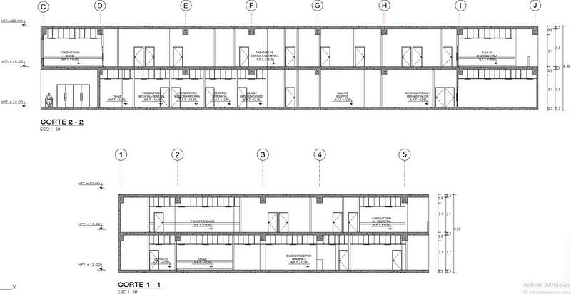
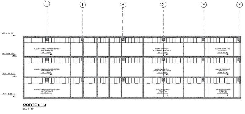
CORTES LONGITUDIANLES



TRANSVERSALES




PRECIPITACIONES
MEDIAANUAL:15ºCY24ºC
INVIERNO:14ºCY20ºC
ALTA DURANTE TODO EL AÑO DEBIDO A SU
PROXIMIDAD AL OCEANO PACIFCO, CON UN PROMEDIODE80%A90%

ZONADEBAJA PLUVIOSIDAD VIENTOS
PREDOMNAN LOS VIENTOS PROVENIENTES DEL SUROESTE, DEBDO A LA INFLUENCIA DEL ANTCICLÓN DEL PACÍFICO SUR LA VELOCIDAD MEDIA DEL VIENTO
SUELEESTARENTRE15Y25KM/H.


NORMATIVA PARA EL DISEÑO HOSPITALARIO
SECTOR SALUD

CAPITULOI:ASPECTOS
GENERALES
Artículo 1.- Se denomina edificación de salud a todo establecimiento destinado a desarrollar actividades de promoción, prevención, diagnóstico, recuperación y rehabilitacióndelasaluddelaspersonas,a los cuales se les reconoce como instalacionesesenciales.
Artículo2Tiposdeedificaciones
Hospital

CentrodeSalud
PuestodeSalud
CentroHemodador
CentrosdeHemoterapiaTipoI
CentrosdeHemoterapiaTipoII
Artículo3Seprecisanlassiguientesdefiniciones:
Núcleo

UnidaddeEmergencia
Deficiencia Discapacidad
Minusvalía

CAPITULOII:CONDICIONES
DEHABITABILIDADY
FUNCIONALIDAD
Artículo4.-Seubicaráenloslugaresqueexpresamentelo señalen los Planes de Acondicionamiento Territorial y Desarrollo Urbano, evitando los lugares de peligro alto y muy alto según los Mapas de Peligros En caso no se cuenteconestainformación,sedeberáelaborarestudios demicrozonificación.
Encuantoaltipodesuelos:
Suelos rocosos o suelos secos, compactosydegranogrueso
De encontrarse suelos de grano fino,arcillas,arenasfinasylimos
Encuantoaladisponibilidaddelosserviciosbásicosyla operacióndelaslíneasvitales:
Abastecimientodeaguapotableadecuadaencantidad ycalidad.
Loshospitalesdebencontarcondesagüeconectadoa laredpública
Energíaeléctricay/ogruposelectrógenos.
ComunicacionesyRedTelefónica.
Unplandemanejoderesiduossólidos
Sistemadeproteccióncontraincendios,NormaA-130, RequisitosdeSeguridad.

Debeproponerseunanuevasolucióndeacuerdoa estudiosdesitioestablecidaenlanormaE.030.
Encuantoasuubicación.
Serpredominantementeplanos.
Estaralejadosdezonassujetasaerosióndecualquier tipo(aludes,huaycos,etc)
Estarlibresdefallasgeológicas.
Evitar hondonadas y terrenos susceptibles de inundaciones
Evitar terrenos con aguas subterráneas (se debe excavar mínimo 2.00 m. detectando que no aflore agua)
Estarasuficientedistanciadelbordedeocéanos,ríos, lagos y lagunas, o a suficiente altura para evitar que sean inundados según lo determine los estudios de hidráulica.
Sistemadedrenajedeaguaspluviales
Sistemadetanquesparacombustiblesconcapacidad suficientepara5díasdeabastecimientoautónomodel hospital
Sistema de almacenamiento de gases medicinales paraabastecimientoautónomoporunlapsode15días comomínimo
Sistema de calefacción, ventilación y aire acondicionadoparalosservicioscríticosdelhospital.
Encuantoasuaccesibilidad:
Los terrenos deben ser accesibles peatonal y vehicularmente.
Garantizar un efectivo y fluido ingreso así comodevehículosdelCuerpodeBomberos.
Seevitarásuproximidadaáreas deinfluenciaindustrial,establos, crematorios,basuralesyen generallugaresquepuedan impactarnegativamenteenel funcionamientodelaedificación desalud.


SECTOR SALUD
Artículo 5.- Deberán mantener área libre suficiente para permitir futuras ampliaciones y paraelusodefuncionesalairelibre.
Losterrenosdeberánser preferentementerectangulares conladosregularesy delimitadospordosvías.

Artículo 6.- El número de ocupantes de una edificacióndesaludparaefectosdelcálculode: Lassalidasdeemergencia.
Pasajes de circulación de personas, ascensores.
Númerodeescaleras.
Sedeterminarásegúnlosiguiente:

Áreasdeserviciosambulatoriosy diagnóstico 6m²xpersona
Sectordehabitacones(superficie total) 8m²xpersona
Oficinasadministrativas 10m²xpersona
Áreasdetratamientoapacientes internos 20m²xpersona
Salasdeespera 08m²xpersona
Serviciosauxilares 8m²xpersona
Depóstosyalmacenes 30m²xpersona

Artículo7.-LosHospitalesseclasificansegún lossiguientesfactores:
Porelgradodecomplejidad:
HospitalTipoI:Brindaatencióngeneralen las áreas de medicina, cirugía, pediatría, gineco-obstetriciayodontoestomatología
Hospital Tipo II: Da atención básica en los servicios independientes de medicina, cirugía,gíneco-obstetriciaypediatría.
HospitalTipoIII:Atenciónen determinadassub-especialidades.
Hospital Tipo IV: Brinda atención de alta especializaciónacasosseleccionados.
Porelnúmerodecamas:
HospitalPequeño 49camas
HospitalMediano 50-149camas
HospitalGrande 150-399camas
HospitalExtraGrande 400camasamás
Porelámbitogeográficodeacción:
HospitalNacional
HospitaldeApoyoDepartamental
HospitaldeApoyoLocal
Artículo8.-Elhospitalestádividido en8núcleos:
Pacienteshospitalizados
Pacientesambulatorios
AyudaalDiagnósticoy
Tratamiento
ServiciosGenerales
Administración, Emergencia
AtenciónyTratamiento
ConfortMédicoyPersonal
Artículo 9.- Existen siete tipos de flujosdecirculación,enfuncióndel volumen, horario, confiabilidad y compatibilidad:
Circulacióndepacientes ambulatorios
Circulacióndepacientes internados.
Circulacióndepersonal
Circulacióndevisitantes.
Circulacióndesuministros
Circulaciónderopasucia
Circulacióndedesechos
Artículo 10.- Según los Flujos de Circulación Externa es necesario considerar los ingresos y salidas independientes para visitantes en las Unidades, pacientes, personal, materialesyservicios
Artículo 11.- Las áreas de estacionamiento de vehículos deberán cumplir con los siguientesrequisitos:
Estarseparadaspara personaldelHospital, visitantesypacientes ambulatorios
Considerarunvehículopor cadacamahospitalaria. Establecerespacios reservadosparalos vehículosdelaspersonas condiscapacidad.
Artículo 12.- Los flujos de circulación Interna deben considerar:
Proteccióndeltráficoenlas
UnidadescomoCentro Quirúrgico,Centro Obstétrico,Unidadde TerapiaIntensiva, NeonatologíayEmergencia. Evitarelentrecruzamiento dezonalimpiaysucia. Evitarelcrucecon pacienteshospitalizados, externosyvisitantes.

PROPUESTA DE INTEGRACIÓN URBANA


MEJORAMIENTO DE INFRAESTRUCTURA VIAL



Presencia de viviendas taller junto a la zona agricola

PREsENcIA DE LA ZONA INDUSTRIAL CERCA AL PUERTO
Creación de un boulevard comercial

RESDENCIALDENSIDADALTA
RESDENCIADEDENSDADMEDIA
COMERCIOLOCAL
COMERCIOMETROPOLITANO
VIVIENDATALLER
OTROSUSOS
ZONAAGRCOLA
ZONACULTURAL





LA MOV LIDAD QUE SE PRETENDE USAR EN CHANCAY A FUTURO DEBE SER HOL ST CA, ADAPTAT VA Y ORIENTADA HACIA LA SOSTENIBILIDAD, ASEGURANDO BENEFIC OS DURADEROS TANTO PARA LAS PERSONAS COMO PARA EL MEDIO AMBIENTE ASIM SMO, EL TRAZO DE LAS V AS AYUDA A POSIC ONAR LOS EQUIPAM ENTOS URBANOS EN TRAMAS REGULARES

ÁREA:14331m2 PERÍMETRO: 544 5m


MEJORAM ENTODE INFRAESTRUCTURA VIAL
PRESENCIADE CONDOM NIOS, DEPARTAMENTOS, ETC

IMPLEMENTAC ONDE UN NSTITUTOTECN CO
CREACIÓNDEUN CENTROCOMERCIAL ENLAZONANORTE
MPLEMENTACIÓN DENUEVOS EQU PAM ENTOS

DESARROLLODEUN EJECOMERCIAL


CREACIÓNDEUNCENTRO CULTURALENLAHUACA CHANCAY

CREAC ÓNDEUNA UNIVERS DADPÚBL CA
MPLEMENTACIÓN DECOMERC OZONAL FRENTEALA PANAMER CANA NORTE

MPLEMENTACIÓNDE NUEVOSEQUIPAMIENTOS
CREACIÓNDEUN BOULEVARD COMERCIALQUE CONECTELA PANMER CACONEL MEGAPUERTO






CONCEPTO E IDEA
RECTORA DEL PROYECTO
PROPUESTA DE HOSPITAL


PUNTOS CLAVE INSPIRADOS EN LA VOLUMETRIA
Búsqueda de la conectividad de los espacios con el entorno.
Optimización de áreas verdes en el terreno en pendiente para la sostenibilidad de la misma
Baja incidencia del sol y aprovechamiento de la dirección de los vientos

ESPACIO PUBLICO


Este puerto ha sido diseñado para ser uno de los más grandes y modernos de la región, con el objetivo de convertirse en un centro logístico clave para el comercio marítimo en el Pacífico, particularmente en a conexión entre Asia y Sudamérica.
PRINCIPIOS ORDENADORES

EJES ORDENADORES ap icados por as cond ciones ambientales y trama urbana

SINUOSIDAD TOPOGRÁFICA
Se integra la secuencialidad de la topograf a al asentar os volúmenes generando espac os de recreación
ESPACIO PRIVADO




ESTRATEGIAS DE DISEÑO VOLUMÉTRICO








ESCALONAMIENTO INTERSECTADO A LA TOPOGRAFIA

VOLADIZOS = REPRESENTACION AL MUELLE



La simbología de puerto adoptado al hospital es el borde entre lo conocido (la tierra firme - nivel alto) y lo desconocido (e vasto océano - nivel bajo), evocando un sentido de misterio y potencial.

reflejarlo como puerto es visto como un refugio seguro


NTEGRACION DE AREAS VERDES Y ESTACIONAMIENTOS

DE ZONIFICACIÓN
ZONIFICACIÓN DE PROYECTO - UPS/UPSS

ZONIFICACIÓN POR

CONSULTA EXTERNA HOSPITAL ZACIÓN
CUARTO NIVEL
CONSULTA EXTERNA REHABIL TAC ÓN FARMACIA
DIAGNÓSTICO POR IMÁGENES HOSPITAL ZAC ÓN
CUARTO NIVEL
ADMINISTRACIÓN
GESTIÓN DE LA INFORMACIÓN CONFORT
PATOLOG A CLÍNICA
HOSP TALIZACIÓN CAFETERÍA
TERCER NIVEL
CENTRO QUIRUEG CO ESTERIL ZACIÓN CENTRO OBSTÉTR CO
SEGUNDO NIVEL
EMERGENC AS NUTR CIÓN LAVANDERÍA ANATOMÍA PATOLÓGICA SERVIC OS GENERALES
PRIMER NIVEL
NOTA
UPSS:UNDADPRODUCTORADESERVCOSDESALUD
UPS:UNDADPRESTADORADESERVICOS
PROGRAMA ARQUITECTÓNICO
ADMNSTRACÓN
EMERGENCA
CENTROQUIRÚRGICO
CENTROOBSTÉTRCO
CONSULTAEXTERNA
HOSPITALIZACÓN
DAGNÓSTICODEIMÁGENES
REHABILITACÓNFÍSICA
CENTRALDEESTERLZACIÓN
PATOLOGÍACLNCA
ANATOMAPATOLÓGICA
FARMACIA
NUTRCIÓN
SERVCIOSGENERALES
LAVANDERÍA
CONFORT-RESDENCAMÉDICA
GESTÓNDELANFORMACÓN
VARIOS-CAFETERÍA



































































































RECORRIDO DEL PROYECTO





















INGRESO A EMERGENCIASESTACIONAMIENTO PUBLICO

ESTACIONAMIENTO PUBLICOINGRESO A REHABILITACION

PISO 5 :
CONSULTA EXTERNA HOSPITALIZACIÓN
PISO 4 :
CONSULTA EXTERNA REHABILITACIÓN FARMACIA
DIAGNÓSTICO POR IMÁGENES HOSPITALIZACIÓN
PISO 3 :
ADMINISTRACIÓN
GESTIÓN DE LA INFORMACIÓN
CONFORT
PATOLOGÍA CLÍNICA
HOSPITALIZACIÓN
CAFETERÍA
PISO 2:
CENTRO QUIRUEGICO
ESTERILIZACIÓN
CENTRO OBSTÉTRICO
PISO 1: EMERGENCIAS NUTRICIÓN LAVANDERÍA
ANATOMÍA PATOLÓGICA
SERVICIOS GENERALES




















PRINCIPOSORDENADORES





v sta de estacionamiento de rehabil tac ón f s ca
La propuesta de Hosp ta Refug o en Chancay es para servir como un mode o de nfraestructura res l ente y sostenib e capaz de hacer frente a os desafíos de futuro y me orar a ca idad de v da de a pob ac ón







vista de patio inter or









P SO5 CONSULTAEXTERNA HOSP TAL ZAC ÓN ALUCOBOND
ADM N STRAC ÓN GEST ÓNDELA NFORMAC ÓN CONFORT PATOLOG ACL N CA HOSP TAL ZAC ÓN CAFETER A

v sta de fachadas de hospital zación







vista de fachada y estacionamiento de emergenc as






MAQUETA 1/100





