Skip to main content

PORTAFOLIO - VIVIENDA SOCIAL COLECTIVA

Page 1

ARQUITECTÓNICO PORTAFOLIO

Luis Roberto Montes Mendez Gerson Bastidas Fabra
D I S E Ñ O Y M E T O D O L O G Í A V

Tablade contenidos

01 02 03 05 06 04 MARCOCONCEPTUAL MARCOREFERENCIAL CASODEESTUDIO MEMORIATERRITORIAL ESQUEMABÁSICO PROYECTODEDISEÑO MARCOLEGAL contenidos

Introducción

"Bienvenidosamiportafoliodediseño dondeexploraránunafusióninspiradoraentreecourbanismoyviviendasdecalidad.Mienfoquesecentra en la creación de comunidades sostenibles y accesibles que abordan los desafíos contemporáneos del desarrollo urbano. A través de mi proyectodeecourbanismo,buscoestablecerespaciosurbanosequilibrados,dondelanaturalezaylavidaurbanaconvergenarmoniosamente. Almismotiempo,miproyectodeviviendasdeinteréssocialseenfocaenbrindarhogaresasequiblesydealtacalidadparaaquellosquemáslo necesitan.Atravésdelaintegracióndetecnologíassostenibles,diseñoseficientesyunacuidadosaplanificación,estoycomprometidoaofrecer solucionesinnovadorasquemejorenlacalidaddevidadelascomunidadesyprotejannuestroentorno.Losinvitoaexplorarlosdetallesdeestos proyectosquereflejanmipasiónporeldiseñoresponsableyelimpactopositivoenelmundoquenosrodea."

01. MARCOCONCEPTUAL unsentimientoadaptable.

Ejercicio-Habitar

HABITARLOCOTIDIANO

OBJETIVODELEJERCICIO

Explorar y reflexionar sobre diferentes formas en las que las personas vivenyocupanelespacio.Atravésdeesteejercicio,sebuscaampliar la comprensión de las diversas necesidades, preferencias y estilos de vidadelaspersonas,asícomofomentarlacreatividadylainnovación eneldiseñodeespacioshabitables.

Al analizar y estudiar diferentes formas de habitar ya sea a través de la observación de comunidades existentes o mediante la exploración de conceptos imaginativos, se pueden identificar soluciones arquitectónicas y urbanísticas que se adapten mejor a las necesidadesdelaspersonasyalentornoenelqueseencuentran.

REFLEXIÓNPERSONAL

El ejercicio de formas de habitar ha sido una experiencia fascinante y enriquecedora para mí. Me ha permitido expandir mi visión sobre cómo las personas ocupan y viven en el espacio, y me ha llevado a reflexionar profundamente sobre la diversidad de necesidades estilos devidayculturasqueexistenenelmundo.

Al estudiar diferentes formas de habitar he descubierto que existen innumerables soluciones creativas y únicas para satisfacer las necesidades humanas. Desde comunidades autosuficientes y ecológicashastaespacioscompactosymultifuncionales,cadaforma de habitar refleja una combinación de valores, tradiciones y aspiracionesdelaspersonasquelohabitan.

MODOSDEHABITAR

Modelosdeconvivencia

HABITAR

Elconceptodehabitarserefierealaacciónylaexperienciadeocupar un espacio y hacerlo habitable, convirtiéndolo en un lugar de residencia y de vida. No se limita simplemente a tener un techo sobre nuestracabeza,sinoqueimplicalainteracciónentrelaspersonasysu entorno,creandounsentidodepertenenciayconexiónemocional.

Habitar va más allá de la mera función utilitaria de habitar un lugar físico. Se trata de cómo nos relacionamos con el espacio, cómo lo personalizamos cómonosadaptamosycómocreamossignificadoen él El habitar implica la construcción de una identidad la expresión de nuestras necesidades y deseos y la creación de un entorno que nos proporcioneseguridad comodidadybienestar.

VIVIENDA

Se refiere a un espacio físico diseñado y destinado para ser habitado por personas. Es un lugar donde las personas encuentran refugio, privacidad seguridad y comodidad, y donde llevan a cabo diversas actividades relacionadas con la vida diaria, como descansar, dormir, comer,socializaryrealizartareasdomésticas.

Laviviendacumpleunafunciónfundamentalenlasatisfaccióndeuna necesidad básica humana: el resguardo y la protección. Además de proveer un espacio habitable la vivienda también puede ser considerada como un reflejo de la identidad y el estilo de vida de sus habitantes. Las preferencias estéticas, la cultura y las necesidades individualesinfluyeneneldiseñoylaconfiguracióndelavivienda.

EJERCICIO-HABITOS

Ejerciciodebusqueda

MARCOREFERENCIAL

Casosdeestudio.

02.

QUINTA MONROY QUINTA MONROY

La buena ocal zac ón es clave para la economía de cada fam lia para disminuir costos

FICHA TÉCNICA:

No: 93 viviendas

Fecha Inicio: 2003

Fecha Culminación: 2004

Clase de Uso: Vivienda Unifamiliar

Localización: Iquique - Chile

Barrio: Quinta Monroy

Dirección: Av. Pedro Prado – Av. 2 Sur

Autor: Arq. Alejandro Aravena - Elemental

Como respuesta a esta prob emát ca, se egó a la conclus ón de que las v v endas tuv eran una superf c e de 36 m² es dec r, solo la m tad de a casa La idea consistía en que os usuarios de las viviendas ser an los encargados de las amp iac ones futuras l egando a os 70 m² por vivienda

DESCRIPCIÓN

Proyecto de reub cac ón de viviendas

Propuesta ntermedia entre la v v enda de baja a tura y ed f cios en altura.

Proyecto que pretende una volumetría «porosa» con e f n de ser «l enada» en el t empo por e usuario

Propuesta del «edificio para elo» compuesto por un dad doble casa y apartamento), a casa crecerá hor zontalmente sobre el piso y el apartamento crecerá vert calmente sobre el a re

El proyecto llamado Quinta Monroy es producto de la necesidad de darles las condiciones mínimas de habitabilidad a unas 100 familias. Estas ocuparon ilegalmente por 30 años un terreno de 0.5 hectáreas en el centro de iquique, Chile.

E proyecto tamb én incluye e tratamiento del espac o colect vo el cua es una propiedad común pero de acceso exclusivo de los residentes. Este espacio co ectivo perm te dar lugar a la consol dac ón de la vida comunitar a

Se puede identfcar como están ubicados estratégcamente cada boque de vivienda, su acceso y recorrido al proyecto. Se dentifica de igual forma que colnda con otros objetos arqutectóncos.

U B I C A C I Ó N
CHILE IQUIQUE IMPLANTACIÓN
L
E S T R A T E G I A E S P A C I A
P L A N I M E T R
A
Í
C A S O I N T E R N A C I O N A L - C A S O I N T E R N A C I O N A LA M É R I C A L A T I N A A M É R I C A L A T I N A V A R I A B L E C L I M Á T I C A
PLANTA ARQ - NIVEL 1 PLANTA ARQ - NIVEL 2 FACHADA CORTE TRANSVERSAL B - B' CORTE LONGITUDINAL A
- A

SOCIALHOUSINGMONTERREY,MEXICO

Architects:ELEMENTAL

Área:6591m²

Year: 2010

Áreainicialdelacasa: 40m2

Áreaampliadadelacasa: 58,75m2

ÁreaDúplexInicial: 40m2

ÁreaDúplexAmpliada: 76,60m2

El proyecto plantea un edificio continuo de tres pisos de altura, en cuya sección se superponen una vivienda (primer nivel) y un departamento dúplex (segundo y tercer nivel). Ambas unidades están diseñadas para facilitar técnica y económicamente el estándar final de clase media, del cual entregaremos la “primera mitad” (40m2).

14Módulosoedificiosdetresnivelescadauno

5 Departamentos por edificio (para un total de 70 departamentosenelconjunto)

2Tiposdedepartamentos(plantabajayplantaalta)

5Cajonesdeestacionamientoporedificio

1Cajóndeestacionamientoparavisitasporedificio

Cuentacondepartamentosdemovilidaduniversal

Amplia área verde con mas de 2 mil 200 m2 de superficiealcentrodelconjunto

Cada edificio o modulo consta de 5 de cinco departamentos:

Dos enplantabaja

Tresenplantaalta

C R I T E R I O S F O R M A L E S

Plantea un edificio continuo de tres pisos de altura, en cuya sección se superponen una vivienda (primer nivel) y un departamento dúplex(segundoytercernivel).

El edificio es poroso para que los crecimientos ocurrandentrodesuestructura

Por el hecho de ser un crecimiento previsto e inducido, éste no afectará la arquitectura del edificio manteniendo en todo momento una armonia y una estética apropiada en el conjunto

La cubierta continua propuesta sobre llenos y vacios protege de la lluvia las zonas de emplación y asegura el perfil definitivo del editingfrentealespaciopúblico

C R I T E R I O S F U N C I O N A L E S

El conjunto habitacional cuenta con un diseño arquitectónico bioclimático, tomando en cuenta los vientos dominantes del sureste, sus escurrimientos hacia el noreste y el asoleamiento demaneratransversalalterreno.

El áreas verdes rodea al edificio, reduciendo al mínimo la distanciaentreelespaciocomunitarioylasviviendas

Se genera un espacio colectivo de accesos resguardados que da lugar a las redes sociales y genera las condiciones favorables para que la mantención y cuidado suceda por la proximidaddelascasas

Accesodirectodesdeelespaciopúblicoyestacionamiento.

El objeto de crear departamentos que puedan contar con un futuro crecimiento es ofrecer una vivienda económica al alcance del grueso de la población y que en su momento, a la medida de sus necesidades y posibilidades futuras, pueda cada propietario ampliarsudepartamentoaunmuybajoc t

C A S O I N T E R N A C I O N A L C A S O I N T E R N A C I O N A L N O R T E A M É R I C A N O R T E A M É R I C A
L A S A N A U C A S L A S A N A U C A S U B I C A C I Ó N MÉXICO MONTERREYSANTACATARINA
P R O G R A M A S D E N E C E S I D A D E S P L A N I M E T R Í A

B O S T O N R O A D - B O S T O N R O A D

B R O N X B R O N X

Morrisaniatieneunapoblacióndemásde35000 Morrisania durante décadas ha sido una de las comunidades más pobresdeAmérica Másdelamitaddelapoblaciónvivepor debajo del umbral de la pobreza y recibe asistencia pública. La mayoría de los residentes son Afroamericanos de Puerto Rico o de ascendencia Dominicana. La gran mayoría de los hogaresestánocupadosporinquilinos.

Boston Road ofrece 154 unidades de vivienda para personas anteriormente sin hogar, muchos de ellos de la tercera edad y que viven con VIH / SIDA así como para adultos trabajadoresdel surdelBronxconbajosingresos.

Arquitectos:Alexander

GorlinArchitects

Área:8361M2

Año:2015

BATHROOM K TCHEN BEDROOM A R CHAMBER C RCULATION CONCRETOARMADO PERF LMETÁLICOENI CRISTAL PASAMANOSMETÁL CO ENACERO NOX DABLE PANELESMETÁLICOS L O B B Y S T A I R S B A S E M E N T A P A R T M E N T S R E C R E A T I O N A R E A U R B A N G R E E N S P A C E S
C A S O I N T E R N A C I O N A L - C A S O I N T E R N A C I O N A LN O R T E A M É R I C A N O R T E A M É R I C A
-
U B I C A C I Ó N A N T E C E D E N T E S C O N C E P T O V A R I A B L E S C L I M Á T I C A S T I P O L O G Í A Ú N I C A E S Q U E M A D E C O R T E M A T E R I A L I D A D S I S T E M A C O N S T R U C T I V O Aporticado + Mampostería P L A N I M E T R Í A

Las causas del problema de acceso a vivienda y de viviendas precarias se relacionan directamente con la historia económica política y social del país que en las últimasdécadas,hadadocomo resultadoamásde50%de lapoblaciónencondicionesde pobrezapatrimonial.

Las Américas es un prototipo para el desarrollo de viviendas verticales en la ciudad de León México. El proyecto de vivienda tiene como objetivo compensar la expansión descontrolada de la ciudad, sirviendo como un catalizador para la regeneración urbana y la mejora de la calidad de v ingresos

Arquitectos:SO-II

Área:3000M2

Año:2021

C A S O I N T E R N A C I O N A L - C A S O I N T E R N A C I O N A LN O R T E A M É R I C A N O R T E A M É R I C A C O M P L E J O R E S I D E N C I A L C O M P L E J O R E S I D E N C I A L L A S A M E R I C A
L
S
S
A S A M E R I C A
U B I C A C I Ó N A N T E C E D E N T E S C O N C E P T O V A R I A B L E S C L I M Á T I C A S T I P O L O G Í A Ú N I C A P L A N I M E T R Í A M
A T E R I A L I D A D

CARRERA5CALLE26C,BOGOTA250017

E M P L A Z A M I E N T O

UnaarquitecturaqueseintegreconlaexistentePlazadeToros y que permita la transparencia entre la ciudad y su piedemonte, recuperando la escarpada calle contigua al Parque de la Independencia, convertida en un jardín peatonal formado por escalinatas y rampas unidas al conjunto residencialyalparque.

D E A P R I N C I P A L

Criterio fundamental en la concepción del conjunto arquitectónico implicaba que éste fuera abierto, como corresponde a una idea de la ciudad, democrática, tolerante y rica en espacios públicos concebidos para el disfrute del ciudadano

El arquitecto prefiere el ladrillo como elemento constructivo Se trata de una elección difícil para rascacielos porque es el material de las casas bajas, edificios pobres o provincianos. Sin embargo Rogelio Salmona lo aprecia porque es un material de bajo costo, duradero, y con gran fuerza expresiva

S I N T E S I S

Se trataba de crear un proyecto arquitectónico que rebasara los límites de su propio programa y propusiera un basamento a escala del peatón conformado por plazoletas y jardines andenes,iluminación arborización,unasiluetayterminalesde la edificación y que fuera percibido en forma diferente desde los distintos sitios de la ciudad. Con el objeto de crear una relaciónestéticaentreelciudadanoylaarquitectura.

C A S O N A C I O N A L - C A S O N A C I O N A LB O G O T Á - C U N D I N A M A R C A B O G O T Á - C U N D I N A M A R C A U B I C A C I Ó N
T O R
U E T O R R E S D E L P A R Q U E M O R F O L O G Í A
R E S D E L P A R Q
I
S I S T E M A D E A G R U P A C I Ó N S I S T E M A E S T R U C T U R A L
S I S T E M A E S P A C I A L

Terreno irregular por lo cual se implementan muros de contención.

Deciden transformar algo básico en algo mucho mas complejo logrando una forma y estructura no habitual en el sector ya querecogíacaracterísticasparasalirdeloconvencional.

La flexibilidad del diseño resulta en una variedad de espacios y configuraciones con apartamentos de un piso y dúplex, donde diversos tamaños y distribuciones acogen diferentes estilos de vida para familias,parejasypersonassolas paraasíformaruna comunidadincluyenteydinámica

Enellobbyhayunrestaurante áreasadministrativasysalones

Lasáreassocialesdeledificioseubicanenelúltimopisodonde se encuentra el gimnasio y áreas húmedas con vista a la ciudad.

Cuenta con una distrbucón muy intuitva la cua es fácl para los usuarios adaptarse cuenta con espacos amplios y tene una combinación perfecta entre oprivadoy osocal Se puede unir para formar un solo apartamento al gual que tene una partcuardad de 360ª

Se puede unir para formar un solo apartamento al gual que tene una partcuardad de 360ª

S I N T E S I S

Este edificio ubicado en el costado sureste de Medellín se materializa a través de la adición de prismas rectangulares que se agrupan en diferentes alturas para encontrar la mejor direcciónadiferenteslugaresdelaciudad.Elprogramabrinda soluciones habitacionales para personas solas o parejas, con 71 departamentos entre 53 y 130 m2 de área con diseños modulares y espacios flexibles que permiten diferentes tipologíasdehabitabilidad.

Se encuentran todas as áreas sociales y recreacón como la pscinae gimnasio,unazonade eventosydemas

Para los residentes, laterrazaenelpiso

22 con espacios y servicios como piscina, solárium, jacuzzi lounge, gimnasio y baño turco, permite disfrutar de una vista panorámica sobrelaciudad.

En la planimetría se detalla como es el acceso por la carrera 30A que se dirige a los parqueaderos con un circuito eficiente y dinámicoparala entrada y salida de vehículos para así marcar el inicio del puntofijo.

C A S O N A C I O N A L - C A S O N A C I O N A LO T R A C I U D A D O T R A C I U D A D U B I C A C I Ó N
E M P L A Z A M I E N T O
CARRERA30CALLE10C,MEDELLÍN
E N E R G Y L I V I N G E N E R G Y L I V I N G M O R F O L O G Í A T I P O L O G Í A S S I S T E M A D E A G R U P A C I Ó N
P L A N I M E T R Í A
1 2 3 4 TIPOLOGÍA1 TIPOLOGÍA2 TIPOLOGÍA3 PARTESUPERIOR4

R E H A B I L I T A C I Ó N R E H A B I L I T A C I Ó N U R B A N A U R B A N A

U B I C A C I Ó N

Palmar de varela está ubicada en la zona oriental del departamento del atlántico El municipio limita al norte con el municipio de santo tomas al sur el municipio de ponedera, al este con el rio magdalena y al oeste con los municipios de santotomasyponedera.A23kmdelaciudaddebarranquilla.

Palmar de varela, se dispone sobre el delta del rio magdalena al oriente del departamento del atlántico, espacio geográfico de recursos pesqueros y agrícolas. Tiene un área de 94 km2, los cuales equivalen a 9 400 hectáreas, de las cuales el 335%, son urbanas (3149km2) y 96,65% es rural (90851km2) esta área se extiende longitudinalmente sobre el eje natural el rio magdalena y sobre todo de carácter espacio funcional, la vía oriental

ESQUEMA DE ACTIVIDADES

El proyecto apunta hacia la orientación de un mayor cubrimiento de elementos de espacio público hacia las zonas más deprimida del municipio, que favorece a su vez a generar un mayor sentido de pertenencia e identificación, para que luego se manifieste el sentido de lo propio. Espacios públicos que fomenten dinámicas sociales sostenibles para el desarrollo armónico con el medio ambiente.

La vivienda está dividida en dos áreas: área de estar y área de dormitorios.

ZONAS VERDES

Eje que contiene un sistema espacial, estructural y funcionalmente interrelacionado que define un corredor ambiental de sustentación, lo cual es de vital importancia para el mantenimiento del equilibrio ecosistémico.

ESCALA MEDIA

El proyecto a escala media, es el barrio, el cual se pretende integra con el parque urbano a través de un paseo peatonal que lo comunica con este y también con el resto del municipio por medio de vías vehiculares que mantienen el mismo trazado urbanoyaexistente.

Primeramente se hicieron estudios de la tipología de la vivienda la cual reflejo la composición espacial su materialidad y las composiciones de fachada Los principios de diseño que resaltan y que luego fueron aplicados en el proyecto son: relación interior- exterior, relación con el peatón a niveldeandenyrelaciónconlanaturaleza.

Cubierta a dos aguas, típicas de casas caribeñas.

HABITAR:REHABILITACIÓNURBANAAPARTIRDEUNASOLUCIÓN DEVIVIENDASOCIALENELMUNICIPIODEPALMARDEVARELA, ATLÁNTICO.

Este proyecto plantea la rehabilitación de los barrios (las tablitas y la primavera) a través de viviendas de interés social y además de un parque urbano lineal que bordea el rio con el fin de que sea un proyecto que genere un impacto en todo el municipio El proyecto se manejará a tres escalas: escala macro,escalamediayescalaarquitectónica.

C A S O N A C I O N A L - C A S O N A C I O N A LC O S T A C A R I B E C O S T A C A R I B E
P
R O P U E S T A
P R O C E S O D E D I S E Ñ O
P L A N I M E T R Í A

Mientras el centro amurallado y la bahía de Cartagena crecen en torno a la dinámica del turismo, la población de menos recursos se aloja en las salidas de la ciudad. En este tipo de sectores la respuesta al déficit de vivienda es la producción masiva lo que en la mayoría de los casos da como resultado lugaresanodinos.

La propuesta fue destacada por " su calidad integral al resolver cada uno de los aspectos del ejercicio profesional para la generacióndeunhábitatindividualycomunitario"

La idea del proyecto es construir un paisaje urbano contemporáneo que tenga caracterización de la región rescatando los valores culturales de esta, al igual, va dirigida a la individualidad gracias a que aspira a un desarrollo progresivo que permite diversidad como una respuesta urbana. Por último la propuesta pretende rescatar rasgos de la casa tradicional caribeña en un contextocontemporáneo.

Arquitecturaanodina

A partir de los lugares en donde se concentra la mayor demanda de viviendas se condiciona el modo en que construimos,peroalserclasessocialesconmenoresingresos,el crecimiento urbano de las ciudades se hace sin ningún tipo de planeacion,recayendoenloinformal

En este escenario, cada familia tiene la posibilidad de crear alternativasdesustentodesdesucasa:

Valorización por mejoras renta por espacios de alquiler o alternativas de sustento en nuevos espacios productivos para el vecindario

C A S O N A C I O N A L - C A S O N A C I O N A LC O S T A C A R I B E C O S T A C A R I B E C A S A C A S A C O L O R C A R I B E C O L O R C A R I B E
B
N P R O B L E M Á T I C A S E S C A L A U R B A N A
U
I C A C I Ó
V A R I A B L E C L I M Á T I C A
S O L U C I O N E S E S C A L A U R B A N A D I A G R A M A D E C O M P O S I C I Ó N P L A N I M E T R Í A

Ejerciciodeencuentro

03. CASODEESTUDIO

Referenciaryestudiar.

El tratamiento gubernamental a través de las políticas públicas de vivienda se ha centrado en conceptos de viviendasocialmuyalejadosdelahabitabilidadendondese incluyen confort y dignidad citando algunos ejemplos comunescomolareducidaárea,lacalidadconstructivayde materiales, la precaria condición ambiental, además de su localización en los sectores periurbanos generalmente alejados de los sistemas estructurantes de la ciudad y muchas veces en los predios menos aptos para construir vivienda.

La ciudadela Altos de la Sabana se localiza al norte de Sincelejo Situada más hacia el norte de las áreas suburbanas, No. 1, la Sierra Flor; No. 2 Puerta Roja y No. 3 San Miguel, en donde no se permite el uso industrial y el uso comercial es restringido; se permiten actividades campestres y actividadescompatiblesconequipamientossocialesysonpermitidoslosusosruralespropiosde pequeñasparcelas.

Esta comuna tienen área de 198.4 has una densidad de 22 viviendasporhas.,uníndicede ocupación de 9.25% del área urbana, una densidad de 22.3 viviendas x has y una población de 25.55 habitantes. (AlcaldíadeSincelejo 2015).

Está representado físicamente por materiales tradicionales describiendo en su estado constructivo general una arquitectura y estructura propia. En la parte interior de los edificios su acabado está dado en concreto a la vista en sus paredesypisos.

Circulación C I R C U L A C I Ó N Sala/comedor Baño Hall Cocina Alcoba 1 Alcoba 2 T I P O L O G Í A C A S O E S T U D I O L O C A L - C A S O E S T U D I O L O C A LS I N C E L E J O - S U C R E S I N C E L E J O - S U C R E U R B A N I Z A C I Ó N A L T O S U R B A N I Z A C I Ó N A L T O S D E L A S A B A N A D E L A S A B A N A
U B I C A C I Ó N A N T E C E D E N T E S F A C H A D A M A T E R I A L I D A D

Ejerciciodepautar

Normatividadyreglamento.

04. MARCOLEGAL

D É F I C I T D E V I V I E N D A E N C O L O M B I A

S e g ú n e l D e p a r t a m e n t o A d m i n i s t r a t i v o N a c i o n a l d e E s t a d í s t i c a ( D A N E ) d e C o l o m b i a , e n e l a ñ o 2 0 2 1 e l d é f i c i t h a b i t a c i o n a l e n C o l o m b i a e r a d e l 6 , 2 % l o q u e e q u i v a l e a a p r o x i m a d a m e n t e 3 , 8 m i l l o n e s d e h o g a r e s

E n c u a n t o a l a c i u d a d d e S i n c e l e j o S u c r e e l ú l t i m o c e n s o d e v i v i e n d a r e a l i z a d o e n 2 0 1 8 a r r o j ó q u e e l

3 0 , 3 % d e l a s v i v i e n d a s p r e s e n t a b a n a l g ú n t i p o d e n e c e s i d a d b á s i c a i n s a t i s f e c h a , l o q u e s i g n i f i c a q u e n o c o n t a b a n c o n c o n d i c i o n e s a d e c u a d a s d e h a b i t a b i l i d a d a c c e s o a s e r v i c i o s p ú b l i c o s b á s i c o s , n i d i s p o n í a n d e u n t í t u l o d e p r o p i e d a d f o r m a l

L o s p r o y e c t o s d e v i v i e n d a p u e d e n s e r u n a h e r r a m i e n t a e f e c t i v a p a r a m i t i g a r e l d é f i c i t h a b i t a c i o n a l e n S i n c e l e j o , S u c r e . E s t o s p r o y e c t o s p u e d e n s e r l i d e r a d o s p o r e l s e c t o r p ú b l i c o o p r i v a d o y e s t a r d i s e ñ a d o s p a r a o f r e c e r s o l u c i o n e s d e v i v i e n d a a s e q u i b l e s y d e c a l i d a d p a r a d i f e r e n t e s s e g m e n t o s d e l a p o b l a c i ó n . L o s p r o y e c t o s p u e d e n i n c l u i r i n i c i a t i v a s c o m o l a c o n s t r u c c i ó n d e v i v i e n d a s n u e v a s , l a r e h a b i l i t a c i ó n d e v i v i e n d a s e x i s t e n t e s l a r e g u l a r i z a c i ó n d e l a t e n e n c i a d e l a t i e r r a y l a m e j o r a d e l o s s e r v i c i o s b á s i c o s e n l a s z o n a s m á s v u l n e r a b l e s . A d e m á s e s t o s p r o y e c t o s p u e d e n p r o m o v e r l a p a r t i c i p a c i ó n a c t i v a d e l a c o m u n i d a d y g e n e r a r e m p l e o l o c a l , l o q u e c o n t r i b u i r í a a l d e s a r r o l l o e c o n ó m i c o d e l a c i u d a d y a l b i e n e s t a r d e l a p o b l a c i ó n .

N O R M A T I

V A

S í , e n C o l o m b i a e x i s t e n d i f e r e n t e s n o r m a t i v a s q u e r e g u l a n l o s p r o y e c t o s d e v i v i e n d a s o c i a l , c o m o l o s p r o g r a m a s V I P y V I S A c o n t i n u a c i ó n m e n c i o n a m o s a l g u n a s d e l a s p r i n c i p a l e s n o r m a t i v a s :

L e y 1 5 3 7 d e 2 0 1 2 : E s t a l e y e s t a b l e c e e l r é g i m e n e s p e c i a l d e p r o p i e d a d h o r i z o n t a l p a r a l a s v i v i e n d a s d e i n t e r é s s o c i a l y p r i o r i t a r i o , y r e g u l a l a s r e l a c i o n e s e n t r e l o s p r o p i e t a r i o s y l a s e n t i d a d e s e n c a r g a d a s d e

l a c o n s t r u c c i ó n y m a n t e n i m i e n t o d e e s t a s v i v i e n d a s D e c r e t o 1 0 7 7 d e 2 0 1 5 : E s t e d e c r e t o r e g l a m e n t a l a l e y 1 5 3 7 d e 2 0 1 2 y e s t a b l e c e l a s c o n d i c i o n e s y r e q u i s i t o s p a r a l a c o n s t r u c c i ó n y a d m i n i s t r a c i ó n d e v i v i e n d a s d e i n t e r é s s o c i a l y p r i o r i t a r i o .

D e c r e t o 2 1 9 0 d e 2 0 0 9 : E s t e d e c r e t o e s t a b l e c e l o s r e q u i s i t o s t é c n i c o s p a r a l a c o n s t r u c c i ó n d e v i v i e n d a s d e i n t e r é s s o c i a l y p r i o r i t a r i o , y d e f i n e l o s p a r á m e t r o s d e c a l i d a d y s e g u r i d a d q u e d e b e n c u m p l i r e s t a s v i v i e n d a s

L e y 1 7 5 3 d e 2 0 1 5 : E s t a l e y e s t a b l e c e e l r é g i m e n d e s u b s i d i o s a l a d e m a n d a d e v i v i e n d a p a r a l o s p r o g r a m a s d e v i v i e n d a d e i n t e r é s s o c i a l y p r i o r i t a r i o y r e g u l a l o s m e c a n i s m o s d e f i n a n c i a c i ó n y g e s t i ó n d e e s t o s p r o g r a m a s . N o r m a s t é c n i c a s c o l o m b i a n a s ( N T C ) : L a s N T C e s t a b l e c e n l a s e s p e c i f i c a c i o n e s t é c n i c a s p a r a l a c o n s t r u c c i ó n d e v i v i e n d a s e n C o l o m b i a , y s o n a p l i c a b l e s t a n t o a l a s v i v i e n d a s d e i n t e r é s s o c i a l y p r i o r i t a r i o c o m o a l a s v i v i e n d a s d e o t r o s e s t r a t o s s o c i o e c o n ó m i c o s .

Ejerciciodeanalizar

Normatividadyreglamiento.

05. MEMORIATERRITORIAL

RESUMENSOCIO-CULTURAL RESUMENURBANO-AMBIENTAL

NORMATIVIDAD Y REGLAMENTOS

FLORA Y FAUNA

RELACIÓN DE L b l l

Pautas urbanas - lineamientos

VIENTOS ALISIOS BRISAS MARINAS

Temperatura promedio: 34°

Humedad promedio: 92%

Vientos predominantes: NW y SE

Época de lluvia: Abril a Noviembre

Época calurosa: Junio a Septiembre

PAREJAS JOVENES

llevan a sus hijos al colegio

LOS PARQUES (Jovenes y deporte)

VIDA DE BARRIO (Tiendas, visitas, iglesia y tardear)

HABILIDAD DE EXTROPECCIÓN Comunidad sociable

RESPIROS SOCIALES (Recreación y reuniones)

VIENTOS CONTRALISIOS BRISAS CONTINENTALES

34° 37° 32°

Ejerciciodeaplicar

ESQUEMABÁSICO

Proyectodediseño.

06.

CRITERIOS ARQUITECTÓNICOS CRITERIOS ARQUITECTÓNICOS

CRITERIO TÉCNICO

SISTEMA DE SOPORTE O ESTRUCTURAL

S STEMA APORT CADO (VIGAS Y COLUMNAS)

SISTEMA ESTÉTICO

MATERIALIDADES

Ce osias en hormigón con recubr miento l so en estuco t po A

erta fabr cada con mentos de fac l acceso (fibro mento).

Piso aporce anado baldosa con textura rugosa ant des izante de 6 mm de espesor

Losas de entrep so en concreto con p so acabado en baldosa blanca

Sistema aporticado (soporte vertical) con columnas en horm gón reforzado

CRITERIO FUNCIONAL

ZONIFICACIÓN VOLUMÉTRICA

Evolución Evolución

TO O

V dr o t po muro cortina 5 mm de espesor azu trasluc do

Laminas de madera para puertas bat entes ínea WOODWORKS

CRITERIO FORMAL - ESPACIAL

FORMA DEL OBJETO

Te a de arc a TERRACOTA con f brocemento sosten ble t po NOVARC LLAS a

VENTILACIÓN E ILUMINACIÓN

Sinergia visual Recubr miento a base de ba dosa tex ur zada MICA COREY ínea B OCOVER en co or blanco hueso Recubr m ento a base de estuco texturizado ECOTECH WALL color b anco

P so aporce anado a base de mortero co or b anco de 5 mm de espesor

La zon ficac ón de una v vienda en base al cr ter o func ona imp ica agrupar y distr buir los espac os de acuerdo con as func ones y act v dades que se l evarán a cabo en cada área La zonif cación de acuerdo con el criterio func ona perm te una organ zac ón óg ca y efic ente de os espacios en una vivienda Agrupar as áreas soc a es en e pr mer piso fac l ta la interacción y e flu o entre los espacios de uso compartido m entras que a ubicac ón de as áreas nt mas en el segundo p so brinda pr vacidad y tranqu l dad a los res dentes Asimismo a zona de serv cio se co oca estratég camente en el primer p so para faci itar e acceso y la funcional dad d ar a

Al ap icar el cr ter o func ona en la zon ficac ón de una viv enda, se busca opt mizar a d stribuc ón de os espac os de acuerdo con sus usos y necesidades específicas, creando así un ambiente cómodo, funciona y armonioso para los residentes.

CIRCULACIÓN HORIZONTAL Y VERTICAL

Circulación horizontal a través de pasillos y estanc as dentro de la viv enda

Circulación vertical a través de escaleras que comun can diferentes n veles

CRITERIO URBANO - AMBIENTAL

ADAPTABILIDAD DEL OBJETO AL ENFOQUE DE ECO URBANISMO

RELACIÓN INTERIOR Y EXTERIOR + ACCESIBILIDAD

Diseño sostenible de viviendas: D señadas de manera sostenib e, ut lizando materia es eco óg cos y técn cas de construcción efic entes en términos energéticos

Espacios verdes y áreas comunes: Dentro de d seño del ecobarrio incluye áreas verdes y espac os comunes que promuevan la nteracc ón y el contacto con a natura eza Estos espacios pueden ser ut l zados tanto por los residentes de viv endas de interés social como por otros residentes del ecobarr o, fomentando a ntegración y e sentido de comun dad.

CALLE PEATONAL

Educación y concientización: Real za programas de educación y conc entizac ón ambienta para los residentes de las v viendas de interés soc a y de todo el ecobarrio Esto puede nc uir tal eres sobre prácticas sosten bles efic encia energética rec c a e y uso responsab e de los recursos

U N I B I
1. 2 3

CUADRO DE ESPACIOS

Cub erta dos aguas al 10%

Muro impermeabi izado - protector viga cana

Viga canal impermeabi izada

Losa iviana - soporte de cub erta

Muro cortina en ce osias forma orgán ca

Cama de dos cuerpos para famil a nuc ear tipo matr mon o.

Barandi

Muro cort na en v drio tras uc do azul de 4 mm

Losa liv ana de entrepiso - principal estructura aport cada

Mesa de traba o y/o escritor o de estudio con vidr o de 4 mm

1 4 5 6 7 2 3 8 9 9 1 0 5 4 1 0
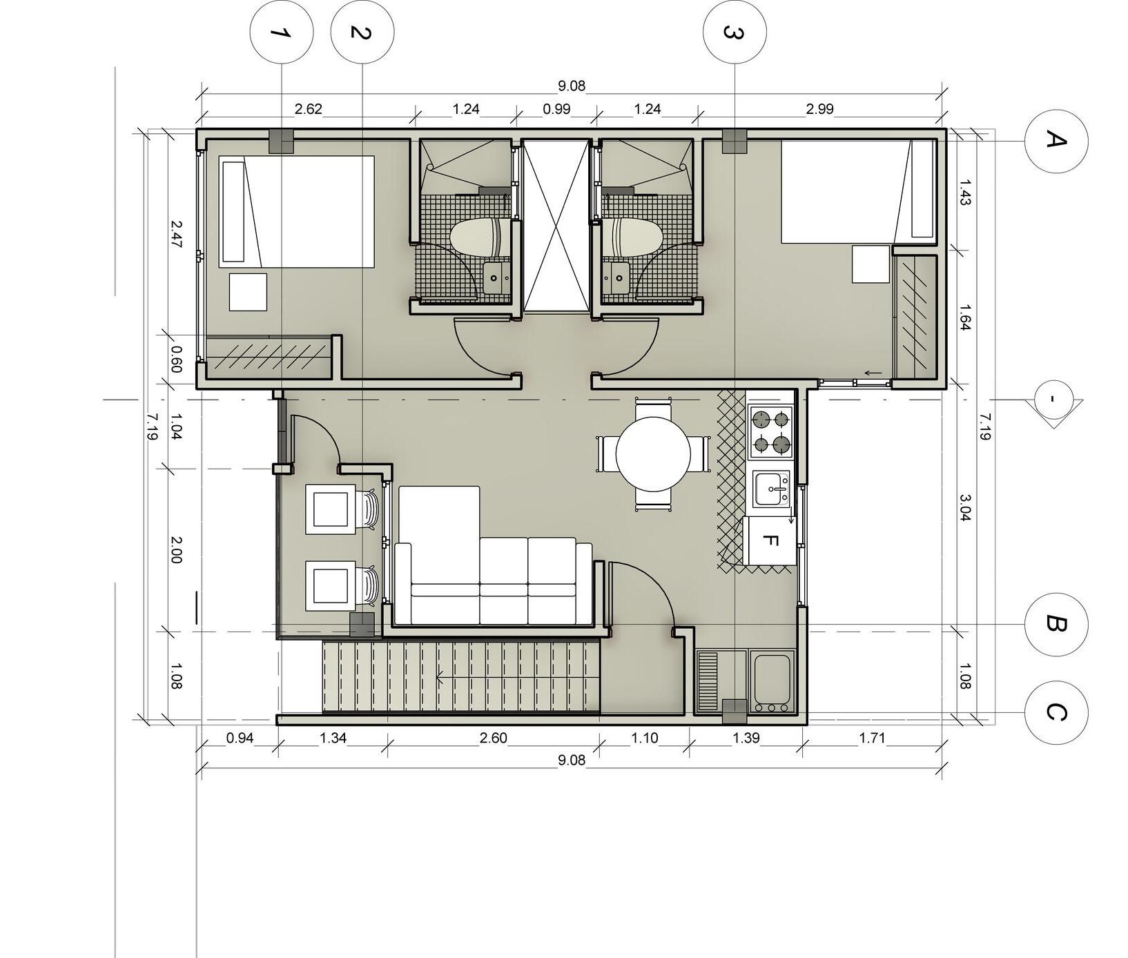
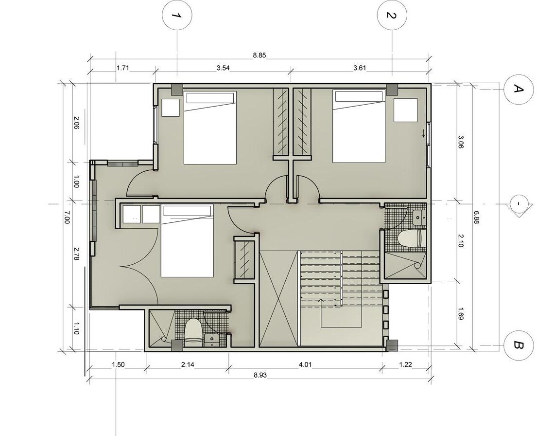
la protectoraant riesgo en metal. CORTE LONGITUDINAL - ESC 1:75 CORTE FACHADA - ESC 1:75 PLANTA ARQUITECTÓNICA PRIMER NIVEL - ESC 1:75 PLANTA ARQUITECTÓN CA SEGUNDO NIVEL - ESC 1:75 PLANTA ARQU TECTÓNICA CUBIERTA (A DOS AGUAS) - ESC 1:75 FACHADA PRINCIPAL - ESC 1:75

CUADRO DE ESPACIOS

Cubierta dos aguas a 10%

Muro impermeab lizado - protector viga canal

V ga cana mpermeabi izada

Losa liv ana - soporte de cubierta

Muro cortina en celosias forma orgán ca.

Puerta batiente en madera delgada (tr ple)

Ventana desl zante de dos hojas en v drio de 4 mm

Barand l a protectoraant riesgo en metal

Mesa de café para espacios ab ertos

Losa liv ana de entrepiso - principa estructura aport cada.

CORTE

FACHADA - ESC 1:75

PLANTA ARQUITECTÓNICA - VIS TIPO B PRIMER NIVEL - ESC 1:75

CORTE

LONGITUDINAL - ESC 1:75

FACHADA

PRINCIPAL - ESC 1:75

CUBIERTA (A DOS AGUAS) - ESC 1:75

1 4 5 6 7 2 3 8 6 4 3 3 2 2 1 1 1 6 7 2 3
9
PLANTA ARQU TECTÓNICA - VIP TIPO C SEGUNDO NIVEL - ESC 1:75 PLANTA ARQUITECTÓNICA

ESTRATEGIAS PROYECTUALES ESTRATEGIAS PROYECTUALES

El proyecto arquitectónico "Residencial Ger-minar" surge a partir de un análisis exhaustivo del entorno y del contexto urbano. Mediante la aplicación de diferentes conceptos y estrategias, se busca crear un diseño innovador y funcional. Algunas de las estrategias clave que se utilizan en el proyecto son:

Sustracción de volúmenes: Mediante la eliminación selectiva de elementos volumétricos, se logra crear espacios interiores más cómodos y acogedores, priorizando el confort de los residentes.

Volumen

Empujar Estirar Sustraer Producto

Estiramiento de volúmenes: La extensión de los volúmenes arquitectónicos permite establecer una clara delimitación y ordenamiento en el espacio, generando una distribución espacial coherente y eficiente.

Aberturas entre laterales: La incorporación de aberturas estratégicamente ubicadas entre los laterales del edificio favorece la circulación de ventilación e iluminación natural, proporcionando una conexión fluida con el entorno y creando una sensación de amplitud y bienestar.

Estas estrategias proyectuales se traducen en un diseño que busca maximizar el confort habitacional, la funcionalidad y la integración con el entorno, ofreciendo a los residentes un ambiente agradable y en armonía con su contexto urbano.

VISTAS DEL PROYECTO VISTAS DEL PROYECTO

U N I B I

Turn static files into dynamic content formats.

Create a flipbook