
o r t f o l i o

implantation contextuelle
![]()

o r t f o l i o

implantation contextuelle
requalification d’un îlot urbain par l’habitation collective
ARC3018 - Projet d’architecture 2 - 3e année
Tuteur: Frédéric Dubé
Durée: 14 semaines
Équipe: Alexa Tourangeau et Anabel Larose
L’APPRENTI est un projet d’habitation collective qui requalifie le site du Centre administratif de l’ancienne Commission scolaire de Montréal (CSDM), situé rue Sherbrooke, dans Rosemont–Petite-Patrie. Le nom « L’apprenti » rend hommage à l’histoire du lieu tout en établissant une cohérence entre le nouveau et l’ancien, tenant compte des aspects programmatiques, volumétriques et visuels.
Du point de vue programmatique, le projet reflète la vocation éducative de la CSDM en proposant des résidences étudiantes, des apprentissages informels tels que des jardins, une cuisine communautaire, un atelier d’art, ainsi que des espaces publics variés, comme un café et une salle de gym.
Du point de vue volumétrique, la trame architecturale suit le bâtiment existant, avec une typologie en damier fragmentée qui offre des espaces extérieurs tels que parcs et lieux de rassemblement.
Deux de ces lieux intègrent une passerelle en bois, facilitant la circulation tout en donnant accès extérieur aux maisonnettes du sous-sol. La hauteur des bâtiments respecte la morphologie environnante : des volumes plus hauts au nord offrent des vues dégagées sur le Stade Olympique et le Fleuve St-Laurent, tandis que des bâtiments plus bas au sud s’harmonisent avec le tissu urbain de 2 à 3 étages.
Du point de vue visuel, les façades adoptent un langage rationnel, inspiré de l’ancien Centre administratif. Une grille modulaire unifie les typologies de logement, avec des variations permettant d’intégrer balcons et parements. Pour la matérialité, des teintes de béton allant du « brun rosé » au crème s’harmonisent avec le contexte.
Les résilles des bâtiments plus sombres créent un contraste, tandis que les volumes plus hauts adoptent des tons clairs pour réduire leur impact visuel.


contexte et concept






démarche volumétrique - parcours - vues - lumière





trame de la façade
extrusion et retrait a a+b c












percée visuelle de la rue à la cour semi-privée - cadrage et invitation subtile coupe longitudinale partielle - cour centrale 8000 mm




installations publiques habitables - un microcosme dans le macrocosme









vue sur le parc niché au bout de la voie principale en diagonale

implantation contextuelle
ARC6701 - Projet complet - Maîtrise
Tuteur: Gilles Prud’homme accompagné d’Alexis Charbonneau
Durée: 12 semaines
Équipe: Individuel
Imaginez-vous au cœur du quartier SaintMichel, dans le secteur du Quartier des Arts du Cirque. Parcourez la rue Jarry est observez attentivement le tissu urbain qui vous entoure. Que percevez-vous ? Des habitations compactes, une pauvreté persistante et un manque de qualité de vie. Pas un seul espace pour se réunir, pour se partager un repas ou même pour se détendre.
Prenez maintenant votre droite et explorez la Rue Paul-Boutet. Qu’observez-vous de différent ? Le Parc-Frederic-Back s’étend comme un havre de verdure, avec des bâtiments institutionnels dispersés dont la TOHU Cité des Arts du Cirque, le siège social du Cirque du Soleil et un peu plus loin, vers la rue Ave du Cirque, L’Ecole nationale du Cirque du Soleil. Une progression se manifeste ainsi. Cependant, malgré ces apparitions récentes, l’exclusion sociale persiste encore, l’évolution communautaire devient donc urgente dans le quartier.
Le nouveau centre de collection muséale, axé sur la conservation des œuvres d’art, vient s’implanter dans le Quartier des Arts du Cirque, centré sur la revitalisation communautaire. Il devra donc encourager la vie sociale et culturelle tout en préservant une certaine intimité. Comment trouver l’équilibre entre la conservation muséale et l’évolution communautaire dans le nouveau complexe?
Cette quête d’équilibre rappelle le yinyang, une philosophie chinoise ancienne illustrant comment des éléments opposés peuvent coexister harmonieusement pour former un ensemble équilibré.
Le yin, symbole de l’intimité dans la philosophie chinoise, sera utilisée pour décrire tous les programmes privés du projet et de son contexte. En revanche, le yang, évoquant la visibilité, sera utilisée pour caractériser les programmes publics du projet et de son contexte.
I - Concept et implantation
A - Un équilibre harmonieux privé-public


II - Programme
A - Les étapes de revitalisation du projet extension de l’axe du Parc et de la TOHU

adaptation des hauteurs bâties au contexte

transfert de fragments publics au privé

transfert de fragments privés au public

B - Volumétrie
circulation priv forme issue du processus programmatique
circulation pub espaces pub espaces priv




Membrane de finition, 10 mm
Membrane sous-couche, 10 mm
Panneau de support de couverture, 13 mm en béton léger
Isolant rigide en polystyrène extrudé, 200 mm (XPS) en pente (prevoir 2% pour drainage)
Isolant rigide courant, 100 mm
Membrane pare-air/vapeur, 3 mm
Structure portante
Panneaux de béton prefabriqué, Bpdl, 150 mm avec treillis métallique
Calfeutrage extérieur au niveau des joints des panneaux (pare-pluie et fininition)
Calfeutrage intérieur au niveau des joints des panneaux (pare-aire et drainage)
Orifice de drainage
Cavité d’aire, 25 mm
Laine minérale coupe-feu et joint d’étancheité à l’aire coupe-fumée/coupe-feu
Isolant rigide en polystyrène extrudé, 100 mm
Membrane pare-vapeur
Colombage métallique, 150 mm
Barres d’ancrages soudées aux montants
Panneau de gypse, 19 mm
Dalles de béton prefabriqué, 600x600mm, 50 mm d’épaisseur
Traverses métalliques en HSS, 22x26x1 mm
Vereins métalliques - supports réglables
Espace pour mécanique, 600 mm
Dalle de béton structurale, 400 mm, prévoir armature - voir ingénieur
Membrane pare-air/vapeur
Isolant rigide en polystyrène extrudé, 50 mm
Barres en « Z »
Panneau de béton léger, 13 mm


coupe axonométrique technique de l’enveloppe détail constructif de l’enveloppe


Végétation - plantes basses
Substrat de terre léger, 150 mm
Couche filtrante, 20 mm
Couche drainante, 50 mm
Membrane de finition, 10 mm
Membrane sous-couche, 10 mm
Panneau de support de couverture , 13 mm en béton léger
Isolant rigide en polystyrène extrudé, 200 mm (XPS) en pente (prevoir 2% pour drainage)
Isolant rigide courant, 100 mm
Membrane pare-air/vapeur, 3 mm
Dalle en caisson (voir ing pour armature et étrier):
- Nervures, 250x550 mm, 1000 mm c/c
- Partie de dalle sans nervures, 150 mm
Lame verticale en aluminium crème, 65x150 mm
Support de fixation des lames - cornière d’acier
Rail métallique en HSS fixée sur meneau en aluminium, teinte crème
Meneau d’aluminium crème renforcé avec profilé HSS interne, 65x225 mm
Verre triple, 44.5 mm à faible émissivité face #2 et à faible émissivité face #4, gaz argon 95%
Chappe de propreté en béton, 50 mm
Dalle de béton structurale, 400 mm, prévoir armature - voir ingénieur
Espace pour électricité et mécanique
Isolant rigide en polystyrène extrudé (XPS), 100 mm
Membrane pare-air/vapeur, 3 mm
Fer C, 42 mm
Fourrures métalliques, 22 mm
Panneau de fibrociment pour recouvrir le soffite, Swisspearl Gravial, 12 mm

coupe axonométrique technique de l’enveloppe détail constructif de l’enveloppe 2000 mm

une relation harmonieuse entre enveloppe légère et ossature massive

J1 Jonction agrandie du mur rideau et parapet
Voir composition M2 (page précédente)
Laine minérale coupe-feu et joint d’etancheité à l’aire coupe-fumée
Revêtement de céramique, teinte crème, 12 mm
Élément porteur en béton, 250 mm
Membrane pare-air/vapeur, 3 mm avec chevauchement 300 mm
Isolant rigide en polystyrène extrudé (XPS), 50 mm
Barres en « Z »
Panneaux de béton léger, 13 mm
Membrane sous-couche, 10 mm
Membrane de finition, 10 mm
PA1 Tête du parapet
Solin d’acier prépeint et préplié en usine
Isolant rigide en polystyrène extrudé (XPS)
Membrane pare-air/vapeur
Panneau de béton léger, 13 mm
Isolant minérale
Profilé d’acier en J

optimisation visuelle du corridor par la discrétion des structures verticales.

J2 Jonction agrandie du mur rideau et plancher
Meneaux en aluminium avec profilés HSS interne pour une vue dégagée sans sous-structure visible (voir composition M2)
Laine minérale coupe-feu et joint d’etancheité à l’aire coupe-fumée
Revêtement de céramique, teinte crème, 12 mm
Structure pour recevoir finition en céramique
C1 Cloison intérieur d’une réserve
Panneau de gypse, 19 mm
Colombage métallique, 200 mm
Isolant minérale, 200 mm
Panneau de gypse, 19 mm
Poteau de rive en béton dissimulé derrière la cloison intérieure pour dégager le noyau de circulation public de toute entrave visuelle

transition fluide entre soffite extérieur et plafond en caisson intérieure

grille de ventillation
J3 Jonction de deux planchers de compositions différentes
Voir composition T2 et P2 (pages précédentes)
Solin intra-mural :
- membrane de finition, 10 mm
- membrane sous-couche, 10 mm
- panneau de support de couverture en béton léger, 13 mm
- isolant rigide en polystyrene extrude (XPS), 50 mm X2
- membrane pare-air/vapeur, 3 mm
Dénivellation entre les deux planchers de compositions différentes.



cour centrale - espace encourageant le regroupement

implantation contextuelle
maison de ville
ARC2011 - Atelier d’architecture 3 - 2e année
Tuteur: Sylvain Bilodeau
Durée: 3 semaines
Équipe: Individuel
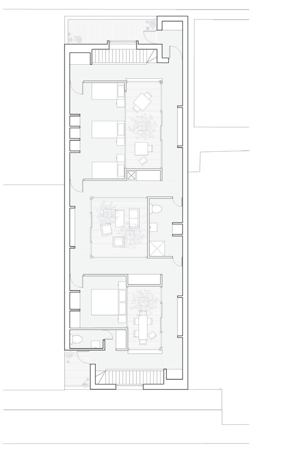
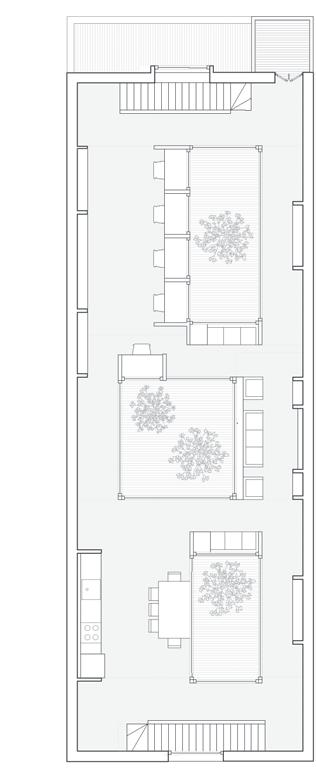
L’EGÉRIE est un logement unifamilial atypique situé sur la rue Hadley, au cœur de Côte St-Paul, conçu pour une famille d’écrivains enseignant leurs trois enfants à la maison. Inspirée par son nom, la maison vise à stimuler la créativité et la concentration de ses occupants en intégrant deux concepts clés : l’apport de lumière naturelle et de végétation, ainsi que l’usage d’éléments minimaux comme des mobiliers intégrés et des matériaux épurés.
L’organisation spatiale repose sur trois patios à double hauteur, qui structurent la distribution des espaces. Chaque pièce est reliée visuellement à un patio, assurant un contact permanent avec la nature. Les espaces de nuit (chambres, salles de bain, rangements) se trouvent au rez-dechaussée, tandis que les espaces de vie (cuisine, salle à manger, séjour, espaces de travail) occupent l’étage. Cette disposition, plaçant les zones de vie en hauteur, permet aux occupants de profiter au maximum des
des vues sur la cime des arbres, où ils passent la majeure partie de leur journée.
Pour leur bien-être, les écrivains ont besoin d’un contact physique avec la nature, en complément du lien visuel. Lorsque le climat le permet, les patios se transforment eux même en espaces de vie extérieurs flexibles et apaisants, pouvant accueillir une salle à manger, un salon ou un espace de travail de jardin.
Les façades est-ouest, initialement symétriques, ont été animées par un jeu de pleins et de vides, rendant le volume plus dynamique. La maison s’intègre à son contexte grâce à l’utilisation de briques locales enduites de stuc blanc, soulignant la pureté et l’abstraction du design tout en restant économique. Les planchers en bois et les murs blancs renforcent la continuité visuelle intérieur-extérieur et mettent en valeur les vues, favorisant l’imagination des habitants.



maison inspiratrice nature minimalisme






démarche volumétrique - concept - lumière - circulation - privé/collectif





accentuation des vues

reflexion solaire

continuité du plancher

élévation est axonométrie / axonométrie éclatée
élévation ouest






mobiliers - integrés sur mur - integrés sur patio - amovibles







espaces de vies - omniprésence de la nature

un dispositif central alliant monumentalité et légèreté
ARC2313 - Architecture et construction 3 - 2e année
Tuteur: Stephan Chevalier
Durée: 2 semaines
Équipe: Julian Jeri Di Carlo
Conçu pour un musée, cet escalier se définit comme l’élément central, soit le cœur de l’espace, mais en réalité son concept intrinsèque est le contraste qu’il exhibe entre ce qui est fixe et lourd et ce qui est flottant et léger.
Pour mettre ce concept en oeuvre, plusieurs stratégies ont été mis en place. Nous avons traité la première volée de l’escalier comme un socle massif en béton, étendu de tous les côtés afin de présenter une certaine monumentalité, mais également pour générer une appropriation. En plus d’être un dispositif de circulation, le socle s’offre comme un lieu de réunion, de relaxation, permettant à ses usagers de s’assoir sur ses extrémités.
Le restant de l’escalier se présente donc de façon légère, reposant sur un limon central agissant comme structure. Pour l’escalier en tant que tel, nous avons façonné les marches et les contremarches d’une
manière à créer une fluidité, une continuité à travers le parcours. Nous avons donc comme résultat un escalier en forme d’accordéon en bois, contrastant avec le béton tout en lui donnant plus de vie.
Le garde-corps lui a était traité en verre, idée de transparence mettant en œuvre l’escalier. De ce fait, il y a une perception plus claire de la circulation des usagers lors de leur montée et descente, créant plus de dynamisme.
Par ailleurs, la symétrie de l’escalier a été brisé grâce à une extension différente des marches des deux côtés latéraux du socle et au traitement des mains courantes de part et d’autre de l’escalier. D’un côté, s’offre une main courante continue et bidirectionnelle, démontrant le parcours souhaité. De l’autre côté, s’offre une main courante discontinu, divisée, maintenant la même direction, générant ainsi différentes entrées.


Faculté de l'aménagement
A401 DÉTAIL D'ANCRAGE AU SOMMET D'ESCALIER ÉCHELLE 1:10
A401 DÉTAIL D'ANCRAGE AU SOMMET D'ESCALIER ÉCHELLE 1:10
détail 1 - ancrage au sommet de l’escalier
RÉFÉRENCES
PL01
PL01
PLANCHER PL01
-FINI DE BÉTON TYPE ÉPOXY
PLANCHE DE BOIS B01 EN FORME DE L, 380X160X2000mm, 10mm D'ÉPAISSEUR

RÉFÉRENCES
MEMBRANE DE POLYÉTHYLÈNE 2MIL.
MEMBRANE DE POLYÉTHYLÈNE 2MIL.
Membrane de polyéthylène
Joint de dilatation
JOINT DE DILATION, 10mm D'ÉPAISSEUR, RECOUVERT D'UN MASTIC POLYURÉTHANE POUR UNE FINITION PLUS LISSE
JOINT DE DILATION, 10mm D'ÉPAISSEUR, RECOUVERT D'UN MASTIC POLYURÉTHANE POUR UNE FINITION PLUS LISSE
Bois massif de chêne en forme de L.
JOINT DE DILATION, 10mm D'ÉPAISSEUR, RECOUVERT D'UN MASTIC POLYURÉTHANE POUR UNE FINITION PLUS LISSE
Panneau de béton
PANNEAU DE BÉTON DE 345X400mm, 50mm D'ÉPAISSEUR
PANNEAU DE BÉTON DE 345X400mm, 50mm D'ÉPAISSEUR
PANNEAU DE BÉTON DE 345X400mm, 50mm D'ÉPAISSEUR
Plaque d’acier
PLAQUE D'ACIER 335X400mm, 10mm D'ÉPAISSEUR
PLAQUE D'ACIER 335X400mm, 10mm D'ÉPAISSEUR
BOULONNÉE À LA CORNIÈRE
BOULONNÉE À LA CORNIÈRE
PLAQUE D'ACIER 335X400mm, 10mm D'ÉPAISSEUR BOULONNÉE À LA CORNIÈRE
Cornière d’acier
CORNIÈRE D'ACIER 30X355mm, 4mm D'ÉPAISSEUR
Plaques d’acier brut soudées au limon.
CIMENT EXPANSIBLE CRL KWX50, 19mm D'ÉPAISSEUR
CORNIÈRE D'ACIER 30X355mm, 4mm D'ÉPAISSEUR
BOULONNÉE SUR LA DALLE DE BÉTON ARMÉ
BOULONNÉE SUR LA DALLE DE BÉTON ARMÉ
NO DÉSCRIPTION DATEPAR
NO DÉSCRIPTION DATEPAR
BANDE ADHÉSIVE ANTIDÉRAPENTE TRANSPARENTE 27MIL. DE 50mm MODÈLE TEL QUE S-15799 DE U-LINE (TYP.)
CIMENT EXPANSIBLE CRL KWX50, 19mm D'ÉPAISSEUR
CORNIÈRE D'ACIER 30X355mm, 4mm D'ÉPAISSEUR
Boulon, écrou et rondelle
BOULON, ÉCROU ET RONDELLE FIXANT LE LIMON À LA DALLE DE BÉTON
CIMENT EXPANSIBLE CRL KWX50, 19mm D'ÉPAISSEUR
BOULONNÉE SUR LA DALLE DE BÉTON ARMÉ
Scellant de finition
SCELLANT DE FINITION
SCELLANT DE FINITION
SCELLANT DE FINITION
Limon structural
CIMENT EXPANSIBLE CRL KWX50, 19mm D'ÉPAISSEUR
JOINT DE DILATATION AU CHANT DE LA DALLE RECOUVERT D'UN MASTIC POLYURÉTHANE POUR UNE FINITION PLUS LISSE
JOINT DE DILATATION AU CHANT DE LA DALLE RECOUVERT D'UN MASTIC POLYURÉTHANE POUR UNE FINITION PLUS LISSE
BANDE ADHÉSIVE ANTIDÉRAPENTE TRANSPARENTE 27MIL. DE 50mm
MODÈLE TEL QUE S-15799 DE U-LINE (TYP.)
BOULON, ÉCROU ET RONDELLE FIXANT LE LIMON À LA DALLE DE BÉTON
CIMENT EXPANSIBLE CRL KWX50, 19mm D'ÉPAISSEUR
BOULON, ÉCROU ET RONDELLE FIXANT LE LIMON À LA DALLE DE BÉTON
Bande adhésive antidérapente transparente 27 MIL. De 50x2000 mm modèle tel que S-15799 de U-Line
CIMENT EXPANSIBLE CRL KWX50, 19mm D'ÉPAISSEUR
JOINT DE DILATATION AU CHANT DE LA DALLE RECOUVERT D'UN MASTIC POLYURÉTHANE POUR UNE FINITION PLUS LISSE
JOINT DE DILATATION AU CHANT DE LA DALLE RECOUVERT D'UN MASTIC POLYURÉTHANE POUR UNE FINITION PLUS LISSE
JOINT DE DILATATION AU CHANT DE LA DALLE RECOUVERT D'UN MASTIC POLYURÉTHANE POUR UNE FINITION PLUS LISSE CIMENT EXPANSIBLE CRL KWX50, 19mm D'ÉPAISSEUR PL01
BANDE ADHÉSIVE ANTIDÉRAPENTE TRANSPARENTE 27MIL. DE 50mm MODÈLE TEL QUE S-15799 DE U-LINE (TYP.)
CIMENT EXPANSIBLE CRL KWX50, 19mm D'ÉPAISSEUR PL01
Colle vinylique Vis de fixation (voir ing).
BANDE ADHÉSIVE ANTIDÉRAPENTE TRANSPARENTE 27MIL. DE 50mm MODÈLE TEL QUE S-15799 DE U-LINE (TYP.)
JOINT DE DILATATION AU CHANT DE LA DALLE RECOUVERT D'UN MASTIC POLYURÉTHANE POUR UNE FINITION PLUS LISSE
KWX50, 19mm
JOINT DE DILATATION AU CHANT DE LA DALLE RECOUVERT D'UN MASTIC POLYURÉTHANE POUR UNE FINITION PLUS LISSE
JOINT DE DILATATION AU CHANT DE LA DALLE RECOUVERT D'UN MASTIC POLYURÉTHANE POUR UNE FINITION PLUS LISSE
LIMON STRUCTURAL EN PROFILÉ CREUX HSS À SECTION RECTANGULAIRE 400X350mm, 10mm D'ÉPAISSEUR
RECTANGULAIRE 400X350mm, 10mm D'ÉPAISSEUR
COURS
COURS
COURS
BANDE ADHÉSIVE ANTIDÉRAPENTE TRANSPARENTE 27MIL. DE 50mm MODÈLE TEL QUE S-15799 DE U-LINE (TYP.) 03 A402 DÉTAIL MARCHE EN BÉTON ÉCHELLE 1:10
Plancher PL01
BANDE ADHÉSIVE ANTIDÉRAPENTE TRANSPARENTE 27MIL. DE 50mm MODÈLE TEL QUE S-15799 DE U-LINE (TYP.) 03 A402
PLANCHE DE BOIS B01 EN FORME DE L, 380X160X2000mm, 10mm D'ÉPAISSEUR
-DALLE DE BÉTON 200mm (VOIR ING.)
PLAQUE D'ACIER 280X1200mm, 10mm D'ÉPAISSEUR, SOUDÉE AU LIMON
PLAQUE D'ACIER 280X1200mm, 10mm D'ÉPAISSEUR, SOUDÉE AU LIMON
CIMENT EXPANSIBLE CRL KWX50, 19mm D'ÉPAISSEUR
BANDE ADHÉSIVE ANTIDÉRAPENTE TRANSPARENTE 27MIL. DE 50mm MODÈLE TEL QUE S-15799 DE U-LINE (TYP.) 03 A402 DÉTAIL MARCHE EN BÉTON ÉCHELLE 1:10
BANDE ADHÉSIVE ANTIDÉRAPENTE TRANSPARENTE 27MIL. DE 50mm MODÈLE TEL QUE S-15799 DE U-LINE (TYP.)
Fini de béton type époxy.
JOINT DE DILATATION AU CHANT DE LA DALLE RECOUVERT D'UN MASTIC POLYURÉTHANE POUR UNE FINITION PLUS LISSE CIMENT EXPANSIBLE CRL KWX50, 19mm D'ÉPAISSEUR
BANDE ADHÉSIVE ANTIDÉRAPENTE TRANSPARENTE 27MIL. DE 50mm MODÈLE TEL QUE S-15799 DE U-LINE (TYP.)
ARCHITECTURE ET CONSTRUCTION 3
ARC2313-A-A21

ARCHITECTURE ET CONSTRUCTION 3
ARC2313-A-A21
ARCHITECTURE ET CONSTRUCTION 3 ARC2313-A-A21
détail 2 - marches en bois
PROJET 1
PROJET 1
PROJET 1
DISPOSITIF DE CIRCULATION VERTICALE
A402 DÉTAIL MARCHE EN BÉTON ÉCHELLE 1:10
DISPOSITIF DE CIRCULATION VERTICALE
DISPOSITIF DE CIRCULATION VERTICALE
DESSINÉ PAR
DÉTAIL MARCHE EN BÉTON ÉCHELLE 1:10
JOINT DE DILATATION AU CHANT DE LA DALLE RECOUVERT D'UN MASTIC POLYURÉTHANE POUR UNE FINITION PLUS LISSE
A402 DÉTAIL MARCHE EN BÉTON ÉCHELLE 1:10
03 A402 DÉTAIL MARCHE EN BÉTON ÉCHELLE 1:10
DESSINÉ PAR
-TRELLIS MÉTALLIQUE (VOIR ING.)
PLAQUE D'ACIER 280X1200mm, 10mm D'ÉPAISSEUR, SOUDÉE AU LIMON
-PARE-VAPEUR 6MIL.
PLAQUE D'ACIER 160X1200mm, 10mm D'ÉPAISSEUR, SOUDÉE AU LIMON
-ISOLANT RIGIDE 50mm
PLAQUE D'ACIER 160X1200mm, 10mm D'ÉPAISSEUR, SOUDÉE AU LIMON
PLAQUE D'ACIER 160X1200mm, 10mm D'ÉPAISSEUR, SOUDÉE AU LIMON
Dalle de béton 200 mm (voir ing).
Treillis métallique (voir ing).
Pare-vapeur 6MIL.
BANDE ADHÉSIVE ANTIDÉRAPENTE TRANSPARENTE 27MIL. DE 50mm MODÈLE TEL QUE S-15799 DE U-LINE (TYP.) 03 A402 DÉTAIL MARCHE EN BÉTON ÉCHELLE 1:10
JULIAN JERI DI CARLO ET GEORGES BATAL
DESSINÉ PAR JULIAN JERI DI CARLO ET GEORGES BATAL
03 A402 DÉTAIL MARCHE EN BÉTON ÉCHELLE 1:10
JULIAN JERI DI CARLO ET GEORGES BATAL
CIMENT EXPANSIBLE CRL KWX50, 19mm D'ÉPAISSEUR
CIMENT EXPANSIBLE CRL KWX50, 19mm D'ÉPAISSEUR
-GRAVIER 600MM MIN. 0-9mm COMPACTÉ @ 50MPA (VOIR ING.)
-SOL NON-REMANIÉ
BANDE ADHÉSIVE ANTIDÉRAPENTE TRANSPARENTE 27MIL. DE 50X2000mm MODÈLE TEL QUE S-15799 DE U-LINE (TYP.)
BANDE ADHÉSIVE ANTIDÉRAPENTE TRANSPARENTE 27MIL. DE 50X2000mm MODÈLE TEL QUE S-15799 DE U-LINE (TYP.)
BANDE ADHÉSIVE ANTIDÉRAPENTE TRANSPARENTE 27MIL. DE 50X2000mm MODÈLE TEL QUE S-15799 DE U-LINE (TYP.)
COLLE VINYLIQUE
PLANCHER PL01
COLLE VINYLIQUE
COLLE VINYLIQUE

-FINI DE BÉTON TYPE ÉPOXY
-DALLE DE BÉTON 200mm (VOIR ING.)
-TRELLIS MÉTALLIQUE (VOIR ING.)
Isolant rigide 50 mm. Gravier 600 mm MIN
0-9 mm compacté @ 50MPA (voir ing).
Sol non - remanié.
ÉCHELLE 1:10
PLANCHE DE BOIS B01 EN FORME DE L, 380X160X2000mm, 10mm D'ÉPAISSEUR 02 A401 DÉTAIL DES MARCHES ÉCHELLE 1:10
Plancher PL02
Fini de béton type époxy.
CIMENT EXPANSIBLE CRL KWX50, 19mm D'ÉPAISSEUR
CLIENT STEPHAN CHEVALIER
CLIENT STEPHAN CHEVALIER
CLIENT STEPHAN CHEVALIER
BANDE ADHÉSIVE ANTIDÉRAPENTE TRANSPARENTE 27MIL. DE 50mm
MODÈLE TEL QUE S-15799 DE U-LINE (TYP.)
MODÈLE TEL QUE S-15799 DE U-LINE (TYP.)
A401 DÉTAIL DES MARCHES ÉCHELLE 1:10
02 A401 DÉTAIL DES
-PARE-VAPEUR 6MIL.
-ISOLANT RIGIDE 50mm
références - extrait - planchers
-SOL NON-REMANIÉ
Dalle de béton 300 mm (voir ing).
Treillis métallique (voir ing).
-GRAVIER 600MM MIN. 0-9mm COMPACTÉ @ 50MPA (VOIR ING.)
BANDE ADHÉSIVE ANTIDÉRAPENTE TRANSPARENTE 27MIL. DE 50mm
BANDE ADHÉSIVE ANTIDÉRAPENTE TRANSPARENTE 27MIL. DE 50mm
BANDE ADHÉSIVE ANTIDÉRAPENTE TRANSPARENTE 27MIL. DE 50mm MODÈLE TEL QUE S-15799 DE U-LINE (TYP.)
JOINT DE DILATATION AU CHANT DE LA DALLE RECOUVERT D'UN MASTIC POLYURÉTHANE POUR UNE FINITION PLUS LISSE
JOINT DE DILATATION AU CHANT DE LA DALLE RECOUVERT D'UN MASTIC POLYURÉTHANE POUR UNE FINITION PLUS LISSE
JOINT DE DILATATION AU CHANT DE LA DALLE RECOUVERT D'UN MASTIC POLYURÉTHANE POUR UNE FINITION PLUS LISSE
Ciment expansible CRL KWX50, 19 mm. Bande adhésive antidérapente transparente 27 MIL De 50 mm modèle tel que S - 15799 de U-Line (Typ).
BANDE ADHÉSIVE ANTIDÉRAPENTE TRANSPARENTE 27MIL. DE 50mm MODÈLE TEL QUE S-15799 DE U-LINE (TYP.)
JOINT DE DILATATION AU CHANT DE LA DALLE RECOUVERT D'UN MASTIC
JOINT DE DILATATION AU CHANT DE LA DALLE RECOUVERT D'UN MASTIC POLYURÉTHANE POUR UNE FINITION PLUS LISSE CIMENT EXPANSIBLE CRL KWX50, 19mm D'ÉPAISSEUR
Joint de dilatation, au chant de la dalle, 10 mm d’épaisseur recouvert d’un mastic polyuréthane pour une finition plus lisse.
RENVOI D'AGRANDI DE DESSIN (DÉTAIL) IDENTIFICATION DE DESSIN SYMBOLES
TITRE DU DESSIN DÉTAILS EN COUPE
TITRE DU DESSIN DÉTAILS EN COUPE

DATE 2021-10-27
DATE 2021-10-27
DATE 2021-10-27
RENVOI DE COUPE
TITRE DU DESSIN DÉTAILS EN COUPE
ÉCHELLE 1/10 NO. FEUILLE
ÉCHELLE 1/10
ÉCHELLE 1/10 NO. FEUILLE
RENVOI D'AGRANDI DE DESSIN (DÉTAIL)
détail 3 - marche en béton
RENVOI DE COUPE
03 A402 DÉTAIL MARCHE EN BÉTON ÉCHELLE 1:10
MODÈLE TEL QUE S-15799 DE U-LINE (TYP.) 03 A402 DÉTAIL MARCHE EN BÉTON ÉCHELLE 1:10
Vis de réglage en acier inoxydable 5x13 mm
46.5
02 A403 DÉTAIL
BANDE ADHÉSIVE ANTIDÉRAPENTE TRANSPARENTE 27MIL. DE 50mm
MODÈLE TEL QUE S-15799 DE U-LINE (TYP.)
Tube d’acier inoxydable, Ø 38mm
TUBE D'ACIER INOXYDABLE MET03, Ø 38mm
POUR UNE FINITION PLUS LISSE
Support à verre rond CRL, Ø 50 mm
12 VIS EN ACIER
Vis en acier inoxydable 9.5 X 45 mm
Console
TIGE D'ACIER VERTICALE T1 SECTION CIRCULAIRE, Ø 12mm
TIGE D'ACIER VERTICALE T1 SECTION CIRCULAIRE, Ø 12mm
TIGE D'ACIER HORIZONTALE T2 SECTION CIRCULAIRE, Ø 19 mm
TIGE D'ACIER HORIZONTALE T2 SECTION CIRCULAIRE, Ø 19 mm
Tige d’acier verticale, Ø 12 mm
Tige d’acier horizontale, Ø 12 mm
détail 4a - fixation de la main courante
Ø 19 mm
Panneau de verre laminé 16 mm
BANDE ADHÉSIVE ANTIDÉRAPENTE TRANSPARENTE 27MIL. DE 50mm MODÈLE TEL QUE S-15799 DE U-LINE (TYP.)
JOINT DE DILATATION AU CHANT DE LA DALLE RECOUVERT D'UN
Vis de montage, acier inoxydable 9.5x51 mm
Vis en acier inoxydable, 9.5X45 mm
Support à verre SVR 150LAE, rond Ø 50 mm, acier inoxydable
03 A403 DÉTAIL DE FIXATION DU GARDE-CORPS ÉCHELLE 1:5
détail 4b - fixation du garde-corps
Planche de bois massif de chêne en forme de L, 380x160x2000 mm, teint et vernis, ép. 10 mm
PLANCHE DE BOIS B01 EN FORME DE L, 380X160X2000mm, 10mm D'ÉPAISSEUR
PLANCHE DE BOIS B01 EN FORME DE L, 380X160X2000mm, 10mm D'ÉPAISSEUR
Plaque d’acier,ép.10 mm, peinte, soudée, meulée au limon puis vissée aux marches
PLAQUE D'ACIER MET02, 10mm D'EPAISSEUR, (VOIR INGÉNIEUR POUR DIMENSION) PEINTE, SOUDÉE, MEULÉE AU LIMON PUIS VISSÉE AUX MARCHES
PLAQUE D'ACIER MET02, 10mm D'EPAISSEUR, (VOIR INGÉNIEUR POUR DIMENSION) PEINTE, SOUDÉE, MEULÉE AU LIMON PUIS VISSÉE AUX MARCHES
A402 DÉTAIL MARCHE EN BÉTON ÉCHELLE 1:10
Limon structural en profilé creux HSS à section rectangulaire 350x400mm,ép.10 mm, boulonnée de chaque côté par une cornière en acier
LIMON STRUCTURAL MET01 EN PROFILÉ CREUX HSS À SECTION RECTANGULAIRE 350X400 mm, 10mm D'EPAISSEUR, BOULONNÉE DE CHAQUE CÔTÉ PAR UNE CORNIÈRE EN ACIER
CORNIÈRE EN ACIER À JAMBES ÉGALES, 200X200mm, 16mm D'EPAISSEUR, SOUDÉE PUIS FIXÉE SUR LE SOCLE EN BÉTON BET01 ET LE LIMON MET01 PAR DES BOULONS, ÉCROUS ET RONDELLES (VOIR DIMENSIONS AVEC INGÉNIEUR)

LIMON STRUCTURAL MET01 EN PROFILÉ CREUX HSS À SECTION RECTANGULAIRE 350X400 mm, 10mm D'EPAISSEUR, BOULONNÉE DE CHAQUE CÔTÉ PAR UNE CORNIÈRE EN ACIER
CORNIÈRE EN ACIER À JAMBES ÉGALES, 200X200mm, 16mm D'EPAISSEUR, SOUDÉE PUIS FIXÉE SUR LE SOCLE EN BÉTON BET01 ET LE LIMON MET01 PAR DES BOULONS, ÉCROUS ET RONDELLES (VOIR DIMENSIONS AVEC INGÉNIEUR)
Cornière en acier à jambes égales, 200x200mm ép.16 mm, soudée puis fixée sur le socle en béton et le limon par des boulons, écrous et rondelles (voir ingénieur).
BOULON D'ANCRAGE (VOIR DIMENSIONS AVEC INGÉNIEUR)
BOULON D'ANCRAGE (VOIR DIMENSIONS AVEC INGÉNIEUR)
Boulon d’ancrage (voir dimensions avec ing).

un équipement public, dispositif spatial conçu comme toile de fond pour sublimer le paysage naturel
ARC6802 - Projet thèse - Ville refuge - Recherche et création - Maîtrise
Sujet : Une culture constructive d’ouverture, d’accueil et de souci de l’autre
Tuteur: Irena Latek et Alain Carle
Durée: 15 semaines
Équipe: Individuel
Le projet proposé au Parc Mackenzie-King s’appuie sur une architecture qui honore la nature en mettant en valeur son esprit et en respectant son essence. Inspiré par le concept de « ménager » plutôt que d’« aménager » de Thierry Paquot, le projet favorise une relation symbiotique entre l’intervention humaine et le paysage existant. Situé dans un parc combinant des fragments de forêt du Mont Royal et des espaces aménagés, le bâtiment s’intègre harmonieusement au contexte en valorisant la transition entre ville et nature.
À l’intersection de l’avenue Saint-Kevin, une entrée principale réinventée guidera les visiteurs vers un complexe architectural conçu en trois pavillons, chacun dédié à une relation spécifique avec la nature: la connaissance, l’art et le corps. Ces pavillons, séparés par des seuils visuels et physiques invitant à explorer la forêt existante, reflètent une distinction spatiale et contextuelle dictée par la présence des
arbres et de la topographie naturelle. La nature, en honorant l’homme par ses caractéristiques universelles d’hospitalité accueil, refuge et ressourcement , appelle à une réponse réciproque. Ce projet propose ainsi de lui retourner cette faveur à travers l’architecture, en créant des espaces respectueux, où l’humain honore la nature par des interventions sensibles et subtiles.
Les matériaux, comme l’acier teinté crème et les panneaux de bois, dialoguent avec le paysage environnant, tandis que les baies vitrées, par leur transparence, mettent en valeur le paysage en venant le reflèter.
Les arbres emblématiques du site, tels que l’arbre incliné et le saule pleureur, sont soigneusement intégrés dans l’aménagement, offrant des espaces ombragés et protecteurs qui invitent à des usages variés. Ce projet crée ainsi une architecture intemporelle, universelle et respectueuse, où l’homme et la nature cohabitent en parfaite harmonie.


entrée principale - vue panoramique sur la forêt - épiphanie marquant le moment de transition entre la rue urbaine et le parc


entre-deux extérieur séparant ancien et nouveau - propice aux activités sensorielles - bassin et douches polyvalentes

l’arbre incliné - potentiel architectural d’abri - mise en valeur par une plateforme discrète accueillant des activités et préservant le sol compacté

le saule pleureur - potentiel architectural d’abri - appropriation libre et personnelle de l’espace par des chaises amovibles

le pavillon « conaissance » - présence dominante de la végétation - sol en béton lisse

le pavillon « conaissance » - éclairage suspendu et discret - mur servant intégré - troc de livres

le pavillon « art » - présence modérée de la végétation - sol en béton brut


le pavillon « corps » - espace vaste et libre encourageant mouvement - absence de végétation - sol en béton poli

le pavillon « corps » - éclairage linéaire - mur servant intégré - espaliers polyvalents

vue extérieure - un dispositif face à la montagne
ARC2012 - Atelier d’architecture 4 - 2e année
Tuteur: Stephan Kowal
Durée: 2 semaines
Equipe: Individuel
LA TOPOGRAPHIE est une résille solaire et dispositif optique implanté sur le Mont Royal. Par son nom, elle rend hommage aux lignes courbes de l’ancienne carrière du site (1952).
Reflétant l’identité de la montagne, elle s’enracine dans sa situation actuelle, cherchant un équilibre entre le bâti et le paysage existant. Au fil du temps, le Mont Royal a subi diverses interventions pour répondre aux besoins, avec des opérations de remblayage et déblayage, engendrant des projets comme les universités, collèges, stationnements et terrains sportifs, qui nécessitent de vastes surfaces nivelées. Le dispositif exprime cette dualité par une trame régulière, symbole du construit, fusionnée aux lignes topographiques naturelles du site.
Cette association crée une forme dynamique dictée par les courbes du terrain.
Deux stratégies optimisent la lumière solaire : une épaisseur variable entre les lignes, augmentant vers la base, invite les rayonnements rasants en hiver et bloque les rayons abrupts en été.
De plus, les lames sont extrudées selon les niveaux du site, leur extrusion culminant au sommet de la montagne et diminuant progressivement, favorisant un éclairage naturel adapté. Des pièces de bois, intégrées entre les lames, renforcent ces effets en accentuant les courbes générées par les ombres. Elles servent également de barrières solaires. Le dispositif utilise du bois lamellé-collé pour sa plasticité et ses grandes portées. Les lames, assemblées par tenon-mortaise sur un cadre, sont stabilisées par des traverses dissimulées derrière les pièces en bois clôturant les lames. Ces éléments, préfabriqués, sont fixés avec des vis en bois, garantissant la continuité formelle et matérielle de la structure.



démarche - concept et stratégie d’ensoleillement






maquette axonométrie éclatée - bois lamellé-collé - GLT

vue intérieure - un dispositif révélateur des anciennes lignes topographiques

m e r c i