P O R T A F O L I O
G e m a E s m e r a l d a C a s t i l l o A r a i z a


![]()
P O R T A F O L I O
G e m a E s m e r a l d a C a s t i l l o A r a i z a



X O C O N G O 5 3

Xocongo 53,Transito cuahutemoc,06820






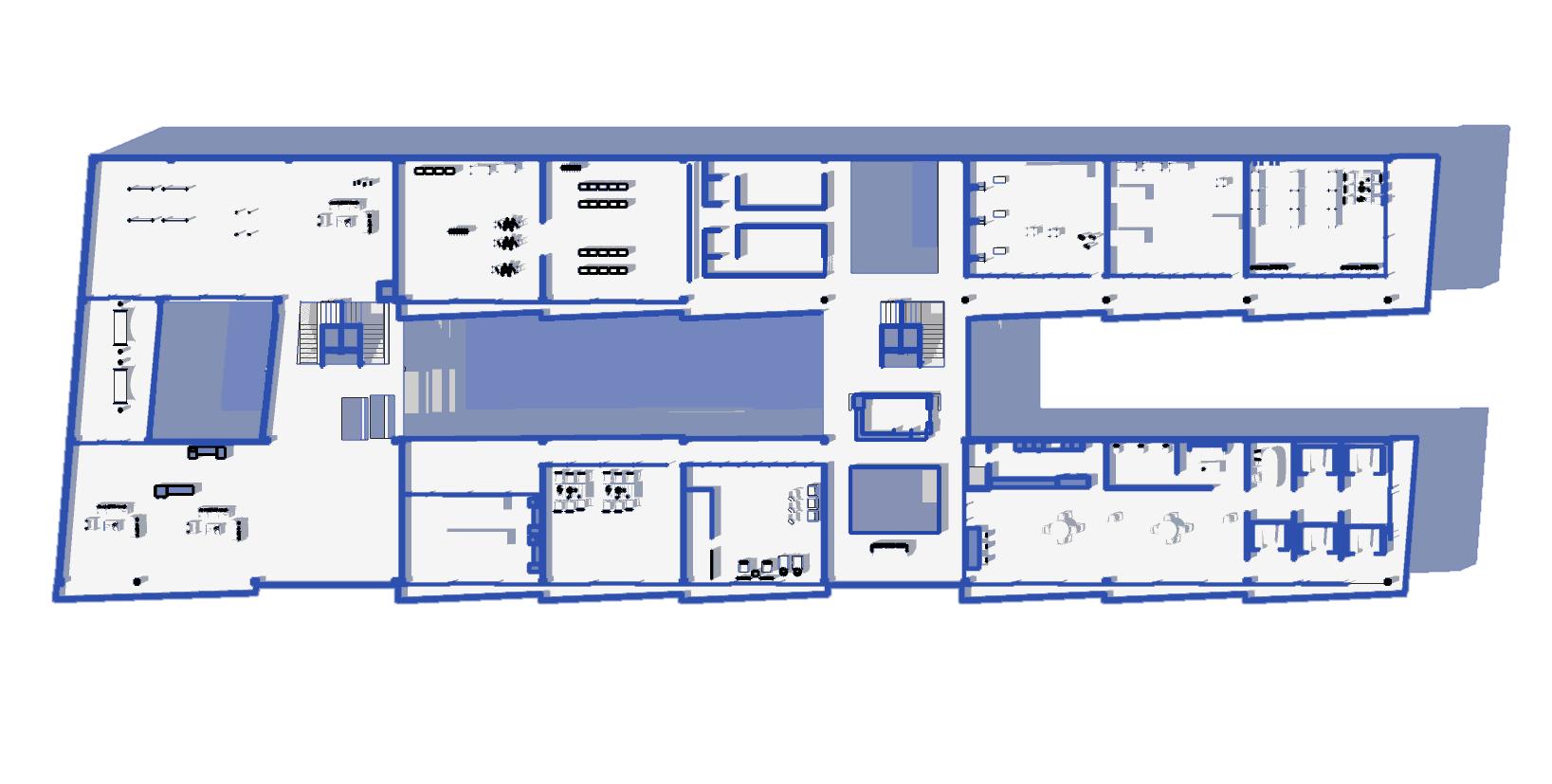
El proyecto Xocongo 53 es un edificio de uso mixto de comercio + vivienda. La inserción al contexto urbano arquitectónico se realizó mediante cuatro estrategias, garantizando una correcta integración 1) Rehabilitar las sendas que prioricen la accesibilidad y seguridad del peatón a lo largo del Callejón San Antonio Abad y en sus nodos. 2) Reubicar la actividad comercial de la paca al edificio. 3) Dotar de servicios a la población que reside en la colonia. 4) Revitalizar la colonia equilibrando el uso de suelo comercial y habitacional. Con el objetivo de generar bordes blandos donde haya puntos de encuentro, apropiación del lugar para fortalecer el tejido social.


8.
9.


CAFETERÍA/ CO -WORK. 1. SALÓN DE BELLEZA. 2. VENTA Y TALLER DE BARRO Y CERÁMICA. 3. ESTÉTICA CANINA. 4. SASTRERÍA.5.
REPARADORA DE CALZADO. 6. LIBRERÍA.7. LAVANDERÍA/TINTORERÍA.8.
TERRAZA 1 10. TERRAZA 2 11.
REPARADORA DE CALZADO. 6. LIBRERÍA.7. LAVANDERÍA/TINTORERÍA.8. SALA DE OCIO 9. TERRAZA 1 10.
TERRAZA 2 11. SANITARIOS12.




La postura de la integración de la imagen al contexto urbano existente es por semejanza. Con el uso de materiales aparentes, como tabimax aparente, lamina perforada, vigas aparentes, columnas con acabado negro mate cancelerías de aluminio acabado bronce oscuro; retomando así un aspecto industrial de la colonia.
Las proporciones son 3:2 y 3:1, en primer nivel a doble altura, manteniendo una escala a proporción humana con mayor amplitud.

+Losa maciza
10 cm
fc= 150 kg/cm²
+Losacero 25 calibre 25
+Viga 02 IR 254x166 6kg/m²
+Mampostería Muros de tabimax 15x12x24
+Viga 01 IR
w=533x218.8kg/m
+Columna IR
w=305x129.7kg/m
+Losa tapa
fc= 150 kg/cm²
+Losa de cimentación
Losa fondo Dados + Contratrabes
fc= 150 kg/cm²


La cimentación del edifico es por losa de cimentación, conformada por losa fondo, ligada a contratrabes dados de concreto armado y losa tapa.
El sistema estructural es a base de marcos rígidos de perfiles metálicos. Conformado por columnas vigas principales y largueros.
Para el sistema constructivo, se propone losacero para los entrepisos y losa maciza para cubiertas. Así como muros de mamposterías y de concreto armado para muros de colindancia y eleveadores.


Para el almacenamiento están proyectadas tres cisternas. 1) Agua potable de 90 500 L. 2) Agua filtrada pluvial de 70 700 L. 3) Protección contra incendios de 70 700 L.
Para los recorridos se proponen dos lineas de agua agua potable para uso domestico a vivienda y servicios; y otra para sistema de riego para áreas verdes. La distribución es mediante bombeo hidráulico, hacia 16 tinacos de 2 500 L, siendo un total de 40 000L de almacenamiento; generando un recorrido mediante ductos. Pasando por vivienda, comercio y planta baja.
El uso de precalentadores solares es una integración de ecotecnias en el edificio; teniendo 14 precalentadores en total.

Para la captación de aguas pluviales tenemos una superficie de 1396m2 con 18 bajadas pluviales las cuales se dirigen a un sistema de filtración para posterior almacenaje, el cual cuenta con un almacenamiento para 70 700L.
Para sistema sanitario se propone unificar aguas negras con grises esto con el fin de generar un tratamiento de acuerdo mediante una planta de tratamiento, para posteriormente redirigirlas hacia la red municipal, con base en la norma NOM-03SEMARNAT- 1997.
C A S A D E B O M B A S

Boulevard Puerto Áereo 465,Peñón de los Baños, Alcaldía Venustiano Carranza.










C A S A D E B O M B A S

Boulevard Puerto Áereo 465,Peñón de los Baños, Alcaldía Venustiano Carranza.




R E N D E R S Y O T R O S









