Gary Evan Rockow Grad Project 2024 Dossier

Page 1


d o s s i e r

Gary Evan Rockow

A collection of process work from AR501, AR502, & AR503

Imperial Plaza Multi Cultural Art Center

6365 Imperial Ave, San Diego CA 92114

c o n t e n t s

page 1………………………………..………………... cover page

page 2………………………………..………..….. contents page

page 3………………………………..…….. contextual analysis

page 4……………………………..……….. contextual analysis

page 5………………………………………………….. case study 1

page 6…………………………………………….…….. case study 2

page 7....…….. response to site & program analysis

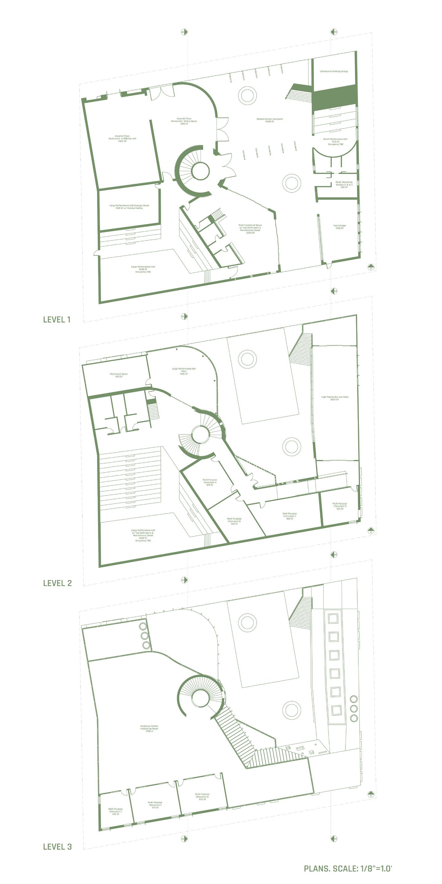
page 8…………………………………………….…………... program

page 9…………………………………………….……... form & mass

page 10………………………………………….……... form & mass

page 11………………………………………….……... form & mass

page 12………………………………………….……... form & mass

page 13………………………………………….……... form & mass

page 14………………………………………….……... form & mass

page 15………………………………………….……... building v1

page 16………………………………………….……... building v2

page 17……………………………………….. building description

page 18……….........…... opportunities & public features

page 19…………………... means of ergess & code alalysis

page 20………………………………………….……... occupency

page 21…………………………... energy efficency strategies

page 22………………………………. passive cooling and solar

page 23………………………………... facade detail & materials

page 24………………………………………….……... physical model

page 25………………………………………….……... physical model

page 26………………………………………….……... Renders

Encanto San Diego

Imperial Plaza Multi Cultural Art Center

6365 Imperial Ave, San Diego CA 92114

Encanto San Diego

Imperial Plaza Multi Cultural Art Center

6365 Imperial Ave, San Diego CA 92114

r e s p o n s e t o s i t e & p r o g r a m a n a l y s i s

Encanto Harmony

Gary Evan Rockow

Bachelor of Architecture class of 2024 Midterm Project

To Address: Occupancy, Construction Type, Means of Egress, Accessibility, Envelope System, Energy Efficiency, Passive Design.

Project Description

Project Title: Encanto Harmony: Multi-Cultural Art Center

Location: 6365 Imperial Ave, San Diego, CA 92114

Introduction:

Welcome to Encanto Harmony, a visionary project nestled in the heart of the proposed Arts District of Encanto, San Diego. This multi-cultural art center serves as a celebration of diversity, encapsulating the rich tapestry of Encanto's vibrant community. Inspired by the rhythmic pulse of the Encanto Street Fair music scene, this project harmonizes art, culture, and architecture to create a dynamic space that resonates with the spirit of Encanto Project Overview:

Encanto Harmony is envisioned as a multi-faceted cultural hub, designed to showcase and promote the arts while paying homage to the unique identity of Encanto. The primary goal of this project is to embody the essence of Encanto through architectural expression, utilizing the sounds, rhythms, and cultural heritage of the community as guiding principles.

Design Concept:

Drawing inspiration from the diverse musical traditions of Encanto, the design concept for Encanto Harmony is driven by the dynamic interplay of sound waves and natural curves. The fluidity and movement inherent in music are translated into the form and massing of the buildings, creating a visually striking composition that reflects the energy and vitality of the community.

Key Features:

Rhythmic Architecture: The form within Encanto Harmony are characterized by their fluid and organic forms, reminiscent of the undulating waves of sound. Curvilinear elements and sculptural volumes evoke the sense of movement and rhythm, inviting visitors to engage with the space on a sensory level.

Cultural Integration: Embracing the multi-cultural fabric of Encanto, the art center serves as a platform for diverse artistic expressions, including music, dance, visual arts, and theater. Flexible and adaptable spaces are designed to accommodate a wide range of cultural events and activities, fostering cross-cultural dialogue and collaboration.

Community Engagement: Encanto Harmony is more than just a physical space; it is a catalyst for community engagement and empowerment. Interactive art installations, outdoor performance areas, and communal gathering spaces encourage social interaction and creative exchange, nurturing a sense of belonging and pride within the community.

Sustainability: Committed to environmental stewardship, Encanto Harmony incorporates sustainable design principles and practices. From passive cooling strategies to renewable energy systems and rainwater harvesting, the art center sets a precedent for eco-conscious development within the neighborhood.

Conclusion:

Encanto Harmony represents a bold vision for the future of arts and culture in Encanto, San Diego. By integrating the rich heritage and dynamic energy of the community into its very fabric, this multi-cultural art center celebrates diversity, fosters creativity, and cultivates a sense of unity among residents and visitors alike. As a beacon of artistic innovation and cultural exchange, Encanto Harmony stands as a testament to the transformative power of architecture to inspire, connect, and enrich lives.

Opportunities & Public Features

Hours Of Operation: Dependent on space, 8:00am-2:00am Estimated Job opportunities: 40 Persons

Energy Efficiency Strategies

For this energy analysis, I'm utilizing the Climate Studio Rhino7 plugin. The initial step involves assigning materials to the model's layers to ensure accurate readings. Firstly, I execute a radiation map to identify the areas of the building experiencing the highest thermal heat. Subsequently, I conduct a real-time luminance test across the entire structure to gauge the extent of heat gain penetrating the interior.

Following these initial tests, I proceed to implement modifications to the building design. This includes integrating a concrete cladding system and extending overhangs above expansive glazing sections. With these adjustments made, I rerun the aforementioned tests to assess the impact. The subsequent results demonstrate a reduction in thermal radiation and decreased heat gain within the building's interior, validating the effectiveness of the design alterations.

Radiation Map
Heat Gain
Radiation Map after adding cladding and extended shade coverage over large glazing.
Heat Gain after adding cladding and extended shade coverage over large glazing.
Architectural Response to Radiation and Heat Gain

Passive Cooling & Solar

Most spaces in the building can open two adjacent windows to allow unrestricted air flow to cool the space. There is a total of 2600 Sf of passive solar area on the roof this will generate about 70kW of solar when using 480W panels, Creating around 112,202kWh/ Year.

Solar Surface
Water Collection Surface

Physical Model

Turn static files into dynamic content formats.

Create a flipbook
Issuu converts static files into: digital portfolios, online yearbooks, online catalogs, digital photo albums and more. Sign up and create your flipbook.